Grundriss- Betriebsblind – brauche euren frischen Blick

Diskutiere Grundriss- Betriebsblind – brauche euren frischen Blick im Architektur Allgemein Forum im Bereich Architektur; Hallo zusammen, ich beschäftige mich nun schon seit einiger Zeit intensiv mit diesem Thema/Projekt und habe mittlerweile das Gefühl, etwas...

  1. #1 BobamBau0815, 05.01.2026
    BobamBau0815

    BobamBau0815

    Dabei seit:
    05.01.2026
    Beiträge:
    2
    Zustimmungen:
    1
    Hallo zusammen,


    ich beschäftige mich nun schon seit einiger Zeit intensiv mit diesem Thema/Projekt und habe mittlerweile das Gefühl, etwas „betriebsblind“ geworden zu sein. Mir fehlt aktuell der objektive Blick dafür, was gut gelöst ist und wo es noch Verbesserungspotenzial gibt.


    Daher würde ich mich sehr über eure Einschätzungen freuen:

    Habt ihr einen oder mehrere konkrete Vorschläge zur Verbesserung?

    Gerne auch Hinweise auf Dinge, die aus eurer Erfahrung problematisch sein könnten oder die man eventuell anders / besser lösen kann.


    Wenn jemand eigene Erfahrungen, Recherchen oder Tipps hat, wäre das ebenfalls super hilfreich – egal ob technisch, praktisch oder aus der Planung heraus.


    Hinweis zur Wärmepumpe:

    Die Wärmepumpe wird noch um 90 Grad gedreht. Wie seht ihr das?

    Gibt es aus eurer Sicht Punkte, die man dabei unbedingt beachten sollte (z. B. Luftführung, Wartung, Schall, Platzbedarf etc.)?


    Vielen Dank schon mal für eure Zeit und euren Input – ich bin für jede konstruktive Rückmeldung dankbar!


    Viele Grüße
    Bob
     

    Anhänge:

    CalculationCat gefällt das.
  2. 11ant

    11ant

    Dabei seit:
    28.02.2017
    Beiträge:
    2.434
    Zustimmungen:
    1.510
    Beruf:
    Bauherrenberater
    Ort:
    RLP Nord
    Benutzertitelzusatz:
    bringt Sie gut beraten ins Eigenheim
    Das kann ich leider voll bestätigen: Dir ist entgangen, daß wir NULL von der Entstehungsgeschichte Deines Projektes kennen. Nichts über das Grundstück, nichts über die Baufamilie, nichts über den Bedarf und die Gedanken. Wir sehen nur einen bemüht außergewöhnlichen Baukörper (und natürlich reichlich eingeplante Pfuschertaschen).
     
    BobamBau0815, driver55 und VollNormal gefällt das.
  3. #3 nordanney, 14.01.2026
    nordanney

    nordanney

    Dabei seit:
    15.09.2021
    Beiträge:
    6.074
    Zustimmungen:
    3.501
    Beruf:
    Finanzierer/Investor/Bau- und Sanierungslaie
    Ort:
    Niederrhein
    Da musst Du echt noch mehr zu erzählen. Warum Zugang zum Haus von hinten z.B. um nur mal das offensichtlichste zu nennen. So etwas kann man als Außenstehender absolut nicht nachvollziehen. Also mehr zu Euch und zum Grundstück und dem "Warum ist es so, wie aktuell geplant?". Ist immerhin ein Millionenprojekt.
     
    driver55 und 11ant gefällt das.
  4. #4 Kriminelle, 14.01.2026
    Kriminelle

    Kriminelle

    Dabei seit:
    16.05.2013
    Beiträge:
    3.616
    Zustimmungen:
    1.976
    Beruf:
    .
    Ort:
    Niedersachsen
    Dann schau Dir mal den angepinnten Fragebogen in diesem Unterforum an, fülle ihn für uns aus, damit wir dann auch auf Deine konkreten Wünsche und Bedürfnisse eingehen können. Und ja, auch der Lageplan gehört dazu, um zu schauen, welche Ausrichtungen die Räume wohin haben.
     
    driver55 und 11ant gefällt das.
  5. #5 Kriminelle, 14.01.2026
    Kriminelle

    Kriminelle

    Dabei seit:
    16.05.2013
    Beiträge:
    3.616
    Zustimmungen:
    1.976
    Beruf:
    .
    Ort:
    Niedersachsen
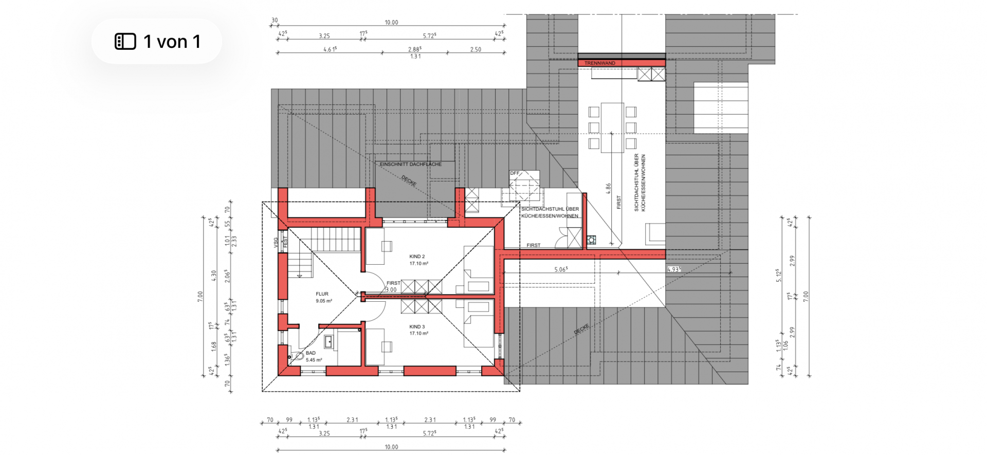
    Mein erster Blick: Sehe ich das richtig, dass man einmal um das Haus herumfährt, um die (angeschnittene) Garage erreicht? Warum macht man das denn? Das Haus hat ja nun wirklich nicht eine optimale Ausrichtung, da kann man ja auch die Garage erreichbarer setzen, damit mehr Fläche vom Grundstück für Garten genutzt werden kann. Büro im Süden ist zu warm, Essbereich im Norden zu kühl.. Schlafräume an die Sonnenwand, es erklärt sich mir hier wenig.
    Nachdem, was man erkennen kann, scheinen 80% des Grundstücks überbaut. Gartenfläche ist gar nicht. Hmm
     
    driver55, Jo Bauherr und 11ant gefällt das.
  6. #6 Fabian Weber, 14.01.2026
    Fabian Weber

    Fabian Weber

    Dabei seit:
    03.04.2018
    Beiträge:
    16.142
    Zustimmungen:
    6.381
    Kannst Du die fehlenden 2 Ansichten noch hochladen?
     
  7. #7 driver55, 15.01.2026
    driver55

    driver55

    Dabei seit:
    22.02.2008
    Beiträge:
    6.768
    Zustimmungen:
    1.737
    Beruf:
    Dipl.-Ing.
    Ort:
    Pforzheim
    Das ist mir auch gleich aufgefallen. WP drehen, dann ist der Plan perfekt.:biggthumpup:
    Sorry, konnte nicht anders…

    @all-TE: ihr glaubt doch nicht ernsthaft, dass da was gehaltvolles zurückkommt und ein konstruktiver Austausch gewünscht ist? Der Plan ist doch „fertig“.
     
    11ant gefällt das.
  8. #8 Tikonteroga, 15.01.2026
    Tikonteroga

    Tikonteroga

    Dabei seit:
    18.06.2016
    Beiträge:
    1.278
    Zustimmungen:
    290
    Ort:
    Baden-Württemberg
    Ich hätte versucht Räume, die über einen Wasser- und Abwasseranschluss verfügen, möglichst nebeneinander mit gemeinsamer Installationswand zu setzen. In der Installationswand befinden sich dann die Abwasser- und Wasserleitungen, Spülkästen, usw.

    Im Grundriss habe ich auch gesehen, dass ein WC an einer Trennwand zu einem Schlafraum positioniert wurde. Das hätte ich jetzt auch nicht gemacht.
     
  9. #9 Baggerbedrieb, 15.01.2026
    Baggerbedrieb

    Baggerbedrieb

    Dabei seit:
    13.09.2012
    Beiträge:
    1.469
    Zustimmungen:
    540
    Beruf:
    Baggerfahrer
    Ort:
    Heidenheim
    Gefällt mir. Off Topic: Schönes Haus für eine 5er WG wenn man das Büro noch anders anbindet. Erfüllt alle meine Forderungen für WG geeignetes Bauen.
     
    11ant gefällt das.
  10. #10 Kriminelle, 15.01.2026
    Kriminelle

    Kriminelle

    Dabei seit:
    16.05.2013
    Beiträge:
    3.616
    Zustimmungen:
    1.976
    Beruf:
    .
    Ort:
    Niedersachsen
    Beides ist kein Muss. Installationsschächte findet man im Trockenbau oder Systemhäusern wie zb Reihenhäuser oder Wohnungsbau.
    Das WC hier zb grenzt in keiner Weise an eine Trennwand noch an ein Kopfende eines Bettes.
     
  11. #11 BobamBau0815, 15.01.2026
    BobamBau0815

    BobamBau0815

    Dabei seit:
    05.01.2026
    Beiträge:
    2
    Zustimmungen:
    1
    Hallo zusammen,


    ich hätte ehrlich gesagt nicht mehr damit gerechnet, dass nach dieser Zeit noch Rückmeldungen kommen – umso mehr freut es mich, eure Antworten zu lesen. Vielen Dank dafür!


    Der Grundriss ist im Wesentlichen fertig, kleinere Anpassungen sind aktuell aber noch möglich. Daher freue ich mich weiterhin über Feedback und Anregungen.


    Kurz ein paar Infos zum Projekt:

    Das Grundstück liegt in einer Sackgasse und ist ca. 1.600 m² groß. Auf dem Grundstück befindet sich bereits eine neu errichtete Garage mit rund 160 m². Außerdem verläuft eine Hochspannungsleitung über das Grundstück. Das Haus selbst steht nicht direkt darunter, liegt aber teilweise in der entsprechenden Baubeschränkungszone mit entsprechenden Höhenvorgaben.


    Daraus ergibt sich die Planung mit einem zweigeschossigen Teil und einem eingeschossigen Bereich (Bungalow). Gedacht ist das Haus als Einfamilienhaus für eine Familie mit zwei bis drei Kindern.


    Das Obergeschoss (Zimmer Kind 2 und 3 inkl. Bad) ist so geplant, dass es später auch eine gewisse Eigenständigkeit bieten kann, z. B. für ein Kind im Studien- oder jungen Erwachsenenalter, mit separatem Bad, Schlafraum/Ankleide und einem weiteren Raum, der bei Bedarf auch als kleiner Küchen- bzw. Wohnbereich genutzt werden könnte.


    Der Hauseingang liegt bewusst nicht zur Straße hin, sondern auf der Innenhofseite. Geplant ist eine Grenzbebauung, sodass man über die Einfahrt zu den Garagen in den Hof fährt und von dort aus den Hauseingang erreicht.


    Das Büro ist direkt vom allgemeinen Hausflur aus zugänglich, da es auch als Musikzimmer genutzt werden soll. Als Hobbymusiker ist mir ein direkter Weg nach draußen wichtig, um größere und schwerere Gitarrenboxen ohne Umwege bewegen zu können. Daher bewusst kein Zugang über den kleineren Nebengang.


    Auf dem Google-Maps-Screenshot ist noch ein Bestandsgebäude zu sehen, das im Zuge des Vorhabens abgerissen wird. An dieser Stelle entsteht der Neubau.


    Ich freue mich auf eure Meinungen und Hinweise.


    Viele Grüße
     

    Anhänge:

  12. #12 Fabian Weber, 15.01.2026
    Zuletzt bearbeitet: 15.01.2026
    Fabian Weber

    Fabian Weber

    Dabei seit:
    03.04.2018
    Beiträge:
    16.142
    Zustimmungen:
    6.381
    Ich würde auf die kleine Terrasse mit dem seltsamen Glasdach neben der Garage vom WZ aus verzichten.

    Und ich würde die Traufhöhe der Bestandsgarage für den Bungalow-Teil übernehmen, das wird sonst ein elendes Gebastel mit den Regenrinnen und sieht auch einfach bescheuert aus.

    Der Garage würde ich vielleicht auch ein paar Fenster spendieren, so dass die Wand nicht so lang aussieht und zur natürlichen Belichtung.

    Und ich würde mal einen Landschaftsplaner für eine vernünftige Planung des Außenbereiches beauftragen, mit dem Ziel 30-50% Pflasterfläche einzusparen. Das halbe Grundstück ist versiegelt, wozu muss zum Beispiel hinter der Garage gepflastert sein

    An sich ist es natürlich nicht mehr zeitgemäß, ein bestehendes Gebäude für ein neues Gebäude abzureißen. Das ganze CO2, was dadurch unnötig verursacht wird, sollte man besser vermeiden und das bestehende Gebäude umbauen.
     
    11ant gefällt das.
  13. #13 Kriminelle, 16.01.2026
    Zuletzt bearbeitet: 16.01.2026
    Kriminelle

    Kriminelle

    Dabei seit:
    16.05.2013
    Beiträge:
    3.616
    Zustimmungen:
    1.976
    Beruf:
    .
    Ort:
    Niedersachsen
    Es ist zwar immer noch nicht der Fragebogen ausgefüllt, der notwendige Informationen bekannt geben würde, wenn man optimieren möchte, insofern halte ich mich mit konstruktiven Kommentaren zurück.
    Es ist halt schwer, wenn man mit Hochspannungsleitungen über dem Grundstück eingeengt wird.
    Das Grundstück inklusive den Verhältnissen und der Situation bestimmt das Haus.
    Allerdings habe ich eher das Gefühl, dass sich hier an der Mehrfachgarage mit der mega Pflasterung orientiert wird.
    Ich weiß hier nicht, wozu die Großraumgarage dient, noch erklärt sich mir nicht die Pflasterung als Bestand zu übernehmen und dadurch das Haus in eine für mich nicht komfortable Lage zu bringen. Leider kann man auch nur die Hochspannungsleitungen erahnen.

    Von der Lage her scheint das Grundstück ja uneinsehbar zu sein. Insofern würde ich wohl eher den Technikraum dort sehen, wo der Essbereich jetzt geplant ist und die Aufenthaltsräume tagsüber eher in den Süden schieben. Terrasse kann dann immer noch in Richtung Hoffläche (*hüst*) gestaltet werden.

    Aber der Entwurf soll ja schon nahezu fertig und abgesegnet sein (*hüst*)
    Dennoch steht ja dieser Satz im Raum:
    Vielleicht weckt ja mein Beitrag dann doch den Geist, noch einmal nachzudenken.

    Ansonsten: Den 5,5 HWR weglassen, der ist zu klein und bringt nix. Bügel kann man auch im Büro oder anderswo.
    Garderobenschrank mit 60er Tiefe einplanen, denn in einem 40er Schrank bekommt man keine Bügel mit Jacken rein.
    Im Bad EG würde ich den Wandabsatz bei der Toi wegplanen.
    Durchgang zum Flur EG (Privaträume) würde ich weiter planrechts versetzen und den Abstellraum an die Wand zum Kind versetzen. Dann kann man eine Schrankzeile in der Küche generieren und der Zugang wäre näher zum Eingang und die Küche optimierter. Garderobe müsste man da mal etwas puzzlen, aber es werden dann andere Optionen frei.
    Fenster über dem Bett ist nicht funktional.

    Treppe Richtung Außenwand ist oft sehr fragwürdig, da man Wohnfläche verplämpert.
    Die Kizis im OG sind mit ü5 Meter Länge im Verhältnis zur Breite sehr strapaziert.

    Die Sprossen nehmen viel Licht, das sollte man noch erwähnen.
    Und viel Stauraum ist auch nicht. Koffer, Deko, wo kommt der ganze Krusch hin, der nicht feucht in der Garage gelagert werden kann?
    Für mich ist der Entwurf so gar nicht rund. Schlafbereich von der Küche aus begehbar, das geht wohl fachmännisch besser. Mir scheint, als wenn man sich in der Idee eines ersten Entwurfes verrannt hat und keinen Fachmann rangelassen hat, bis das DiY dann abgezeichnet werden durfte.
     
    hanghaus2000 und 11ant gefällt das.
  14. #14 CalculationCat, 04.02.2026
    CalculationCat

    CalculationCat

    Dabei seit:
    29.01.2025
    Beiträge:
    20
    Zustimmungen:
    5
    Das Gäste-WC würde ich mit dem Abstellraum tauschen. Dann ist das WC vom Flur aus – und den einzelnen Zimmern – besser und schneller zugänglich. Vor allem nachts, wenn man nicht erst ewig die richtige Tür finden will. :D

    Wenn das gegenüberliegende Büro zum Schlafzimmer werden würde, könnte man den Hauswirtschaftsraum bzw. die Ankleide theoretisch zum Bad-en-suite machen. Das ist super komfortabel und voll im Trend! Gerade nach einem anstrengenden Arbeitsalltag: Vom Zähneputzen oder Duschen – gleich schnell ins Bett im Schlafzimmer.

    Wenn Kinder einziehen sollen, lohnt sich vielleicht auch noch mal der Blick auf die kindersichere Gestaltung.
     

    Anhänge:

Thema:

Grundriss- Betriebsblind – brauche euren frischen Blick

Die Seite wird geladen...

Grundriss- Betriebsblind – brauche euren frischen Blick - Ähnliche Themen

  1. Symbol Grundriss ca. 1875 Preußen Bitte um Erklärung

    Symbol Grundriss ca. 1875 Preußen Bitte um Erklärung: Hallo, ich habe vor einiger Zeit eine alte Försterei gekauft und suchte ewig nach Bauzeichnungen oder Grundrissen dazu. Lange Story kurz, ich...
  2. Grundriss. EFH 1 Vollgeschoss ohne Schrägen ca. 180qm

    Grundriss. EFH 1 Vollgeschoss ohne Schrägen ca. 180qm: Hi zusammen, wir sind gerade fleißig am Planen. Der Plan ist ein DIY. Habt ihr anregungen, wie man das ganze verbessern kann oder wo Probleme...
  3. Altbau-Sanierung BJ 1904: Grundriss neu, WP/PV, Dämmung – wo übersehe ich Risiken?

    Altbau-Sanierung BJ 1904: Grundriss neu, WP/PV, Dämmung – wo übersehe ich Risiken?: Liebe Community, wir (2 Erwachsene + 2 kleine Kinder) überlegen, einen Altbau (PLZ 33739) zu kaufen und umfassend zu sanieren und würden uns sehr...
  4. Bestandsgebäude EFH - Änderung Grundriss ?!

    Bestandsgebäude EFH - Änderung Grundriss ?!: Guten Tag zusammen, ich würde gerne das Schwarmwissen nutzen und umsetzbare Ideen für die Anpassung der Raumaufteilung bzw. des Grundrisses mit...
  5. 3 Grundrisse - Bitte um Meinungen

    3 Grundrisse - Bitte um Meinungen: Ich würde hiermit gerne eure Meinung zu diesen drei Grundrissen erfragen - Grundriss 1 und 2 berücksichtigen eine spätere Familienplanung, Plan 3...