Grundriss Bewertung

Diskutiere Grundriss Bewertung im Architektur Allgemein Forum im Bereich Architektur; @Kriminelle: Nein, natürlich nicht du. Der Betreffende hat schon reagiert.;)

  1. #61 driver55, 28.08.2020
    driver55

    driver55

    Dabei seit:
    22.02.2008
    Beiträge:
    6.689
    Zustimmungen:
    1.683
    Beruf:
    Dipl.-Ing.
    Ort:
    Pforzheim
    @Kriminelle: Nein, natürlich nicht du. Der Betreffende hat schon reagiert.;)
     
    Kriminelle gefällt das.
  2. #62 Kriminelle, 28.08.2020
    Kriminelle

    Kriminelle

    Dabei seit:
    16.05.2013
    Beiträge:
    3.547
    Zustimmungen:
    1.933
    Beruf:
    .
    Ort:
    Niedersachsen
    Auch hier bleibt die Frage nach dem Sinn!
    Wenn ich so begründen würde, habe ich 2 Kizis und eine Doppelgarage, weil alle so bauen und das erlaubt ist.
    Isch aber aba gar kein Kind und nur ein Autooo... merkst Du selbst, oder?
    Was ist Euer Bedarf, was Nutzen? Zum Rest kann ich nichts sagen, weil mir die Infos allesamt zu zerstreut hier sind.
     
  3. #63 mikro0p, 28.08.2020
    mikro0p

    mikro0p

    Dabei seit:
    11.09.2010
    Beiträge:
    330
    Zustimmungen:
    34
    Ort:
    Germersheim
    @Kriminelle Der Sinn war darin begründet die Kosten für den Keller durch etwaige KfW55 Förderung wieder rein bekommen zu können, und somit uns die Möglichkeit bleibt zu einem späteren Zeitpunkt die Einheit vermieten zu können
     
  4. #64 mikro0p, 28.08.2020
    mikro0p

    mikro0p

    Dabei seit:
    11.09.2010
    Beiträge:
    330
    Zustimmungen:
    34
    Ort:
    Germersheim
    Aber wir haben uns gestern dazu entschieden keine 2te Wohneinheit zu planen. Maximal ein Hobby-/ Wohnkeller wird daraus
     
    Kriminelle gefällt das.
  5. #65 mikro0p, 28.08.2020
    Zuletzt bearbeitet: 28.08.2020
    mikro0p

    mikro0p

    Dabei seit:
    11.09.2010
    Beiträge:
    330
    Zustimmungen:
    34
    Ort:
    Germersheim
    Unsere Archi hat die Aufgabe die Eingangs Situation neu zu überdenken, die Anordnung der Räume auf Nordseite umzuplanen und den HWR in den Keller zu verschieben. Den Kellergrundriss wird sie ebenfalls ausarbeiten - Ich bin gespannt. Mein Vorschlag für den möglichen Außenbereich habe ich bereits auf Papier - Meinungen hierzu willkommen
     

    Anhänge:

  6. 11ant

    11ant

    Dabei seit:
    28.02.2017
    Beiträge:
    2.389
    Zustimmungen:
    1.455
    Beruf:
    Bauherrenberater
    Ort:
    RLP Nord
    Benutzertitelzusatz:
    bringt Sie gut beraten ins Eigenheim
    Die Kinderzahl läßt sich durchaus auch in der Garage steigern: ob in der Garage, ob zehnte Etage, wen juckt schon die Archietktur (Rodgau Monotones, volle Lotte) :-)
     
  7. #67 mikro0p, 29.08.2020
    mikro0p

    mikro0p

    Dabei seit:
    11.09.2010
    Beiträge:
    330
    Zustimmungen:
    34
    Ort:
    Germersheim
    Reset „einmal neu“ Vorentwürfe, bevor Verzicht auf die 2te WE Entscheidung fiel
     

    Anhänge:

  8. #68 driver55, 29.08.2020
    driver55

    driver55

    Dabei seit:
    22.02.2008
    Beiträge:
    6.689
    Zustimmungen:
    1.683
    Beruf:
    Dipl.-Ing.
    Ort:
    Pforzheim
    Pläne sind doch dann eh obsolet.
    Ausserdem zu viel klein klein Die Treppenecke in Schlafen, Schrank in Schlafen (Bedenke die 2 m Linie) die Schleuse(n) ins Bad (was soll das sein?), wie wird das Bad möbiliert....Immernoch diese Leseecke, wo zu 95% kein Mensch sitzt...
    Jetzt zusätzlich noch Windfang...bleibt bei 30 qm mit wenig Nutzen...
     
  9. 11ant

    11ant

    Dabei seit:
    28.02.2017
    Beiträge:
    2.389
    Zustimmungen:
    1.455
    Beruf:
    Bauherrenberater
    Ort:
    RLP Nord
    Benutzertitelzusatz:
    bringt Sie gut beraten ins Eigenheim
    Bei allen ansonsten berechtigten Einwänden: da sitzt wohl eher in 95% der Bauherrenfamilien niemand, und hier gibt es wohl eine der anderen 5% Familien, wo sich konkret Eylem diese Ecke gewünscht hat. Ecken mit einer konkreten Eckenwünscherperson werden statistisch sehr viel wahrscheinlicher genutzt als ohne ;-)
     
    Gast56382, mikro0p und driver55 gefällt das.
  10. #70 mikro0p, 29.08.2020
    mikro0p

    mikro0p

    Dabei seit:
    11.09.2010
    Beiträge:
    330
    Zustimmungen:
    34
    Ort:
    Germersheim
    @driver55 @11ant Also die Ecke auflösen und die Fläche konkret dem Schlafzimmer und KiZi zurdnen?
     
  11. #71 mikro0p, 29.08.2020
    mikro0p

    mikro0p

    Dabei seit:
    11.09.2010
    Beiträge:
    330
    Zustimmungen:
    34
    Ort:
    Germersheim
    für mich zum besseren Verständnis - wo ist der Nutzen des Windfangs zu sehen, ab welcher bzw. bis zu welcher qm?
     
  12. #72 driver55, 29.08.2020
    driver55

    driver55

    Dabei seit:
    22.02.2008
    Beiträge:
    6.689
    Zustimmungen:
    1.683
    Beruf:
    Dipl.-Ing.
    Ort:
    Pforzheim
    Lösche erstmal diese ELW und setze die Treppe an eine Wand, dann brauchts die "Windfang/WC-Nase" nicht. (Ausser, man will das unbedingt so...)
     
    Kriminelle gefällt das.
  13. #73 mikro0p, 29.08.2020
    mikro0p

    mikro0p

    Dabei seit:
    11.09.2010
    Beiträge:
    330
    Zustimmungen:
    34
    Ort:
    Germersheim
    Den Vorschlag hatte ich auch schon gemacht. Folgende Antwort kam:
    Die letzten Grundrissvorschläge von Dir funktionieren leider nicht, weil:
    - das WC im EG fehlt
    - die Küche wenig Tageslicht bekommt wegen dem Carport Dach
    - das Badezimmer im DG keine ausreichende Kopfhöhe für die Dusche und die Waschtischanlage hat

    ich glaube die hat was gegen Podesttreppen :)
     

    Anhänge:

  14. #74 mikro0p, 29.08.2020
    mikro0p

    mikro0p

    Dabei seit:
    11.09.2010
    Beiträge:
    330
    Zustimmungen:
    34
    Ort:
    Germersheim
     
  15. #75 mikro0p, 29.08.2020
    mikro0p

    mikro0p

    Dabei seit:
    11.09.2010
    Beiträge:
    330
    Zustimmungen:
    34
    Ort:
    Germersheim
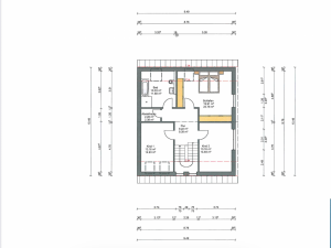
    Hier noch ein Entwurf von einem lokalen Bauträger...
     

    Anhänge:

  16. #76 Gast56382, 29.08.2020
    Gast56382

    Gast56382 Gast

    Na ja, der gefällt mir noch am ehsten.
     
  17. 11ant

    11ant

    Dabei seit:
    28.02.2017
    Beiträge:
    2.389
    Zustimmungen:
    1.455
    Beruf:
    Bauherrenberater
    Ort:
    RLP Nord
    Benutzertitelzusatz:
    bringt Sie gut beraten ins Eigenheim
    Nein, so lassen.
    Bis auf das auskragende DG gehe ich da mit.
     
  18. #78 Gast56382, 30.08.2020
    Gast56382

    Gast56382 Gast

    Ja, stimmt, seiht schon komisch aus. Aber das kann man ja, zugunsten Mehrwohnraumens weglassen.
     
  19. JanRi

    JanRi

    Dabei seit:
    05.09.2016
    Beiträge:
    58
    Zustimmungen:
    38
    Beruf:
    Informatiker
    Ort:
    Hagen
    ...und wieder ein düsteres Gefängnis für eines der Kinder (nur zwei kleine DFF), dafür aber einen Palast von einem Schlafzimmer. Braucht das wirklich diese gigantische Fläche? Was spräche denn dagegen, Kind 1 und Schlafzimmer zu tauschen und dann die Wand so zu setzen, dass beide Kinderzimmer gleich groß werden? Ich weiss ja nicht, wie ihr die Räume nutzt, aber ich finde viel Licht in einem Kinderzimmer wesentlich wichtiger als in einem Schlafzimmer.
     
    K a t j a, Kriminelle, faceless fear und einer weiteren Person gefällt das.
  20. #80 mikro0p, 31.08.2020
    mikro0p

    mikro0p

    Dabei seit:
    11.09.2010
    Beiträge:
    330
    Zustimmungen:
    34
    Ort:
    Germersheim
    @JanRi da bin ich bei Dir, wenn das Grundriss mit der Podesttreppe in die engere Wahl kommt wird das DG defintiv überarbeitet. Zunächst wollen wir den Grundriss mit der geraden Treppe optimieren (weil Favorit)
     
Thema:

Grundriss Bewertung

Die Seite wird geladen...

Grundriss Bewertung - Ähnliche Themen

  1. Grundriss Bewertung

    Grundriss Bewertung: Hallo zusammen, wir wollen demnächst ein Haus bauen. Die Vorgabe ist ein staffelgeschoss. Wir haben bereits ein Grundriss erstellt, habt ihr...
  2. Grundriss Bewertung

    Grundriss Bewertung: 1. Wir sind: 2 Erwachsene (30-35 Jahre), 1 Kind + 1 geplantes Kind. 2. Unser Raumprogramm: Offener Wohn/ Essbereich mit Küche,...
  3. EFH- Grundriss Bewertung und Fragen

    EFH- Grundriss Bewertung und Fragen: Hallo zusammen, anbei mein Entwurf für ein Einfamilienhaus mit der Bitte um offenes Feedback und gerne auch Anregungen Kurze Infos: Der...
  4. Bewertung Grundriss HRB - 3 Kinderzimmer

    Bewertung Grundriss HRB - 3 Kinderzimmer: Bitte einmal um ehrliches Feedback. Mich beschäftigt aktuell folgendes: Genügend Licht im Flur oben? Kein direktes Fenster vorhanden. Werden die...
  5. Bewertung Grundriss - Kleine Dachgeschoss-Wohnung

    Bewertung Grundriss - Kleine Dachgeschoss-Wohnung: Hallo zusammen, ich plane gerade einen möglichen Umbau des Dachgeschosses. In der Vergangenheit bestand das Dachgeschoss aus drei...