Grundriss Bewertung

Diskutiere Grundriss Bewertung im Architektur Allgemein Forum im Bereich Architektur; 1. Wir sind: 2 Erwachsene (30-35 Jahre), 1 Kind + 1 geplantes Kind. 2. Unser Raumprogramm: Offener Wohn/ Essbereich mit Küche,...

  1. Alfii

    Alfii

    Dabei seit:
    21.01.2022
    Beiträge:
    5
    Zustimmungen:
    1
    1. Wir sind: 2 Erwachsene (30-35 Jahre), 1 Kind + 1 geplantes Kind.

    2. Unser Raumprogramm: Offener Wohn/ Essbereich mit Küche, Elternschlafzimmer mit Ankleide, 2 Kinderschlafzimmer, ein Gästezimmer / Büro im DG, 2 Bäder und ein Gäste-WC. Elternschlafzimmer und Gästezimmer / Büro soll optional als zukünftige ELW abteilbar sein. Stau- und Technikräume: 2 Kellerräume (beide ca. 12qm), eine ehemalige Garage (20qm), HWR (7qm) im 1. OG.

    3. Welchen Hausstil bevorzugen wir?
    und warum? Da Um- und Anbau und durch Einschränkungen des Bebauungsplans ist der Hausstil relativ vorgegeben. Wir würden gerne modern bauen, legen im EG wert auf große Fensterflächen, im OG und DG jedoch auf Privatsphäre.

    4. Welche Zusatzwünsche/Features
    hätten wir gern und warum? Relativ große Dachterrasse da kleines Grundstück und wir gerne Zeit im Freien verbringen.

    5. Bebauungsplan/Einschränkungen: Das dargestellte Haus reflektiert die maximale Höhe, könnte aber noch breiter und weiter nach Süden herausgezogen werden (dafür sehen wir allerdings keinen Bedarf). 1 Stellplatz soll vor dem Eingang Platz finden.

    6. weitere Wünsche/Besonderheiten/Tagesablauf: N/A

    7. angedachte Haustechnik: Heizung: Wärmepumpe, KFW 55, KNX?

    8. Hausentwurf

    Von wem stammt die Planung: Architekt

    Was gefällt Euch besonders? Warum? Ausrichtung, Aufteilung, Größe, Stadtlage.
    Was gefällt nicht? Warum? Enge Bebauung, Treppen (da die Treppen nicht übereinander angeordnet sind und so Platz verloren geht), Stufen im Wohn/ Essbereich (aber kleineres Übel als Tunnelgefühl im kleinen Garten).
     

    Anhänge:

  2. 11ant

    11ant

    Dabei seit:
    28.02.2017
    Beiträge:
    2.486
    Zustimmungen:
    1.564
    Beruf:
    Bauherrenberater
    Ort:
    RLP Nord
    Benutzertitelzusatz:
    bringt Sie gut beraten ins Eigenheim
    zu Frage 1: Daß Du die Zeichungen als PDFs einstellst
    zu Frage 2: weil man sie dann umständlicher anschauen kann
     
    Jo Bauherr gefällt das.
  3. #3 Kriminelle, 21.01.2022
    Kriminelle

    Kriminelle

    Dabei seit:
    16.05.2013
    Beiträge:
    3.707
    Zustimmungen:
    2.048
    Beruf:
    .
    Ort:
    Niedersachsen
    Ich muss gestehen, ich muss ganz gehörig suchen! Ich komme auch mangels Erklärung nicht mit den Plänen klar.
    Der Lageplan zeigt einen Altbestand, dass es um einen Ausbau eines Altbestandes geht, liest man nirgendwo.
    Nirgendwo ist verzeichnet, wo die Zufahrt ist…
    Vieles sieht man erst beim dritten Mal… meine Geduld ist da schon sehr strapaziert. Da hat man dann auch keine Lust mehr, sich die Pläne bezüglich der endlich vorgefundenen ELW und versetzten Treppen in 3D vorzustellen.

    Diese beiden Aussagen finde ich widersprüchlich. Es scheint, als wenn der Einlieger an Euren Fenstern vorbei geht?!
    Und das
    Hab ich noch nicht gefunden.

    Die Küchenplanung gefällt mir gar nicht. Das liegt an der Tür zu den hinteren Räumen, die in die hintere Ecke gequetscht wird. Das spaltet die Kücheneinbaumöbel meist (hier auch ) unvorteilhaft, so dass es einen Eidruck von Arbeitsküchen aus den 50ern hat. Meine Meinung.
    Eine ordentliche und großzügige Garderobe suche ich.

    Vielleicht schiesst Du noch ein paar mehr Infos nach?!
     
  4. #4 K a t j a, 21.01.2022
    K a t j a

    K a t j a

    Dabei seit:
    31.05.2019
    Beiträge:
    1.009
    Zustimmungen:
    582
    Ort:
    Leipziger Land
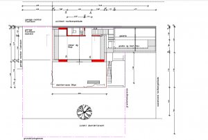
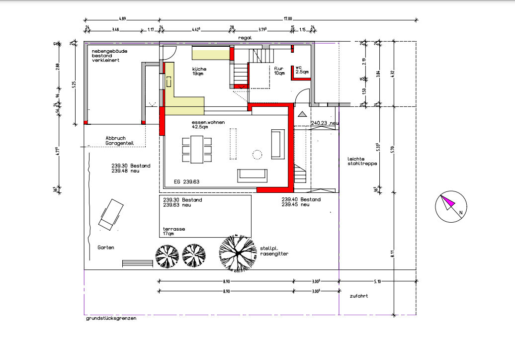
    EG
    EG.jpg

    OG
    OG.jpg

    DG
    DG.jpg




    schnitt.jpg

    Flurkarte.jpg
     
    Kriminelle, hanghaus2000 und 11ant gefällt das.
  5. #5 K a t j a, 21.01.2022
    K a t j a

    K a t j a

    Dabei seit:
    31.05.2019
    Beiträge:
    1.009
    Zustimmungen:
    582
    Ort:
    Leipziger Land
    Was ist denn das Elternschalfzimmer und was das Büro? Erreicht man das DG nur über eine Außentreppe?
    Küche sieht dunkel und ungemütlich aus. Hast Du vielleicht noch Ansichten?
     
  6. #6 jodler2014, 21.01.2022
    Zuletzt bearbeitet: 21.01.2022
    jodler2014

    jodler2014

    Dabei seit:
    20.12.2014
    Beiträge:
    3.907
    Zustimmungen:
    542
    Beruf:
    Angestellter
    Ort:
    RP
    Warum wird bei der Bezeichnung der Räume nicht auf die korrekte Rechtschreibung geachtet ?
    Ziemlich amateurhaft !
    Ansichten bitte .
     
    11ant gefällt das.
  7. Alfii

    Alfii

    Dabei seit:
    21.01.2022
    Beiträge:
    5
    Zustimmungen:
    1
    Guten Morgen zusammen,

    erst einmal vielen Dank für die Antworten.

    Das die Zeichnungen eingefügt einfacher zu sehen sind als als Anhang war uns nicht bewusst - @ Katja vielen Dank für das Einstellen!

    Gerne beantworten wir die aufgekommenen Fragen:

    Hier eine Ostansicht:

    upload_2022-1-22_9-49-30.png

    Von der Außentreppe kommt man auf das Dach über der EG Haustür. Von dort in den kleinen Flur (4qm) der Einliegerwohnung und von dort wiederum über die innenliegende Treppe in das DG.

    Das Elternschlafzimmer und Ankleide sollen die beiden Zimmer im OG werden die als "zimmer best. 11.5qm" und "zimmer best. 8qm" betitelt sind. Wir stellen uns diese ganz schön vor, da diese Räume bis zur Decke bzw. dem Dach im hinteren Teil eine doppelte Raumhöhe haben. Entsprechend ist das Gästezimmer / Büro im DG geplant.

    Zur Einliegerwohnung: Ob das Haus gesamt oder durch Einhängen der Außentreppe und abtrennen der Flure 1 & 2 im OG als zwei Wohnungen genutzt wird, soll von unserer jeweiligen Lebenssituation abhängen.

    Die Zufahrt zu unserem und dem dahinter liegenden Flurstück befindet sich auf unserem Grundstück (siehe Plan DG).

    Einen geeigneten Platz für die Garderobe suchen wir auch noch, vielen Dank für den Hinweis. Vielleicht kann diese unter der Treppe Platz finden?

    Zur Küche: Zu dieser haben wir uns auch viele Gedanken gemacht. Gedacht war, die Rückwand (NO) als eine durchgehende Schrankwand zu gestalten und die Tür in die kleine Abstellkammer dahinter als Schranktür zu verstecken (hoffentlich kein 50ger Arbeitsküchen Look). Ganz charmant fanden wir eigentlich die Möglichkeit durch diese kleine Abstellkammer in die ehemalige Garage zu gelangen, die zum einen den Zugang zum Keller darstellt und zum anderen für uns als Lager/Stauraum dienen wird. Auch empfanden wir es als ganz charmant den Küchenblock auf die zwei Ebenen aufzuteilen: oben Küche unten Platz für die Kaffeemaschine und das Geschirr. Es ist uns bewusst, dass dies die dunkelste Ecke des EGs ist, da der Raum ingesamt aber recht hell seien sollte, wissen wir nicht ob das so schlimm ist. Eine Alternative die wir auch erörtern ist die Küche und das Wohnzimmer zu tauschen, aber eine Küche mit 3m Deckenhöhe und in einem Raum mit 42.5qm in den sonst nur ein Esstisch muss? Gleichzeitig wäre dann das Wohnzimmer in der dunkleren Ecke.

    Noch ein paar Fragen: Was denkt ihr über das in zwei Ebenen geteilte EG? Würdet ihr im EG noch Fenster in die Wand (SO) einbauen? Es bestünde noch die Möglichkeit den Anbau (das eingezeichnete Wohn-/ Esszimmer) zu unterkellern, allerdings würde dort - ohne riesigen Aufwand zu betreiben - nur eine Deckenhöhe von ca. 2m erreicht werden, lohnt sich das?

    Noch einmal vielen Dank und viele Grüße!
     
  8. #8 K a t j a, 22.01.2022
    K a t j a

    K a t j a

    Dabei seit:
    31.05.2019
    Beiträge:
    1.009
    Zustimmungen:
    582
    Ort:
    Leipziger Land
    Muss nochmal fragen: wenn ich die Pläne lese, sehe ich das Elternschlafzimmer dann nur über einen Außenbereich erreichbar?
     
  9. Alfii

    Alfii

    Dabei seit:
    21.01.2022
    Beiträge:
    5
    Zustimmungen:
    1
    @ Katja: Vielleicht nochmal anders:

    Die Pläne stellen die Version des Hauses mit ELW dar. In diesen wäre das "zimmer best. 11.5qm" und das "zimmer best. 8qm" das Schlafzimmer der ELW, das Zimmer im DG wäre dann Küche, Wohn und Esszimmer der ELW. Die ELW ist nur über die Außentreppe zugänglich.

    Wenn das Haus als Ganzes genutzt wird, dann entfällt die Wand zwischen "flur 2 4qm" und "flur 1 8qm" (und die Außentreppe wäre überflüssig), dann wären die Zimmer "zimmer best. 11.5qm" und das "zimmer best. 8qm" Elternschlafzimmer und Ankleide und das Zimmer im DG Büro und Gästezimmer.

    Ich hoffe, das klärt das Missverständnis auf.

    Viele Grüße
     
    K a t j a gefällt das.
  10. #10 Kriminelle, 22.01.2022
    Kriminelle

    Kriminelle

    Dabei seit:
    16.05.2013
    Beiträge:
    3.707
    Zustimmungen:
    2.048
    Beruf:
    .
    Ort:
    Niedersachsen
    Danke für Deine Aufklärung :)

    Ich denke, da wird noch ein Durchgang sein, wo die Treppen sind.
    Doch! Es ist tatsächlich in der Küche, also im Tagesgeschäft und -geschehen sehr unkomfortabel, wenn man ständig Licht einschalten muss bzw auf Kunstlicht angewiesen ist.
    Ich erfahre es jeden Tag: Küche im Osten, Insel zum Süden hin, also in 3 Meter Entfernung Terassenfenster: ich muss zu 2/3 in der hellen Tageszeit übers Jahr immer Licht einschalten. Das nächste Mal, wenn ich baue, Küche im Süden oder Westen oder sehr viel mehr Glas im Osten.

    Das würde ich machen!
    Das ist in meinen Augen das kleinere Übel. Man hält sich ja im WZ nicht auf, um etwas am Tag zu tun: man schwirrt von der Küche in den Essbereich, nach oben, usw... also man "arbeitet" ja im Haus, und dafür braucht es Licht. Sofa/Lounge gern am Abend... und wenn man Sonne zum Relaxen braucht, zB zum Lesen tagsüber auf einem Sonntag, kann man einen schönen Sessel im Essbereich hinstellen.
    Dazu sehe ich die Notwendigkeit nicht.

    Ich würde es wohl so machen... irgendwie: Küche und WZ tauschen, Eingang vom Flur durch die Küche, dadurch Stellwand im WZ, Das entstehende Eck dann bei der Treppe kann man als Garderobe inkl unter der Treppe nutzen.
    Schöne große Küche mit einem Ost-Fenster. Verstehe ich es richtig, dass die Außentreppe erst später für die ELW notwendig ist?
    Den Zugang zu dem Abstellraum und der Kellertreppe sehe ich im Essbereich nicht als Übel an.

    Im OG habe ich eigentlich nur die Türen korrigieren wollen. 21qm für ein Zimmer sind schon etwas üppig. Deshalb habe ich etwas korrigiert, wo von das Bad profitiert. Schiebetüren bieten sich in Schlafräumen nicht an.

    Nachtrag: ich würde, um im Flur Licht reinzubekommen, die Wand dann zw Flur und Küche als Fenster machen - kleines Highlight mit Nutzen ;)




    E2CA2050-BDC4-44E3-BA7B-D3F447264C41.jpeg FD06BF1B-7F49-4906-89C3-19A166C29A2C.jpeg
     
  11. #11 Kriminelle, 22.01.2022
    Kriminelle

    Kriminelle

    Dabei seit:
    16.05.2013
    Beiträge:
    3.707
    Zustimmungen:
    2.048
    Beruf:
    .
    Ort:
    Niedersachsen
    Vielleicht aber auch so:
    Speis als kleinen Block einfügen.
    Die Südausrichtung ist ja eher im Eck… vlt dann SO mehr berücksichtigen:

    AD3EB443-BF35-49C9-8342-B5C66F4F36FE.jpeg
     
    K a t j a gefällt das.
  12. #12 K a t j a, 22.01.2022
    K a t j a

    K a t j a

    Dabei seit:
    31.05.2019
    Beiträge:
    1.009
    Zustimmungen:
    582
    Ort:
    Leipziger Land
    Die Südfenster (bei Kriminelle in der Küche) hatte ich auch schon vermisst. :bef1003:
     
  13. 11ant

    11ant

    Dabei seit:
    28.02.2017
    Beiträge:
    2.486
    Zustimmungen:
    1.564
    Beruf:
    Bauherrenberater
    Ort:
    RLP Nord
    Benutzertitelzusatz:
    bringt Sie gut beraten ins Eigenheim
    Tach auch :-)
    Kann es sein, daß Du Dein Projekt im orangen Forum schon´mal angerissen hast (und wie heißt Du dort) ?
     
  14. Alfii

    Alfii

    Dabei seit:
    21.01.2022
    Beiträge:
    5
    Zustimmungen:
    1
    @11ant, nein haben wir nicht.

    Aber bitte poste den Link, vielleicht können wir aus diesem Forum etwas lernen.

    Viele Grüße
     
  15. #15 Kriminelle, 22.01.2022
    Kriminelle

    Kriminelle

    Dabei seit:
    16.05.2013
    Beiträge:
    3.707
    Zustimmungen:
    2.048
    Beruf:
    .
    Ort:
    Niedersachsen
    Also, ich bin nicht mehr dort! @K a t j a ist auch nicht mehr dort. Lass es mit dem orangenen, da wird zuviel gelöscht ;)
     
    hanghaus2000 und 11ant gefällt das.
  16. #16 Kriminelle, 22.01.2022
    Kriminelle

    Kriminelle

    Dabei seit:
    16.05.2013
    Beiträge:
    3.707
    Zustimmungen:
    2.048
    Beruf:
    .
    Ort:
    Niedersachsen
    Welche Küche meinst Du jetzt?
     
  17. #17 K a t j a, 22.01.2022
    K a t j a

    K a t j a

    Dabei seit:
    31.05.2019
    Beiträge:
    1.009
    Zustimmungen:
    582
    Ort:
    Leipziger Land
    Deine aus #11.:)
     
  18. 11ant

    11ant

    Dabei seit:
    28.02.2017
    Beiträge:
    2.486
    Zustimmungen:
    1.564
    Beruf:
    Bauherrenberater
    Ort:
    RLP Nord
    Benutzertitelzusatz:
    bringt Sie gut beraten ins Eigenheim
    Wenn mir einfällt, welches Projekt ich dunkel zu erinnern glaubte, kann ich es gerne verlinken - wenn es denn dabei etwas zu lernen gibt (was Dank des dortigen Mismanagements leider immer häufiger ausfällt).
     
  19. #19 Kriminelle, 22.01.2022
    Kriminelle

    Kriminelle

    Dabei seit:
    16.05.2013
    Beiträge:
    3.707
    Zustimmungen:
    2.048
    Beruf:
    .
    Ort:
    Niedersachsen
    Das ist dem geschuldet, weil dort eine Treppe geplant ist. Es muss ja der Anlieger nicht in den Allraum schauen.
    Aber solange sich der TE nicht darüber äußert, ob das für ihn in Frage kommt, wird daran nicht weiter gearbeitet ):not_w1: sozusagen Baustelle :e_smiley_brille02:
    Ich könnte mich dran erinnern, wenn es so wäre :)
     
  20. Alfii

    Alfii

    Dabei seit:
    21.01.2022
    Beiträge:
    5
    Zustimmungen:
    1
    Guten Abend zusammen,

    noch einmal vielen Dank an alle Beteiligten! Vor allem an Kriminelle für die ausführliche Antwort und die Skizzen.

    Um zu beschreiben warum die Wand nach Süden so geschlossen geplant ist, haben wir euch eine kleine Skizze gemacht (nur zur Veranschaulichung, nicht Maßstabsgetreu).

    upload_2022-1-22_20-40-2.png

    Es sind also nicht nur die Anlieger die uns relativ gut reinschauen könnten, sondern auch das Nachbarhaus und der Publikumsverkehr auf der Zufahrts- und Hauptstraße.

    Aber K a t j a und Kriminelle ihr habt Recht unter die Treppe im hinteren Teil gehört auf jeden Fall ein Fenster - vielleicht sogar bodentief. Auch das Fenster zwischen jetzigem Wohnbereich / evtl. Küche werden wir aufnehmen.

    Wir tun uns mit dem Versetzen der Küche immer noch schwer, da (a) die Wasserleitungen schwerer in diesen Teil des Hauses zu legen sind, (b) wir dachten von der höher gelegenen Küche hätte man eine gute Übersicht über den Wohn-/ Essbereich, (c) wir das Fenster über der Garage noch deutlich breiter (und vielleicht auch höher) machen könnten um mehr Licht in die Küche zu bekommen, (d) und wir annahmen, dass die Deckenhöhe von 3m in einer Küche eher nachteilshaft, in einem Wohnzimmer aber großzügig wirken würden, (e) es in unseren Köpfen komisch aussah in ein Wohnzimmer hoch zu schauen. Eure Meinungen zu diesen Punkten würden uns brennend interessieren. Wir werden all das aber in jedem Fall noch einmal mit unserem Architekten besprechen und ggfs. ein Update posten.

    Um noch weiter von eurem Wissen zu profitieren, noch eine ganz andere Frage: Glaubt ihr die Dachterrasse wird genutzt werden? Was kann man tun um die Wahrscheinlichkeit einer Nutzung zu erhöhen?

    Viele Grüße
     
Thema:

Grundriss Bewertung

Die Seite wird geladen...

Grundriss Bewertung - Ähnliche Themen

  1. Grundriss Bewertung Architektenhaus

    Grundriss Bewertung Architektenhaus: Hallo zusammen, wir wären über euren Input sehr dankbar. Was kann man verbessern? Was würdet ihr ändern? 1. Wir sind: Familie mit einem Kind...
  2. Grundriss Bewertung

    Grundriss Bewertung: Hallo zusammen, wir wollen demnächst ein Haus bauen. Die Vorgabe ist ein staffelgeschoss. Wir haben bereits ein Grundriss erstellt, habt ihr...
  3. EFH- Grundriss Bewertung und Fragen

    EFH- Grundriss Bewertung und Fragen: Hallo zusammen, anbei mein Entwurf für ein Einfamilienhaus mit der Bitte um offenes Feedback und gerne auch Anregungen Kurze Infos: Der...
  4. Bewertung Grundriss HRB - 3 Kinderzimmer

    Bewertung Grundriss HRB - 3 Kinderzimmer: Bitte einmal um ehrliches Feedback. Mich beschäftigt aktuell folgendes: Genügend Licht im Flur oben? Kein direktes Fenster vorhanden. Werden die...
  5. Grundriss Bewertung

    Grundriss Bewertung: Hallo zusammen, endlich stehen uns die überarbeiteten Entwürfe zur Verfügung. Keller und Ansichten werden nach Freigabe der vorliegenden Geschosse...