Grundriss ca. 10x8,7

Diskutiere Grundriss ca. 10x8,7 im Architektur Allgemein Forum im Bereich Architektur; Hallo, wir wollen ein klassisches Einfamilienhaus mit Satteldach bauen. Die Straße verläuft im Norden (oben). Auf der Ostseite soll direkt ein...

  1. st400

    st400

    Dabei seit:
    04.03.2017
    Beiträge:
    5
    Zustimmungen:
    1
    Beruf:
    Entwickler
    Ort:
    Sachsen
    Hallo,

    wir wollen ein klassisches Einfamilienhaus mit Satteldach bauen. Die Straße verläuft im Norden (oben).

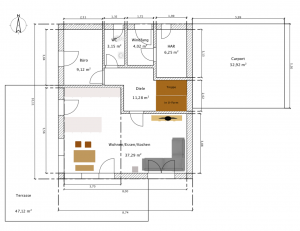
    Auf der Ostseite soll direkt ein Carport an das Haus anschließen. Die Terrasse soll eine West/Süd-Terrasse werden. Wichtig ist uns ein heller Koch/Essbereich, ein separater Windfang und ein kleineres Büro im EG. Der HAR ist leider etwas klein aber ich denke wir können damit leben (ähnliche Größe im Musterhaus besichtigt).

    EG:
    V1 EG mit Carport.png
    OG:
    V1 OG.png



    Unschlüssig sind wir noch mit der Aufteilung im Bad im OG. Was meint ihr?
     
    11ant gefällt das.
  2. st400

    st400

    Dabei seit:
    04.03.2017
    Beiträge:
    5
    Zustimmungen:
    1
    Beruf:
    Entwickler
    Ort:
    Sachsen
    Nord:
    Nord.png

    West-Süd:
    West1.png
     
  3. #3 jodler2014, 27.12.2018
    Zuletzt bearbeitet: 27.12.2018
    jodler2014

    jodler2014

    Dabei seit:
    20.12.2014
    Beiträge:
    3.907
    Zustimmungen:
    542
    Beruf:
    Angestellter
    Ort:
    RP
    Nicht schlecht !
    Vom Windfang fehlt die Tür zur Diele !
    Haus ohne Keller ?
    Küche / Essen / Wohn ist groß !
    Abstellraum im OG ,kein Abstellraum im EG ?
     
  4. #4 st400, 27.12.2018
    Zuletzt bearbeitet: 27.12.2018
    st400

    st400

    Dabei seit:
    04.03.2017
    Beiträge:
    5
    Zustimmungen:
    1
    Beruf:
    Entwickler
    Ort:
    Sachsen
    Freut uns, wenn es gefällt. Stimmt, die Tür habe ich glatt vergessen ...

    (Leider) kein Keller.
    Kleiner Abstellraum im EG evtl. unter der Treppe. Haben nur bedenken, das es dann zu beengt wirkt. Oder man könnte die Wand zwischen Treppe und HAR weglassen, so das dieser den Platz unter der Treppe nutzt (Treppe dann verkleiden). Aber viel zusätzlichen Platz bringt es sicher nicht.
     
  5. #5 jodler2014, 28.12.2018
    jodler2014

    jodler2014

    Dabei seit:
    20.12.2014
    Beiträge:
    3.907
    Zustimmungen:
    542
    Beruf:
    Angestellter
    Ort:
    RP
    Lageplan und Auszüge aus dem Bebauungsplan sollten schon reichen.
    Sachsen ist groß !
    Auch in Sachsen gibt es Gesetze .
    Ansicht Nord ist fürchterlich .
     
  6. #6 Kriminelle, 28.12.2018
    Zuletzt bearbeitet: 28.12.2018
    Kriminelle

    Kriminelle

    Dabei seit:
    16.05.2013
    Beiträge:
    3.707
    Zustimmungen:
    2.048
    Beruf:
    .
    Ort:
    Niedersachsen
    Während ich im Beitrag 1 noch gerätselt habe, wie hoch der klassische Kniestock sein mag, zeigst Du in #2 einen 2-Geschosser mit Flachdach.

    Und was darf es nun sein?

    Ansonsten: wo wäre die Garderobe für 4 Personen?
    Ihr nehmt die Chilllounge als Durchgangszimmer für alle Familienmitglieder.
    Die Treppe ist viel zu klein beim Rohbaumass 199 x 200.

    Hinweis: Windfang braucht man bei geschlossenen Fluren nicht. Der Kamin, der braucht mehr Abstand zum Sofa.
     
    driver55 und simon84 gefällt das.
  7. #7 driver55, 28.12.2018
    Zuletzt bearbeitet: 28.12.2018
    driver55

    driver55

    Dabei seit:
    22.02.2008
    Beiträge:
    6.872
    Zustimmungen:
    1.798
    Beruf:
    Dipl.-Ing.
    Ort:
    Pforzheim
    Das sind im EG zu viele Räume für diese Grundfläche.
    WIr haben einen sehr ähnlichen Grundriss und ähnliche Abmessungen (9,50 x 8,95), aber die 9 m²-Büro sind bei uns die Küche und der HAR das Büro.
    Die Türe zwischen Windfang und Diele benötigst du nicht. (wurde ja schon gesagt...)
    Wir haben die Treppe an der selben Stelle. Fertigmass 2,26 m.
    Keine Garderobe! Wo sollen die Schuhe, Klamotten etc. deponiert werden? Und wenn Besuch kommt?
    Der Grundriss funktioniert so nicht, nicht mal zu dritt oder auch nur zu zweit. Vor allem, weil Keller auch noch Fehlanzeige (nicht vorhanden) ist.

    Man sollte die ohnehin ungünstige Ecke (Küche) in der Diele der Diele (Garderobe) zuschlagen. Wohnen/Essen/Kochen werden dann zwar noch kleiner, aber das erwähnte ich oben bereits. Zu klein!

    Bad würde ich bis auf die Wanne anders gestalten.
    Dusche mit WC tauschen und die "L-Wand" als "T" ausbilden mit Doppelwaschtisch davor. An der Stelle des Waschtisches dann Badmöbel / Regal(e).
     
  8. 11ant

    11ant

    Dabei seit:
    28.02.2017
    Beiträge:
    2.486
    Zustimmungen:
    1.564
    Beruf:
    Bauherrenberater
    Ort:
    RLP Nord
    Benutzertitelzusatz:
    bringt Sie gut beraten ins Eigenheim
    Ich denke, wohl eher zwei geradwandige Vollgeschosse mit zeichnerisch nicht dargestelltem Geneigtdach.
     
  9. #9 Fabian Weber, 28.12.2018
    Fabian Weber

    Fabian Weber

    Dabei seit:
    03.04.2018
    Beiträge:
    16.306
    Zustimmungen:
    6.470
    Ich würde Küche und Sitzecke tauschen.

    Im Bad würde ich die Badewanne und Dusche an die rechte Wand (vielleicht sogar Eckwanne unten rechts) und Waschbecken und WC an die linke Wand (da wo jetzt die Bawa steht).
     
  10. st400

    st400

    Dabei seit:
    04.03.2017
    Beiträge:
    5
    Zustimmungen:
    1
    Beruf:
    Entwickler
    Ort:
    Sachsen
    Es gibt keinen B-Plan, es muss nach §34 gebaut werden. Die Nordansicht sieht mit Dach besser aus. Ich habe nur leider noch kein Satteldach mit Sweet home 3D hinbekommen:

    nord.png


    Es werden 2 Vollgeschosse mit Satteldach.
    Schuhe kommen in den Windfang, der Rest ggf. unter der Treppe.
    Wieso keinen Windfang?
     
  11. #11 Fabian Weber, 28.12.2018
    Fabian Weber

    Fabian Weber

    Dabei seit:
    03.04.2018
    Beiträge:
    16.306
    Zustimmungen:
    6.470
    Gehen die Fenster im OG nicht symmetrisch zur Hausmitte? Und spendier dem Büro mal noch ein Fenster zur Straße, ab besten genau unter dem Fenster im OG. Wirst staunen, wie einladend das Haus gleich wirkt.
     
  12. st400

    st400

    Dabei seit:
    04.03.2017
    Beiträge:
    5
    Zustimmungen:
    1
    Beruf:
    Entwickler
    Ort:
    Sachsen
    Die Idee hatte ich auch schon. So haben wir aber von der Küche den direkten Zugang auf die Westterrasse.
    Das WC muss leider wegen dem Abfluss im rechten Teil des Bades untergebracht werden (Abfluss würde sonst im Windfang herauskommen).
    Werden die Fenster in der Hausmitte angeordnet, ist im Bad das Fenster über der Wanne -> unpraktisch.
    Du meinst in etwa so? Wenn Fenster Gast und Büro übereinander sollen, wäre das der Mindestabstand, siehe Grundriss:

    Nord2.png Screenshot 2018-12-28 at 23.10.37.png
     
  13. #13 Kriminelle, 29.12.2018
    Kriminelle

    Kriminelle

    Dabei seit:
    16.05.2013
    Beiträge:
    3.707
    Zustimmungen:
    2.048
    Beruf:
    .
    Ort:
    Niedersachsen
    Ja, ganz klassisch :Brille

    Alle von vier Personen????? Die Kinder haben doch schon je drei bis 4 inkl Gummistiefel und Sportschuhen zeitgleich. Vom Mann und der Frau ganz zu schweigen. Die Können doch nicht alle vor der Tür gestapelt werden. Und was ist mit allen Jacken, Taschen etc?

    Warum einen Windfang? Spar Dir die Fläche für einen Garderobenschrank auf :28:
     
  14. #14 Fabian Weber, 29.12.2018
    Fabian Weber

    Fabian Weber

    Dabei seit:
    03.04.2018
    Beiträge:
    16.306
    Zustimmungen:
    6.470
    Schon besser... unpraktisch ist kein Argument, die Wanne hinten quer ist auch gut. Im Windfang die Decke 15cm abhängen und schon kann das Klorohr verzogen werden.

    Aber das wird noch mit der Kreativität:)

    Versuch mal noch die kleinen Fenster möglichst nah aber symmetrisch an die Haustür zu schieben.
     
    11ant gefällt das.
  15. #15 driver55, 29.12.2018
    driver55

    driver55

    Dabei seit:
    22.02.2008
    Beiträge:
    6.872
    Zustimmungen:
    1.798
    Beruf:
    Dipl.-Ing.
    Ort:
    Pforzheim
    Positioniert ihr mal schön die Wanne......gaaanz wichtig, für ein Haus, wo an der Haustüre das Schild steht "Besucher müssen leider draußen bleiben".:28:

    Nur, weil in DHH oder RH da auch meist kein Platz für Garderobe & Co. ist, muss das in einem neu geplanten EFH nicht auch der Fall sein.
    Auch sehe ich eher Wohn- und Essecke, als Wohnen und Essen. Wo sollen denn 6, 8 oder gar 10 Leute Platz finden?
    Möbel werden ja heutzutage auch überbewertet. Braucht man alles nicht mehr.

    Man, man, man, zeig die "Planung" mal einem Archi..., aber einem guten....
     
  16. #16 jodler2014, 29.12.2018
    Zuletzt bearbeitet: 29.12.2018
    jodler2014

    jodler2014

    Dabei seit:
    20.12.2014
    Beiträge:
    3.907
    Zustimmungen:
    542
    Beruf:
    Angestellter
    Ort:
    RP
    Der Archi würde dann zusätzlich ein Schild entwerfen ,mit der Aufschrift :
    " Beim Betreten des Hauses bitte den Kopf einziehen . Schwebende Lasten "
    Der Fabian Weber ist bestimmt Sani-Fachmann und Hobby -Trockenbauer.
    Das ist kein Problem sagt er zum Kunden .
    Das HT-Rohr kann man mit Gipskarton verkleiden..
     
  17. #17 Fabian Weber, 30.12.2018
    Fabian Weber

    Fabian Weber

    Dabei seit:
    03.04.2018
    Beiträge:
    16.306
    Zustimmungen:
    6.470
    Bei 3m Raumhöhe im Windfang auf 2,90m zu gehen, da stößt man sich ja richtig den Kopf.

    Herrje, wie kann man nur so kleinkariert an so eine Aufgabe gehen?
     
  18. #18 jodler2014, 30.12.2018
    jodler2014

    jodler2014

    Dabei seit:
    20.12.2014
    Beiträge:
    3.907
    Zustimmungen:
    542
    Beruf:
    Angestellter
    Ort:
    RP
    Dann bau Du mal schön einen Windfang mit 3m Deckenhöhe.
     
  19. #19 Fabian Weber, 30.12.2018
    Fabian Weber

    Fabian Weber

    Dabei seit:
    03.04.2018
    Beiträge:
    16.306
    Zustimmungen:
    6.470
    Ja das mach ich ja derzeit auch. Es sind 3,05m um genau zu sein. Das sind dann 13 Reihen Ziegel (25cm) abzüglich Bodenaufbau von 20cm im EG.

    Decke über EG wurde noch vor den Feiertagen fertig.

    Die Zeiten in denen Geschosse nur 2,50m hoch geplant wurden, sind zum Glück vorbei.

    Hab ja schon häufiger geschrieben, dass die Mehrkosten bei 2 Steinreihen wahrscheinlich unter 1000€ liegen.
     
    simon84 gefällt das.
  20. #20 driver55, 30.12.2018
    driver55

    driver55

    Dabei seit:
    22.02.2008
    Beiträge:
    6.872
    Zustimmungen:
    1.798
    Beruf:
    Dipl.-Ing.
    Ort:
    Pforzheim
    Es geht hier doch (noch garnicht) um die Wanne. Nicht wirklich. Ich wollte damit nur zum Ausdruck bringen, dass das ja bereits ein Detail ist, welches später noch angegangen werden kann. Es muss doch erst einmal das Gesamtkonstrukt passen. Und das tut's hier eben nicht. Beim anderen Dauerbrenner (StanSch) sind 40 m² schon sehr knapp für Wohnen/Essen/Kochen und hier soll bei 37 m² alles gut sein? Und eben ohne Garderobe. Und Möbel passen in die 37 m² auch so gut wie keine rein.
    Wird schon....irgendwie, irgendwo, irgendwann...:lock
     
    Fabian Weber gefällt das.
Thema:

Grundriss ca. 10x8,7

Die Seite wird geladen...

Grundriss ca. 10x8,7 - Ähnliche Themen

  1. Grundriss Bewertung Architektenhaus

    Grundriss Bewertung Architektenhaus: Hallo zusammen, wir wären über euren Input sehr dankbar. Was kann man verbessern? Was würdet ihr ändern? 1. Wir sind: Familie mit einem Kind...
  2. Hilfe Grundriss Untergeschoss

    Hilfe Grundriss Untergeschoss: Ich benötige etwas Hilfe beim Grundriss für das Untergeschoss. Ich würde gerne die Eingangstür nach Süden legen, da dort die Straße ist. Außerdem...
  3. Neubau – Grundriss, Firstrichtung und Vorgehen

    Neubau – Grundriss, Firstrichtung und Vorgehen: Hallo zusammen, wir sind noch ganz am Anfang unseres Bauprojekts: das Grundstück steht fest (muss noch geteilt und umgeschrieben werden,...
  4. Grundriss EFH 150m2 (Hang, Souterrain, ELW) – Feedback zu Effizienz & Raumaufteilung

    Grundriss EFH 150m2 (Hang, Souterrain, ELW) – Feedback zu Effizienz & Raumaufteilung: Hallo liebe Bauexperten, wir planen ein Eigenheim mit ELW in Hanglage und haben uns schon zahlreiche Gedanken gemacht. Ich möchte die Chancen, die...