Grundriss-Debatte / euer Feedback: EFH, 2geschossig, kein Keller

Diskutiere Grundriss-Debatte / euer Feedback: EFH, 2geschossig, kein Keller im Architektur Allgemein Forum im Bereich Architektur; Hallo zusammen, anbei unser aktueller Grundriss, mit dem wir schon sehr zufrieden sind. Bevor die Pläne nun zum Bauantrag und bald...

  1. reschu

    reschu

    Dabei seit:
    26.02.2017
    Beiträge:
    157
    Zustimmungen:
    57
    Beruf:
    IT
    Ort:
    Westerwald
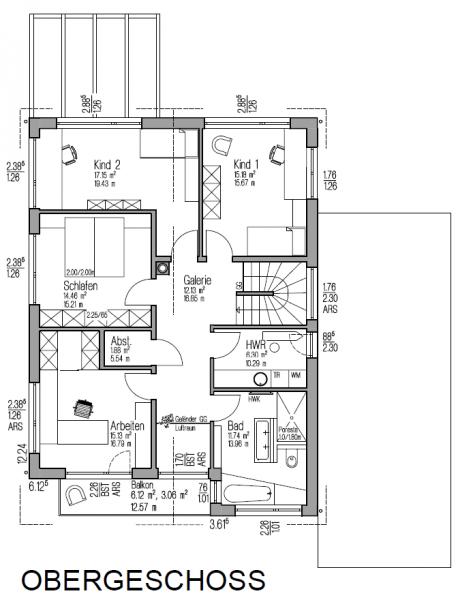
    Hallo zusammen,

    anbei unser aktueller Grundriss, mit dem wir schon sehr zufrieden sind.

    Bevor die Pläne nun zum Bauantrag und bald Wirklichkeit werden, würde ich mich über Euer Feedback freuen, ob Euch noch irgendetwas "Problematisches" oder Verbesserungswürdiges ins Auge springt.

    Viele Grüße
    reschu
     

    Anhänge:

    • OG.jpg
      OG.jpg
      Dateigröße:
      39,9 KB
      Aufrufe:
      691
    • EG.jpg
      EG.jpg
      Dateigröße:
      69,3 KB
      Aufrufe:
      764
  2. #2 Andybaut, 05.06.2017
    Andybaut

    Andybaut

    Dabei seit:
    02.04.2015
    Beiträge:
    5.127
    Zustimmungen:
    329
    Beruf:
    Architekt
    Ort:
    Baden-Württemberg
    Hallo,

    sauber und funktionell.
    Die Art der Vermaßung finde ich originell :-)

    Die Grenzgarage ist mit 11.99m genehmigungsfähig? Oder ist das keine Grenze?
     
  3. #3 vollmond, 05.06.2017
    vollmond

    vollmond

    Dabei seit:
    18.12.2012
    Beiträge:
    925
    Zustimmungen:
    134
    Beruf:
    PL
    Ort:
    Würzburg
    Der größte Raum im OG ist das Büro???? Kann man das nicht mit dem Gast zusammenlegen.
    Was ist der Sinn des Luftraums??? Schallbrücke, ventil für die Warmluft im EG um eine erwärmung des Flurs im EG unmöglich zu machen?..
    Was ist der Unterschied zwischen dem Abstellraum und dem HWR???
    Warum hat das Büro eine eigene Balkon???

    Die Couch vor dem Fenster scheint ein Standard zu sein um möglichst viel Wohnlichkeit rauszunehmen....
    Der ausblick vom Klo ist dafür phänomenal....... Besser als von der Couch aus. Die Leute af der Strasse werden sich freuen wenn du deine Astralkörper aus der Dusche schälst.....
    Auch hier ein Riesiges Zimmer für Gäste..... was sollen die da machwn? Wochenlang leben??
    Wir haben 12qm Büro und Gast. Da schlafen bis zu 4 Persone ohne probleme........

    Der Entwurf hat massig potential was schönes großzügiges zu bauen. So ist es eine massive Platzverschwendung in allen Ecken?
     
  4. vani

    vani

    Dabei seit:
    04.06.2008
    Beiträge:
    11
    Zustimmungen:
    0
    Beruf:
    Homeworker
    Ort:
    Franken
    Hallo...
    wenn ich schon zufällig hier lande, muss ich meinen Senf dazu abgeben:
    ich würde mir einen direkten Weg von Küche zur Terrasse wünschen, ohne Hindernislauf um Tisch und Stühle, dort geht es sowieso eng zu, (Tisch +120cm pro Seite?)
    weiter bräuchte ich keinen Tresen mit Sitzplatz, wenn 1m weiter der Esstisch steht
    im OG wäre mir viiiel zu wenig Schrank im Schlafzimmer, Abstellraum und HWR zusammen legen, mit Büroecke zusammen versuchen zu gunsten einer Ankleide bzw. begehbarem Schrank zu nutzen
    nix für Ungut...wie gesagt, "ich" würde!
     
  5. 11ant

    11ant

    Dabei seit:
    28.02.2017
    Beiträge:
    2.581
    Zustimmungen:
    1.624
    Beruf:
    Bauherrenberater
    Ort:
    RLP Nord
    Benutzertitelzusatz:
    bringt Sie gut beraten ins Eigenheim
    Abgesehen vom Eßtresen und daß man in der Badewanne ein Fenster im Nacken hat statt rauszuschauen (sowie: daß die Mülltonnen am Auto vorbei müssen !) gefällt mir der Entwurf sehr gut. Schön klar strukturiert.

    Allerdings ist mir eines ein wenig unheimlich daran: der Entwurf sieht (was ihn ja nicht schlecht macht) aus wie "(C) 1982".

    Was meint die Bauelemente-Höhenangabe "BST ARS" ?
     
  6. reschu

    reschu

    Dabei seit:
    26.02.2017
    Beiträge:
    157
    Zustimmungen:
    57
    Beruf:
    IT
    Ort:
    Westerwald
    Erstmal vielen Dank für Eure zahlreichen Anmerkungen und Denkanstöße. :)

    Ja, ist genehmigungsfähig.

    Ja, ich verbringe 2/3 meiner Arbeitswoche im Büro, und dementsprechend brauche ich Platz, und möchte mich wohlfühlen. Eine Kombinutzung kommt für mich nicht in Frage.

    Sinn: Helligkeit, Offenheit, Großzügigkeit.
    Mit den Kontrapunkten hast Du sicherlich Recht.

    Die Abstellräume oben und unten liegen exakt übereinander, und sind für einen späteren möglichen Ausbau mit Aufzug vorbereitet. Zunächst dienen sie aber als reine "Lagerräume". Der HWR ist nur für WaMa + Trockner gedacht.

    Siehe vorherige Frage zum Büro. Außerdem ist der Balkon anders als die Terrasse ausgerichtet, so dass hier eine andere Nutzungsmöglichkeit (Verschattung Nachmittags) ergibt. Weiterhin hat der Balkon (nur dort) eine gescheite Aussicht.

    Ist ja nur ein Symbol.

    Egal wo das Bad liegt, könnten die ringsums anliegenden Nachbarn durch das Fenster Einblick erhalten. Sichtschutz brauche ich also so oder so.

    Das Gästezimmer wird auch für das Hobby meiner Frau genutzt. Die Größe ist von uns so gewollt.

    Den direkten Weg gibt es. Bei der Küche ist ein Weg nach draußen.

    ARS = Außenraffstore.
    BST weiß ich gerade nicht auswendig.
     
  7. #7 rastablondi, 06.06.2017
    rastablondi

    rastablondi

    Dabei seit:
    06.06.2017
    Beiträge:
    2
    Zustimmungen:
    0
    Beruf:
    Sonstiges
    Ort:
    Bayern
    Hallo,

    unser EFH (Bj.2015) haben wir sehr ähnlich geplant: 2 Etagen, ohne Keller
    Unsere Raumaufteilung entspricht nahezu 100% der euren.
    Unsere Pläne findet ihr hier.
    (sind nicht die finalen, da u.a. der Technikraum größer wurde...)

    Nun zu unserem Tipp für euch:

    "Barrierefreiheit"

    In Anlehnung an die DIN18040-2 "Barrierefreies Bauen - Planungsgrundlagen - Wohnungen" haben wir uns für die folgenden Mindest-Maßnahmen entschieden:

    - Das EG sollte von einer Person im Rollstuhl bewohnbar sein
    - Die Türen der folgenden Bereiche im EG haben eine Durchfahrts-Breite von min. 100cm:
    Eingangstür, Eingangsbereich, Flur, Bad, Mehrzweckraum (bei euch "Gast")
    - Das Bad im EG soll für Rollstuhlfahrer benutzbar sein
    (in unserem Fall haben wir eine Glasplatte als Duschabtrennng und ein Urinal montiert, welche bei Bedarf demontiert werden können, wenn tatsächlich ein Rollstuhlfahrer diesen Bereich bewohnt)
    - Ebenerdige Dusche mit Rinne, keine Wanne
    - Niedrige Türschwelle bei der Eingangstür
    - Niedrige Türschwellen bei den Terassentüren
    - Keine Türschwellen zwischen den Zimmern (gilt für EG und OG)
    - keine höher- oder tiefergelegten Bereiche innerhalb einer Etage (gilt für EG und OG)

    Diese Maßnahmen kosten wirklich nicht viel Geld - wenn man sie von Anfang an durchführt.
    Im Nachhinein werden solche Änderungen jedoch sehr aufwändig und teuer.

    Wir haben diese Maßnahmen umgesetzt, obwohl bisher niemand in unserer Familie hilfebdürftig ist.
    Aber wir werden alle nicht jünger und man weiß ja nie, wann jemand (Eltern, Großeltern, ?) einen barrierefreien Wohnbereich benötigt.

    Viel Spaß beim Bauen!

    Andi
     
  8. 11ant

    11ant

    Dabei seit:
    28.02.2017
    Beiträge:
    2.581
    Zustimmungen:
    1.624
    Beruf:
    Bauherrenberater
    Ort:
    RLP Nord
    Benutzertitelzusatz:
    bringt Sie gut beraten ins Eigenheim
    "ARS = Außenraffstore.
    BST weiß ich gerade nicht auswendig."

    Ich auch nicht. HSE soll wohl HebeSchiebeElement bedeuten - mich irritiert allerdings, daß das "anstelle" einer Höhenangabe da steht.
     
  9. #9 Andybaut, 06.06.2017
    Andybaut

    Andybaut

    Dabei seit:
    02.04.2015
    Beiträge:
    5.127
    Zustimmungen:
    329
    Beruf:
    Architekt
    Ort:
    Baden-Württemberg
    Hallo rastablondi,

    eine wirkliche Barrierefreiheit kostet leider schon ordentlich Geld.
    Bloss breite Türen sind da das wenigste.
    Für den Rollstuhl benötigt man "überall" einen Wendekreis von d=150cm.
    Die Toiletten müssten vom Rollstuhl beidseitig 90cm Anfahrfreiheit haben.

    Habe gerade so ein Projekt. Ich find´s insofern lustig, als viele der Meinung sind, dass sie im Alter im Rollstuhl sitzen
    aber sonst noch fit sind. Die Realität sind aber leider gebrechliche Leute die dement sind und nicht im Rollstuhl sitzen,
    aber dennoch nicht mehr klar kommen.

    Ich find´s gut sich da viele Gedanken zu machen, aber was später mal ist, das kann man vorher leider nicht wissen.
     
  10. #10 rastablondi, 07.06.2017
    rastablondi

    rastablondi

    Dabei seit:
    06.06.2017
    Beiträge:
    2
    Zustimmungen:
    0
    Beruf:
    Sonstiges
    Ort:
    Bayern
    Eine 'wirkliche' Barrierefreiheit ist in der DIN18040-2 beschrieben.
    Eine 100%ige Umsetzung nach dieser Norm war für unser privates Eigenheim nicht das Ziel.
    Aber ein Erdgeschoss ohne Stufe an der Eingangstür und breitere Türen im EG nebst Rinne für die Dusche bedeutet Mehrkosten unter 1000EUR.

    Schonmal nachgesehen was ein Treppenlift kostet?
    Oder die nachträgliche Türverbreiterung einer Haustür?

    Und am Rande:
    Ich kenne im Familien- und Bekanntenkreis kein einziges Haus und keine einzige Wohnung die nur im Ansatz barrierefrei gestaltet wurde.

    Ich bin 40 Jahre alt und möchte in dem Gebäude alt werden.
    Wenn ich das Haus mit 25 Jahren gebaut hätte wäre dieser Ansatz vermutlich auch nicht berücksichtigt worden.

    Gesendet von meinem SM-A520F mit Tapatalk
     
Thema:

Grundriss-Debatte / euer Feedback: EFH, 2geschossig, kein Keller

Die Seite wird geladen...

Grundriss-Debatte / euer Feedback: EFH, 2geschossig, kein Keller - Ähnliche Themen

  1. Grundriss drei optionen Sanierug altbau.

    Grundriss drei optionen Sanierug altbau.: Liebe Bau- und Renovierungsfreunde, ich habe mich hier angemeldet und möchte gerne eure Meinungen zu den verschiedenen Grundriss-Optionen im...
  2. Feedback zu Grundriss EFH Nordhang

    Feedback zu Grundriss EFH Nordhang: Hallo zusammen, nachdem unser erster Planungsanlauf mit einem Architekten im letzten Jahr leider komplett gescheitert ist, haben wir nun einen...
  3. Grundriss Bewertung Architektenhaus

    Grundriss Bewertung Architektenhaus: Hallo zusammen, wir wären über euren Input sehr dankbar. Was kann man verbessern? Was würdet ihr ändern? 1. Wir sind: Familie mit einem Kind...
  4. Grundriss-Debatte: Vergleich zweier Alternativen

    Grundriss-Debatte: Vergleich zweier Alternativen: Hallo zusammen, nach den vielen hitzigen Debatten zu Grundrissen möchte ich trotzdem zwei Grundrissentwürfe vorstellen. Ich bin mir nicht...
  5. Grundriss Bungalow zur Debatte

    Grundriss Bungalow zur Debatte: Hallo Zusammen, auch wir stehen kurz davor zu bauen. Deswegen bin ich jetzt auch "neu" hier angemeldet. Wir haben einen Grundriss erstellt...