Grundriss DHH, 2,5 Geschosse + Nutzkeller
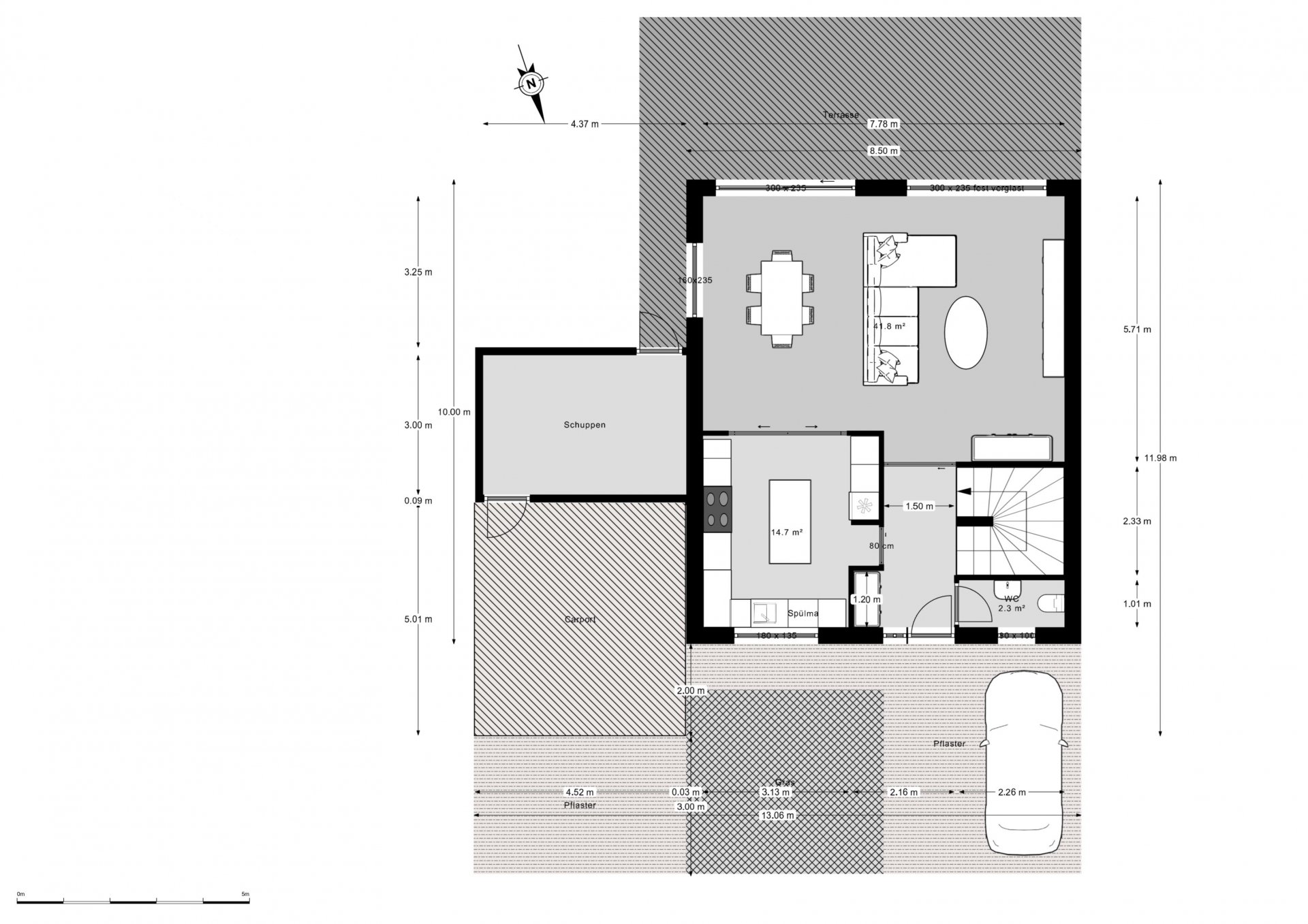
Diskutiere Grundriss DHH, 2,5 Geschosse + Nutzkeller im Architektur Allgemein Forum im Bereich Architektur; Hallo zusammen, wir planen eine DHH mit 2,5 Geschossen + Keller zu bauen. Ich möchte mich gerne über meinen Grundriss austauschen. Die Geschosse...
Thema:
Grundriss DHH, 2,5 Geschosse + Nutzkeller
Die Seite wird geladen...
-
Grundriss DHH, 2,5 Geschosse + Nutzkeller - Ähnliche Themen
-
Grundriss Bewertung Architektenhaus
Grundriss Bewertung Architektenhaus: Hallo zusammen, wir wären über euren Input sehr dankbar. Was kann man verbessern? Was würdet ihr ändern? 1. Wir sind: Familie mit einem Kind... -
Hilfe Grundriss Untergeschoss
Hilfe Grundriss Untergeschoss: Ich benötige etwas Hilfe beim Grundriss für das Untergeschoss. Ich würde gerne die Eingangstür nach Süden legen, da dort die Straße ist. Außerdem... -
Grundriss 2-Geschosser mit Satteldach
Grundriss 2-Geschosser mit Satteldach: Wir haben mittlerweile ein Grundstück gekauft und haben jetzt beim Architekten den ersten Kaffee zusammen getrunken. Die Chemie stimmt soweit. Von... -
Grundriss EFH 1,5 Geschoss
Grundriss EFH 1,5 Geschoss: Hallo an die Gemeinde, kurze Vorstellung zu meiner Person da ich auch Neu hier bin. Ich bin Andy. Komme aus Stralsund und habe mir gerade...