Grundriss Diskussion

Diskutiere Grundriss Diskussion im Architektur Allgemein Forum im Bereich Architektur; Hallo, Ich hänge mal meinen Grundriss an und würde mich über Meinungen freuen. D "Kaminecke" war unser Wunsch. Wir haben die maximale Breite vom...

  1. #1 JohnBirlo, 16.08.2020
    JohnBirlo

    JohnBirlo

    Dabei seit:
    28.05.2020
    Beiträge:
    1.232
    Zustimmungen:
    461
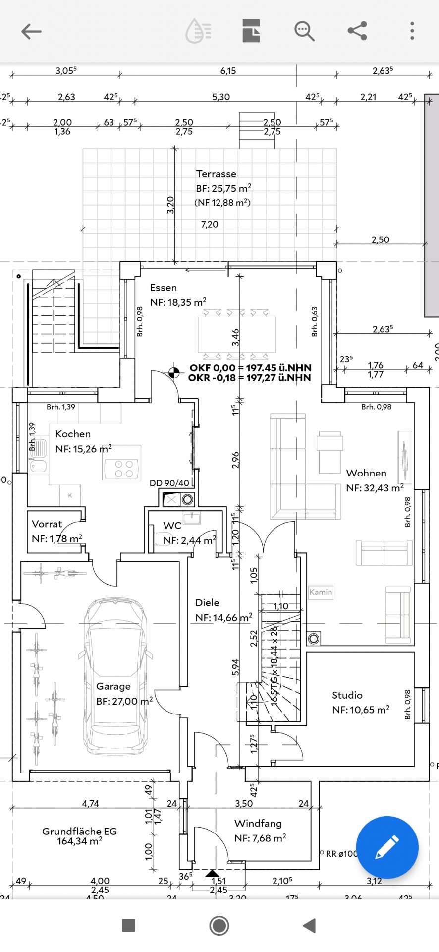
    Hallo,
    Ich hänge mal meinen Grundriss an und würde mich über Meinungen freuen. D

    "Kaminecke" war unser Wunsch.

    Wir haben die maximale Breite vom Grundstück ausgereizt. Wir können auch weder links noch rechts vom Haus eine Garage ans Haus anbauen.
     

    Anhänge:

  2. #2 Jo Bauherr, 16.08.2020
    Jo Bauherr

    Jo Bauherr

    Dabei seit:
    19.06.2018
    Beiträge:
    1.046
    Zustimmungen:
    511
    Beruf:
    (Ex)-Vermieter
    Ort:
    Randberlin
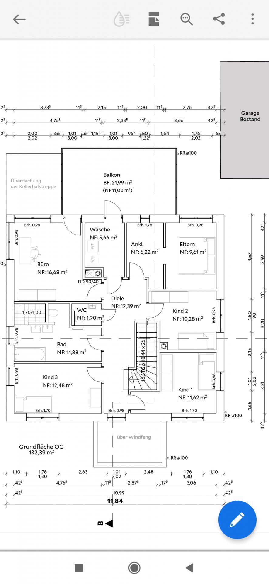
    Im OG fehlt eine Dusche für die Kinder (die werden größer und brauchen länger im Bad ...). Ansonsten finde ich das schon sehr gut gelöst.


    .
     
  3. #3 Kriminelle, 18.08.2020
    Kriminelle

    Kriminelle

    Dabei seit:
    16.05.2013
    Beiträge:
    3.747
    Zustimmungen:
    2.075
    Beruf:
    .
    Ort:
    Niedersachsen
    Ich finde ihn nicht zeitgemäß!
    Auf Windfang kann heutzutage verzichtet werden, ein direkter Zugang von Garage zur Küche verspricht Dieselgeruch statt leckerem Essensgerüchen. Eine Küche sollte mM nach einen direkten Zugang zum Garten bzw Terrasse bekommen. Im Sommer erweitert sich der Wohnbereich auf die Terrasse und da ist der Gang zwischen Grill und Küche oder auch zw Kaffeetafel und Kühlschrank kurz zu halten.
    Schlechter Küchenschnitt: grosser Raum, wenig Küche. Die eingezeichnete Insel ist zu klein und eine größere hat keinen Platz, weil der das Gast-WC eingefügt wurde.
    Weiterhin ist es im EG nicht nötig, das Gäste-WC ohne Fenster zu planen. Wurde das beim planen vergessen und einfach irgendwo eingeschoben?
    Die Sichtachse des Eintritts ins Haus, also Flur blickt nicht ins attraktive Licht/Doppeltür WZ, sondern zum dunklen Ende, der Klotür.

    Wo ist denn Süden? Die KiZis im OG sind auf drei Ecken verteilt. Mind. Eins wird keine Sonne im Zimmer haben. Ich finde da gerechte Aufteilung besser. Der Grössenkontrast WZ zu Kizis ist zu heftig. Ab 8 wollen sie nicht mehr im WZ spielen und haben dann noch mind. 10 Jahre im u12qm Zimmer, während die Eltern im Saal vorm Kamin sitzen.
    Und dann möblier mal die Ankleide. Das geht nicht. Bzw geht’s, aber nicht effektiv und genügend Schränke.
    Wäscheraum bekommt die Gartenseite... Kinder die Straße?
    Im Bad wäre Toi zum Tageslicht und Dusche vom Fenster weg zu favorisieren.
    Die ELW ist etwas zu klein, nicht wahr? Hätte vielleicht auch einen Platz für einen Tisch und Sofa verdient, oder?
    Das nächste Mal: Ausrichtung und Grundstück ist für ein Hausentwurf recht wichtig, also mit einstellen.
     
    11ant gefällt das.
Thema:

Grundriss Diskussion

Die Seite wird geladen...

Grundriss Diskussion - Ähnliche Themen

  1. Neubau - Grundriss Diskussion

    Neubau - Grundriss Diskussion: Hallo zusammen, wir hatten die ersten Gespräche mit unserem Architekten und ich wollte mal eure Meinungen zum Grundstück und zur Bebauung des...
  2. Grundriss - Bitte um Diskussion

    Grundriss - Bitte um Diskussion: Hallo liebe Forumsmitglieder, ich würde mich über jede Kritik und Anregung zu unseren ersten Vorplanungen freuen! Es soll ein EFH für 5 Personen...
  3. Mein Grundriss - Diskussion erwünscht

    Mein Grundriss - Diskussion erwünscht: gelöscht
  4. Stadtvilla m. DG & Keller | Grundriss-Diskussion

    Stadtvilla m. DG & Keller | Grundriss-Diskussion: Hallo Zusammen, ich bin derzeit fleißig am Grundriss planen / zeichnen und möchte euch diese mal hier zu Diskussion freigeben ;-). Was haben...
  5. Unser Grundriss EFH zur Diskussion

    Unser Grundriss EFH zur Diskussion: Hallo zusammen, da wir uns jetzt auch mit dem Thema Hausbau beschäftigen dürfen bin ich vor ein paar Monaten auf dieses Forum gestoßen. Ich denke...