Grundriss Doppelhaus auf kleinem Grundstück

Diskutiere Grundriss Doppelhaus auf kleinem Grundstück im Architektur Allgemein Forum im Bereich Architektur; Aber der TE könnte auch eine ETW für sagen wir 5000€/qm = 300k kaufen, da bekommt er in der Gegend sicherlich auch Neubau. Du meinst, zwei Zimmer,...

  1. #41 Kriminelle, 14.06.2024
    Kriminelle

    Kriminelle

    Dabei seit:
    16.05.2013
    Beiträge:
    3.539
    Zustimmungen:
    1.926
    Beruf:
    .
    Ort:
    Niedersachsen
    Du meinst, zwei Zimmer, Küche, Bad und im Keller einen 6qm-Käfig, wo der Froster und das Rennrad steht?
    So etwas würde ich nicht kaufen, so etwas miete ich, weil ich dort nicht alt werden will. Und nicht jeder ist heiß darauf, sich dann später einen Mieter zu suchen und zu pflegen, während man eigentlich mehr mit sich zu tun hat.
    Wozu ist ein eigenes Haus noch gut? Um die Lebensqualität zu genießen und den Alltag in seinen eigenen 4 Wänden leben zu können.
    Ein Wohnzimmer/Allraum in griffiger Größe bei einem Haus von ca. 120-130qm lässt sich auch als Single gut füllen und genießen. Und im OG neben einem SZ für sich noch ein Hobbyraum sowie eine Ankleide zu genießen, wird dann mangels Büro schon fast wieder knapp :D
    Und putzen geht auch besser, wenn man keine Möbel rücken muss.
     
  2. #42 Christoph628, 12.11.2024
    Christoph628

    Christoph628

    Dabei seit:
    06.06.2024
    Beiträge:
    37
    Zustimmungen:
    1
    Beruf:
    Messtechniker Maschinenbau
    Ort:
    Bayern
    Soo, es geht weiter...
    Nachdem mir die Baufirma als Interessent für die zweite Grundstückshälfte abgesagt hat, habe ich über Kleinanzeigen einen neuen Interessenten gefunden: Familie mit 2 Kindern (3 und 10 Jahre alt), die für Eigenbedarf bauen möchte.
    Über Grundlegendes sind wir uns einig:
    - kein Keller
    - Massivbau
    - Satteldach
    - 2,5 Geschosse
    - das Doppelhaus soll gemeinsam geplant und ab nächstem Jahr gebaut werden.

    Bevor ich einen Architekten (über Empfehlungen wäre ich auch sehr dankbar) für den Grundrissentwurf beauftrage, habe ich mal selber ein wenig gezeichnet und würde mich jetzt sehr über eure Meinung zu meinem Grundrissentwurf freuen:

    Luftbild(Straße unten liegt im Süden)
    Grundstück_Luftbild.jpg

    BayernAtlas:
    BayernAtlas.jpg
    Geplante Bebauung:
    Grundstück_Bebauung.jpg

    mein Grundrissentwurf:
    Variante1.jpg

    Die Idee vom separatem Wohnzimmer/Fernsehzimmer und Küche/Esszimmer an den Garten/Terrasse von @kbt09 aus dem Goalkeeper-REH-Thread (oranges Forum) finde ich ziemlich gut, nur die Abtrennung der beiden Räume durch den Flur gefällt mir nicht.
     
  3. #43 rigorosi, 12.11.2024
    rigorosi

    rigorosi

    Dabei seit:
    04.11.2021
    Beiträge:
    32
    Zustimmungen:
    5
    Im Erdgeschoss fehlt noch ein Abstellraum, eine Speisekammer sowie eine Waschküche mit Wäscheabwurf. Ein Büroraum sollte auch noch rein, damit es großzügig wirkt. Im OG würde ich das Bad noch etwas mondäner machen, YOLO
     
  4. #44 Jo Bauherr, 13.11.2024
    Jo Bauherr

    Jo Bauherr

    Dabei seit:
    19.06.2018
    Beiträge:
    1.000
    Zustimmungen:
    488
    Beruf:
    Vermieter
    Ort:
    Randberlin
    Wo findet denn die ganze Hauswirtschaft statt? Waschen, Trocknen, Bügeln, Verstauen, Lagern? ...
    Und zumindest im OG fehlt Kleiderschrankraum ohne Ende ...
     
  5. 11ant

    11ant

    Dabei seit:
    28.02.2017
    Beiträge:
    2.384
    Zustimmungen:
    1.451
    Beruf:
    Bauherrenberater
    Ort:
    RLP Nord
    Benutzertitelzusatz:
    bringt Sie gut beraten ins Eigenheim
    Weshalb der lange Weg der Technik zur straßenabgewandten Seite ?
    Ggf. macht man unten nur die Hauseinführungen und stellt "Kessel" und Gedärm ins Dach ?
     
    Tilfred gefällt das.
  6. #46 Kriminelle, 13.11.2024
    Kriminelle

    Kriminelle

    Dabei seit:
    16.05.2013
    Beiträge:
    3.539
    Zustimmungen:
    1.926
    Beruf:
    .
    Ort:
    Niedersachsen
    Bei manchen Antworten fragt man sich, ob die ernst gemeint sind und warum eigentlich geantwortet wird.
    Nochmal: Es ist schon Dein Grundstück? Hast Du mit der Familie schon einen Vertrag gemacht? Wie sieht der aus bzw was ist darin geregelt? Werden sie Dir das Grundstück abkaufen?

    Bedenke, dass das ERH von Goalkeeper eine andere Grundflächenform hat.
    Die Firstrichtung ist frei?
    Setze am besten die Treppe an den Eingang - die kleine Grundfläche dankt es Dir.
    Ein getrenntes Wohnzimmer sollte man sich überlegen. Meist hat man plötzlich zu viele Wände, zu kleine Räume, die zb bei dir überhaupt nicht notwendig sind, da Du eine Einzelperson bist und kein 4-Personen-Haushalt.
    Als Grundriss würde ich einen gängigen und funktionellen nehmen, den jeder für sich etwas persönlich gestalten kann.
     
    Tilfred gefällt das.
  7. 11ant

    11ant

    Dabei seit:
    28.02.2017
    Beiträge:
    2.384
    Zustimmungen:
    1.451
    Beruf:
    Bauherrenberater
    Ort:
    RLP Nord
    Benutzertitelzusatz:
    bringt Sie gut beraten ins Eigenheim
    Genau, wie ich immer sage: identisches Hausprofil an der "Klebekante", gemeinsamen Planer und Rohbauer verabreden, Grundrißaufteilung und Vergabe der Ausbaugewerke dem Mitbauer freigeben. Damit sind die dicksten Knackpunkte ausgeräumt. Daß am Grundriß des Einen auch der Andere genesen müßte, ist nicht erforderlich und wird auch gerne gemieden (daß der Spiegelklon nicht passen würde, ist der Hemmschuh Nr.1 für solche "Nachbar-Ehen").
     
    Christoph628 gefällt das.
  8. #48 Christoph628, 13.11.2024
    Christoph628

    Christoph628

    Dabei seit:
    06.06.2024
    Beiträge:
    37
    Zustimmungen:
    1
    Beruf:
    Messtechniker Maschinenbau
    Ort:
    Bayern
    Dafür hätte ich das Badezimmer vorgesehen (Waschmaschine und Trockner in einen schicken Schrank), deswegen ist dieses auch so groß geplant

    Da eine LWWP geplant ist, wären die Leitungen zu dieser (Außengerät auf der Nordseite) kürzer. Habe jetzt keine großen Nachteil daran gesehen, die Strom/Wasser/Internet-Leitungen ca. 15m über mein Grundstück legen zu müssen, abgesehen von geringfügig höheren Kosten.
    Falls der Platz im EG nicht reicht, besteht ja noch die Möglichkeit, wie du schon schreibst, einen Teil der Technik (z.B. Elektrik) ins DG zu packen.
    Was spricht sonst dagegen, die Technik an meiner geplanten Stelle zu platzieren?
     
  9. #49 Christoph628, 13.11.2024
    Christoph628

    Christoph628

    Dabei seit:
    06.06.2024
    Beiträge:
    37
    Zustimmungen:
    1
    Beruf:
    Messtechniker Maschinenbau
    Ort:
    Bayern
    Wir kaufen das eine Grundstück gerade gemeinsam und Teilen es beim Kaufprozess (oder wie auch immer man das richtig nennen mag..), Notartermin ist der nächste Schritt.
    Einen Vertrag zwischen uns sehe ich da als nicht notwendig an?

    Gibt laut Bebauungsplan keine Einschränkungen diesbezüglich. Von den Abstandsflächen her würde es aber mehr Sinn machen, den First parallel zur Straße zu orientieren:
    Dachvarianten.jpg
     
  10. #50 Christoph628, 13.11.2024
    Christoph628

    Christoph628

    Dabei seit:
    06.06.2024
    Beiträge:
    37
    Zustimmungen:
    1
    Beruf:
    Messtechniker Maschinenbau
    Ort:
    Bayern
    Gängige Grundrisse bei Doppelhäusern sind eher länglich und schmal und haben den Zugang an der schmalen Seite. Favorisieren würden wir aber die Erschließung des Hauses über die lange Seite.
    Außerdem haben gängige Grundrisse die Küche meist "hinten" oder in der Mitte und nicht wie gewünscht an der Terrasse.
    Das mir auch gefallende "Doppelhaus 25-129 von Ha..e Haus" weicht davon ab.

    Bei kleinen Grundrissen ist die Treppe doch meist zentral im Wohnbereich?

    -> genau so haben wir das auch vor

    Ihr (@Kriminelle; @11ant; ) findet meine Planung für eine vierköpfige Familie also eher ungeeignet?
     
  11. #51 Kriminelle, 13.11.2024
    Kriminelle

    Kriminelle

    Dabei seit:
    16.05.2013
    Beiträge:
    3.539
    Zustimmungen:
    1.926
    Beruf:
    .
    Ort:
    Niedersachsen
    Lange Seite kann man hier nicht sagen. Ihr möchtet je einen Zugang seitlich des Doppelhauses. Das passt auch hier auf den ersten Blick ganz gut..
    Lageplan mit Baufenster wurde aber noch nicht gepostet, oder? Wie sind denn die Grenzabstände? Warum sind planoben, also im Norden, 330cm geplant?

    Nein, Du meinst schlanke Grundrisse, also lang und breit. Das gibt hier ja das Baufenster gar nicht vor.
    Ich würde aber pauschal gar nichts ausschließen. Man setzt die Treppe dort hin, wo sie am wenigsten stört bzw. genug Fenster für Aufenthaltsräume abfallen.

    Zum Glück gibt es bei Hausplanungen kein „hinten“. Ich würde dahingehend aber sagen, dass Küchen „vorn“ geplant werden. Kurze Wege, Terrasse und Wohnbereich in der Privatsphäre, das gibt es ja hier so nicht.
    „Gängige“ bzw. klassische Grundrisse könnte man zum Bespiel auch gespiegelt betrachten. Aber ich meine mein „gängig“ nicht auf jegliche Raumausrichtung, (ein Haus sollte immer auf Grundstück geplant werden und nicht rausgeklaut und raufgesetzt werden), sondern halt ohne Firlefanz oder kreative Spirenzien mit der Treppe. Geh mit dem, was sich hier ergibt statt auf eine Idee von Kerstin, die sich speziell auf ganz andere Maße bezieht und letztendlich auch nicht gebaut wurde. Wenn sich dann noch eine Abtrennung ergibt, kann man das machen.
    Ich denke aber, dass Du den 70qm zu viel zumutest. Ein extra-Zimmer, eine Kücheninsel mit Sitzbereich..

    Ich vertrete oft andere Meinungen als 11ant. Ich sehe hier bei diesen Grundstücks-Maßen zb kein Problem mit einem hinterliegenden Technikraum.
    Ob ich den Entwurf jetzt geeignet finde, kann man so nicht sagen: mir kommen Zweifel an den Treppen-Maßen und dem Rest. Ich sehe zb die Größe des Bades als unverhältnismäßig groß (viel zu groß) an, in dem es größer als ein Kizi ist. Das tut überhaupt nicht not.
    Außerdem viel zu viele grobe Schnitzer:
    IMG_1343.jpeg

    Flur zu unruhig, Türen nicht durchdacht. Merkwürdige Nischen im HWR, Abstellraum unter der Treppe in schlechter Position.
    WZ sehr kurz, Küche lässt sich schwer begehen, zu viele Schränke. WC in dieser Form nicht nutzbar, Allraum hat eine präsente Wand ohne Fenster bzw. natürlicher Belichtung.
    Im OG scheinen die Türen sehr schmal gehalten, man läuft in jedem Raum gegen den Schrankorpus. Bad ist willkürlich möbliert.
     
    Tilfred und 11ant gefällt das.
  12. 11ant

    11ant

    Dabei seit:
    28.02.2017
    Beiträge:
    2.384
    Zustimmungen:
    1.451
    Beruf:
    Bauherrenberater
    Ort:
    RLP Nord
    Benutzertitelzusatz:
    bringt Sie gut beraten ins Eigenheim
    Ja, also dann doch ganz klar mit Vertrag zwischen Euch. Auf die tönernen Füße von Goodwill würde ich das nicht stellen, die Profilgleiche und die Koordination des Planens und Rohbauens zu gewährleisten. Das sollte einem aufmerksamen Leser des Goalkeeperthreads aber eigentlich "eingebrannt" klar sein ;-)
    [ach ist das schön, daß es hier keinen Smiley-Schießbefehl gibt]
     
  13. #53 Christoph628, 13.11.2024
    Christoph628

    Christoph628

    Dabei seit:
    06.06.2024
    Beiträge:
    37
    Zustimmungen:
    1
    Beruf:
    Messtechniker Maschinenbau
    Ort:
    Bayern
    Grenzabstände betragen 3m:
    Bei 7,5m Wandhöhe und Satteldach mit 30° ergibt sich aber dann traufseitig
    ein notwendiger Grenzabstand von: 0,4x(7,5+1/3 x 2,887) = 3,38m
    B-Plan.jpg

    Ist das Bad auch dann noch zu groß, wenn der HWR darin integriert ist?

    Habe mal ein paar Maße und Anmerkungen zu deinen Anmerkungen eingetragen:
    Grundriss_.jpg
    Treppe hat die Maße 3,50m auf 1,25m
    Die Türen haben alle 80cm (außer die beiden 90er Schiebetüren)
     
  14. #54 Christoph628, 13.11.2024
    Christoph628

    Christoph628

    Dabei seit:
    06.06.2024
    Beiträge:
    37
    Zustimmungen:
    1
    Beruf:
    Messtechniker Maschinenbau
    Ort:
    Bayern
    Meine Situation ist nicht ganz mit Goalkeepers vergleichbar:
    - Wir kennen uns bereits vor der Planung und besprechen diese gemeinsam
    - Keller spielt für uns beide keine Rolle (weil auf diesem Grundstück zu teuer)
    - auf Massivbauweise hat er sich bereits festgelegt
    - Satteldach (wegen mehr Platz unterm Dach + günstiger Preis + Abstandsflächen) ist eigentlich fix
    - Aufgrund des begrenzten Platzangebots besteht auch nicht wirklich viel Spielraum, was die Position des Gebäudes auf dem Grundstück angeht...
    - Er ist ein netter Mensch :)
     
  15. #55 Kriminelle, 14.11.2024
    Kriminelle

    Kriminelle

    Dabei seit:
    16.05.2013
    Beiträge:
    3.539
    Zustimmungen:
    1.926
    Beruf:
    .
    Ort:
    Niedersachsen
    Aber sicher. Es gibt Reihenhäuser, die kommen sehr gut mit 8qm Familienbad aus. Eine WM passt als Turm auf 0,60 x 0,60..
    Ich persönlich sehe aber auch das Problem, dass man verständlicherweise innerhalb einer Familie ggf auch mal allein im Bad sein möchte. Dann ist das Wäschewaschen so quasi tabu.

    Hier mal ein Beispiel mit Deinen Maßen, wo es nicht mit den Türen und Schränken zwickt.
    IMG_1344.jpeg
    Das gilt im übrigen auch für die Treppe, die ja einen sehr großen Teil von Stehfläche im Dachgeschoss wegnimmt,

    Durchgänge mit 70cm sind zu schmal, 80cm breite Türen für Zutritte in Aufenthaltsräumen halte ich für vermeidbar. Das kann man bei Ausnahmen tolerieren oder bei Sanierung im Bestand, bei Neubau kann man die Toi, den AB mit schmaleren Türen planen. Alles andere ist einfach nur für Junggebliebene mit Ikea-Möbelbausätzen und sollte nur für Notfallplanungen sein, nicht aber im Standard. Auch die Technik braucht einen breiteren Zugang. Durch Türen sollten Möbel passen und Erwachsene, die Kinder tragen. Oder man trägt eine Leiter, Tablet oder was auch immer. Es stehen nur so und so viel qm zur Verfügung und da muss man mit wirtschaften und nicht den Entwurf verschönen, indem man schmalere Türen einzeichnet.

    Ich würde an Deiner Stelle jetzt gar nichts großartig planen, sondern dem Architekten machen lassen. Das kannst Du dann hier diskutieren.
    Man muss sich bewusst machen, dass man das ein oder andere eben nicht bekommt.
    Jeder von Euch wird abwägen müssen, was die Priorität ist, und da tickt jeder anders.
    Entweder man nimmt der fensterlosen Trennwand die negative Magie und setzt dort die Treppe, sodass oben eine hervorragende Raumnutzung herauskommt, oder man plant den Eingangsbereich recht offen und übersichtlich, dass man etwas mehr Allraum rauskitzelt, oder man zielt auf notwendigen weiteren Wohnraum im Dachgeschoss ab und legt die Treppe dann auf die Traufseite.
    Das alles sieht bei einem Alleinstehenden/Paar oder bei einem schon 4-köpfigen Haushalt verschieden aus. Wenn Du irgendwann eine Partnerin hast und der spätere Nachwuchs dann mehr Raum braucht bzw. der Essplatz größer sein muss, kannst Du Deine Haushälfte immer noch gut verkaufen und größer bauen.
    Ggf lässt der Baupartner seine Hälfte ja auch irgendwo diskutieren und kommt zu dem Schluss, dass seine Terrasse besser in den Westen passt und er im Süden den Zugang plant?!
     
    Fasanenhof und 11ant gefällt das.
  16. #56 Kriminelle, 16.11.2024
    Kriminelle

    Kriminelle

    Dabei seit:
    16.05.2013
    Beiträge:
    3.539
    Zustimmungen:
    1.926
    Beruf:
    .
    Ort:
    Niedersachsen
    Ich kann das nicht lesen.
    Welches Grundstück ist es denn und was bedeuten die Zahlen von 7,50 oder 10,50?
    Was wäre denn die Maximalhöhe des Hauses?
     
  17. #57 Christoph628, 16.11.2024
    Christoph628

    Christoph628

    Dabei seit:
    06.06.2024
    Beiträge:
    37
    Zustimmungen:
    1
    Beruf:
    Messtechniker Maschinenbau
    Ort:
    Bayern
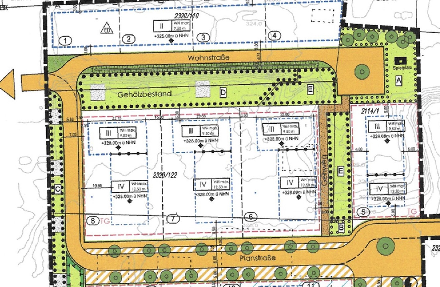
    Es ist Grundstück Nr. 1
    7,50m ist die Zulässige Wandhöhe (aus der textlichen Ergänzung: maximal zulässige Wandhöhe gem. Nutzungsschablone; Als Wandhöhe gilt das Maß von der erdgeschossigen ROK zum Schnittpunkt der Außenwand mit der Dachhaut oder bis zum oberen Abschluss der Außenwand)

    Dächer: Es sind Satteldächer, (12-35°) Pultdächer (12-30°) und Flachdächer (0-5°) zulässig
     
  18. #58 Fasanenhof, 18.11.2024
    Fasanenhof

    Fasanenhof

    Dabei seit:
    20.02.2023
    Beiträge:
    1.340
    Zustimmungen:
    737
    Beruf:
    Ing für Maschinenbau
    Ort:
    Norddeutschland
    Flachdach?
    Wie sieht es bei euch mit einem Flachdach mit Dachterrasse aus? Wenn ihr wenig Platz habt, das Grundstück sehr klein ist und man etwas mehr Raum braucht, dann könnte euch dies kostengünstig einige m² schenken.

    Natürlich: Sofern so eine Nutzung bei euch gestattet ist.
     
  19. #59 Kriminelle, 18.11.2024
    Kriminelle

    Kriminelle

    Dabei seit:
    16.05.2013
    Beiträge:
    3.539
    Zustimmungen:
    1.926
    Beruf:
    .
    Ort:
    Niedersachsen
    Ich antworte mal für den TE, weiiö ich mich mit dem Doppelhaus etwas beschäftigt habe.
    Es ist Satteldach, zb 30 Grad erlaubt.
    Und die Wandhöhe wird mit 7,50 maximiert, wobei man sagen muss, dass das bei den Nachbarhäusern wohl die Traufhöhe ist. Also ist auch ein nettes Dachgeschoss noch machbar.
     
    Christoph628 und Fasanenhof gefällt das.
  20. #60 Fasanenhof, 18.11.2024
    Fasanenhof

    Fasanenhof

    Dabei seit:
    20.02.2023
    Beiträge:
    1.340
    Zustimmungen:
    737
    Beruf:
    Ing für Maschinenbau
    Ort:
    Norddeutschland
    Im letzten Post meinte der TE, dass ein Flachdach gestattet sei. Daher meine Frage.
     
Thema:

Grundriss Doppelhaus auf kleinem Grundstück

Die Seite wird geladen...

Grundriss Doppelhaus auf kleinem Grundstück - Ähnliche Themen

  1. Mein Grundriss fürs Doppelhaus – Feedback erwünscht

    Mein Grundriss fürs Doppelhaus – Feedback erwünscht: Hallo zusammen, ich habe für ein Doppelhaus einen Grundriss entworfen und möchte ihn gerne hier mit euch teilen. [ATTACH] [ATTACH] [ATTACH]...
  2. Bitte um Hilfe bei Grundriss Doppelhaus 140-2 / 1. Entwurf liegt nun vor

    Bitte um Hilfe bei Grundriss Doppelhaus 140-2 / 1. Entwurf liegt nun vor: Hallo zusammen, vorab ein dickes Lob für dieses Forum. Habe mir schon recht viel an Input einholen können. Mein Bruder und ich planen ein...
  3. Grundriss für Doppelhaus in Hanglage

    Grundriss für Doppelhaus in Hanglage: Hallo, anbei ein Grundriss für ein Doppelhaus (nur eine DHH dargestellt) in Hanglage mit Bitte um Kommentare. Das Doppelhaus soll auf einem...
  4. Doppelhaus Grundriss ca. 200qm + 130qm - Was meint Ihr?

    Doppelhaus Grundriss ca. 200qm + 130qm - Was meint Ihr?: Hallo Zusammen, da dies mein erster Thread ist erstmal einen Kollektiven Dank an das Forum - ich habe hier schon etliche Ideen und Tipps...
  5. recht klassischer Doppelhaus-Grundriss

    recht klassischer Doppelhaus-Grundriss: Hallo Bauexperten, wir bauen mit einem GU eine Doppelhaushälfte auf ein recht kleines Grundstück. Den Grundriss haben wir schon etwas an unsere...