Grundriss Doppelhaus auf kleinem Grundstück

Diskutiere Grundriss Doppelhaus auf kleinem Grundstück im Architektur Allgemein Forum im Bereich Architektur; Flachdach ist erlaubt, aber nur zwei Vollgeschosse. Flachdach: EG (60qm) und OG (60qm) Satteldach: EG (60qm), OG (60qm) und DG (40qm) ->...

  1. #61 Christoph628, 18.11.2024
    Christoph628

    Christoph628

    Dabei seit:
    06.06.2024
    Beiträge:
    37
    Zustimmungen:
    1
    Beruf:
    Messtechniker Maschinenbau
    Ort:
    Bayern
    Flachdach ist erlaubt, aber nur zwei Vollgeschosse.
    Flachdach: EG (60qm) und OG (60qm)
    Satteldach: EG (60qm), OG (60qm) und DG (40qm)

    -> Satteldach bietet mehr Platz
    Eine Nutzung des Flachdaches als Dachterrasse ist (glaube ich) nicht zulässig
     
  2. #62 Kriminelle, 18.11.2024
    Zuletzt bearbeitet: 19.11.2024
    Kriminelle

    Kriminelle

    Dabei seit:
    16.05.2013
    Beiträge:
    3.725
    Zustimmungen:
    2.054
    Beruf:
    .
    Ort:
    Niedersachsen
    Auch wenn ich dem Christoph gesagt habe, dass er mal den Architekten planen lassen soll, so konnte ich es nicht lassen, mich mit 9 x 10 zu konfrontieren.
    Ich habe die Grundfläche allerdings um so 20/30cm kleiner gewählt, um auch reelle Wandmasze zuzulassen.
    Beide Entwürfe sind rechteckig, schlicht kastig und mit Satteldach 30 Grad, Kniestock muss man sehen, wieviel man im DG braucht bzw budgetfreundlich sind - hängt natürlich auch die Treppenposition dran. Ich habe jetzt grob 130cm genommen.

    IMG_1346.jpeg IMG_1347.jpeg IMG_1348.jpeg

    Linksseitig modern und offen mit einer Schrankeinbauabtrennung Flur/Wohnbereich. Eingang im Westen, offene Küche, könnte man auch zum Flur schließen. Aber es ist ein offenes Konzept mit gefangenem Wohnbereich. OG Kinderetage, DG Elternbereich.
    Rechtsseitig Eingang im Norden, gesamt etwas konventioneller (Treppe ins DG habe ich leider verdreht, tut aber Nix)

    IMG_1349.jpeg IMG_1350.jpeg IMG_1351.jpeg

    Hier linksseitig übersichtlicher Eingang von Norden und offenes Konzept, aber auch klassische Anordnung.
    Oben habe ich weiteres nicht weiter ausgeführt. Treppe würde aber immer funktionieren, auch mit geringerem KS.
    Rechtsseitig Küche mit Zugang zur Nordterrasse. Da habe ich auch den Fremd-Schuppen nördlich mit eingeplant, also ein gemütlicher Hinterhof. Küche könnte man abtrennen. Wahrscheinlich muss da eh noch ein tragendes Element hin. Im OG ist ein separater Wäscheraum, ansonsten familienfreundlich.

    IMG_1352.jpeg IMG_1353.jpeg IMG_1354.jpeg
    Linksseitig habe ich nichts gemacht. Die Nachbarn werden sowieso ihre eigenen Vorstellungen verwirklichen. Rechtsseitig also wieder eine flexible Treppe und einen separierten Wohnbereich mit Nordterrasse. Könnte man auch geschlossen planen, aber warum.
    Oben klassisch mit offenem Flur. Im DG dann der Elternbereich, wenn die Kids da sind.

    Überall ist ein relativ kleiner TK-Raum, da müsste der HWR-Bereich nach oben verlagert werden bzw der AB unter Dach genutzt werden.

    Lieber @Christoph628 , vielleicht ist ja eine Inspiration für Dich dabei.
    Allerdings muss ich Dich wahrscheinlich mit der Treppenform enttäuschen. Ich habe einiges ausprobiert. Zwar nicht alles, aber die meisten mehr geraden Formen reduzieren im OG und DG die Wohnfläche und bieten keine ausreichenden Stellflächen.
    Fenster, wenn auch irgendwann geschlampt und nicht eingezeichnet, funktionieren rechts gut mit der äußeren Fassade.
     
    Christoph628, 11ant und Fasanenhof gefällt das.
  3. #63 Christoph628, 19.11.2024
    Christoph628

    Christoph628

    Dabei seit:
    06.06.2024
    Beiträge:
    37
    Zustimmungen:
    1
    Beruf:
    Messtechniker Maschinenbau
    Ort:
    Bayern
    Wow, vielen Dank für die Vorschläge.
    Wird aberein paar Tage Dauern, bis sie etwas bei mir reifen :).
    Mal allgemein: Welche Punkte sollten eigentlich auf der "Wunschliste" fürn Architekten stehen?
    Möglichst viel einschränken oder ist es besser Freiraum zu gewähren (Stichwörter: Treppe / Tr unter Bad (wegen WW) / separater HWR / Küche an die Südseite)?
     
  4. #64 Kriminelle, 19.11.2024
    Kriminelle

    Kriminelle

    Dabei seit:
    16.05.2013
    Beiträge:
    3.725
    Zustimmungen:
    2.054
    Beruf:
    .
    Ort:
    Niedersachsen
    Sorry, aber er weiß schon, was Leitungswege bedeuten. Während wir mit Stammtischparolen und falschen alten Weisheiten kommen, hat er das studiert.
    Sag ihm, wie Du lebst, was Du tust und Dich in dem Haus mit wem in 10 Jahren siehst.
    Sag ihm, ob und welche Hobbies Du pflegst, pflegen willst und ob Licht Dir gut tut. Mehr braucht es nicht.
     
  5. #65 Christoph628, 12.12.2024
    Christoph628

    Christoph628

    Dabei seit:
    06.06.2024
    Beiträge:
    37
    Zustimmungen:
    1
    Beruf:
    Messtechniker Maschinenbau
    Ort:
    Bayern
    Also, es geht wieder weiter:

    - Notarieller Kaufvertrag fürs Grundstück ist unterschrieben
    - Vermessung zur Teilung des Grundstücks ist beantragt (Termin dafür bekommen wir in 3-4 Monaten)
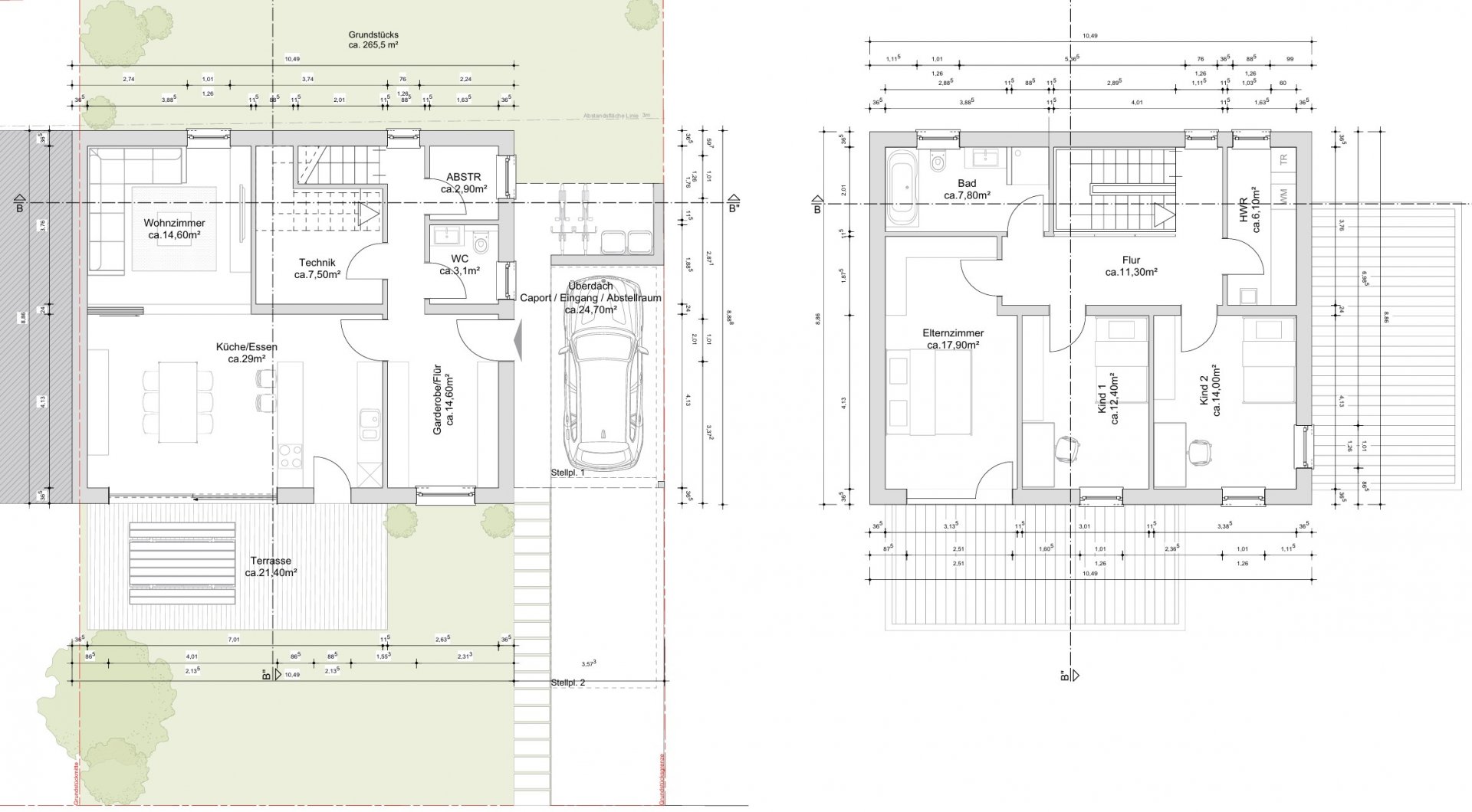
    - Architekt ist beauftragt und er hat mir jetzt mal den ersten Vorentwurf zugesendet:
    01_EG+OG.jpg
    01_DG.jpg

    Was mir gefällt:
    - grundsätzlich die Aufteilung im EG
    - Küche an der Terrasse
    - Wohnzimmer etwas abgeschottet
    - große Garderobe
    - Podest Treppe
    - separater HWR

    Was mir weniger gefällt:
    - Bad im OG nicht über Gäste-WC (Strangentlüftung?)
    - Hausanschluss im Technikraum vermutlich schwierig (lange Zuleitungen?)
    - Bad direkt über WZ (Abwasserleitungen?)
    - Dusche im Bad etwas klein
    - Flur zur Treppe etwas schmal
    - SZ im Süden
    - SZ neben Kinderzimmer
    - der Abstellraum im Eck gefällt mir irgendwie nicht so recht

    Welche Gedanken habt ihr noch zu diesem Grundriss bzw. was fällt euch noch gutes/weniger gutes auf?

    Viele Grüße
    Chris
     
    Fasanenhof gefällt das.
  6. #66 Kriminelle, 12.12.2024
    Kriminelle

    Kriminelle

    Dabei seit:
    16.05.2013
    Beiträge:
    3.725
    Zustimmungen:
    2.054
    Beruf:
    .
    Ort:
    Niedersachsen
    Ich bemängle ja in den meisten Standard-Grundrissen, dass keine Garderobe oder wenn, nur ein Schuhschrank eingezeichnet wird.
    Ich rate immer, für jeden Bewohner mind. 50-60cm Schranklänge einzuplanen. Aber hier ist es wirklich überdimensioniert. Die Garderobe ist mehr Tanzsaal und ist größer als das Familienbad.
    Der lange Flur zur Treppe ist natürlich sehr trennend. Da hätte man wohl gar keine Lust, öfters mal nach Feierabend hoch- und runter zu pendeln.
    Im Gegensatz wiederum finde ich die Küche zu wenig. Da ist ein Hochschrank für den Kühlschrank. Und was ist mit dem Ofen? Ggf auch mal ein Apothekerschrank.. etwas geräumige Unterbringung? Fehlt.
    Der Herd ist auf einem 60er Schrankinsel und somit gibt es keinen Spritzschutz. Den erwirkt man, indem hinter dem Herd noch 30cm AP vorgehalten wird.
    Ich hätte wohl auch ein Problem mit der Kombi von Eingangsbereich, PKW und Paketdienstleistern.
    Für‘s erste nicht schlecht. Ich würde dem Architekten auch noch mehr zutrauen.
     
  7. #67 Christoph628, 24.01.2025
    Christoph628

    Christoph628

    Dabei seit:
    06.06.2024
    Beiträge:
    37
    Zustimmungen:
    1
    Beruf:
    Messtechniker Maschinenbau
    Ort:
    Bayern
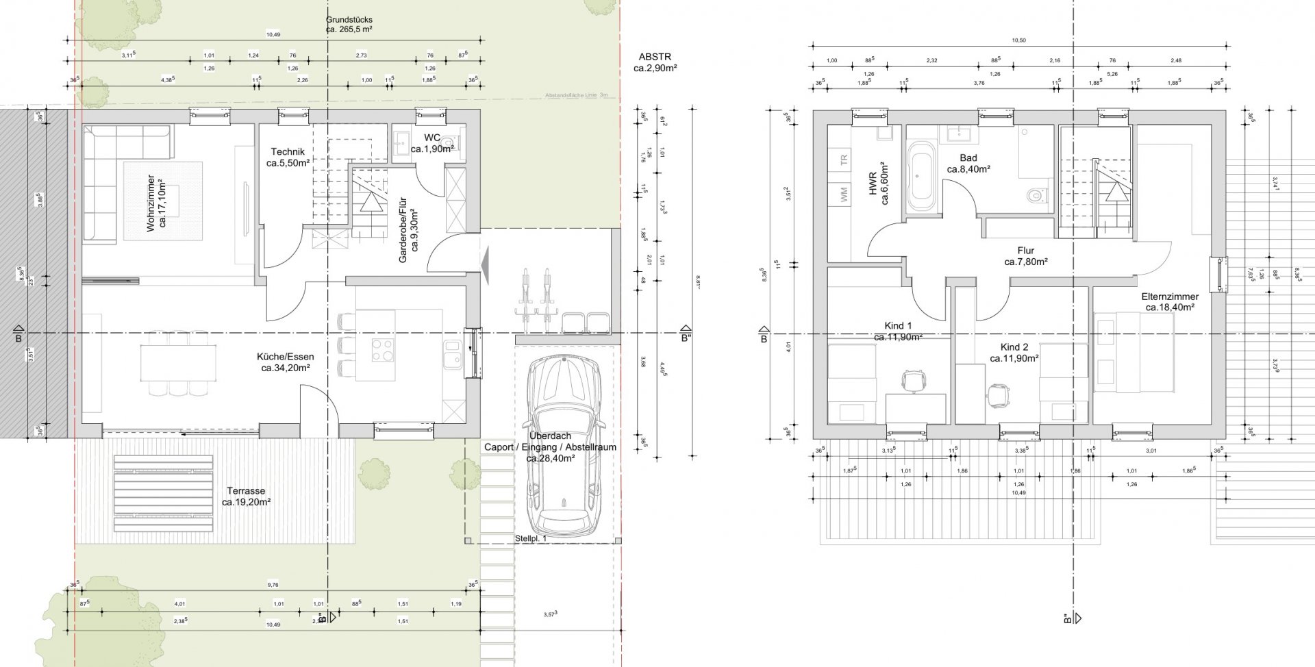
    Leider verzögert sich Urlaubs und Krankheitsbedingt die Überarbeitung des ersten Entwurfs etwas. Vorab hat mir jetzt das Architektenbüro den unfertigen Entwurf schonmal zur Durchsicht zugesendet.

    Entwurf2.jpg

    Einen Großteil meiner Wünsche zur Anpassung des ersten Entwurfes wurden bereits umgesetzt:
    - Die Wohnfläche insgesamt etwas reduziert (von ca.141 auf ca.133qm / jeweils zzgl. DG, aber ohne Keller / auf Bodenplatte)
    - Küche bis an die Ostseite ziehen (zusätzliches Fenster / das die Aussicht daraus nicht die Beste ist, ist mir bewusst...)
    - Küche etwas größer + tiefere Schrankinsel
    - Garderobe verkleinert
    - Carport näher an die Straße für einen größeren Nordgarten / die jetzt auch dadurch entstandene Zugangssituation gefällt mir aber irgendwie nicht

    Wo ich mir auch noch etwas unsicher bin:
    - Technikraum unter der Treppe -> Frage an die Experten: Lässt sich so etwas vernünftig (schallgedämmt) ausführen?

    Technikraum.jpg
    (3D Modell vom Technikraum habe ich mal auf die schnelle in einem Maschinenbau-Zeichenprogramm nachgemalt)

    - außerdem ist der Technikraum schon arg klein -> vermutlich wäre es sinnvoll, einen Teil der Technik (z.B. Elektrik) ins DG zu setzten und alles was mit Wasser / Heizung zu tun hat im EG zu lassen?
    - Türen zu schmal? (@Kriminelle hat in einem Beitrag mal darauf hingewiesen, nicht unnötig schmale Türen zu planen)

    Fällt euch noch etwas auf, das nicht so toll ist?
     
  8. #68 Kriminelle, 24.01.2025
    Kriminelle

    Kriminelle

    Dabei seit:
    16.05.2013
    Beiträge:
    3.725
    Zustimmungen:
    2.054
    Beruf:
    .
    Ort:
    Niedersachsen
    In welchem Zusammenhang?
    Ich habe den Entwurf ja schon in meinem Programm. Allerdings bin ich derzeit etwas erkrankt.
    Was ich aber sagen kann: die 3,50 Kü/Ess-Breite im Verhältnis zur Länge ist sehr unschön. Es bietet sich eher eine Verkürzung des Hauses um 50cm sowie eine Verbreiterung um 50cm an. Treppe und TK würde ich tauschen, damit der Zugang zum Essbereich attraktiver wird. WZ kann etwas kleiner zugunsten des TK-Raumes.
     
    Christoph628 gefällt das.
  9. #69 Christoph628, 24.01.2025
    Christoph628

    Christoph628

    Dabei seit:
    06.06.2024
    Beiträge:
    37
    Zustimmungen:
    1
    Beruf:
    Messtechniker Maschinenbau
    Ort:
    Bayern
    Hier:
    Interessante Vorschläge


    Oje, dann gute Besserung :)
     
  10. #70 Kriminelle, 25.01.2025
    Kriminelle

    Kriminelle

    Dabei seit:
    16.05.2013
    Beiträge:
    3.725
    Zustimmungen:
    2.054
    Beruf:
    .
    Ort:
    Niedersachsen
    Die genannten 70cm bezogen sich damals auf Durchgänge durch Möblierungen.
    Der letzte Entwurf hat ja gar keine Tür-Maße. Eine schlanke Familie kann sehr gut mit einer Gästetür von 70cm Breite auskommen,
    Bei kompakten Häusern passen selten 1 Meter-Türen, denn man braucht ja auch Stellfläche wie auch die Türblätter Platz brauchen. Allerdings braucht die Technik und der Techniker Durchgang, Möbel (SZ) auch.
    Der Eingang zum Lebebereich sollte einladend sein.

    Ist quasi gar nicht vorhanden und wäre für mich ein KO-Kriterium. Im Entwurf ist -gesamt betrachtet - der Allraum ziemlich groß, aber auf Kosten von Treppe/Technik. Für meinen Geschmack zu gedrungen.
    Es wird nunmal ein kompaktes Haus Sollte man dennoch notwendige Objekte ihren Platz lassen, dass sie funktionieren.
    Ich würde wohl den Allraum auf gesamt 40/45qm reduzieren und das, was man täglich mehrmals aktiv nutzt, etwas komfortabler gestalten.
     
    K a t j a und 11ant gefällt das.
  11. #71 Holzhaus61, 25.01.2025
    Holzhaus61

    Holzhaus61

    Dabei seit:
    10.04.2023
    Beiträge:
    1.332
    Zustimmungen:
    581
    Der "Haustechnikraum" ist doch ein Witz. Der funktionierte vielleicht in den 70ern, wo man ne Gastherme an die Wand geklatscht hat und gut ist. Vielleicht noch als reiner Anschlußraum, ansonsten Abstell-Loch.

    Überleg doch mal, was da heute so alles rein kommt. Und dann die notwendigen Abstände Stromkasten usw.

    Die Leitungsführung Abwasser aus Bad und HWR im OG wird auch spannend...
     
    11ant gefällt das.
  12. 11ant

    11ant

    Dabei seit:
    28.02.2017
    Beiträge:
    2.496
    Zustimmungen:
    1.573
    Beruf:
    Bauherrenberater
    Ort:
    RLP Nord
    Benutzertitelzusatz:
    bringt Sie gut beraten ins Eigenheim
    In den Beiträgen #67 (und bereits #65) glaube ich die eingeschriebenen Quadratmeter des Technikraumes nicht, von dem ein erheblicher Teil weniger als 2 m Höhe hat. In den Beiträgen #42 und #49 hattest Du nachvollziehbar dargelegt, daß Deine Haushälfte auf 8,5 m Breite und 10 m Tiefe kommen könne, nun ist sie in der Breite um 2 m angewachsen. Begnügt sich Dein Mitbauer nun mit einer entsprechend schmaleren Hälfte oder ist das Grundstück wundersam aus dem Leim gegangen ?
    Ich halte Deine Hauskonzeption für sukzessive mißlungener. Falls Du bei den üblichen Verdächtigen keine gefallenden bewährten Vorlagen findest: auch im orangen Forum gibt es davon mehrere; beispielsweise im berühmt-berüchtigten Goalkeeperthread, sowie von MadameP (die für ein Eckgrundstück eine Komposition unsymmetrischer Hälften ausgetüftelt hat), und irgendwo habe ich auch letztes oder vorletztes Jahr dort einen Reupload der Pläne von i_b_n_a_n gemacht, der mit seinem Bruder ein Vierappartements-Doppelhaus gebaut hat. Dessen besonderer Clou ist ein Hausanschlußraum für beide Hälften, auf der Mitten"grenze".

    Vielleicht denkst Du (mit Deinem Mitbauer) ja einmal darüber nach: der eine baut seine Hälfte quer und der andere längs; ein Hausanschlußraum kommt an (nicht unbedingt auf) die Grenze, als kleines "Blockheizkraftwerk", das zur Masterhälfte gehört und die Slavehälfte mit versorgt.

    So lange wie Du nun schon bastelst, bringt Dich das Warten auf die nächste Gelegenheit in meinem Terminkalender (aktuell noch innerhalb Q2 des noch jungen Jahres) nun auch nicht mehr um, ich würde das Projekt gerne begleiten.
     
  13. #73 Kriminelle, 26.01.2025
    Zuletzt bearbeitet: 26.01.2025
    Kriminelle

    Kriminelle

    Dabei seit:
    16.05.2013
    Beiträge:
    3.725
    Zustimmungen:
    2.054
    Beruf:
    .
    Ort:
    Niedersachsen
    Er hat ein Architekt, und der macht, was er soll. Ein Entwurf muss wachsen.

    Genau. Nur die Bodenfläche.
    Das Grundstück hat aus der Erinnerung 14 x 18.
    8,5 x 10 ist ein Standardmaß einer DHH.
    Aus Sparmaßnahmen bzw. weil der TE gern ein Optimum an südlichen Garten haben möchte, ist die Tiefe des Hauses um knapp 1,70 eingekürzt, dafür etwas verbreitert auf 10,50, sodass in der Theorie 3,50 für Carport/Schuppen verbleibt. Der Gedankengang ist völlig ok und sollte nicht dazu dienen, den TE vorzuführen.

    @Christoph628
    Meine oberen Zeilen bedeuten nicht, dass das Ziel so besser erreicht werden kann oder das Ziel in greifbare Nähe gerückt ist. Aber ich kann nachvollziehen, dass man versucht, hier einen halben Meter zu sparen, um irgendwo einen Meter rauszuholen.
    Leider funktioniert das nicht immer.
    Der Zugang unter dem Carport ist eine Katastrophe. Nicht auszudenken, wenn mal die 112 oder die Flaschenpost/Paketbote kommen muss.
    Das Grundstück ist klein, und einen Gartengewinn zum Nachteil des Zugangs, den jeder Bewohner mehrmals am Tag nutzt, geht nicht so ohne weiteres.
    Zwar bist Du derzeit allein und Single, ggf. kein Auto und Situationen, wo man Platz braucht, gibt es erst gar nicht, aber Du möchtest ja einen Grundriss und Haus, wo auch eine Familie wohnen kann. Mit einen Zugang eines schmalen Carports: Nope!
    Es gibt ja auch noch nicht einmal Platz für einen Kinderwagen oder -karre, keinen Zugang oder Abstellfläche im Haus, für eben dieses 3- oder 4-Rad.
    Du willst teilweise zu viel. Du willst mehr aus dem Grundstück machen als andere, die ein doppelt so großes Grundstück haben.
    Du musst sparsam sein, aber redest von Regenwassernutzung für Toi und so, was ja vom Aufwand nicht günstig ist.
    Ich persönlich finde tatsächlich schon 10cm mehr Raumhöhe im EG etwas, worauf man verzichten kann, wenn man bedenkt, dass die Treppe mehr Platz und Fläche nimmt, die Fenster ggf. höher, die Steinreihe gesägt und alles an Material etwas mehr ist für Räume, die eine Extrahöhe nicht brauchen. Das nur als Denkanstoß. Nun denn.
    Dann noch zwei Punkte, die auch etwas im Zusammenhang stehen:
    1. Du möchtest einen HWR im OG, weil es viele so machen, die die Wäsche einer Familie dort waschen wollen, wo sie anfällt. Dabei darf man aber nicht vergessen, dass 50% (oder so) das eben nicht wollen, weil diese im Garten die Wäsche trocknen möchten. Die Win-Situation geht gen 0. Zudem müssen die Raumquadratmeter im EG sowie im OG zueinander passen. Man kann also nicht einfach mal pauschal in einem 130qm-Haus so denken, unbedingt im EG oder OG so Nice-to-have-Räume einzuplanen. Was also für den Allraum gilt, alles zusammen und dadurch mehr Nutzen, gilt auch für Technik und Wäsche. Manchmal ist eine Kombi die bessere Lösung, auch wenn es um Nutzung der Flächen im OG und EG geht.
    2. Ich knüpfe nochmal an die IST und SOLL-Situation von Dir an. Derzeit baust Du für Dich allein dieses Haus. In der Hoffnung wird auch irgendwann eine Frau dort einziehen. Einige Jahre später sollte das Haus dann ggf. für ein Kind, eventuell für zwei Kinder ausreichen.
    Wenn wir in Zeitschritten arbeiten, hast Du 5 Jahre eine schicki großzügige DHH, wo Du Dich allein austoben kannst, Dich aber nicht verloren fühlen musst.
    Raumaufteilung wirkt nicht piefig, dass sich auch eine Frau dort wohl fühlen kann. Nach weiteren 5 Jahren mit Kind 1 und Kind 2 sollte das Haus auch funktionieren.
    Hobby und Büro geht aus den Kizis und wandert beispielsweise nach oben.
    Ich gehe aber jede Wette ein, dass man, spätestens wenn die Kinder Schulreife haben, sich nach etwas mit mehr Grundstücksnutzen sucht. Ggf hat man dann wirklich die zwei notwendigen Autos oder der Schuppen platzt durch den Kinderfuhrpark aus den Nähten. Vielleicht braucht ein angeschaffter Wohnwagen Stellfläche. Vielleicht hat die Frau Bedürfnisse, wovon Du überhaupt nicht wusstest, dass es sie gibt.
    Es muss ja nichts neues gefunden werden, aber es kann. Und dann kann ein anderes jüngeres Paar wieder dieses Haus als Starterhaus mit Freude bewohnen. Das wäre ggf. also nach 15 Jahren.
    Also: plane die Räume mit gutem Mehrwert.

    Ich habe mal genau die Maße vom letzten Entwurf genommen, auch die tragende Wand.
    Der zu lange Ess/Kü-Raum eingekürzt mit einem Eingang, der auch Zugang sein darf. WZ darf separiert bleiben, Treppe habe ich das Podest genommen. Diese Mammuts-Treppen braucht man in einem 130qm Haus nach meiner Meinung nicht!
    Was übrig bleibt, ist ein schöner geräumiger und reeller TK/HWR, der sogar noch eine Tür nach hinten in den Garten zulässt.
    Oben ergibt sich zwar ein gefangener Raum, aber da ansonsten kein Büro geplant ist, kann man diesen Raum gut für Büro oder Ankleide nehmen. Ich denke, es gibt schlimmeres. Nur um diesen Raum zu separieren, werde ich den funktionellen und hier hellen und kompakten Flur nicht masakrieren, denn ansonsten ist es eine gute Raumaufteilung.
    Die Kizis sind funktionell, das Bad ist schön geräumig und bietet Platz für 4.
    By the way: man darf die Fenster nicht vergessen, die mindestens ausreichend groß sein sollten, um den Raum gut zu belichten (Kizis kommen ja doch etwas zu kurz beim Architekten)

    IMG_1479.jpeg IMG_1478.jpeg IMG_1477.jpeg
    Zu den Maßen der Möbel: Dielenschrank 200cm, Schränke im OG: 150/300cm.
    Bett 160 Breite, Wanne 180x80, Dusche 100x200
    Fensterbreiten 100, SZ 2 140
    Kücheninsel 90x180, Esstisch 100x200

    Treppe: 200x240
     
  14. #74 Holzhaus61, 26.01.2025
    Holzhaus61

    Holzhaus61

    Dabei seit:
    10.04.2023
    Beiträge:
    1.332
    Zustimmungen:
    581
    Mal ernsthaft: es gibt im Netz genügend Beispiele für mögliche funktionierende Grundrisse, wo zwei EFH aneinander gebaut werden, sogar mit Zugang auf der Giebelseite, wenn man das will. Grundrisse, die funktionieren. Da reicht dann ein Zeichenknecht vom GU um das zu optimieren. Das, was hier ein Architekt für teures Geld abgeliefert hat, ist nicht nur teuer sondern auch noch grottenschlecht. da hat sich ein Student rangesetzt, der sich seine ersten Gedanken machen soll (nur leider in vielen Dingen nicht zu Ende gedacht)
     
  15. #75 Christoph628, 26.01.2025
    Christoph628

    Christoph628

    Dabei seit:
    06.06.2024
    Beiträge:
    37
    Zustimmungen:
    1
    Beruf:
    Messtechniker Maschinenbau
    Ort:
    Bayern
    @Holzhaus61: bezüglich Raumgröße Technikraum stimme ich dir zu. 3,5qm (Fläche mit voller Raumhöhe) sind zu wenig, das Doppelte wäre er erforderlich
    Das verstehe ich nicht, kannst du das etwas erläutern?

    Auch hier würde mich eine nähere Erläuterung sehr interessieren

    Womit ich weiterhin unsicher bin:
    @11ant @Holzhaus61: wie bereits erwähnt sind die beiden Entwürfe von einem Architekten / der letzte hätte eigentlich erst noch überarbeitet werden sollen:
    -> also nochmal, der Entwurf ist nicht fertig.

    Die Grundstücksgröße beträgt ca. 14x19m. Standard Grundrisse habe ich viele angeschaut. Es war aber keiner darunter, der die beiden Bedingungen erfüllt:
    - aufs Grundstück passen
    - mir gefallen

    Letztendlich läuft es bei den Außenmaßen darauf hinaus:
    - Je schmäler das Haus, desto mehr Platz für Zugang und Auto aber desto weniger Platz für Südgarten
    (aktuell ca. 2,7m für Auto und 0,9m Wegbreite für Zugang
    - Je größer / länger die Zufahrt, desto mehr Platz an der Haustür
    - alternativ den Zugang über die Südseite


    Hier mal zwei Grundrisse mit ähnlicher Situation, die so hier letztes Jahr unabhängig voneinander (unterschiedliche Baugebiete, Bauherren und Baufirmen) gebaut wurden und aktuell zur Vermietung stehen (Haus 2 lag schlüsselfertig (ohne Grundstück) bei 330k €)
    DHH-1 hosted at ImgBB -> weitgehend geschlossenes Carport
    DHH-2 hosted at ImgBB -> offene Stellplätze
    -> Hier wurde sich wohl gegen einen größeren Zugang entschieden


    @Kriminelle:
    Vielen Dank für deinen sehr Ausführlichen Beitrag.
    Das die Zugangssituation so nicht gut ist sehe ich genauso.
    Thema HWR: Der könnte auch ins EG oder DG wandern, wenn OG nicht möglich wäre. Bei deinem Vorschlag wurde aber aus dem HWR ein Büro, das aktuell aber nicht benötigt wird
    Thema Treppe: Zweiläufigkeit war ein Vorschlag des Architekten, von mir so nicht gefordert (aber gut fände ich sie trotzdem) Der Platzbedarf steigt gegenüber deiner Variante von 4,8qm auf 6qm.

    Dein Entwurf schaut gut aus, abgesehen von der offenen Treppe...
     
  16. #76 Holzhaus61, 26.01.2025
    Holzhaus61

    Holzhaus61

    Dabei seit:
    10.04.2023
    Beiträge:
    1.332
    Zustimmungen:
    581
    Haustechnik: Was willst Du denn haben? WP mit Speicher, klar und dann? KWL? PV? da werden Deine 7 m² dann bald knapp, wenn da auch noch die Anschlüsse rein sollen.

    Gäste-WC-Loch: ernsthaft, wie breit ist das? 90 cm? Und das wird noch weniger, wenn Putz rauf kommt.
    Intelligenterweise hat der "Architekt" das erst gar nicht vermasst, dafür sind irgendwelche imaginären Maße wie 61,2 von irgendwas nach irgendwo drin

    mach Dir schon mal Gedanken, wo Du da nen Handtuchheizkörper hinbacksen willst, damit man sich im Winter da nicht die **** abfriert bei dem Wandaufbau. Weil, mit ner normalen FBH bekommst Du das nicht ausreichend warm, es sei denn mit kochenden Füßen.
    usw. usw.

    In der "Planung" da sind so viele grundlegende Fehler, das hat ne Azubine zur Bauzeichnerin gemacht, aber kein Planer. Das wird dann noch schlimmer, wenn eine "Hobbyplanerin" (das meine ich nicht abwertend) wie Kirminelle Dir erst mal die Richtung zeigen muss was Sinn macht.
     
  17. #77 Christoph628, 26.01.2025
    Christoph628

    Christoph628

    Dabei seit:
    06.06.2024
    Beiträge:
    37
    Zustimmungen:
    1
    Beruf:
    Messtechniker Maschinenbau
    Ort:
    Bayern
    Gewünschte Ausstattung Haus, die sich auf Technikraum (EG) und Technikraum (DG) aufteilen kann:
    Hausanschluss: Mehrspartenhauseinführung
    Heizung: LWWP + Pufferspeicher (evtl. mit FriWa)
    Wasser: Wasserzähler, Wasserfilter, Wasserenthärter, Hauswasserwerk für Regenwassernutzung
    Strom: Verteilerkasten/Zählerschrank, Wechselrichter für PV ohne Akku-Speicher
    Lüftungsanlage: KWL (Deckengerät wäre hier z.B. eine Möglichkeit "Platz zu sparen")


    WC: 1,9x1m
    Wandaufbau: Der wurde doch noch nicht erwähnt und laut meinem Architekten wird er im Vorentwurf auch noch nicht berücksichtigt:confused:
     
  18. #78 Kriminelle, 26.01.2025
    Kriminelle

    Kriminelle

    Dabei seit:
    16.05.2013
    Beiträge:
    3.725
    Zustimmungen:
    2.054
    Beruf:
    .
    Ort:
    Niedersachsen
    Nein, es ist kein HWR geplant. Du kannst den Raum auch Ankleide nennen. Reserve deshalb, weil Du zwar kein Büro brauchst, aber sicherlich später, wenn das Haus nicht nur mit Dir bewohnt wird, sondern auch mit einer zweiten erwachsenen Person.
    Ich kann auch den Flur länger machen und einen separaten Zugang vom Flur aus generieren. Aber das macht doch keinen Sinn.
    Ich könnte auch noch etwas mehr Zeit investieren, die Treppe zuppeln und iwo im OG einen kleinen Raum freischaufeln.
    Oder ich könnte die Räume etwas rotieren lassen. Aber ich bin derzeit auch etwas froh, zeitig die Planung mal gezeigt zu haben, denn Dir gefällt das Konzept ja gar nicht.
    Was gefällt Dir denn daran nicht? Was macht Dir da Bauchschmerzen?
     
  19. #79 Kriminelle, 26.01.2025
    Kriminelle

    Kriminelle

    Dabei seit:
    16.05.2013
    Beiträge:
    3.725
    Zustimmungen:
    2.054
    Beruf:
    .
    Ort:
    Niedersachsen
    Der erste Entwurf (Haus 1a) ist in meinen Augen eine völlig undurchdachte Katastrophe, die man tatsächlich nur vermieten kann, weil man selbst so nicht wohnen möchte.
    Das zweite ist nicht annähernd in ähnlicher Situation wie Dein Grundstück, weil dieses viel länger ist und somit mehr Möglichkeiten für den Zugang bietet.
     
  20. #80 Christoph628, 26.01.2025
    Christoph628

    Christoph628

    Dabei seit:
    06.06.2024
    Beiträge:
    37
    Zustimmungen:
    1
    Beruf:
    Messtechniker Maschinenbau
    Ort:
    Bayern
    Ist vermutlich Geschmackssache, aber mir gefällt die Treppe im Wohnbereich einfach nicht.

    Thema HWR / Wäsche draußen aufhängen:
    Ich bin Pollen-Allergiker und hänge meine Wäsche (so gut wie) nie draußen auf, daher wäre es für mich fast Immer der doppelte Weg.
    Technikraum braucht kein Fenster, Wäsche bei Tageslicht zu Bügeln find ich hingegen ganz angenehm.
    Ein Büro könnte / würde ich im DG einrichten

    Thema Abstellraum: Wenn der Technikraum kein HWR ist, kann dieser IMHO auch als Abstellraum genutzt werden (ausreichende Größe vorausgesetzt natürlich)
    Thema Küche: Irgendwie hat mir der Gedanke gefallen, von zwei Seiten Licht/Fenster zu haben, wobei der Zugang über die Südseite bei deinem Entwurf natürlich schon Vorteile hat, aber auch Nachteile, wie weniger Privatsphäre auf der Terrasse


    Stimmt, das Grundstück ist länger aber auch schmäler (25x11m), aber der Zugang ist trotzdem sehr ähnlich (Breite Stellplatz + Weg = ca. 3,55m)
     
Thema:

Grundriss Doppelhaus auf kleinem Grundstück

Die Seite wird geladen...

Grundriss Doppelhaus auf kleinem Grundstück - Ähnliche Themen

  1. Mein Grundriss fürs Doppelhaus – Feedback erwünscht

    Mein Grundriss fürs Doppelhaus – Feedback erwünscht: Hallo zusammen, ich habe für ein Doppelhaus einen Grundriss entworfen und möchte ihn gerne hier mit euch teilen. [ATTACH] [ATTACH] [ATTACH]...
  2. Bitte um Hilfe bei Grundriss Doppelhaus 140-2 / 1. Entwurf liegt nun vor

    Bitte um Hilfe bei Grundriss Doppelhaus 140-2 / 1. Entwurf liegt nun vor: Hallo zusammen, vorab ein dickes Lob für dieses Forum. Habe mir schon recht viel an Input einholen können. Mein Bruder und ich planen ein...
  3. Grundriss für Doppelhaus in Hanglage

    Grundriss für Doppelhaus in Hanglage: Hallo, anbei ein Grundriss für ein Doppelhaus (nur eine DHH dargestellt) in Hanglage mit Bitte um Kommentare. Das Doppelhaus soll auf einem...
  4. Doppelhaus Grundriss ca. 200qm + 130qm - Was meint Ihr?

    Doppelhaus Grundriss ca. 200qm + 130qm - Was meint Ihr?: Hallo Zusammen, da dies mein erster Thread ist erstmal einen Kollektiven Dank an das Forum - ich habe hier schon etliche Ideen und Tipps...
  5. recht klassischer Doppelhaus-Grundriss

    recht klassischer Doppelhaus-Grundriss: Hallo Bauexperten, wir bauen mit einem GU eine Doppelhaushälfte auf ein recht kleines Grundstück. Den Grundriss haben wir schon etwas an unsere...