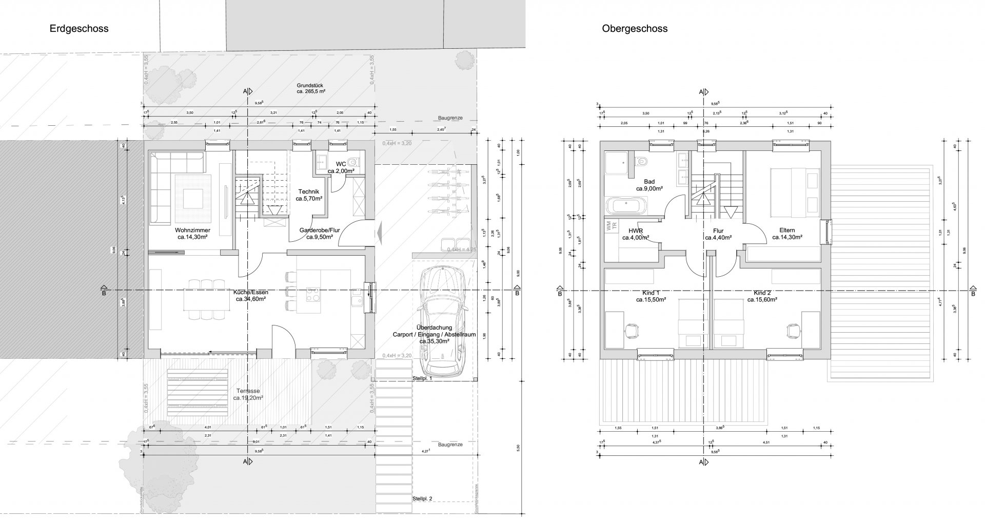
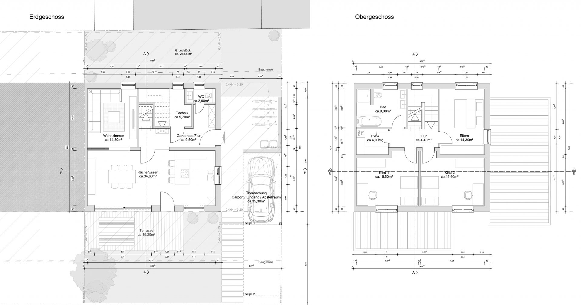
Grundriss Doppelhaus auf kleinem Grundstück
Diskutiere Grundriss Doppelhaus auf kleinem Grundstück im Architektur Allgemein Forum im Bereich Architektur; somit mehr Möglichkeiten für den Zugang aber der Zugang ist trotzdem sehr ähnlich (Breite Stellplatz + Weg = ca. 3,55m) Nochmal: durch Deine 19...
	
	Seite 5 von 6
	
		
	
	
	Thema: 
	
	Grundriss Doppelhaus auf kleinem Grundstück
			Die Seite wird geladen...
		
	- 
                
                    
						Grundriss Doppelhaus auf kleinem Grundstück - Ähnliche Themen
- 
                	
                    
                    Mein Grundriss fürs Doppelhaus – Feedback erwünschtMein Grundriss fürs Doppelhaus – Feedback erwünscht: Hallo zusammen, ich habe für ein Doppelhaus einen Grundriss entworfen und möchte ihn gerne hier mit euch teilen. [ATTACH] [ATTACH] [ATTACH]...
- 
                	
                    
                    Bitte um Hilfe bei Grundriss Doppelhaus 140-2 / 1. Entwurf liegt nun vorBitte um Hilfe bei Grundriss Doppelhaus 140-2 / 1. Entwurf liegt nun vor: Hallo zusammen, vorab ein dickes Lob für dieses Forum. Habe mir schon recht viel an Input einholen können. Mein Bruder und ich planen ein...
- 
                	
                    
                    Grundriss für Doppelhaus in HanglageGrundriss für Doppelhaus in Hanglage: Hallo, anbei ein Grundriss für ein Doppelhaus (nur eine DHH dargestellt) in Hanglage mit Bitte um Kommentare. Das Doppelhaus soll auf einem...
- 
                	
                    
                    Doppelhaus Grundriss ca. 200qm + 130qm - Was meint Ihr?Doppelhaus Grundriss ca. 200qm + 130qm - Was meint Ihr?: Hallo Zusammen, da dies mein erster Thread ist erstmal einen Kollektiven Dank an das Forum - ich habe hier schon etliche Ideen und Tipps...
- 
                	
                    
                    recht klassischer Doppelhaus-Grundrissrecht klassischer Doppelhaus-Grundriss: Hallo Bauexperten, wir bauen mit einem GU eine Doppelhaushälfte auf ein recht kleines Grundstück. Den Grundriss haben wir schon etwas an unsere...
