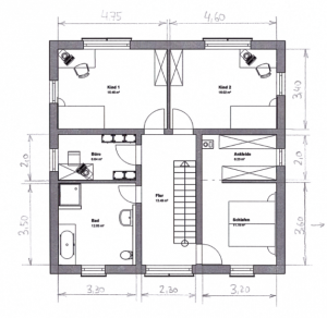
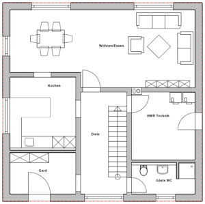
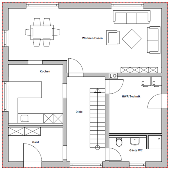
Grundriss: EFH 10,2m x 10,2m

Diskutiere Grundriss: EFH 10,2m x 10,2m im Architektur Allgemein Forum im Bereich Architektur; Hallo Zusammen, bitte schaut Euch meine Grundrisse an und sagt mir Eure Meinung. Danke! [ATTACH] [ATTACH] [ATTACH]

  1. EAbaut

    EAbaut

    Dabei seit:
    09.01.2020
    Beiträge:
    7
    Zustimmungen:
    0
    Hallo Zusammen,
    bitte schaut Euch meine Grundrisse an und sagt mir Eure Meinung.

    Danke!
    EG.png
    EG.png
    Grundstück.PNG
     

    Anhänge:

    • OG.png
      OG.png
      Dateigröße:
      58,2 KB
      Aufrufe:
      552
  2. #2 jodler2014, 09.01.2020
    Zuletzt bearbeitet: 09.01.2020
    jodler2014

    jodler2014

    Dabei seit:
    20.12.2014
    Beiträge:
    3.907
    Zustimmungen:
    542
    Beruf:
    Angestellter
    Ort:
    RP
    Kann man so bauen .
    Gibt es auch Innenmaße ?
    Ist ziemlich quadratisch !( Kubus mit Walmdach , Zeltdach )= Stadtvilla , die natürlich auch auf den Dörfern immer mehr gebaut wird ( Vorsicht , Ironie ! )
    Sagen wir mal mindestens 36,5 cm Mauerwerk und die Innenwände in 17,5 cm oder 24cm .
    Der Platz für den Esstisch erscheint mir etwas zu klein .
     
  3. #3 simon84, 09.01.2020
    simon84

    simon84
    Moderator

    Dabei seit:
    11.11.2012
    Beiträge:
    23.279
    Zustimmungen:
    6.917
    Beruf:
    Schrauber
    Ort:
    Muenchen
    Geht auf jeden Fall wesentlich schlechter. !
     
  4. EAbaut

    EAbaut

    Dabei seit:
    09.01.2020
    Beiträge:
    7
    Zustimmungen:
    0
    Ja, wir wollen eine "Stadtvilla" bauen, Mauerwerk = 36,5 cm.

    Welche Breite im Bereich Esstisch ist ausreichend? 3,2m noch ok?
    Ich möchte die Küche noch etwas verlängern. Offene Küche wollen wir nicht haben.
    Evtl. breiterer Durchgang von Küche zu Essbereich mit Schiebetür.

    Innenmaße:
    EG-1.PNG OG-1.PNG
     
  5. #5 Fabian Weber, 09.01.2020
    Fabian Weber

    Fabian Weber

    Dabei seit:
    03.04.2018
    Beiträge:
    16.331
    Zustimmungen:
    6.489
    Der hässlichste Haustyp den es meiner Meinung nach gibt.
     
    jodler2014 und simon84 gefällt das.
  6. #6 Fabian Weber, 09.01.2020
    Fabian Weber

    Fabian Weber

    Dabei seit:
    03.04.2018
    Beiträge:
    16.331
    Zustimmungen:
    6.489
    Wo steht das Schuhregal und wo ist die Garderobe?

    Der Wandversatz im Wohnzimmer ist unglücklich.
     
  7. #7 jodler2014, 09.01.2020
    jodler2014

    jodler2014

    Dabei seit:
    20.12.2014
    Beiträge:
    3.907
    Zustimmungen:
    542
    Beruf:
    Angestellter
    Ort:
    RP
    Unter der Treppe ,weil sonst kein Platz dafür ist ..
     
  8. EAbaut

    EAbaut

    Dabei seit:
    09.01.2020
    Beiträge:
    7
    Zustimmungen:
    0
    Zimmer Links-unten "Gard" soll die Garderobe bzw. Eingangsbereich mit Schuhregal usw. werden.
     
  9. #9 jodler2014, 09.01.2020
    Zuletzt bearbeitet: 09.01.2020
    jodler2014

    jodler2014

    Dabei seit:
    20.12.2014
    Beiträge:
    3.907
    Zustimmungen:
    542
    Beruf:
    Angestellter
    Ort:
    RP
    Tisch ungefähr 90 cm breit .
    Stellfläche für Stuhl und Rangierfläche , Bewegungsfreiheit ... sagen wir mal pro Tischseite ca. 90 cm .Zur Not reichen auch 80 cm .
    Rechnet man jetzt zusammen ist das schon sehr gemütlich .
     
  10. #10 jodler2014, 09.01.2020
    jodler2014

    jodler2014

    Dabei seit:
    20.12.2014
    Beiträge:
    3.907
    Zustimmungen:
    542
    Beruf:
    Angestellter
    Ort:
    RP
    Stimmt .
    Aber die Tür kann man ja noch etwas verschieben.
    Ist das Fenster bodentief ?
    Mal überlegen .
    Tür zur Küche auch in Richtung Haustür verschieben .
    So ,genug geschoben !
    Das OG macht der Nächste .
     
  11. EAbaut

    EAbaut

    Dabei seit:
    09.01.2020
    Beiträge:
    7
    Zustimmungen:
    0
    Außenansicht ist nicht sehr spaktakulär, aber insgesamt für mich ein Haustyp mit einigen Vorteilen.
    Außenansicht.png
     
  12. #12 jodler2014, 09.01.2020
    jodler2014

    jodler2014

    Dabei seit:
    20.12.2014
    Beiträge:
    3.907
    Zustimmungen:
    542
    Beruf:
    Angestellter
    Ort:
    RP
    Aha ,die Haustür geht direkt in die Garderobe .
    Viel zu beengt .
    Die Tür zur Diele kann man auch weglassen ..
    Trotzdem bleibt der Eingangsbereich zu kompakt.
     
  13. #13 Wilma66, 10.01.2020
    Wilma66

    Wilma66

    Dabei seit:
    31.05.2019
    Beiträge:
    105
    Zustimmungen:
    25
    Würde Bett und Ankleide tauschen, damit man auch getrennt aufstehen kann.
    Küche soll unbedingt geschlossen sein? Macht euch vor Bau schon Gedanken über die Aufteilung.
    Ist die Haustür unten links? Würde dann die Flurtür nach planrechts öffnen lassen, sonst wird es in dem Windfang schnell mal eng und staut.
    Zeichnet eure Möbel maßstabsgetreu ein, z. B. Stühlen stehen beim Sitzen nicht unterm, sondern vorm Tisch.
     
    Kriminelle gefällt das.
  14. #14 Surfer88, 10.01.2020
    Surfer88

    Surfer88

    Dabei seit:
    17.12.2018
    Beiträge:
    1.098
    Zustimmungen:
    467
    4,1m Wohnzimmer "tiefe" ist viel viel zu wenig!
    Das Klassische Ecksofa mit Ausleger hat meistens um die 3m Stellfläche, + kleiner Couchtisch mit 60cm + Laufwege + 50-60cm Wohnwand.... da wird es spannend eine Schublade zu öffnen.....
    Wo findet denn das tägliche Leben statt ? Oder baut ihr das Haus nur für die Tagesschau und zum Schlafen ?

    Lg
     
  15. #15 vollmond, 10.01.2020
    vollmond

    vollmond

    Dabei seit:
    18.12.2012
    Beiträge:
    925
    Zustimmungen:
    134
    Beruf:
    PL
    Ort:
    Würzburg
    Wozi und Küche hab ich (fast) gleichgroß....
    Die Durchreiche ist bei mir wesentlich größer (180cm)

    Passt für uns super. Falls gewünscht kann ich ein paar Fotos eigerichtet machen...

    Evtl noch die Garage mit durchgang direkt ans Haus??
     
  16. #16 driver55, 11.01.2020
    Zuletzt bearbeitet: 11.01.2020
    driver55

    driver55

    Dabei seit:
    22.02.2008
    Beiträge:
    6.898
    Zustimmungen:
    1.809
    Beruf:
    Dipl.-Ing.
    Ort:
    Pforzheim
    Ohne vernünftige Bemaßung keine vernünftige Bewertung möglich!

    Sorry, jetzt gesehen:D

    • man kann hier noch einiges optimieren;)
    • aber, was mir garnicht zusagt sind die Positionen von Eingang/Haustüre und Garage. Das Bild in #11 hat ja nichts mit der Planung in #1 (Bild 3) zu tun
     
  17. #17 Kriminelle, 13.01.2020
    Kriminelle

    Kriminelle

    Dabei seit:
    16.05.2013
    Beiträge:
    3.747
    Zustimmungen:
    2.075
    Beruf:
    .
    Ort:
    Niedersachsen
    Ich auch. Allerdings hier nicht möglich. Dazu müsste man etwas mit der Treppe machen, und das bedeutet ein anderer Grundriss.

    Die Ankleide ist mit 2 Metern zu schmal, um noch in den verbliebenen ca. 70 cm (bei 60er Schränken) seine Sachen zu sehen.
    Das Bad gehört richtig möbliert, zur Zeit wäre die Entwässerung der Toilette nämlich VOR DER TÜR im Flur EG.

    EG: dieser labyrinthartige Eingangsbereich ist blöd und nicht großzügig. Gut ist ein großer HWR. Geschlossene Küche würde ich dann mit Terrassentür ausstatten. Oder was macht man auf der Terrasse?
    Zeichne Dir richtige Möbelmasse ein, der Esstisch ist Puppengrösse.
    Ein Schornstein ist kein Wandersatz! Wenn Kamin gewünscht, dann auch einzeichnen, denn der verbrennt auch Polsterstoffe.
    Bei Fenster bitte Brüstungsmasse einfügen. Ich ahne es aber, da das Foto es schon zeigt: nenne mir einen Grund, warum man zur Strasse bodentiefe Fenster im Bad und co macht?

    So ist es.
     
  18. #18 simon84, 13.01.2020
    simon84

    simon84
    Moderator

    Dabei seit:
    11.11.2012
    Beiträge:
    23.279
    Zustimmungen:
    6.917
    Beruf:
    Schrauber
    Ort:
    Muenchen
    Damit man wertvolle Stellflächen und Ablagefläche verliert ;)
     
  19. 11ant

    11ant

    Dabei seit:
    28.02.2017
    Beiträge:
    2.501
    Zustimmungen:
    1.578
    Beruf:
    Bauherrenberater
    Ort:
    RLP Nord
    Benutzertitelzusatz:
    bringt Sie gut beraten ins Eigenheim
    Den bräuchte es hier m.E. generell. Offensichtlich ist hier ein Stadtvilla-Standardgrundriß die Grundlage (in dem der Flur typischerweise darauf ausgerichtet ist, unmittelbar selbst den Eingang zu beinhalten), und darin dann die Haustür in die Garderobe verpflanzt worden. Wenn man aber in einem so zentralen Punkt der Ansicht ist, daß ein Konzept nicht passe, dann sollte man es auswechseln, anstatt daran eine Einzeländerung auf einer Nachkommastelle vorzunehmen.
     
  20. SvenvH

    SvenvH
    Moderator

    Dabei seit:
    22.11.2019
    Beiträge:
    4.170
    Zustimmungen:
    1.584
    Ich würde versuchen den hwr Raum oben unterzubringen. Bad etwas kleiner und Büro nach unten. Das Gäste Wc etwas größer, welches übrigens nicht für die Fussgänger die dringend mal aufs Klo müssen gedacht ist. Das darf dann auch gerne etwas Dichter an den Wohnbereich. Die Küche würde ich da unterbringen wo die Couch steht und die Wand zwischen Küche und Wohnzimmer sowieso weglassen. Die Treppe stört dort auch total. Alles viel zu eng. Wozu die gewaltige Garderobe und dann auch noch durch eine Tür abgetrennt. Der Trend geht eher zu offeneren Bauweisen. Ihr geht einen Schritt zurück. Alles total unspektakulär. Ich würde noch ein paar mehr voneinander unabhängige Pläne Zeichnen. Es gibt noch viel mehr Möglichkeiten als 0815. Vor allem bei zwei Vollgeschossen
     
Thema: Grundriss: EFH 10,2m x 10,2m
Besucher kamen mit folgenden Suchen
  1. schuhregal gaste

Die Seite wird geladen...

Grundriss: EFH 10,2m x 10,2m - Ähnliche Themen

  1. Grundriss Bewertung Architektenhaus

    Grundriss Bewertung Architektenhaus: Hallo zusammen, wir wären über euren Input sehr dankbar. Was kann man verbessern? Was würdet ihr ändern? 1. Wir sind: Familie mit einem Kind...
  2. Hilfe Grundriss Untergeschoss

    Hilfe Grundriss Untergeschoss: Ich benötige etwas Hilfe beim Grundriss für das Untergeschoss. Ich würde gerne die Eingangstür nach Süden legen, da dort die Straße ist. Außerdem...
  3. Neubau – Grundriss, Firstrichtung und Vorgehen

    Neubau – Grundriss, Firstrichtung und Vorgehen: Hallo zusammen, wir sind noch ganz am Anfang unseres Bauprojekts: das Grundstück steht fest (muss noch geteilt und umgeschrieben werden,...
  4. Grundriss EFH 150m2 (Hang, Souterrain, ELW) – Feedback zu Effizienz & Raumaufteilung

    Grundriss EFH 150m2 (Hang, Souterrain, ELW) – Feedback zu Effizienz & Raumaufteilung: Hallo liebe Bauexperten, wir planen ein Eigenheim mit ELW in Hanglage und haben uns schon zahlreiche Gedanken gemacht. Ich möchte die Chancen, die...
  5. Symbol Grundriss ca. 1875 Preußen Bitte um Erklärung

    Symbol Grundriss ca. 1875 Preußen Bitte um Erklärung: Hallo, ich habe vor einiger Zeit eine alte Försterei gekauft und suchte ewig nach Bauzeichnungen oder Grundrissen dazu. Lange Story kurz, ich...