Grundriss EFH ~160qm + Satteldach ausgebaut

Diskutiere Grundriss EFH ~160qm + Satteldach ausgebaut im Architektur Allgemein Forum im Bereich Architektur; Hallo gemeinsam, mit meinem ersten Beitrag hier möchte ich euch direkt mal nach eurer Meinung zu unserem Grundriss fragen. Ich bin dankbar für...

  1. #1 beetlejules, 26.01.2017
    beetlejules

    beetlejules

    Dabei seit:
    26.01.2017
    Beiträge:
    3
    Zustimmungen:
    0
    Beruf:
    Elektroingenieur
    Ort:
    Selm
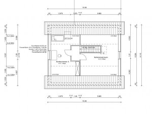
    Hallo gemeinsam,

    mit meinem ersten Beitrag hier möchte ich euch direkt mal nach eurer Meinung zu unserem Grundriss fragen. Ich bin dankbar für jede Anregung!

    Im ersten Entwurf hier vom Architekten ist die Couch und der TV noch verdreht. Der TV soll an die Wand gegenüber.

    Oben sind wir noch am überlegen ob das Büro größentechnisch fürs Bad reichen würde und das jetzige Bad zum Kinderzimmer 2 werden soll.

    Vielen Dank schon mal.

    Unsere Wünsche waren:

    2 Vollgeschosse
    Satteldach (wegen dem Platzangebot)
    Große Garage für Auto und Motorrad
    Zusätzlich Stellplatz für weiteres Auto
    Kein Keller
    Ca. 160qm Wohnfläche
    Platz für 2 Kinder (in 2-3 Jahren vlt.)
    Möglichkeit Küche abzuschotten
    Gerade Treppe

    Unser Grundstück ist 650qm groß, rechteckig, 17m breit, 38m tief

    Haustechnik falls interessant: Sole-WP, KWL mit WRG, KNX Automation

    Dachgeschoss.jpg Obergeschoss.jpg Erdgeschoss.jpg
     
  2. #2 beetlejules, 31.01.2017
    beetlejules

    beetlejules

    Dabei seit:
    26.01.2017
    Beiträge:
    3
    Zustimmungen:
    0
    Beruf:
    Elektroingenieur
    Ort:
    Selm
    Hallöchen,

    hab ich eigentlich Irgendetwas falsch gemacht?
    Oder ist der Grundriss keiner rede wert und ich sollte alles über den Haufen werfen?
     
  3. #3 Andybaut, 31.01.2017
    Andybaut

    Andybaut

    Dabei seit:
    02.04.2015
    Beiträge:
    5.127
    Zustimmungen:
    329
    Beruf:
    Architekt
    Ort:
    Baden-Württemberg
    Dachfenster bei der Treppe, damit es heller wird.
    Grundiss OG finde ich schön.
    Grundriss DG ist OK
    Die Küche, das Wohnen und Essen gehen, sind aber nicht meins.
    Beim Essen darf man in den Garten sehen und beim Fernsehen gegen die Wand.
    Ich persönlich sitze gerne auf dem Sofa, lese ein Buch und schaue in den Garten.
    Scheint aber gerade nicht mehr der Trend zu sein. Immer wieder Grundrisse bei denen gegen die Wand geglotzt wird.
    Wer´s mag.
    Die 2 Essplätze kann ich nicht nachvollziehen. Einer für immer und siffig und einer für die Gäste?
    vielleicht eine Insel anstelle des Tisches in der Küche? Müsste man mal in 3D testen.

    Aber insgesamt könnte ich gut damit leben.
     
  4. #4 beetlejules, 01.02.2017
    beetlejules

    beetlejules

    Dabei seit:
    26.01.2017
    Beiträge:
    3
    Zustimmungen:
    0
    Beruf:
    Elektroingenieur
    Ort:
    Selm
    Danke fürs feedback,

    Das mit dem Dachfenster ist gut.

    Zum Wohnen: Irgendwo muss der Fernseher ja hin, eine weitere Möglichkeit wäre die Wand zur Nordseite, dann könnte man die Fensterfront in den Garten vergrößern, hat aber die Couchrükseite zum Esstisch. Ich weiß nicht wie das aus sieht.

    Zur Küche: Diese ist noch nicht so konkret geplant. Hatten nur angemerkt das wir gern einen 2ten kleinen Essplatz in der Küche hätten um morgens vor der Arbeit ganz fix eine Schale Müßli oder so zu essen ohne groß aufzufahren.
    Anstatt eines kleinen Tisches wird es wohl irgendwo an Zeile eine Angebrachte Bar, Theke, Konsole, wie auch immer, werden.
     
  5. #5 Andybaut, 01.02.2017
    Andybaut

    Andybaut

    Dabei seit:
    02.04.2015
    Beiträge:
    5.127
    Zustimmungen:
    329
    Beruf:
    Architekt
    Ort:
    Baden-Württemberg
    Fernseher nach Westen, Couch nach Osten.
    An die Ostwand noch etwas mehr Glas.

    Fernesehr zwischen 2 Fenstern ist bei "guten" Fernsehern kein Problem.
    Hab ich selber. Links Fenster 2m, 1,60m Wand mit TV und rechts 2m Fenster.
    Alles ohne Gardinen. Man kann astrein TV sehen.
    Für die TV-Süchtigen im Winer wenn die Sonne tief steht den Rollladen ein wenig nach unten.
     
Thema: Grundriss EFH ~160qm + Satteldach ausgebaut
Besucher kamen mit folgenden Suchen
  1. grundriss 160 qm

    ,
  2. grundriss efh

Die Seite wird geladen...

Grundriss EFH ~160qm + Satteldach ausgebaut - Ähnliche Themen

  1. Grundriss Bewertung Architektenhaus

    Grundriss Bewertung Architektenhaus: Hallo zusammen, wir wären über euren Input sehr dankbar. Was kann man verbessern? Was würdet ihr ändern? 1. Wir sind: Familie mit einem Kind...
  2. Hilfe Grundriss Untergeschoss

    Hilfe Grundriss Untergeschoss: Ich benötige etwas Hilfe beim Grundriss für das Untergeschoss. Ich würde gerne die Eingangstür nach Süden legen, da dort die Straße ist. Außerdem...
  3. Neubau – Grundriss, Firstrichtung und Vorgehen

    Neubau – Grundriss, Firstrichtung und Vorgehen: Hallo zusammen, wir sind noch ganz am Anfang unseres Bauprojekts: das Grundstück steht fest (muss noch geteilt und umgeschrieben werden,...
  4. Meinungen zum Grundriss EFH 160m²

    Meinungen zum Grundriss EFH 160m²: Hallo zusammen, ich möchte hiermit meinen Grundriss Vorentwurf zur Diskussion stellen, um noch irgendwelche Schwachstellen auszubessern. Ich...
  5. Grundriss Bungalow 160qm

    Grundriss Bungalow 160qm: Wie schon angedeutet, plane ich mein Haus selbst (ausser TWP). Der nunmehr achte Grundriss soll es werden (nach Mehrgeschosser, Haus mit Anbau...