Grundriss EFH ohne Keller - ehrliche Meinungen erwünscht

Diskutiere Grundriss EFH ohne Keller - ehrliche Meinungen erwünscht im Architektur Allgemein Forum im Bereich Architektur; Servus allerseits! Wir sind gerade dabei unseren Grundriss für eine ca 160m² große Hütte zu basteln. Da wir momentan etwas mehr Zeit haben als...

  1. #1 Kapsville, 05.04.2020
    Kapsville

    Kapsville

    Dabei seit:
    05.04.2020
    Beiträge:
    1
    Zustimmungen:
    0
    Servus allerseits!
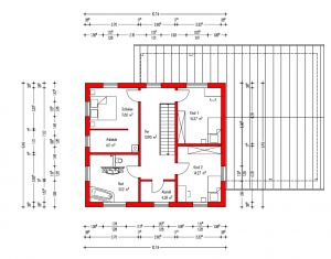
    Wir sind gerade dabei unseren Grundriss für eine ca 160m² große Hütte zu basteln. Da wir momentan etwas mehr Zeit haben als unsere Ansprechpartner (Bauzeichner, Baufirmen), habe ich mir überlegt mich an dieses Forum zu wenden. Der Grundriss ist nichts ausgefallenes, normales Satteldach ohne Schickschnack.
    Wir haben uns die ungefähre Einteilung überlegt und eine Skizze an einen befreundeten Bauzeichner übertragen. Wir würden euch bitten, einfach einmal drüber zu schauen um komplett sinnlose Sachen im Vorfeld auszuschließen.

    Zum EG:
    Die Trennwand im Wohnzimmer soll ca 1m hoch werden und nach oben hin einen Raumtrenner mit z.B. drehbaren Holzlamellen(eher Brettern) darstellen. Hintergrund: Ich hätte es gerne offen, meine Frau lieber geschlossen
    Eine gerade Treppe bilden wir uns beide ein (uns ist bewusst dass das platztechnisch immer etwas problematischer ist).
    Doppelgarage wäre dann neben Technikraum
    Technikraum ist mir denke ich etwas zu klein, vielleicht Speis/Küche noch etwas verkleinern oder Speis ganz weglassen (Frau möchte unbedingt eine, ich bin der Meinung, dass man heutzutage auf eine verzichten könnte - wenn dafür z.B. ein zwei dieser Blum SpaceTower o.ä. in die Küche integriert).

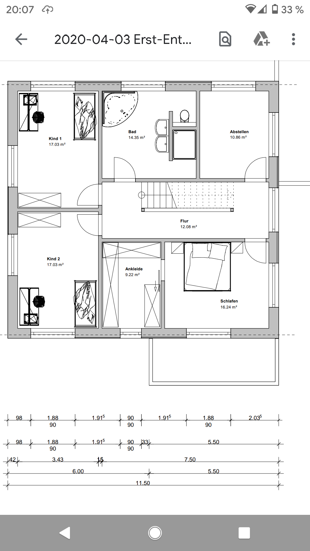
    Zum OG:
    Wäre es sinnvoller, das Badezimmer über der Küche zu platzieren? Auch könnten wir uns vorstellen, den Abstellraum noch etwas richtung Kinderzimmer(Badezimmer) zu vergrößern um evtl hier das Büro zu integrieren. Dann würde man das untere Büro als Hauswirtschaftsraum benutzen und der Technikraum könnte wiederum platztechnisch ausreichen.

    Viele Gedanken, keine Antworten. Eventuell liest jemand mit, der einen ähnlichen Grundriss geplant / gebaut hat und etwas zur Einteilung sagen kann oder will.
     

    Anhänge:

    • eg.PNG
      eg.PNG
      Dateigröße:
      65,1 KB
      Aufrufe:
      2.836
    • og.PNG
      og.PNG
      Dateigröße:
      50,7 KB
      Aufrufe:
      1.182
  2. #2 Thomas So, 05.04.2020
    Thomas So

    Thomas So

    Dabei seit:
    21.08.2019
    Beiträge:
    135
    Zustimmungen:
    26
    So spare er nie an der Speis oder riskiere er ewigen Zorn des Weibes! ;)
    Ne im Ernst, ne Speis ist ein Luxus den ich niemals messen wollen würde.
    Oberes Bad würde ich die Tür eher anders rum aufgehen lassen, also "rein-links", sonst hat man immer die Tür im weg wenn man aufs Klo muss.
    Braucht OG Abstell ein Fenster? Hier kann man wieder n paar Mark sparen bzw. an die Wand kann ein Schrank, was bei einem Fenster nicht der Fall wäre.
     
    11ant gefällt das.
  3. #3 Malunga, 05.04.2020
    Malunga

    Malunga

    Dabei seit:
    06.09.2019
    Beiträge:
    82
    Zustimmungen:
    13
    Also aus Kostengründen kann ich dir sagen das eine räumliche Nähe der großen Technik (Bad, HWR und WC etc) immer günstiger kommt und wohl leichter zu realisieren ist.
    Sprich deine WC Abwasserleitungen etc muss nich erst einmal ums Haus bzw. das Wasser vom Technikraum hoch...
    Sonst finde ich den Grundriss erstmal solide
     
  4. #4 jodler2014, 05.04.2020
    Zuletzt bearbeitet: 05.04.2020
    jodler2014

    jodler2014

    Dabei seit:
    20.12.2014
    Beiträge:
    3.907
    Zustimmungen:
    543
    Beruf:
    Angestellter
    Ort:
    RP
    Sinnvoll ist die Tür vom HTR in die Garage .
    Aber bei der Raumgröße wohl Platzverschwendung .
    Auf den 8m² müssen ja irgendwo die Hausanschlüsse ,Installationswand Heizung ,Lüftungsanlage , Strom mit den dazu erforderlichen Freiflächen ihren Platz finden.
    Ansonsten hat der Bauzeichner schön abgemalt.
    Das ist doch ein fertiger Grundriss mit Bemaßung und 2 Schnitte gibt es sogar auch schon.
    Der Grundriss vom OG stammt wohl eher von einer " Stadtvilla ".
    Wie hoch ist der Kniestock ?
     
  5. #5 driver55, 05.04.2020
    driver55

    driver55

    Dabei seit:
    22.02.2008
    Beiträge:
    6.933
    Zustimmungen:
    1.843
    Beruf:
    Dipl.-Ing.
    Ort:
    Pforzheim
    Auf die Schnelle...

    EG:
    • Wohnen/Essen/Kochen mit 42 m² ist insgesamt etwas klein ausgefallen
    • 15 m² Wohnen ist kein "Wohnen"
    • Die Küche, zusammen mit der Speis, ist dageben qm-mäßig zu groß
    • Trennwand Wohnen/Essen ist eher hinderlich (eben, weil die Räume ohnehin schon klein sind)
    • der Bereich mit den beiden Hockern in der Küche kostet nur Platz, bringt aber keinen wirklichen Nutzen...

    EG/OG:
    • zu viel Flur/Verkehrswege: 24 m² + 4 m² durch die Technik --> 28 m² bei ca. 155 m²
    OG:
    • erst Ankleide, dann Schlafen
    • Ankleide sollte so breit sein, dass sie beidseitig möbiliert werden kann (bei 1,70 geht das nicht...)
    • Kind1/2 mit Bad/Schlafen/Ankleide tauschen (wg. Installationen...)
    • ...
    --> andere Treppe, weniger Flur/Verkehrsfläche --> mehr Wohnfläche
     
    Kriminelle und Jo Bauherr gefällt das.
  6. #6 Kriminelle, 05.04.2020
    Kriminelle

    Kriminelle

    Dabei seit:
    16.05.2013
    Beiträge:
    3.840
    Zustimmungen:
    2.163
    Beruf:
    .
    Ort:
    Niedersachsen
    Passe mich @driver55 s Meinung an.
    Platz am „Tresen“ Küche passt nicht zum Sitzen.
    Wand zw Wohnen und Ess engt zusehr ein.
    Ankleide mit 1,70 zu schmal für wirklichen Nutzen. Außerdem: erst Ankleide, dann Schlafen
    Bad, da würde ich Dusche und Toi tauschen, ansonsten bekommt man beim Klositzen Beklemmungen. Fenster dient da zur natürlichen Belichtung und Abwechslung.
     
  7. #7 Wilma66, 05.04.2020
    Wilma66

    Wilma66

    Dabei seit:
    31.05.2019
    Beiträge:
    105
    Zustimmungen:
    25
    Beschäftigt euch rechtzeitig (also vor Bau) mit der Küchenplanung! Einiges, was da eingezeichnet ist, funktioniert so nicht, z. B.:
    - Kochfeld hat an 3 Seiten keine Arbeitsfläche
    - der Durchgang bei den Sitzplätzen scheint zu eng
     
  8. #8 Navinelin, 05.04.2020
    Navinelin

    Navinelin

    Dabei seit:
    05.04.2020
    Beiträge:
    6
    Zustimmungen:
    0
    Wir haben tatsächlich einen ähnlichen Plan. Haben auch ohne Keller geplant. Ein paar Details sind anders.. bei uns wurde ein Erker untergebracht welcher den Esstisch mit einer großen Fensterfront beherbergt, da es dir Südseite ist bietet sich das hier an. Wir überlegen aus dem Erker eine Galerie zu machen. Vielleicht eröffne ich hierzu einen Thread.
    Die Speisekammer ist bei uns relativ klein aber dafür unter der Treppe untergebracht was den Platz optimal ausnutzt.
    Oben überlegen wir das Bad evtl zu Ungunsten des Abstellraumes zu vergrößern um eine freistehende Badewannen unterzubringen. Ansonsten finde ich auch einen direkten Zugang vom Schlafzimmer zum Bad toll, haben wir aber jetzt nicht umgesetzt.
    Ich würde die Wand auch weglassen und die Küche verkleinern, wenn du eine Speisekammer hast brauchst du ja gar nicht so viel Staufläche
     

    Anhänge:

  9. #9 Jo Bauherr, 06.04.2020
    Jo Bauherr

    Jo Bauherr

    Dabei seit:
    19.06.2018
    Beiträge:
    1.049
    Zustimmungen:
    516
    Beruf:
    (Ex)-Vermieter
    Ort:
    Randberlin
    Geht so. ... EG kann man ja so machen (nur die WC-Tür besser nach außen). Zum OG: Eine Ankleide muss m.E. immer direkten Zugang zu Flur bzw. Bad bekommen - ohne den Umweg 'durch' das Schlafzimmer! Und ein eigenes! Kinderbad dürfte am langen Ende auch eine sehr sinnvolle Investition sein...
     
Thema:

Grundriss EFH ohne Keller - ehrliche Meinungen erwünscht

Die Seite wird geladen...

Grundriss EFH ohne Keller - ehrliche Meinungen erwünscht - Ähnliche Themen

  1. Grundriß ca. 170 qm ohne Keller

    Grundriß ca. 170 qm ohne Keller: Hallo zusammen, ich plane den Bau eines EFH mit ca. 170 qm ohne Keller. Geplant ist ein Satteldach mit zwei Vollgeschossen. Der Grundriss stammt...
  2. Grundriss 160m2 Holständerhaus am Nordhang mit Keller - Meinungen erbeten

    Grundriss 160m2 Holständerhaus am Nordhang mit Keller - Meinungen erbeten: Hallo, nachfolgend findet ihr unseren (beinahe) finalen Grundriss. Lediglich bei den Fenstern wird noch ein bisschen rumgeschoben und geändert....
  3. Grundriss Einfamilienhaus ohne Keller

    Grundriss Einfamilienhaus ohne Keller: Hallo, haben heute den ersten Entwurf von der Architektin bekommen, es ist für ein Fertighaus, man kann an sich alle Räume bis auf das Bad frei...
  4. Grundriss, längliches EFH, integrierte Garage ja/nein, kein Keller

    Grundriss, längliches EFH, integrierte Garage ja/nein, kein Keller: Hallo zusammen, bei uns stehen derzeit die Grundrissplanungen an. Mit folgenden Vorgaben sind wir an einen GU herangetreten: Außenmaße ca....
  5. Grundriss-Debatte / euer Feedback: EFH, 2geschossig, kein Keller

    Grundriss-Debatte / euer Feedback: EFH, 2geschossig, kein Keller: Hallo zusammen, anbei unser aktueller Grundriss, mit dem wir schon sehr zufrieden sind. Bevor die Pläne nun zum Bauantrag und bald...