Grundriss - eure Meinung

Diskutiere Grundriss - eure Meinung im Architektur Allgemein Forum im Bereich Architektur; Hallo zusammen, 1. Wir sind: Paar Anfang 30. Arbeiten beide 4 Tage die Woche im Home-Office. Kind 3,5 Jahre alt, zweites kommt im März....

  1. Annnna

    Annnna

    Dabei seit:
    30.08.2023
    Beiträge:
    23
    Zustimmungen:
    3
    Hallo zusammen,

    1. Wir sind:

    Paar Anfang 30. Arbeiten beide 4 Tage die Woche im Home-Office. Kind 3,5 Jahre alt, zweites kommt im März. Großeltern wohnen etwas weiter weg, Übernachtungsmöglichkeit im Büro o.ä. wäre gut. Keine Beeinträchtigungen/Behinderungen. Alles für die Eigennutzung.

    2. Unser Raumprogramm:
    was wir für Räume brauchen oder wünschen
    • Offener All-Raum (Küche, Essen, Wohnen zusammen), Hauptzentrum des Hauses, so groß wie möglich
    • Geräumiger Eingangsbereich.
    • 6 Essplätze (bei Familienfeiern 12+)
    • 3 Schlafzimmer (Eltern, 2 Kinder)
    • Anzahl Bäder: 1 Hauptbad, 1 Toilette zusätzlich (EG), weiteres optional.
    • Ankleide. Mit Türe abgetrennt, da wir Eltern unterschiedlich schlafen gehen und aufstehen
    • Büro: 2 Arbeitsplätze
    • Büro/Gast kombiniert. Kombi ok. Ins andere Büro vielleicht Wäscheständer.
    • Technikraum
    • Seisekammer/Abstellraum zusammen
    • Doppelgarage wartet auf Genehmigung, sonst wird es ein Carport für 2 Autos
    • Kein Keller wegen Grundwasser
    3. Welchen Hausstil bevorzugen wir?
    Es wird ein Reiheneckhaus mit Flachdach. 2. OG genehmigt, allerdings etwas schmaler aufgrund Abstand zum Nachbarn. Massiv. Keine Änderung möglich.

    5. Bebauungsplan/Einschränkungen
    335 qm
    Flaches Grundstück

    6. weitere Wünsche/Besonderheiten/Tagesablauf
    • Wir wünschen uns ein geräumigen Wohnbereich im EG, weshalb keine große Waschküche oder Büro im EG sein soll.
    • Große Küche wäre schön.
    • Waschmaschine steht im Bad, Wäsche wird im Büro oder im Ankleidezimmer aufgehängt
    • Kinder werden erst mal in der Nähe von uns im 1.OG schlafen, später wollen sie vielleicht mal ins 2.OG. Brauchen sie da dann ein eigenes Bad? Büro ist also erst mal im 3.OG und ziemlich groß bemessen.
    7. angedachte Haustechnik

    Luftwärmepumpe mit Bodenheizung
    PV-Anlage mit Speicher
    Zentrale Lüftungsanlage
    KFW 55

    8. Hausentwurf
    Stammt von einem Architekten (Bruder des BT, mit ihm müssen wir leben).

    Was gefällt uns und was stört uns?
    • EG gefällt uns. Ist eine Tür vom Flur in Wohnbereich ratsam? Bewohner von älteren Häusern raten uns dazu wegen der Kälte und "es zieht".
    • Technikraum. Wirklich hinter die Garage? Nehmen wir uns damit nicht benötigte Abstellfläche weg? Wohin sonst? 2.OG? Techniker im Haus stört uns nicht.
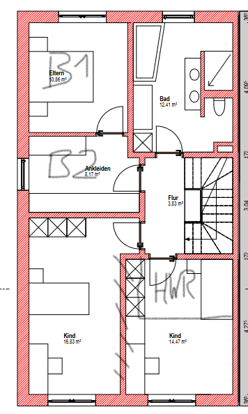
    • 1.OG ist ok. Passen die Zimmergrößen? Badezimmer mit Badewanne und WM ist knapp. Badewanne könnte notfalls auch weg. Offene Dusche ist auch diskutierbar. Wie man beide Kinderzimmer auf 13-14qm bekommt zu Gunsten der anderen Zimmer sind wir ideenlos.
    • 2.OG ist eine Katastrophe. Wir wollen keine "Pseudo-Mini-Galerie", sondern lieber ein Abstellraum für Gartenmöbel auf der Dachterrasse/Balkon. Zugang zum Balkon nur über die Büros ist ok. Außerdem lieber kein Bad als eins, was man nur von einem Zimmer betreten kann. Technik hier hoch? Lieber Technik oben als Skier oder Grill, die man immer mal wieder runter schleppen muss. Ideen bzgl Technikraum sind sehr willkommen.
    Vielen Dank schonmal für's Lesen und ich hoffe auf viele konstruktive Kritik. Auf der Außenansicht ist unser Haus das ganz links noch ohne 2.OG.
     

    Anhänge:

    leppis gefällt das.
  2. #2 VollNormal, 30.08.2023
    VollNormal

    VollNormal

    Dabei seit:
    20.11.2021
    Beiträge:
    4.202
    Zustimmungen:
    2.830
    Beruf:
    Bauingenieur
    Ort:
    Bochum
    In meinen Augen nicht nur ratsam, sondern unverzichtbar. Sonst steht jeder, vielleicht gar nicht gebetene, Besuch direkt mitten in der guten Stube. Das Gästeklosett akustisch und olfaktorisch zweifach vom Koch- und Essbereich zu trennen, halte ich auch für sinnvoll.
     
    11ant, Osnabruecker und Annnna gefällt das.
  3. borish

    borish

    Dabei seit:
    06.06.2020
    Beiträge:
    230
    Zustimmungen:
    37
    Es gibt zu wenig Abstellfläche und der HWR ist zu klein. Wenn ihr Kinder habt, werdet ihr viele Sachen verstauen müssen, vielleicht auch Sportgeräte. Wer ein Eigenheim hat, sollte nicht im Bad Wäsche aufhängen müssen, wie in der Mietswohnung. Ist die Dachterrasse nötig? Es ist doch ein Garten vorhanden. Das eine Kinderzimmer könnte noch ein Fenster nach Westen haben, dann freut sich das Kind über Abendsonne. Warum sind Keller und Technikraum seitlich angesetzt? Da geht kostbare Südseite verloren. Kann man das Haus breiter machen und Keller und HWR in den Norden verlagern, eventuell mit weiteren einem Abstell- oder Technikraum als Innenraum in einem der oberen Geschosse? So muss für Keller und Technikraum das Fundament größer werden, was kostet. Die Diele kann kleiner sein. Das Eltern-SZ geht zur Straße? Leiser wäre es, das mit dem Ankleideraum zu tauschen.
     
  4. Annnna

    Annnna

    Dabei seit:
    30.08.2023
    Beiträge:
    23
    Zustimmungen:
    3
    Grundfläche können wir nicht verändern. Dachterrasse ist leider nötig wegen Abstandsregeln. Könnten es auch ungenutzt lassen, aber das ist irgendwie auch Verschwendung. Der seitliche "Keller" ist eigentlich nur eine verlängerte Garage, in die die Technik evtl. rein könnte und sowas wie Autoreifen, Besen etc. Würdest du dann 3.OG vorschlagen für Technik vorschlagen? Wo würdest du einen Wäscheraum planen? Wir brauchen 2 Kinderzimmer und 2 Büros bzw. 2 Kinderzimmer, 1 Doppelbüro und ein Gästezimmer.
    Die Diele soll geräumig sein. Zuerst war die Gästetoilette auf der gegenüberliegenden Seite geplant, direkt neben der Haustür mit Fenster. Dann wird der AR etwas größer, aber der große Schrank in der Diele bietet auch viel Abstellmöglichkeiten und Schuhe können direkt neben der Tür abgestellt werden und man muss nicht weiter rein laufen.
    EZ zur Straße ist okay, ist ein ruhiges Wohngebiet.
     
  5. borish

    borish

    Dabei seit:
    06.06.2020
    Beiträge:
    230
    Zustimmungen:
    37
    Fläche für einen weiteren HWR ist dann nur möglich, wenn andere Räume verkleinert werden. Können die Büros auch kleiner und die Kinderzimmer größer sein?
    upload_2023-8-30_20-9-54.png upload_2023-8-30_20-1-10.png
     

    Anhänge:

    11ant gefällt das.
  6. #6 Kriminelle, 30.08.2023
    Kriminelle

    Kriminelle

    Dabei seit:
    16.05.2013
    Beiträge:
    3.747
    Zustimmungen:
    2.073
    Beruf:
    .
    Ort:
    Niedersachsen
    Ich finde, dass er keine schlechte Arbeit abgeliefert hat.
    Lieber nicht. Die neuen Häuser sind so dicht, da ist offenes trocknen in Räumen nicht gut, außer es gibt dort Abluft.
    Habt Ihr denn den BT mal darauf angesprochen? Was sagt er dazu?
    Ältere Häuser sind wie ältere Menschen, da zieht es und zuppelt. Neue Häuser machen das nicht. Allerdings wäre es mit der Chillecke in der Hausmitte etwas gemütlicher, als wenn man ständig auf die Eingangstür schauen muss.

    Ich würde auf jeden Fall im SWW noch Fenster einplanen.
    Was ist mit den Großeltern, die über Nacht bleiben? Brauchen die Gäste nicht besser ein Notbad?
    Die beiden Büros: müssen die beide abgeschlossen sein wegen Telefonie etc. oder ginge ein Schreibtisch auf der Galerie?
     
    11ant gefällt das.
  7. Annnna

    Annnna

    Dabei seit:
    30.08.2023
    Beiträge:
    23
    Zustimmungen:
    3
    Das ist interessant, mal ne ganz neue Idee. Also ja, Büros können gerne kleiner sein, es sollte halt noch irgendwie als Gästezimmer genutzt werden können. Wovor ich bisschen Angst habe, ist, dass es ganz oben im Sommer zu heiß zum Schlafen ist. Kinder/Jugendliche stört das ja meistens weniger, uns mittlerweile schon. Wir wohnen gerade im 3.OG (von insgesamt 4 Stöcken) eines gut gedämmten Hauses und im Sommer kriegt man die Wärme einfach nicht mehr raus. Wenn wir das Treppenhaus runter laufen wird es gefühlt pro Stock 2 Graf kälter
    Wir wollten auch mal Ankleide und Bad tauschen, das wäre dann angeblich wegen den Leitungen problematisch. Wie ist das hier mit dem HWR?
     
  8. Annnna

    Annnna

    Dabei seit:
    30.08.2023
    Beiträge:
    23
    Zustimmungen:
    3
    Der BT und Architekt sind teilweise etwas eigensinnig. Außerdem läuft die Kommunikation hauptsächlich per Email. Hatte erwartet man sitzt mit dem Architekt live vorm PC zum Planen.

    Zu den Großeltern: I.d.R. bleiben sie nur eine Nacht, vllt 2 und duschen dann eher zuhause. Eine Toilette wäre sicherlich gut mit normalem Waschbecken wo man auch die Zahnbürste hinstellen kann.

    Zu den Büros: Wir möchten schon vom restlichen Geschehen im Haus die Tür zumachen können. Wir haben auch regelmäßig Telefonate. Momentan arbeiten wir in einem Büro zusammen und einer geht an Esstisch, wenn beide viel reden müssen. Das möchten wir jetzt eigentlich ändern.

    Ist SWW = Südwestwand? Im 1.OG denk ich auch. Im EG wollten wir auch eine Wand zum Bilder aufhängen oder vielleicht passt doch sogar noch eine Kommode hin. Zuviele Fenster machen es auch heiß im Sommer, oder? Und der Ausblick ist die Garage einer älteren Nachbarin. Das könnte auch in den nächsten 10Jahren zur Baustelle werden.
     
  9. #9 motorradsilke, 31.08.2023
    motorradsilke

    motorradsilke

    Dabei seit:
    17.07.2022
    Beiträge:
    40
    Zustimmungen:
    34
    Versucht unbedingt Küche und Wohnzimmer zu tauschen. So habt ihr es nie ruhig und gemütlich im WZ. Die Kids kommen mit Besuch, die müssen in die Küche, und das später auch abends.
    Wenn nicht möglich, würde ich eine Wand zwischen WZ und Treppe einziehen (lassen). Und ich bin sonst ein Vertreter offener Räume, wir haben auch keine Tür zum Allraum. Aber bei uns kommt man erst in die Küche, dann ins WZ.
     
    11ant gefällt das.
  10. borish

    borish

    Dabei seit:
    06.06.2020
    Beiträge:
    230
    Zustimmungen:
    37
    Die Lage der Abwasserleitungen ist aus dem Plan nicht ersichtlich. Liegt die Küche an der Ostwand? Dann kann man vom HWR im OG ein DN 50 Rohr nach unten führen und an die Entwässerung der Küche anschließen. Außerdem braucht der Raum eine Abluftleitung.

    Wenn das Haus massiv mit Flachdach gebaut werden soll, ist auch die oberste Decke aus Beton. Das kühlt im Sommer. Mit Dach-Begrünung hält es noch mehr Hitze ab, braucht aber mehr Bewehrung wegen der höheren Lasten. Die KWL sollte einen Erdwärmetauscher haben, dann ist die Zuluft im Sommer etwas kälter. Die Dachterrasse kann auch noch eine Markise bekommen, um mehr Schatten zu erzeugen, oder ihr begrünt die Westfassade mit Kletterpflanzen. Das Problem ist lösbar.

    Ich habe noch nicht verstanden, warum wegen der Abstandsregeln eine Dachterrasse nötig ist. Die kostet viel Geld und wenn man im Garten sitzen kann, ist sie nicht nötig.
     
    11ant gefällt das.
  11. #11 VollNormal, 31.08.2023
    VollNormal

    VollNormal

    Dabei seit:
    20.11.2021
    Beiträge:
    4.202
    Zustimmungen:
    2.830
    Beruf:
    Bauingenieur
    Ort:
    Bochum
    Weil die Wandhöhe in die Berechnung des Abstands eingeht. Ist die Wand zu hoch, was hier anscheinend der Fall ist, muss sie entsprechend zurück gesetzt werden. Und damit nicht das ganze Haus zu schmal wird, erfolgt der Versatz nur im 2. OG. Die dadurch entstehende Dachfläche über dem 1. OG muss nicht als Balkon genutzt werden, kann aber in diesem Fall wohl.
     
    11ant und Annnna gefällt das.
  12. Annnna

    Annnna

    Dabei seit:
    30.08.2023
    Beiträge:
    23
    Zustimmungen:
    3
    Am Anfang war das auch so geplant. Wir haben darin zuviele Nachteile gesehen und konnten diese nicht richtig lösen:
    1. Durch verlängerte Garage, kein Fenster direkt in der Küche
    2. Reicht Küchengröße wenn AR im EG ggf nicht nur als Speisekammer dient? Wäre so wie unsere Küche jetzt und eigentlich fehlt uns etwas Platz.
    3. Wohnzimmer mit 5m Abstand zum Fernseher fast zu groß bzw "tote" Ecke hinterm Sofa. Findet sich sicherlich eine hübsche Lösung, aber wir scheinen den Platz anderswo zu brauchen.
    4. Tisch ausziehen für viele Gäste? Sofa dann wegstellen?
     
  13. Annnna

    Annnna

    Dabei seit:
    30.08.2023
    Beiträge:
    23
    Zustimmungen:
    3
    Hier noch der damalige Grundriss dazu.
     

    Anhänge:

    11ant gefällt das.
  14. #14 motorradsilke, 31.08.2023
    motorradsilke

    motorradsilke

    Dabei seit:
    17.07.2022
    Beiträge:
    40
    Zustimmungen:
    34
     

    Anhänge:

    borish gefällt das.
  15. #15 motorradsilke, 31.08.2023
    motorradsilke

    motorradsilke

    Dabei seit:
    17.07.2022
    Beiträge:
    40
    Zustimmungen:
    34
    Irgendwie hat das grad nicht richtig geklappt mit dem Beitrag.

    Ich würde es in etwa so machen wie auf meiner Skizze.
    Mir wäre auf jeden Fall ein gemütliches WZ wichtiger als Abstellraum. Denk mal, wenn die Kids Teenis sind und mit Freunden in der Nacht oder spätabends immer wieder da langlaufen.
    Unabhängig von Kids wäre mir das WZ da in der Mitte aber auch so ungemütlich.
     
    Oehmi und 11ant gefällt das.
  16. Annnna

    Annnna

    Dabei seit:
    30.08.2023
    Beiträge:
    23
    Zustimmungen:
    3
    Ich verstehe deinen Punkt. Hast du den alten Grundriss in meiner separaten Antwort gesehen? So wie du es gezeichnet hast haben wir keine 3m Abstand zum Fernseher. Das haben wir jetzt und ist ok, aber unser Fernseher ist auch eher klein. Evtl müsste man es drehen, Fernseher an die Wand zur Treppe. Nur steht dann das Sofa vor dem Fenster und es spiegelt...puhh... Mir schwirrt der Kopf
     
  17. borish

    borish

    Dabei seit:
    06.06.2020
    Beiträge:
    230
    Zustimmungen:
    37
    Ich würde auch noch mal darüber nachdenken, ob das WoZi so groß sein muss. Fast 50 m² WoZi, aber kein Platz, um die Wäsche aufzuhängen - das passt nicht zusammen. Der alte Grundriss für das EG mit der Verbesserung von Silke gefällt mir besser als der aktuelle Plan. Man kann dann auch noch einen Unterzug einbauen, das ist statisch besser und reduziert die Kosten für die Bewehrung, und große Schiebetüren einbauen.

    Ist im DG ein Flachdach vorgeschrieben?
     
    11ant gefällt das.
  18. #18 motorradsilke, 31.08.2023
    motorradsilke

    motorradsilke

    Dabei seit:
    17.07.2022
    Beiträge:
    40
    Zustimmungen:
    34
    Dann machst du die Rollläden zu, wenn du Fern siehst;). Guckt ihr denn Fern, wenn es draußen hell ist?
    Ja, ist nicht ganz einfach bei dem schmalen Haus.
    Vielleicht auch den Fernsehschrank rechts unten schräg stellen?

    Oder so wie ihr es erst hattet, das Sofa aber weiter nach planrechts und dahinter einen Schrank, Sideboard..?
     
  19. #19 motorradsilke, 31.08.2023
    motorradsilke

    motorradsilke

    Dabei seit:
    17.07.2022
    Beiträge:
    40
    Zustimmungen:
    34
    Also so
     

    Anhänge:

  20. Annnna

    Annnna

    Dabei seit:
    30.08.2023
    Beiträge:
    23
    Zustimmungen:
    3
    Zur Zeit haben wir 40 qm für WoZi, Essbereich und Küche. Es ist für uns 3 völlig ok (wenn wir eine Speisekammer hätten), aber bei Besuch von mehr als 2 Personen wird es eng. Tisch geht vielleicht für 8 Personen, aber auf unserem Ecksofa wird es zu viert schon kuschelig. Das möchte ich geräumiger. Da spar ich lieber am Büro.

    Ob Flachdach vorgeschrieben ist, weiß ich nicht. Die anderen 2 Reihenhäuser sind schon verkauft, das Bild wie sie aussehen hab ich im ersten Post angehängt. Ein Satteldach kann ich mir z.B. optisch gar nicht vorstellen. Hast du eine spezielle Idee oder geht's ums Kühlen?
     
Thema:

Grundriss - eure Meinung

Die Seite wird geladen...

Grundriss - eure Meinung - Ähnliche Themen

  1. 3 Grundrisse - Bitte um Meinungen

    3 Grundrisse - Bitte um Meinungen: Ich würde hiermit gerne eure Meinung zu diesen drei Grundrissen erfragen - Grundriss 1 und 2 berücksichtigen eine spätere Familienplanung, Plan 3...
  2. Grundriss Einfamilienhaus - Eure Meinung?

    Grundriss Einfamilienhaus - Eure Meinung?: Guten Tag , ich plan gerade mein Hause . Ich brauche bitte eure Meinung .Erdgeschoss ist tiefer als die Straße . Ich werde der Eingang von EG...
  3. Grundriss Flachdach über 300qm / bitte um Meinung

    Grundriss Flachdach über 300qm / bitte um Meinung: 1. Wir sind: 2 Erwachsene Mitte 30, 2 Kleinkinder keine Beeinträchtigungen 2. Unser Raumprogramm: wir wünschen uns einen offenen...
  4. Grundriss / eure Meinung

    Grundriss / eure Meinung: 1. Wir sind: 2 Erwachsene Mitte 30, geplant 2 Kinder keine Beeinträchtigungen 2. Unser Raumprogramm: wir wünschen uns einen offenen...
  5. Satteldachhaus - Grundriss und Ausrichtung: Eure Meinung

    Satteldachhaus - Grundriss und Ausrichtung: Eure Meinung: 1. Wir sind: 2 Erwachsene (30 Jahre). Keine Kinder geplant 2. Unser Raumprogramm: - Wohn/Essbereich - separate abgetrennte Küche - Schlafzimmer -...