Grundriss Flachdach / 275qm mit Luftraum

Diskutiere Grundriss Flachdach / 275qm mit Luftraum im Architektur Allgemein Forum im Bereich Architektur; 1. Wir sind: 2 Erwachsene Mitte 30, 2 Kleinkinder keine Beeinträchtigungen 2. Unser Raumprogramm: wir wünschen uns einen offenen...

  1. #1 Gast789654123, 14.08.2023
    Gast789654123

    Gast789654123

    Dabei seit:
    19.06.2023
    Beiträge:
    7
    Zustimmungen:
    0
    1. Wir sind:
    2 Erwachsene Mitte 30, 2 Kleinkinder
    keine Beeinträchtigungen

    2. Unser Raumprogramm:
    wir wünschen uns einen offenen Wohn-Ess-Bereich. Saunabereich mit Zugang zum Garten
    Ankleide am Schlafzimmer
    Büro wird im Gästezimmer untergebracht
    Im OG separater Elternbereich
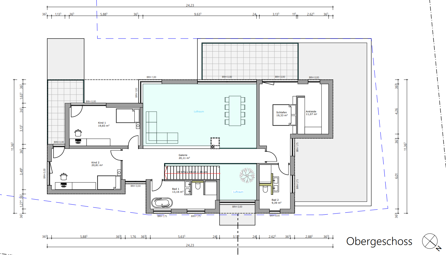
    Luftraum

    3. Welchen Hausstil bevorzugen wir?
    Flachdach
    Große Fensterflächen zum Garten

    4. Zusatzwünsche/Features
    Luftraum Essbereich + Wohnzimmer
    Galerie/Luftraum am Eingang
    Holz-Kamin am Wohnzimmer

    5. Bebauungsplan/Einschränkungen
    Grösse des Grundstücks 1500 qm
    kein Hang
    GRZ 0,4
    2 Vollgeschosse erlaubt

    6. weitere Wünsche/Besonderheiten/Tagesablauf

    7. angedachte Haustechnik
    Lüftung
    PV mit Speicher

    8. Hausentwurf
    Architekt

    9. Preisschätzung lt. Architekt/Planer
    700K

    Was ist die wichtigste Frage zum Grundriss:
    Was fällt euch negativ oder positiv auf? Sollte man bestimmte Räume verkleinern bzw. andere vergrössern?
    Wir sind nicht sicher, ob der Luftraum wie aktuell geplant sinnvoll ist bzw. wie es da mit der Akustik aussieht. Aktuell ist der Luftraum über dem Wohn- und Essbereich. Sollten wir den Luftraum vielleicht nur auf den Essbereich begrenzen?
    Ich mache mir Sorgen, dass es zu sehr nach Konzerthalle wirkt und ungemütlich wird mit so einem grossen Luftraum.

    Lieben Dank vorab für die Konstruktiven Ideen.
     

    Anhänge:

    • Aussen.png
      Aussen.png
      Dateigröße:
      156,3 KB
      Aufrufe:
      545
    • EG.png
      EG.png
      Dateigröße:
      276,2 KB
      Aufrufe:
      614
    • OG.png
      OG.png
      Dateigröße:
      141,5 KB
      Aufrufe:
      525
  2. #2 Holzhaus61, 14.08.2023
    Holzhaus61

    Holzhaus61

    Dabei seit:
    10.04.2023
    Beiträge:
    1.334
    Zustimmungen:
    586
    Bei 300 qm war man sich einig, daß Du mit 800 k€ nicht hinkommst.

    Jetzt sinds 25 qm weniger und soll 100 k€ günstiger sein. Der qm also für 4.000 Euro. 275 qm * 4.000 sind?...
     
    11ant gefällt das.
  3. #3 nordanney, 14.08.2023
    nordanney

    nordanney

    Dabei seit:
    15.09.2021
    Beiträge:
    6.331
    Zustimmungen:
    3.652
    Beruf:
    Finanzierer/Investor/Bau- und Sanierungslaie
    Ort:
    Niederrhein
    Doppel LOL.

    Wenn ich die Ansichten schon sehe und dann die Schätzung mit T€ 700k...

    Was meint der Archi mit der Kostenschätzung? Ausschließlich KG 300/400 und zwar netto?

    Und auch bei diesem Grundriss werde ich nichts beitragen können. Stehe aber gerne für die Themen zur Verfügung, wenn die Ausschreibungen durch sind und Du ne halbe Mio. € Nachfinanzierungsbedarf hast.
     
    11ant gefällt das.
  4. #4 simon84, 14.08.2023
    simon84

    simon84
    Moderator

    Dabei seit:
    11.11.2012
    Beiträge:
    23.279
    Zustimmungen:
    6.917
    Beruf:
    Schrauber
    Ort:
    Muenchen
    120-150qm bauen ! Dann passt auch das Budget
     
    11ant gefällt das.
  5. #5 Kriminelle, 14.08.2023
    Zuletzt bearbeitet: 14.08.2023
    Kriminelle

    Kriminelle

    Dabei seit:
    16.05.2013
    Beiträge:
    3.747
    Zustimmungen:
    2.075
    Beruf:
    .
    Ort:
    Niedersachsen
    Was mich neugierig macht: warum soll man vom Sofa aus in die Sauna schauen können?

    wäre wohl besser

    Die Sorgen sind hingehend der Konzerthalle berechtigt. Gemütlich wird es auf keinem Fall.
    Allerdings gibt es so "viel" Haus eh nicht für

    Dafür bekommst Du ca. 150qm in diesem aufwändigen Hausstil oder 190qm in modernem oder aber soliderem Hausstil (zB den Standard "Bauhaus"stil) oder tatsächlich die 270qm von Danwood (inkl. Bodenplatte etc). Alles Pi mal Daumen.

    Es bringt nur Verworrenheit, wenn da ein Planer rangeht mit wahrscheinlich einer Berechnung von Anno dazumal, wo man damals, als die "Lufträume" noch etwas ganz anderes waren, herausgerechnet hat. Hier sind sie anscheinend sogar von der Bausumme subtrahiert worden.
    Schon allein die Außenanlage im Gartenbereich mit üppiger Bepflasterung und Betonbügel am Haus geht über die 100000€.

    Ich komme in diesem Beispiel auf so ca. 180qm ohne OG und ohne Garage.
    Ich rate Dir dringend, mal die heutigen Baupreise anzuschauen.
    Ich frage mich auch, ob Du uns verulken willst, der Architekt Dich oder Du Dich selbst. Willkommen in der Welt!

    Hier mal ein Beispielohne Bodenplatte:
    Vision 225: VISION by Danwood
     
    11ant gefällt das.
  6. 11ant

    11ant

    Dabei seit:
    28.02.2017
    Beiträge:
    2.501
    Zustimmungen:
    1.578
    Beruf:
    Bauherrenberater
    Ort:
    RLP Nord
    Benutzertitelzusatz:
    bringt Sie gut beraten ins Eigenheim
    Die Kinder müssen sich einen Raucherbalkon teilen und der Gang nach Canossa über die Brücke zu den Eltern hat so viel Fläche wie jedes ihrer Zimmer. Der Hausentwurf wirkt, als habet Ihr eine Überdosis Hochglanz-Architekturzeitschriften (der 90er Jahre) gelesen. Beim Budget stimmt entweder die Zahl oder die Währung nicht. Oder es ist die Honorarsumme von Architekt, Statiker und Energieberater gemeint.
     
  7. #7 Fasanenhof, 15.08.2023
    Fasanenhof

    Fasanenhof

    Dabei seit:
    20.02.2023
    Beiträge:
    1.455
    Zustimmungen:
    814
    Beruf:
    Ing für Maschinenbau
    Ort:
    Norddeutschland
    Uff, dieses futuristische Legoblock-Design muss man aber auch schön finden wollen.

    Unabhängig von Kosten, Raumaufteilung und den ganzen Sachen, die hier angesprochen werden... dein Haus steht für mich im Design irgendwo zwischen Tankstelle und Tesla-Store aus. Sicherlich ein schönes Set für Filme und Serien... aber ob da ein behagliches, wohnliches Ambiente entsteht?

    Aber gut, mit etwas Glück verhindert ja das Budget, dass du diesen "Traum" umsetzt und deine Nachbarn müssen nicht damit leben.
     
    11ant gefällt das.
  8. artibi

    artibi

    Dabei seit:
    08.02.2014
    Beiträge:
    1.398
    Zustimmungen:
    513
    Beruf:
    ITler
    Ort:
    Ludwigsburg
    Selbst bei einfacher Bauweise und Ausstattung passt das Budget nicht. Aber dieser „Prachtbunker“ mit den Ansichten..eher Budget x 2
     
    11ant gefällt das.
  9. #9 Gast789654123, 15.08.2023
    Gast789654123

    Gast789654123

    Dabei seit:
    19.06.2023
    Beiträge:
    7
    Zustimmungen:
    0
    Ich danke euch natürlich, dass die meisten sich hier Sorgen um meine Finanzen machen, jedoch war die Klärung der Baukosten nicht der zentrale Punkt dieses Threads.
    Da sich fast alle Kritikpunkte ausschließlich auf die Finanzen und nicht die Konzeption der Räume beziehen, gehe ich davon aus, dass der Entwurf keine gravierenden Mängel aufweist.

    Das einzig konstruktive, was ich bisher mitnehmen kann, ist, der zu große Luftraum der ungemütlich wirkt.

    Eigentlich hätte ich von einem „Bauexpertenforum“ erwartet, zielführende Antworten zu erhalten, wie zum Beispiel:
    • Überdachung vor der Sauna länger ziehen, so dass diese bis zur Terassentür ragt
    • Sichtschutz Südseite an den Saunaliegen anbringen / Wand ziehen / Holzpaneele etc.
    • Garderode am Eingang umgestalten
    • Wäscheschacht von oberen Bad zum HWR im EG
    • Akustik im Haus verbessern; mit folgenden Elementen…
    • Fenster unnötig im Vorratsraum
    Hoffe Ihr versteht worauf ich hinaus möchte…

    Daher nochmal die große Bitte an die Experten hier: Könnt Ihr mir zu diesem Projekt kompetente Tipps geben, was verändert werden sollte?

    Ich freue mich auf eure konstruktiven Beiträge.
     
  10. #10 nordanney, 15.08.2023
    nordanney

    nordanney

    Dabei seit:
    15.09.2021
    Beiträge:
    6.331
    Zustimmungen:
    3.652
    Beruf:
    Finanzierer/Investor/Bau- und Sanierungslaie
    Ort:
    Niederrhein
    Hier findest Du eher Bau- als Grundrissexperten. Kann Dir dazu eher das hausbau-forum empfehlen, da dort die Grundrisse deutlich mehr "zerpflückt" werden als hier. Allerdings auch dort wird Dir jeder sagen, dass die Grundrissdiskussion zwar interessant ist, aber trotzdem sinnbefreit, da Du dann zwar einen vielleicht schöneren Grundriss bekommst, das Haus mangels Kohle aber trotzdem nicht bauen wirst.

    Insofern finde ich es deutlich zielführender, wenn Du uns zuerst mal die Sorgen zum Budget nehmen könntest. In meinem Job sehe ich viele Baupreise, auch für Luxus, die alle weit weg von Deiner Architektenschätzung liegen. Mit weit weg meine ich mindestens 1.000€ den qm mehr - nur für 300/400 Kosten.
    - was ist in den T€ 700 des Architekten enthalten
    - Preisschätzung netto oder brutto

    Denn bei dieser Architektur (ich stehe da ja drauf, aber das Haus gehört an einen Hang), den Glasflächen als auch der Ausstattung sind Baukosten von 2.550€/qm aktuell absolut unrealistisch. Das ist so, als würdest Du die gut ausgestattete S-Klasse als Neuwagen diskutieren, aber nur T€ 50 als Kaufpreisschätzung zugrunde legen.
     
    11ant, simon84 und VollNormal gefällt das.
  11. #11 Fasanenhof, 15.08.2023
    Zuletzt bearbeitet: 15.08.2023
    Fasanenhof

    Fasanenhof

    Dabei seit:
    20.02.2023
    Beiträge:
    1.455
    Zustimmungen:
    814
    Beruf:
    Ing für Maschinenbau
    Ort:
    Norddeutschland
    Wenn du schon so fragst:
    Für mich ist die Aufteilung der Dachflächen/Balkone wenig intuitiv. es werden kleine Balkone geschaffen, welche sich anhand der Dachfläche darüber orientieren.

    Dabei sind doch genau solche Dachflächen ein wertvoller Raum zur Entfaltung, wenn man sie nutzen kann.

    - Im Bezug auf die Raumaufteilung fehlt mir ein Lagerraum, welcher bei 4 Personen und entsprechend diverser Freizeitbeschäftigung sicherlich erforderlich wird.
    EDIT: Mir fällt auf, dass ein 15m² Lagerraum hinter der Garage verfügbar ist. Sofern es einen externen (E)Fahrradstellplatz gibt, könnte das reichen.
    - Im Bezug auf das Arbeitszimmer frage ich mich, ob die Nähe zum Wellnessbereich psychologisch sinnvoll ist. Man sollte produktive Bereiche (Arbeit/Küche/HWR) zusammen legen, nicht produktive/aktive Bereiche mit punkten der Entspannung. Du willst nicht an deiner Arbeit vorbei laufen, während du dich auf die Sauna freust, du willst nicht über den nächsten Aufguss nachdenken, während sich die Arbeit stapelt.
    - Im Bezug auf Kind1 frage ich mich, ob die Sauna nicht ungünstig Wärme in das Kinderzimmer pumpt...

    Und ja, Lufträume sind Luftträume. Insbesondere mit der Küche und Grillnische können sich da komische Sachen entwickeln, die du nicht willst.
     
    11ant gefällt das.
  12. 11ant

    11ant

    Dabei seit:
    28.02.2017
    Beiträge:
    2.501
    Zustimmungen:
    1.578
    Beruf:
    Bauherrenberater
    Ort:
    RLP Nord
    Benutzertitelzusatz:
    bringt Sie gut beraten ins Eigenheim
    Nein, es geht wohl eher um das Statement: wir sind hier der Babo in der Straße, das ästhetische Empfinden unser armen Nachbarn kann uns mal am LVMH lecken.

    So lange die bescheidene Hütte von @rick2018 im orangen Forum noch zu sehen ist, kann sich der TE auf jeden Fall einjustieren ;-)

    Wir machen uns höchstens Sorgen, daß Mitleser glauben könnten, 700k reichten schon, um sich eine ärmliche Bauernkate auf´s Grundstück zu klotzen, die den Dom in seine Schranken weist.

    Mit dem Wäscheschacht willst Du andeuten, man spare am Personal ? - daß die Zimmer für das Au-pair und die Nanny fehlen, ist offensichtlich.
     
  13. #13 Fasanenhof, 15.08.2023
    Fasanenhof

    Fasanenhof

    Dabei seit:
    20.02.2023
    Beiträge:
    1.455
    Zustimmungen:
    814
    Beruf:
    Ing für Maschinenbau
    Ort:
    Norddeutschland
    Die Wunschliste/Ideenliste ist allenfalls unterhaltsames Kleinklein.
    Es ist schon faszinierend, dass hier das Konzept und die Projektplanung so auf generelle Kritik prallt, der Planer aber mental Details diskutieren will.

    Aber meinetwegen...

    Überdachung vor der Sauna länger ziehen, so dass diese bis zur Terassentür ragt
    -> Das ist eine Designfrage. Sie würde das angestrebte Design stark brechen, welches ja gerade dadurch besticht, dass keine Form sauber zusammen passt. Das Haus ist eine "Explosionszeichnung"... wenn man hier Formen sauber zusammen führt, geht das verloren.

    Sichtschutz Südseite an den Saunaliegen anbringen / Wand ziehen / Holzpaneele etc
    -> Außenanlagen sind nicht Teil der vorgestellten Planung, zumal das Gelände und die Nachbarschaft unbekannt sind. Hier kann man nichts empfehlen

    Garderode am Eingang umgestalten
    -> Die Garderobe ist groß genug um in Berlin 2-3 Studenten einziehen zu lassen. Gestaltung (Möbel) überlassen wir den Herren des Hauses oder Schreiner deines Vertrauens

    Wäscheschacht von oberen Bad zum HWR im EG
    -> Für einen Wäscheweg über eine gerade Treppe sollte man keinen Schacht einbauen. Das ist mehr was für Mehrstöckige Gebäude mit Service (Hotels)

    Akustik im Haus verbessern; mit folgenden Elementen…
    -> Die Akustik ist beschissen, weil der Luftraum jeden Schall aus der Wohnzone und Küche in die Schlafzone überträgt. Da kann man wenig verbessern.
    -> Die Erfindung der "Tür" könnte dir beim Wohnzimmer helfen. Leider ist diese Technologie nicht verfügbar.

    Fenster unnötig im Vorratsraum
    -> Nein, da hier sowieso kein Schrank gestellt werden kann (Tür, verbleibende Fläche)



    Also Hand aufs Herz... von was genau reden wir hier eigentlich?
     
    Kriminelle und 11ant gefällt das.
  14. #14 Kriminelle, 15.08.2023
    Kriminelle

    Kriminelle

    Dabei seit:
    16.05.2013
    Beiträge:
    3.747
    Zustimmungen:
    2.075
    Beruf:
    .
    Ort:
    Niedersachsen
    Ich hoffe, Du auch. Es ist nämlich total langweilig, sinnbefreit und zeitfressend, Ratschläge zu einem Projekt zu geben, der SO eben nicht mit dem Budget gebaut werden kann.
    … gebe ich gerne.. ich plane auch gerne, das hat aber immer Bezug zum Budget. Jemand, der ne Mille ausgeben kann, wird mit einem T&C-Haus von der Stange nicht glücklich.
    Und jemand, der 700000€ zur Verfügung hat, aber überdimensionale Luftschlösser baut, die völlig aus der Form und neben des Budgets laufen, sind in meinen Augen Zeitverschwendung. Für mich gehört das zur Sparte Spielerei.
    Schau: schon allein die zusätzlich aufwändige Dämmung, Pfosten und Überdachungen sowie die aufwändige Statik hat einen Wert von ca. einem kleinen Standard-EFH.

    Spiel Du mit offenen Karten, dann spielt auch ein Fachforum konstruktiv mit.
     
    11ant gefällt das.
  15. #15 Jo Bauherr, 15.08.2023
    Jo Bauherr

    Jo Bauherr

    Dabei seit:
    19.06.2018
    Beiträge:
    1.046
    Zustimmungen:
    511
    Beruf:
    (Ex)-Vermieter
    Ort:
    Randberlin
    Also ich finde den Entwurf schon ziemlich gut durchgeplant - JA!=Teuer. ABER es es scheint zumindest die Bauherrenwünsche perfekt zu realisieren!
    Optimierung aus meiner bescheidenen Sicht: Wenn man den Eingangsbereich mittels der "Tür-Erfindung" irgendwie vom Resthaus trennt (Kälteschleuse) und auch dann noch die Garage um min. einen Meter verlängern kann (eine '0815'-Limo hat heute schon 5 Meter!) - dann fände ich es wirklich durchaus nett dort zu wohnen ... +
     
    jodler2014 gefällt das.
  16. #16 jodler2014, 16.08.2023
    jodler2014

    jodler2014

    Dabei seit:
    20.12.2014
    Beiträge:
    3.907
    Zustimmungen:
    542
    Beruf:
    Angestellter
    Ort:
    RP
    Volle Zustimmung an Kriminelle!
    Bei dem Budget sollte es doch von Bauherrenseite möglich sein ein echtes Architektenhonorar bezahlen zu können.
    Bei so einem Grundriss brauche in einen Überblick vom Grundstück und Nachbarbebauung...
     
    11ant gefällt das.
  17. #17 jodler2014, 16.08.2023
    jodler2014

    jodler2014

    Dabei seit:
    20.12.2014
    Beiträge:
    3.907
    Zustimmungen:
    542
    Beruf:
    Angestellter
    Ort:
    RP
    Zur Fassade: Die vielen freiliegenden Bauteile , Vorsprünge, Pfeiler sehen nur frisch gestrichen gut aus.
    Nach zwei, drei .. fünf Jahren der Bewitterung wahrscheinlich nicht mehr.
    Das sollte man einkalkulieren .
     
  18. #18 Fasanenhof, 17.08.2023
    Fasanenhof

    Fasanenhof

    Dabei seit:
    20.02.2023
    Beiträge:
    1.455
    Zustimmungen:
    814
    Beruf:
    Ing für Maschinenbau
    Ort:
    Norddeutschland
    Ein gezielter Rankenbewuchs kann so eine moderne Form auch sehr schön aufbrechen. ein bisschen "Die Natur erobert es sich zurück" Ambiente.
    [​IMG]
     
    simon84 gefällt das.
  19. 11ant

    11ant

    Dabei seit:
    28.02.2017
    Beiträge:
    2.501
    Zustimmungen:
    1.578
    Beruf:
    Bauherrenberater
    Ort:
    RLP Nord
    Benutzertitelzusatz:
    bringt Sie gut beraten ins Eigenheim
    Ein schönes Idealbild - in der Realität hängen da Fanshirts zum Trocknen, und jede Menge Satschüsseln.
     
    simon84 gefällt das.
  20. #20 Fasanenhof, 18.08.2023
    Fasanenhof

    Fasanenhof

    Dabei seit:
    20.02.2023
    Beiträge:
    1.455
    Zustimmungen:
    814
    Beruf:
    Ing für Maschinenbau
    Ort:
    Norddeutschland
    Sat-Schüsseln sind nunmal ein Millieuproblem bei günstigem Wohnraum und Bewohnern mit der Präferenz auf nicht verfügbare Fernsehsender. Um mich mal neutral auszudrücken. Aber naja, die Präferenz für Schüsseln geht dank Streaming ja zurück.

    Es geht mir ums Prinzip, wie moderne Formen und organisches/wohnliches Ambiente zusammen geführt werden kann.

    ABER:
    Wer sich den sauberen, kantigen weißen Würfel plant, der hat keine organische Ästhetik im Hinterkopf.
     
Thema:

Grundriss Flachdach / 275qm mit Luftraum

Die Seite wird geladen...

Grundriss Flachdach / 275qm mit Luftraum - Ähnliche Themen

  1. Grundriss 8x10m Flachdach Reihenendhaus

    Grundriss 8x10m Flachdach Reihenendhaus: Hi zusammen! 1. Wir sind: Wir sind aktuell zu 4, ggf. irgendwann 5 oder auch nicht. :) 2 Erwachsene mitte 30 und 2 Kinder 3 und 0 Jahre. 2....
  2. Grundriss Flachdach über 300qm / bitte um Meinung

    Grundriss Flachdach über 300qm / bitte um Meinung: 1. Wir sind: 2 Erwachsene Mitte 30, 2 Kleinkinder keine Beeinträchtigungen 2. Unser Raumprogramm: wir wünschen uns einen offenen...
  3. Eure Meinung zum Grundriss EFH Flachdach

    Eure Meinung zum Grundriss EFH Flachdach: Hallo liebe Bauexperten, mich würden eure Meinungen/Anregungen/Kommentare zu folgendem Grundriss interessieren. Zu den Rahmenbedingungen:...
  4. Bitte um Feedback zu Grundriss 150m2 EFH Flachdach

    Bitte um Feedback zu Grundriss 150m2 EFH Flachdach: Meine Verehrung alle miteinander! Wir sind grade dabei unser Haus zu planen. Wir haben schon mehrere Variaten durchgespielt und jetzt würde uns...
  5. Grundriss zur Diskussion-150 m² EFH mit KG und Flachdach

    Grundriss zur Diskussion-150 m² EFH mit KG und Flachdach: Hallo Zusammen! Erst einmal ein großes Lob an dieses Forum. Ich habe bereits vieles nützliches hier lesen können! Wir wollen demnächst ein...