Grundriss, längliches EFH, integrierte Garage ja/nein, kein Keller

Diskutiere Grundriss, längliches EFH, integrierte Garage ja/nein, kein Keller im Architektur Allgemein Forum im Bereich Architektur; Hallo zusammen, bei uns stehen derzeit die Grundrissplanungen an. Mit folgenden Vorgaben sind wir an einen GU herangetreten: Außenmaße ca....

  1. #1 onyxdop, 23.07.2017
    onyxdop

    onyxdop

    Dabei seit:
    14.02.2016
    Beiträge:
    6
    Zustimmungen:
    0
    Beruf:
    Projektmanager
    Ort:
    Bayern
    Hallo zusammen,

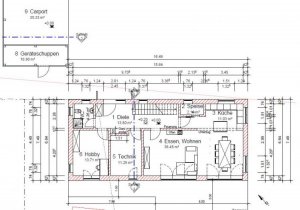
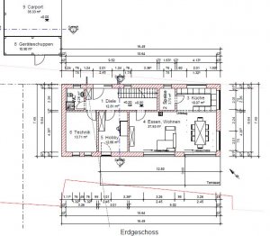
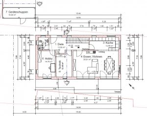
    bei uns stehen derzeit die Grundrissplanungen an. Mit folgenden Vorgaben sind wir an einen GU herangetreten:

    • Außenmaße ca. 18,0 x 7,5m, Massiv mit 42,5cm Ziegel
    • Raumprogramm EG: Eingangsbereich, Garderobe, Technik/Lager, WC inkl. Dusche, gerade Treppe, Speisekammer, Wohnen/Essen/Kueche (Kueche nordseitig mit Blick auf Einfahrt), (Garage)
    • Raumprogramm OG: 3 SZ, Bad, HRW + Hobby
    • Zwei Vollgeschosse, DG mit 45°

    Mittlerweile haben wir die angehaengten beiden Grundrisse zurueck: einmal mit integrierter Garage, einmal ohne (dafuer mit zusaetzlichem Carport). Ueber Feedback wuerde ich mich freuen.

    Viele Gruesse.
     

    Anhänge:

    • OG2.JPG
      OG2.JPG
      Dateigröße:
      68 KB
      Aufrufe:
      7.133
    • OG1.jpg
      OG1.jpg
      Dateigröße:
      62 KB
      Aufrufe:
      4.489
    • EG2.JPG
      EG2.JPG
      Dateigröße:
      75,9 KB
      Aufrufe:
      3.133
    • EG1.jpg
      EG1.jpg
      Dateigröße:
      65,3 KB
      Aufrufe:
      4.511
  2. #2 driver55, 24.07.2017
    driver55

    driver55

    Dabei seit:
    22.02.2008
    Beiträge:
    6.840
    Zustimmungen:
    1.782
    Beruf:
    Dipl.-Ing.
    Ort:
    Pforzheim
    Auf die Schnelle...

    Die Entscheidung, ob Garage im Haus oder Carport kann euch hier niemand abnehmen...

    Aber, einmal Wohnen mit 4,2 m Breite ist grenzwertig und einmal 3,7 m - geht garnicht. Ist dann eher Fernsehecke statt Wohnzimmer...

    Mehr später...
     
  3. #3 driver55, 24.07.2017
    driver55

    driver55

    Dabei seit:
    22.02.2008
    Beiträge:
    6.840
    Zustimmungen:
    1.782
    Beruf:
    Dipl.-Ing.
    Ort:
    Pforzheim
    Die Maße sind natürlich suboptimal. Weshalb 7,5 m? Gibt das Grundstück nicht mehr her? Wenn ich mir bei EG2 die Position des Carports ansehe, müsste doch Platz sein.
    Und 28-30 m² Flur sind eindeutig zu viel bei 35-38m² Wohnen/Essen.
     
  4. #4 onyxdop, 24.07.2017
    onyxdop

    onyxdop

    Dabei seit:
    14.02.2016
    Beiträge:
    6
    Zustimmungen:
    0
    Beruf:
    Projektmanager
    Ort:
    Bayern
    Hallo driver55,

    Hintergrund fuer die eher laengliche Form ist die Naehe zu einem Baudenkmal. 18,5m oder 16,5m oder 7,5m sind nicht in Stein gemeiselt und noch variabel, solange die Gesamtform "laenglich" ist. Grundsaetzlich wirkt fuer mich das Verhaeltnis von 18 x 7,5m stimmig.
     
  5. #5 driver55, 25.07.2017
    driver55

    driver55

    Dabei seit:
    22.02.2008
    Beiträge:
    6.840
    Zustimmungen:
    1.782
    Beruf:
    Dipl.-Ing.
    Ort:
    Pforzheim
    Was bei diesen Maßen stimmig sein soll, bleibt wohl das Geheimnis des künftigen Bauherrn.:sleeping
     
  6. #6 onyxdop, 25.07.2017
    onyxdop

    onyxdop

    Dabei seit:
    14.02.2016
    Beiträge:
    6
    Zustimmungen:
    0
    Beruf:
    Projektmanager
    Ort:
    Bayern
    Da muss ich dir zustimmen. Hast du evtl. Input inwiefern das Bad im OG "machbarer" dargestellt werden kann? 2,76m bzw. 2,95m sind evtl. etwas knapp.

    Oder hast du Ideen wie ein Zugang zum DG moeglich ist (evtl. ueber einzelne Raumspartreppen in den KiZi?) ohne dass relativ viel Flaeche fuer den Flur im OG "verloren" geht?

    Was ist von einer Gas-BW-Therme im DG zu halten um den Technikraum im EG zu entlasten?

    Gruesse.
     
  7. #7 driver55, 26.07.2017
    driver55

    driver55

    Dabei seit:
    22.02.2008
    Beiträge:
    6.840
    Zustimmungen:
    1.782
    Beruf:
    Dipl.-Ing.
    Ort:
    Pforzheim
    Das sehe ich jetzt nicht soooo kritisch. Sind immerhin 14 m². Bei einer ordentlichen Planung kann man das schon vernünftig darstellen.


    Klar, machbar. Die Frage ist aber doch was im DG ist, bzw. gelagert wird. 5 x im Jahr wg. Weihnachts-/Oster-/Herbst-Deko nach oben oder evtl. täglich mehrfach?


    Klar, machbar. Muss halt entsprechend geplant werden (Statik).


    Das alles ist den 7,49 m geschuldet. Effektiv (innen) sogar "nur" 6,65 m. Und auf dieser Breite 2 Räume unterzubringen sind halt nun mal "Schläuche". Klar, in DHH, RHH funktioniert das auch mit 5...6 m irgendwie, aber wenn man andere Möglichkeiten hat, sollte man diese auch nutzen...

    Und bevor die Räume final geplant werden, sollte die Breite auf das maximal mögliche Maß gebracht werden.
     
  8. #8 Andybaut, 26.07.2017
    Andybaut

    Andybaut

    Dabei seit:
    02.04.2015
    Beiträge:
    5.127
    Zustimmungen:
    329
    Beruf:
    Architekt
    Ort:
    Baden-Württemberg
    Hallo,

    mir gefallen solche Grundrisse, wobei ich das Wohnzimmer wie driver auch ein wenig eng finde.
    Was ich ändern würde wäre die Badewanne. Um 90° drehen und an die linke Wand schieben. Dusche und WC weiter nach rechts.
    Hochmauern um die Wanne bis zum Wannenrand oder einen gemauerten Schrank als Abschluss.

    Momentan steht die Wanne ein bischen unglücklich am Anfang des Raums.
    Andersrum wäre es "aufgeräumter".

    Der Küchendurchgang sollte auch mit 1,20m statt jetzt 1,80m reichen. Dann hat man mehr Arbeitsfläche und es macht es
    optisch deutlich wo die Küche anfängt.
    Den Unterzug in dem Bereich....das geht gar nicht.
     
  9. #9 onyxdop, 13.08.2017
    onyxdop

    onyxdop

    Dabei seit:
    14.02.2016
    Beiträge:
    6
    Zustimmungen:
    0
    Beruf:
    Projektmanager
    Ort:
    Bayern
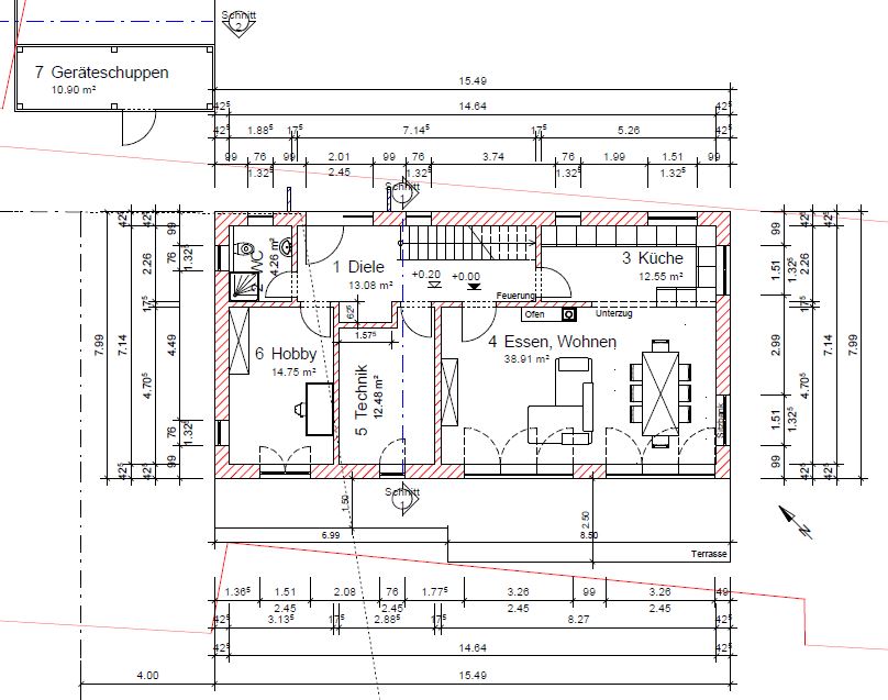
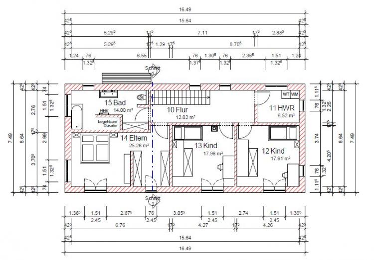
    Ein "Servus" in die Runde,

    der nächste Stand der Planung ist vorhanden. Habe nun noch die Aussenansichten angehängt.

    Was haben wir geändert:

    1) es bewegt sich in Richtung "ohne integrierte Garage", dafüer mit separatem Carport/Geräteschuppen
    2) der Bereich der Speise im EG wurde geändert, aber für uns noch nicht zufriedenstellend
    3) im OG Entfall des "senkrechten" Flurs, dafür Integration ins Eltern-SZ, welches mittlerweile echt groß ist
    4) Vergrößern/Angleichen der KiZi (durch Verkleinern des HWR)
    5) Grundriss Bad-OG, aber noch nicht 100%ig zufrieden


    Gibt es Ideen zum Bereich der Speis (oder komplett entfallen lassen und Großteil in "Technik" integrieren und Kleinteil im Staubereich unter der Treppe)?

    Wie seht ihr den Eingangsbereich von Diele ins Wohnzimmer? Gefühlt für mich noch nicht wirklich passend. Evtl. Schiebetür? Oder den Ofen in die linke obere Ecke des WZ verlegen und den Eingang in WZ/Küche zusammenlegen?

    Evtl. Ideen für die Aufteilung des OG-Bades?

    Wie "schlimm" ist der Unterzug im EG bzw. wie lässt sich dieser vermeiden?

    Viele Grüße.

    EG2_2.jpg Ansicht 1.jpg OG2_2.jpg Ansicht 2.jpg
     
  10. #10 driver55, 17.08.2017
    driver55

    driver55

    Dabei seit:
    22.02.2008
    Beiträge:
    6.840
    Zustimmungen:
    1.782
    Beruf:
    Dipl.-Ing.
    Ort:
    Pforzheim
    Da schaut man mal mehr oder weniger erholt während des Urlaubs in's Forum und will die Fortschritte begutachen...
    Hm, leider Fehlanzeige. Das EG ist (meiner Meinung nach) jetzt totaler Murks!

    Laufweg ist Diele/Wohnen/Essen und dann erst Küche. Rest schaue ich mir erst gar nicht mehr an...

    Und die 7,49 m Breite sind wohl doch fix.:cool:...obwohl man anderes kommunizierte....

    Eher "Wände schieben" statt "richtige Planung" nach Bedürfnissen/Wünschen?
     
  11. #11 onyxdop, 22.08.2017
    onyxdop

    onyxdop

    Dabei seit:
    14.02.2016
    Beiträge:
    6
    Zustimmungen:
    0
    Beruf:
    Projektmanager
    Ort:
    Bayern
    Hallo Driver,

    etwas Urlaub koennte ich wohl auch gebrauchen, evtl. wuerde ich dann verstehen, warum im neueren Entwurf der Laufweg Diele/Wohnen/Essen und dann erst Kueche ist. Kannst du dies evtl. genauer ausfuehren? :cool:

    Und auch weiterhin sind 7,49m Breite nicht fix. In welchen Bereichen speziell wuerdest du Vorteile sehen, wenn die Breite auf 7,99m erhoeht werden wuerde und gleichzeitig die Laenge auf 15,49m sinkt?

    Cheers.
     
  12. 11ant

    11ant

    Dabei seit:
    28.02.2017
    Beiträge:
    2.459
    Zustimmungen:
    1.535
    Beruf:
    Bauherrenberater
    Ort:
    RLP Nord
    Benutzertitelzusatz:
    bringt Sie gut beraten ins Eigenheim
    Ich sachma, die Proportionen würden überall einen Tick praktischer.
     
  13. #13 driver55, 23.08.2017
    driver55

    driver55

    Dabei seit:
    22.02.2008
    Beiträge:
    6.840
    Zustimmungen:
    1.782
    Beruf:
    Dipl.-Ing.
    Ort:
    Pforzheim
    Ups. In der Tat habe ich den falschen EG2-Plan angesehen....ok. Türe zur Küche vorhanden...:28:
    (Der Rest ist deshalb aber trotzdem nicht wirklich besser...)

    Und weshalb machst dann nicht eine "ordentliche" Breite daraus und präsentierst wieder den Grundriss mit 7,49 m? Ich kapier's nicht.
    Planerisch und vor allem energetisch ist ein (eher)quadratisches Haus am besten.
     
  14. #14 onyxdop, 10.09.2017
    onyxdop

    onyxdop

    Dabei seit:
    14.02.2016
    Beiträge:
    6
    Zustimmungen:
    0
    Beruf:
    Projektmanager
    Ort:
    Bayern
    Mahlzeit die Damen und Herren,

    die nächste Aktualisierung wurde gemacht. Größte Änderungen:

    • Außenmaße nun 15,5 x 8,0m
    • Entfall Speisekammer
    • Anpassung Fensterpositionierung Nordost-Seite
    • Verschieben Kamin

    @driver: inwiefern ist ein quadratischer Grundriss energetisch besser?

    Weiteres Feedback gerne gesehen.

    Grüße,
    Christoph.
     

    Anhänge:

  15. #15 driver55, 14.09.2017
    driver55

    driver55

    Dabei seit:
    22.02.2008
    Beiträge:
    6.840
    Zustimmungen:
    1.782
    Beruf:
    Dipl.-Ing.
    Ort:
    Pforzheim
    Geringste Aussenhüllefläche bei maximaler Wohnfläche...
     
Thema: Grundriss, längliches EFH, integrierte Garage ja/nein, kein Keller
Besucher kamen mit folgenden Suchen
  1. grundriss haus 7m breit

    ,
  2. grundriss längliches haus

    ,
  3. grundriss haus mit integrierter garage grundriss

    ,
  4. garage im haus integriert,
  5. doppelgarage längliches grundstück,
  6. längliche grundrisse,
  7. Efh garage integriert,
  8. grundriss garage im keller,
  9. grundriss breite 7 49
Die Seite wird geladen...

Grundriss, längliches EFH, integrierte Garage ja/nein, kein Keller - Ähnliche Themen

  1. Hilfe Grundriss Untergeschoss

    Hilfe Grundriss Untergeschoss: Ich benötige etwas Hilfe beim Grundriss für das Untergeschoss. Ich würde gerne die Eingangstür nach Süden legen, da dort die Straße ist. Außerdem...
  2. Neubau – Grundriss, Firstrichtung und Vorgehen

    Neubau – Grundriss, Firstrichtung und Vorgehen: Hallo zusammen, wir sind noch ganz am Anfang unseres Bauprojekts: das Grundstück steht fest (muss noch geteilt und umgeschrieben werden,...
  3. Grundriss EFH 150m2 (Hang, Souterrain, ELW) – Feedback zu Effizienz & Raumaufteilung

    Grundriss EFH 150m2 (Hang, Souterrain, ELW) – Feedback zu Effizienz & Raumaufteilung: Hallo liebe Bauexperten, wir planen ein Eigenheim mit ELW in Hanglage und haben uns schon zahlreiche Gedanken gemacht. Ich möchte die Chancen, die...
  4. Symbol Grundriss ca. 1875 Preußen Bitte um Erklärung

    Symbol Grundriss ca. 1875 Preußen Bitte um Erklärung: Hallo, ich habe vor einiger Zeit eine alte Försterei gekauft und suchte ewig nach Bauzeichnungen oder Grundrissen dazu. Lange Story kurz, ich...
  5. Grundriss. EFH 1 Vollgeschoss ohne Schrägen ca. 180qm

    Grundriss. EFH 1 Vollgeschoss ohne Schrägen ca. 180qm: Hi zusammen, wir sind gerade fleißig am Planen. Der Plan ist ein DIY. Habt ihr anregungen, wie man das ganze verbessern kann oder wo Probleme...