Grundriss Stadtvilla 135qm. Eure Meinungen?

Diskutiere Grundriss Stadtvilla 135qm. Eure Meinungen? im Architektur Allgemein Forum im Bereich Architektur; Hallo zusammen, ich brauche Hilfe bei unserem Grundriss. Letzte Woche war ich mir noch sicher, dass alles passt, aber je öfter ich mir den...

  1. Batsy

    Batsy

    Dabei seit:
    29.10.2018
    Beiträge:
    6
    Zustimmungen:
    1
    Hallo zusammen,
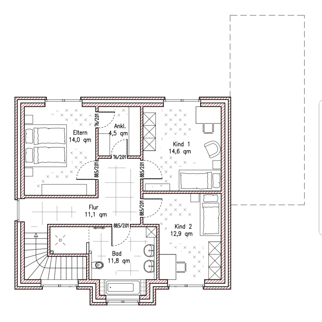
    ich brauche Hilfe bei unserem Grundriss. Letzte Woche war ich mir noch sicher, dass alles passt, aber je öfter ich mir den Grundriss anschaue, desto mehr Dinge könnte ich noch ändern. Was haltet Ihr von unserem Grundriss? Gibt's Verbesserungsvorschläge?
     

    Anhänge:

  2. #2 Lexmaul, 29.10.2018
    Lexmaul

    Lexmaul

    Dabei seit:
    15.09.2014
    Beiträge:
    8.921
    Zustimmungen:
    2.163
    Benutzertitelzusatz:
    Mimosenlecker
    Was könntest Du denn ändern?
     
  3. Batsy

    Batsy

    Dabei seit:
    29.10.2018
    Beiträge:
    6
    Zustimmungen:
    1
    Die Position der Treppe z.B.
    Eigentlich passt sie so perfekt, aber dann auch wieder irgendwie nicht (auch weiß ich nicht, ob die Fenster so passen om Treppenhaus). Dann finde ich, dass der Flur oben ziemlich viel potenziellen Wohnraum wegnimmt. Dann finde ich die Ankleide ein bisschen zu klein, ebenso den HWR im EG. Dann bin ich nicht so glücklich über die verschiedenen Türgrößen von 76cm und 88,5cm.
    Ich habe sehr viel herumprobiert, mein Architekt meint, dass der Grundriss schon sehr gut ist. Ich möchte nur von euch erfahren, ob es dennoch Verbesserungsvorschläge gibt.
     
  4. #4 Lexmaul, 29.10.2018
    Lexmaul

    Lexmaul

    Dabei seit:
    15.09.2014
    Beiträge:
    8.921
    Zustimmungen:
    2.163
    Benutzertitelzusatz:
    Mimosenlecker
    Dein Architekt ist aber kein freier, sondern Angestellter beim GU/Ü, ja?

    Naja, Du hast ein sehr kleines Haus beauftragt - find dann sowas wie eine Ankleide schon nicht mehr passend. Zumal sie kaum nutzbar wäre...
     
  5. #5 Kriminelle, 29.10.2018
    Kriminelle

    Kriminelle

    Dabei seit:
    16.05.2013
    Beiträge:
    3.707
    Zustimmungen:
    2.048
    Beruf:
    .
    Ort:
    Niedersachsen
    Mir fehlen bei solchen Fragen immer etwas Input zum Grundstück zb. was der Raumbedarf so ist.
    Es werden ja oft 2 Kizis geplant, ohne dass je ein Kind einziehen soll oder geplant ist. Dann sind die Zimmer oftmals nur Platzhalter, die man dann besser entwerfen kann, entsprechend des Bedarfes.

    Wenn wir vom klassischen Fall ausgehen, stellt sich die Frage, ob das Budget mehr WF zulässt.
    Aber auch die Raumausrichtungen wissen wir nicht. Erzählst Du uns, dass der Eingang im Süden liegt oder die Straße planoben, würde ich erwähnen: alles neu.

    Mir persönlich behagt der Schneckenlauf der Treppe mit dem dahinterliegenden Flur nicht. Andere würden sagen: gut gelöst mit Tageslicht.
    3 Türen für SZ mit Ankleide sehe ich zuviel. Der Nutzen der Ankleide oder besser gesagt, der Kleiderkammer, ist stark eingeschränkt.
    Ohne Maße kann ich den Essbereich schlecht einschätzen. Der könnte eng werden.
    Dann könnte man auf die Aussentür des Vorratsraum verzichten, damit man die 5qm besser nutzen kann. Außerdem würde es mir nicht behagen, mit Matscheschuhen dort reinzugehen und folglich Küche und Essbereich mit Straßenschuhen zu verschmutzen, bis man die Diele erreicht und verschwitzt sich seines Mantels entledigen kann. Man könnte den Carport nach vorn verschieben.
    Ich würde auch eher das Sofa an die Wand stellen.
    Aber: der Grundriss ist ja nunmal Resultat aus Euren Ideen. Ihr habt Euch etwas dabei gedacht (hoffe ich doch).
    Insofern spielt alles nochmal durch und übt Euch in Zufriedenheit.

    Ich würde meiner persönlichen Meinung oben mal abgesehen, die Ecke im Vorratsraum streichen und der Garderobe zuschlagen.
    Im Bad oben würde ich die Tür andersrum anschlagen lassen und die Wanne wie auch die Toilette planrechts anordnen. Wanne ist dann in relaxterer Zone, Klo nicht auf dem Präsentierteller. Die beiden Waschbecken dort, wo jetzt die Toilette ist.
    Und ich würde eine Tür in der Ankleide entfernen. Welche, müsst ihr entscheiden. Ich würd wohl eher die Verbindungstür streichen. Morgens und der abends könnt ihr gut und schnell über den Meter Flur huschen.
     
  6. Batsy

    Batsy

    Dabei seit:
    29.10.2018
    Beiträge:
    6
    Zustimmungen:
    1
    Ja, der Architekt läuft über dem GÜ.

    Kinderloses Paar, allerdings sind Kinder geplant. Grundstück hat eine Größe von 600qm. Eine WF-Vergrößerung passt nicht mehr ins Budget. Offener Wohnbereich/Küche/Essbereich hat die Maße 9,60m x 4,60m. Eingang ist in Nord-Ost. Ich spiele mit dem Gedanken die Ankleide zu vergrößern, in dem ich die rechte Wand weiter nach rechts verschiebe. Dadurch wird allerdings der Flur noch größer und das Kinderzimmer kleiner.
     
  7. #7 bauspezi 45, 29.10.2018
    bauspezi 45

    bauspezi 45

    Dabei seit:
    20.02.2017
    Beiträge:
    1.780
    Zustimmungen:
    335
    Beruf:
    Meister der Steinkunst (Maurermeister)
    Ort:
    solingen wald
    Benutzertitelzusatz:
    iR.
    ich würde mal über die Küche/Esstisch nachdenken, alles sehr
    eng und übertriebene Größe der gesamten Küche,
     
  8. #8 Lexmaul, 29.10.2018
    Lexmaul

    Lexmaul

    Dabei seit:
    15.09.2014
    Beiträge:
    8.921
    Zustimmungen:
    2.163
    Benutzertitelzusatz:
    Mimosenlecker
    Wenn ne Ankleide sein muss, dann sollte Euer Zimmer kleiner werden - die KiZi nicht kleiner machen!

    Wenn man so klein bauen will, sollte man nen echten Architekten engagieren, sonst bleibt es solch ein Krampf.

    Wofür überhaupt ne Dusche im EG? Wer soll das nutzen? Die Gäste auf der Couch? Wofür die Vorratskammer? Bunkert Ihr so viel? Küche besser planen, dann passt das auch und Ihr habt mehr Platz im EG.
     
    simon84 gefällt das.
  9. Batsy

    Batsy

    Dabei seit:
    29.10.2018
    Beiträge:
    6
    Zustimmungen:
    1
    So ein Architekt will auch bezahlt werden...Ich möchte zuerst versuchen so viel wie möglich selbst zu planen.

    Thema Küche/Vorratskammer: Wir leben z.Z. in einer Mietswohnung und haben eine Küchenzeile von ca. 3,60m Länge. Diese platzt aus allen Nähten. Die Küche im Neubau wird nur 1m länger. Eine übertriebene Größe sehe ich nicht. Ich bin leidenschaftliche Hobbyköchin. In unserer derzeitigen Wohnung nutzen wir den 4qm Heizungsraum auch als Vorratskammer, und auch da platzt es aus allen Nähten. Wir haben sehr oft Besuch von Familie und Freunden. Da wird zusammen gekocht etc.

    Eine zweite Dusche ist ein nice-to-have wie ich finde. Wir haben jetzt nur ein Bad. Wenn dort jemand duscht, und dann plötzlich der andere aufs Klo muss, ist es immer unangenehm. Bei einem zweiten Bad mit Dusche hätten wir das Problem nicht.
     
    azalee0108 gefällt das.
  10. #10 Lexmaul, 29.10.2018
    Lexmaul

    Lexmaul

    Dabei seit:
    15.09.2014
    Beiträge:
    8.921
    Zustimmungen:
    2.163
    Benutzertitelzusatz:
    Mimosenlecker
    Klar kostet das - ist aber sehr beschränkt gedacht, denn die Kosten hast wieder drin. Du bist Laie und kannst sowas halt nicht - gibt zwar auch solche Archis, aber die meisten haben ihr Studium zu recht erfolgreich abgeschlossen.

    Vorratskammer - was lagerst denn da alles? Du kannst die Küche ohne den Raum doch besser planen.

    Und das nice-to-have ist ziemlich überflüssig, wenn man eh schon sehr klein baut. Vor allem, wenn es primär scheinbar ums Klo geht - Gäste-WC ist ja gut, aber die Dusche verkümmert in 95 Prozent der Fälle eher. Vor allem ohne Gästezimmer im EG...

    Du sparst am falschen Ende, ehrlich.
     
  11. #11 bauspezi 45, 29.10.2018
    bauspezi 45

    bauspezi 45

    Dabei seit:
    20.02.2017
    Beiträge:
    1.780
    Zustimmungen:
    335
    Beruf:
    Meister der Steinkunst (Maurermeister)
    Ort:
    solingen wald
    Benutzertitelzusatz:
    iR.
    es gänge um die Kochinsel die Platz wegnimmt, aber wenn ihr alles "braucht"
    dann macht das einfach so....
     
  12. #12 Fabian Weber, 29.10.2018
    Fabian Weber

    Fabian Weber

    Dabei seit:
    03.04.2018
    Beiträge:
    16.306
    Zustimmungen:
    6.470
    Die Tür zur Ankleide vom Flur lass weg.

    Warum die Garderobe nicht auf die volle Breite?

    Mach doch die Türen 88,5 außer die von Schlafzimmer zu Ankleide, die würde ich auch ins Schlafzimmer aufschlagen lassen oder nur Durchgang ohne Tür.

    Und die Türen nur 2,01m ist schon sehr sozialwohnungsmäßig, besser 2,25m.

    Wenn Du noch keinen GU hast, dann schreib ihm mal stumpf einschlagende Türen in den Vertrag.

    Der Esstisch steht schief :)
     
  13. #13 Fabian Weber, 29.10.2018
    Fabian Weber

    Fabian Weber

    Dabei seit:
    03.04.2018
    Beiträge:
    16.306
    Zustimmungen:
    6.470
    Nach der Anzahl der Treppenstufen zu urteilen ist die Raumhöhe jetzt auch eher unter 2,80m im EG.
     
  14. #14 driver55, 29.10.2018
    driver55

    driver55

    Dabei seit:
    22.02.2008
    Beiträge:
    6.872
    Zustimmungen:
    1.798
    Beruf:
    Dipl.-Ing.
    Ort:
    Pforzheim
    Die Küche ist im Verhältnis zu Wohnen/Essen auf alle Fälle zu groß. Die misst fast 15 m²!
    Dieser Esstisch funktioniert dort defintiv nicht und leicht schräg/diagonal gleich zweimal nicht.

    Flur oben nimmt zu viele m² und die Ankleide funktioniert nur bis Kleidergröße 32. Wer kann sich dort sonst bewegen?

    Garderobennische bitte über die gesamte Breite.

    Der Entwurf hat durchaus Potenzial...
     
  15. #15 Lexmaul, 29.10.2018
    Lexmaul

    Lexmaul

    Dabei seit:
    15.09.2014
    Beiträge:
    8.921
    Zustimmungen:
    2.163
    Benutzertitelzusatz:
    Mimosenlecker
    @Fabian Weber: Deine Vorschläge sind aber nun sehr "architektenhaft" - nicht ohne Grund wird klein gebaut und Du kommst mit 2,25er Türen und Decke ist unter 2,80m - wie schrecklich :D.

    2,01m-Türen sind wirklich optisch oll, aber alles darüber ist doch voll ok und sollte auch auf der Liste ganz weit hinten sein. Ebenso alles über 2,50m Deckenhöhe...
     
    simon84 gefällt das.
  16. #16 Fabian Weber, 29.10.2018
    Fabian Weber

    Fabian Weber

    Dabei seit:
    03.04.2018
    Beiträge:
    16.306
    Zustimmungen:
    6.470
    Aber das Geschoss höher machen ist beim Bauen eine der preiswertesten Angelegenheiten. Das hatten wir aber schonmal :)

    2,135 bei Türen sollten es aber schon sein.

    Warum nicht erstmal groß denken, dowgraden geht dann ja immernoch.
     
  17. Batsy

    Batsy

    Dabei seit:
    29.10.2018
    Beiträge:
    6
    Zustimmungen:
    1
    Das ist nicht der aktuellste Entwurf, sorry! Das Geschoss wurde bereits erhöht auf 2,75m, Türen ebenfalls auf 2,135m. Wir wollen bewusst ein wenig kleiner bauen. Kinder sind geplant, aber was passiert wenn's, warum auch immer, nicht klappt. Außerdem werden meine Frau und ich im Alter dort ganz allein wohnen. Ich sehe das ja auch an meinen Eltern. Die wohnen nun allein in einem 160qm großen Haus, die Hälfte der Räume werden kaum genutzt.

    Die Meinungen zur Küche gehen ja alle in dieselbe Richtung, also sollte ich da doch nochmal genauer planen.

    Wie gesagt, ich finde ja selbst, dass der Flur im OG zu viel Raum einnimmt. Aber eine andere Lösung habe ich nicht gefunden. Da bleibt immer ein Raum, zu dem man keinen Zugang hat.

    Man könnte die Treppe anders gestalten, aber bei einer Raumhöhe von 2,75m ist diese halt sehr lang und nimmt viel Platz weg.

    Die Tür zur Ankleide vom Flur aus war eigentlich dazu gedacht, das sich dort jemand umkleiden kann ohne den anderen beim Schlafen zu stören.
     
  18. #18 Lexmaul, 30.10.2018
    Lexmaul

    Lexmaul

    Dabei seit:
    15.09.2014
    Beiträge:
    8.921
    Zustimmungen:
    2.163
    Benutzertitelzusatz:
    Mimosenlecker
    Naja, Hälfte der Räume unbenutzt ohne Kinder? Das wären bei uns zwei Räume - ich find das immer putzig, dass jeder das Alter anbringt. Aber die 20-25 Jahre davor soll man dann also eingeengt leben? Zu groß bauen geht nicht - zur Not werden Räume später einfach dicht gemacht.

    Aber es gibt später genügend Übernachtungsgäste (auch die eigenen Kinder/Enkel), die sich über so einen Raum freuen - und man hat auch mal Hobbies ;).

    Ankleide ist die Idee auch gut, aber nicht bei der Größe. Bei uns ist das Schlafzimmer gefangen und von der Ankleide aus geht es ins Elternbad und in den Flur, aber das wäre so nicht darstellbar. Aber vielleicht mal so denken - dann muss halt mal alles herumgewirbelt werden.
     
  19. #19 Kriminelle, 30.10.2018
    Kriminelle

    Kriminelle

    Dabei seit:
    16.05.2013
    Beiträge:
    3.707
    Zustimmungen:
    2.048
    Beruf:
    .
    Ort:
    Niedersachsen
    Ja, dann lass doch die andere Tür weg.

    Weil sie es verlernt haben, sich auszubreiten. Ich könnte allein 160qm füllen. Eins als Handarbeits- und Bügelzimmer, das andere als Schuhraum :)
    Apropos, wo wird denn gebügelt?

    Den Esstisch könnte man auch quer stellen, also an die Insel und nur nach Bedarf etwas in den Raum schieben.
     
  20. Batsy

    Batsy

    Dabei seit:
    29.10.2018
    Beiträge:
    6
    Zustimmungen:
    1
    Ich habe heute selbst ein wenig herumgespielt und vorallem den Grundriss im OG verändert. Bitte kurz Rückmeldung, ob das eine Verbesserung ist oder totaler Bockmist. So hätte ich in der Ankleide eine kleine Ecke für meinen Schminktisch :lock
     

    Anhänge:

Thema: Grundriss Stadtvilla 135qm. Eure Meinungen?
Besucher kamen mit folgenden Suchen
  1. stadtvilla 135 qm

    ,
  2. 5 zimmer haus grundriss

    ,
  3. stadtvilla eingeschossig

Die Seite wird geladen...

Grundriss Stadtvilla 135qm. Eure Meinungen? - Ähnliche Themen

  1. Grundriss Stadtvilla (155qm2) - Eure Anmerkungen werden gebraucht!

    Grundriss Stadtvilla (155qm2) - Eure Anmerkungen werden gebraucht!: Hallo zusammen, meine Frau und ich planen bald zu bauen (Grundstück, 760qm2 ist bereits in unserem Besitz). Wir möchten gerne zweigeschossig...
  2. Grundriss Stadtvilla, bitte um Meinungen

    Grundriss Stadtvilla, bitte um Meinungen: Hallo ihr Lieben Experten, wir sind eine junge Familie, die nun kurz davor ist, ein Haus zu bauen. Es wird auf einem 630qm großen Grundstück...
  3. Unser Grundriss Stadtvilla 9,5x11- eure Meinung

    Unser Grundriss Stadtvilla 9,5x11- eure Meinung: Hallo zusammen, wir planen gerade unser Eigenheim und sind offen für jegliche Meinungen / Verbesserungsvorschläge zu unserem Grundriss. Es wird...
  4. Grundriss unten eingeschossige Stadtvilla

    Grundriss unten eingeschossige Stadtvilla: [ATTACH]Hallo, Bin neu hier. Also weil es sich so gehört "Hallo und danke dass Ihr mir helft! :) " Würde gern einmal eine Einschätzung zu...
  5. Grundriss EFH Stadtvilla Etagenweise trennbar

    Grundriss EFH Stadtvilla Etagenweise trennbar: Hallo Zusammen, wir sind gerade Dabei mit einer Zeichnerin eine Stadtvilla zu planen, wobei ich aktuell für jeden Gedankenanstoß dankbar bin,...