Grundriss Verbesserungsvorschläge gewünscht

Diskutiere Grundriss Verbesserungsvorschläge gewünscht im Architektur Allgemein Forum im Bereich Architektur; Guten Morgen, ich werde ein Zweifamilienhaus bauen und würde gerne wissen, was ihr von meinen Grundrissen haltet. Freue mich auf...

  1. #1 haeuslebauer321, 20.09.2019
    haeuslebauer321

    haeuslebauer321

    Dabei seit:
    20.08.2019
    Beiträge:
    17
    Zustimmungen:
    0
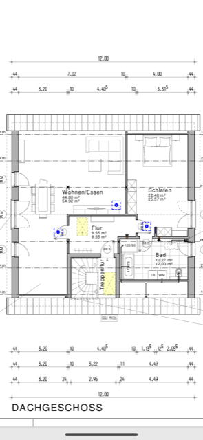
    Guten Morgen,

    ich werde ein Zweifamilienhaus bauen und würde gerne wissen, was ihr von meinen Grundrissen haltet. Freue mich auf Verbesserungsvorschläge oder aber auch Kritik (besser jetzt als später wenn das Haus steht ;-)
     

    Anhänge:

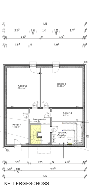
    • Keller.png
      Keller.png
      Dateigröße:
      79,9 KB
      Aufrufe:
      533
    • EG.png
      EG.png
      Dateigröße:
      151,7 KB
      Aufrufe:
      576
    • OG.png
      OG.png
      Dateigröße:
      137,8 KB
      Aufrufe:
      574
    • DG.png
      DG.png
      Dateigröße:
      92,5 KB
      Aufrufe:
      498
  2. #2 Kriminelle, 20.09.2019
    Kriminelle

    Kriminelle

    Dabei seit:
    16.05.2013
    Beiträge:
    3.840
    Zustimmungen:
    2.163
    Beruf:
    .
    Ort:
    Niedersachsen
    Vielleicht erklärst Du Dich bzw das Haus. Soll das ein Vermietobjekt werden? Bist Du Architektstudent und hier handelt es sich um Deine Prüfungsarbeit? möchtest Du selbst drin wohnen oder nur vermieten? Warum nur 2 Zimmer-Geschosse, aber viel Schrank/Waschraum?

    Ich seh da jetzt mit dem Haus keine Bedürfnisse befriedigt.
     
  3. #3 haeuslebauer321, 20.09.2019
    haeuslebauer321

    haeuslebauer321

    Dabei seit:
    20.08.2019
    Beiträge:
    17
    Zustimmungen:
    0
    also es wird ein Zweifamilienhaus: EG bewohne ich, OG soll vermietet werden. DG soll vielleicht später mal ausgebaut werden.
    ich habe mich für 2-Zimmer-Wohnungen entschieden, da ich keine Kinder habe und gerne ein großes Wohnzimmer möchte.
    "Waschen" kann der Mieter auch als HWR/Ankleidezimmer/kleines Arbeitszimmer etc nutzen.
     
  4. #4 Kriminelle, 20.09.2019
    Kriminelle

    Kriminelle

    Dabei seit:
    16.05.2013
    Beiträge:
    3.840
    Zustimmungen:
    2.163
    Beruf:
    .
    Ort:
    Niedersachsen
    Aha.
    Dann sag ich mal so:
    Als Rolle eines Suchenden einer Mietwohnung: es ist schon immer abzuwägen, mit dem Vermieter unter einem Dach zu wohnen, da muss die Wohnung schon ein oder zwei Nice-to-have haben, zB einen schönen Balkon, EG mit Terrasse, ein Maisonette, von Lage und (Küchen)ausstattung mal ganz zu schweigen. Als Single wär mir wohl der Allraum etwas zu gross, dafür die Stell/Schrankfläche dann doch etwas zu viel. Muss ja auch alles bezahlt werden. Als Paar fehlt definitiv das dritte Zimmer. Homeoffice macht man auch mal ohne Kinder. Ja, und dann die Zielgruppe mit Kind... fällt durch.
    Als Rolle eines Vermieters möcht ich eigentlich gar keine über mir wohnen haben. Du schon, aber Du hast ja nach Meinungen gefragt.

    Wäre ich jetzt in Deiner Situation (kinderlos und bauwillig), dann würde ich entweder einen Bungalow für mich mit round about 130qm bauen oder ein Zweifamilienhaus mit 2 Eingängen, zB Doppelhaus oder zumindest den Charakter von einem, damit der Mieter seine Miete auch für gerechtfertigt hält und er etwas länger bleibt. Und ja, natürlich mit Einbezug einer höherern Zielgruppe, also noch 2 Zimmer extra, mindestens für die ELW.
    Aber auch mit dem Schnitt, unten der Eigentümer, oben dann die Mieter, würde ich mal über einen Balkon nachdenken und gleich das DG mit ausbauen... aber dann stimmen die Grössen nicht mehr, denn für die Höhe dieser Miete kann ja gleich jeder bauen ;)
     
    driver55, azalee0108 und S216 gefällt das.
  5. 11ant

    11ant

    Dabei seit:
    28.02.2017
    Beiträge:
    2.579
    Zustimmungen:
    1.624
    Beruf:
    Bauherrenberater
    Ort:
    RLP Nord
    Benutzertitelzusatz:
    bringt Sie gut beraten ins Eigenheim
    Ich schließe mich dem Vorschlag "Bungalow" an. Auf die Wohnung für sich selbst noch eine oder zwei weitere Wohnungen draufzusetzen, macht wenig Sinn, jedenfalls nicht in dieser Form: ca. 110 qm als Singlewohnung - wer das sucht, will gewiß kein hinter dem HWR gefangenes Schlafzimmer, und als Bonbon den Vermieter im Haus wohnen haben. Das müßte schon eine ultimative Toplage sein, daß das überhaupt vermietbar wäre. Auf welchen Grundlagen wurde denn überhaupt geplant: wie sieht das Grundstück aus, und auch Garten, Stellplätze und dergleichen sehe ich nicht erwähnt.
     
  6. #6 driver55, 23.09.2019
    driver55

    driver55

    Dabei seit:
    22.02.2008
    Beiträge:
    6.933
    Zustimmungen:
    1.843
    Beruf:
    Dipl.-Ing.
    Ort:
    Pforzheim
    Also ein 2 Familienhaus wird das so nie! Familie = Paar mit mindestens 1 Kind. Zimmer für ein Kind kann ich jetzt nicht erkennen.
    Kind hin oder oder her. Ohne drittes Zimmer würde ich weder bauen noch vermieten wollen.
     
  7. 11ant

    11ant

    Dabei seit:
    28.02.2017
    Beiträge:
    2.579
    Zustimmungen:
    1.624
    Beruf:
    Bauherrenberater
    Ort:
    RLP Nord
    Benutzertitelzusatz:
    bringt Sie gut beraten ins Eigenheim
    Das Kind wird das Paar garnicht erst machen, wenn der Weg ins Schlafzimmer durch den Hauswirtschaftsraum führt ;-)
    Der Plan ist trotz drangeschriebener konkreter Maße unausgegoren hoch drei, siehe auch hier: Dachschräge, 1m Drempel: Seiten bekleiden lassen?
     
  8. #8 haeuslebauer321, 25.09.2019
    haeuslebauer321

    haeuslebauer321

    Dabei seit:
    20.08.2019
    Beiträge:
    17
    Zustimmungen:
    0
    Das ist ja doch überraschend, dass ein 3. (oder sogar 4.) Zimmer so wichtig ist, ich hatte das anders eingeschätzt. Dann werde ich die Mietwohnung doch nochmal überarbeiten. Danke fürs Feedback.
     
Thema:

Grundriss Verbesserungsvorschläge gewünscht

Die Seite wird geladen...

Grundriss Verbesserungsvorschläge gewünscht - Ähnliche Themen

  1. Grundriss drei optionen Sanierug altbau.

    Grundriss drei optionen Sanierug altbau.: Liebe Bau- und Renovierungsfreunde, ich habe mich hier angemeldet und möchte gerne eure Meinungen zu den verschiedenen Grundriss-Optionen im...
  2. Feedback zu Grundriss EFH Nordhang

    Feedback zu Grundriss EFH Nordhang: Hallo zusammen, nachdem unser erster Planungsanlauf mit einem Architekten im letzten Jahr leider komplett gescheitert ist, haben wir nun einen...
  3. Verbesserungsvorschläge für unseren Grundriss

    Verbesserungsvorschläge für unseren Grundriss: Hallo, wir würden uns freuen wenn Ihr uns helft unseren Grundriss zu optimieren. Wir wollen viele Schiebetüren z. B. zur Küche, zur Terrasse und...
  4. Grundriss: Verbesserungsvorschläge?

    Grundriss: Verbesserungsvorschläge?: Hallo zusammen! :winken Bin neu hier, da ich beim Stöbern gesehen habe, dass hier netterweise der ein oder andere Beitrag/Hinweis zu geplanen...
  5. Verbesserungsvorschläge zu unserem Grundriss erwünscht

    Verbesserungsvorschläge zu unserem Grundriss erwünscht: Hallo, wir sind eine Familie mit zwei Kindern im Kindergartenalter und wir planen ein Einfamilienhaus zu bauen. Wir haben nun einen Grundriss...