Grundriss Wohnzimmer, Kamin plus OG

Diskutiere Grundriss Wohnzimmer, Kamin plus OG im Architektur Allgemein Forum im Bereich Architektur; Liebes Forum, Die Gebäudeform ist in wesentlichen Teilen durch Denkmalpflege und Stadt vorgegeben. Der hintere Anbau plus die Gaube ist das...

  1. #1 cryptoki, 17.11.2020
    cryptoki

    cryptoki

    Dabei seit:
    24.10.2020
    Beiträge:
    84
    Zustimmungen:
    37
    Liebes Forum,

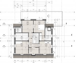
    Die Gebäudeform ist in wesentlichen Teilen durch Denkmalpflege und Stadt vorgegeben. Der hintere Anbau plus die Gaube ist das maximale was wir dürfen. Die Nord Ausrichtung ist bis auf ein paar Grad genau wie im Bild. Sprich Bildoberkante ist Norden. Es handelt sich um ein Krüppelwalmdach mit einem Kniestock von 30cm, also viel Dachschräge.

    Im Moment geht es mir nur um die Frage Wohnzimmer und Positionierung von Fenster und Kamin in Abhängigkeit vom darüber liegenden OG (Gaube). Wohin setze ich idealerweise die Couch, was verglase ich und was lasse ich als Wand um eine kleine Massivholzregalwand mit 2,6m plus 2 großen Standboxen (1.5m hoch) zu Positionieren. Wo befindet sich der Kamin und der Schornstein.
    Was möglich ist, dass die Wände etwas geschoben werden können und die Treppe kann quasi auf die linke Seite gespiegelt gesetzt werden. Damit wird Schlafzimmer und Kaminzimmer getauscht. Wir wissen, dass die Ankleide derzeit noch nicht ideal ist. Das ist noch ein anderes Thema. Wir nähern uns unseren Wünschen im Rahmen dessen was wir Bauen dürfen.

    Vielleicht gibt es ein paar Ideen und Anregungen um den nächsten Schritt / Iteration zu machen. Danke.

    Beste Grüße
    Steffen
     

    Anhänge:

  2. #2 Kriminelle, 17.11.2020
    Kriminelle

    Kriminelle

    Dabei seit:
    16.05.2013
    Beiträge:
    3.679
    Zustimmungen:
    2.026
    Beruf:
    .
    Ort:
    Niedersachsen
    Was ist denn das in der Mitte des Allraums rechts dem handschriftlichen blauen Kamin für ein Rechteck?
    Bist Du am überlegen, wo ein Schornstein hin kann? Ist denn keiner vorhanden? Linksseitig scheint einer zu sein, denn im OG gibt es ein Kaminzimmer...
    Sind die Wasserleitungen etc schon gesetzt oder kommen die neu?
    Wie sind Eure Lebensgewohnheiten? Ich für mich persönlich würde, wenn eh alles neu gemacht wird, den planlinken Bereich als Küche planen, mittig den Essbereich und in die rechte Ecke den Chillbereich, wo wenig Störfaktoren sind.
    Wo ist denn Straße? Wo ist man ungestört? Im Norden ist der Garten? Dann dort so viele Fenster wie möglich.
    Das kleine Bad könnte Speis werden, den Waschraum mit Durchbruch zur Kammer Bad.

    Im OG ist unglücklich, dass hinter dem SZ alles gefangen ist. Somit stört man den Schlafenden, wenn man früher hoch muss.
    Spielraum würde ich offen machen, ansonsten wird das ein Abstellraum.
    Braucht Ihr oben ein Kaminzimmer????
     
    cryptoki und simon84 gefällt das.
  3. #3 K a t j a, 18.11.2020
    K a t j a

    K a t j a

    Dabei seit:
    31.05.2019
    Beiträge:
    1.009
    Zustimmungen:
    582
    Ort:
    Leipziger Land
    Die Planung sollte bei der Platzierung auf dem GS beginnen und hier vor allem auch die Stellplätze berücksichtigen. Ohne diese Grundlage ist eine Diskussion an sich wertlos, solange man nicht behauptet, niemals ein Auto zu besitzen.

    Ansonsten sind Kritikpunkte:
    - ungemütliches Wohnzimmer als Durchgangszimmer: Man sitzt mit dem Rücken zur Tür und läuft aus selbiger auf die Sofarückwand zu. Keine Rückzugsmöglichkeit.
    - Die Küche zu erreichen wird mit EInkaufstüten ein Marathon.
    - Der Esstisch steht im Weg vor der SPK.
    - Die Tür unter der Treppe in den Waschraum liegt mit der Oberkante nahezu am Podest an - schön ist anders.
    - Der gesamte Treppenbereich / Lobby ist finster wie im Bärenarsch. Licht von oben geplant? Selbst wenn, wird das unter der Treppe düster.
    - Waschraum winzig für 4 Personen - die Wege sind irre für den/die Hausmann/Hausfrau
    - HWR hat noch kein Fenster
    - Küche für Insel zu knapp - man müsste sie drehen - das arbeitet sich blöd - Küchenplanung sollte grob stehen, bevor es unschöne Überraschungen gibt.
    - Kizis verhältnismäßig knapp. Die Schrägen sind enorm. Die 2m Linie fehlt zur Orientierung. Dürfte schätzungsweise bei 1,75m ab planunten liegen. Das heißt, nahezu der gesamte Spielraum liegt unter 2m. Fenster reißt zwar noch was raus - aber der Raum ist m.E. der geplante Müllplatz.
    - Ankleide = Katastrophe = viel zu wenig Stellfläche + gefangen
    - Hat die Sauna überhaupt Stehhöhe?
    - Badplanung mit Saunazugang - bitte mal einzeichnen.
    - Masterbadmöblierung bitte auch mal einzeichnen. Eine Frage der Ansprüche - aber ein Traumbad seh ich hier nicht.
    - Kamin wäre jetzt nicht die Prio1, über die ich mir Gedanken machen würde.
     
    11ant und cryptoki gefällt das.
  4. #4 cryptoki, 18.11.2020
    cryptoki

    cryptoki

    Dabei seit:
    24.10.2020
    Beiträge:
    84
    Zustimmungen:
    37
    Hallo,
    vielen Dank für Euer Feedback. Wo fange ich am Besten an.

    Wohnraum:
    handschriftlich rechts neben dem Kamin befindet sich eine Säule, das scheint für die Statik wohl nötig zu sein. Um diese Säule besser zu nuten kann man 2 Küchenelemente quasi einbauen. Also von links nach rechts. 1,2-1,5m Küchenelement als Einbauschrank Variante. Danach in der Mitte eine große Mittelinsel und dann rechts die gesamte Wand Küchenelemente. Hinter der Wand befindet sich relativ nah die Straße. Wir hatten auch schon mal die Idee diesen Bereich für eine Couch und Chill Ecke zu verwenden. Was uns wichtig ist, dass im großen Allraum die Couch so steht, dass man auf eine zirka 2,5m breite Regalwand gut schauen kann. Rechts und Links daneben dann zwei große Lautsprecher. Musik ist uns wichtig und die richtige Positionierung der Chill Couch Ecke in Verbindung mit der Audioanlage. Der Allraum ist ein riesiges Thema und eine gute Lösung haben wir noch nicht gefunden.
    Der Kamin ist die zweite nächste Herausforderung. Er soll so stehen, dass er auch wirklich Sinn macht. Wir nutzen ein Kamin sowohl zum Wohlfühlen als auch zum Heizen. Bei uns läuft der im Herbst, Winter und Frühjahr dann sehr häufig bis ständig. Irgendwo weit in die Ecke verfrachten ist einfach nicht wirklich geil. Am liebsten ein Kamin und dann irgendwo noch eine Chill Bank am Fenster.
    Der Schornstein ist dann das nächste Thema und impliziert dann die Position vom Kamin. Wo macht es Sinn den Schornstein hoch zu führen.

    Die Straße verläuft im Süden direkt am Haus und es ist eine mini Straße östlich vom Grundstück. Der Norden ist dann freier Blick in die Natur bzw. in unseren riesigen Garten und dann dem vom Nachbarn. Da wir erhöht sind, ist dann dieser Blick komplett unverbaut und grün.

    Unser Konzept sieht ein Schlaf- und Kaminzimmer vor. Klingt wahrscheinlich für die meisten komplett verrückt, für uns ist es das aber nicht. Das Zimmer steht tagsüber allen zur Verfügung. Es ist hell und gemütlich, die Kinder können dort spielen oder Hausaufgaben machen und nach einem Saunagang kann sich ausgeruht werden. Am Abend können die geschafften Eltern gemütlich noch am Kamin sitzen bevor es dann ins Bett geht. Das Kamin und Schlafzimmer sind identisch und könnten vom Platz getauscht werden mitsamt Treppe und Co.


    Zu den anderen Sachen. Sobald wir den Allraum besser verstehen und die Möbel, Kamin und Küche einen Platz gefunden haben, geht es an die übrigen Punkte. Wir wissen, dass es noch einige weniger glücklich gelöste Sachen geht.


    Ich schaue mal, ob ich was vergessen habe.
    Wohnzimmer als Durchgangszimmer... man könnte die Treppe von der Seite her tauschen. Dann würde die Tür in den Allraum weiter rechts sein. Links wäre dann eine 3,5-3,8m Wand und die Couch könnte dann links oben mit Blick in den Raum stehen. Dann würde man von der Couch nicht raus schauen, aber das finde ich nicht tragisch.

    Küchenposition ist von der Distanz egal wo im Allraum. Ob nun links oder rechts hinten, die 2m mehr machen kein Marathon. Aktuell tragen wir die Einkäufe wesentlich weiter und die Treppe hoch.

    Esstisch. Da ist viel Platz, dieser würde nicht im weg stehen, aber ich finde es aktuell auch nicht perfekt gelöst.

    Zum Flur, Die Deckenöffnung ist gut 3x2m. Im OG kommt Licht durch die Spielecke und dann noch eins oberhalb vom Spielzimmer. Der Flur oben ist extrem hell und lässt das Licht gut ins EG. Die Wand zum Vorraum ist fast komplett verglast. Die Eingangstür hat oberhalb noch ein Fenster, die Fenster und Türenhöhe ist enorm. Da kommt viel Licht rein. Die Wohnzimmertür soll auch komplett aus Glas sein.

    Den Rest würde ich gerne an dieser Stelle erst einmal Cutten. Für uns hat das Wohnzimmer und die beiden Räume darüber höchste Priorität. Mit einem kleinen Bad können wir gut Leben, da sind wir nicht viel. Hauptsache es gibt genug Duschen und Toiletten im Haus. Die KiZi sind jetzt keine Tanzfläche, aber beide haben etwa 4x4m Grundfläche. Die Dachschräge beginnt etwa bei 1m Höhe, so dass das vom Stellen und Sauber machen gut nutzbar ist. Grundfläche sind gerundet 16qm abzüglich Dachschräge 2qm, macht etwa 14qm, für das kleinere 13,5qm Wohnfläche. Für ein Kinderzimmer ist das nicht so schlecht. Wenn es mit der kompletten Planung dann passt, machen wir die Zimmer dann auch noch größer.

    Beste Grüße
    Steffen
     
  5. #5 cryptoki, 18.11.2020
    cryptoki

    cryptoki

    Dabei seit:
    24.10.2020
    Beiträge:
    84
    Zustimmungen:
    37
    Unsere Prioritätenliste
    1. Allraum / Wohn- und Essbereich. Da spielt sich Leben ab. Eindeutig wichtigster Raum
    2. Büro .. Wird von uns beiden genutzt. Auch schon vor Corona konnten und haben wir viel von zu Hause gearbeitet. Ein Fenster auf der Westseite fehlt noch. Am liebsten wäre uns 6x4m.
    3. Schlaf-/Kaminzimmer .. wirkt fast wie ein Zimmer. Ausgeruht und Erholt können wir einfach am Besten für unser Kind(er) da sein.
    4. Kinderzimmer .. Grundfläche mindestens 4x4m. Aus meiner Kindheit, mir war die Größe nicht so wichtig und als Kind konnte ich mich egal an welches Zimmer gut anpassen. Für uns ist es wichtig, dass die Zimmer von zwei Seiten Licht haben und sehr hell sind. Beide haben über das Dachfenster die Südsonne.
    5. Gast.
    6. Bad .. wir brauchen kein Traumbad, wir verbringen da wenig Zeit drin.

    Die beiden Pflasterstraßen sind zur Rush Hour mit zirka 20-60 Autos pro Stunde befahren. Nachts reichen wahrscheinlich beide Hände zum zählen.

    Beste Grüße
    Steffen
     
  6. #6 K a t j a, 18.11.2020
    K a t j a

    K a t j a

    Dabei seit:
    31.05.2019
    Beiträge:
    1.009
    Zustimmungen:
    582
    Ort:
    Leipziger Land
    Meines Wissens beginnt die Schräge etwa bei 30cm - was dem Kniestock entspricht. Wenn Du abkofferst, bitte einzeichnen! Eingezeichnet ist da m.E. nix.
     
  7. #7 cryptoki, 18.11.2020
    cryptoki

    cryptoki

    Dabei seit:
    24.10.2020
    Beiträge:
    84
    Zustimmungen:
    37
    Danke. Die 1m und 2m Höhenlinie kommen mit in den Entwurf, dann sieht man es besser. Aktuell kann ich nur sagen, dass die Zimmer ab 1m Höhe beginnen. Wir wollen keine Ecken unter 1m.
     
  8. #8 Kriminelle, 18.11.2020
    Kriminelle

    Kriminelle

    Dabei seit:
    16.05.2013
    Beiträge:
    3.679
    Zustimmungen:
    2.026
    Beruf:
    .
    Ort:
    Niedersachsen
    Eindeutig! Für jeden! Die Kinder gibt es schon?

    Das sei Euch gegönnt. Zudem werden die Kinder grösser und dann irgendwann ab Teenie-Alter besetzen sie Euch Euer Wohnzimmer mit ihren Freunden. Oder aber zum Lernen am Esstisch :)

    Hmmm... sitzt mit dem Rücken zum Eingang der Höhle und bekommt nichts mit, wenn der Feind angreift. Ich halte das nicht für so eine gute Idee. Ich finde es auch befremdlich, beim genussvollen Musikhören sich vor eine Wand zu setzen, also auf sie zu schauen. hat man das noch? Wohnzimmerwand? Gelsenkirchener Barock? Boxen links und rechts? Hat man die nicht links und rechts neben sich?

    Ich halte dennoch an der Chilllounge im rihigen Teil des Hauses fest. Küche braucht man für Kommunikation und Essen machen/fassen, Sofa kann da auch eher kuschliger sein.
    Einen Drittflur abzutrennen halte ich auch für eine schlechte Lösung.

    Du weisst aber schon, dass es um Bestand geht??
     
    cryptoki gefällt das.
  9. #9 cryptoki, 18.11.2020
    cryptoki

    cryptoki

    Dabei seit:
    24.10.2020
    Beiträge:
    84
    Zustimmungen:
    37
    Hallo Kriminelle,
    Ich stimme Dir voll und ganz zu. Die Couch mit dem Rücken zur Tür zu positionieren war einfach schlecht.

    *LOL* Gelsenkirchener Barock *LOL* GEIL! Aktuell ist es eine sehr schlichte massive Erle Hülsta Regalwand. Klein, ein paar Bücher, eine Bar... sehr schlicht. Perspektivisch werden wir uns die Möbel zum Teil selber bauen oder sehr klassische Massivholzmöbel. Die Lautsprecher müssen so positioniert sein, dass sich ein Klangdreieck bilden kann. Sehr klassisches Stereo System mit 2 hochwertigen 1.5m hohen und 60kg schweren Lautsprechern. :)

    Ich stimme Dir mit der Chill Area voll und ganz zu. Bei dem vorliegendem Grundriss ist die Treppe halt ein großes Problem. Die kleine Ecke mit 21qm wäre mir für eine reine Kuschelecke zu klein. Die Gebäudehülle ist im großen und ganzen durch die Denkmalpflege vorgegeben, es ist dennoch ein Neubau. Wir können die ein oder andere Wand noch etwas schieben.

    Was meinst Du mit einem Drittflur?

    Danke
    Steffen
    Kinder gibt es schon :)
     
  10. #10 Kriminelle, 18.11.2020
    Kriminelle

    Kriminelle

    Dabei seit:
    16.05.2013
    Beiträge:
    3.679
    Zustimmungen:
    2.026
    Beruf:
    .
    Ort:
    Niedersachsen
    ... den Du Dir eventuell durch die Nutzung/Möblierung im Allraum vorne an schaffen würdest.

    Wenn das ein Neubau ist, dann würde ich jetzt mal ganz von vorn anfangen und Räume vergeben, durchrauschen und die Wände anders setzen. Ich dachte, das wäre schön alles und es geht um Abbruch und Setzung einzelner Wände
     
  11. #11 cryptoki, 19.11.2020
    cryptoki

    cryptoki

    Dabei seit:
    24.10.2020
    Beiträge:
    84
    Zustimmungen:
    37
    Vielen Dank. Wir haben in den letzten Monaten immer wieder von vorne angefangen. Bisher hat sich der hintere rechteckige Anbau als Wohn- und Essraum herauskristallisiert. Jetzt wieder von vorne anzufangen macht für uns keinen Sinn, 500mal gegen die Wand gelaufen was soll sich beim 501mal ändern? Wir versuchen jetzt zu verstehen wie der Wohn und Essraum aufgebaut sein sollte, dann können wir es in der nächsten Iteration besser machen.

    Ich schicke nachher mal einen Lageplan und die Beweggründe für die Gebäudeform.

    Steffen
     
  12. #12 Kriminelle, 19.11.2020
    Kriminelle

    Kriminelle

    Dabei seit:
    16.05.2013
    Beiträge:
    3.679
    Zustimmungen:
    2.026
    Beruf:
    .
    Ort:
    Niedersachsen
    Für einen Neubau ist da vieles ungenügend.
    Und da muss ich @K a t j a ja recht geben.
    Ich war der Meinung, diese Masse an kleinen, fast schon unnützen Räumen gäbe es schon und ihr sucht für denen einen neuen Sinn.
    Auch die Form des Allraums würde ich so nie planen.
    Wenn Du selbst sagst, dass der Bereich oben rechts mit 21qm zu klein ist (21qm sind definitiv nicht klein), dann frage ich mich, warum ihr diesen Zipfel überhaupt konstruiert habt. Auch würde ich jetzt nicht anfangen, Fenster zu streichen, um eine Schrankwand stellen zu können - das plant man gleich mit ein, indem man eine längere Innenwand setzt.
    Wenn es so ist, dass ihr da schon eine ganze Weile dran sitzt, dann muss ich leider sagen, dass die Zeit vergeudet ist.
    Auf dieser Größe bekommt man zonierte Bereiche sehr einfach hin. Dann wäre das Wäschewaschen dort, wo auch der Dampf des Trockners abziehen kann und nicht innenliegend, bestenfalls dort, wo die Wäsche anfällt. Der Gast hätte ein kleines Bad nebenan. Der Spiel-Abstellraum kann gleich den Kizis für die Betthöhle zugeschlagen werden. Es gebe eine geräumige Ankleide und kein Schlafzimmer, was nur Durchgang ist. Der Weg zum Elternbad ist jetzt so umständlich, das plant man nicht freiwillig.
    Und man müsste nicht jetzt erst überlegen, wie der Saal zoniert wird.
     
  13. #13 K a t j a, 19.11.2020
    K a t j a

    K a t j a

    Dabei seit:
    31.05.2019
    Beiträge:
    1.009
    Zustimmungen:
    582
    Ort:
    Leipziger Land
    Könnte man denken. Leider hat der TE einige wichtige Vorgaben nicht erwähnt, die das Konstrukt zumindest teilweise begründen. (Er hatte mir per PN einige Fragen gestellt, wobei ich ihm per Salamitaktik diverse Details aus der Nase gezogen habe.;))
    Zum Beispiel wäre da eine Baulinie direkt an den Fußweg planunten. Diese muss symmetrisch gestaltet sein mit Haustür mittig. First parallel zur Straße. Max. Traufhöhe 3,60m, max. Firsthöhe 8,30m, Dach max. 45°. Die maximalen Werte erhält man auch nicht einfach so. Zitat: "Der Abstand Oberkante Fenster im EG und der Dachrinne darf nicht zu groß sein. Sprich, wenn man 2,6 Deckenhöhe macht, dann wird man keine 3,6m Traufhöhe machen dürfen. Die Stadt will den historischen Barocken Stil haben."
    Der Schnitt des Grundstücks macht die Sache auch nicht direkt leichter (genordet):

    [​IMG]

    Planunten ist die Straße mit der Baulinie mit einer max Länge von 18,30m. Das klingt erstmal ok, aber sobald man die Stellplätze mit einplanen will, wird es knifflig. Das große Büro und die restlichen Räume müssen ja irgendwo hin. Ein einfacher Baukörper stößt da schnell an seine Grenzen. Dazu kommt, dass der TE den thereotischen Haupteingang von der Straße ansich gar nicht nutzen möchte, sondern irgendwo an der Seite rein geht. Verständlich, wenn sich nicht alle Fußgänger gleich mit eingeladen fühlen sollen.

    Die Schrägen mit einem KS von etwa 30cm sollen lt. Stadt eigentlich bei 1m abgekoffert werden. Das wäre aber nur eine Empfehlung. Höhe und Dachneigung beschränken die Sache dann natürlich auch in der Tiefe, so dass man hinten quer anbaut. Das war erst mal auf die Schnelle, was mir so einfällt.
     
    11ant und Kriminelle gefällt das.
  14. #14 cryptoki, 19.11.2020
    cryptoki

    cryptoki

    Dabei seit:
    24.10.2020
    Beiträge:
    84
    Zustimmungen:
    37
    Danke Katja für Deine Geduld, die Nachfragen und tollen Vorschläge. Wir treten gerade auf der Stelle und uns fällt es unglaublich schwer. Die Frage nach einem Architekten zu beantworten, die ersten beiden haben ein 08/15 Haus mit unendlichen Dachschrägen geplant und sind selbst nach 3 Runden nicht auf unsere Wünsche eingegangen. Es dauerte alles ewig und Rücksprachen wurden nicht gemacht. Es machte einfach keinen Sinn mehr, vor allem da wir uns als BauherrIn nicht wirklich gehört gefühlt haben. Uns helfen jetzt zwei Architekten aus deren Kapazität und Zeit extrem eingeschränkt ist. Wir sind extrem dankbar dafür und jede Runde macht Spaß. Wir müssen jetzt aber erst einmal einen Entwurf von der Gebäude-Außenhülle abgeben. Danach bleibt uns mehr Zeit.

    Vom Baugefühl fühlen wir uns mit der Außenhülle sehr wohl. Katja war so freundlich den Lageplan einzufügen. Vielen Dank. Unsere Idee ist es im Nordwesten eine Terrasse zu haben. An der Süd- und Ostseite befindet sich eine Straße deren Verkehrsaufkommen sehr niedrig ist. Eine Terrasse auf der Ostseite wäre denkbar, für uns war es logischer in den Hof rein die Terrasse zu haben. Vom Licht ist es schwierig eine gute Lösung zu finden. Der nach Osten überstehende Anbau ermöglicht Sonnenlicht in den Wohnraum bis etwa 14 Uhr (Sommerzeit), im Sommer geht sie dann rum und würde auf die Westterrasse scheinen. Im Winter, jetzt um die Jahreszeit, ist ab 14:30 Uhr Schluss mit Sonnenlicht.

    Zu den Vorgaben. (Abweichungen sind um 50cm kein Problem)
    - Hausbreite 12m
    - Haustiefe 10m
    - Krüppelwalmdach mit niedrigen Kniestock. Abstand Fensteroberkante und Dachrinne muss gering sein
    - Südseite symmetrische Fenster und in der Mitte der Hauseingang. Dach, weniger Dachfenster umso besser.
    - Haus darf eigentlich überall an der Südseite positioniert werden, sogar direkt westlich an der Grundstücksgrenze. Für uns und in Anbetracht von Licht und Abstand zum Nachbargebäude macht ein Bauplatz sehr weit östlich nur Sinn. Vorteil ist dann auch, dass das Gebäude umso höher ist umso östlicher es ist. Das Grundstück hat zirka 80-100cm Gefälle nach Westen über die Gesamtbreite von 18m

    Hausaufteilung EG
    • Wohnen, Essen, Küche (Küche darf auch abgetrennt sein)
    • Büro, umso größer umso besser
    • Gast
    • und die üblichen Nutzräume.
    Wohnen ganz nach Hinten um freien Blick in den Garten zu haben (Idee von Anbau mit Holzverkleidung, ist auch so akzeptiert von der Denkmalpflege)
    Arbeiten ganz in den Westen und mit Blick auf die Straße. Die Westseite ist erhöht und beim Arbeiten ist mir etwas egal wenn mal einer von den 50 Pax am Tag einen Blick rein wirft.
    Gast, dort wo Platz ist.


    OG
    2 KiZi
    1 Schlaf+Kamin getrennt durch eine große Tür
    Ankleide und Bäder

    Die Gaube darf von der Positionierung auch geschoben werden, also Richtung Westen oder Osten. Sie muss nicht zwingend mittig sein.


    Im angefügten Bild sind jeweils Stützbalken eingezeichnet. Der blaue ganz rechts muss doch nicht zwingend sein? Die Gelbe Linie ist dann die Linie wo die Dachgaube aufsetzt.


    Ich wäre so Dankbar, wenn ich einen Lichtblick finde. Eine Idee wie das wirklich funktionieren kann. Wie ist denn die Aufteilung in Zonen? Findet sich eine bessere Lösung für die Treppe?

    Danke
    Steffen
     

    Anhänge:

    11ant gefällt das.
  15. #15 K a t j a, 19.11.2020
    K a t j a

    K a t j a

    Dabei seit:
    31.05.2019
    Beiträge:
    1.009
    Zustimmungen:
    582
    Ort:
    Leipziger Land
    Also ich will wirklich nicht pingelich wirken, aber warum wollt Ihr Euch über Details der Wohnzimmereinrichtung unterhalten, während die Stellplatzfrage weiter ignoriert wird? Du machst Schritt 130 vor Schritt 1. Das hat m.E. so keinen Sinn. Platzierung auf dem GS ist Schritt 1 und zwar inkl. Wege, Stellplätze, Terrasse und Eingang. Falls Du glaubst, die Frage hätte keinen Einfluss auf die Hausform und die Anordnung der Räume, täuschst Du Dich.
     
    11ant gefällt das.
  16. #16 cryptoki, 19.11.2020
    cryptoki

    cryptoki

    Dabei seit:
    24.10.2020
    Beiträge:
    84
    Zustimmungen:
    37
    Es soll mindestens ein Stellplatz links (westlich) vom Haus sich befinden, bei 12m Hausbreite bleiben 6,3m übrig.
    Hintereingang zur Westseite.
    Terrasse Nordwesten.
     
  17. #17 cryptoki, 19.11.2020
    cryptoki

    cryptoki

    Dabei seit:
    24.10.2020
    Beiträge:
    84
    Zustimmungen:
    37
    Zusatz: Es gibt 2 erlaubte Plätze für einen Stellplatz.
    Nr. 1: Westlich vom Haus (Platz maximal 6.3m - für 2 Autos plus Durchgang in den Hof eng, aber machbar) - Damit muss das Haus an die Ostgrenze gesetzt werden
    Nr. 2: Hinter dem Haus an die Oststraße. Damit würde der freie Blick in den Garten etwas genommen werden. Das Haus würde dann jedoch weiter westlich gesetzt werden.

    Mehr Möglichkeiten gibt es nicht. Aus den beiden Optionen ergeben sich n.m.M. 2 Optionen für Wege und Terrasse. Wir planen auch mittelfristig nicht mit 2 Autos. Uns reicht eins eigentlich komplett aus. Ein Carport der die Möglichkeit gibt ein zweites aufzunehmen wäre schön. Daher könnte der Doppelcarport auch etwas schmaler Ausfallen. 6m inklusive Durchgang ist da nicht unrealistisch.
     
  18. #18 K a t j a, 19.11.2020
    K a t j a

    K a t j a

    Dabei seit:
    31.05.2019
    Beiträge:
    1.009
    Zustimmungen:
    582
    Ort:
    Leipziger Land
    Ok, dann Haus also ganz in den Osten. Mit den Autos stehst Du dann vor Deiner Westterrasse? Fahrradschuppen dann irgendwo anders oder ganz ohne? Oder lieber Westterrasse weglassen?

    [​IMG]
     
    11ant gefällt das.
  19. #19 cryptoki, 19.11.2020
    cryptoki

    cryptoki

    Dabei seit:
    24.10.2020
    Beiträge:
    84
    Zustimmungen:
    37
    Der Carport würde sich näher zur Straße befinden. Die Überdachung im Westen oberhalb vom Arbeitszimmer die schwindet gedanklich immer mehr. Du hattest mir das bereits schon nahegelegt. Ich habe gerade mir noch mal Deine Skizzen angeschaut.
     
  20. #20 cryptoki, 19.11.2020
    cryptoki

    cryptoki

    Dabei seit:
    24.10.2020
    Beiträge:
    84
    Zustimmungen:
    37
    Die Variante mit vorne Bad und Durchgang geht mir immer wieder durch den Kopf...
     
Thema: Grundriss Wohnzimmer, Kamin plus OG
Besucher kamen mit folgenden Suchen
  1. grundriss wohnzimmer mit kachelofen

Die Seite wird geladen...

Grundriss Wohnzimmer, Kamin plus OG - Ähnliche Themen

  1. Grundriss Bewertung Architektenhaus

    Grundriss Bewertung Architektenhaus: Hallo zusammen, wir wären über euren Input sehr dankbar. Was kann man verbessern? Was würdet ihr ändern? 1. Wir sind: Familie mit einem Kind...
  2. Hilfe Grundriss Untergeschoss

    Hilfe Grundriss Untergeschoss: Ich benötige etwas Hilfe beim Grundriss für das Untergeschoss. Ich würde gerne die Eingangstür nach Süden legen, da dort die Straße ist. Außerdem...
  3. Neubau – Grundriss, Firstrichtung und Vorgehen

    Neubau – Grundriss, Firstrichtung und Vorgehen: Hallo zusammen, wir sind noch ganz am Anfang unseres Bauprojekts: das Grundstück steht fest (muss noch geteilt und umgeschrieben werden,...
  4. Grundriss EFH 150m2 (Hang, Souterrain, ELW) – Feedback zu Effizienz & Raumaufteilung

    Grundriss EFH 150m2 (Hang, Souterrain, ELW) – Feedback zu Effizienz & Raumaufteilung: Hallo liebe Bauexperten, wir planen ein Eigenheim mit ELW in Hanglage und haben uns schon zahlreiche Gedanken gemacht. Ich möchte die Chancen, die...
  5. Badezimmer über dem Wohnzimmer

    Badezimmer über dem Wohnzimmer: Hallo, wir planen derzeit das Hauptbad im OG über dem Wohnzimmer. Seht ihr darin mehrere Probleme, die nicht so einfach gelöst werden können?...