Grundriss zur Diskussion

Diskutiere Grundriss zur Diskussion im Architektur Allgemein Forum im Bereich Architektur; ...und zum Grundriß: Nun ja...gibt Schlimmeres! Aber: EG - WC im EG funktioniert schlichtweg nicht (außer für Schlangenmenschen!) -...

  1. #21 Thomas B, 20.09.2009
    Thomas B

    Thomas B

    Dabei seit:
    17.08.2005
    Beiträge:
    11.181
    Zustimmungen:
    4
    Beruf:
    Dipl.Ing.
    ...und zum Grundriß:

    Nun ja...gibt Schlimmeres! Aber:

    EG
    - WC im EG funktioniert schlichtweg nicht (außer für Schlangenmenschen!)
    - Belichtung von Raum 2 im EG äußerst dürftig (Dunkelkammer?)
    - Statik muß überprüft werden: Wie/ wo sollen Decken aufliegen??? Tragende Wände!

    OG
    - nochmal Statik: 24 er Wand steht auf dem Deckenfeld. Nichts drunter => Risse sind vorprogrammiert!
    - Belichtung beider kinderzimmer ist bestenfalls als schlecht zu bezeichnen.
    - Zugang Schlafzimmer wäre nichts für mich: Man kommt rein und läuft in die Ankleide, Würde ich komplett drehen: Ankleide an die Außenwand.
    - Kenne mich mit Sauna snicht so aus, erscheint mir aber auch äußerst sparsam am Platzverbrauch.
    - Was findet in Raum 3 statt? wenn Abstellraum, so hat dieser eine bessere Belichtung als die Kinderzimmer. Symphatisch!

    Flachdach und gradläufige Treppe machen noch keinen guten Entwurf. Ich finde es noch sehr verbesserungsbedürftig.

    Thomas
     
  2. #22 FeuersteinFred, 20.09.2009
    FeuersteinFred

    FeuersteinFred

    Dabei seit:
    19.09.2009
    Beiträge:
    85
    Zustimmungen:
    0
    Beruf:
    Elektroingenieur
    Ort:
    Darmstadt
    Sorry, aber ich kann Eure Interpretationen einer "Speisekammer" nicht nachvollziehen. Weder ein Schrank noch ein zusätzlicher Kühlschrank extra für Obst u. Gemüse, können keine Speisekammer ersetzen.
    Aber vielleicht gehört Ihr ja auch zu den Leuten, die niemals auf einen Keller verzichten würden, um nicht auf den Genuss herumzukommen, die Getränkekisten und ihr Gemüse ständig die Treppe hoch und runter zu tragen oder Euch aus Tiefkühltruhen ernährt?
    Das muss jeder selber entscheiden. Aber nur um Tiefkühlkost in der Mikrowelle warm zu machen, braucht man auch keine große Küche. Eure Argumente gegen eine Speisekammer sind doch aus der Not an den Haaren herbeigezogen, weil Ihr anscheinend einfach zu wenig Platz habt, und weil Ihr ganz einfach andere Prioritäten setzt.
    Fred
     
  3. #23 meinHaus500, 20.09.2009
    meinHaus500

    meinHaus500

    Dabei seit:
    31.08.2008
    Beiträge:
    461
    Zustimmungen:
    0
    Beruf:
    Bankkauffrau
    Ort:
    NRW, Raum Düsseldorf
    Was bitte genau sieht die Bauordnung vor?

    Wie meinst du das? Es sieht hier doch offensichtlich so aus, oder?

    Was stellst du hier für seltsame Mutmaßungen an? Warum sollte es nicht möglich sein ein Passivhaus zu haben und eine Tür zur Garage?

    Wie oft bist du in einem Haus, in dem so gewohnt wird? Ich habe den Eindruck - nie!

    Worin besteht denn jetzt der Unterschied, ob ich nun durch die Haustür oder die Garage das Haus betrete? Ich gehe auch fast nur durch die Garage. Ganz einfach aus dem Grund, weil es der kürzeste und ganz sicher auch trockenste Weg ist.

    Mein Auto mache ich übrigens aus bevor ich aussteige, du nicht?

    Ach ja, und mein Einkaufstrolly steht auch in der Garage. Ich muss ihn also auch mit dreckigen Rädern nicht durchs Haus rollen.
     
  4. #24 meinHaus500, 20.09.2009
    meinHaus500

    meinHaus500

    Dabei seit:
    31.08.2008
    Beiträge:
    461
    Zustimmungen:
    0
    Beruf:
    Bankkauffrau
    Ort:
    NRW, Raum Düsseldorf
    Bei uns lagern gar keine Lebensmittel im Keller, eben weil unser Haus/Küche groß ist. Deine Argumentation ist unlogisch.

    Oh entschuldige, doch, der Wein ist im Keller.
     
  5. #25 ManfredH, 20.09.2009
    ManfredH

    ManfredH Gast

    Da du nicht weisst, wo ich wohne und welche Anbindung an ÖPNV es da gibt (oder besser: nicht gibt), kannst du dir Spekulationen oder gar unterschwellige Missbilligung über unsere Autofahrgepflogenheiten getrost ersparen.

    Wie soll es damit aussehen? Wenn du der Meinung bist, dass eine direkt Verbindung von einem Einfamilienhaus in eine Garage baurechtlich unzulässig ist, dann begründe das. Wenn du davon keine Ahnung hast, dann spar dir deine Kommentare.

    Blödsinn. Heizt du deinen Vorgarten, wenn du durch die Haustür ins Haus spazierst ? So gesehen ist die Garage sogar noch verteilhaft, weil Pufferraum.

    Nun lass mal die Kirche im Dorf. Der Energieberater bin ich selber. Allerdings verfüge ich auch als solcher noch über ausreichend gesunden Menschenverstand und erlaube mir, Dinge im Gesamtzusammenhang zu sehen und einzuordnen - wahrscheinlich nicht zuletzt aufgrund der Architektentätigkeit, die typischerweise eine ganzheitliche Sichtweise der verschiedensten Belange erfordert.
    Was ich zu den (meist praxis- und berufsfremden) Erbsenzählern sage, die glauben, ihr oft nur theoretisch angeeignetes (Halb-?)wissen über Einzelaspekte sei die alleinige Wahrheit, die zu 150% umgesetzt werden müsse, das behalte ich für mich

    Heul doch !
     
  6. #26 ManfredH, 20.09.2009
    ManfredH

    ManfredH Gast

    Ach, FeuersteinFred, das hab ich ja ganz vergessen:

    Neben und über unserer Garagentür ist die Wand gedämmt, und wenn die Tür mal auf ist, dann macht das gar nichts ... die Lücke wird dann von den anderen Dämmplatten strahlungstechnisch ausgeglichen ...

    :mega_lol:
     
  7. #27 lawrence, 20.09.2009
    lawrence

    lawrence

    Dabei seit:
    01.05.2009
    Beiträge:
    1.389
    Zustimmungen:
    1
    Beruf:
    selbständig
    Ort:
    Nordbaden

    Gemüse und Obst lagere ich in der Küche, entweder im Vorrats-; Kühlschrank oder auf der AP. Getränkekisten(bestimmt zur Kühlung) lagern bei mir in einem Schubschrank direkt neben dem Kühlschrank oder auch in einem Vorratsschrank, bin nämlich lauffaul. Genauso wie Altglas also auch PET-Flaschen in einem Schubschrank verschwinden. Mein Küche habe ich so geplant, dass alles in Schränken verschwindet.

    Ich bin passionierter Hobbykoch und koche 3-4/Woche ganz frisch....
     
  8. #28 FeuersteinFred, 20.09.2009
    FeuersteinFred

    FeuersteinFred

    Dabei seit:
    19.09.2009
    Beiträge:
    85
    Zustimmungen:
    0
    Beruf:
    Elektroingenieur
    Ort:
    Darmstadt
    hört sich gut an. Aber wo tust Du z.B. das Essen hin, was Du vielleicht für den nächsten Tag gekocht hast bzgl. übrig hast? Und den Blechkuchen und die Torte zum Geburtstag?
    Fred
     
  9. #29 Schwarz, 20.09.2009
    Schwarz

    Schwarz

    Dabei seit:
    22.04.2009
    Beiträge:
    681
    Zustimmungen:
    2
    Beruf:
    Architekt
    Ort:
    Hessen
    jepp, können ja auch ruhig 200cm-elemente sein. aber doch nicht da, wo es keinen sinn macht, oder?

    nehmen wir mal euren begehbaren kleiderschrank:
    da sind rechts und links schränke angeordnet? stehen die möglicherweise in das fenster seitlich hinein?
    kann man (ich unterstelle mal, dass die fenster öffenbar sind und ansonsten zweiflüglig) die fenster, wenn die schränke so dort stehen gut öffnen?

    selbiges gilt für den den raum 3 im og, wenn der mal möbliert werden sollte. und ich kenne wenig derartige (abstell?)-räume wo nicht wenigstens ein regal und später der alte kinderzimmerschrank hineinkomt.

    mit dem badewannenerker sehe ich immer noch ein genehmgigungsrechtliches problem. gemäß maßkette tritt er mehr als 1.50m vor die aussenwand, ist er bestimmt keine 2m von der grenze entfernt und habe ich meine zweifel ob er als eingeschossig durchgeht. er erzeugt also eine abstandsfläche.
    so, ich habe mir das jetzt mal skaliert und in cad gemessen. er ist also tatsächlich 1.54m von der grenze entfert. hmmmm?
    mit zustimmung des nachbarn? abweichung? hä? baulast? also, ich weiß nicht. das habe ich schon anders erlebt.

    die tür zur garage würde ich ebenfalls nicht so kritisch sehen. das hat der Manfred ja schon sehr schön beschrieben.

    und sehe ich das richtig, dass die garage länger als 9m ist? das würde ich vielleicht für den bauantrag ändern.

    schwarz
     
  10. #30 meinHaus500, 20.09.2009
    meinHaus500

    meinHaus500

    Dabei seit:
    31.08.2008
    Beiträge:
    461
    Zustimmungen:
    0
    Beruf:
    Bankkauffrau
    Ort:
    NRW, Raum Düsseldorf
    Hm, gute Frage.

    Wenn noch viel Essen übrig ist wird es eingefroren. Meine Familie möchte nicht tagelang das gleiche Gericht essen. Wenn es wenig ist, dann ist es spätestens am nächsten Mittag weg. Und solange steht es auf dem Herd, weil jeder mal zwischendurch einen Happen isst.

    Torten haben wir nicht, wir backen so gut wie gar nicht, wir kochen lieber und viel besser. :D Also der Kuchen wird von den Gästen (Schwiegermama und Co.) mitgebracht und sofort gegessen oder eben auch eingefroren, mit zur Schule oder/und Arbeit gegeben oder auch unter den Gästen (Familienmitgliedern) aufgeteilt. Ansonsten gibt es bei uns häufiger Waffeln.

    Also wir sind auch bezüglich Essen keine Sammler. ;)
     
  11. #31 FeuersteinFred, 20.09.2009
    FeuersteinFred

    FeuersteinFred

    Dabei seit:
    19.09.2009
    Beiträge:
    85
    Zustimmungen:
    0
    Beruf:
    Elektroingenieur
    Ort:
    Darmstadt
    naja, das mit dem Einfrieren ist immer so ne Sache. Meiner Meinung gibt es nicht viel, was sich ohne Konsistenz- und Geschmackverlust einfrieren lässt. Aber das ist eben Geschmackssache.
    Ich koche ja auch nicht für 1 Woche im Vorraus. Aber wenn mal was übrig bleibt, stellen wir die Reste in die Speisekammer und weg sind sie....bis Abends dann... .
    Auch das Obst wie Ananas, Weintrauben usw. kommt in die Kammer. Die Obstfleigen in der Küche lassen sich sonst nicht wirklich vermeiden.
    Was das Sammeln angeht, sind wir was unseren Lebensmittelvorrat angeht, Messis... .
    Wir kochen gerne mediteran, indisch, thai usw. . Da sammelt sich einiges an Soßen u. Gewürzen an wie auch Kokosmilch, Passierte Tomaten, Oliven, verschiedene Nudelsorten, Sack Basmatireis, Kanister natives Olivenöl, Essigsorten, Marsala für Tiramisu usw. Dann noch die vielen Gläser selbst eingemachte Marmelade. Dazu kommt die Palette Milch, verschiednen Mehlsorten, .... Unsere Speisekammer gleicht einem kleinen Spezialitätenmarkt. Da ist es, so finde ich, einfacher und übersichtlicher die Dinge in einem "begehbaren" Vorratsschrank zu stellen. Vor dem Schrank steht eben ein großer Tisch, auf dem man mal vorbereitetes Essen oder Reste für kurze Zeit abstellen kann, so dass sie aus den Augen sind. Dann sieht die Küche auch immer schön aufgeräumt aus. Ich hasse es, wenn die Arbeitsplatte mit Zeug voll steht.
    Aber jeder wie er will. Es wurde hier nur um Meinungen zum Umriss gefragt. Ich habe eben nur eine Speisekammer vorgeschlagen. Will ja niemanden zwingen. Denke wenn man entsprechenden Schränke in seine Küche eingeplant hat und damit gut zurecht kommt, warum denn nich? [​IMG]
     
  12. #32 meinHaus500, 20.09.2009
    meinHaus500

    meinHaus500

    Dabei seit:
    31.08.2008
    Beiträge:
    461
    Zustimmungen:
    0
    Beruf:
    Bankkauffrau
    Ort:
    NRW, Raum Düsseldorf
    Ja die Gewohnheiten sind verschieden. Auch ein Grund, warum Häuser/Grundrisse verschieden sein sollten.

    Wir kochen z.B. immer für abends. So steht das übrig gebliebenen Essen (falls es etwas gibt) über Nacht in der Küche, stört keinen.

    Obst würde bei uns niemand essen wenn es hinter einer Tür "versteckt" wäre.

    Meine Vorräte bestehen nur aus Lebensmitteln, die eine längere Lagerung schadlos überstehen. Alle frischen Sachen kann ich hier schnell einkaufen, manchmal erledigen das inzwischen auch gern die Kinder.

    :bef1002:
     
  13. #33 driver55, 20.09.2009
    driver55

    driver55

    Dabei seit:
    22.02.2008
    Beiträge:
    6.812
    Zustimmungen:
    1.759
    Beruf:
    Dipl.-Ing.
    Ort:
    Pforzheim
    Passt doch alles...:D

    Übrigens: Eine Speisekammer im Hause, bzw. neben der Küche, wird nie kühl sein. Wie auch?

    Zum Haus:
    Ein bemasster Irrgarten, aus dem man, wenn man einige Ecken/Vorsprünge etc. weglässt, duchaus was machen könnte. Vom Grundriss her ist doch genügend Platz.
    WC: Das Waschbecken im Fenster und in der Türe ist aber schon g..l.
    Dafür aber 2 Fenster, Respekt!
    ....
    ....
    ....
    Doppelgarage: Ist dann wirklich nur zum Abstellen von 2 Fzgen gedacht, denn mit Werkbank, Werkzeug allgemein und Fahrräder etc. ist dann nichts mehr...
    Und stockdunkel ist sie zudem auch noch ...


    ...Ihr habt doch einen Architekten...der wird's schon richten.
     
  14. #34 Headhunter2, 20.09.2009
    Headhunter2

    Headhunter2

    Dabei seit:
    15.03.2009
    Beiträge:
    557
    Zustimmungen:
    2
    Beruf:
    IT'ler
    Ort:
    Bayern
    N Abend,

    vieles wurde schon gesagt, mir sind spontan noch 2 Sachen aufgefallen:

    - wenn schon Bad als Wohlfühloase mit Sauna, freistehender Wanne usw., dann hat das Klo meiner Meinung nach in dem Raum nichts verloren (pers. Meinung)
    - Baust du an die Badewanne dann nen Rückspiegel, dass du aus beiden Fenstern gleichzeitig sehen kannst?
     
  15. #35 meinHaus500, 20.09.2009
    meinHaus500

    meinHaus500

    Dabei seit:
    31.08.2008
    Beiträge:
    461
    Zustimmungen:
    0
    Beruf:
    Bankkauffrau
    Ort:
    NRW, Raum Düsseldorf
    Quatsch, die gehen zu zweit in die Badewanne, für jeden ein Fenster.
     
  16. #36 FlorianE, 20.09.2009
    FlorianE

    FlorianE

    Dabei seit:
    09.07.2009
    Beiträge:
    16
    Zustimmungen:
    0
    Beruf:
    IT-Systemelektroniker
    Ort:
    Augsburg
    Hallo,

    so das war schon mal ganz schön viel Input für einen Sonntagnachmittag,

    - d.h Unsere "Badwarze" darf nur 1,0 m ausragen, damit die Anforderung Erker erfüllt bleibt, dadurch könnte man ihn auch gleich weglassen.
    - Das mit dem Rückspiegel wäre nicht schlecht, aber für normal gehen wir eigentlich immer zu zweit Baden.
    - Das WC im EG, ja die Einrichtung hab ich eingezeichnet, aber ein Waschbecken unter einem Fenster mit 150cm Brüstungshöhe sehe ich nicht so tragisch, trotzdem ist die Anordnung bescheiden.
    - Die Garage ist eigentlich für das Auto meiner Frau und meinen Oldtimer (englischer Roadster) der nicht besonders groß ist. Mit der Helligkeit sehe ich kein Problem kommen halt genug Lampen hoch.
    - Die Überlegung ist das Büro im EG für einen größeren Lagerraum/Technikraum aufzugeben.
    - Die Sauna ist als Infrarotkabine mit 150x140 geplant, sollte also passen.
    - Das Büro im 1.OG wird auch als Büro für mich/uns genutzt, da ist ein bodentiefes Element und ein "Oberlicht", um Regale drunter zu parken.
    - Zur Statik, unser Architekt hat das auch schon angemerkt, aber er meinte die westliche Wand des Büros im EG als 24er auszuführen, und in selber Flucht einen deckengleichen Unterzug zu setzen,
    wodurch die Filigrandecken dann von Ost nach West spannen sollen. (Ich hoff ich hab des richtig verstanden) oder so ähnlich.
    - Die Garage ist genau 9,0 m lang sollte also keine Probleme geben.
    - Das mit dem Fenster in der Ankleide ist richtig, das muss schmäler werde.
    Danke vielmals
     
  17. #37 FlorianE, 20.09.2009
    FlorianE

    FlorianE

    Dabei seit:
    09.07.2009
    Beiträge:
    16
    Zustimmungen:
    0
    Beruf:
    IT-Systemelektroniker
    Ort:
    Augsburg
    Da war schon einer schneller, ja wir gehen zu zweit baden!:bounce:
     
  18. #38 meinHaus500, 20.09.2009
    meinHaus500

    meinHaus500

    Dabei seit:
    31.08.2008
    Beiträge:
    461
    Zustimmungen:
    0
    Beruf:
    Bankkauffrau
    Ort:
    NRW, Raum Düsseldorf
    Im Gäste-WC könnten größere Menschen mit den Knien ans Waschbecken stoßen. Oder soll da nur so ein Minihändewaschdings hin?

    Das kleine Bad im OG wird nicht funktionieren. Wo sollen denn z.B. die Installationen für das WC hin? Die Dusche ist zu klein und ergibt zusammen mit dem Waschbecken einen netten Slalom-Parcours.

    Das Fenster im Ankleidebereich wurde schon angesprochen. Dort sollte ein kleines Fenster mittig platziert werden. Dann können rechts und links die Schränke bis an die Wand gestellt werden. - Ich finde es gut, wenn man nicht direkt beim öffnen der Tür vor das Bett läuft.

    Die Sauna könnte etwas zu kurz sein. Eine Bank mit ca. 2 m Länge ist schon ratsam damit man sich entspannt hinlegen kann. Um die Sauna herum sind ca. 5 cm Platz einzuplanen.

    Eine Kleinigkeit: Mach den Mauervorsprung HWR/Küche so breit wie die Küchenschränke. Das sieht sonst etwas komisch aus.
     
  19. #39 norinofu, 20.09.2009
    norinofu

    norinofu

    Dabei seit:
    12.06.2007
    Beiträge:
    176
    Zustimmungen:
    0
    Beruf:
    IT
    Ort:
    Baden-Württemberg
    Im ersten Moment haben mich die Entwürfe an unser Haus erinnert. Integrierte Garage, Rücksprung im Eingangs- und Wohn-/ Essbereich. Unser Architekt hatte im ersten Entwurf nen Balkon im OG über den Rücksprung im Wohn- /Essbereich geplant. Nachdem wir den Rücksprung mit Balkon gestrichen hatten, hatten wir 4 m² mehr Wohnfläche und 20.000 EUR weniger Baukosten.

    Den Rücksprung im Eingangsbereich haben wir behalten, da wir so durch das vorgezogene Garagendach gleich ein Vordach bekommen haben.

    Also, ich würde dem Baukörper ein paar Aussenecken nehmen, dann wirkt der Grundriss nicht so verwinkelt. Die integrierte Garage möchte ich nicht mehr missen. Die freitragende Ecke im OG dürfte aber nen netten Überzug erforderlich machen.

    norinofu
     
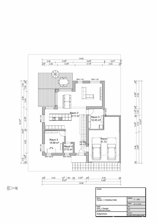
  20. #40 FlorianE, 22.11.2009
    FlorianE

    FlorianE

    Dabei seit:
    09.07.2009
    Beiträge:
    16
    Zustimmungen:
    0
    Beruf:
    IT-Systemelektroniker
    Ort:
    Augsburg
    Neue Grundrisse

    Hallo zusammen,

    aufgrund euerer Anregungen und Ideen, haben wir unseren Erstenwurf ein wenig angepasst. Uns war wichtig noch mehr Stauraum zu schaffen, durch die Vergrößerung der Garage. Ausserdem haben wir den Hausanschlußraum mit dem HWR zusammengelgt. Wir haben versuch die Zerklüftete Aussenfassade ein wenig zu glätten.
    Wir sind auf eure Kommentare gespannt.



    Liebe Grüsse
    http://www.bauexpertenforum.de/vbimghost.php?do=displayimg&imgid=3395

    http://www.bauexpertenforum.de/vbimghost.php?do=displayimg&imgid=3396
     
Thema:

Grundriss zur Diskussion

Die Seite wird geladen...

Grundriss zur Diskussion - Ähnliche Themen

  1. Neubau - Grundriss Diskussion

    Neubau - Grundriss Diskussion: Hallo zusammen, wir hatten die ersten Gespräche mit unserem Architekten und ich wollte mal eure Meinungen zum Grundstück und zur Bebauung des...
  2. Grundriss Diskussion

    Grundriss Diskussion: Hallo, Ich hänge mal meinen Grundriss an und würde mich über Meinungen freuen. D "Kaminecke" war unser Wunsch. Wir haben die maximale Breite vom...
  3. Grundriss - Bitte um Diskussion

    Grundriss - Bitte um Diskussion: Hallo liebe Forumsmitglieder, ich würde mich über jede Kritik und Anregung zu unseren ersten Vorplanungen freuen! Es soll ein EFH für 5 Personen...
  4. Mein Grundriss - Diskussion erwünscht

    Mein Grundriss - Diskussion erwünscht: gelöscht
  5. Stadtvilla m. DG & Keller | Grundriss-Diskussion

    Stadtvilla m. DG & Keller | Grundriss-Diskussion: Hallo Zusammen, ich bin derzeit fleißig am Grundriss planen / zeichnen und möchte euch diese mal hier zu Diskussion freigeben ;-). Was haben...