Grundriss

Diskutiere Grundriss im Architektur Allgemein Forum im Bereich Architektur; Hallo, könnte ich ein paar Meinungen zu den geplanten Grundrissen haben. Wo seht ihr Probleme, bzw. was könnte verbessert werden. Für...

  1. #1 mweb1408, 28.10.2019
    mweb1408

    mweb1408

    Dabei seit:
    28.10.2019
    Beiträge:
    1
    Zustimmungen:
    0
    Hallo,

    könnte ich ein paar Meinungen zu den geplanten Grundrissen haben. Wo seht ihr Probleme, bzw. was könnte verbessert werden.
    Für konstruktive Ideen bzw. Anmerkungen wäre ich dankbar.
    Süden ist immer Oben des Grundrisses.
     

    Anhänge:

    • EG.png
      EG.png
      Dateigröße:
      205 KB
      Aufrufe:
      501
    • OG.png
      OG.png
      Dateigröße:
      171,9 KB
      Aufrufe:
      511
  2. #2 Gast82596, 28.10.2019
    Gast82596

    Gast82596 Gast

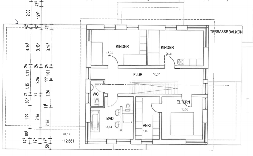
    Die Türe Diele zur Treppe im EG würde ich streichen.
     
  3. #3 driver55, 28.10.2019
    driver55

    driver55

    Dabei seit:
    22.02.2008
    Beiträge:
    6.898
    Zustimmungen:
    1.809
    Beruf:
    Dipl.-Ing.
    Ort:
    Pforzheim
    Der Eingangsbereich sagt mir garnicht zu. Zweimal um die Ecke um in den Wohn/Essbereich zu kommen. Weite Wege zur Küche/Speisekammer. Küche viel zu groß, Esstisch wirkt dagegen gequetscht. Zu viel Flur, vor allem oben. Positionen von Bad/Ankleide/Schlafen schlecht. Ankleide zum Bad 1. weit, 2. immer durch Schlafen. Ich hätte die qm lieber in kind1/2 statt im Flur. Ankl. so nur mit Schiebetüren, sonst zu schmal.
     
  4. #4 Kriminelle, 28.10.2019
    Kriminelle

    Kriminelle

    Dabei seit:
    16.05.2013
    Beiträge:
    3.747
    Zustimmungen:
    2.075
    Beruf:
    .
    Ort:
    Niedersachsen
    Viel zu viel Flurfläche, unten wie oben. Zwei nicht übereinander liegende Treppen verbrauchen zusätzlich unnötig viel Platz. Kost ja nicht nur alles, sondern nimmt Behaglichkeit.
    Dusche im EG würde ich drehen, Treppe erscheint zu kurz, Essbereich müsste zu klein ausfallen bei den restlichen Maßen in Beziehung der QM.
    Mir persönlich wäre der weit hinten liegende Zugang zu dem Lebens-/Allraum -> Küche zu weit vom Eingang weg. Speis ist zu schmal, um sie richtig nutzen zu können.
    Oben würde ich eher die Ankleide nach vorn setzen.
     
  5. #5 BobDerWuehler, 29.10.2019
    BobDerWuehler

    BobDerWuehler

    Dabei seit:
    17.10.2019
    Beiträge:
    138
    Zustimmungen:
    18
    Begründung??? Ich habe momentan eine Küche von 14m² und sie ist uns mit 4 Personen viel zu klein. Geschmacksache. Die Toilette im Bad ist meiner Meinung nach etwas unglücklich positioniert. Es gibt Leute, die vergessen die Tür abzuschließen ;)
     
  6. #6 driver55, 29.10.2019
    Zuletzt bearbeitet: 29.10.2019
    driver55

    driver55

    Dabei seit:
    22.02.2008
    Beiträge:
    6.898
    Zustimmungen:
    1.809
    Beruf:
    Dipl.-Ing.
    Ort:
    Pforzheim
    Küche zum Kochen oder Küche zum Kochen mit Esstisch? Den sehe ich hier ja nicht. Nur 4 Hocker an der Kochinsel. Über 20 qm Küche und dann ein rel. kleiner Essplatz. Zudem sehe ich diese 3,19 m Schleuse Essen / Wohnen als hinderlich an.

    Ergänzung: Was mir gerade auffällt. Das Haus, sowohl EG als auch OG, besteht fast nur aus Fenstern.
     
  7. #7 BobDerWuehler, 29.10.2019
    BobDerWuehler

    BobDerWuehler

    Dabei seit:
    17.10.2019
    Beiträge:
    138
    Zustimmungen:
    18
    Mit kleinem Esstisch 120 x 80
     
  8. #8 BobDerWuehler, 29.10.2019
    BobDerWuehler

    BobDerWuehler

    Dabei seit:
    17.10.2019
    Beiträge:
    138
    Zustimmungen:
    18
    Hier noch meine aktuelle Planung
     

    Anhänge:

  9. #9 driver55, 29.10.2019
    driver55

    driver55

    Dabei seit:
    22.02.2008
    Beiträge:
    6.898
    Zustimmungen:
    1.809
    Beruf:
    Dipl.-Ing.
    Ort:
    Pforzheim
    Mach ein eigenes Thema auf...
     
  10. #10 Kriminelle, 02.11.2019
    Kriminelle

    Kriminelle

    Dabei seit:
    16.05.2013
    Beiträge:
    3.747
    Zustimmungen:
    2.075
    Beruf:
    .
    Ort:
    Niedersachsen
    die interessiert den TE wohl nicht.
    Allerdings: Resonanz von @mweb1408 hält sich in der Grenze, die man Frechheit nennt
     
  11. #11 driver55, 02.11.2019
    driver55

    driver55

    Dabei seit:
    22.02.2008
    Beiträge:
    6.898
    Zustimmungen:
    1.809
    Beruf:
    Dipl.-Ing.
    Ort:
    Pforzheim
    Vermutlich nach Diktat verreist...:D
     
  12. Nauer

    Nauer

    Dabei seit:
    24.09.2017
    Beiträge:
    107
    Zustimmungen:
    17
    Beruf:
    Ingenieur
    Gibt ja auch bessere Foren für Grundrissfragen...
     
  13. 11ant

    11ant

    Dabei seit:
    28.02.2017
    Beiträge:
    2.501
    Zustimmungen:
    1.578
    Beruf:
    Bauherrenberater
    Ort:
    RLP Nord
    Benutzertitelzusatz:
    bringt Sie gut beraten ins Eigenheim
    Sind die geheim, oder wo findet man die ? - Hic Rhodos, nenn´ mal Beispiele.
     
  14. Nauer

    Nauer

    Dabei seit:
    24.09.2017
    Beiträge:
    107
    Zustimmungen:
    17
    Beruf:
    Ingenieur
  15. 11ant

    11ant

    Dabei seit:
    28.02.2017
    Beiträge:
    2.501
    Zustimmungen:
    1.578
    Beruf:
    Bauherrenberater
    Ort:
    RLP Nord
    Benutzertitelzusatz:
    bringt Sie gut beraten ins Eigenheim
    Hihi, guter Scherz. Es wurde gefragt, wo der TE wohl abgeblieben sei - und mit der Vermutung beantwortet, er sei nach Diktat verreist. Das deute ich mal als Unterstellung, der Grund seiner Absenz könne im Mangel an geerntetem Applaus für seinen Grundriß liegen. Und genau dann käme man im Hausbauforum vom Regen in die Traufe: die konstruktive Grundrißkritik ist dort wohl zahlreicher als hier, jedoch geschont wird ein Laien- oder sonstig vom Optimum noch weit entfernter Entwurf dort nun gerade nicht. Aus Enttäuschung über wenig Schulterklopfen und / oder "Demontage" des geliebten (Eigen)entwurfes dorthin weiterzuziehen, wäre wenig erquicklich.
     
Thema:

Grundriss

Die Seite wird geladen...

Grundriss - Ähnliche Themen

  1. Grundriss Bewertung Architektenhaus

    Grundriss Bewertung Architektenhaus: Hallo zusammen, wir wären über euren Input sehr dankbar. Was kann man verbessern? Was würdet ihr ändern? 1. Wir sind: Familie mit einem Kind...
  2. Hilfe Grundriss Untergeschoss

    Hilfe Grundriss Untergeschoss: Ich benötige etwas Hilfe beim Grundriss für das Untergeschoss. Ich würde gerne die Eingangstür nach Süden legen, da dort die Straße ist. Außerdem...
  3. Neubau – Grundriss, Firstrichtung und Vorgehen

    Neubau – Grundriss, Firstrichtung und Vorgehen: Hallo zusammen, wir sind noch ganz am Anfang unseres Bauprojekts: das Grundstück steht fest (muss noch geteilt und umgeschrieben werden,...
  4. Grundriss EFH 150m2 (Hang, Souterrain, ELW) – Feedback zu Effizienz & Raumaufteilung

    Grundriss EFH 150m2 (Hang, Souterrain, ELW) – Feedback zu Effizienz & Raumaufteilung: Hallo liebe Bauexperten, wir planen ein Eigenheim mit ELW in Hanglage und haben uns schon zahlreiche Gedanken gemacht. Ich möchte die Chancen, die...
  5. Symbol Grundriss ca. 1875 Preußen Bitte um Erklärung

    Symbol Grundriss ca. 1875 Preußen Bitte um Erklärung: Hallo, ich habe vor einiger Zeit eine alte Försterei gekauft und suchte ewig nach Bauzeichnungen oder Grundrissen dazu. Lange Story kurz, ich...