Grundrissdebatte - EFH für 6-köpfige Familie, behindertengeeignet

Diskutiere Grundrissdebatte - EFH für 6-köpfige Familie, behindertengeeignet im Architektur Allgemein Forum im Bereich Architektur; Hallo in die Runde, wir planen den Neubau eines freistehenden Einfamilienhauses für unsere 6-köpfige Familie. Die Kinder sind zur geplanten...

  1. #1 Obstriegel, 08.08.2017
    Obstriegel

    Obstriegel

    Dabei seit:
    26.07.2017
    Beiträge:
    16
    Zustimmungen:
    0
    Beruf:
    außerhalb der Baubranche
    Ort:
    Rheinland-Pfalz
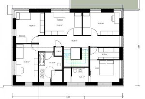
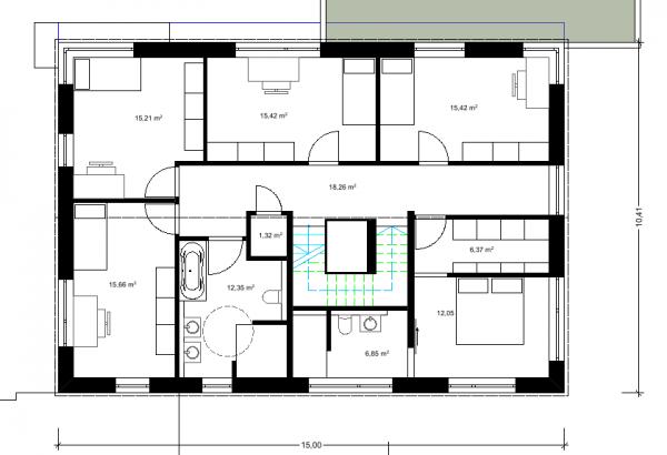
    Hallo in die Runde,

    wir planen den Neubau eines freistehenden Einfamilienhauses für unsere 6-köpfige Familie.

    Die Kinder sind zur geplanten Fertigstellung 5 (oder 6) - 12 Jahre alt, eines der Kinder ist Rolli-Fahrer, daher ist ein Aufzug geplant.

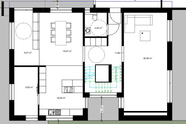
    Wir wissen die Großzügigkeit einer offenen Bauweise zu schätzen, neigen aber trotzdem dazu, das Wohnzimmer abgetrennt von Küche etc. und damit ruhiger zu haben.

    Die Küche würden wir evtl. mit dem Essbereich tauschen, um letzterem die Südausrichtung zu gönnen.

    Die Bilder sind nach Norden ausgerichtet (Norden oben).

    Für Eure Meinungen und Gedanken zu unserem Grundriss (zurzeit im Vorentwurf) im Voraus vielen Dank.

    Freundliche Grüße, Obstriegel
     

    Anhänge:

  2. 11ant

    11ant

    Dabei seit:
    28.02.2017
    Beiträge:
    2.491
    Zustimmungen:
    1.568
    Beruf:
    Bauherrenberater
    Ort:
    RLP Nord
    Benutzertitelzusatz:
    bringt Sie gut beraten ins Eigenheim
    Ist das Rollifahrer-Kind sehr selbständig ? - die Durchgangsmaße / Aktionsradien scheinen mir für ohne begleitenden Fußgänger bemessen zu sein.
    Im Treppenauge soll man sich wohl einen Fahrstuhl vorstellen (wobei ich keine Grube und kein Maschinenhaus sehe) ?
     
  3. #3 Onkel Dagobert, 09.08.2017
    Onkel Dagobert

    Onkel Dagobert

    Dabei seit:
    23.10.2014
    Beiträge:
    724
    Zustimmungen:
    33
    Beruf:
    Bauingenieur
    Ort:
    Emlichheim (Nds.)
    Die Haupteingangstür ist nicht rollstuhlgerecht! Um diese Tür bequem mit einem Rolli zu benutzen muss neben der Tür an der Drückerseite min. 0,50m Platz zur nächsten Wand sein. Dann kann man mit dem Rolli schräg daneben fahren um die Tür zu öffnen.
    Davon abgesehen wäre mir der Eingangsbereich sowieso zu eng und schlauchig.
     
  4. #4 Andybaut, 09.08.2017
    Andybaut

    Andybaut

    Dabei seit:
    02.04.2015
    Beiträge:
    5.127
    Zustimmungen:
    329
    Beruf:
    Architekt
    Ort:
    Baden-Württemberg
    Hallo,

    es fehlt mir der Wendekreis im OG Flur und eine Überprüfung der Türöffnungsmöglichkeiten.
    https://vm.baden-wuerttemberg.de/fi...schueren/Barrierefreies_Bauen_Vorwort_MIN.pdf
    Seite 18 macht das deutlich. Wie kriegt ein Rollifahrer die Hauseingangstüre auf ? Aus meiner Sicht beinahe gar nicht.
    Er kommt zum Griff und muss diesen dann beim nach hinten fahren festhalten um die Türe zu öffnen.

    Mit der Lektüre sollte man sich ein wenig beschäftigen oder selbst in einen Rollstuhl sitzen und so manches zuhause mal testen :-)
    Ansonsten: ja könnte alles funktionieren, ist aber nicht wirklich dolle, sorry.
    Diese Nische im EG um Licht zur Treppe zu bekommen ist aus meiner Sicht nix. Weg damit und die Speißekammer der Küche dorthin verlegen.

    Die Umkleide im Elternzimmer vor dem Bett ? Nicht so dolle. Ich würde mir den langen Flur im OG sparen und lieber eines der beiden Zimmer rechts
    größer machen. Dann fehlt der Tageslichteinfall, den ich durch ein Dachfenster herstellen würde. Dann wird das Treppenhaus auch wirlich hell.
    Die Sonne schafft es von rechts außen bis nach links ohnehin nicht das ganze hell zu kriegen. Die Strecke ist zu lang.

    Die Aufteilung Wohnen und Essen im EG ist vermutlich so gewünscht. Ungewöhnlich, aber wenn das euer Ding ist, OK.
    Für mich zerschneidet das Treppenhaus euer Haus im EG. Quasi wie ein Schnitt mitten durchs Herz.
    Ein Prof. von mir sprach von der Seele, dem Mittelpunkt des Hauses, den man irgendwo finden sollte. Wenn ich mir den
    Grundriss so ansehe wird es mir klar was er meinte. Der Entwurf ist quasi der Kontrapunkt dazu.

    Was ich tun würde:
    Die ganze Treppe nach rechts oben und den Eingang vielleicht noch ein bisserl weiter nach rechts. Das verlorene Zimmer dadurch nach Süden (?)
    Falls das denn geht und die Überfahrt des Aufzugs nicht der Grund für die Position der Treppe ist.
     
  5. #5 Obstriegel, 10.08.2017
    Obstriegel

    Obstriegel

    Dabei seit:
    26.07.2017
    Beiträge:
    16
    Zustimmungen:
    0
    Beruf:
    außerhalb der Baubranche
    Ort:
    Rheinland-Pfalz
    @11ant
    Das Kind kann bei ebenem Untergrund gut mit dem Rolli fahren, insofern muss nicht immer ein Fußgänger dabei sein.
    Genau, in das Treppenauge soll ein Aufzug, hatte ich vergessen zu schreiben.
    Es soll so einer werden, der keinen Maschinenraum oder Überbau braucht, hier müssen wir uns aber noch eingehender informieren.

    @Dagobert
    Danke für den Hinweis mit der Eingangstür, darüber müssen wir also noch nachdenken.
    Den Eingangsbereich finden wir auch etwas schlauchig, das wäre für uns aber ein annehmbarer Kompromiss.
    Aber vielleicht findet sich auch noch eine bessere Lösung.

    @Andybaut
    Danke für die ausführlichen und konkreten Hinweise, die Punkte müssen wir uns näher ansehen, ich schreibe dann noch mal etwas dazu.

    Euch dreien schon mal besten Dank.
     
  6. #6 Onkel Dagobert, 10.08.2017
    Onkel Dagobert

    Onkel Dagobert

    Dabei seit:
    23.10.2014
    Beiträge:
    724
    Zustimmungen:
    33
    Beruf:
    Bauingenieur
    Ort:
    Emlichheim (Nds.)
    Den Eingang sollten ihr definitiv überarbeiten. Das schlauchige ist letztendlich Geschmackssache, aber die Nutzbarkeit für einen Rollstuhlfahrer ist hier seeehr eingeschränkt. Im Bestand, wenn es sein muss, bekommt das ein Rolli-Fahrer der ansonsten fit ist schon hin, aber im Neubau ist das ein absolutes No-Go.

    Was die Einteilung eingeht bin ich voll bei Andybaut. Das Treppenhaus teilt das Haus. Erinnert mich irgendwie an die alten Häuser wo das Wohnzimmer separat war und eigentlich auch nie geheizt war, weil man das nur zu Weihnachten nutzte oder wenn der Pastor kommt.
     
  7. #7 Onkel Dagobert, 10.08.2017
    Onkel Dagobert

    Onkel Dagobert

    Dabei seit:
    23.10.2014
    Beiträge:
    724
    Zustimmungen:
    33
    Beruf:
    Bauingenieur
    Ort:
    Emlichheim (Nds.)
    @Andybaut:
    Das mit der Seele des Hauses finde ich sehr gut. Genau das macht ein Haus sysmpatisch und lebenswert.
    Wir haben das zufällig genauso. vom Eingang kommt man bei uns nur zum Gäste-WC, zum Büro, und dann direkt geradeaus ins (recht großzügig dimensioniert) Esszimmer. Daran schließt sich die offene Küche an, und zur anderen Seite mit einer 2-flg. Schiebetür das Wohnzimmer.
    Dieses Esszimmer ist der absolute Mittelpunkt des Hauses und da spielt sich alles ab. Von hieraus geht es in den Garten, oder über den Hauswirtschaftsraum zum Nebeneingang, wo die Kinder mit dem Fahrrad ankommen usw. Wir haben hier einen großen Esstisch für ca. 8-10 Personen und hier passiert alles. Spielen, Hausaufgaben, Kaffee trinken, Essen natürlich, einfach sitzen und quatschen, usw. usw. eben die "Seele" des Hauses
     
  8. 11ant

    11ant

    Dabei seit:
    28.02.2017
    Beiträge:
    2.491
    Zustimmungen:
    1.568
    Beruf:
    Bauherrenberater
    Ort:
    RLP Nord
    Benutzertitelzusatz:
    bringt Sie gut beraten ins Eigenheim
    Ich meinte damit nicht nur die Bedienung des Rollstuhls selbst.

    Aus meiner Sicht (ich habe u.a. in einem Schwerbehinderten-Wohnheim zivilgedient) wirkt der Entwurf insgesamt wie ein Haus für eine Fußgängerfamilie, nur mit vereinzelt eingezeichneten Wendekreisen und Türverbreiterungen - quasi was sich der Architekturstudent aus der Bäckerblume über behindertengerechtes Bauen erlesen kann - aber weit entfernt von einer konsequenten Umsetzung, die einschlägige Erfahrung unterstellen ließe.
     
  9. #9 Obstriegel, 10.08.2017
    Obstriegel

    Obstriegel

    Dabei seit:
    26.07.2017
    Beiträge:
    16
    Zustimmungen:
    0
    Beruf:
    außerhalb der Baubranche
    Ort:
    Rheinland-Pfalz
    @Andybaut
    - Das mit der Eingangstür (dasselbe meint wohl auch Onkel Dagobert) leuchtet mir ein, da müssen wir wohl noch mal ran.
    - Bei der Nische im EG steht von unserer Seite nicht die Belichtung des Treppenhauses (natürlich auch wichtig) im Vordergrund, sondern der Wunsch, einen kleinen überdachten und schattigen Sitzlplatz draußen zu haben.
    - Was ist genau Dein Kritikpunkt an der Ankleide? (Wir würden gegenüber dem Plan die untere Schrankreihe weglassen, damit man sich besser bewegen kann.)
    - Der lange Flur im OG bzw. das Fenster dient neben der Belichtung auch dazu, dass man raus in die Landschaft schauen kann. Nach Osten haben wir einen ziemlich schönen, unverbaubaren Blick. Wie oft man im Alltag dann dahin läuft und rausschaut, muss sich dann zeigen, aber die Möglichkeit zu haben, gibt uns ein gutes Gefühl. :-) Ein zusätzliches Dachfenster ist natürlich trotzdem eine Überlegung wert, aber inkl. motorisierter Verschattung, die bei der Ausrichtung und Höhe wohl notwendig sein wird, auch ein Kostenfaktor.
    - Die Aufteilung mit dem abgetrennten Wohnzimmer ist sicher etwas ungewöhnlich. Sie ist die Folge unserer Erfahrungen mit 4 Kindern im jetzigen Haus mit offener Bauweise und entsprechender Unruhe. Der ursprüngliche Vorschlag unseres Archtitekten sah auch einen offenen Entwurf vor, die "Aufteilung mit Schnitt" ist auf unserem Mist gewachsen. Der Archi meinte dazu, dass der Essbereich/Kochen zum Zentrum des Hauses wird, und so stelle ich mir das auch vor. Das Wohnzimmer hat in der Tat dann ein bisschen den Charakter von "de beste Kamer", den Dagobert so treffend beschreibt. Ich denke aber, dass er nicht nur an Hochfesten, sondern allabendlich zum Zentrum des Hauses wird. :-)
     
  10. 11ant

    11ant

    Dabei seit:
    28.02.2017
    Beiträge:
    2.491
    Zustimmungen:
    1.568
    Beruf:
    Bauherrenberater
    Ort:
    RLP Nord
    Benutzertitelzusatz:
    bringt Sie gut beraten ins Eigenheim
    Dann kann man sie im Grunde gleich ganz weglassen, denn was ist sie dann mehr als eine einzelne Schrankwand mit Sichtschutzwand, um den Schrank nicht vom Bett aus zu sehen ?
     
  11. #11 Onkel Dagobert, 10.08.2017
    Onkel Dagobert

    Onkel Dagobert

    Dabei seit:
    23.10.2014
    Beiträge:
    724
    Zustimmungen:
    33
    Beruf:
    Bauingenieur
    Ort:
    Emlichheim (Nds.)
    Das sehe ich nicht unbedingt so. Hauptsache es gibt genug Schränke dass man seine Klamotten unterbringt, und die Menge der Klamotten is ja sehr individuell. Ich sehe den Vorteil in so einer Ankleide dass sich einer umziehen kann während der andere noch schläft.
     
  12. #12 Andybaut, 10.08.2017
    Andybaut

    Andybaut

    Dabei seit:
    02.04.2015
    Beiträge:
    5.127
    Zustimmungen:
    329
    Beruf:
    Architekt
    Ort:
    Baden-Württemberg
    na ja, ich find´s halt komisch durch eine Ankleide (tendentiell auch mal unaufgeräumt) in mein Schlafzimmer zu kommen.
    Das eine ist ein Nebenraum, das andere die Nutzung.
    Wenn ich in die Küche gehe, will ich auch nicht über die Speißekammer in die Küche kommen.
    Aber das muss jeder selbst für sich wissen.

    Der Schattenplatz:
    das ist schon eher ein Spaß, oder?
    Für 2 Bistrostühle und eine Minitisch, OK, aber für alles andere ?
    Dann noch mit einem Rollstuhlfahrer?

    Aber wie gesagt, es muss für euch passen. Jeder andere kann hier immer nur seine eigene Meinung geben.
    Was für den einen ein "no go" ist, kann für den anderen ein "Wow, super" sein.
    Solange ihr euch ehrliche und offene Gedanken über die Anregungen macht ist das aus meiner Sicht das wichtigste.
    Ihr müsst am Ende darin wohnen und glücklich werden :-)
     
  13. #13 Kriminelle, 24.08.2017
    Kriminelle

    Kriminelle

    Dabei seit:
    16.05.2013
    Beiträge:
    3.710
    Zustimmungen:
    2.048
    Beruf:
    .
    Ort:
    Niedersachsen
    Zum Eingangsbereich, der auch für Nicht-Gehbehinderte blöd ist, ist genug gesagt.
    Warum bekommt Euer Kind denn kein Zimmer im EG? Immer einen Lift zu fahren, um vom Privatraum zur Familie zu zwitschen, ist sicherlich mühselig.
     
  14. #14 Obstriegel, 24.08.2017
    Obstriegel

    Obstriegel

    Dabei seit:
    26.07.2017
    Beiträge:
    16
    Zustimmungen:
    0
    Beruf:
    außerhalb der Baubranche
    Ort:
    Rheinland-Pfalz
    Ja, der Eingangsbereich wird geändert (Haustür auf der linken Hausseite mit Platz daneben).

    Dem Kind würde es nicht gefallen, allein im EG zu übernachten. Man kann nicht in die Zukunft schauen, aber ich glaube nicht, dass sich das schnell ändert.
    Im OG wäre es dann auch nur Gast, das fände ich auch irgendwie komisch.
    Ich hoffe, dass der Geschosswechsel per Lift nicht als sehr mühselig empfunden wird.
     
  15. #15 Obstriegel, 24.08.2017
    Obstriegel

    Obstriegel

    Dabei seit:
    26.07.2017
    Beiträge:
    16
    Zustimmungen:
    0
    Beruf:
    außerhalb der Baubranche
    Ort:
    Rheinland-Pfalz
    Noch zum Schattenplatz:
    Diese zugegebenermaßen kleine Ecke ist nicht als Ort für die Grillparty gedacht, sondern eher für den Kaffee zwischendurch für 1 oder 2 Personen.
     
  16. #16 driver55, 24.08.2017
    driver55

    driver55

    Dabei seit:
    22.02.2008
    Beiträge:
    6.882
    Zustimmungen:
    1.800
    Beruf:
    Dipl.-Ing.
    Ort:
    Pforzheim
    Das EG geht irgendwie garnicht!

    Eingang wurde bereits erwähnt. Für eine 6-Personenhütte eine Katastrophe.
    Und was sollen diese beiden 9,x m²-Nischen neben Essen/Küche? Speisekammer? Leseecke?
    Habe ich etwas übersehen/überlesen?

    Beides entfernen, WC rüberschieben (Essen/Küche umplanen) und schwupps hat man einen ordentlichen Eingangsbereich.
    Das abgekapselte WoZi.....hm....wie früher halt...

    Und die Ankleide? Hm, kein Platz zum Ankleiden, dunkel....so besser nicht....

    @Andy: Ankleide als Durchgang zu Schlafen ist schon ok. I.d.R. laufen da ja nur die besagten 2 Personen durch. Ich weiss allerdings nicht, was du in Schlafen für eine Puplikums(Verkehr) hast.:mega_lol:
     
  17. #17 Obstriegel, 24.08.2017
    Obstriegel

    Obstriegel

    Dabei seit:
    26.07.2017
    Beiträge:
    16
    Zustimmungen:
    0
    Beruf:
    außerhalb der Baubranche
    Ort:
    Rheinland-Pfalz
    @driver55
    Der Bereich links oben im EG ist der Eingangsbereich, links unten sollte ursprünglich der HWR werden. Hier denken wir zurzeit über eine Verlagerung in den Keller nach.


    @alle
    Warum man früher das Wohnzimmer meistens abgetrennt hat und heute meistens nicht mehr, kann verschiedene Gründe haben.
    Ich als Laie kann da nur spekulieren.
    Sind die einfach nicht auf die Idee gekommen, das offen zu gestalten?
    Liegt es daran, dass es statisch nicht anders ging, weil man keinen Stahlbeton hatte?
    Liegt es daran, dass viele in Berufen gearbeitet haben, wo man sich schmutzig gemacht hat, und ein Raum wurde für den Sonntag geschont?
    Hat es in der Küche mangels ausreichender DAH zu kräftig gerochen?
    Liegt es daran, dass früher die Familien größer waren und man eher Rückzugsräume brauchte als heute?
    Ist es einfach Geschmackssache, und die Moden ändern sich?

    Gibt es dazu so etwas wie eine "Lehrmeinung"?
     
  18. #18 Kriminelle, 24.08.2017
    Kriminelle

    Kriminelle

    Dabei seit:
    16.05.2013
    Beiträge:
    3.710
    Zustimmungen:
    2.048
    Beruf:
    .
    Ort:
    Niedersachsen
    Ich denke mal, dass jeder von uns von dem Garagendurchgang geredet hat, der hier als Eingangstür eher zu sehen ist als der Bereich planoben links :)
    Dabei kommt natürlich die Frage auf, wie Euer Rolli-Kind von der Garage ins Haus kommt. Sinnvoller wäre es, einen nahen Zugang von Garage ins Haus zu gestalten.


    Ich tendiere auf die "gute Stube". Gelebt wurde am warmen Herd und am Tisch, wo es Essen gibt. TV war eh nicht - somit ging man abends vom Gesellschafts-Tisch ins Bett :)
     
  19. #19 driver55, 24.08.2017
    driver55

    driver55

    Dabei seit:
    22.02.2008
    Beiträge:
    6.882
    Zustimmungen:
    1.800
    Beruf:
    Dipl.-Ing.
    Ort:
    Pforzheim

    Ich sag's mal so. Wenn man (ich) bei einem Grundriss den Eingang nicht sieht/findet, sollte man sich Gedanken machen. Die Frage ist nur, der Planer oder der Betrachter.:biggthumpup:

    Direkt durch Essen und Küche "fahren" ist jetzt auch nicht der Brüller.

    Weshalb das früher so war, ist doch sekundär (interessiert auch keinen wirklich...), Fakt ist, man trennt das heute nicht mehr ab.
    In den 60ern gabs einen langen schmalen Flur und rechts und links die Zellen, äh Räume. Noch früher gab's nur einen zentralen beheizten Raum (Kachelofen), die Stube....

    Ich würde die Hütte auf alle Fälle komplett anders planen (lassen)...
     
Thema: Grundrissdebatte - EFH für 6-köpfige Familie, behindertengeeignet
Besucher kamen mit folgenden Suchen
  1. Grundrisse für 6 köpfige familie

    ,
  2. haus für 7-köpfige Familie

    ,
  3. 6 köpfige familie

    ,
  4. grundriss 6 köpfige familie
Die Seite wird geladen...

Grundrissdebatte - EFH für 6-köpfige Familie, behindertengeeignet - Ähnliche Themen

  1. Grundrisse + Ansichten Neubau EFH ohne Keller für 5-köpfige Familie

    Grundrisse + Ansichten Neubau EFH ohne Keller für 5-köpfige Familie: Hallo zusammen, wir planen ein Haus mit 180 m² Wohnfläche (ohne Keller) für unsere 5-köpfige Familie zu bauen und möchten Euch heute gern...
  2. Grundrisse Neubau EFH für 5-köpfige Familie

    Grundrisse Neubau EFH für 5-köpfige Familie: Hallo zusammen, wir planen ein Haus mit 174 m² Wohnfläche für unsere 5-köpfige Familie zu bauen und möchten Euch heute gern unsere Grundrisse...
  3. Grundrissdebatte

    Grundrissdebatte: Liebe Gemeinde, soeben wurde ich vom Admin freigeschaltet - Danke dafür - und hier direkt mein erster Beitrag im Forum. Einige Beiträge der User...
  4. Grundrissdebatten - bitte vorher lesen!

    Grundrissdebatten - bitte vorher lesen!: Immer wieder heisst es, wenn Grundrisse hier zerrissen werden: ---------- Sagt mir doch, was ich ändern muss, damit es gut wird ---------- Bei...
  5. Grundrissdebatte...

    Grundrissdebatte...: http://www.bauexpertenforum.de/showthread.php?t=16481 1) Wär ich dafür, den Beitrag in der Rundablage verschwinden zu lassen. Denn erst hat Herr...