Grundrissdiskussion EFH Massiv

Diskutiere Grundrissdiskussion EFH Massiv im Architektur Allgemein Forum im Bereich Architektur; Hallo, wir sind derzeit an der Entwurfsplanung unseres Hauses und unseres Erachtens in den letzten Zügen vor der Erstellung des Bauantrags. Gerne...

  1. #1 snickers88, 01.08.2023
    snickers88

    snickers88

    Dabei seit:
    01.08.2023
    Beiträge:
    4
    Zustimmungen:
    1
    Hallo,

    wir sind derzeit an der Entwurfsplanung unseres Hauses und unseres Erachtens in den letzten Zügen vor der Erstellung des Bauantrags. Gerne würden wir eure Meinungen zu unserem Grundriss hören.

    1. Wir sind:

    2 Erwachsene und 2 Kleinkinder
    keine Behinderungen/ Beeinträchtigungen. Vermietung ist nicht geplant.

    2. Unser Raumprogramm:

    offener All-Raum (Küche, Essen, Wohnen zusammen)
    Anzahl Schlafzimmer 3
    Anzahl Bäder 2 (1 x EG mit Dusche und 1 x OG mit Wanne und Dusche)
    Ankleide
    Büro/Gast kombiniert
    Technikraum
    HWR
    Speisekammer
    Garage

    3. Welchen Hausstil bevorzugen wir?

    Satteldach-Haus

    evtl. Verklinkerung. Hier sind wir uns jedoch auf Grund der Preise noch unsicher.


    4. Welche Zusatzwünsche/Features
    hätten wir gern und warum?

    Doppelgarage


    5. Bebauungsplan/Einschränkungen


    Grösse des Grundstücks: 991 qm
    Hang/ Senke: Aufschüttung um ca. 60 cm erforderlich

    Geschossigkeit 1 Vollgeschoss
    Dachform und -neigung min 28 Grad

    Maximale Firsthöhe: 9 m


    7. angedachte Haustechnik

    LWP mit Photovoltaik

    8. Hausentwurf

    Do-It-Yourself

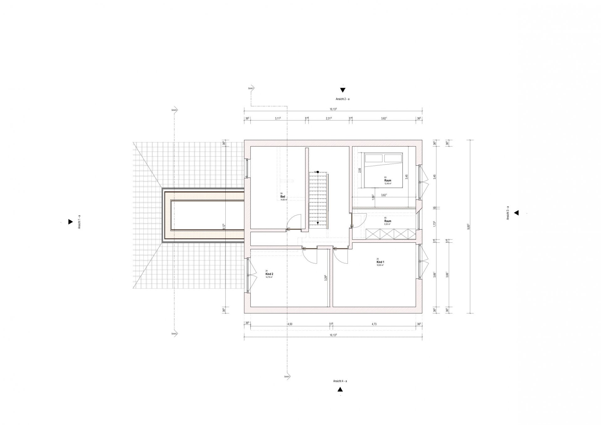
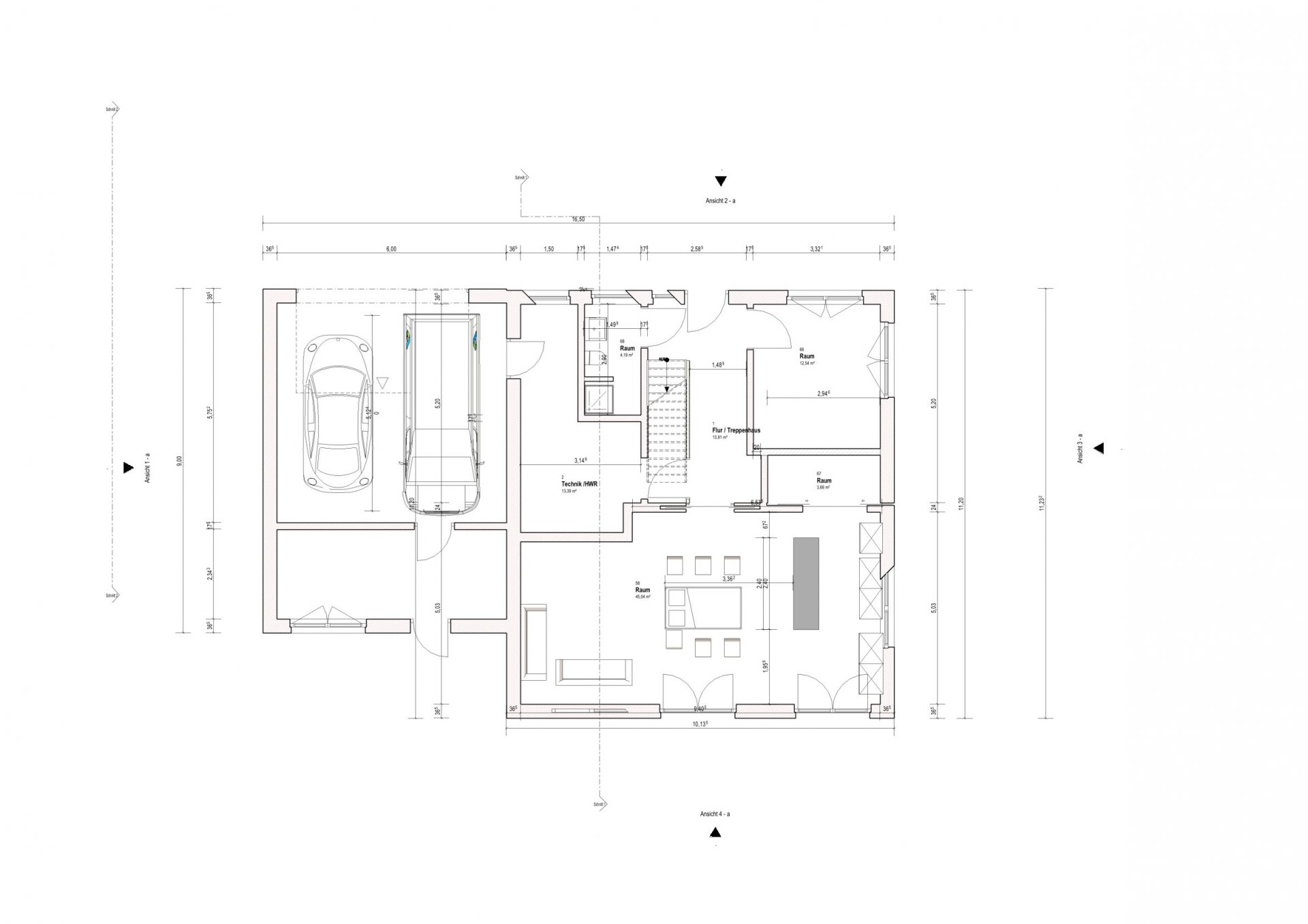
    Was gefällt Euch besonders? Warum? Raumverbindungen untereinander und auch der HWR als Durchgangsraum zur Garage sind uns wichtig. Weiterhin soll keines der Kinderzimmer und auch das Bad im OG nicht an das Schlafzimmer der Eltern grenzen.

    Was gefällt nicht? Warum?

    9. Preisschätzung lt. Architekt/Planer

    Preisschätzung für Haus inkl. Garage (ohne Küche, Außenanlagen und Grundstück): ca. 500t€

    Was ist die wichtigste Frage zum Grundriss in 130 Zeichen zusammengefasst?

    1. Das gegenüber dem OG vergrößerte EG soll dazu führen dass auf Grund der Staffelgeschossberechnungen im OG ein höherer Kniestock realisiert werden kann. Ist dies so sinnvoll oder stehen die Mehrkosten in keinem Verhältnis zum Nutzen?
    2. In unserem vorhergehenden Entwurf war das Haus ca. 2 m Breiter, was dazu führte, dass die Garage zur Grenzbebauung wird. Hier haben wir das Problem, dass die zunächst erforderliche Aufschüttung dazu führt, dass in jedem Fall ein Baugenehmigungsverfahren durchgeführt werden muss (Bebauungsplan liegt vor und es könnte daher über ein Mitteilungsverfahren laufen). Der Nachbar möchte ebenfalls Aufschütten und würde der Grenzbebauung zustimmen.
    3. Die Doppelgarage soll ein Satteldach o.ä. erhalten um den entstehenden Raum als Lagerfläche nutzen zu können. Dies schränkt aber die Anordnung von Fensterflächen im OG enorm ein. Hier fehlt uns noch eine gute Lösung.

    Über Anmerkungen und Kritik würden wir uns freuen:)

    Viele Grüße
     

    Anhänge:

    odepla gefällt das.
  2. #2 Kriminelle, 01.08.2023
    Kriminelle

    Kriminelle

    Dabei seit:
    16.05.2013
    Beiträge:
    3.839
    Zustimmungen:
    2.162
    Beruf:
    .
    Ort:
    Niedersachsen
    Hmmm…
    Ich sag es mal so: Du bist sehr weit entfernt, einen Bauantrag zu stellen. Suche Dir in Deinem Interesse ein Typenhaus eines GUs. Die funktionieren. Oder suche Dir einen Architekten.

    Vergiss es. Da ist angelesenes „Wissen“ völlig verquer „angewendet“.
     
    11ant gefällt das.
  3. #3 JohnBirlo, 01.08.2023
    JohnBirlo

    JohnBirlo

    Dabei seit:
    28.05.2020
    Beiträge:
    1.232
    Zustimmungen:
    461
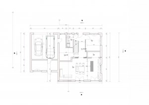
    Ich find die Situation mit HWR und Bad im EG ungünstig gelöst. Vorallem dieser "Gang" im HWR kostet viel Platz. So ist der HWR vermutlich für die gesamte Technik + Waschmaschine + Wäscheständer etwas zu klein.

    Soll das eine Speisekammer mit Schiebetür neben der Küche sein?
     
  4. #4 driver55, 01.08.2023
    driver55

    driver55

    Dabei seit:
    22.02.2008
    Beiträge:
    6.933
    Zustimmungen:
    1.843
    Beruf:
    Dipl.-Ing.
    Ort:
    Pforzheim
    Ich seh nix. Bitte Bilder einbinden.
     
    11ant, Fridolin77 und Jo Bauherr gefällt das.
  5. #5 snickers88, 02.08.2023
    snickers88

    snickers88

    Dabei seit:
    01.08.2023
    Beiträge:
    4
    Zustimmungen:
    1
     

    Anhänge:

  6. #6 snickers88, 02.08.2023
    snickers88

    snickers88

    Dabei seit:
    01.08.2023
    Beiträge:
    4
    Zustimmungen:
    1

    Vielen Dank für deine Kritik. Kannst du mir bitte noch erläutern, wo genau du die Probleme siehst?
     
  7. #7 snickers88, 02.08.2023
    snickers88

    snickers88

    Dabei seit:
    01.08.2023
    Beiträge:
    4
    Zustimmungen:
    1
    Ja, dort soll die Speisekammer angeordnet werden.
     
  8. #8 Kriminelle, 02.08.2023
    Kriminelle

    Kriminelle

    Dabei seit:
    16.05.2013
    Beiträge:
    3.839
    Zustimmungen:
    2.162
    Beruf:
    .
    Ort:
    Niedersachsen
    Man sieht Deinem Entwurf in jeder Faser das Gedankengut eines Laien an, der es nicht besser kann und weiss.
    Einen Bauantrag stellt man über einen Architekten bzw Fachmann, der dazu ausgebildet ist.

    - Dein Versatz mit dieser Hausform schiesst am Ziel vorbei, um bei Eingeschossigkeit zu bleiben
    - Es gibt Fenster, die würden durch das Dach nicht passen (Papier und Lego ist geduldig), aber keine Statik, noch Dachgebälk
    - Außenansicht ist Geschmackssache, aber einen fast 2-Geschosser mit hohem Kniestock, der keine Fensterplanung zulässt ist doch nicht das, wofür man 100000e an Euros bezahlen will
    - (optische) Fassadengestaltung wirkt zudem schief und planlos
    - Dach der Garage steht in keinem Nutzungsverhältnis, da man ihn nicht begehen kann
    - Die Brüstungen bei den Fenstern im Geräteraum und Wohnzimmer machen wenig Sinn
    - Die Verbindungs-Tür zw Garage und HWR ist, wie man sieht, nur Kosmetik... wenn Pkws in der Garage sind, quasi nicht benutzbar.
    - HWR zu verwinkelt, um sinnvoll möbliert zu werden und als Schleuse, Technik und HWR zu dienen
    - Treppe ist zu kurz, da passt keine Tür drunter
    - Treppe, so wie dargestellt, hat gar keinen Halt, sondern schwebt
    - tragende Wände nicht übereinander
    - Deine Küchenmöbel haben in den Ecken nur Platz, wenn sie in die Wand gestellt werden
    - Terrassentür bei der Küche nicht zu öffnen
    - es gibt keine Garderobe, die Platz für Jacken, Schuhe und Taschen für 4 Personen vorhält
    - Schlafzimmer hat keine Tür
    - Richtung Bad muss man sich quetschen (was ist das für ein Reststück Flur?)
    - Fenster Kind 2/Bad habe ich schon erwähnt
    - Türen gehen in falsche Richtungen auf

    Mal Hand aufs Herz: willst Du damit das Bauamt beeindrucken? Oder einen Architekten, der Dir das abstempeln soll?
     
    msfox30, 11ant und driver55 gefällt das.
  9. #9 VollNormal, 02.08.2023
    VollNormal

    VollNormal

    Dabei seit:
    20.11.2021
    Beiträge:
    4.227
    Zustimmungen:
    2.858
    Beruf:
    Bauingenieur
    Ort:
    Bochum
    Hast du überhaupt mal auf die Zeichnung draufgeschaut?
    Nehmen wir nur mal die Garage: wie auch immer der Kleinbus an diese Stelle gekommen sein soll, blockiert er dort sowohl die Tür zum Technikraum als auch die zum Gartenschuppen.
    Genau dafür macht man doch eine Planung, um unter Anderem solche Schwachstellen zu erkennen.
     
    11ant und driver55 gefällt das.
  10. #10 driver55, 02.08.2023
    driver55

    driver55

    Dabei seit:
    22.02.2008
    Beiträge:
    6.933
    Zustimmungen:
    1.843
    Beruf:
    Dipl.-Ing.
    Ort:
    Pforzheim
    Kann mich da auch nur anschließen. Kriminelle hat alles gut zusammengefasst.
    Noch kürzer: EG ist nix und das OG ist garnix.
     
    Kriminelle gefällt das.
  11. 11ant

    11ant

    Dabei seit:
    28.02.2017
    Beiträge:
    2.579
    Zustimmungen:
    1.623
    Beruf:
    Bauherrenberater
    Ort:
    RLP Nord
    Benutzertitelzusatz:
    bringt Sie gut beraten ins Eigenheim
    Das ist alles obervölligster Quatsch. Der Bebauungsplan will einen Anderthalbgeschösser, und die Bauherren ein Stadtvilla-Raumprogramm gleichzeitig als Staffelgeschoß, aber mit Satteldach. Auch in der Zeichnung ist es praktisch beides gleichzeitig. Ob Schrödinger oder M.C.Escher an diesem Haus mehr Freude hätten, ist schwer zu erkennen. Die Garage kann wegen der Aufschüttung nicht an die Grenze, aber weder ein Zurückweichen von dieser um nur zwei Meter noch daß der Nachbar ebenfalls aufschütten will, können dies heilen. @Dimeto wird es besser beurteilen und erklären können, aber ich glaube nicht, daß der Wunsch umsetzbar ist. Nach meinem Verständnis lösen hier die Garagen des TE und des Nachbarn jeweils dank der Aufschüttungen Abstandsflächen aus, die sich auch einvernehmlich nicht gegenseitig übernehmen können.

    Aus dem Haus geht man erst heraus und dann von draußen in die Garage hinein, um den Beetle rauszufahren. Erst dann läßt sich in kaum weniger als acht Zügen der Vivaro (?) rausfahren, um den Zwischentür-Weg zum Beetle freizugeben. Klingt ziemlich nach siehe oben. Die Speisekammer-Schiebetür in den Außenwandschlitz hinein ist ein Hexenmeisterwerk, und die Spezialanfertigungen der Laibungssteine für die Effekthaschereifenster kosten in der Auflage für ein einzelnes Haus ein mittleres Vermögen. Kind 2 öffnet seine Fenster nach innen, Kind 1 nach außen. Das Handwaschbecken im Gäste-WC ist größer als die Toilette. Da lache oder weine ich ja gerne mit, müßte aber bitte wissen, was von beidem gewünscht wäre. Auch ein Fachmann kann mit diesen Zeichnungen weniger anfangen als ohne sie, sucht ihn also besser "mit leeren Händen" auf.
     
    driver55 gefällt das.
  12. #12 Kriminelle, 02.08.2023
    Kriminelle

    Kriminelle

    Dabei seit:
    16.05.2013
    Beiträge:
    3.839
    Zustimmungen:
    2.162
    Beruf:
    .
    Ort:
    Niedersachsen
    Und ach leider:
    Die liebe, liebe Schiebetür: im Wohnbereich noch excellent dargestellt, obwohl die Türzarge unter der Treppe davor-hängt… geht sie in der Speis durch die Außenwand
    IMG_7171.jpeg
     
    driver55 gefällt das.
  13. #13 Fasanenhof, 03.08.2023
    Fasanenhof

    Fasanenhof

    Dabei seit:
    20.02.2023
    Beiträge:
    1.508
    Zustimmungen:
    850
    Beruf:
    Ing für Maschinenbau
    Ort:
    Norddeutschland
    Sachliche Kritikrunde:
    Erdgeschoss:
    - Garage falsch geplant, durchfahrt reicht nur für ein Fahrzeug
    - HWR vertunnelt und unpraktisch
    - Speisekammer erfordert Spezial-Türlösung
    - zu viele kreuzende Verkehrswege direkt an der Eingangstür. Habe ich selbst, ist Murks.

    Obergeschoss:
    - Flur zwischen Bad und KZ zu schmal
    - Platzverschwendung durch Sackgasse. So eine Sackgasse sollte maximal 1m lang sein um einen Wandschrank zu erstellen

    Sonstiges:
    - Badezimmer, HWR und Küche nicht übereinander bzw. beieinander angeordnet, deshalb zusätzlicher Aufwand bei der Wasserversorgung und Warmwasserleitung

    Insgesamt sehe ich sehr viele unangenehme halbfertige Gedanken... das spricht nichts gutes für den gesamten Stand der Projektentwicklung.
     
    driver55 gefällt das.
  14. #14 Euklid55, 03.08.2023
    Euklid55

    Euklid55

    Dabei seit:
    29.03.2023
    Beiträge:
    45
    Zustimmungen:
    5
    Beruf:
    Diplom Ingenieur Bauwesen
    Was mich stören würde, ist das Vollbad im EG. Dort ist kein Schlafraum vorhanden. Aus hygienischen Gründen geht ein WC, ohne Zwischentür, nie vom Hauptraum aus ab.
     
  15. #15 Fasanenhof, 03.08.2023
    Fasanenhof

    Fasanenhof

    Dabei seit:
    20.02.2023
    Beiträge:
    1.508
    Zustimmungen:
    850
    Beruf:
    Ing für Maschinenbau
    Ort:
    Norddeutschland
    Korrekt. Eine Dusche direkt neben der Haupteingangstür ist einfach... dumm.
     
  16. #16 driver55, 03.08.2023
    driver55

    driver55

    Dabei seit:
    22.02.2008
    Beiträge:
    6.933
    Zustimmungen:
    1.843
    Beruf:
    Dipl.-Ing.
    Ort:
    Pforzheim
    Du weißt doch garnicht, welche Aktivitäten im Büro nebenan stattfinden. Zwischendurch frisch machen ist so schlecht nicht.:biggthumpup:
     
  17. #17 driver55, 03.08.2023
    driver55

    driver55

    Dabei seit:
    22.02.2008
    Beiträge:
    6.933
    Zustimmungen:
    1.843
    Beruf:
    Dipl.-Ing.
    Ort:
    Pforzheim
    Was soll da stören? Die Dusche frisst kein Brot, nur Euros. Und was für ne Zwischentür?
    Ich bin noch nie über 2 Türen ins Gäste-WC.
     
    11ant gefällt das.
  18. #18 Euklid55, 06.01.2024
    Euklid55

    Euklid55

    Dabei seit:
    29.03.2023
    Beiträge:
    45
    Zustimmungen:
    5
    Beruf:
    Diplom Ingenieur Bauwesen
    Hallo,

    bei einem Neubau würde ich die Maße für Behindertenrechts bauen hinzuziehen. Meist sind es nur ein paar cm Umplanung, um ggf. mit einem Rollstuhl das Gebäude noch nutzbar zu machen. Wir werden alle Älter. In die Garage kommt man, ob jedoch der Platz zum Aussteigen noch reicht, ist anzuzweifeln.
    Selbst bin ich kein Freund von der Küche im Wohnzimmer. Solch einen Grundriß habe ich selbst und finde ihn nicht optimal, es sei denn man geht immer Essen.
     
Thema:

Grundrissdiskussion EFH Massiv

Die Seite wird geladen...

Grundrissdiskussion EFH Massiv - Ähnliche Themen

  1. Grundrissdiskussion EFH – Börwang „Beim Mühlenbauer“

    Grundrissdiskussion EFH – Börwang „Beim Mühlenbauer“: 1. Wir sind Zwei Erwachsene (48 und 28 Jahre) Ein Kind (8 Monate), eventuell ein weiteres Kind geplant Keine Einschränkungen, keine...
  2. Grundrissdiskussion EFH

    Grundrissdiskussion EFH: Hallo zusammen ich benötige noch etwas Rat/ Verbesserungsideen bzw. bin "festgefahren" in meiner Planung und auch noch nicht abschließend...
  3. Grundrissdiskussion Hanghaus

    Grundrissdiskussion Hanghaus: Hallo, wir wollten euch gerne auch mal über unsere Ideen diskutieren lassen. Das geplante Baugrundstück ist in unserem Besitz und wir befinden uns...
  4. Grundrissdiskussion Neubau

    Grundrissdiskussion Neubau: Hallo, ich hätte gerne ein paar Meinungen zu meinen derzeitigen Plänen für den Neubau. Es geht um ein EFH. Keller: [IMG] - Das "Bad" soll ggf....
  5. Neubau: Grundrissdiskussion (11,3m x 9,4m)

    Neubau: Grundrissdiskussion (11,3m x 9,4m): Hallo zusammen! Vielen Dank, dass Ihr euch in eurer freien Zeit mit unserem Bauvorhaben beschäftigt habt! Danke für eure Hinweise. Das hat mir...