Grundrissdiskussion - Vielen Dank!
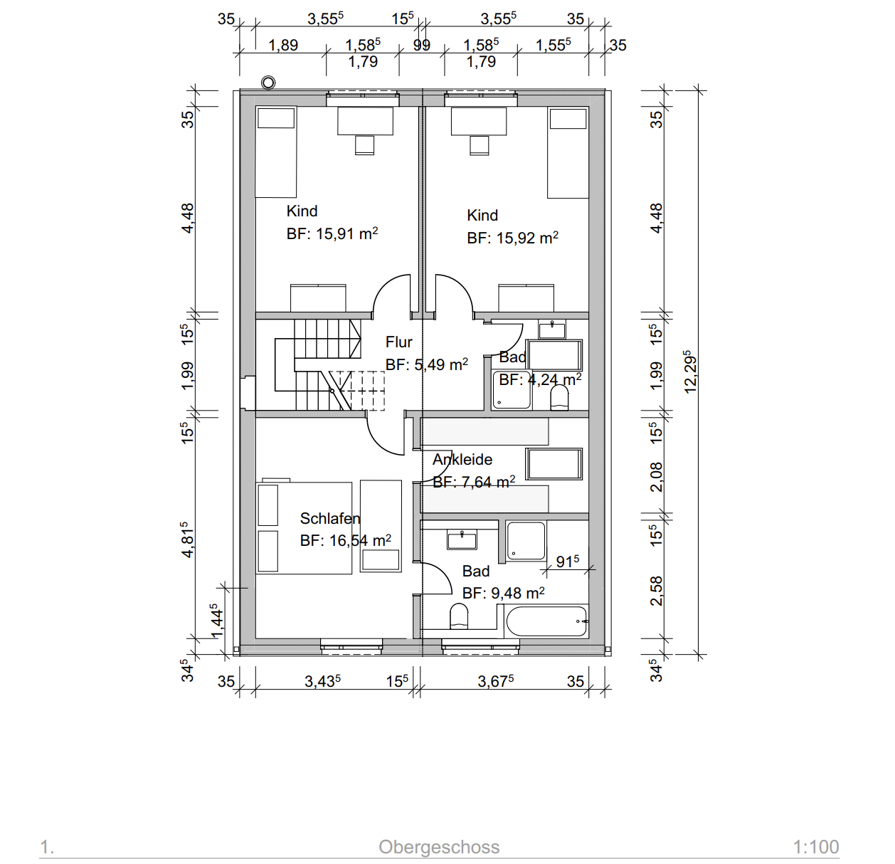
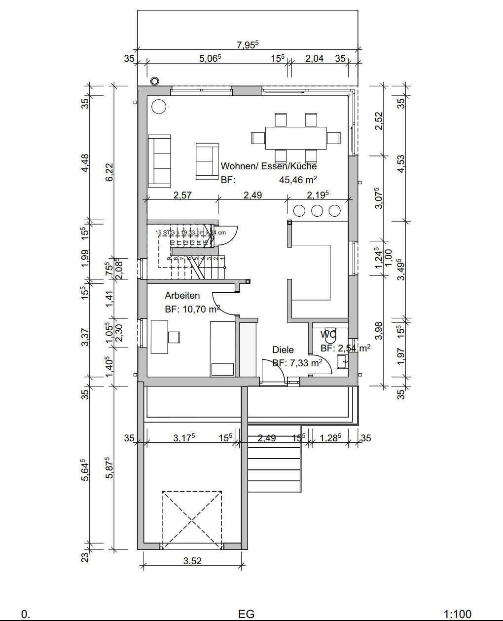
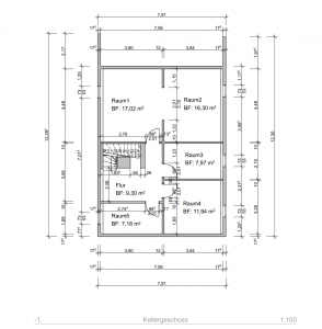
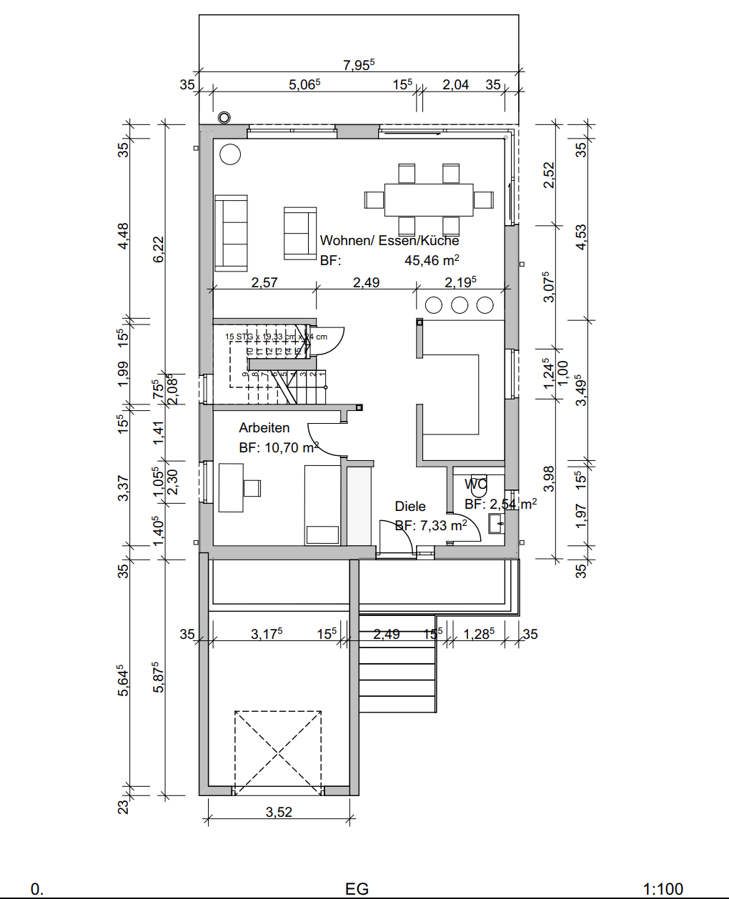
Diskutiere Grundrissdiskussion - Vielen Dank! im Architektur Allgemein Forum im Bereich Architektur; Hallo Zusammen, wir bauen ein EFH auf einen bestehenden Keller. Es würde uns sehr freuen, wenn ihr mal hier drüberschaut und mir Feedback gebt....
Thema:
Grundrissdiskussion - Vielen Dank!
Die Seite wird geladen...
-
Grundrissdiskussion - Vielen Dank! - Ähnliche Themen
-
Grundrissdiskussion EFH – Börwang „Beim Mühlenbauer“
Grundrissdiskussion EFH – Börwang „Beim Mühlenbauer“: 1. Wir sind Zwei Erwachsene (48 und 28 Jahre) Ein Kind (8 Monate), eventuell ein weiteres Kind geplant Keine Einschränkungen, keine... -
Grundrissdiskussion EFH
Grundrissdiskussion EFH: Hallo zusammen ich benötige noch etwas Rat/ Verbesserungsideen bzw. bin "festgefahren" in meiner Planung und auch noch nicht abschließend... -
Grundrissdiskussion Hanghaus
Grundrissdiskussion Hanghaus: Hallo, wir wollten euch gerne auch mal über unsere Ideen diskutieren lassen. Das geplante Baugrundstück ist in unserem Besitz und wir befinden uns... -
Grundrissdiskussion EFH Massiv
Grundrissdiskussion EFH Massiv: Hallo, wir sind derzeit an der Entwurfsplanung unseres Hauses und unseres Erachtens in den letzten Zügen vor der Erstellung des Bauantrags. Gerne... -
Grundrissdiskussion Neubau
Grundrissdiskussion Neubau: Hallo, ich hätte gerne ein paar Meinungen zu meinen derzeitigen Plänen für den Neubau. Es geht um ein EFH. Keller: [IMG] - Das "Bad" soll ggf....