Grundrisse Bad und Gäste-WC

Diskutiere Grundrisse Bad und Gäste-WC im Architektur Allgemein Forum im Bereich Architektur; Hallo zusammen, auch auf die Gefahr hin, dass der Grundriss langweilig ist, stelle ich ihn gerne zur Diskussion. Die Rahmenbedingungen: Wände...

?

Die Grundrisse finde ich

  1. Gut/Okay

    0 Stimme(n)
    0,0%
  2. Schlecht/Langweilig

    2 Stimme(n)
    100,0%
  3. kann ich nicht beurteilen/weiß nicht

    0 Stimme(n)
    0,0%
  1. #1 Bauibaui, 22.11.2025
    Zuletzt bearbeitet: 22.11.2025
    Bauibaui

    Bauibaui

    Dabei seit:
    09.05.2014
    Beiträge:
    52
    Zustimmungen:
    6
    Beruf:
    Ingenieur
    Ort:
    Rhein-Main
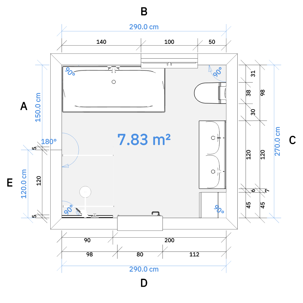
    Hallo zusammen,
    auch auf die Gefahr hin, dass der Grundriss langweilig ist, stelle ich ihn gerne zur Diskussion. Die Rahmenbedingungen: Wände (eigentlich) nicht änderbar, aktuell 2 Personen, die Fenster zeigen nach Osten (Garten), das Gäste-WC ist im EG, das Bad (mit Badewanne) direkt darüber. Ziel soll auch sein, dass das WC im EG barrierefrei ist, bodengleiche Dusche ist obligatorisch.

    Habe etwas Bedenken wegen des WCs am Fenster. Im EG muss dann das Fenster schon recht blickdicht gestaltet werden, am besten Milchglas und Jalousie/Plissee, dann sollte das passen oder? Tauschen mit dem (optionalen) Pissoir wollte ich eigentlich nicht, das macht es nicht besser? Und WC neben Pissoir finde ich auch nicht so toll.

    VG
    Bauibaui
    Bad Rechteckwanne Grundriss.png WC Grundriss.png
     
  2. 415B

    415B

    Dabei seit:
    03.12.2024
    Beiträge:
    1.416
    Zustimmungen:
    246
    1. wozu dieses Doppelwaschbecken? Ich kennen niemand ausser der 2 Kinder hat wo diese gleichzeitig genutzt werden.
    Ich glaube auch nicht das Mann und Frau sich gleichzeitig die Zähne putzen.
    2. Pissoir wozu? Kannst du dich nicht setzen oder hängt deiner so lang bis ins Klowasser?
     
  3. #3 Kriminelle, 22.11.2025
    Kriminelle

    Kriminelle

    Dabei seit:
    16.05.2013
    Beiträge:
    3.707
    Zustimmungen:
    2.048
    Beruf:
    .
    Ort:
    Niedersachsen
    Wo wäre denn das Fallrohr angedacht? Ist das ein Neubau?
    Im Bad müsste auf jeden Fall die Wanne gedreht werden, da die Toilette derzeit eingeschlossen ist.

    Soll die Dusche mit Glasschutz ausgestattet werden?
    Weiteres, wenn die Fragen beantwortet werden.
     
  4. #4 Fabian Weber, 22.11.2025
    Fabian Weber

    Fabian Weber

    Dabei seit:
    03.04.2018
    Beiträge:
    16.306
    Zustimmungen:
    6.470
    Badewanne längs an Wand A

    Urinal bei WC, WC bei Waschbecken und Waschbecken bei Urinal.
    Duschbrause an Wand B, denn 1,10m reichen dicke als Tiefe für die Dusche aus.
     
  5. #5 Kriminelle, 22.11.2025
    Kriminelle

    Kriminelle

    Dabei seit:
    16.05.2013
    Beiträge:
    3.707
    Zustimmungen:
    2.048
    Beruf:
    .
    Ort:
    Niedersachsen
    Urinal weg, da antikuar, Herr Kommissar!!
     
  6. #6 VollNormal, 23.11.2025
    VollNormal

    VollNormal

    Dabei seit:
    20.11.2021
    Beiträge:
    4.169
    Zustimmungen:
    2.813
    Beruf:
    Bauingenieur
    Ort:
    Bochum
    Für die Gäste, denen die Frau noch nicht beigebracht hat, sich zu setzen ...
     
  7. 415B

    415B

    Dabei seit:
    03.12.2024
    Beiträge:
    1.416
    Zustimmungen:
    246
    Also für Dich?
     
  8. #8 Bauibaui, 23.11.2025
    Bauibaui

    Bauibaui

    Dabei seit:
    09.05.2014
    Beiträge:
    52
    Zustimmungen:
    6
    Beruf:
    Ingenieur
    Ort:
    Rhein-Main
    Danke für eure Antworten. Genau, das ist eher für Gäste gedacht. Oder an die Stelle kommt mal eine Waschmaschine.

    Wo wäre denn das Fallrohr angedacht? Ist das ein Neubau?
    Fallrohr dort, wo das WC ist, mehr nach unten, also Richtung Waschbecken. Ne, ist Bestand. Dort ist jetzt auch das Fallrohr. Auf der anderen Seite kann man bei den Duschen noch ein 50er Fallrohr einbauen.

    Im Bad müsste auf jeden Fall die Wanne gedreht werden, da die Toilette derzeit eingeschlossen ist.
    Meinst Du, das ist zu eng? Vielleicht wird die Badewanne noch 10 cm kürzer. Es ist darüber halt noch ein Flachdachfenster geplant, dann könnte man so besser rausgucken. Wenn zu eng, kann man ja unten gehen ;-)

    Soll die Dusche mit Glasschutz ausgestattet werden?
    Ja
     
  9. #9 hanghaus2000, 25.11.2025
    hanghaus2000

    hanghaus2000

    Dabei seit:
    24.11.2021
    Beiträge:
    1.514
    Zustimmungen:
    625
    Beruf:
    Bauleiter, Kalkulator, Controller, Salzdesign
    Ort:
    Bayern
    Was ist das gegenueber dem Waschbecken im Gaestebad?

    Das verhindert, dass das WC im EG barrierefrei ist.
     
  10. #10 nordanney, 25.11.2025
    nordanney

    nordanney

    Dabei seit:
    15.09.2021
    Beiträge:
    6.248
    Zustimmungen:
    3.602
    Beruf:
    Finanzierer/Investor/Bau- und Sanierungslaie
    Ort:
    Niederrhein
    Was bedeutet bei Dir "barrierefrei"? Für einen Rolli passt das z.B. schon mal gar nicht.
     
  11. #11 hanghaus2000, 25.11.2025
    hanghaus2000

    hanghaus2000

    Dabei seit:
    24.11.2021
    Beiträge:
    1.514
    Zustimmungen:
    625
    Beruf:
    Bauleiter, Kalkulator, Controller, Salzdesign
    Ort:
    Bayern
    Nach DIN mind 1,2 m.
     
  12. #12 nordanney, 25.11.2025
    nordanney

    nordanney

    Dabei seit:
    15.09.2021
    Beiträge:
    6.248
    Zustimmungen:
    3.602
    Beruf:
    Finanzierer/Investor/Bau- und Sanierungslaie
    Ort:
    Niederrhein
    off topic: Hat sich das jüngst geändert? Ich kenne aus der DIN noch 90cm (also Rohbau knapper Meter).
     
  13. #13 Bauibaui, 25.11.2025
    Bauibaui

    Bauibaui

    Dabei seit:
    09.05.2014
    Beiträge:
    52
    Zustimmungen:
    6
    Beruf:
    Ingenieur
    Ort:
    Rhein-Main
    Das soll ein Schrank sein, würde dann rausfliegen.
     
  14. #14 Bauibaui, 25.11.2025
    Bauibaui

    Bauibaui

    Dabei seit:
    09.05.2014
    Beiträge:
    52
    Zustimmungen:
    6
    Beruf:
    Ingenieur
    Ort:
    Rhein-Main
    Genau, barrierefrei 1,2 m x 1,2 m und rollstuhlgerecht 1,5 m x 1,5 m (kommen dann natürlich noch andere Dinge hinzu bei den Möbeln). 1,5 m ist schon ganz ordentlich, müsste dann wieder was umgebaut werden.
    Habe ich neulich mal gelesen, lasse mich aber gerne eines besseren belehren.
     
  15. #15 driver55, 26.11.2025
    driver55

    driver55

    Dabei seit:
    22.02.2008
    Beiträge:
    6.871
    Zustimmungen:
    1.798
    Beruf:
    Dipl.-Ing.
    Ort:
    Pforzheim
    Weshalb würde dann..
    Schmeiß das Teil gleich raus oder setze es dahin, wo es Platz hat, sinnvoll ist…


    Deshalb hat die Türe nur 80 cm?:wow
     
  16. #16 nordanney, 26.11.2025
    nordanney

    nordanney

    Dabei seit:
    15.09.2021
    Beiträge:
    6.248
    Zustimmungen:
    3.602
    Beruf:
    Finanzierer/Investor/Bau- und Sanierungslaie
    Ort:
    Niederrhein
    Merke jetzt, dass Du über Bewegungsflächen und ich über die Türbreite spreche.
     
    hanghaus2000 gefällt das.
  17. #17 Bauibaui, 26.11.2025
    Bauibaui

    Bauibaui

    Dabei seit:
    09.05.2014
    Beiträge:
    52
    Zustimmungen:
    6
    Beruf:
    Ingenieur
    Ort:
    Rhein-Main
    Die Tür ist Bestand und würde dann im Bedarfsfall auf die notwendige Breite von 90 cm angepasst werden.
     
  18. #18 driver55, 26.11.2025
    driver55

    driver55

    Dabei seit:
    22.02.2008
    Beiträge:
    6.871
    Zustimmungen:
    1.798
    Beruf:
    Dipl.-Ing.
    Ort:
    Pforzheim
    Ja was denn jetzt?

     
  19. #19 Kriminelle, 26.11.2025
    Kriminelle

    Kriminelle

    Dabei seit:
    16.05.2013
    Beiträge:
    3.707
    Zustimmungen:
    2.048
    Beruf:
    .
    Ort:
    Niedersachsen
    Duschbad:
    Für Gäste einen hässliches Extra und dafür auch noch Platz verschwenden? Lass mal lieber. Meine Gäste sind fast alle ü60 und setzen sich bei sich zu Hause sowie bei uns oder anderswo. Wer das als Jungmensch nicht macht, der ist wohl mittlerweile selten geworden. Oder er ist ein Sonderling, den man sich einmal ins Haus einlädt und dann nimmer mehr.
    Der im Weg stehende Schrank weg und jetzt schon überlegen, ob da nun die WM hin muss. Auch die geplante 90er Tür sollte eingezeichnet werden, genauso wie die Duschabtrennung, damit man die Dimension greifen kann oder aber sieht, ob ne teure Sonderausstattung her muss. Ich würde wohl Waschtisch und Toi tauschen und dann an der planrechten Wand vermitteln,
    Ja, das ist unpraktisch. Da könnte man sich in Eile die Schienbeine aufhauen. Putzen der Toi, also mal kniend (betrifft auch die Magenverstimmung) würde nicht funktionieren.
    Wanne drehen und dann mit der Dusche tauschen: Dusche planoben und Wanne planlinks.
     
Thema:

Grundrisse Bad und Gäste-WC

Die Seite wird geladen...

Grundrisse Bad und Gäste-WC - Ähnliche Themen

  1. Grundriss Bewertung Architektenhaus

    Grundriss Bewertung Architektenhaus: Hallo zusammen, wir wären über euren Input sehr dankbar. Was kann man verbessern? Was würdet ihr ändern? 1. Wir sind: Familie mit einem Kind...
  2. Hilfe Grundriss Untergeschoss

    Hilfe Grundriss Untergeschoss: Ich benötige etwas Hilfe beim Grundriss für das Untergeschoss. Ich würde gerne die Eingangstür nach Süden legen, da dort die Straße ist. Außerdem...
  3. Neubau – Grundriss, Firstrichtung und Vorgehen

    Neubau – Grundriss, Firstrichtung und Vorgehen: Hallo zusammen, wir sind noch ganz am Anfang unseres Bauprojekts: das Grundstück steht fest (muss noch geteilt und umgeschrieben werden,...
  4. Grundriss EFH 150m2 (Hang, Souterrain, ELW) – Feedback zu Effizienz & Raumaufteilung

    Grundriss EFH 150m2 (Hang, Souterrain, ELW) – Feedback zu Effizienz & Raumaufteilung: Hallo liebe Bauexperten, wir planen ein Eigenheim mit ELW in Hanglage und haben uns schon zahlreiche Gedanken gemacht. Ich möchte die Chancen, die...