Grundrissplan

Diskutiere Grundrissplan im Architektur Allgemein Forum im Bereich Architektur; Hallo zusammen, ich habe diesen Teil des Forums mal wieder zu spät entdeckt. Würde mich aber trotzdem über anregungung zu unserem Grundriss...

  1. #1 Semilia, 03.02.2021
    Zuletzt bearbeitet: 03.02.2021
    Semilia

    Semilia

    Dabei seit:
    21.08.2019
    Beiträge:
    17
    Zustimmungen:
    1
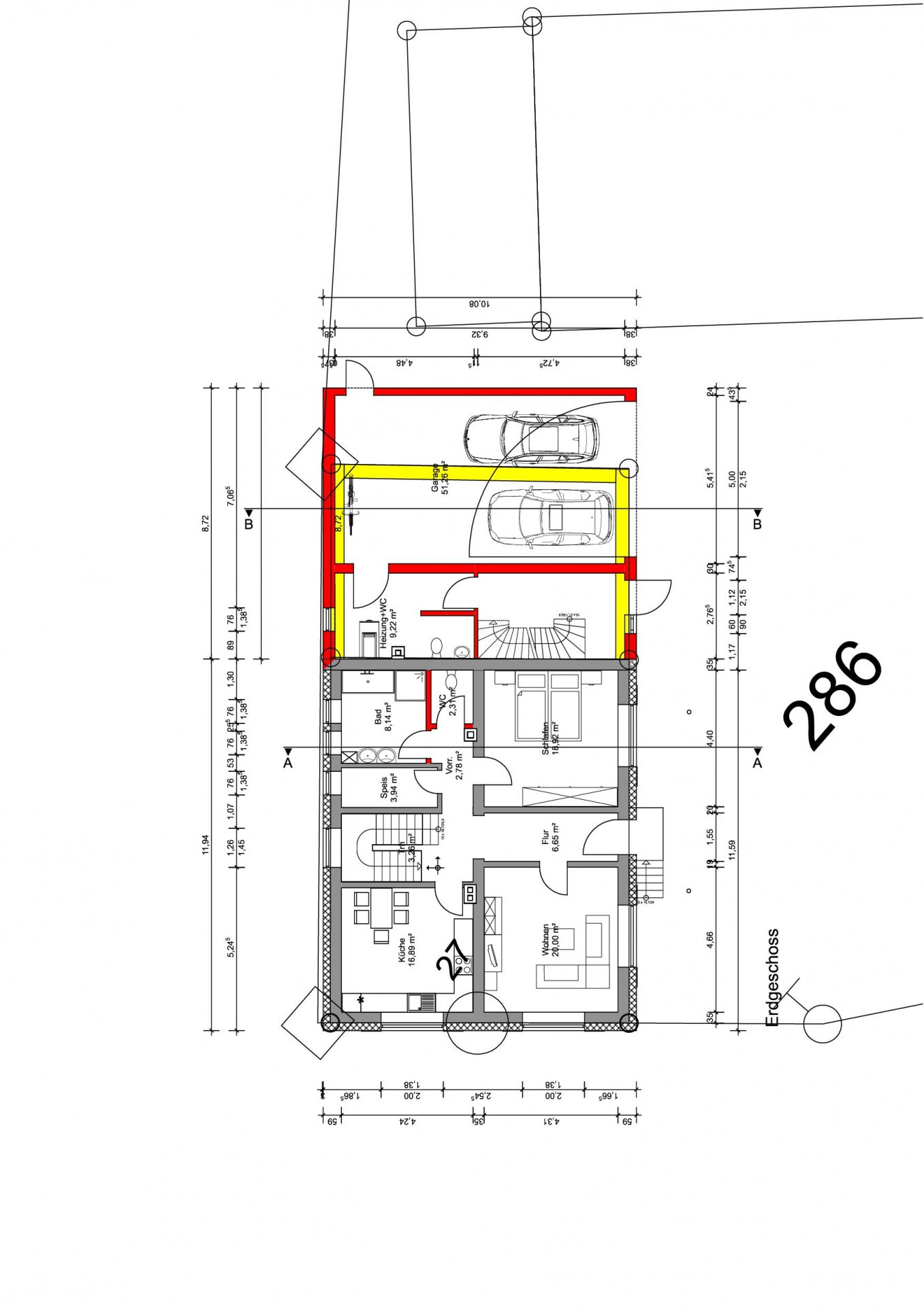
    Hallo zusammen,

    ich habe diesen Teil des Forums mal wieder zu spät entdeckt. Würde mich aber trotzdem über anregungung zu unserem Grundriss freuen.
    Wir bauen mein Elternhaus um in zwei getrennte Wohnungen.
    Anmerkungen zum Plan: Grau ist das was bleibt (Wohnung meiner Eltern möglichst wenig arbeiten) gelb ist Abriss, rot ist Neu.
    Norden ist die Seite mit den Bädern, hier steht auch ein Meter weiter die Nachbarscheune (Brandwand, und Grenzbebauung vorgeschrieben)
    Es wird generalsaniert (außer das Dach, das ist ausreichend gedämmt). Fenster, Isolierung, Heizung, Warmwasser.
    Kamin im Technikraum entfällt, da Wärmepumpe. Kamin im Gang wird entfernt.
    Heizung im EG über Kachelofen und nur im Notfall über großflächige Heizkörper für WP.

    Am groben Konzept lässt sich nicht mehr viel ändern, aber vielleicht fällt euch ja ein oder mehrere grobe Schnitzer auf, die sich noch ändern lassen würden
    Bewusst ist uns dass es nicht sehr lichtdurchflutet ist, wollen wir aber im Schlaf und Wohnzimmer auch gar nicht.
    Das Gästezimmer oben links im zweiten Stock gehört noch zu der Wohnung meiner Eltern, deswegen bleibt die vorhandene Treppe

    Bin sehr dankbar falls es sich jemand anschauen möchte und Anmerkungen hat.
    Danke euch

    Edit: sehe gerade ihr mögt keine PDF, hänge jpg an
     

    Anhänge:

  2. #2 Semilia, 03.02.2021
    Semilia

    Semilia

    Dabei seit:
    21.08.2019
    Beiträge:
    17
    Zustimmungen:
    1
    Beim Lesen anderer Themen merk ich schon, dass ich sowieso zu spät dran bin mit meiner Frage. Ich hätte einfach früher hier rein schauen sollen.
    Falls jemand trotzdem etwas auffällt dass er mir sagen möchte, immer her damit.. gewisse Sachen lassen sich ja vielleicht noch ändern, wenn sie nicht den kompletten Plan über den Haufen werfen.
     
Thema:

Grundrissplan

Die Seite wird geladen...

Grundrissplan - Ähnliche Themen

  1. Stallumbau - Grundrissplanung

    Stallumbau - Grundrissplanung: Hallo zusammen! Wir planen, einen ehemaligen Stall zu einem Wohnhaus umzubauen. Das Erdgeschoß bleibt bestehen (Werkstatt, Garage, Lager,...
  2. Grundrissplanung modernes Satteldach

    Grundrissplanung modernes Satteldach: Hallo zusammen, meine Frau und ich würden uns sehr freuen, wenn Ihr Euch als Experten unseren Grundriss anschauen und uns Eure Einschätzung dazu...
  3. Kapitänshaus Grundrissplanung

    Kapitänshaus Grundrissplanung: Moin aus Niedersachsen, nachfolgend möchte meine Frau und ich Euch Experten um Bewertung unseres Grundrisses fragen. 1. Wir sind: Anzahl der...
  4. Grundrissplanung Bungalow 100 m2 mit Ausbaureserve

    Grundrissplanung Bungalow 100 m2 mit Ausbaureserve: Hallo, für im Titel genanntes Bauvorhaben habe ich zwei Entwürfe vom Architekten und einen dritten von mir selbst. Entwurf 1 kam direkt vom...
  5. Grundrissplanung: Gäste-Bad & HWR

    Grundrissplanung: Gäste-Bad & HWR: Hallo zusammen, wir sind in den letzten Zügen einen Altbau zu erwerben & planen momentan den Grundriss im EG. Kurze Situationsbeschreibung:...