Grundrissplanung modernes Satteldach

Diskutiere Grundrissplanung modernes Satteldach im Architektur Allgemein Forum im Bereich Architektur; Ist das wirklich ein Architekt, der die hier geteilten Pläne gezeichnet hat ? Oder vielleicht doch eher ein Maschinenbau-Ing der sich in der...

  1. #21 simon84, 31.01.2025
    simon84

    simon84
    Moderator

    Dabei seit:
    11.11.2012
    Beiträge:
    23.259
    Zustimmungen:
    6.904
    Beruf:
    Schrauber
    Ort:
    Muenchen
    Ist das wirklich ein Architekt, der die hier geteilten Pläne gezeichnet hat ? Oder vielleicht doch eher ein Maschinenbau-Ing der sich in der Autocad Variante verklickt hat ?

    Die Einfahrt klappt in der Praxis nicht fürs zweite Fahrzeug.
    Das sind schlimmere Verhältnisse als bei uns in der Werkstatt wenn alles voll ist.

    Evtl. weiter nach planlinks schieben und die Zufahrt dorthin versickerungsfähig Ökopflaster oder Schotter machen,
    oder eben darauf einstellen, dass da nur ein Auto drin steht, dafür aber geräumig.
    Oder falls zulässig, zwei Parkplätze hintereinander.

    Waschbecken etc. ist dort auch eingezeichnet, das heisst es soll in der Garage auch geschraubt werden ?
     
    11ant gefällt das.
  2. #22 Kriminelle, 31.01.2025
    Kriminelle

    Kriminelle

    Dabei seit:
    16.05.2013
    Beiträge:
    3.710
    Zustimmungen:
    2.048
    Beruf:
    .
    Ort:
    Niedersachsen
    Hab ich auch so gedacht, wenn man das ein oder andere Chichi so sieht.
    Aber letztendlich egal. TE äußert sich ja nicht zu meiner Kritik.
    Zur Auffahrt: viel Gerede! Natürlich ist die zum Cruisen, gemeint ist natürlich das Wenden zu kurz und sollte mindestens 6 Meter Länge haben. Breit, also nach oben kann man die Pflasterung auch etwas dehnen. Und dann kann man auch durch eine 4 Meter breite Zufahrt kommen.
     
    11ant gefällt das.
  3. 415B

    415B

    Dabei seit:
    03.12.2024
    Beiträge:
    1.429
    Zustimmungen:
    246
    Keine Bange die Garage wird bald voll sein das kein Auto mehr drinnen Platz hat. Stichwort: Fahrrad, Skier, Snowboard, Waschmaschine, Getränkekisten, Werkbank.....
    dann steht das Auto eh auf der Strasse.
     
  4. #24 Holzhaus61, 31.01.2025
    Holzhaus61

    Holzhaus61

    Dabei seit:
    10.04.2023
    Beiträge:
    1.327
    Zustimmungen:
    580
    Also, wenn dann PH-Standard gewünscht ist, dann sollte das jemand planen, der sowas kann und nicht jemand, der schon mal was davon gehört hat, daß es sowas gibt....
     
    11ant gefällt das.
  5. zlygpd

    zlygpd

    Dabei seit:
    26.01.2025
    Beiträge:
    8
    Zustimmungen:
    2
     

    Anhänge:

  6. zlygpd

    zlygpd

    Dabei seit:
    26.01.2025
    Beiträge:
    8
    Zustimmungen:
    2
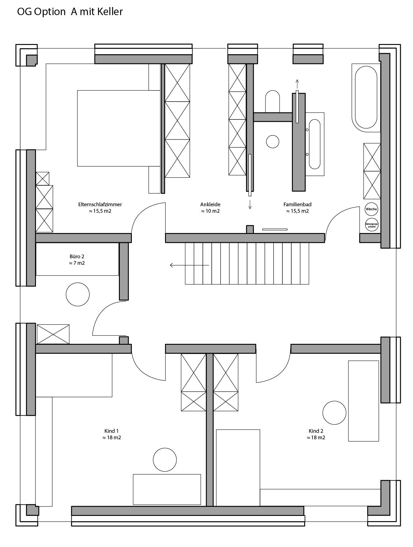
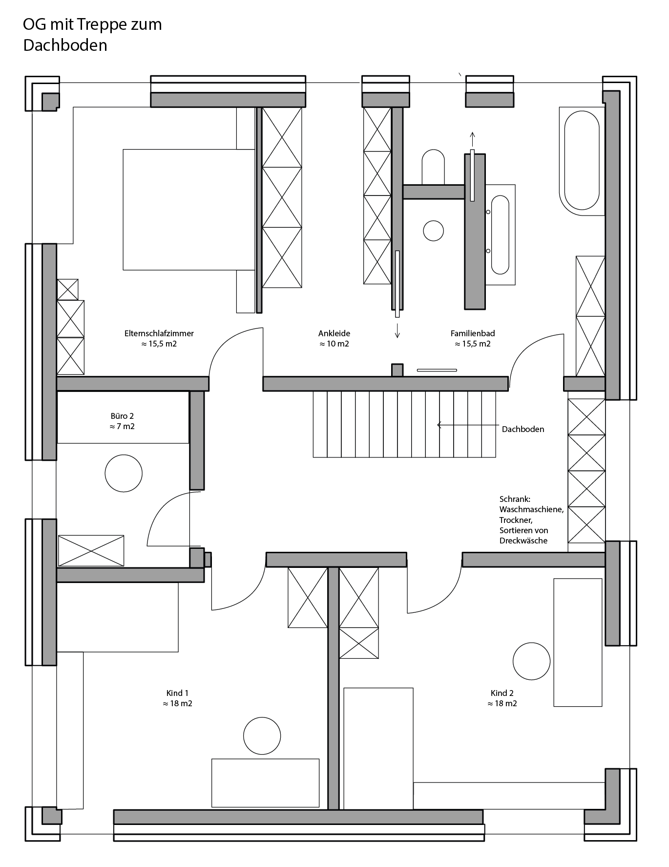
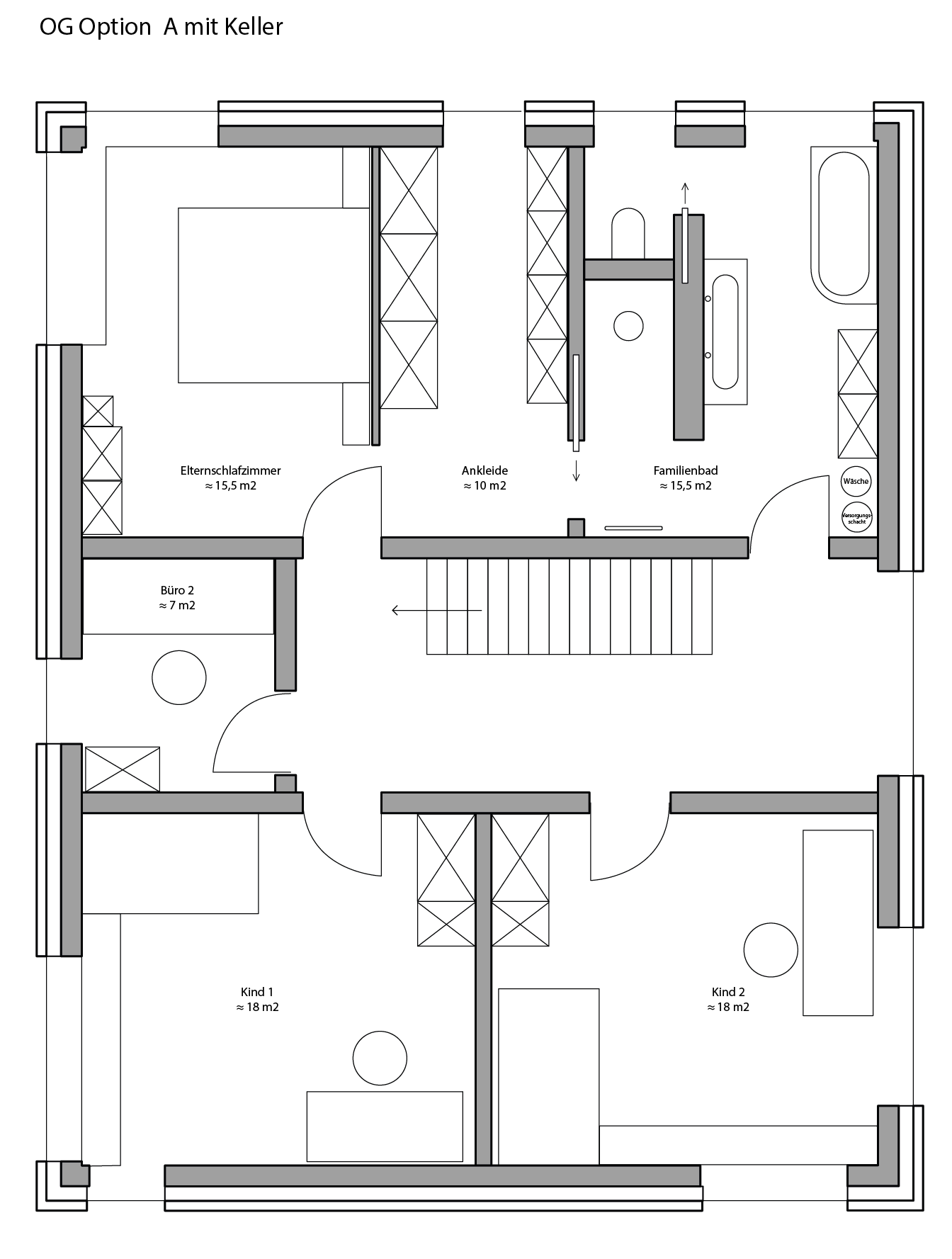
    Option A mit Keller (DG nicht ausgebaut):
    Option A Untergeschoss.png Option A OG.png . Option A Keller.png

    Option B mit Keller Eingang Süd:
    Option B Untergeschoss-21.png

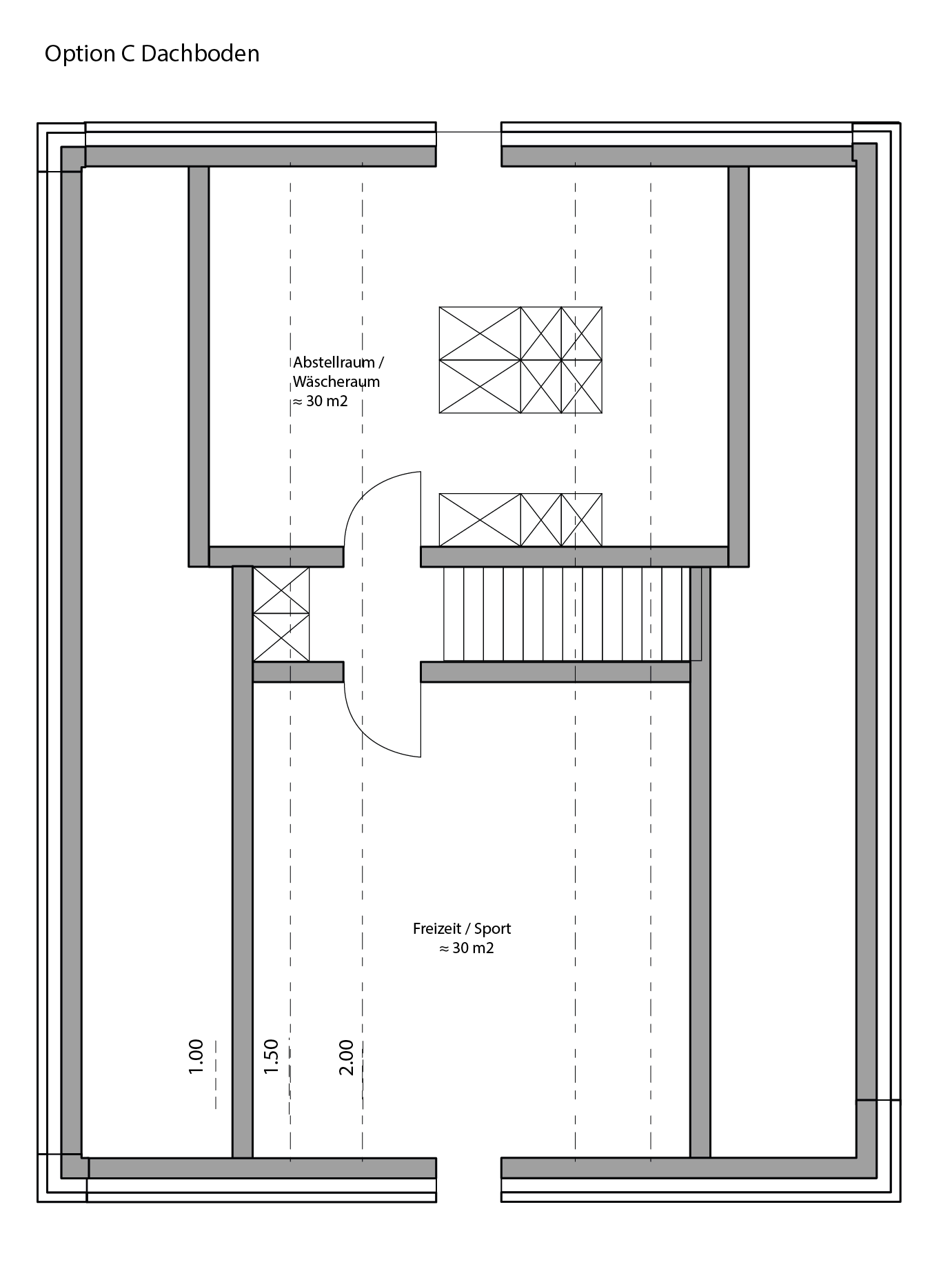
    Option C ohne Keller DG ausgebaut als Alternative zu Keller:

    Option C ohne Keller OG.png Option C ohne Keller DG.png Option C ohne Keller UG.png
     
    Fasanenhof gefällt das.
  7. zlygpd

    zlygpd

    Dabei seit:
    26.01.2025
    Beiträge:
    8
    Zustimmungen:
    2
    Richtig, dies ist ein
     
  8. #28 zlygpd, 01.02.2025
    Zuletzt bearbeitet: 01.02.2025
    zlygpd

    zlygpd

    Dabei seit:
    26.01.2025
    Beiträge:
    8
    Zustimmungen:
    2
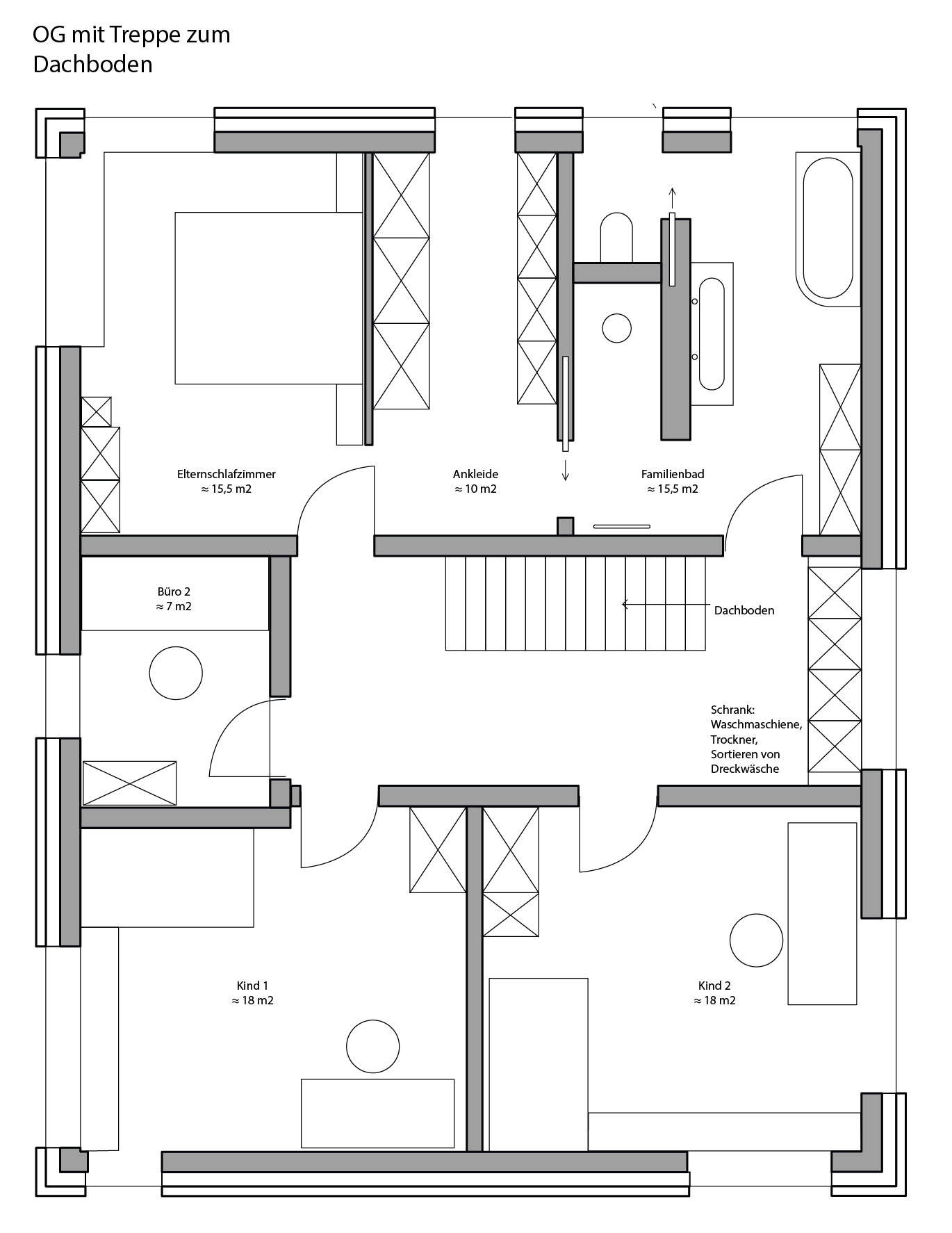
    Hier die Zeichnung von unserem Architekten. Basierend darauf haben wir versucht ein wenig alles hin und her zu schieben siehe PDF.
    Den Anhang 139550 betrachten

    Was uns daran nicht gefallen hat:

    1. Gaderobe zu klein für eine Familie
    2. Nur ein HO Platz (wir können nicht zusammen in einem Büro arbeiten - viele Termine für die wir unsere Bildschirme benötigen und viel sprechen)
    3. Flur im 1. OG
    4. Dusche im Gäste WC
    5. Verlust von Garten aufgrund der versiegelten Fläche durch die Garage am Haus. Zudem kann das Haus nicht weiter in den Norden rutschen (versiegelte Fläche würde durch die Garagenzufahrt die erlaubte versiegelte Fläche übersteigen)
     
  9. #29 Kriminelle, 02.02.2025
    Zuletzt bearbeitet: 03.02.2025
    Kriminelle

    Kriminelle

    Dabei seit:
    16.05.2013
    Beiträge:
    3.710
    Zustimmungen:
    2.048
    Beruf:
    .
    Ort:
    Niedersachsen
    ohne Keller bedeutet, dass auch für ein "mit" noch weiteres Kapital offen ist?

    Hier mal eine andere Version, passend zum langen Grundstück ein länglicheres Haus, allerdings mit dem besagten ebenerdigen Ausgleichszimmer und dadurch größer/teurer.
    Fenster und OG sind etwas gepfuscht, kann man aber alles in nett machen

    Hausplanung durch mich gelöscht!
     
    11ant gefällt das.
  10. #30 Kriminelle, 03.02.2025
    Kriminelle

    Kriminelle

    Dabei seit:
    16.05.2013
    Beiträge:
    3.710
    Zustimmungen:
    2.048
    Beruf:
    .
    Ort:
    Niedersachsen
    Warum wusste ich wohl, dass Du keinen Kommentar abdrückst?
    Ich werde meinen Beitrag editieren.. bin jetzt auch mal so frei.
     
Thema:

Grundrissplanung modernes Satteldach

Die Seite wird geladen...

Grundrissplanung modernes Satteldach - Ähnliche Themen

  1. Stallumbau - Grundrissplanung

    Stallumbau - Grundrissplanung: Hallo zusammen! Wir planen, einen ehemaligen Stall zu einem Wohnhaus umzubauen. Das Erdgeschoß bleibt bestehen (Werkstatt, Garage, Lager,...
  2. Kapitänshaus Grundrissplanung

    Kapitänshaus Grundrissplanung: Moin aus Niedersachsen, nachfolgend möchte meine Frau und ich Euch Experten um Bewertung unseres Grundrisses fragen. 1. Wir sind: Anzahl der...
  3. Grundrissplanung Bungalow 100 m2 mit Ausbaureserve

    Grundrissplanung Bungalow 100 m2 mit Ausbaureserve: Hallo, für im Titel genanntes Bauvorhaben habe ich zwei Entwürfe vom Architekten und einen dritten von mir selbst. Entwurf 1 kam direkt vom...
  4. Grundrissplanung: Gäste-Bad & HWR

    Grundrissplanung: Gäste-Bad & HWR: Hallo zusammen, wir sind in den letzten Zügen einen Altbau zu erwerben & planen momentan den Grundriss im EG. Kurze Situationsbeschreibung:...
  5. Grundrissplanung + Wanddurchbruch

    Grundrissplanung + Wanddurchbruch: Hallo zusammen, ich würde gerne mal eure Meinung bzw. Expertise hören. Wir planen derzeit ein Haus zu kaufen. Für uns ist klar, dass die Wand...