GRZ Berechnung bei teilweise überbauter Garage

Diskutiere GRZ Berechnung bei teilweise überbauter Garage im Baugesuch, Baugenehmigung Forum im Bereich Rund um den Bau; Hallo zusammen, wir beabsichtigen in Baden-Württemberg zu bauen. Die GRZ im Baugebiet beträgt 0,25. Unsere Planung sieht vor, dass unsere...

  1. #1 zimmermannt9, 18.05.2022
    zimmermannt9

    zimmermannt9

    Dabei seit:
    18.05.2022
    Beiträge:
    3
    Zustimmungen:
    0
    Ort:
    Baden-Württemberg
    Hallo zusammen,

    wir beabsichtigen in Baden-Württemberg zu bauen. Die GRZ im Baugebiet beträgt 0,25.
    Unsere Planung sieht vor, dass unsere Doppelgarage teilweise (ca. 2/3) mit Wohnraum überbaut wird. Aus diesem Grund rutschen wir diese Garage auch von der Grenze ins Baufenster hinein.

    1. Die Garage mit Zufahrt zählt ja zur GRZ II. Zählt sie auch noch als Garage, wenn diese mit Wohnraum überbaut ist oder gehört sie dann zum Haus selbst und fällt unter die GRZ I ? Oder wird dies anteilsmäßig gerechnet?

    Bisher konnte uns niemand diese Frage beantworten oder die zuständige Stelle hat auf Architekten verwiesen. Der weiß dass aber wohl auch nicht.

    2. Ist es auch korrekt, dass das Haus und die Terrasse zur GRZ I zählen und Garage, Carport, Zufahrt, Wege zur GRZ II (also +50%)? Auch wenn dies direkt am Haus anliegend ist? Hierzu haben wir nämlich unterschiedliche Angaben gefunden.

    3. Zählt der Dachüberstand von 0,5 m auch als überbaut? Im Bebauungsplan steht dazu nur, dass der Dachüberstand bis 0,5 m über das Baufenster rausstehen darf.

    4. Vielleicht kann uns auch jemand sagen, ob Rasengittersteine und Holzterrassen als überbaut zählen.

    Für verlässliche Antworten wären wir sehr dankbar.

    Schöne Grüße
    Thomas
     
  2. Dimeto

    Dimeto

    Dabei seit:
    22.07.2017
    Beiträge:
    1.635
    Zustimmungen:
    2.145
    Beruf:
    Vermessungsingenieur
    Ort:
    NRW
    So ist es. Der mit Wohnraum überbaute Teil zählt zur GRZ I.
    Korrekt. Es sei denn, der BPlan setzt etwas von der BauNVO abweichendes fest.
    Was denn, wo denn?
    Nein.
    Ja, es sei denn, der BPlan gewährt ausdrücklich andere Berechnungsansätze.
    Verlässlicher werden die Antworten, wenn der BPlan, ein Lageplan und ein Satz Bauzeichnungen bekannt gemacht werden.

    Alle Antworten unter der Voraussetzung, dass die BauNVO in einer Fassung ab 1990 zur Anwendung kommt (Offenlage BPlan ab Feb. 1990).
     
    zimmermannt9, Katja aus Sachsen und simon84 gefällt das.
  3. #3 zimmermannt9, 18.05.2022
    zimmermannt9

    zimmermannt9

    Dabei seit:
    18.05.2022
    Beiträge:
    3
    Zustimmungen:
    0
    Ort:
    Baden-Württemberg
    Vielen Dank Dimeto für die sehr hilfreichen Antworten.

    Da ich den Link vom Baupilot hier nicht teilen kann, sende ich diesen in einer direkten Nachricht. Dort sind die Bebauungsunterlagen und Planzeichnung auf der rechten Seite einsehbar. Wir möchten in WA 1 (GRZ 0,25) bauen.
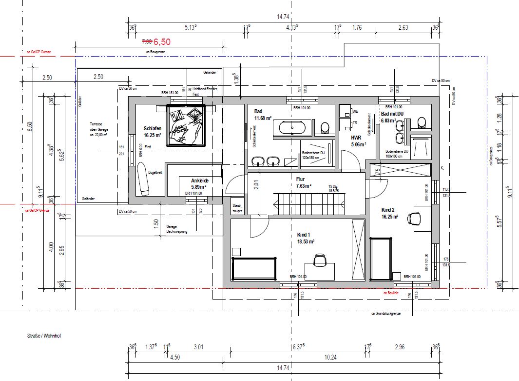
    Unser Grundriss vom EG & OG ist im Anhang. Dort sieht man auch, wie die Garage überbaut ist.

    Nochmals vielen Dank für die Hilfe
     

    Anhänge:

    • OG.JPG
      OG.JPG
      Dateigröße:
      128,8 KB
      Aufrufe:
      396
    • EG.jpg
      EG.jpg
      Dateigröße:
      310 KB
      Aufrufe:
      657
  4. Dimeto

    Dimeto

    Dabei seit:
    22.07.2017
    Beiträge:
    1.635
    Zustimmungen:
    2.145
    Beruf:
    Vermessungsingenieur
    Ort:
    NRW
    Im wesentlichen bleibt es damit bei meiner ersten Einschätzung. Durch die Dachterrasse gilt allerdings die gesamte Garage als überbaut, so dass sich die Frage nach GRZ I oder II gar nicht stellt. Weiterhin könnte ich mir vorstellen, dass die Genehmigungsbehörde auch das Vordach, da es auch als Eingangsüberdachung dient, der GRZ I zuordnet. Und ob die Garage von der Baulinie zurückweichen darf, stelle ich ebenfalls in Zweifel.

    Ich hoffe, ich begehe keinen Geheimnisverrat, wenn ich die PN-Frage hier zitiere:
    Runden ist vom Gesetzgeber nicht vorgesehen aber aus rein praktikablen Gründen runden Vermesser geodätisch auf die dritte Nachkommastelle, hier mal auf die Spitze getrieben: 0,25050 ~ 0,250 => zulässig vs. 0,25051 ~ 0,251 => unzulässig
    Manchmal passt es auch besser mit den absoluten Flächenwerten, da die Buchfläche im Grundbuch immer auf volle Quadratmeter angegeben ist.
     
    zimmermannt9 gefällt das.
  5. #5 Kriminelle, 19.05.2022
    Kriminelle

    Kriminelle

    Dabei seit:
    16.05.2013
    Beiträge:
    3.828
    Zustimmungen:
    2.157
    Beruf:
    .
    Ort:
    Niedersachsen
    simon84 gefällt das.
  6. #6 zimmermannt9, 23.05.2022
    zimmermannt9

    zimmermannt9

    Dabei seit:
    18.05.2022
    Beiträge:
    3
    Zustimmungen:
    0
    Ort:
    Baden-Württemberg
    Vielen Dank für die Antworten. Hat uns weitergeholfen...
     
Thema:

GRZ Berechnung bei teilweise überbauter Garage

Die Seite wird geladen...

GRZ Berechnung bei teilweise überbauter Garage - Ähnliche Themen

  1. Fachwerken Berechnung

    Fachwerken Berechnung: Hi, welche Software könnt ihr zur Berechnung von Fachwerken mit der Gelenkmethode empfehlen? Ich benutze den Fachwerkrechner Werbung gelöscht Im...
  2. Statische Berechnung Garage (Bewehrung…) verstehen

    Statische Berechnung Garage (Bewehrung…) verstehen: Liebe Leute, wir haben ein altes Haus (1924 und ein Anbau von 1994) und immer zu wenig Platz! Daher soll eine zweite Garage her, die ich zusammen...
  3. Tragende Wand? Statische Berechnung fehlt aktuell

    Tragende Wand? Statische Berechnung fehlt aktuell: Hallo zusammen, ich habe eine Frage zur Tragfähigkeit einer Innenwand. Im angehängten Grundriss ist die betreffende Wand rot markiert. Leider...
  4. Pelletmenge anhand Energieausweis basierend auf Nachtspeicheröfen berechnen.

    Pelletmenge anhand Energieausweis basierend auf Nachtspeicheröfen berechnen.: Hallo, ich prüfe gerade den Erwerb eines EFH aus den 60ern. Bei dem Gebäude entspricht eigentlich Lage, Schnitt, Grundstück etc. alles unseren...
  5. Aus Liegenschaftskarte Grenzabstände berechnen?

    Aus Liegenschaftskarte Grenzabstände berechnen?: Hallo, macht es Sinn, aus einer Liegenschaftskarte Grenzabstände zu berechnen? Man kann die Karte ja einscannen und am PC exakt die Pixel...