Haftbarkeit Planung und Eingapeplan

Diskutiere Haftbarkeit Planung und Eingapeplan im Architektur Allgemein Forum im Bereich Architektur; Hallo zusammen, ich bin neu hier und hoffe das ich das Thema nicht erneut aufgreife aber habe nichts darüber gefunden. Wir haben durch einen...

  1. #1 alexanderk88, 11.12.2019
    alexanderk88

    alexanderk88

    Dabei seit:
    11.12.2019
    Beiträge:
    4
    Zustimmungen:
    0
    Hallo zusammen,

    ich bin neu hier und hoffe das ich das Thema nicht erneut aufgreife aber habe nichts darüber gefunden.

    Wir haben durch einen Generalunternehmer schlüsselfertig bauen lassen. Da meine Mutter noch mit im EG wohnt wurde uns gesagt wir können 2 x KFW bekommen. Somit wurden im OG noch Anschlüsse für eine Küche vorgesehen.

    Nun hat sich das aber so gestaltet:

    - Angebot und Bauvertrag sowie Energieausweis wurden mit EFH deklariert
    - Eingabeplan und die Bauanträge sowie die Baubeschreibung die an das Landratsamt gingen wurden als 2-Familienhaus (2 WE) deklariert
    - wir haben keine getrennten Eingänge, OG ist komplett offen
    - im EG haben wir den Windfang mit Treppe in den Keller und das OG
    - dann kommt im EG ein lang gezogener Raum von dem man ins Bad, Schlafzimmer sowie Wohnzimmer mit Küche und Essbereich kommt
    - alles einfache Zimmertüren, somit nur 1 Haustür und auch nur 1 Stromzähler

    Da wir mit dem Generalunternehmer im Rechtsstreit sind und es um über 100.000€ an Baumängeln geht, die Firma eine GmbH ist mit einem Geschäftsführer sind die Chancen sehr gering das wir unser Geld überhaupt bekommen (Anwalt und Gutachter haben zsm. schon 15.000€ verschlungen). Wir haben aber im Gesetz zur GmbH gelesen das wenn der Geschäftsführer fahrlässig handelt er auch mit seinem Privatvermögen haftet (ca. 1,5 Millionen).

    Unsere Frage nun, kann hier jemand für diese Planung die im Endeffekt schon falsch war belangt werden und zählt das als fahrlässig. Der Generalunternehmer hat nicht geplant sondern ein Planungsbüro die den Eingabeplan auch erstellt haben.

    Wir würden uns sehr freuen hierzu eine Antwort zu bekommen und am Besten mit Verweisen auf Gesetze da sogar unser Anwalt es mittlerweile seit ca. 1 Jahr nicht schafft vorwärts zu kommen und wir auf Antworten 3-4 Wochen warten. Das oben beschriebene Thema konnte er uns überhaupt nicht beantworten.
     
  2. #2 simon84, 11.12.2019
    simon84

    simon84
    Moderator

    Dabei seit:
    11.11.2012
    Beiträge:
    23.271
    Zustimmungen:
    6.910
    Beruf:
    Schrauber
    Ort:
    Muenchen
    Bitte beschreibe genau das Problem ? Wurde das Bauvorhaben genehmigt ? Als EFH oder als MFH (2WE)?

    Worin siehst die Fahrlässigkeit bzw. den Fehler ?

    Stehen die Mängel in Zusammenhang mit der Planung oder sind es "einfach" nur Ausführungsfehler ?

    Durchgriffshaftung an GF/GS der GmbH ist mit relativ hohen Hürden verbunden.
     
  3. #3 alexanderk88, 11.12.2019
    alexanderk88

    alexanderk88

    Dabei seit:
    11.12.2019
    Beiträge:
    4
    Zustimmungen:
    0
    Hi Simon und Danke für deine Antwort erst mal.

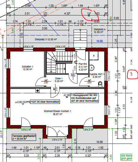
    Eingabeplan sowie die Anträge für das Landratsamt wurden als 2-Familienhaus deklariert somit denke ich wurde auch ein 2-Familienhaus (2WE) genehmigt. Jedoch gibt es keine Trennung durch Hauseingangstüren, ich habe mal den Eingabeplan angehängt.

    Wie hoch sind die Hürden? Die Firma hatte und hat nie Geld auf dem Geschäftskonto, das zeigt doch auf das der GF seinen kaufm. Pflichten nicht nachgegangen ist oder nicht? Des weiteren hat er auch nichts am Bau gelernt oder Bildung in diesem Bereich erfahren dürfen.

    Danke schon mal für die Hilfe EG.PNG OG.PNG
     
  4. #4 Fabian Weber, 11.12.2019
    Fabian Weber

    Fabian Weber

    Dabei seit:
    03.04.2018
    Beiträge:
    16.314
    Zustimmungen:
    6.481
    Ich verstehe noch nicht ganz, wo durch die fehlende Eingangstür für Euch ein Schaden entstanden ist.

    Für die zwei KFW-Anträge gilt doch wahrscheinlich der Bauantrag und der sagt doch 2-Familien.
     
  5. #5 alexanderk88, 12.12.2019
    alexanderk88

    alexanderk88

    Dabei seit:
    11.12.2019
    Beiträge:
    4
    Zustimmungen:
    0
    hi Fabian, da kann ich mich momentan nicht weit aus dem Fenster lehnen darum brauche ich eine Info für die Haftbarkeit weil der Schaden bereits 100.000€ Beträgt (Baumängel) und noch weitere 150.000€ dazu kommen könnten genau aus dieser Sache geschuldet und der Typ hat eine GmbH wenn alles komplett schief läuft bleiben wir auf den Kosten komplett sitzen....
     
  6. #6 Fabian Weber, 12.12.2019
    Fabian Weber

    Fabian Weber

    Dabei seit:
    03.04.2018
    Beiträge:
    16.314
    Zustimmungen:
    6.481
    Meine Frage war ob Ihr die Förderung nun wie geplant bekommt oder nicht.

    Wieviel Einbehalt habt Ihr denn für die Mängel gemacht?
     
  7. #7 alexanderk88, 12.12.2019
    alexanderk88

    alexanderk88

    Dabei seit:
    11.12.2019
    Beiträge:
    4
    Zustimmungen:
    0
    Ja momentan haben wir sie schon bekommen jedoch kann es passieren das sie uns genommen wird.

    Da ich den GU durch einen Freund kennen gelernt habe und anfangs alles auf freundschaftlicher Basis gelaufen ist nur knapp 10.000€ aus der Schlussrechnung. Die Mängel wurden erst nach wenigen Monaten sichtbar und es sind noch einige dazu gekommen.
     
  8. BaUT

    BaUT

    Dabei seit:
    30.10.2019
    Beiträge:
    9.052
    Zustimmungen:
    5.660
    Beruf:
    Baufacharbeiter und Dipl.-Ing. Hochbau
    Ort:
    Berlin
    Benutzertitelzusatz:
    Erklärbär
    Eher kotzt ein Pferd vor der Apotheke als dass dein GmbH-Geschäftsführer mit seinem Privatvermögen für deine Baumängel haftbar gemacht wird. Allenfalls wird ihm im Falle von Insolvenzverschleppung oder so für die nächsten Jahre verboten eine GmbH geschäftsführend zu leiten. Aber das hilft euch null.

    Klingt ja Hammer:
    Bisher gutachterlich bestätigter Schaden 100.000 EUR
    weiterer angenommener Schaden 150.000 EUR
    Das klingt bei einem Einfamilienhaus schon nach Totalschaden?
     
  9. SIL

    SIL

    Dabei seit:
    06.05.2018
    Beiträge:
    10.865
    Zustimmungen:
    4.212
    Beruf:
    M. Sc. Dipl. Ingenieur
    Ort:
    6210
    Ach wad- ich war letzthin zu Gericht- da kamen auch so diverse Ansätze 3 qm ( Umnutzung) --150 K Entschädigung wollten die zum Vergleich:mega_lol:
     
  10. #10 simon84, 12.12.2019
    simon84

    simon84
    Moderator

    Dabei seit:
    11.11.2012
    Beiträge:
    23.271
    Zustimmungen:
    6.910
    Beruf:
    Schrauber
    Ort:
    Muenchen
    Durchgriffshaftung bei Strafrecht. Grobe Fahrlässigkeit reicht nicht.

    die Mängel stehen gar nicht in Verbindung mit dem Thema KfW oder doch ?

    warum denkst du dass euch eine Förderung genommen wird ? Wenn der Antrag und danach die Bestätigung vom Energieberater durch sind und die Förderung ausbezahlt ist kommt da keiner mehr
     
  11. arch

    arch

    Dabei seit:
    01.06.2017
    Beiträge:
    568
    Zustimmungen:
    234
    Beruf:
    Architekt
    Ort:
    Bodensee
    Wurde denn schon das normale Mängelporcedere durchgespielt? Wirkt etwas wirr auf mich, das alles.
     
    SIL gefällt das.
  12. SIL

    SIL

    Dabei seit:
    06.05.2018
    Beiträge:
    10.865
    Zustimmungen:
    4.212
    Beruf:
    M. Sc. Dipl. Ingenieur
    Ort:
    6210
    da arch und BaUt keine thermische Lust verspüren, kurzer Anriss der Thematik..

    Das geht ja - da wir die spezifischen Festlegungen nicht kennen - kein Kommentar.Dazu s.u.
    was steht in der Abgeschlossenheit?Abgeschlossenheitbescheinigung?
    Separate Eingänge sind nicht notwendig. Es geht auch über einen gemeinsamen Zugang.
    HT o.k. aber die Einheit brauch eine Wohnungeingangtür und Unterzähler, das sollte nicht das Problem sein.

    Grundsätzliche Probleme
    Die Einliegerwohnung/WE muss über eigene sanitäre Einrichtungen und eine Küche oder Kochmöglichkeit verfügen, muss zwingend Wärmeschutz und Schallschutz separat erfüllen, alle Nutzungsmerkmale " einer eigenständigen Wohnung" müssen erfüllt sein.
    Das ist ungenügend siehe ff
    Wie ist dieser aufgebaut? Bzw was steht auf dem Energieausweis?

    Gab es einen separaten Vertrag? Streitverkündend sind Sie immer Ihren Vertragspartner - wenn die Arch Leistung etc im GU enthalten ist, belibt auch der GU ihr Ansprechpartner, er kann ja dem Arch zur Streitbeitretung fordern....das ist dann nicht Ihr Problem.
    Das ist anscheindend hier das Problem Fibi.
    Ich gehe insofern von einer Rückforderung KFW aus...

    Das sollte gelöst von den Thema KFW betrachtet werden.:winken
    Dad denkst du im günstigsten gibts ne OWi plus Rückforderung, bei entsprechender " Bockigkeit" gehts ins StGB...




     
Thema:

Haftbarkeit Planung und Eingapeplan

Die Seite wird geladen...

Haftbarkeit Planung und Eingapeplan - Ähnliche Themen

  1. Poolterrasse verdichten und Gefälle Planung

    Poolterrasse verdichten und Gefälle Planung: Hallo zusammen, ich möchte dieses Jahr einen ConZero Stahlwandpool samt Terrasse errichten. Ich habe einen Lehmigen Boden. Jetzt benötige ich...
  2. GU haftbar falsche Höhe Grundleitungsanschluss

    GU haftbar falsche Höhe Grundleitungsanschluss: Hallo liebes Forum, Ich habe heute folgendes Problem. Bei einem GU-EFH Neubau, bei dem ich meinen besten Kumpel als quasi Ersatzbauleiter...
  3. Schaden durch unsachgemäßen DG-Ausbau, Verkäufer haftbar?

    Schaden durch unsachgemäßen DG-Ausbau, Verkäufer haftbar?: Beim DG-Ausbau vom Vorbesiter (Erstellung 2013) zeigen sich nach Erwerb der Immobilie (unser Eigentum 03.2014) nun erste Schäden. 12m...
  4. Estrich beschädigt, was nun? Bauträger haftbar?

    Estrich beschädigt, was nun? Bauträger haftbar?: Hallo, kurz zur Situation: Ich habe eine tragende Wand zwischen 2 Räumen entfernen lassen und die entstandene Lücke zwischen den beiden...
  5. Mängel nach Abnahme (Bauleitung haftbar?)

    Mängel nach Abnahme (Bauleitung haftbar?): Hallo Forum, wie schon an anderer Stelle berichtet, hab ich Probleme mit unserer Architektin und dem Fensterbauer. Ich habe Glas mit einem...