Haus am Hang

Diskutiere Haus am Hang im Architektur Allgemein Forum im Bereich Architektur; Hallo zusammen, nach einem erneuten Umzug - hoffentlich der letzte - sind wir mal wieder am planen... Wir haben ein Grundstück in Aussicht, ca....

  1. #1 Mauerfall, 28.02.2021
    Mauerfall

    Mauerfall

    Dabei seit:
    24.01.2013
    Beiträge:
    88
    Zustimmungen:
    3
    Beruf:
    Angestellter
    Ort:
    Baden-Württemberg
    Hallo zusammen,

    nach einem erneuten Umzug - hoffentlich der letzte - sind wir mal wieder am planen...

    Wir haben ein Grundstück in Aussicht, ca. 850qm, leichte Hanglage, ca. 35m lang. Die Anbindung ist gut, die Lage soweit auch, ist ein Baugebiet mit Baulücken, ca. 10 Jahre alt.

    Was das ganze etwas schwieriger macht ist die Ausrichtung: Nordhang, also Garten und Aussicht nach Norden, die Straße ist im Süden, zwar ruhig, aber für eine Südterrasse reichts leider nicht. Das Haus tief ins Grundstück stellen können wir auch nicht, da dann der Keller zum Vollgeschoss wird.

    Auch die Garage auf die Grundstücksgrenze packen geht leider nicht, da wir in diesem Falle wegen der Hanglage die zulässige Höhe der Garage überschreiten.

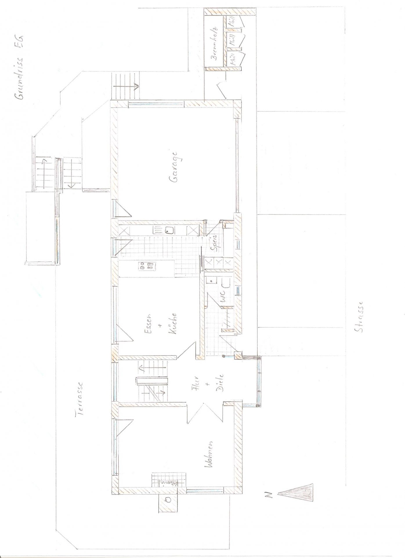
    Unsere Idee: ein langes, schmales Haus, das die Straße vom Garten trennt mit der Ausrichtung nach Norden und Westen. Funktionsräume zur Straße, Wohnräume zur Aussichtsseite mit Terrasse. Trotzdem ein Erker zur Straße um auch von Süden her Licht zu holen.

    Wir waren noch nicht beim Architekten, aber haben unsere Idee schon einmal zu Papier gebracht. Der Keller muss sicher noch angepasst werden, aber was meint Ihr generell zu diesem Entwurf? Eher Tonne oder kann man da als Experte etwas daraus machen?

    Beste Grüße
    Mauerfall
     

    Anhänge:

    11ant gefällt das.
  2. #2 K a t j a, 28.02.2021
    K a t j a

    K a t j a

    Dabei seit:
    31.05.2019
    Beiträge:
    1.009
    Zustimmungen:
    582
    Ort:
    Leipziger Land
    Wow, Ihr könnt gut zeichnen.
    Mir gefällt der Entwurf auf Anhieb. Das Haus ist allerdings wirklich lang. Wie lang ist es denn genau?
    So viel Haus am Hang - uiuiui - da sollte schon mindestens eine 8 vor den vielen Nullen stehen, denke ich. Steht die auch auf dem Konto?
     
  3. #3 Kriminelle, 28.02.2021
    Kriminelle

    Kriminelle

    Dabei seit:
    16.05.2013
    Beiträge:
    3.840
    Zustimmungen:
    2.163
    Beruf:
    .
    Ort:
    Niedersachsen
    Ist das Grundstück 35 Meter lang?
    Ist der Hang 35 Meter lang?

    Man kann hier überhaupt nichts sagen, weil irgendwie gar nichts bekannt sind ist außer der Qm-Zahl. Auf die kann man notfalls verzichten. Wichtig ist: Hang, Steigung, ab wo? Gibt es ein Plateau? Wo hört der Hang auf?
    Lageplan und Höhenangaben, gern auch den Schnitt mit Originalhöhen. Budget fürs Haus?

    Warum Aussicht nach Norden? Warum nicht auch im Süden oder Westen?
    Warum kein Garten im Westen oder Süden? Du schreibst doch selbst, dass die Straße ruhig liegt.
    Warum keinen Baukörper in den Hang mit dem Gelände?
    Das Konzept vom Haus erschließt sich so gar nicht.
    Auch ist das Haus zum Süden recht verschlossen. Wenn Du es schmal machst, könntest Du auf beiden Seiten Fenster generieren - das wäre ja genau der Vorteil an einem schmalen Haus.
    was reicht denn nicht?

    Die Frontansicht sieht aus wie eine Schule oder ein 60er Jahre-Finanzamt.
    Warum keine Wohnetage aus dem UG machen? Warum bekommen die Aufenthaltsräume keine Südsonne ?
    Das Haus ist energetisch eine kleine Sau - das liegt nicht nur an dem Korpus (es gibt ja einige KfW40 Häuser, die schmal sind) aber riesige Fenster nur zum Norden, das geht glaube ich nicht gut.
    Also: ohne Lageplan kann man dazu rein gar nichts sagen. Kannst Du den bitte noch nachreichen und die offenen Fragen beantworten?
     
    11ant, simon84 und K a t j a gefällt das.
  4. #4 Mauerfall, 28.02.2021
    Mauerfall

    Mauerfall

    Dabei seit:
    24.01.2013
    Beiträge:
    88
    Zustimmungen:
    3
    Beruf:
    Angestellter
    Ort:
    Baden-Württemberg
    Hallo Kriminelle,

    Lageplan muss ich mal einscannen...

    Also das Grundstück ist 35m x 24,5m, die 35m sind entlang der Straße, die 24,5m sind die Tiefe des Grundstücks. Der Hang verläuft parallel zur Straße, ich hab das aktuelle Geländeniveau in den Seitenansichten mit eingezeichnet. Der Höhenunterschied beträgt auf die 24,5 m ca. 3 m. Die Straße liegt oben, das Grundstück fällt fast ab der Straße relativ gleichmäßig nach Norden hin ab. Im Prinzip eine große, gleichmäßige, schiefe Ebene.

    Daher ist die Aussichtsseite auch die Nordseite. Im Osten und Westen stehen Bestandshäuser. Im Norden liegt im Tal der alte Ortskern mit Blick auf den gegenüberliegenden Südhang mit der Kirche. Im Süden die Straße mit Bebauung auf der anderen Straßenseite. Die Bebauung im Norden besteht nur aus einem Bungalow, über den man drüber sehen kann.

    Das Baufenster liegt entlang der Straße, von 3 m Abstand bis 15 m Abstand von der Straße. Allerdings sind nur zwei Vollgeschosse erlaubt. Ragt der Keller zu weit aus dem Boden, zählt er als Vollgeschoss. Ich kann daher mit dem Keller nicht auf die hintere Baulinie, da dieser sonst als Vollgeschoss zählt... dann wäre das OG nur noch mit einem Kniestock realisierbar.

    Daher wollen wir das Haus auf 5,50m zur Straße setzen. Heißt auch es wäre zur Strasse noch Platz für eine Terrasse von ca. 2,50m bis zur Baugrenze. Aber: Terrasse zur Straße wollen wir nicht, zum einen ist es zwar ruhig, aber es laufen am Wochenende doch sehr viele Spaziergänger durch weils Richtung Grün geht und leider sind vorne auch nur Einfriedungen bis 1,00m erlaubt - Präsentierteller muss nicht sein. Daher auch keine großen Fenster in Richtung Süden - nicht jeder muss durch das komplette Haus sehen können. Die Nachbarn haben ihre Terrasse nach Süden zur Straße gesetzt, nutzen die nie und haben den ganzen Tag die Läden unten, weil jeder reinsehen kann.

    Im Westen ist ja die Terrasse ums Haus herum gezogen, da gibt es ja auch noch ein paar Meter Garten, das wird dann wohl auch die Ecke fürs Sonnenbaden, dann aber auch mit Sichtschutz wie angedeutet.

    Außerdem: Wir haben gerade eine Wohnung mit Ausrichtung nach Süden. Da sind im Sommer die Läden nur noch unten - weil sich das alles aufheizt wie blöd... von daher war uns das mit dem Norden gar nicht mal so unlieb. Stimmt aber - energetisch ist das nicht optimal.

    Budget sind ca. 750.000 €.

    Ich hoffe das hilft schon mal weiter!

    Hallo Katja,

    sind 21m Länge und 7m Breite... ohne den Durchgang neben an der Seite.

    Beste Grüße
    Mauerfall
     
    11ant gefällt das.
  5. #5 Kriminelle, 28.02.2021
    Kriminelle

    Kriminelle

    Dabei seit:
    16.05.2013
    Beiträge:
    3.840
    Zustimmungen:
    2.163
    Beruf:
    .
    Ort:
    Niedersachsen
    Ja, nur drehen sich die Fotos immer zur Seite, wenn man den Bildschirm dreht ;)
    Es wäre schön, wenn man den Boden auch unten hätte, damit man den Hals etwas schont.
    Aber mit 24,5, die 3 Meter gleichmäßig verteilt, kann man sich ein gutes Bild machen.
    Daher?
    Für mich wäre das „Daher“ im Süden: 2-Geschosser, das EG nach hinten als Keller, nach vorn als Wohnraum... eher Pultdach, eher versetzt, also mit dem Hang verlaufend, damit das Haus sich einfügt und nicht wie ein Klotz wirkt.


    Daher?

    Man baut ja das Haus nicht gegen Nachbarn, sondern für seine Bewohner.

    Ich hab es versucht zu verstehen, aber ohne Raumprogramm und Wünschen der Bauherren, auf das sich immer dieses „Daher“ bezieht, erklärt sich mir nicht.
    Ich seh den Hang auch nicht als große Herausforderung (Bodenbewegungen müssen ja eh gemacht werden) sondern eher, dass es die Breitseite zur Straße hat und der zukünftige Bewohner keine Sonne im Haus mag und von jedem Spaziergänger denkt, dass er Euch so interessant findet, dass er gucken muss.
    Ich stelle die nächsten Tage hier noch einen Fragebogen ein - vielleicht hast Du dann ja noch Interesse, den auszufüllen, damit man eher auf Dich eingehen kann.

    Zum Grundriss selbst:
    Keller: Arbeitszimmer ohne Fenster, aber als Durchgangsraum?
    Wäsche trocknen auf komplizierten Weg nach draußen.
    „Terrasse“ ist hier ein eingegrabenes Loch und entgegen des Grundstücksverlaufes.
    Ohne Maßangaben, durch zählen Deiner Küchenmöblierung ergibt sich eine Hausbreite innen von ca. 6,20.
    Ergibt im OG eigentlich nur Raumschläuche: Kizis mit max 3 Meter, Bäder mit 2, Flur mit 90cm...
    SZ als Durchgangszimmer Ankleide//Bad ist auch verbesserungswürdig, Dusche und Toi kann nebeneinander schon recht eng werden.
    Gast ist das schönste Zimmer.
    Ansichten sind, schon gesagt, nicht beurteilungsmöglich, zumindest nicht genau.
    Ich würde für den Architekten ein ordentliches Raumprogramm mit Wünschen und Gewohnheiten aufschreiben und ihn mal machen lassen.
     
    11ant gefällt das.
  6. #6 K a t j a, 01.03.2021
    K a t j a

    K a t j a

    Dabei seit:
    31.05.2019
    Beiträge:
    1.009
    Zustimmungen:
    582
    Ort:
    Leipziger Land
    Ich sehe den Entwurf auch am Licht scheitern. Die Sonne in den Räumen ist nunmal essentiell. Es muss ja nicht gleich ein Panorama Fenster gen Straße sein. Aber die Südsonne auszuschließen ist absurd, besonders auch in den Kizis und am Küchentisch.
    Architekt am besten ohne Skizzen machen lassen und damit wieder kommen. :)
     
    simon84, 11ant und Kriminelle gefällt das.
Thema:

Haus am Hang

Die Seite wird geladen...

Haus am Hang - Ähnliche Themen

  1. kleines altes Haus (ca. 1939) auf Felsen am Hang kaufen ?

    kleines altes Haus (ca. 1939) auf Felsen am Hang kaufen ?: Hallo, beabsichtige, kleines altes Haus (ca. 1939) auf Felsen am Hang zu kaufen. Ordentliche Dränage, bis ganz tief runter fehlt, so dass die...
  2. Haus am Hang mit Keller und Terasse im Erdgeschoss

    Haus am Hang mit Keller und Terasse im Erdgeschoss: Hallo zusammen, folgendes: Ich habe vor unter meiner Terasse noch einen Kellerraum zu errichten, weil ich den Platz einfach brauche. Die Terasse...
  3. Kleines Haus am Hang 7*12,5m

    Kleines Haus am Hang 7*12,5m: Hallo Experten, Ich brauche hier mal Euren Rat. Grundstueck ist reserviert. Ich stelle mal den GS Plan hier ein. DIe Grundrisse habe ich mal...
  4. Haus am Hang - schieflage

    Haus am Hang - schieflage: Schräglage Haus am Hang Hallo, wir sind gerade dabei uns ein Haus am Hang zu kaufen und haben hier noch ein paar Bedenken weshalb ich gerne die...
  5. Unsetzungsmöglichkeit Auffahrt Haus am Hang

    Unsetzungsmöglichkeit Auffahrt Haus am Hang: Hallo an alle Wissenden, ich benötige eine Autoauffahrt zu meinem Haus, was am Hang liegt und bisher nur über Treppen erreichbar ist. Das Problem...