Hausentwurf

Diskutiere Hausentwurf im Architektur Allgemein Forum im Bereich Architektur; Hallo, dies ist unser Erstentwurf (siehe Anhang). Wir würden uns über konstruktive Kritik freuen :) Anbei die Daten und Fakten zu uns: 1. Wir...

  1. #1 TobiasH, 24.07.2023
    TobiasH

    TobiasH

    Dabei seit:
    24.07.2023
    Beiträge:
    2
    Zustimmungen:
    0
    Hallo,
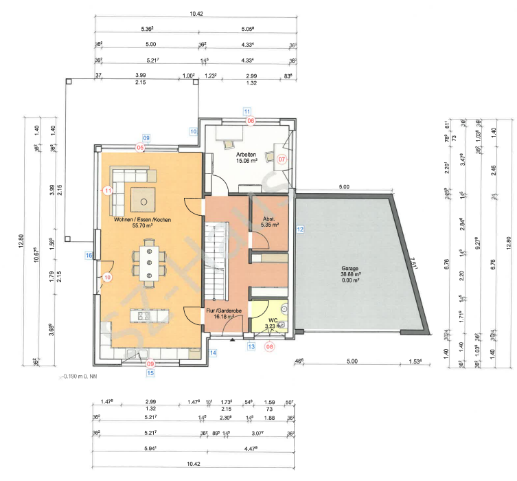
    dies ist unser Erstentwurf (siehe Anhang).
    Wir würden uns über konstruktive Kritik freuen :)

    Anbei die Daten und Fakten zu uns:

    1. Wir sind:

    4 Personen (eine weitere geplant :) ),
    Alter: 42, 33, 4, 2
    Keine Behinderungen bzw. Beeinträchtungen vorhanden.

    2. Unser Raumprogramm:
    Drei Kinderzimmer, sowie wegen Homeoffice ein Büro. Keller als Lager, für Technik und auch für Hobbies und Kinder (Spielzimmer), viel Lagerfläche bei drei Kids,
    offener All-Raum (Küche, Essen, Wohnen zusammen)

    3. Welchen Hausstil bevorzugen wir?
    und warum?
    Bauhausstil - modern, elegant

    4. Welche Zusatzwünsche/Features

    Doppelgarage

    5. Bebauungsplan/Einschränkungen

    Bebauungsplan liegt vor und Haus darf so gebaut werden.
    Größe des Grundstücks: ca. 800 qm
    Leichte Hanglage in zwei Richtungen (siehe Höhenplan)

    Randbebauung wo erlaubt?

    Anzahl Stellplätze: zwei
    Garage auf Grundstücksgrenze zum Nachbarn erlaubt.

    6. angedachte Haustechnik

    Heizungstyp: Wärmepumpe
    keine Lüftung
    KFW-Standard 55


    8. Hausentwurf

    Planer eines Bauunternehmens

    9. Preisschätzung lt. Architekt/Planer

    Auf Basis des Erstentwurfs erfolgt die Preiskalkulation, uns ist bewusst das dieses Haus > 600000 Euro kosten wird.
     

    Anhänge:

  2. #2 Fasanenhof, 24.07.2023
    Fasanenhof

    Fasanenhof

    Dabei seit:
    20.02.2023
    Beiträge:
    1.455
    Zustimmungen:
    814
    Beruf:
    Ing für Maschinenbau
    Ort:
    Norddeutschland
    Was mir sofort auffällt:

    Ihr plant nicht, das Dach der Garage als Terrasse zu nutzen, ggf. Raum für einen Wintergarten?
    Warum ist die Garage nicht rechteckig? Ich mag krumme Formen, aber diese verstehe ich nicht.
    Welche Dachform? Flachdach?
    Ist ein Raumteiler in der Wohnküche geplant?
     
  3. #3 TobiasH, 24.07.2023
    TobiasH

    TobiasH

    Dabei seit:
    24.07.2023
    Beiträge:
    2
    Zustimmungen:
    0
    Hallo,

    berechtigte Frage - die Garage ist genau auf der Grenze zum Nachbarn und diese verläuft leider nicht gerade.
    Daher diese Form.

    Terrasse auf der Garage wäre interessant, aber das ist auch direkt zum Nachbarn und wir haben eig. einen schönen Garten hinten. Daher haben wir darauf verzichtet. Fehler?

    Es wird ein Flachdach - korrekt.
     
  4. #4 Fasanenhof, 24.07.2023
    Fasanenhof

    Fasanenhof

    Dabei seit:
    20.02.2023
    Beiträge:
    1.455
    Zustimmungen:
    814
    Beruf:
    Ing für Maschinenbau
    Ort:
    Norddeutschland
    Dann ist das die richtige Entscheidung.
     
  5. 11ant

    11ant

    Dabei seit:
    28.02.2017
    Beiträge:
    2.501
    Zustimmungen:
    1.578
    Beruf:
    Bauherrenberater
    Ort:
    RLP Nord
    Benutzertitelzusatz:
    bringt Sie gut beraten ins Eigenheim
    Mir fallen wie immer zuerst die Phantasiemaße auf, die bekanntlich zu Pfuschertaschen führen, und daß einige Innenwände (farblich auch anders dargestellt) ein Kaliber 145 haben. Wird mit einem speziellen Material gebaut (Blähton ?)?
     
Thema:

Hausentwurf

Die Seite wird geladen...

Hausentwurf - Ähnliche Themen

  1. Feedback zum Grundriss / Hausentwurf

    Feedback zum Grundriss / Hausentwurf: Hallo Forums-Teilnehmer, wir (Paar, Kind in Planung) entwerfen derzeit mit einem Architekten ein Einfamilienhaus auf einem 590qm großen...