Hier die Grundrisse zur Kritik.

Diskutiere Hier die Grundrisse zur Kritik. im Architektur Allgemein Forum im Bereich Architektur; Hallo Experten, Auf Wunsch fange ich mit dem Fragebogen an. Ort: Schneeberg/ Erz. Webergasse 21 Fragenkatalog zu Eurer Grundrissplanung 1. Wir...

  1. #1 hanghaus2000, 27.02.2025
    hanghaus2000

    hanghaus2000

    Dabei seit:
    24.11.2021
    Beiträge:
    1.558
    Zustimmungen:
    656
    Beruf:
    Bauleiter, Kalkulator, Controller, Salzdesign
    Ort:
    Bayern
    Hallo Experten,

    Auf Wunsch fange ich mit dem Fragebogen an.
    Ort: Schneeberg/ Erz. Webergasse 21

    Fragenkatalog zu Eurer Grundrissplanung
    1. Wir sind:

    2 Erwachsen 70/60
    2 Erwachsene Kinder sind hoffentlich öfter noch zu Hause.
    ELW 70m2 zur Vermietung?



    2. Unser Raumprogramm:
    offener All-Raum (Küche, Essen, Wohnen zusammen)
    Anzahl Essplätze max 6
    Anzahl Schlafzimmer 3
    Anzahl Bäder 3
    Büro: erstmal in einem der KiZi
    Büro/Gast kombiniert
    Kinder hoffentlich sehr oft.
    Technikraum und HWR gemeinsam?
    Abstellraum
    Garage nur falls Platz dafuer ist.
    Im UG eventuell Technik, HWR HAR
    ansonsten Einliegerwohnung
    3. Welchen Hausstil bevorzugen wir?
    und warum?
    Modern Barn? Satteldach (regide Gestaltungssatzung der Stadt).

    moderne Bauweise/
    auch große Fensterflächen


    4. Welche Zusatzwünsche/Features
    hätten wir gern und warum?

    Balkon da man im Alter eventuell nur noch im EG leben mag.
    Barrierearm/barrierefrei noch nicht aber eventuell irgend wann?
    Garage/Carport falls technisch oder finanziell moeglich.

    Terrassenüberdachung automatisch durch Balkon

    TV Wand im WZ.
    Grill auf dem Balkon

    5. Bebauungsplan/Einschränkungen
    Link zum Bebauungsplan
    https://daten2.verwaltungsportal.de...2ce7a3ff30e74d170699/gehaeng_satzungsplan.pdf
    Link zur Gestaltungssatzung
    https://daten2.verwaltungsportal.de...282ce7a3ff30e74d170699/gestaltungssatzung.pdf
    Grösse des Grundstücks
    600m2
    Hang Ja sie Plan mit Hoehenlinien (alle 50 cm)
    §34 der BBP schraenkt wenig ein daher wohl eher 34er
    GRZ keine
    GFZ keine
    Baufenster, Baulinie und -grenze siehe Plan vom GS. Gruenland ist gesondert ausgewiesen darf nicht bebaut werden.
    Geschossigkeit
    UG, EG, Dach
    Dachform und -neigung
    Satteldach 45Grad
    Stilrichtung

    Ausrichtung/Firstrichtung First Nord Sued.
    Maximale Höhen/Begrenzungen/Traufhöhe/Firsthöhe

    Nachbarn haben 2 Vollgeschosse + Keller? Im Nord Osten sogar 3

    Randbebauung wo erlaubt?
    Im SO befindet sich die Baugrenze auf der GS Grenze da wird im Zweifel eine Baulast benoetigt, da gibt es schon ein OK vom Nachbarn.

    Anzahl Stellplätze: laut Satzung so wenig wie moeglich.

    6. weitere Wünsche/Besonderheiten/Tagesablauf
    gern auch Begründungen, warum dieses oder das nicht sein soll

    7. angedachte Haustechnik

    zB.
    Heizungstyp WWWP
    Lüftung vermutlich
    KFW-Standard ??
    KNX ??

    8. Hausentwurf
    DIY

    Was gefällt Euch besonders?

    MMn passt sich das Haus recht gut in das Hanggrundstueck ein.


    Was gefällt nicht?

    Grundrisse noch nicht optimal? Lage im GS?

    9. Preisschätzung lt. Architekt/Planer

    Persönliches Preislimit fürs Haus, inkl. Ausstattung 600k
    Preislimit inkl. Baunebenkosten und Außenanlage (Pflasterarbeiten, Galabauer, Bepflanzung, Garage)
    Persönliches Preislimit für die Küche 15k

    Auf welche Details/Ausbauten könntet Ihr verzichten?

    ELW und Dach kann spaeter in EL hergestellt werden.

    Was ist die wichtigste Frage zum Grundriss in 130 Zeichen zusammengefasst?

    Die Treppensituation ist noch recht wage.

    Es gibt noch einen Beitrag im Orangenen.
    Grundrissauswahl bei schwierigem Baufeld und Hanglage.

    Es gibt noch einen Beitrag hier:
    Ermittlung Baugrenzen

    Planauschnitt vom BBP GS 347 und 348


    upload_2025-2-27_13-26-52.png

    Zufahrt nur ueber GS 347 Der Weg im Sueden ist privat kein Wegerecht geplant.

    GS
    upload_2025-2-27_13-31-19.png

    Die noerdliche Baugrenze ( blau) ist 10 m lang. Die Abgrenzung zur Gruenflaeche ist (gruen)


    Ausschnitt mit Hoehenlinien.

    upload_2025-2-27_13-36-36.png



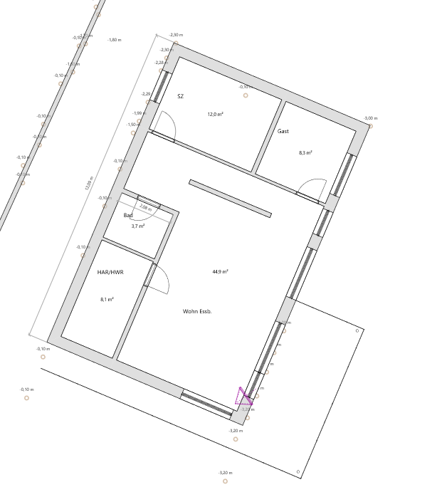
    Letzter Stand laut oben gannnten Beitrag ist

    EG:

    upload_2025-2-27_13-40-20.png

    UG

    upload_2025-2-27_13-41-10.png

    OG/DG
    upload_2025-2-27_13-43-18.png

    Fenster DG
    upload_2025-2-27_13-42-40.png

    Ansichten:

    upload_2025-2-27_13-45-43.png

    upload_2025-2-27_13-47-1.png

    Ich bitte um Kritik und Verbesserungsvorschlaege.

    Gruesse vom Hanghaus.
     

    Anhänge:

  2. #2 hanghaus2000, 27.02.2025
    hanghaus2000

    hanghaus2000

    Dabei seit:
    24.11.2021
    Beiträge:
    1.558
    Zustimmungen:
    656
    Beruf:
    Bauleiter, Kalkulator, Controller, Salzdesign
    Ort:
    Bayern
    Irgend wie hat das Program die letzten 2 Ansichten nicht hin bekommen.

    upload_2025-2-27_17-5-28.png


    upload_2025-2-27_17-3-55.png
     
Thema:

Hier die Grundrisse zur Kritik.

Die Seite wird geladen...

Hier die Grundrisse zur Kritik. - Ähnliche Themen

  1. EFH Grundriss konstruktiv Kritik

    EFH Grundriss konstruktiv Kritik: hallo alle zusammen, Wir haben ein Grundstück in Aussicht mit leichter Südhanglage in einem ruhigen Wohngebiet (Sackgasse). Richtung Norden ist...
  2. Kritik zu Grundriss (Version 1)

    Kritik zu Grundriss (Version 1): Hallo liebe Experten und Mitglieder. Nach langem hin und her ob Keller oder nicht, hat dann die Frau gewonnen und es wird ein Keller gebaut....
  3. EFH Grundriss, Kritik erwünscht

    EFH Grundriss, Kritik erwünscht: Hallo zusammen, bevor ich mir weitere Gedanken über mein Einfamilienhaus mache wollte ich mal meinen Grundriss zur Diskusion einstellen....
  4. Grundrisse mein EFH / Kritik und Anregungen erwünscht :-)

    Grundrisse mein EFH / Kritik und Anregungen erwünscht :-): Hallo Zusammen, was haltet Ihr von diesen Grundrissen ? Zum Haus selber: Es sollte ein EFH + Einliegerwohnung werden. Das Grundstück...
  5. Grundriss Efh Bauhausstil, konstruktive Kritik und Anregungen erwünscht

    Grundriss Efh Bauhausstil, konstruktive Kritik und Anregungen erwünscht: Hallo zusammen, wir haben uns zum Bau eines EFH im Bauhausstil entschieden. Wir sind ein vier Personen Haushalt. Offener Grundriss im EG....