Hilfe - wie kann ich den Unterzug im EG vermeiden??

Diskutiere Hilfe - wie kann ich den Unterzug im EG vermeiden?? im Architektur Allgemein Forum im Bereich Architektur; Hallo, mein Mann und ich stecken gerade mitten in den Planungen. Der Bauantrag liegt beim LRA und wir führen fortgeschrittene Gespräche mit den...

  1. #1 Selina Renghi, 02.07.2024
    Selina Renghi

    Selina Renghi

    Dabei seit:
    02.07.2024
    Beiträge:
    5
    Zustimmungen:
    0
    Hallo,
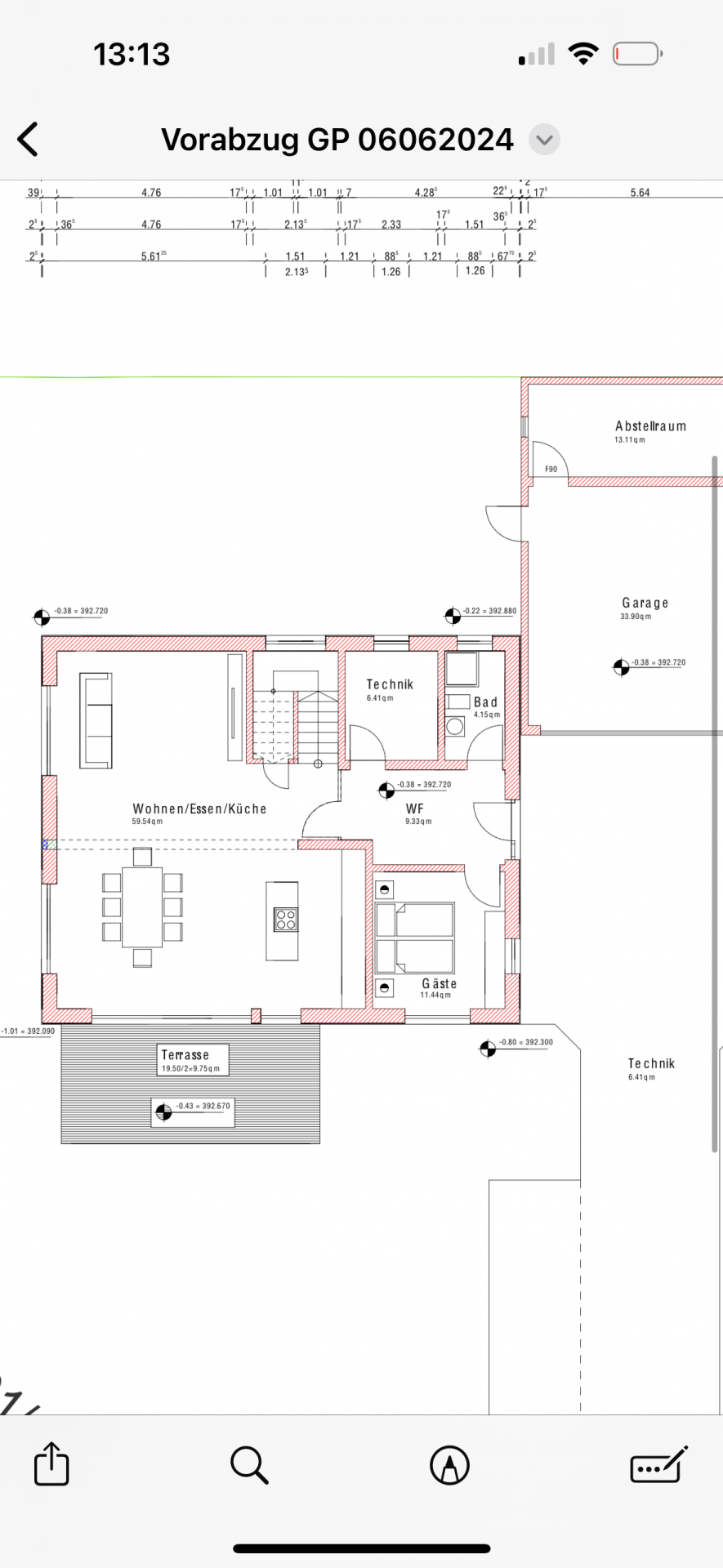
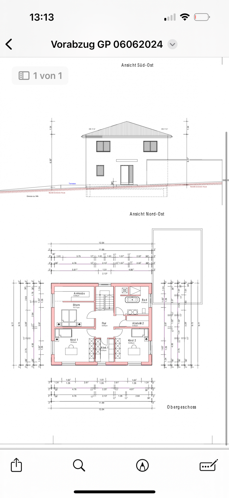
    mein Mann und ich stecken gerade mitten in den Planungen. Der Bauantrag liegt beim LRA und wir führen fortgeschrittene Gespräche mit den Baufirmen. Anbei die Grundrisse. Die Baufirmen meinen wir kommen um den Unterzug im EG nicht drum herum. Was ist eure Meinung?

    Wie könnten wir das OG verändern, das das Ganze klappen könnte? Eine andere Option sehe ich aktuell nicht.

    Ich bitte um eure Hilfe. Wir sind ein junges Paar und mit der Situation gerade komplett überfordert!
     

    Anhänge:

  2. BaUT

    BaUT

    Dabei seit:
    30.10.2019
    Beiträge:
    9.144
    Zustimmungen:
    5.718
    Beruf:
    Baufacharbeiter und Dipl.-Ing. Hochbau
    Ort:
    Berlin
    Benutzertitelzusatz:
    Erklärbär
    Schrecklich, wenn jemand seine "screamshots" vom Handy nicht mal zuschneidet bevor sie online gestellt werden.
     
    Baggerbedrieb gefällt das.
  3. #3 Selina Renghi, 02.07.2024
    Selina Renghi

    Selina Renghi

    Dabei seit:
    02.07.2024
    Beiträge:
    5
    Zustimmungen:
    0
    Habe mir dabei nichts gedacht. Denke auch nicht all zu tragisch…
     
  4. #4 Jo Bauherr, 02.07.2024
    Zuletzt bearbeitet: 02.07.2024
    Jo Bauherr

    Jo Bauherr

    Dabei seit:
    19.06.2018
    Beiträge:
    1.047
    Zustimmungen:
    511
    Beruf:
    (Ex)-Vermieter
    Ort:
    Randberlin
    Eigentlich kein Problem:
    Bei Stahlbetondecke (Monolithisch oder Halbfertigteil): als deckengleicher Unterzug.
    Bei Stahlbetonfertigteildecke oder Holzbalkendecke: als Stahlträger in Deckenebene.

    Und bitte fragt zuerst Euren Statiker und danach erst die Baufirmen!
     
    SIL gefällt das.
  5. #5 Selina Renghi, 02.07.2024
    Selina Renghi

    Selina Renghi

    Dabei seit:
    02.07.2024
    Beiträge:
    5
    Zustimmungen:
    0
     
  6. #6 Selina Renghi, 02.07.2024
    Selina Renghi

    Selina Renghi

    Dabei seit:
    02.07.2024
    Beiträge:
    5
    Zustimmungen:
    0
    Danke! Das scheint jedoch nicht zu funktionieren. Nur wenn man im OG eben Wände verschieben würde…
     
  7. artibi

    artibi

    Dabei seit:
    08.02.2014
    Beiträge:
    1.400
    Zustimmungen:
    517
    Beruf:
    ITler
    Ort:
    Ludwigsburg
    Aha, für wen "scheint" es denn nicht zu funktionieren? Für den Statiker, den du gegen Geld um Rat frägst? Oder für den Zeichenknecht beim GU?
     
    Baggerbedrieb gefällt das.
  8. SIL

    SIL

    Dabei seit:
    06.05.2018
    Beiträge:
    10.865
    Zustimmungen:
    4.212
    Beruf:
    M. Sc. Dipl. Ingenieur
    Ort:
    6210
    Es gibt mehrere Ansätze, Wechsel der Decke auf Spannbeton ( Dennert oder MX , VMM , MX-E etc ) oder stärkere Dicke einer eventuellen bereits gewählten Decke Fili - oder monolitisch mit höheren Bewehrungsanteil oder Überzug , Jo sein Vorschlag mit IPE oder anderen Träger funktioniert auch oder alternativ eine Stütze ggf mit Voute und so weiter ....
     
  9. 11ant

    11ant

    Dabei seit:
    28.02.2017
    Beiträge:
    2.549
    Zustimmungen:
    1.608
    Beruf:
    Bauherrenberater
    Ort:
    RLP Nord
    Benutzertitelzusatz:
    bringt Sie gut beraten ins Eigenheim
    Ich vermute, dieser Beitrag
    hätte eigentlich hier den Eröffnungsbeitrag ergänzen sollen (?), verstehe aber nicht, WAS Dir dabei mit der Dusche und dem Fenster nicht bewußt gewesen sei.

    Ihr steckt nicht mitten in der Planung, sondern ganz am Anfang (und seid bereits gehörig falsch abgebogen). Dieser Entwurf ist noch lange nicht antragsreif, er ist erheblicher Murks: abgesehen von nett gesagt viel Verbesserungspotential im allgemeinen ist schon die Einführungssituation der Hausanschlüsse maximal ungeschickt meilenweit einmal rund ums Haus geführt.
    1. sucht Euch einen fähigen Planer (oder einen funktionierenden Standardgrundriß)
    2. leitet das EG vom OG ab und nicht umgekehrt.

    WO ist überhaupt das Problem mit dem Unterzug - wen stört der und bei was ?
     
    Jo Bauherr, Fred Astair und Dimeto gefällt das.
  10. #10 Kriminelle, 03.07.2024
    Kriminelle

    Kriminelle

    Dabei seit:
    16.05.2013
    Beiträge:
    3.801
    Zustimmungen:
    2.133
    Beruf:
    .
    Ort:
    Niedersachsen
    Verstehe ich auch nicht.
    So eine Stadtvilla ist ja jetzt nicht so ein Highlight und architektonisch wertvoll, dass man auf Unterzüge verzichten muss.
     
  11. #11 Kriminelle, 03.07.2024
    Kriminelle

    Kriminelle

    Dabei seit:
    16.05.2013
    Beiträge:
    3.801
    Zustimmungen:
    2.133
    Beruf:
    .
    Ort:
    Niedersachsen
    Beim Grundriss funktioniert einiges nicht. Der TK-Raum ist zu klein, der Abstand TV/Sofa viel zu groß.
    Ankleide mit RBM 176 funktioniert so gar nicht.
    Der Allraum ist zu groß. Das mag ja nett sein, geht aber über die Funktion, die hier leidet. Ich sehe auch keinen Mehrwert ggü einem 50qm Allraum, was schon sehr großzügig wäre.
     
  12. #12 Baggerbedrieb, 03.07.2024
    Baggerbedrieb

    Baggerbedrieb

    Dabei seit:
    13.09.2012
    Beiträge:
    1.600
    Zustimmungen:
    619
    Beruf:
    Zimmermann auf Abwegen
    Ort:
    Augsburg
    Benutzertitelzusatz:
    Habe herausgefunden wie man den Wohnort ändert.
    Kommt immer auf die Glotze an. ab 80" wären 3m schon ganz nett.
     
  13. #13 Kriminelle, 03.07.2024
    Kriminelle

    Kriminelle

    Dabei seit:
    16.05.2013
    Beiträge:
    3.801
    Zustimmungen:
    2.133
    Beruf:
    .
    Ort:
    Niedersachsen
    Es sind (nach meinen Erinnerungen) knapp 6 Meter. 5 Meter sind schon mit falschem Sofa grenzwertig.
    Und noch mal nachgeschaut: der Allraum ist ein Wasserkopf - ganz schlimme Planung! Falsche Treppenlage!
     
  14. #14 petra345, 03.07.2024
    Zuletzt bearbeitet: 03.07.2024
    petra345

    petra345

    Dabei seit:
    17.02.2017
    Beiträge:
    5.207
    Zustimmungen:
    1.013
    Beruf:
    Ing. plus B. Eng.
    Ort:
    Rhein-Main-Gebiet
    Benutzertitelzusatz:
    Ing.(grad.) plus B. Eng.
    Ich kann auf den Zeichnungen kein einziges Maß ablesen. Ich weiß also nicht, wie lang der Unterzug unter der Wand werden soll. Ein Deckengleicher Unterzug ist nur mit einer gewissen Länge in Anhängigkeit von der Deckenhöhe möglich. Da muß man u. U. die ganze Decke sehr viel dicker machen. Das wäre Unfug.

    Mit vorgespannten Decken kann man sehr viel größere Spannweiten als mit Filigrandecken erreichen.

    Wenn man den Unterzug breit macht, kann man in der Höhe sparen. Ggf. müssen vierschnittige Bügel eingebaut werden.

    Wenn man den Unterzug als Plattenbalken rechnet und die Bewehrung entsprechend legt, kann man den Unterzug weiter verkleinern.
    Also da gibt es viele Möglichkeiten, einen Unterzug nicht so stark hervortreten zu lassen.
    Wenn die Spannweite 5 m nicht überschreitet, sollte es möglich sein, den Unterzug nur etwa 5 cm hervortreten zu lassen. Das solllte erträglich sein.

    Wenn die auf der Decke und dem Unterzug stehende Wand keine Tür enthält und auch keine enthalten wird, kann man die Wand in Form eines Überzuges selbsttragend auf der Decke errichten und muß die Decke in keiner Weise verstärken. Zumindest nicht für das Gewicht der Wand.

    Man kann diesen Überzug auch mit der Decke verbinden. Aber dann bekommt man Probleme wenn diese Wand einmal entfernt werden sollte.


    Eine Schnapsidee vom Architekten war es sicher, eine völlig flache Untersicht der Decke vom Statiker und meinem Prof. zu fordern, der dann in einem Bürogebäude einen Überzug in der darüberliegenden Wand mit einer Tür planen mußte
     
Thema:

Hilfe - wie kann ich den Unterzug im EG vermeiden??

Die Seite wird geladen...

Hilfe - wie kann ich den Unterzug im EG vermeiden?? - Ähnliche Themen

  1. Gedankenkarussell: Brauche Hilfe bei Entscheidungsfindung

    Gedankenkarussell: Brauche Hilfe bei Entscheidungsfindung: Hallo liebe Forengemeinde, ich lese hier schon eine ganze Weile mit und hoffe auf Eure Expertise, um meine (unsere) sich im Kreis drehenden...
  2. Hilfe - Positionierung Parkplatz

    Hilfe - Positionierung Parkplatz: Hallo, es stehen die Außenanlagen an, ich finde selber keine Lösung und hoffe auf Unterstützung (mir sind die guten Ideen ausgegangen). Angedacht...
  3. Hilfe bei Aufbau von Balkonbelag bei geringer Aufbauhöhe

    Hilfe bei Aufbau von Balkonbelag bei geringer Aufbauhöhe: Hallo, wir haben unser Haus umfassend saniert. Nun fehlt noch der Aufbau für die beiden Balkone. Leider steht uns nicht viel Höhe für einen...
  4. Hilfe: Gewebe drückt aus saniertem Riss

    Hilfe: Gewebe drückt aus saniertem Riss: Hallo liebe Bauexperten, ich wende mich heute an Euch mit einem mehr oder weniger selbstgemachten Baumurks. An unserem EFH gab es verschiedene...
  5. Hilfe bei Vorplanung gesucht: Passt mein Haus (8,84m x 13,64m) auf dieses Grundstück?

    Hilfe bei Vorplanung gesucht: Passt mein Haus (8,84m x 13,64m) auf dieses Grundstück?: Hallo zusammen, ich bin gerade in der ersten Planungsphase für mein Bauprojekt und bräuchte mal eure Einschätzung bzw. die Hilfe von jemandem mit...