Ich hätte da noch einen Grundriss

Diskutiere Ich hätte da noch einen Grundriss im Architektur Allgemein Forum im Bereich Architektur; mein lieber herr gesangsverein.! nur mal als beispiel, das DG: ein fünf personen haushalt, begegnet sich morgens in diesem flur. selbst in tokio...

  1. Baumal

    Baumal

    Dabei seit:
    02.08.2007
    Beiträge:
    16.077
    Zustimmungen:
    8
    Beruf:
    Architekt
    Ort:
    Ravensburg
    mein lieber herr gesangsverein.!

    nur mal als beispiel, das DG:

    ein fünf personen haushalt, begegnet
    sich morgens in diesem flur. selbst in tokio
    allmorgendlich u-bahn fahren zu müssen, dürfte
    noch angenehmer sein.

    schade ums papier, zeit, truckerpatronen ....
     
  2. #22 Ralf Dühlmeyer, 24.01.2012
    Ralf Dühlmeyer

    Ralf Dühlmeyer

    Dabei seit:
    14.06.2005
    Beiträge:
    34.296
    Zustimmungen:
    24
    Beruf:
    Architekt
    Ort:
    Hannover
    Aber dafür gibts eine Tür vor der Treppe, damit keiner den anderen aus Versehen die Treppe runterschubst. :mauer

    Schick finde ich auch die Übereck-Einblicke von Eltern und Kind über die Balkontüren. Alle wissen alles von allen oder wie war da das Motto?
    Diesen duseligen Balkon wird NIE einer nutzen - ausser dem Dachdecker!

    Wär der Entwurf ein Gedicht, würde das Urteil lauten:
    Reim Dich oder ich fress Dich.
     
  3. chf01

    chf01

    Dabei seit:
    13.12.2010
    Beiträge:
    451
    Zustimmungen:
    0
    Beruf:
    Informatiker
    Ort:
    Ingolstadt
    Die Kinder vielleicht schon. Trägt zur vorzeitigen Aufklärung bei :D
     
  4. #24 Thomas B, 24.01.2012
    Thomas B

    Thomas B

    Dabei seit:
    17.08.2005
    Beiträge:
    11.181
    Zustimmungen:
    4
    Beruf:
    Dipl.Ing.
    @Baumal: ...ich warte....!

     
  5. Baumal

    Baumal

    Dabei seit:
    02.08.2007
    Beiträge:
    16.077
    Zustimmungen:
    8
    Beruf:
    Architekt
    Ort:
    Ravensburg
    [​IMG]

    (ich musste ihn leeren, er war voll...:D)
     
  6. Reuter

    Reuter

    Dabei seit:
    31.10.2011
    Beiträge:
    69
    Zustimmungen:
    0
    Beruf:
    Architekt
    Ort:
    NDS
    Mckert nicht so. Es hat eine Ankleide....bisschen klein der Flur im OG, dafür EG um so großzügiger, die Garage partizipiert von der Hanglage. Garage mit Ausguck,Treppe und Keller. Sehr schön. Spielzimmer interessant gelegen. Abschliessbar. Großzügiger Eingangsbereich und zwei Wind- und Abgasfängen, Mindestens 3 Zugangstüren. 3 Treppen.
    Was will man mehr?

    *****
    Hab mal ein Boarding-House geplant. Da gibts einen Aufzug für das Auto direkt in die Wohnung. Keine leichte Aufgabe. Aber interessant. Da kams auch nicht soooo auf den Cent an. Car Loft heisst das nun. Gibts sogar in Deutschland, in Berlin glaub ich.
     
  7. Kyle39

    Kyle39

    Dabei seit:
    13.11.2011
    Beiträge:
    5
    Zustimmungen:
    0
    Beruf:
    Ingenieur (LRT)
    Ort:
    Steinkirchen
    Danke für die schnellen Antworten, vor allem an Baumal (Flur wird auf jeden Fall größer) und Reuters aufbauende Worte (auch wenn ich einen Hauch Ironie entdecken konnte?!?). Unseren 'Abgasfang' würde ich übrigens besser 'Räucherkammer' titulieren - das passt besser zur Speis ;).

    Ich habe niemanden 'Spezi' genannt; Meine letzte Idee war immerhin 2 Wochen her und dazwischen lagen 4 Entwürfe, in denen wir mit unserem Planer die Anregungen von Euch durchgespielt haben - was scheinbar wenig genutzt hat.

    Gut, vielleicht ist das Häuschen etwas wuchtig geworden - die 3D Ansicht erleichtert es aber meiner Meinung nach Leuten, die nicht täglich mit NSEW-Ansichten zu tun haben, die Situation am Hang zu erfassen.

    Ja, kann ich natürlich. Architekt ist er nicht, sonst hätte ich das natürlich gleich geschrieben. Bauzeichner ist er und hat zugegebenermaßen bis auf einen ersten eigenen Entwurf hauptsächlich unsere Vorstellungen umgesetzt, uns aber auch mit vielen Tipps versorgt.

    Der eigentliche Gedanke hinter der Tür ist Schallschutz. Auch wenn die Treppe nicht vom Wohnzimmer nach oben führt, so haben uns oft schon die letzten 'kurzen' Abschiedsgespräche in der Diele in anderen Häusern gestört.

    Aufklärung tut Not. Hab letztens gelesen, dass Jugendliche in China selbst bis zur Uni-Zeit nicht aufgeklärt werden, was zu unzähligen ungewollten Schwangerschaften führt! Andererseits gibt es ja noch Rolläden...

    Im Ernst: :respekt, dass Ihr trotz allem nicht Gefallens auf meinen Entwurf kommentiert habt. Wir werden weiterwerkeln und irgendwann auch bauen - wenn jemand also noch konstruktive Kommentare zum derzeitigen Konzept hat, nur her damit!
     
  8. mls

    mls Bauexpertenforum

    Dabei seit:
    04.10.2002
    Beiträge:
    13.790
    Zustimmungen:
    7
    Beruf:
    twp, bp
    Ort:
    obb, d, oö
    konzept? für viel geld ein grosses haus mit wenig platz? wer´s mag ..

    momentan gäb´s hier noch ein paar relativ frische beweise, dass architekten g´scheite
    häuser planen können .. geh mal auf die suche.
     
  9. #29 Gast036816, 25.01.2012
    Gast036816

    Gast036816 Gast

    genau, in kreuzberg - paul-lincke-ufer - steht dann der maserasi nur durch glas getrennt neben dem schlafraum.
     
  10. Baumal

    Baumal

    Dabei seit:
    02.08.2007
    Beiträge:
    16.077
    Zustimmungen:
    8
    Beruf:
    Architekt
    Ort:
    Ravensburg
    nix gegen bauzeichner, aber ein bauzeichner zeichnet
    von berufs wegen, was man ihm sagt.
    bauzeichner entwerfen keine häuser.
     
  11. #31 Thomas B, 25.01.2012
    Thomas B

    Thomas B

    Dabei seit:
    17.08.2005
    Beiträge:
    11.181
    Zustimmungen:
    4
    Beruf:
    Dipl.Ing.
    Eben...nichts gegen Bauzeichner! Wahrlich!

    Aber: würdest Du, bei einer anstehenden OP sagen "Ach...das lassen wir doch mal die nette Schwester machen. Hat schon bei zig Operationen geholfen (Schwester...Tupfer!)..." oder würdest Du Dich in einer ekeligen Gerichtssache auch von der netten und engagierten RA Gehilfin (Ablage? Perfekt! Schriftsätze? 1a-Schriftbild!) vertreten lassen, da Dir das RA-Honorar zu üppig erscheint.

    Wenn Du diese Fragen mit JA beantwortest, bist Du beim Bauzeichner wahrscheinlich an der richtigen Adresse....

    Thomas
     
  12. Hfrik

    Hfrik

    Dabei seit:
    10.09.2009
    Beiträge:
    1.131
    Zustimmungen:
    1
    Beruf:
    dipl. Ing
    Ort:
    70771
    Also ich würds auch mal so sagen - das "schick" fehlt noch - auch wenns vermutlich nicht nicht der Stil werde soll, der im "Architektenwettbewerb" zuletzt hier im Forum bei Ameisenwalzer prägend war.
    Ebenso ist vieles noch nicht Praktisch.
    - die Treppe in der Garage ist irgendwie raumfressend und unmotiviert in der Mitte.
    - der Garagenzugang - so wie ich es verstehe sollen im Zwischenraum die Einkäufe verstaut werden - wäre bei mir nicht so - ich kenne mich, ich habe die Vorräte lieber direkt in der Küche erreichbar, da bliebe wenig für den Durchgangsraum übrig, der eben in den FLur und nicht in die Küche mündet (d.h. zum Konserve holen beim Kochen immer durch zwei Türen? von der Garage aus gedacht kanns funktionieren, von der Küche aus gedacht funktionierts nicht).
    5 Leute auf 1 Bad kann mit dem zweitbad im EG funktionieren, geht aber noch besser.
    Die Ecken in Schlafzimmer und Küche gefallen mir noch nicht.
    Die Flurbreite oben wurde schon diskutiert, obwohl da wenige cm schon helfen können.
    die Fenster gefallen mir an etlichen Stellen nicht.
    Der Balkon oben: gibt es dort etwas besonderes zu sehen, was die Leute bewegt dorthin zu gehen? Ansonsten kann ich aus dem Bekanntenkreis bestätigen: die Nutzung wird selten sein. Es sei den jemand in der Familie ist sehr Sonnenhungrig und gleichzeitig sehr ruhebedürftig.
    (Punkte, an denen ich bei mir auch immernoch grüble)
     
  13. Kyle39

    Kyle39

    Dabei seit:
    13.11.2011
    Beiträge:
    5
    Zustimmungen:
    0
    Beruf:
    Ingenieur (LRT)
    Ort:
    Steinkirchen
    Ohne Überschrift, die falsch verstanden werden könnte

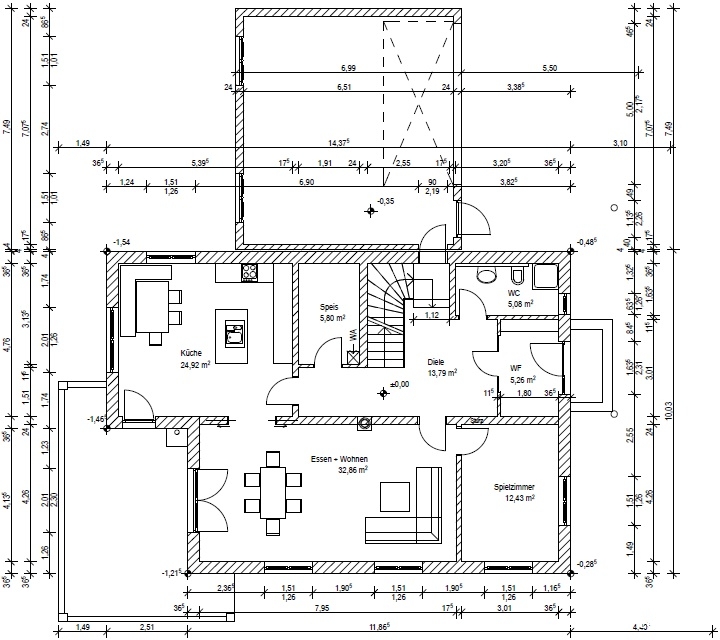
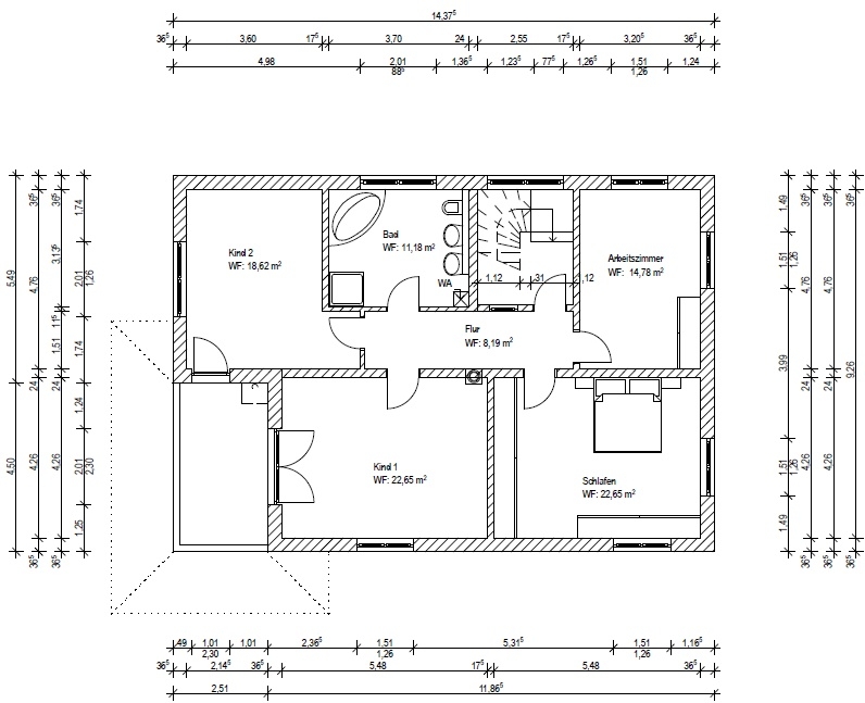
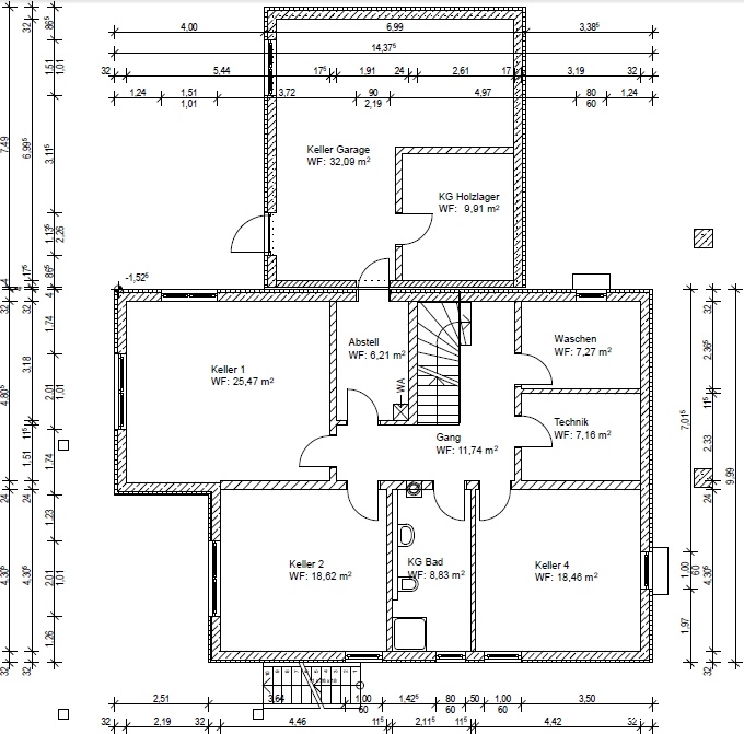
    Wir haben Eure Anregungen gelesen, diskutiert und das Ergebnis von unserer Bauzeichnerin auf (digitales) Papier bringen lassen (lässt sich auch leichter in einen digitalen Mülleimer werfen ;)).

    Die wichtigsten Änderungen in Kürze:
    - Die Treppe wurde so geändert, dass ein direkter Eingang von der Garage zur Diele ermöglicht wird.
    - Die Treppe in der Garage wurde gestrichen, da nun der Weg durchs Haus viel kürzer geworden ist.
    - Wir haben nun einige übereinanderstehende Mauern, die Statik und Entwässerungsmöglichkeiten verbessern sollten.
    - Das Schlafzimmer ist von West nach Ost gewandert (da die Kinder doch mehr Zeit in den Zimmern verbringen sollten als wir und daher den schöneren Blick/mehr Sonne bekommen sollten).
    - Ein Windfang trennt Eingangstür und Diele.
    - Die Flure sind wesentlich breiter.

    Hat sich Eurer Meinung nach unser Entwurf verbessert? Hättet Ihr uns noch die ein oder andere Anmerkung zu unserem Entwurf?

    Noch eine Frage an die Experten wegen des Kellers: Wir würden gerne den Waschraum in den derzeitigen Abstellraum verlegen. Leider hat dieser aber kein Fenster. Reicht eine Wohnungslüftungsanlage, um in einem solchen Raum Schimmel vorzubeugen?

    EG:
    [​IMG]

    OG:
    [​IMG]

    KG:
    [​IMG]
     
  14. #34 Gast036816, 07.02.2012
    Gast036816

    Gast036816 Gast

    die 45°-ecken sind schon mal weg!

    das spielzimmer macht mal vom flur aus zugängig und nicht über den wohnraum.

    der schorni hängt noch undefiniert im wandgefüge rum.

    die treppe ist nach wie vor krampf, die passt nicht zur großzügigkeit des entwurfs. die sollte besser inszeniert werden und nicht in eine ecke abgedrängt werden.

    was soll das für eine kiste in der balkon/terrassenecke werden?

    meinen geschmack vom entwerfen hast du nicht getroffen. ein ansatz zur besserung ist erkennbar.
     
  15. Baumal

    Baumal

    Dabei seit:
    02.08.2007
    Beiträge:
    16.077
    Zustimmungen:
    8
    Beruf:
    Architekt
    Ort:
    Ravensburg
    wie oft soll ich es noch schreiben!

    bauzeichner entwerfen keine häuser!!!!!
    sie sind dafür nicht ausgebildet worden.
     
  16. Hfrik

    Hfrik

    Dabei seit:
    10.09.2009
    Beiträge:
    1.131
    Zustimmungen:
    1
    Beruf:
    dipl. Ing
    Ort:
    70771
    Der Entwurf ist schon deutlich praktischer geworden.
    Mit den SPielzimmer schliesse ich mich bei Rolf an - ein gefangenes zimemr macht man nicht ohne not. Im zweifel 2 Türen vorsehen.
    "Schick" fehlt noch, aber das nicht zu können ist kein Makel - ich kanns auch nicht :)
    Ich könnte mir vorstellen, die Kiste am balkon ist der Kamin vom Grill auf der Terasse??
    Wo steht eigentlich der Ofen, der den unmotiviert mitten in der Wohnzimmerwand sitzenden Kamin braucht? Im UG im Bad doch wohl nicht. Wäre er im Technikbereich, müsste der Kamin ganz woanders hin. und bei der Möblierung im Wohnzimmer gibts auch keinen Kaminofen. Also, wo versteckt sich das Teil?
     
  17. Kyle39

    Kyle39

    Dabei seit:
    13.11.2011
    Beiträge:
    5
    Zustimmungen:
    0
    Beruf:
    Ingenieur (LRT)
    Ort:
    Steinkirchen
    Danke für die schnellen Antworten!

    Ja, die Vorbereitungen für eine Tür zwischen Spielzimmer (später vielleicht Arbeitszimmer oder ähnliches) und Diele werden wir auf jeden Fall vorsehen, bzw. die Tür auch gleich einbauen lassen - muss dann halt immer eine Tür zugesperrt bleiben, da sie sich sonst gegenseitig zerstören würden (sind beide im selben Eck).

    Jein. Der Schornstein im Kellerbad ist wirklich Krampf und gehört da auch nicht hin! Der einzige Sinn diesen Schornsteins ist es einen Kamin im Wohnzimmer anzuschliessen. Zur Zeit stellen wir uns vor, dass dieser von hinten beladbar sein soll, d.h. aus der Diele heraus, und in das Wohn-/Esszimmer ein schönes Fensterchen hat.

    Hfrik hat's erkannt; es soll einen Terassengrill darstellen mit zugehörigem Kamin.

    Danke, der letzte Satz aus Deinem Munde tut gut! Ich bin wirklich gespannt, was aus Eurem Projekt für Ameisenwalzer wird. In diesem Thread sind wirklich viele gute Ideen und Entwürfe enthalten, die mir grösstenteils gut gefallen - nur halt meistens nicht von aussen. Geschmäcker sind halt verschieden... Ausserdem wären die meisten dieser Entwürfe nicht kompatibel zu unserer 'Nachbarsbebauung', an der wir uns aufgrund eines fehlenden Bebauungsplans zu orientieren haben (Bayern).

    Ich habe es schon beim ersten Mal gelesen und verstanden - leider können und werden wir das jetzt auch nicht mehr ändern. Aufgrund eines gewissen Zeitdrucks müssen wir nun bei unserer ersten Entscheidung bleiben (ich weiss, Zeitdruck ist bei einem Bauvorhaben niemals gut, aber was soll man machen?!?).

    Wenn wir's könnten wären wir wohl Architekten oder generell Künstler... ;)


    Habt Ihr noch eine Antwort auf die Frage, ob ein Wäscheraum ohne Fenster aber mit Lüftungsanlage funktionieren kann? Dort sollten nur Waschmaschine und Trockner stehen - die Wäsche wird woanders aufgehängt.
     
  18. #38 orangebug, 07.02.2012
    orangebug

    orangebug Gast

    Hallo,

    mir würde - auch von den anwesenden Architekten - interessieren ob der Windfang funktionieren kann. Ich kenne so einen Windfang aus der Familie. Wenn mal Besuch kommt trampelt der sich in dieser kleinen Schleuse gegenseitig platt. Effektiv stehen dann Haus- und Windfangtür offen und die Menge "quillt" doch wieder in die Diele. Der Effekt des Windfangs ist dann dahin.
     
  19. #39 Thomas B, 07.02.2012
    Thomas B

    Thomas B

    Dabei seit:
    17.08.2005
    Beiträge:
    11.181
    Zustimmungen:
    4
    Beruf:
    Dipl.Ing.
    Ich persönlich finde Windfänge nicht mehr zeitgemäß!

    Man kommt in einen kleinen Raum um diesen dann -eng gequetscht- zu durchmessen um dann doch im Flur zu landen. Früher, als Haustüren alles andere als dicht waren, als es noch zog wie Hechtsuppe, waren diese sicher sinnvoll! Heute, mit dichten Systemen, sit dies m.E. nicht mehr erforderlich.

    Thomas
     
  20. Hfrik

    Hfrik

    Dabei seit:
    10.09.2009
    Beiträge:
    1.131
    Zustimmungen:
    1
    Beruf:
    dipl. Ing
    Ort:
    70771
    Nun, wenn der Kaminofen im Wohnzimmer bzw. zwischen Wohnzimmer und diele steht, bitte mal einzeichnen. Ebenso den Terassengrill - damit man die Abmessungen sieht und versteht. Wo kommen den die Revisionsöffnungen für den Kaminfeger an diesem Kamin dann hin? (Vorsicht, der Russt schon kräftig wenn mit Feststoff geheizt wird)
    Bezüglich Waschküche: das hängt im Zweifel vom Luftdurchsatz ab.

    Bezüglich Windfang: der soll ja primär bei den hunderten Fällen funktionieren, wenn eine oder 2 Personen hereinkommen. Dass er mal überfordert ist, wenn 10 Personen gleichzeiig kommen - das ist dan halt so. Dafür hat er als Überlauf die Innentür zum Flur :)
     
Thema: Ich hätte da noch einen Grundriss
Besucher kamen mit folgenden Suchen
  1. neue grundrisse speis

Die Seite wird geladen...

Ich hätte da noch einen Grundriss - Ähnliche Themen

  1. ... hätte der Franz doch blos Architektur studiert!

    ... hätte der Franz doch blos Architektur studiert!: - aber nein, er wollte ja lieber Bischof werden. > klick <. [IMG]
  2. Hätte nie gedacht, das Erdwärme auch gefährlich sein kann...

    Hätte nie gedacht, das Erdwärme auch gefährlich sein kann...: Heftig, was eine Erdbohrung für Schäden verursachen kann... So ein arthesischer Brunnen unterirdisch ist ja fies......
  3. Stromschlag - Welche Sicherung hätte greifen müssen

    Stromschlag - Welche Sicherung hätte greifen müssen: Hallo zusammen. Welch ein erfrischendes Gefühl wenn man von seinem Neubau mit einem Stromschlag begrüßt wird. Glück im Unglück, mir ist nix...
  4. Dachflächenfenster - hätte man sie tiefer einbauen können? Dachdecker sagt "Nein".

    Dachflächenfenster - hätte man sie tiefer einbauen können? Dachdecker sagt "Nein".: Hallo liebe Experten, vor Ostern hat unser Dachdecker unsere Dachflächenfenster eingebaut. Bereits nach dem Einbau des ersten Fensters sagten...