Ist das eine tragende oder nicht tragende Wand?

Diskutiere Ist das eine tragende oder nicht tragende Wand? im Architektur Allgemein Forum im Bereich Architektur; Hallo zusammen, wir spielen mit dem Gedanken die Wand im Wohnzimmer ( neben der Treppe) in Richtung Windfang abzureißen. Wir wollen gerne alles...

  1. #1 Dani8484, 24.08.2022
    Dani8484

    Dani8484

    Dabei seit:
    23.08.2022
    Beiträge:
    7
    Zustimmungen:
    0
    Hallo zusammen,

    wir spielen mit dem Gedanken die Wand im Wohnzimmer ( neben der Treppe) in Richtung Windfang abzureißen.
    Wir wollen gerne alles offen haben.
    Das Geschoss darüber hat an der selben Stelle keine Wand. Ist das nun eine tragende Wand? Oder ist die Wand für die Versteifungen des Hauses gedacht?
    Ich hoffe ihr könnt mir da helfen.
     

    Anhänge:

  2. SIL

    SIL

    Dabei seit:
    06.05.2018
    Beiträge:
    10.865
    Zustimmungen:
    4.211
    Beruf:
    M. Sc. Dipl. Ingenieur
    Ort:
    6210
    Beides - tragend und ausssteifend.
     
  3. #3 JohnBirlo, 24.08.2022
    JohnBirlo

    JohnBirlo

    Dabei seit:
    28.05.2020
    Beiträge:
    1.232
    Zustimmungen:
    461
    Wenn dir das sehr wichtig ist, müssteste nen Statiker fragen. Vielleicht kann man Fenster in die Wand machen oder durch nen Träger/Säule teilweise ersetzen.
     
  4. SIL

    SIL

    Dabei seit:
    06.05.2018
    Beiträge:
    10.865
    Zustimmungen:
    4.211
    Beruf:
    M. Sc. Dipl. Ingenieur
    Ort:
    6210
    Das geht sicher John , aber das ist hier der Standard Grundriss , wie er über viele Jahre von sehr vielen genutzt wurde und diese Wände / Wand war immer tragend , gerade die 2 bei der Treppe eh ...
     
  5. #5 JohnBirlo, 24.08.2022
    JohnBirlo

    JohnBirlo

    Dabei seit:
    28.05.2020
    Beiträge:
    1.232
    Zustimmungen:
    461
    ich hab mal in nem Reihenmittelhaus mit einem sehr ähnlichen Grundriss gelebt. Da war statt der Tür, ein etwa 3m breiter Durchgang, wo aber die Deckenhöhe durch vermutlich einen fetten Stahlträger verringert war.
     
    SIL gefällt das.
  6. SIL

    SIL

    Dabei seit:
    06.05.2018
    Beiträge:
    10.865
    Zustimmungen:
    4.211
    Beruf:
    M. Sc. Dipl. Ingenieur
    Ort:
    6210
    Natürlich kann man da was ändern - aber einfach wegreissen geht nicht und wenn du genug Geld in die Hand nimmst auch ohne Beschränkung der Deckenhöhe... technisch gibt es da einige Lösungen
     
    JohnBirlo gefällt das.
  7. #7 Dani8484, 24.08.2022
    Dani8484

    Dani8484

    Dabei seit:
    23.08.2022
    Beiträge:
    7
    Zustimmungen:
    0
    Hallo zusammen,

    danke für die schnellen Antworten. Dann werde ich da wohl einen Stahlträger einbauen müssen. Klappt das den dann auch mit der Versteifung?
    Über dem Stahlträger wird denke ich mal 10cm bis 20 cm Wand stehen bleiben müssen und links und rechts an den Außenwänden ca. 20cm bis 30cm um den Stahlträger zu setzten.
     
  8. #8 Dani8484, 24.08.2022
    Dani8484

    Dani8484

    Dabei seit:
    23.08.2022
    Beiträge:
    7
    Zustimmungen:
    0
    So wie der John das beschreibt im ehemaligen Reihenhaus. Könnte ich mir anstatt der Tür auch einen 3 bis 3,5 m breiten Durchgang vorstellen.
     
  9. #9 JohnBirlo, 24.08.2022
    JohnBirlo

    JohnBirlo

    Dabei seit:
    28.05.2020
    Beiträge:
    1.232
    Zustimmungen:
    461
    Das muss ein Statiker konkret berechnen. Das kann kein Forum leisten. Rufste nen statiker an und lädst ihn entweder zum Hausbesuch oder schickst die statischen Berechnungen deines Hauses hin.

    Der sagt dir dann ob und wie das klappen könnte. So nen 4m Stahlträger in nen fertiges Haus reinzutragen wirste vermutlich auch nicht alleine schaffen.....
     
  10. #10 Dani8484, 24.08.2022
    Dani8484

    Dani8484

    Dabei seit:
    23.08.2022
    Beiträge:
    7
    Zustimmungen:
    0
    Ja das stimmt da muss ein Statiker drüber schauen. Bei 4 m braucht man schon ein paar Ochsen .
     
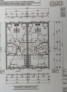
  11. #11 Dani8484, 15.01.2024
    Dani8484

    Dani8484

    Dabei seit:
    23.08.2022
    Beiträge:
    7
    Zustimmungen:
    0
    Ich habe da noch eine Frage, ist dieses Stück gekennzeichnete Wand auch eine tragende Wand? Die Wand ist 11.5 cm breit und ich würde gerne die Wand oberhalb der Tür bis zur Decke entfernen und das Stück ca. 80 cm Wand.
     

    Anhänge:

  12. SIL

    SIL

    Dabei seit:
    06.05.2018
    Beiträge:
    10.865
    Zustimmungen:
    4.211
    Beruf:
    M. Sc. Dipl. Ingenieur
    Ort:
    6210
    Mit hoher Wahrscheinlichkeit nicht tragend , stell einmal den Deckenplan Fili/ Bewehrung ein.
     
  13. #13 Dani8484, 16.01.2024
    Dani8484

    Dani8484

    Dabei seit:
    23.08.2022
    Beiträge:
    7
    Zustimmungen:
    0
    Hi Dankeschön für die schnelle Antwort. Ich habe leider keinen Deckenplan.
    Den hatte ich auch schon gesucht.
     
Thema:

Ist das eine tragende oder nicht tragende Wand?

Die Seite wird geladen...

Ist das eine tragende oder nicht tragende Wand? - Ähnliche Themen

  1. Wand in Baupläne nicht vorhanden, hast das, die Wand ist nicht tragend?

    Wand in Baupläne nicht vorhanden, hast das, die Wand ist nicht tragend?: Hallo, ich habe leider noch keine passende Antwort gefunden. Wir möchten gerne einen Türdurchbruch machen. Leider ist die Wand jedoch nicht in...
  2. Tragende Wand

    Tragende Wand: Hallo zusammen, anbei der Grundriss einer Doppelhaushälfte Baujahr 2008. Die rot eingezeichneten Wände hat die Voreigentümerin einbauen lassen...
  3. Rissbildung nicht-tragende Wand

    Rissbildung nicht-tragende Wand: Hallo zusammen, Wollte die Frage eigentlich schon länger mal stellen. Ich habe einen längeren Riss in einer Ytongwand (nichttragend). Ich habe...
  4. 11er Mauer verstärken um eine tragende Wand zu erhalten

    11er Mauer verstärken um eine tragende Wand zu erhalten: Hallo zusammen, das Haus meiner Eltern wurde 1975 gebaut. Eine Wand, die sich vom Keller bis unter den Dachstuhl zieht, ist als 11er Mauer...
  5. Tragende Wände? - Tür und Kernbohrung

    Tragende Wände? - Tür und Kernbohrung: Hallo, vorab: Wir sind langjährige Mieter (seit 18 Jahren), keine Eigentümer. Bitte keine Rügen oder Belehrungen, die Einsicht ist da, dass wir...