Kapitänshaus Grundrissplanung

Diskutiere Kapitänshaus Grundrissplanung im Architektur Allgemein Forum im Bereich Architektur; Moin aus Niedersachsen, nachfolgend möchte meine Frau und ich Euch Experten um Bewertung unseres Grundrisses fragen. 1. Wir sind: Anzahl der...

  1. #1 Numberome, 02.01.2025
    Numberome

    Numberome

    Dabei seit:
    02.01.2025
    Beiträge:
    8
    Zustimmungen:
    1
    Moin aus Niedersachsen,

    nachfolgend möchte meine Frau und ich Euch Experten um Bewertung unseres Grundrisses fragen.

    1. Wir sind:

    Anzahl der Personen aktuell: 2
    Alter: 30 Jahre
    geplant: 2x Kinder
    Beeinträchtigungen, Behinderungen: nein
    Zimmervermietung, Einlieger: nein

    2. Unser Raumprogramm:
    was wir für Räume brauchen oder wünschen:

    offener All-Raum (Küche, Essen, Wohnen zusammen)

    Anzahl Essplätze: 6
    Anzahl Schlafzimmer: 3-4 (Eltern, 2*Kind, Gästezimmer/Büro)
    Anzahl Bäder: 2 (1x EG, 1x DG)
    Ankleide: ja, fürs Elternschlafzimmer

    Büro/Gast kombiniert

    Gästezimmer (5-10 Schlafgäste pro Jahr)

    Technikraum/ HWR/ Speisekammer (in einem)

    Abstellraum (unter Treppe)

    Carport mit Gartenhaus

    Keinen Keller

    Keine Einliegerwohnung

    3. Welchen Hausstil bevorzugen wir?
    und warum? (Stilrichtung, Dachform, Gebäudetyp)

    Kapitänsgiebelhaus - Kapitän auf Vorder und Rückseite.

    Bauweise Landhausstil und Moderne kombiniert

    Rot-Brauner Klinker.

    Große Fenster im Wohn-Essbereich sind uns wichtig.


    4. Welche Zusatzwünsche/Features
    hätten wir gern und warum?

    Kamin, wir lieben es gemütlich und sind uns darüber bewusst, dass der Schornstein nur dafür nötig ist. (Heizung Luft-Wärmepumpe).

    Das Elternschlafzimmer soll über das Ankleidezimmer betreten und verlassen werden. Ich arbeite im Schichtdienst und möchte meine Frau beim An- / Auskleiden nicht stören.

    5. Bebauungsplan/Einschränkungen
    Link zum Bebauungsplan/Lageplan

    Grösse des Grundstücks: ~ 850 qm

    Geschossigkeit: 1 Vollgeschoss

    Hauseingangsseite: Ostseite
    Rückseite des Hauses (Wohn-Essbereich): Westseite

    6. weitere Wünsche/Besonderheiten/Tagesablauf
    gern auch Begründungen, warum dieses oder das nicht sein soll

    Die Treppe soll nicht direkt an der Haustür liegen. Unter der Treppe möchten wir gerne einen Abstellraum.
    Uns gefallen Podesttreppen oder halbgewendelte Treppen gut.

    7. angedachte Haustechnik

    Luft-Wärmepumpe

    Zentrale Lüftungsanlage auf dem Spitzboden

    8. Hausentwurf

    Von wem stammt die Planung:
    Planer eines Bauunternehmens

    Was gefällt Euch besonders? Warum?
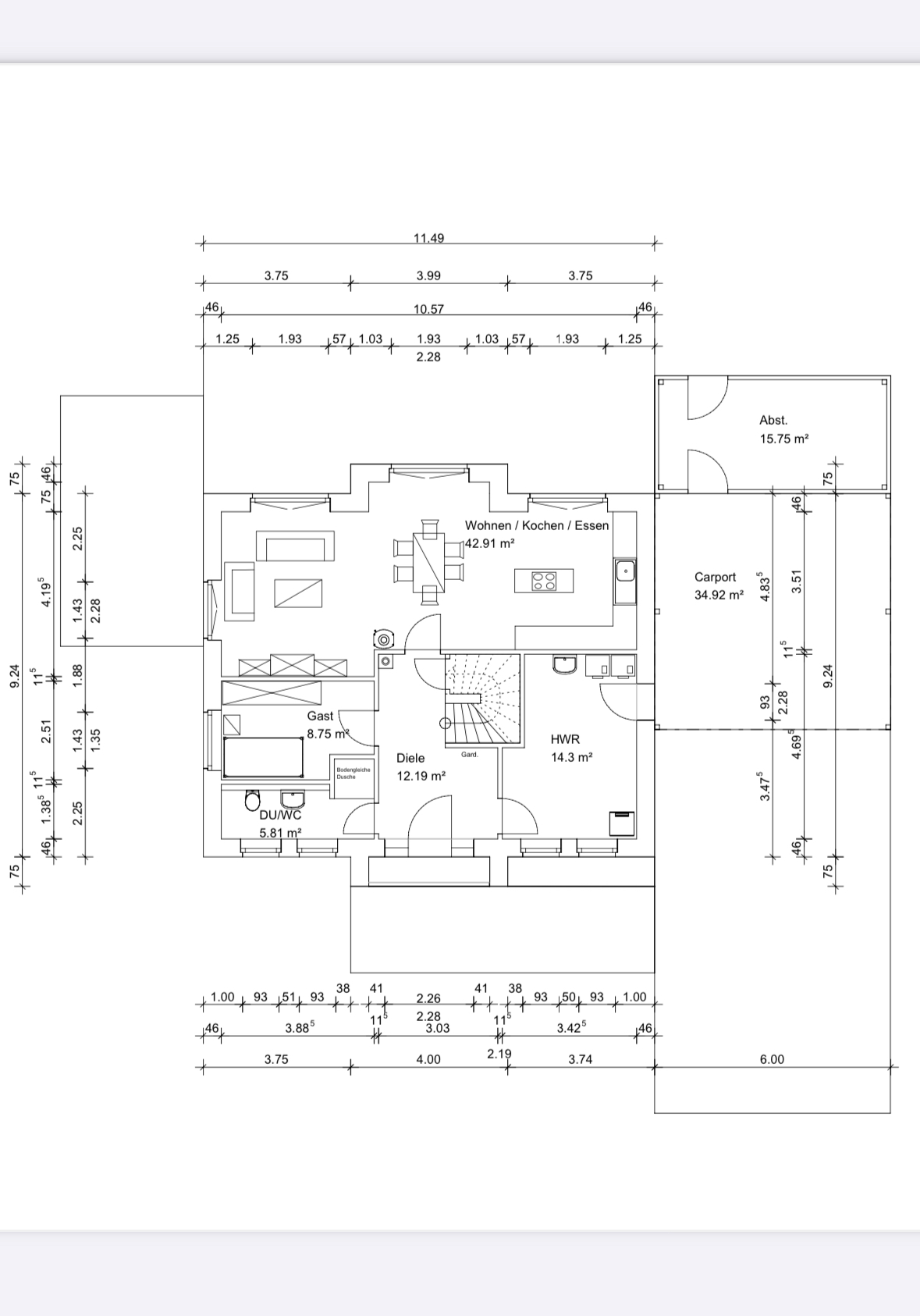
    1. Der Wohn-Essbereich entspricht unseren Vorstellungen. Zwischen HWR und Küche ist noch eine versteckte Tür geplant, die sich in den Küchenschränken einfinden soll.
    2. Bodentiefe Dusche im DG Badezimmer ist uns wichtig.

    Was gefällt nicht? Warum?
    1. Die Dusche im EG Bad nimmt dem Gästezimmer Raum.
    2. Der Schornstein wirkt etwas, als ob er im Weg ist.
    3. Die Ankleide ist der „schönste Raum“. Zudem ist der Blick von dort auf ein Feld. Für einen Ankleideraum ist es fast zu schade.


    9. Preisschätzung lt. Architekt/Planer

    Persönliches Preislimit fürs Haus, inkl. Ausstattung (ohne Küche!) ~400.000

    Preislimit inkl. Baunebenkosten und Außenanlage (Pflasterarbeiten, Galabauer, Bepflanzung, Garage) ~600.000

    Persönliches Preislimit für die Küche
    Wurde noch kein Preis geschätzt, dann schätzt Ihr doch mal bitte, was es kostet! ~15.000

    Was macht ihn in Euren Augen besonders gut oder schlecht?
    Er erfüllt weitestgehend unsere Anforderungen und vereint unsere Bedürfnisse mit unseren finanziellen Möglichkeiten.

    Auf welche Details/Ausbauten könntet Ihr verzichten?
    Eigentlich auf keine.

    Was ist die wichtigste Frage zum Grundriss in 130 Zeichen zusammengefasst?
    Was könnte man an dem Grundriss optimieren, ohne das wesentliche Haus zu verändern?
    Kapitänshaus und die Größe sind ziemlich gesetzt.
     

    Anhänge:

  2. #2 Numberome, 02.01.2025
    Numberome

    Numberome

    Dabei seit:
    02.01.2025
    Beiträge:
    8
    Zustimmungen:
    1
    Vielen Dank vorab für hilfreiche Kritik.
     
  3. #3 hanghaus2000, 03.01.2025
    hanghaus2000

    hanghaus2000

    Dabei seit:
    24.11.2021
    Beiträge:
    1.514
    Zustimmungen:
    625
    Beruf:
    Bauleiter, Kalkulator, Controller, Salzdesign
    Ort:
    Bayern
    Bebauungsplan und Lageplan vom GS fehlen.

    Das beides ist kaum gemeinsam zu stemmen. Zu viele m2 zu viele Preistreiber (Klinker, Zusatzgiebel,Galerie, grosse Fenster usw.)
     
    driver55 und simon84 gefällt das.
  4. #4 Numberome, 03.01.2025
    Numberome

    Numberome

    Dabei seit:
    02.01.2025
    Beiträge:
    8
    Zustimmungen:
    1
    Anbei noch der Lageplan.

    Preis ist nicht so erheblich, da nur Schätzwert.

    Bebauungsplan gibt es nicht, da Innenrandbebauung, die sich an der nahen Umgebungsbebauung orientiert. diese
    Diese besteht maßgeblich aus Bungalows und Satteldachhäusern.
    Nur 1 Vollgeschoss erlaubt laut Baubehörde.

    Ich hoffe das sind nun die erforderlichen Infos.
    Beste Grüße
     

    Anhänge:

  5. #5 hanghaus2000, 04.01.2025
    hanghaus2000

    hanghaus2000

    Dabei seit:
    24.11.2021
    Beiträge:
    1.514
    Zustimmungen:
    625
    Beruf:
    Bauleiter, Kalkulator, Controller, Salzdesign
    Ort:
    Bayern
    Das Budget ist in der Regel nicht flexiebel. Denn die Bank will in der Regel vorher wissen was Du brauchst.

    Du hast
    gesagt.

    Wie viel ist es denn nun?
     
  6. #6 Numberome, 04.01.2025
    Numberome

    Numberome

    Dabei seit:
    02.01.2025
    Beiträge:
    8
    Zustimmungen:
    1
    Moin,

    der Preis ist in diesem Fall nicht so relevant, da mit Eigenleistung und verschiedenen Gewerken noch Kosten aufgefangen sind, bzw. in den 400.00 nicht eingerechnet.
    Sagen wir dann beim Hausbudget 500.000.

    Ansonsten würde ich aber gerne Expertise und Ideen zum Grundriss und nicht zur Finanzierung.

    Vielen Dank

    Beste Grüße
     
  7. 11ant

    11ant

    Dabei seit:
    28.02.2017
    Beiträge:
    2.486
    Zustimmungen:
    1.564
    Beruf:
    Bauherrenberater
    Ort:
    RLP Nord
    Benutzertitelzusatz:
    bringt Sie gut beraten ins Eigenheim
    Ohne Bebauungsplan theoretisch auch keine Geschossigkeitslimitierung.
    Laut Lageplan sind bis auf das eine Haus schräg gegenüber mit dem Knitterdach sämtliche Nachbargrundstücke leer.
    Das ist allerdings fast ein Maulkorb bzw. mindestens ein Waschen ohne Naßmachen. Schornstein stört nicht weil kann weg (wozu braucht eine Wärmepume den ?). Pack´ die Dusche in den HWR. Tausche Schlafen und Ankleide. Vergiß´ die Tapetentür zwischen Küche und HWR. Ich würde die tragenden Wände im Kaliber 175 ausführen und ansonsten im DG Leichtbauwände bevorzugen (vgl. Leichtbauwände in Massivhäusern? - bauen-jetzt.de). Durch was soll die Moderne in den Landhausstil eingehen ?
     
    Xeno und simon84 gefällt das.
  8. #8 Kriminelle, 04.01.2025
    Kriminelle

    Kriminelle

    Dabei seit:
    16.05.2013
    Beiträge:
    3.707
    Zustimmungen:
    2.048
    Beruf:
    .
    Ort:
    Niedersachsen
    Es gibt einige regionale Firmen in Niedersachsen, die bekommen das hin. Aber natürlich haben auch die eine BLB, wo alles auch etwas mehr kostet als der Katalogpreis, wenn man zb den 08/15-Klinker nicht will oder eben mit einer Lüftungsanlage plant. Innerhalb der angepeilten 600000€ ist das aber nmM machbar, sofern das Grundstück platt ist. Allerdings sprechen wir hier von beachtlichen 180qm mit zusätzlichen 2 Giebeln - da wird sich auch der Hauspreis anpassen.

    Letztendlich diskutiert man das ganze Haus, der Grundriss ist nur ein Teil.
    Wenn man sich für ein Drei-Giebel oder Kapitänshaus entscheidet, dann muss man mit den negativen Vorgaben leben und auch darauf achten, dass es dennoch funktioniert. Da sind zb die symmetrischen Fenster, die so manches zerhauen, siehe Wohnzimmer, WC oder Küchenmöblierung. Denn man hat unter Umständen hinter den Fenstern in den Ecken keine Stellfläche mehr für Schränke (was aber bei 180qm in diesem Fall nicht sein sollte). Und für die Ankleide gibt es fast nur zwei Wege für Schichtdienstler, wenn man nicht das ganze Geschoss zerschießen möchte: den anderen zeige ich weiter unten auf.
    Ja, den kann man verstecken.
    Siehe oben: eine oder mehrere Kröten muss man schlucken.
    Das gilt im Übrigen auch für die mittig liegende Treppe: Ihr möchtet sie nicht im Schmutzbereich, aber zB die meist frenquentierteste Toilette im Hause plant Ihr genau dort, nämlich im Schmutzbereich. Dafür gibt es kaum Garderobenfläche. Wechseljacken aller Saisons und Schuhe müssten im Haus verteilt werden.
    Um Gottes Willen. Das zerschiesst Dir die Gängigkeit der jetzt schon nicht üppigen Küche. Denn die eingezeichneten Möbel stellen ja nicht das dar, wie es funktionieren sollte: die Insel ist nicht real und muss tiefer, wenn nicht auch breiter, die Terrassentüren sollten auch geöffnet werden können, wenn man bedenkt, dass das Fenster im Wohnbereich zugestellt ist, das des Essbereiches auch durch den Esstisch mehr oder weniger zugestellt sein wird. . Da bleibt kein Platz für eine 60er oder 80er Nottür. Wofür auch? Der Platz ist wertvoll für Schränke, nämlich 80cm Gewinn an einem Hochschrank. (60er Breite ist zu schmal. Da kommt kein Kerl durch)
    Ihr habt ja noch nicht einmal eine Speis, sondern hättet ein Regal im TK-Raum für Notreserven. Das kann man auch über den Flur erreichen. Das ist halt auch der Symmetrie innen und der Positionierung der Treppe geschuldet.

    Ich will Euch dieses Haus nicht ausreden, aber seid Euch bewusst, dass ihr eben auf einiges „verzichten“ müsst. Dafür erfreut Ihr Euch jeden Tag an der Fassade, wenn Ihr nach Hause kommt.

    Nochmal
    Wenn Ihr Euch für solch eine versteckte Tür (dann wären es im HWR 3! Türen, die Euch in der Möblierung sehr einschränken werden), dann wird es ein hochpreisiger Küchenanbieter werden. Oder eine Tischlerausfertigung.15000€ ist schon für eine Ikea-Küche sportlich.

    Hier mal nach meiner Meinung (auf die Schnelle) ein paar Verbesserungen - muss man schauen, was man will oder wo man sich besser mit anfreundet.
    Oben ist noch Platz für WM und Tr, das kann man vom Bad abzwicken.
    Den schönen Giebel im Westen teilen sich die Kinderzimmer. Im Osten in der Ankleide kommt eben nur ein kleines Fenster hin. Unter der Schrägen im SZ kann eine Abseite für Schrank Ersatz schaffen, was in der Ankleide keinen Platz hat. Der Kaminschlot ist versteckt, im DG im einen Kizi in der Ecke.
    Mit einer Spiegelung der Treppe und Verzicht auf den AB darunter funktioniert auch die Tür zum Allraum in mittiger Ausführung Bildschirmfoto 2025-01-04 um 17.03.11.png

    Bildschirmfoto 2025-01-04 um 16.45.41.png
     
    Fasanenhof, driver55, hanghaus2000 und einer weiteren Person gefällt das.
  9. #9 Andreas Teich, 05.01.2025
    Andreas Teich

    Andreas Teich

    Dabei seit:
    20.03.2012
    Beiträge:
    3.102
    Zustimmungen:
    529
    Beruf:
    Gebäude-Energieberater, Planungsbüro, HW-Meister
    Ort:
    Bonn und Kärnten/Österreich
    Benutzertitelzusatz:
    Ggf anrufen sofern sich’s im Rahmen hält…
    Hauswirtschaftsraum und Diele sind unnötig groß
    Jeder Vorsprung ist teuer und dämmtechnisch komplizierter
     
  10. #10 Numberome, 05.01.2025
    Numberome

    Numberome

    Dabei seit:
    02.01.2025
    Beiträge:
    8
    Zustimmungen:
    1
    Vielen Dank schon mal für die Antworten.

    Ein paar Sachen sind uns noch wichtig:

    Wir möchten im DG gerne die "Galerie" haben und die Kinderzimmer zusammen auf der Südseite.



    Hier gebe ich Dir eindeutig recht. Wie viel Garderobenfläche sollte vorhanden sein? Gibt es da einen Richtwert?

    Die Treppe gefällt uns so schon recht gut. Als Alternative könnte ich mir nur vorstellen, dass man den EG Aufstiegsbereich um 1-2 Stufen reduziert und diese dafür im DG dazu nimmt. Zweck soll sein, dass die Treppe im DG nicht so weit in den jetzigen Raum ragt. Meint ihr das wäre umsetzbar?


    Die Kinderzimmer würden wir sehr gerne an der aktuellen Position belassen und eine Galerie verwirklichen. Grundsätzlich kann diese ja ebenfalls als Spielraum fungieren. Notfalls würde man dort auch eine Wand einziehen können und hätte ein weiteres Zimmer.


    Richtig gelungen fand ich den Vorschlag mit der Halbrunden Dusche! Das sollte sich ja umsetzen lassen bei 1.38 m Raumbreite.


    Ich habe nun meine besten PC-Skills verwendet und versucht den Grundriss anhand einiger Vorschläge und unserer Träume zu "verbessern".


    Wir sind nach wie vor über jegliche Kritik dankbar.

    Vielen Dank an alle Antwortenden! :-)
     

    Anhänge:

  11. #11 hanghaus2000, 05.01.2025
    hanghaus2000

    hanghaus2000

    Dabei seit:
    24.11.2021
    Beiträge:
    1.514
    Zustimmungen:
    625
    Beruf:
    Bauleiter, Kalkulator, Controller, Salzdesign
    Ort:
    Bayern
    Bad un SZ sollte man nicht tauschen, dann haben die Kinder keinen direkten Zugang zum Bad mehr.
     
  12. #12 driver55, 05.01.2025
    driver55

    driver55

    Dabei seit:
    22.02.2008
    Beiträge:
    6.875
    Zustimmungen:
    1.798
    Beruf:
    Dipl.-Ing.
    Ort:
    Pforzheim
    Das ist Jacke wie Hose, weil die Ankleide ja mitwandert(e).

    Prinzipiell funktioniert der Grundriss, aber Potenzial ist genügend vorhanden!
    Man sollte sich aber erstmal im Klaren sein, was man will. Ne Hütte, die schick aussieht (von außen) oder eine, die Platz bietet (innen).
    • 30 qm Diele/HWR ggü. 42,9qm WohnenEssen/Kochen
    • wozu diese Doppelfenster (WC/HWR)
    • die erwähnten Vorsprünge…
    • Mini-KiZi, aber Galerie (die kein Mensch braucht)…
    • u.s.w. u.s.f.
     
    11ant und Kriminelle gefällt das.
  13. #13 Kriminelle, 05.01.2025
    Zuletzt bearbeitet: 05.01.2025
    Kriminelle

    Kriminelle

    Dabei seit:
    16.05.2013
    Beiträge:
    3.707
    Zustimmungen:
    2.048
    Beruf:
    .
    Ort:
    Niedersachsen
    Doch, haben sie. Galerie wäre dann ja im Westen.
    Allerdings bedeutet Bad über Küche, dass durch die Küche dann das Fallrohr läuft.
    Grundsätzlich spielen die Kinder im Bauklotzalter im Wohnbereich bei den Eltern. Mit der Grundschule bekommt man Freunde, mit denen man gern in seinem eigenen Zimmer spielt. Die Galerie ist ganz einfach Nice-to-Have. Wir haben eine innenliegende Galerie, die als Stauraum genutzt wird. Irgendein Karton oder abgeschobenes Möbelstück steht da immer. Leider. Man tauscht halt nicht die Familie und den Wohnbereich mit einem Sessel auf der Empore. Wozu? Da zerrt das Kind, da mault der Partner von unten…
    Richtwert so 50-60cm Schranklänge pro Person. Also geeignet für Kleiderbügel und auftragende Daunenjacken. Wer viele Jacken kauft oder hortet, braucht mehr. Man sollte sich und seinen Partner überprüfen. Kinder brauchen zudem noch Outdoorsachen, Overalls, Daunenjacken, Friesennerze. Bei Schuhen kommt auch einiges mit Sport, Arbeit, Stiefel zusammen. Dann noch eine Kommode für Schals, Mützen und Handschuhe.. Handtaschen und Rucksäcke werden auch überall gesehen. Aber einiges kann ja in den TK-Raum.

    Ich sag ja:
    Viel zu ändern ist da halt nicht, weil alles iwie vorgegeben ist.
    Mich persönlich würde auch der Platzfresser Diele ärgern.
     
    11ant gefällt das.
  14. #14 jodler2014, 06.01.2025
    Zuletzt bearbeitet: 06.01.2025
    jodler2014

    jodler2014

    Dabei seit:
    20.12.2014
    Beiträge:
    3.907
    Zustimmungen:
    542
    Beruf:
    Angestellter
    Ort:
    RP
    Die Innenwand vom HWR zur Diele ,in Verlängerung zur Treppenhauswand verschieben , bringt viel mehr Stellfläche für einen großen Schrank als diese komische Ecke .Gleichzeitig ändert sich dadurch die Anordnung und Anzahl der Fenster .
    Platz ist genug vorhanden .Aber wenn ich mir die tragenden Innenwände im Plan anschaue ,sind die als 11 cm schon sehr dünn ausgeführt .;)
    Die Diele im EG ist meiner Meinung nach absolut ok.
    Durch die Verschiebung der Innenwand resultiert daraus mehr Platz für eine Garderobe ..
     
  15. #15 driver55, 06.01.2025
    driver55

    driver55

    Dabei seit:
    22.02.2008
    Beiträge:
    6.875
    Zustimmungen:
    1.798
    Beruf:
    Dipl.-Ing.
    Ort:
    Pforzheim
    Ergänzung: Natürlich braucht‘s einen großen HWR, da ohne Keller. Aber doch nicht mit 3 Türen und 2 Fenstern. Jeder normale 8 qm-Raum bietet mehr Stellfläche.
    Die 0,5 qm mehr in Gäste „machen den Kohl auch nicht fett“. Entweder Dusche komplett in Gäste verschieben oder im WC vorne über die komplette Seite (und nicht so ne halbrunde Notlösung)….
    Man kann/darf aber die Räume nicht einzeln betrachten, sondern das gesamte Konstrukt…

    Da hilft nur ein fähiger Architekt.
     
    Kriminelle und 11ant gefällt das.
  16. #16 Numberome, 06.01.2025
    Numberome

    Numberome

    Dabei seit:
    02.01.2025
    Beiträge:
    8
    Zustimmungen:
    1
    Vielen Dank für die weiteren Antworten.

    Das "Problem" ist wirklich, dass wir eine schöne Fassade wollen und einen tollen Nutzen für innen fordern.

    Hat sonst jemand Vorschläge zum Thema Treppe? Dadurch lässt sich vermutlich ja auch einiges ändern.
     
  17. #17 Numberome, 06.01.2025
    Numberome

    Numberome

    Dabei seit:
    02.01.2025
    Beiträge:
    8
    Zustimmungen:
    1
    Wie würden Sie den Grundriss denn gestalten?
     
  18. #18 Numberome, 06.01.2025
    Numberome

    Numberome

    Dabei seit:
    02.01.2025
    Beiträge:
    8
    Zustimmungen:
    1
    Alternativ könnten wir uns sonst vorstellen den Grundriss in diese Richtung anzupassen.
    Maße und co. passen noch nicht ganz richtig aber das wäre die Richtung. Würdet ihr das noch mal bewerten bitte?

    EG neu 06-01-2025.jpg

    DG neu 06-01-2025.jpg
     
    Fasanenhof gefällt das.
  19. 11ant

    11ant

    Dabei seit:
    28.02.2017
    Beiträge:
    2.486
    Zustimmungen:
    1.564
    Beruf:
    Bauherrenberater
    Ort:
    RLP Nord
    Benutzertitelzusatz:
    bringt Sie gut beraten ins Eigenheim
    Schon besser, mit Sitzpinklertoilette ;-)
     
  20. #20 Fasanenhof, 07.01.2025
    Fasanenhof

    Fasanenhof

    Dabei seit:
    20.02.2023
    Beiträge:
    1.451
    Zustimmungen:
    813
    Beruf:
    Ing für Maschinenbau
    Ort:
    Norddeutschland
    Gedanken zum letzten Entwurf:

    Erdgeschoss:
    - Gästezimmer etwas schmaler machen, dadurch eine Linie Treppenhaus/Diele/Eingang zum Wohnraum schaffen. Kamin wird zum Eck/Einbaukamin.
    - HWR um eine Schranktiefe schmaler machen, um die Garderobe/Schuhregal in der Diele unter zu bringen
    upload_2025-1-7_8-33-15.png

    Obergeschoss:
    Könnte ich mit leben, ich würde es nur anders nutzen als gezeichnet.
    Die Ankleide wäre für mich wohl ein Nebenraum mit Computer/Büro, die leere Fläche der Galerie würde ich mit einem Kreativarbeitsplatz (Nähtisch) belegen.
    Die Dusche an der Schlafzimmerwand würde ich mir überlegen, bei der Größe vom Bad würde ich eine Wanne erwägen.

    Ansonsten ist das voll mein Geschmack.
     
    11ant und hanghaus2000 gefällt das.
Thema:

Kapitänshaus Grundrissplanung

Die Seite wird geladen...

Kapitänshaus Grundrissplanung - Ähnliche Themen

  1. Stallumbau - Grundrissplanung

    Stallumbau - Grundrissplanung: Hallo zusammen! Wir planen, einen ehemaligen Stall zu einem Wohnhaus umzubauen. Das Erdgeschoß bleibt bestehen (Werkstatt, Garage, Lager,...
  2. Grundrissplanung modernes Satteldach

    Grundrissplanung modernes Satteldach: Hallo zusammen, meine Frau und ich würden uns sehr freuen, wenn Ihr Euch als Experten unseren Grundriss anschauen und uns Eure Einschätzung dazu...
  3. Grundrissplanung Bungalow 100 m2 mit Ausbaureserve

    Grundrissplanung Bungalow 100 m2 mit Ausbaureserve: Hallo, für im Titel genanntes Bauvorhaben habe ich zwei Entwürfe vom Architekten und einen dritten von mir selbst. Entwurf 1 kam direkt vom...
  4. Grundrissplanung: Gäste-Bad & HWR

    Grundrissplanung: Gäste-Bad & HWR: Hallo zusammen, wir sind in den letzten Zügen einen Altbau zu erwerben & planen momentan den Grundriss im EG. Kurze Situationsbeschreibung:...
  5. Grundrissplanung + Wanddurchbruch

    Grundrissplanung + Wanddurchbruch: Hallo zusammen, ich würde gerne mal eure Meinung bzw. Expertise hören. Wir planen derzeit ein Haus zu kaufen. Für uns ist klar, dass die Wand...