Kleines Haus am Hang 7*12,5m

Diskutiere Kleines Haus am Hang 7*12,5m im Architektur Allgemein Forum im Bereich Architektur; Ich bin mal gespannt wie die Variante von @Kriminelle aussieht. Die wird es nicht geben, weil mir Informationen fehlen. Fragebogen. Ohne Arme...

  1. #61 Kriminelle, 11.12.2021
    Kriminelle

    Kriminelle

    Dabei seit:
    16.05.2013
    Beiträge:
    3.597
    Zustimmungen:
    1.968
    Beruf:
    .
    Ort:
    Niedersachsen
    Die wird es nicht geben, weil mir Informationen fehlen. Fragebogen. Ohne Arme keine Kekse.
     
    K a t j a gefällt das.
  2. #62 hanghaus2000, 11.12.2021
    Zuletzt bearbeitet: 11.12.2021
    hanghaus2000

    hanghaus2000

    Dabei seit:
    24.11.2021
    Beiträge:
    1.480
    Zustimmungen:
    604
    Beruf:
    Bauleiter, Kalkulator, Controller, Salzdesign
    Ort:
    Bayern
    OK. Du hast ja Recht. Aber durch den Dialog sind mir erst so einige wichtige Dinge eingefallen, die ich so nicht fuer den Fragebogen gesehen haette. Am Montag geht es an den Fragebogen versprochen.

    Koenntest den mal bitte verlinken?
     
  3. #63 K a t j a, 11.12.2021
    K a t j a

    K a t j a

    Dabei seit:
    31.05.2019
    Beiträge:
    1.009
    Zustimmungen:
    582
    Ort:
    Leipziger Land
    Ich plane immer mit 40er Außenwänden. Das war zu meiner Bauzeit in etwa Standardmaß (36,5 + Putz). Der Endpreis hängt aber mehr vom umbauten Raum ab, als von der Dicke der Steine.

    Bevor Du Dich in das Konzept mit dem UG und Anschütten im Osten verbeißt, rate ich Dir dringend, mal möglichst genau die Höhen auszurechnen und die Kubikmeter Material, welche dafür nötig wären. Ich schätze mal drauf los, dass das bis zur Haustür dann noch so ca. 1m Höhenunterschied ist, den Du komplett anschütten willst. Inklusive Wege und Auffahrten - uiuiui. Mich würde es davor gruseln. Aber ich bin auch kein Hangmensch.
     
    11ant und hanghaus2000 gefällt das.
  4. #64 K a t j a, 11.12.2021
    K a t j a

    K a t j a

    Dabei seit:
    31.05.2019
    Beiträge:
    1.009
    Zustimmungen:
    582
    Ort:
    Leipziger Land
    A5.jpg A3.jpg A2.jpg A1.jpg hanghuhn3a-UG.jpg hanghuhn3a-EG.jpg

    Hab wieder ne richtige Hochterrasse / Balkon draus gemacht. Anschütten im Süden fände ich Käse. Außerdem kann man so das Fenster für das Kizi lassen. Ist zwar schattig, aber immerhin Südseite. Vielleicht kann man den Balkon noch etwas weniger tief machen, damit mehr Licht nach unten fällt.
     
    11ant, Gast 85175, hanghaus2000 und einer weiteren Person gefällt das.
  5. #65 hanghaus2000, 11.12.2021
    hanghaus2000

    hanghaus2000

    Dabei seit:
    24.11.2021
    Beiträge:
    1.480
    Zustimmungen:
    604
    Beruf:
    Bauleiter, Kalkulator, Controller, Salzdesign
    Ort:
    Bayern
    Super! Danke Danke @K a t j a :bef1003::bef1008:

    Morgen messe ich mal die Starssenhoehen im Norden aus. Die Auffuellung wird ca. 1 m hast Du gut geschaetzt. Aber ich hebe sicher mehr aus. Die Massenbilanz ist dann der naechste Schritt.
     
  6. #66 Kriminelle, 11.12.2021
    Kriminelle

    Kriminelle

    Dabei seit:
    16.05.2013
    Beiträge:
    3.597
    Zustimmungen:
    1.968
    Beruf:
    .
    Ort:
    Niedersachsen
    Das hab ich wohl verpasst oder überlesen: da wird doch jetzt nicht geplant, aus einem leichten Hang einen steilen Hang künstlich zu erschaffen???:yikes Ist Euch der Adventszucker zu Kopp gestiegen? :mauer
     
    hanghaus2000 und K a t j a gefällt das.
  7. #67 K a t j a, 12.12.2021
    K a t j a

    K a t j a

    Dabei seit:
    31.05.2019
    Beiträge:
    1.009
    Zustimmungen:
    582
    Ort:
    Leipziger Land
    Ja, sag ich doch:
    Wobei man sagen muss, dass gerade in der Nordost-ecke sowieso schon um die 15° sind, wenn ich das richtig im Kopf habe. Aber im Grunde macht er grob gesagt aus 2m Steigung 3m. Und das alles nur, um bei den anderen über die Dächer zu gucken. Ich kann's auch nicht verstehen. Viel eher würde man den Aushub doch nach Westen schaufeln, um den Garten zu begradigen. Okay, da muss man vermutlich auch wieder Stützen setzen, aber da kann man wenigstens mal die Decke ausbreiten und auf der Wiese liegen, ohne das man anfängt zu rutschen.
     
    hanghaus2000 und Kriminelle gefällt das.
  8. #68 Kriminelle, 12.12.2021
    Kriminelle

    Kriminelle

    Dabei seit:
    16.05.2013
    Beiträge:
    3.597
    Zustimmungen:
    1.968
    Beruf:
    .
    Ort:
    Niedersachsen
    Der TE ist männlich. Und Männer planen Garten höchstens in Fläche, um Fussi spielen zu können (Gesamtrasenfläche wird dann Garten genannt) oder gar nicht, wenn die Kinder aus dem Alter raus sind. Unser @hanghaus2000 plant keine Deckchen zum ausbreiten, da wird das Fleisch gegrillt und mehr nicht. Garten darf der Mieter bekommen. :28:
     
    Katja aus Sachsen, hanghaus2000 und simon84 gefällt das.
  9. #69 hanghaus2000, 12.12.2021
    Zuletzt bearbeitet: 12.12.2021
    hanghaus2000

    hanghaus2000

    Dabei seit:
    24.11.2021
    Beiträge:
    1.480
    Zustimmungen:
    604
    Beruf:
    Bauleiter, Kalkulator, Controller, Salzdesign
    Ort:
    Bayern
    Ich werfe hier nur mal ein, Das Modell von @K a t j a zeigt ja das es nicht wirklich ein Berg wird. Ich denke man muss das mit der Nachbarschaft im Osten betrachten. Der wird sein GS wie Ihr schon sagt im Westen so gut wie moeglich begradigen. Wegen der Garage im Osten wird das Haus ziemlich an meine Grenze gerueckt werden. Ergo wird der eine SM im Westen bauen wollen. Zum Glueck gibt es Hoehenbeschraenkungen fuer Auffuellungen. Ich habe mal eine Sinnvolle Stuetzmauer ermittelt mit einer OK von 530,5 Da ich mich aber nicht an dessen Kosten beteiligen will, werde ich dann nur auffuellen. Wie gesagt ich denke erst an die Kosten.;)

    @K a t j a zeichne doch mal bitte die SM des Nachbarn im Ost und das Gelaende sowie ein fiktives Haus, so wie im BBP, ein, dann siehst was ich meine.

    Ich mach mal paar Bilder wie das in der Nachbarschaft geloest wurde.
     
  10. #70 Katja aus Sachsen, 12.12.2021
    Katja aus Sachsen

    Katja aus Sachsen

    Dabei seit:
    30.05.2019
    Beiträge:
    10
    Zustimmungen:
    18
    Ja, ich fürchte - auch wenn wir hier abdriften, dass dieser Wunsch nach "ich bin der höchste und kann anderen auf die Köpfe spucken"-Bauart auch eher männlichen Ursprungs ist. Was Mann dabei vergisst ist, dass wenn man über den anderen thront, dort auch von allen weithin sichtbar ist. Vermutlich wird es daher nicht lange dauern, bis man den ach so wichtigen Ausblick mit Sichtschutzwänden verstellt, denn ein Baum oder Busch wird in absehbarer zeit dort keinen Sichtschutz bieten.

    Kennst Du den denn und hat der das gesagt? Ich finde, eine Stützmauer im Osten beim Nachbarn ändert rein gar nix an den Tatsachen für Dein GS.
    Der Lebensmittelpunkt des Hausbewohners ist naturgemäß die Terrasse im Garten. Ihr gebührt der beste Platz auf dem GS, sofern möglich. Einige Aspekte haben sich als vorteilhaft herausgestellt: einfacher Zugang aus den Wohnräumen heraus, Zugang zur Küche nicht zu weit entfernt, hell und sonnig (letzteres optimalerweise flexibel via Beschattung), geschützt vor Einblicken, zentral im GS und möglichst weit entfernt vom Nachbarn, Mindestgröße, so dass man bequem einen Tisch mit Stühlen aufstellen kann. Vielleicht gibt es ja noch mehr, aber das wären die, die mir auf Anhieb einfallen.
    Wo ist Dein Lebensmittelpunkt auf Deinem GS? Am Zaun neben dem östlichem Nachbarn, der dort möglicherweise eine Mauer bauen wird? Also meine Wahl wäre das nicht. Okay, Dein GS ist nicht so groß, dass Du eine galaktische Auswahl hättest. Aber vielleicht solltest Du nochmal über den Aspekt nachdenken.
     
    11ant gefällt das.
  11. #71 Katja aus Sachsen, 12.12.2021
    Katja aus Sachsen

    Katja aus Sachsen

    Dabei seit:
    30.05.2019
    Beiträge:
    10
    Zustimmungen:
    18
    Das zeigt es nicht. Gerade die Geländemodelierung kann das Programm nur sehr schlecht wieder geben. Ich habe versucht, die Anschüttung im Block als Terrassenanschluss darzustellen. Vielleicht mangelt es hier an Vorstellungskraft aber da steht dann eine wenig attraktive Wand und der Platz unter dem Balkon (welcher der eigentliche zentrale und schönste Platz im Garten wäre) wird deutlich unattraktiv.

    wand.jpg
     
    11ant gefällt das.
  12. #72 Katja aus Sachsen, 12.12.2021
    Katja aus Sachsen

    Katja aus Sachsen

    Dabei seit:
    30.05.2019
    Beiträge:
    10
    Zustimmungen:
    18
    Um das mal ganz banal zu sagen: An Deiner Stelle würde ich ein kleines Stino Standardhäußchen bauen - Wohnen unten, Schlafen oben - angepasst an den Hang. Zugang vermutlich Norden oder Osten, keine ELW - braucht kein Mensch. Dafür lieber eine schöne Gartenterrasse -vielleicht mit Glasüberdachung und Markise - eingekuschelt im Grünen.
     
  13. #73 Katja aus Sachsen, 12.12.2021
    Katja aus Sachsen

    Katja aus Sachsen

    Dabei seit:
    30.05.2019
    Beiträge:
    10
    Zustimmungen:
    18
    OT: ha, bin am alten Rechner - da ist noch das Autologin vom alten Account aktiv. Witzig.
     
    11ant gefällt das.
  14. #74 hanghaus2000, 12.12.2021
    hanghaus2000

    hanghaus2000

    Dabei seit:
    24.11.2021
    Beiträge:
    1.480
    Zustimmungen:
    604
    Beruf:
    Bauleiter, Kalkulator, Controller, Salzdesign
    Ort:
    Bayern
    Ich arbeite gerade an einer neuen Idee die einige Deiner Bedenken und Vorschlaege beruecksichtigt. Sichtschutz ist nicht notwendig, da nur vom Osten einsehbar ist, Ansonsten ist der Freisitz im SW weit genug von der GS Grenze weg, Die oben liegende Terrasse hoch genug. Der Plan vom GS folgt in Kuerze.
     
  15. #75 hanghaus2000, 12.12.2021
    hanghaus2000

    hanghaus2000

    Dabei seit:
    24.11.2021
    Beiträge:
    1.480
    Zustimmungen:
    604
    Beruf:
    Bauleiter, Kalkulator, Controller, Salzdesign
    Ort:
    Bayern
    Grundstueck.JPG

    Der Freisitz mit unten liegenden Garten hat das Niveau wie das UG. Die Fenster des UG gehen Richtung Westen. Die eingezeichneten SW sind max. 1.5 m hoch. Um CP und Abstelle kommen L Steine max 1 m hoch.
     
  16. #76 K a t j a, 12.12.2021
    K a t j a

    K a t j a

    Dabei seit:
    31.05.2019
    Beiträge:
    1.009
    Zustimmungen:
    582
    Ort:
    Leipziger Land
    Versteh ich leider nicht. Die erhöhte Terrasse kann man doch ganz wunderbar von der Straße sehen.
     
  17. #77 K a t j a, 12.12.2021
    K a t j a

    K a t j a

    Dabei seit:
    31.05.2019
    Beiträge:
    1.009
    Zustimmungen:
    582
    Ort:
    Leipziger Land
    Hier fehlt mir jetzt leider die Vorstellungskraft.
     
  18. #78 hanghaus2000, 12.12.2021
    hanghaus2000

    hanghaus2000

    Dabei seit:
    24.11.2021
    Beiträge:
    1.480
    Zustimmungen:
    604
    Beruf:
    Bauleiter, Kalkulator, Controller, Salzdesign
    Ort:
    Bayern
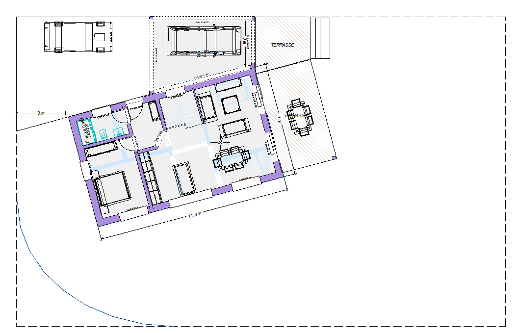
    Nun noch die Grundrisse

    IMG_20211212_132618_resized_20211212_012646824.jpg
     
  19. #79 hanghaus2000, 12.12.2021
    hanghaus2000

    hanghaus2000

    Dabei seit:
    24.11.2021
    Beiträge:
    1.480
    Zustimmungen:
    604
    Beruf:
    Bauleiter, Kalkulator, Controller, Salzdesign
    Ort:
    Bayern
    Ueber die Bruestung / Gelaender wohl eher nicht.
     
  20. #80 hanghaus2000, 12.12.2021
    hanghaus2000

    hanghaus2000

    Dabei seit:
    24.11.2021
    Beiträge:
    1.480
    Zustimmungen:
    604
    Beruf:
    Bauleiter, Kalkulator, Controller, Salzdesign
    Ort:
    Bayern
    Wenn ich die Ansichten skizziere wird das schon. Der Freisitz hat die gleiche Hoehe wie das UG und befindet sich unter der Terrasse.
     
Thema:

Kleines Haus am Hang 7*12,5m

Die Seite wird geladen...

Kleines Haus am Hang 7*12,5m - Ähnliche Themen

  1. kleines altes Haus (ca. 1939) auf Felsen am Hang kaufen ?

    kleines altes Haus (ca. 1939) auf Felsen am Hang kaufen ?: Hallo, beabsichtige, kleines altes Haus (ca. 1939) auf Felsen am Hang zu kaufen. Ordentliche Dränage, bis ganz tief runter fehlt, so dass die...
  2. 2 kleinere Häuser auf gut 1000qm?

    2 kleinere Häuser auf gut 1000qm?: Hallo zusammen, ich habe mich neu in diesem Forum angemeldet, weil mich derzeit eine Frage umtreibt. Da es im Netz eine Fülle an Vorschriften und...
  3. Kleine Häuser

    Kleine Häuser: Jetzt wollte ich was zu @Minihaus schreiben und sehe, dass keine weiteren Antworten möglich sind. Wie ist der momentane Stand? Neu bauen oder doch...
  4. Grundriss Ideen für klein haus 120 m² Ihre Meinung bitte.

    Grundriss Ideen für klein haus 120 m² Ihre Meinung bitte.: Hallo liebes Forum, ich und meine Frau versucht unser kleines EFH zu planen. Das Haus will in EFH 1.5 Schrägdach mit 45 Grad Dach und ca. 120 qm...
  5. Haus kleiner bauen und dafür höher

    Haus kleiner bauen und dafür höher: Hallo, bei uns ist § 34 BauGB gültig, sodass wir per Bauvoranfragen zu klären hatten, was gebaut werden kann, bzw. sich hinsichtlich der...