Konstruktive Kritik zu unserem Grundriss erwünscht

Diskutiere Konstruktive Kritik zu unserem Grundriss erwünscht im Architektur Allgemein Forum im Bereich Architektur; Die Ecke eignet sich hervorragend, um gegen den Kamin zu laufen. ;) Schlechte Augen? ;) Im ernst. Wir finden die Position des Kamins gut. Schön...

  1. #61 neo0711, 01.08.2013
    neo0711

    neo0711

    Dabei seit:
    25.07.2012
    Beiträge:
    60
    Zustimmungen:
    0
    Beruf:
    Ing.
    Ort:
    Rheinland-Pfalz
    Schlechte Augen? ;)

    Im ernst. Wir finden die Position des Kamins gut.
    Schön zentral. So kann sich die wohlige Wärme im Essberiech und Wohnbereich verteilen und ggf. kann bei Überhitzung (soll ja bei gut gedämmten Häusern mit Kamin vorkommen) die Tür zum Flur geöffnet werden. Durch den Garten funktioniert auch der Nachschub mit Holz gut.
    Ausreichend Platz zwischen Esstisch (dieser wird im Alltag eher an der "unteren" Wand stehen) und Kamin, um es sich ggf mit einem Sessel / Hocker und einem Buch vor dem Kamin gemütlich zu machen.
    Zugegeben man sitzt zum Teil im Durchgangsbereich, aber "einen Tod muss man sterben".

    Gruß neo
     
  2. #62 Gast036816, 01.08.2013
    Gast036816

    Gast036816 Gast

    beim hausbau sollte nix sterben, das ist nur der schlechte kompromiss. die grundrisse sind nicht besser geworden.
     
  3. #63 neo0711, 05.08.2013
    neo0711

    neo0711

    Dabei seit:
    25.07.2012
    Beiträge:
    60
    Zustimmungen:
    0
    Beruf:
    Ing.
    Ort:
    Rheinland-Pfalz
    Nach reichlichem Überlegen am WE sind wir zu dem Entschluss gekommen, dass der Grundriss für uns soweit passt.
    Die Fenstersituation im WoZi werden wir noch änderen.

    Bleibt die Frage nach der Dachform.
    Momentan tendieren wir zum Satteldach. Es sieht einfach ruhiger aus.
    Das vers. Pultdach gefällt uns auch gut, aber wir haben die Befürchtung, dass man sich nach kurzer Zeit daran "sattsieht".

    Wie ist die Dachneigung von 20° technisch zu beurteilen?
    Wir wollen später evtl. Solarthermie oder Photovoltaik nutzen.

    Von der Fassadengestaltung möchten wir eine Kombi aus Putz; Stülpschalung (Lärche) und evtl. Schiefer.
    Sowas gefällt uns ganz gut.
    Holz_Weiß_Schwarz_Flach.jpg Holz_Weiß_Schwarz_Pult.JPG

    Ich freue mich schon auf eure Kommentare :-)

    Gruß, neo
     
  4. #64 Mikalaya, 05.08.2013
    Mikalaya

    Mikalaya

    Dabei seit:
    10.03.2012
    Beiträge:
    635
    Zustimmungen:
    0
    Beruf:
    Dipl.Kffr.
    Ort:
    Hannover
    :bef1003:

    @Fassade, das finde ich richtig schwierig, weil so vieles einfach nicht ausschaut.. lass Dir Varianten von deinem Haus vom Archi zeichnen.
    Mach's nicht zu bunt, das kann mit 3 Fassadenmaterialien gut aussehen, aber nur, wenn es auch zum Haus passt.
    Bei uns passte es z.B. nicht, da das Haus einfach zu "unverwinkelt" ist und 3 Farben aussähen wie gewollt und nicht gekonnt ;)
    Daher bekommen wir Putz und Holz.
    Die Nachbarn haben das gleiche Problem und sind bei Putz und dunklen Platten zu dunklen Dachziegeln und dunklen Fenstern gelandet, das sieht auch sehr edel aus.
    Bei Eurem Entwurf kann ich mir 3 Farben nicht so recht als gut vorstellen, ich denke, es würde wieder zu unruhig.
    Aber da zeig mal die Entwürfe :)
     
  5. #65 tillfisc, 06.08.2013
    tillfisc

    tillfisc

    Dabei seit:
    19.09.2012
    Beiträge:
    368
    Zustimmungen:
    3
    Beruf:
    Architekt
    Ort:
    Rottweil
    Zur Fassade:
    Ich würde aufpassen, dass es nicht zu wild wird.

    In den Fotos sieht man starke Kontraste in Farbe, Helligkeit und Textur der Materialien - für mein Gefühl too much.

    Ich habe neulich ein schönes Beispiel gesehen, bei dem der Putz und die Holzschalung annähernd die gleiche Farbe hatten, das hat dann die Unterschiede in der Materialität, Haptik besser betont, als wenn es noch ein Farbkontrast gegeben hätte.
     
  6. milkie

    milkie

    Dabei seit:
    08.03.2013
    Beiträge:
    210
    Zustimmungen:
    0
    Beruf:
    Reiseverkehrskauffrau
    Ort:
    Eppingen
    Das 2. Haus gefällt mir wesentlich besser. An dem andern hätte ich mich schnell satt gesehen. Und da ihr nicht so eine unterschiedliche Kubatur habt würde ich da sowieso nicht so viel machen.
     
  7. #67 neo0711, 05.09.2013
    neo0711

    neo0711

    Dabei seit:
    25.07.2012
    Beiträge:
    60
    Zustimmungen:
    0
    Beruf:
    Ing.
    Ort:
    Rheinland-Pfalz
    Hallo,

    nach längerer Abwesenheit geht es weiter mit unserer der Hausplanung.

    Was inzwischen passiert ist:
    • Wir haben uns soweit auf ein Satteldach mit 22° Dachneigung festgelegt.
    • Insbesondere im Wohnzimmer gab es bei den Fenstern einige Anpassungen. Das Wohnzimmer ist durch mehr Fenster jetzt heller.
    • Die Deckenhöhe wurde im EG auf 2,70m festgelegt.
    • Kniestock wurde mehrfach angepasst.

    Bis auf ein paar kleine Anpassungen haben wir uns nun beim Grundriss festgelegt.

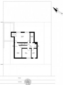
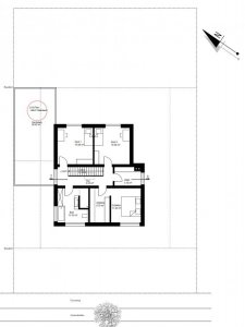
    Grundrisse:

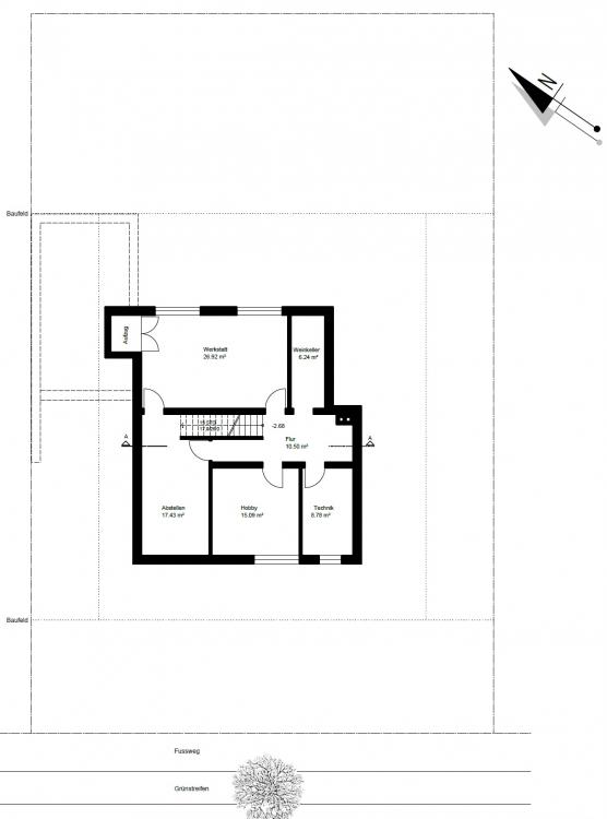
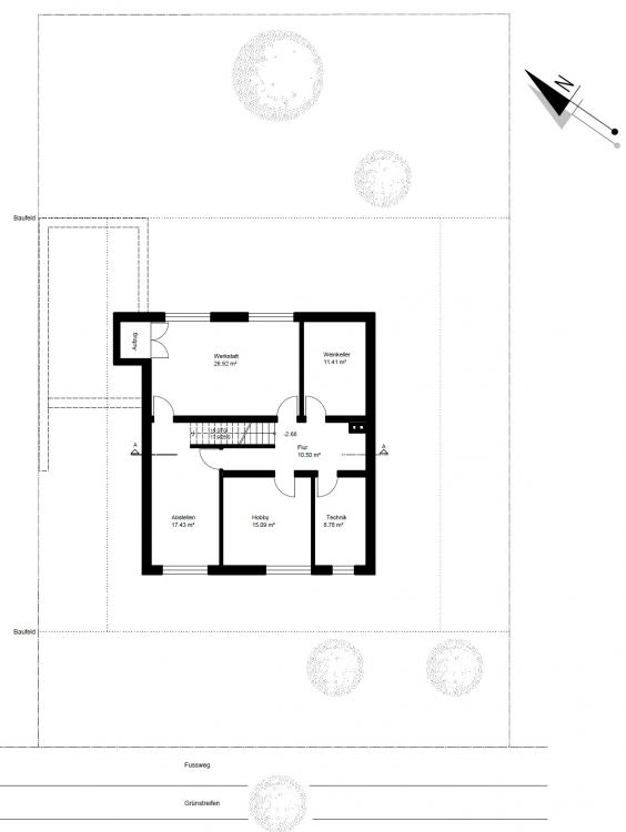
    KG:
    KG.jpg
    EG:
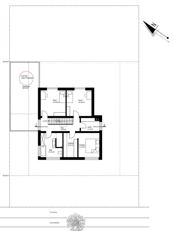
    EG.jpg
    DG:
    DG.jpg

    Schnitt:
    Schnitt.jpg

    Jetzt möchte ich insbesondere die Fassadengestaltung und Fenstergrößen / -formate / -anordnung möchte mit euch diskutieren.

    ... siehe folgender Eintrag
     
  8. #68 neo0711, 05.09.2013
    neo0711

    neo0711

    Dabei seit:
    25.07.2012
    Beiträge:
    60
    Zustimmungen:
    0
    Beruf:
    Ing.
    Ort:
    Rheinland-Pfalz
    Jetzt möchte ich insbesondere die Fassadengestaltung und Fenstergrößen / -formate / -anordnung möchte mit euch diskutieren.

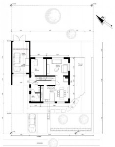
    Als Vorlage soll folgende Musterhaus, dass uns sehr gut gefallen hat dienen:

    BW.jpg

    Erste Entwürfe:

    Fassade A:
    Fassade A.jpg
    Fassade A-1.jpg

    Fassade B:
    Fassade B.jpg
    Fassade B-1.jpg

    Wir freuen uns schn auf eure Meinungen.

    Bis dann, neo
     
  9. #69 Gast036816, 06.09.2013
    Gast036816

    Gast036816 Gast

    das wohnzimmer ist für mich immer noch zu klein. wenn du so möblierst, wie dargestellt, wirst noch nicht einmal bequem rein kommen, entweder bleibst du an der wandecke hängen oder stolperst über das sofa.

    die fenster der Kinderzimmer sind nicht praktisch und auch nicht geeignet für ein Kind. gelten brüstungs- und fensterhöhe für die kinder auch wie im schnitt? sturzhöhe unter 1,95 m über fussboden, da zieh noch mal mindestens 12 cm für rahmen und flügel ab, dann liegt die obere ausblickbegrenzung fast in augenhöhe. mein sohn würde im stehen immer gegen den fensterrahmen schauen. auch wenn es schick aussieht, es ist weder praktisch noch funktional gerechtfertigt.
     
  10. #70 neo0711, 06.09.2013
    neo0711

    neo0711

    Dabei seit:
    25.07.2012
    Beiträge:
    60
    Zustimmungen:
    0
    Beruf:
    Ing.
    Ort:
    Rheinland-Pfalz
    Die Wohnzimmergröße "spukt" auch noch in meinem Kopf rum. Meine Frau meint, dass sei Quatsch und das Wohnzimmer sei groß genug.
    Man muss dazu sagen, dass es sich hier um Sofas mit Klappfunktion handelt, die nur selten genutzt wird, d.h in der Regel hat das rechte Sofa die Größe bis zur gestrichelten Linie. Und man kann die Sofas Eck auf Eck stellen.
    Und dann hat man einen Durchgang von mehr als einem einem Meter. Das sollte funktionieren.
    Derzeit stehen die Sofas in einem Raum mit ca. 12qm Grundfläche. Da ists aber eng.
    Aber es stimmt schon, 2-3qm mehr würden dem Wohnzimmer gut tun.
    Da ich das Büro nicht noch kleiner machen möchte, würde dies bedeuten, die Grundfläche des Hauses zu vergrößeren, was wir eigentlich vermeiden wollen.
    Ideen?

    Wie ist eure Meinung zum 210cm breiten Flur?
    Die Treppe hat ca.1m Breite und die Absturzsicherung soll als Glaswand, die gleichzeitig auch im OG als Sicherung dient ausgeführt werden.
    Reicht das, oder wirds zu eng?

    Bei den Fenstern sind wir noch in der Findungsphase.
    Die Fenster an den Giebelseiten sollen höher sein, als die auf den Firstseiten, da haben wir noch etwas Platz nach oben.

    Meinungen zur Fassade?
     
  11. LaZi

    LaZi

    Dabei seit:
    27.01.2011
    Beiträge:
    559
    Zustimmungen:
    0
    Beruf:
    Tanztrainerin
    Ort:
    Niedersachsen
    Fassade:
    B gefällt mir nicht - der Oberteil wirkt auf mich zu wuchtig.
    A : Idee finde ich nicht schlecht, würde den grauen Streifen aber weiter unterhalb der Fenster ziehen.

    WZ:
    Warum ist diese Ecke rausgeschnitten? Ich würde die Aussenwand in die Linie von Essbereich bauen. Man hat mehr Platz im WZ und der KiZi drüber würde es auch gut tun.
     
  12. #72 Ameisenwalzer, 06.09.2013
    Ameisenwalzer

    Ameisenwalzer

    Dabei seit:
    27.11.2011
    Beiträge:
    114
    Zustimmungen:
    0
    Beruf:
    Projektleiterin
    Ort:
    Hessenland
    Dreh doch die Möblierung einfach um 90 grad nach links. Dann können beide in den Garten / auf den kamin schauen, der Zugang ist viel offener und keiner hat ein fenster im Rücken. Die fernsehwand an der Treppe würde ich dann jedoch nur mit einem niedrigen Board bestücken, damit es nicht drückt.
     
  13. HelgeK

    HelgeK

    Dabei seit:
    21.02.2005
    Beiträge:
    253
    Zustimmungen:
    0
    Beruf:
    Angestellter
    Ort:
    Hamburg-Finkenwerder
    Das Wohnzimmer ist IMHO verschlimmbessert worden. Mit dem Rücken zum Fenster sitzen und aufs Bücherregal gucken wäre nicht mein Ding. Ich fand die Lösung vorher mit dem Eck-Fenster in diesem Fall gar nicht schlecht.

    Die Position des Kamins kann ich nicht nachvollziehen. Trotz der zentralen Lage ist er von den Sitzmöbeln im Wohnzimmer aus praktisch nicht zu sehen.
     
  14. #74 neo0711, 10.09.2013
    neo0711

    neo0711

    Dabei seit:
    25.07.2012
    Beiträge:
    60
    Zustimmungen:
    0
    Beruf:
    Ing.
    Ort:
    Rheinland-Pfalz
    Danke für die Rückmeldungen.
    Insbesondere an "rolf a i b", der mit seiner Kritik oft ins Schwarze trifft.

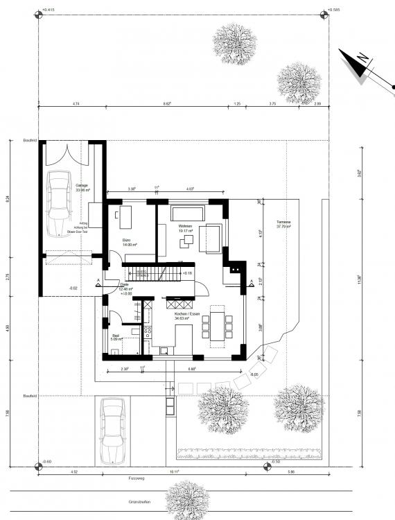
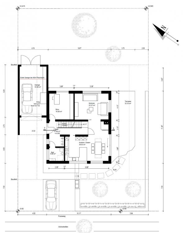
    Wohnzimmer:
    Wir überlegen, den Versatz im Wohnzimmer wegzulassen, d.h. die Esszimmerwand geht gerade durch und das Haus ist dann rechteckig (Grundfläche: 11,36 x 10,11m; ca. 115qm).
    Dies wurde von diversen Leuten, z.B. Ralf Dühlmeyer, hier im Forum auch schon empfohlen; aber manchmal dauert es halt länger, bis die Erkenntnis kommt.

    Vorteil: Das Wohnzimmer wird ca. 5qm größer (5,88 x 4,13m; ca. 24,3qm). Wobei wir überlegen, dann die Wand zwischen Büro und Wohnzimmer des Büros um ca. 0,5m zu Gunsten des Büros zu verschieben, was dem Raum sicher gut tut (3,88 x 4,13; ca. 16qm). Dadurch hätte das Wohnzimmer letztendlich die Maße 5,38 x 4,13m; ca. 22,2qm).

    Nachteil: Das Haus wird ca. 40cbm größer und damit auch ca. 15K teurer.

    Die Vergrößerung bietet neue Möglichkeiten insbesondere in der Möblierung des Wohnzimmers und in der Positionierung des Kamins.
    Positiver Nebeneffekt im OG: Die Kinderzimmer werden noch größer (dann ca. 20qm pro Kind; "wow, die hätte ich auch gerne gehabt").

    Fenster:
    Im OG überlegen wir derzeit folgende Fensterformate:
    Giebelseite (betrifft Bad; Eltern; Kind 1 und Kind 2): Brüstung ca. 50cm; unterer Teil des Fensters (ca. 50cm) feststehend; Fenster bis max. Höhe: ca. 220cm (?)
    Traufseite (Betrifft alle Räume + Flur im OG): Fenster, wie im Schnitt gezeichnet; Brüstung: 107cm; Fenster bis max. Höhe: 195cm; außer Flurfenster, hier Brüstung ca. 50cm; unterer Teil des Fensters (ca. 50cm) feststehend; Fenster bis max. Höhe: 195cm

    Die nächsten Entwürfe sind in Arbeit.

    Bis dahin freuen wir uns über Eure Rückmeldungen.

    Gruß, neo
     
  15. #75 Gerd122, 10.09.2013
    Gerd122

    Gerd122

    Dabei seit:
    30.04.2012
    Beiträge:
    64
    Zustimmungen:
    0
    Beruf:
    IT-Kaufmann
    Ort:
    Bad Oeynhausen
    wieso wird das Haus zwangsläufig teurer? Rechteckig ist doch einfacher und vll. auch günstiger zu bauen. Außenwandanteil bleibt nahezu gleich, ein wenig mehr FBH und Estrich machen sicherlich auch nicht das Gro aus. Oder irre ich mich da so sehr?

    Gruß
     
  16. #76 neo0711, 10.09.2013
    neo0711

    neo0711

    Dabei seit:
    25.07.2012
    Beiträge:
    60
    Zustimmungen:
    0
    Beruf:
    Ing.
    Ort:
    Rheinland-Pfalz
    Aktuell richte ich mich noch nach der Baukostenvorschau des Architekten. Und diese richtet sich nach dem "Umbauten Raum".
    Bei dem neuen Entwurf beträgt dieser halt 40cbm mehr.
    Inwieweit die Änderung tatsächlich zu Mehrkosten führt kann ich nicht beurteilen.
    Würde mich natürlich freuen, wenn die Mehrkosten keine (40 x 340 EUR = 13.600 EUR) betragen würde.

    Nebenfrage: Sind die 340 EUR bei dem Hausentwurf eurer Meinung nach angemessen?

    Gruß. Neo
     
  17. moser7

    moser7

    Dabei seit:
    28.05.2013
    Beiträge:
    244
    Zustimmungen:
    0
    Beruf:
    Elektromeister
    Ort:
    Alpengrenze
    Mahlzeit,
    Scheint ja ein gu zu sein gus*sek? Hab jetzt nicht den ganzen Beitrag gelesen.
    Unser Architekt nimmt 384eur brutto je cbm an, grob passt es also.

    Gruß
    Benjamin
     
  18. #78 Pruefhammer, 10.09.2013
    Pruefhammer

    Pruefhammer

    Dabei seit:
    26.07.2011
    Beiträge:
    1.311
    Zustimmungen:
    3
    Beruf:
    techn. Angestellter
    Ort:
    Düren
    Die Kosten pro cbm umbauter Raum sind sicher nicht linear, man muss das eigentlich in mindestens zwei Anteile zerlegen, einmal die Grundkosten, die auch entstehen wenn es eine Hundehütte wird, also z.B. Baustelleneinrichtung, Versorgungsanschlüsse, Bad, WC, usw. Und dann einen Flächen bzw. Raumabhängigen Teil, der erfasst dann die Kosten für Wandflächen, Decken, Estrich, Bodenbelag und Malerarbeiten.
     
  19. #79 neo0711, 13.09.2013
    neo0711

    neo0711

    Dabei seit:
    25.07.2012
    Beiträge:
    60
    Zustimmungen:
    0
    Beruf:
    Ing.
    Ort:
    Rheinland-Pfalz
    Es gibt Neuigkeiten:

    Anbei die Pläne ohne Versatz.
    Die Entwürfe gefallen uns tatsächlich deutlich besser.

    KG:
    Der Weinkeller wird deutlich größer ;-)
    KG.jpg
    EG:
    Das Wohnzimmer ist jetzt größer und vor allem besser "erschlossen".
    Der Kamin wird voraussichtlich nicht als Eckkamin ausgeführt, sondern kommt "flach" an die Wand.
    EG.jpg
    DG:
    Die Kinderzimmer sind jetzt wirklich groß.
    DG.jpg

    Schnitt:
    Schnitt.jpg

    Fassadenansichten folgen ...

    Gruß, neo
     
  20. #80 neo0711, 13.09.2013
    neo0711

    neo0711

    Dabei seit:
    25.07.2012
    Beiträge:
    60
    Zustimmungen:
    0
    Beruf:
    Ing.
    Ort:
    Rheinland-Pfalz
Thema: Konstruktive Kritik zu unserem Grundriss erwünscht
Besucher kamen mit folgenden Suchen
  1. dachformen versetztes satteldach

    ,
  2. Konstruktion pultdachhaus

    ,
  3. 2-hüftige pultdächer

    ,
  4. satteldach versetzter first,
  5. schiefes pultdach,
  6. satteldach mit unterschiedlichen dachneigungen,
  7. schnitt versetztem pultdach,
  8. satteldach geringe neigung
Die Seite wird geladen...

Konstruktive Kritik zu unserem Grundriss erwünscht - Ähnliche Themen

  1. EFH Grundriss konstruktiv Kritik

    EFH Grundriss konstruktiv Kritik: hallo alle zusammen, Wir haben ein Grundstück in Aussicht mit leichter Südhanglage in einem ruhigen Wohngebiet (Sackgasse). Richtung Norden ist...
  2. Grundriss Efh Bauhausstil, konstruktive Kritik und Anregungen erwünscht

    Grundriss Efh Bauhausstil, konstruktive Kritik und Anregungen erwünscht: Hallo zusammen, wir haben uns zum Bau eines EFH im Bauhausstil entschieden. Wir sind ein vier Personen Haushalt. Offener Grundriss im EG....
  3. konstruktive Kritik Grundriss Gästebad

    konstruktive Kritik Grundriss Gästebad: Hallo, villeicht hat noch jemand Ideen bzw. Verbesserungsvorschläge zu unserem Bad (Gästebad im EG). Der schlauchförmige Grundriss hat ca...
  4. Und noch jemand mit einem Grundriss mit der Bitte um konstruktive Kritik

    Und noch jemand mit einem Grundriss mit der Bitte um konstruktive Kritik: Hallo, Wir sind gerade in der finalen Planung unseres Hauses. Hier bekommt ihr unsere Grundriss für EG und OG. Zusätzlich wird es noch einen...
  5. Grundriss bungalow - Grundriss Entwurf - konstruktiv Kritik

    Grundriss bungalow - Grundriss Entwurf - konstruktiv Kritik: Hallo Community, bitte könnt ihr mal drüberschauen und uns eure Meinungen dazu mitteilen. Zum Haus: - Flachdach (Baumeister oder Fertigteil...