Letzte Tipps bevor es zu spät ist...

Diskutiere Letzte Tipps bevor es zu spät ist... im Architektur Allgemein Forum im Bereich Architektur; Hallo Bauexperten, falls ihr den einen oder anderen Tipp für mich habt, wäre ich sehr dankbar. Noch kurze Zeit habe ich die Möglichkeit...

  1. EAbaut

    EAbaut

    Dabei seit:
    09.01.2020
    Beiträge:
    7
    Zustimmungen:
    0
    Hallo Bauexperten,

    falls ihr den einen oder anderen Tipp für mich habt, wäre ich sehr dankbar.
    Noch kurze Zeit habe ich die Möglichkeit Änderungen vorzunehmen.

    MfG
     

    Anhänge:

  2. Yilmaz

    Yilmaz

    Dabei seit:
    28.03.2006
    Beiträge:
    7.263
    Zustimmungen:
    1.296
    Beruf:
    Maurer & Betonbaumeister
    Ort:
    Delbrück/Westfalen
    Benutzertitelzusatz:
    Maurer-und Betonbauermeister
    EG
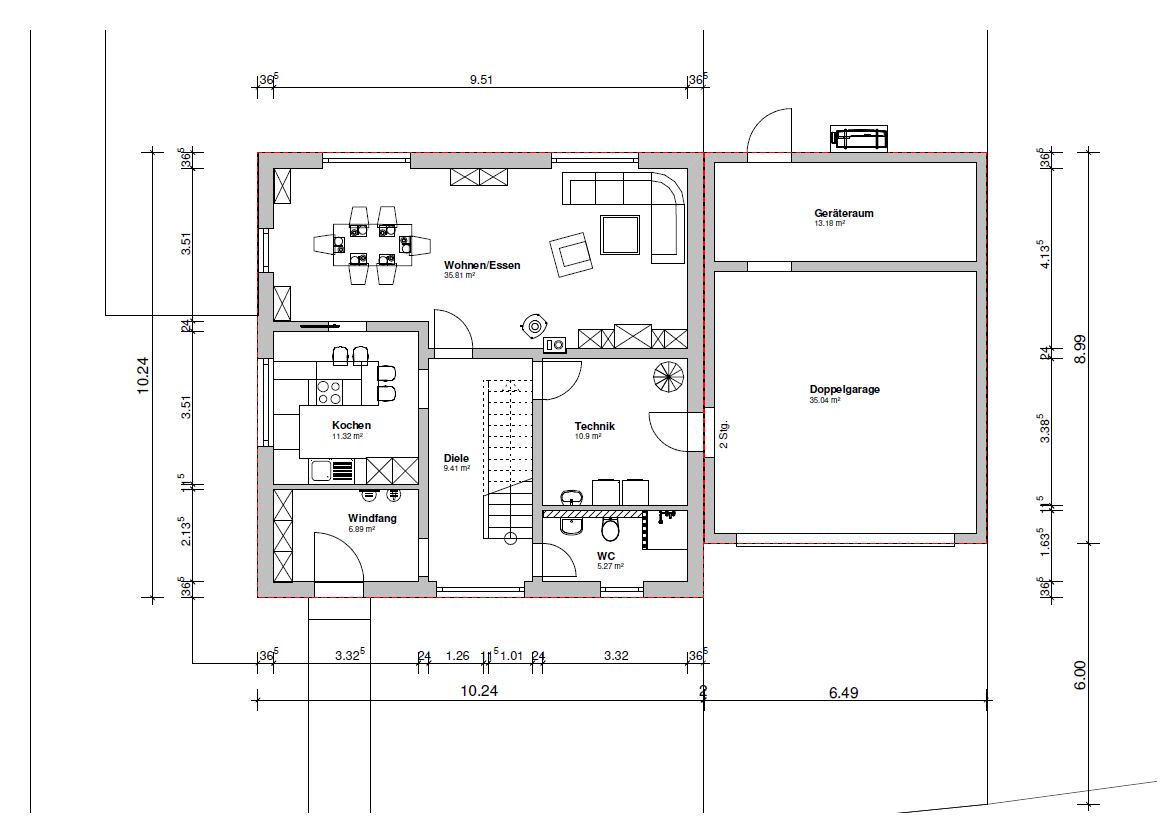
    Wand zwischen Flur/WZ weglassen
    Wand zwischen küche/WZ weglassen
    Büro unten statt Windfang

    OG
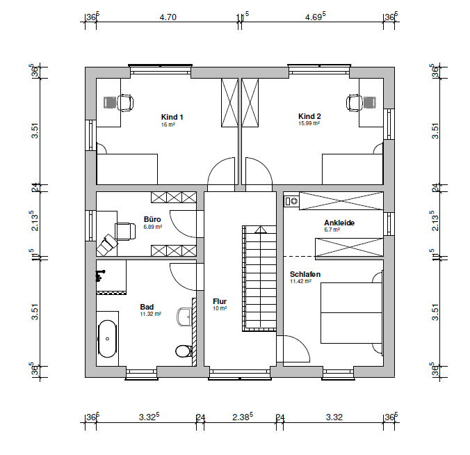
    Eltern/ Garderobe alles Rechts einordnen
    Kind 1 und 2 sowie Bad links
     
  3. Yilmaz

    Yilmaz

    Dabei seit:
    28.03.2006
    Beiträge:
    7.263
    Zustimmungen:
    1.296
    Beruf:
    Maurer & Betonbaumeister
    Ort:
    Delbrück/Westfalen
    Benutzertitelzusatz:
    Maurer-und Betonbauermeister
    Wollen Sie nach dem Einkauf die sachen durch 3 Türen in die Küche schleppen?
     
  4. #4 Fabian Weber, 07.03.2020
    Fabian Weber

    Fabian Weber

    Dabei seit:
    03.04.2018
    Beiträge:
    16.331
    Zustimmungen:
    6.489
    Den Seiteneingang finde ich bescheuert,

    Die Küche würde ich offen zum Wohnzimmer machen.

    Den Technikraum kleiner.

    Den Kamin an die Außenwand.
     
  5. SvenvH

    SvenvH
    Moderator

    Dabei seit:
    22.11.2019
    Beiträge:
    4.170
    Zustimmungen:
    1.584
    Da hat sich ja noch garnichts geändert. Der Grundriss hat doch schonmal eine ewige Diskussion erzeugt.
     
  6. #6 Wilma66, 07.03.2020
    Wilma66

    Wilma66

    Dabei seit:
    31.05.2019
    Beiträge:
    105
    Zustimmungen:
    25
    Wurde die Küche schon geplant? Wenn sie so wird, wie eingezeichnet, sind doch die Eingänge von Stühlen blockiert.
    Ankleide und Bett tauschen, damit man sich nicht stört.
     
  7. EAbaut

    EAbaut

    Dabei seit:
    09.01.2020
    Beiträge:
    7
    Zustimmungen:
    0
    Danke schon mal für die Tipps und Anmerkungen. Ein paar Punkte möchte ich aufgreifen.

    --> Windfang: Wir wohnen jetzt in einem Haus in dem es keinen Windfang gibt. Die Treppe befindet sich direkt neben der Hauseingangstür. Das gefällt uns überhaupt nicht. Viele Grundrisse (Stadtvilla) haben heute keinen Windfang/Garderobe. Wir wollen einen räumlich getrennten Eingangsbereich zum Ausziehen der Schuhe und Jacken. Aber ich weiß, dass die meisten eher den Raumverlust als größeres Argument ansehen.

    --> Offene/geschlossene Küche: Ist eine Überlegung Wert die (doch etwas kleine) Küche zu öffnen auch wenn wir die geschlossene Küche bevorzugen.

    --> Schornstein: Ich finde die Position nicht optimal und überlege noch wie ich es vermeiden kann, im Wohnzimmer den Vorsprung zu haben.

    --> Bodentiefe Fenster bei Diele und WC im EG. Gibt es hierzu Meinungen? In den Räumen sind Bodentiefe Fenster nicht wirklich erforderlich. Es ist eher die Optik.
     
  8. #8 vollmond, 07.03.2020
    vollmond

    vollmond

    Dabei seit:
    18.12.2012
    Beiträge:
    925
    Zustimmungen:
    134
    Beruf:
    PL
    Ort:
    Würzburg
    Büro in den Windfang. Gaderobe in den Technikraum.
    Wir benutzen die Haustüre zum Müll rausbringen und zum Empfang von Gästen.
    Wir gehen fast ausschließlich durch die Garage....

    Im OG rechts Schlafen Ankleide Bad mit einer Türe in den Flur.
    Links 2x Kinder + Duschbad für die Kinder

    Im WOZI Couch an die Innenwand, Frenseher an die Außenwand.

    Durchreiche verbreitern mit min. 40cm breite Abstellfläche. Evtl. Küchentisch an die Durchreiche.
    Wir haben beim Essen die Töpfe auf die Durchreiche stehen...
     
  9. #9 driver55, 08.03.2020
    driver55

    driver55

    Dabei seit:
    22.02.2008
    Beiträge:
    6.898
    Zustimmungen:
    1.809
    Beruf:
    Dipl.-Ing.
    Ort:
    Pforzheim
    Nur, weil man einen Plan 8 Wochen ruhen lässt, wird er dadurch nicht besser!
    • Das „Ding“ funktioniert doch schon auf dem Papier nicht. Eingang/Gard/Flur/ Küche, Platzverschwendung und lange enge Wege. (Wie soll man an diesen vier Hocker überhaupt vorbeikommen....)
    • Wohnen/Essen/Küche zum Rest: 47 qm zu 42 qm.
    • Garderobe in der falschen Ecke
    • Ankleide / Schlafen tauschen...
    • ....
    Wurde von den Vorrednern eigentlich schon alles erwähnt....

    ...und noch so einige Punkte mehr. Das interessiert den TE aber ohnehin nicht wirklich...:cool:....a) geht er nicht wirklich darauf ein und b) morgen darf die letzte Wand um 3 cm verschoben werden und c) am Dienstag ist Abgabe / Bestätigung des Plans.
     
    simon84 gefällt das.
  10. #10 Kriminelle, 08.03.2020
    Kriminelle

    Kriminelle

    Dabei seit:
    16.05.2013
    Beiträge:
    3.747
    Zustimmungen:
    2.072
    Beruf:
    .
    Ort:
    Niedersachsen
    Finde ich auch: mindestens die Schiebetür so versetzen, dass man nicht um die Insel muss. Verstehe nicht, warum man Türen mittig setzt, wenn das idiotisch vom Ablauf ist oder dann Stellfläche für eine Kommode fehlt.
    Ohne Ausrichtung und Lageplan kann man wohl wenig sagen.

    SZ würde ich nicht als Durchgangszimmer machen, eher die Ankleide.
     
  11. EAbaut

    EAbaut

    Dabei seit:
    09.01.2020
    Beiträge:
    7
    Zustimmungen:
    0
    Hallo Zusammen,

    nochmal großes Dankeschön an Eure Tipps.

    Ich kann die Tipps nicht so schnell umsetzen.
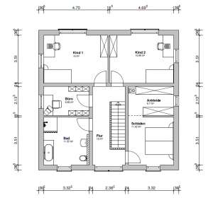
    Trotzdem ein Erster sehr grober Entwurf (Bitte um Feedback zu Raumaufteilung im EG, ich weiß es fehlen noch Türen in Küche/Wohnzimmer und bestimmt noch mehr Fehler enthalten).

    Ich habe den Windfang (ja, den wollen wir haben) auf die Rechte Seite gesetzt und
    mit dem WC getauscht. Zudem die Küche geöffnet und die Kochinsel länglich platziert.
    Treppe ist jetzt links. OG wurde gespiegelt... ;-) (Der OG gefällt uns, auch das kleine Bürozimmer oben).

    MfG.
     

    Anhänge:

    • V3.png
      V3.png
      Dateigröße:
      558,3 KB
      Aufrufe:
      378
  12. #12 Jo Bauherr, 08.03.2020
    Jo Bauherr

    Jo Bauherr

    Dabei seit:
    19.06.2018
    Beiträge:
    1.046
    Zustimmungen:
    511
    Beruf:
    (Ex)-Vermieter
    Ort:
    Randberlin
    Im OG gehört die die Tür vom Flur in die Ankleide und nicht direkt ins Schlafzimmer!

    Das Bad OG wird wohl zu dunkel (oder ist ein Dachschrägenfenster geplant?).

    Ansonsten kann man das im Ansatz schon so machen.



    .
     
  13. #13 Wilma66, 09.03.2020
    Wilma66

    Wilma66

    Dabei seit:
    31.05.2019
    Beiträge:
    105
    Zustimmungen:
    25
    Gefällt mir viel besser!
     
  14. 11ant

    11ant

    Dabei seit:
    28.02.2017
    Beiträge:
    2.501
    Zustimmungen:
    1.578
    Beruf:
    Bauherrenberater
    Ort:
    RLP Nord
    Benutzertitelzusatz:
    bringt Sie gut beraten ins Eigenheim
    Dem ist nichts hinzuzufügen. Es war lange Zeit und nichts wesentliches wurde geändert. In der Küche macht sich nun eine Bar vor dem Durchgang breit, das war´s :-(
     
  15. #15 driver55, 09.03.2020
    driver55

    driver55

    Dabei seit:
    22.02.2008
    Beiträge:
    6.898
    Zustimmungen:
    1.809
    Beruf:
    Dipl.-Ing.
    Ort:
    Pforzheim
    Ohne Türen/Fenster/Bemaßung/Möbilierung.......macht das keinen Sinn. Wer plant und "malt" eigentlich?
     
  16. #16 Andreas Teich, 12.03.2020
    Andreas Teich

    Andreas Teich

    Dabei seit:
    20.03.2012
    Beiträge:
    3.102
    Zustimmungen:
    529
    Beruf:
    Gebäude-Energieberater, Planungsbüro, HW-Meister
    Ort:
    Bonn und Kärnten/Österreich
    Benutzertitelzusatz:
    Ggf anrufen sofern sich’s im Rahmen hält…
    Nach Möglichkeit versuchen Haustechnik/Bäder/Küchen/WC's übereinander und nebeneinander anzuordnen, um kurze Leitungswege zu ermöglichen und auf Zirkulationsleitungen verzichten zu können.
    Möglichst nur eine Steigleitung und wenig sich kreuzende Leitungen auf dem Fußboden.

    Muß die Dachform sein?
    Teuer, nicht als Lagerraum verwendbar, schwieriger zu dämmen, aufwendige Entwässerung
     
  17. #17 Andreas Teich, 12.03.2020
    Andreas Teich

    Andreas Teich

    Dabei seit:
    20.03.2012
    Beiträge:
    3.102
    Zustimmungen:
    529
    Beruf:
    Gebäude-Energieberater, Planungsbüro, HW-Meister
    Ort:
    Bonn und Kärnten/Österreich
    Benutzertitelzusatz:
    Ggf anrufen sofern sich’s im Rahmen hält…
    Nach Möglichkeit versuchen Haustechnik/Bäder/Küchen/WC's übereinander und nebeneinander anzuordnen, um kurze Leitungswege zu ermöglichen und auf Zirkulationsleitungen verzichten zu können.
    Möglichst nur eine Steigleitung und wenig sich kreuzende Leitungen auf dem Fußboden.

    Muß die Dachform sein?
    Unnötig teuer, schwieriger zu dämmen, schadensträchtiger
     
Thema:

Letzte Tipps bevor es zu spät ist...

Die Seite wird geladen...

Letzte Tipps bevor es zu spät ist... - Ähnliche Themen

  1. Das "Lästige Hauspflichten Quartett" - Die letzten Karten werden gesucht.

    Das "Lästige Hauspflichten Quartett" - Die letzten Karten werden gesucht.: Hallo zusammen! Passend zu meiner Homerockr-App bastel ich aktuell in meiner Freizeit an einem Quartett - die "Lästigsten Hausarbeiten". Und da...
  2. Absicherung der letzten Rate im Bauvertrag

    Absicherung der letzten Rate im Bauvertrag: Hallo, wir haben einen Bauvertrag mit Zahlungsplan über 10 Raten. Den Vertrag haben wir in Ende 2022 geschlossen. Jetzt war die 9. Rate fällig,...
  3. Dachüberstand Pfusch am Bau letzter Sparren

    Dachüberstand Pfusch am Bau letzter Sparren: Hallo zusammen , Ich habe folgendes unschönes Problem ,der R-Anker ist bei uns zu weit rausbetoniert worden um den Balken des Dachüberstand...
  4. Abstand Dachziegel - Dachrinne und letzte Ziegelreihe andere Neigung

    Abstand Dachziegel - Dachrinne und letzte Ziegelreihe andere Neigung: Hallo Bauexperten ich habe mein Garagendach neu decken lassen. Aber an einer Seite ist jetzt ein Abstand von 10cm von den Dachziegeln zur...
  5. Abstand zwischen letzter Dachziegel und Holzverkleidung

    Abstand zwischen letzter Dachziegel und Holzverkleidung: Hallo zusammen, gibt es irgendwelche Vorgaben, wie groß dieser Abstand sein muss, damit das Holz ausreichend vor Feuchtigkeit geschützt ist? Bei...