Mein Grundriss

Diskutiere Mein Grundriss im Architektur Allgemein Forum im Bereich Architektur; Hallo, ich habe mal meinen Grundriss für unser Bauvorhaben hochgeladen. Es wird ein Satteldachhaus mit Giebel und 25 Grad Neigung. Den Grundriss...

  1. #1 thomix11, 03.09.2018
    thomix11

    thomix11

    Dabei seit:
    03.09.2018
    Beiträge:
    6
    Zustimmungen:
    1
    Hallo,

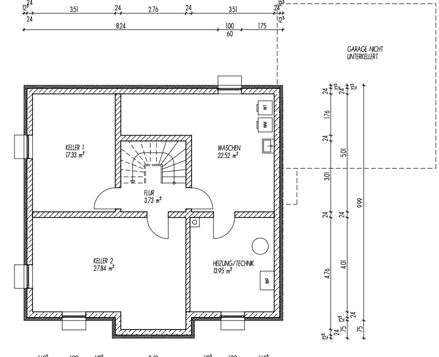
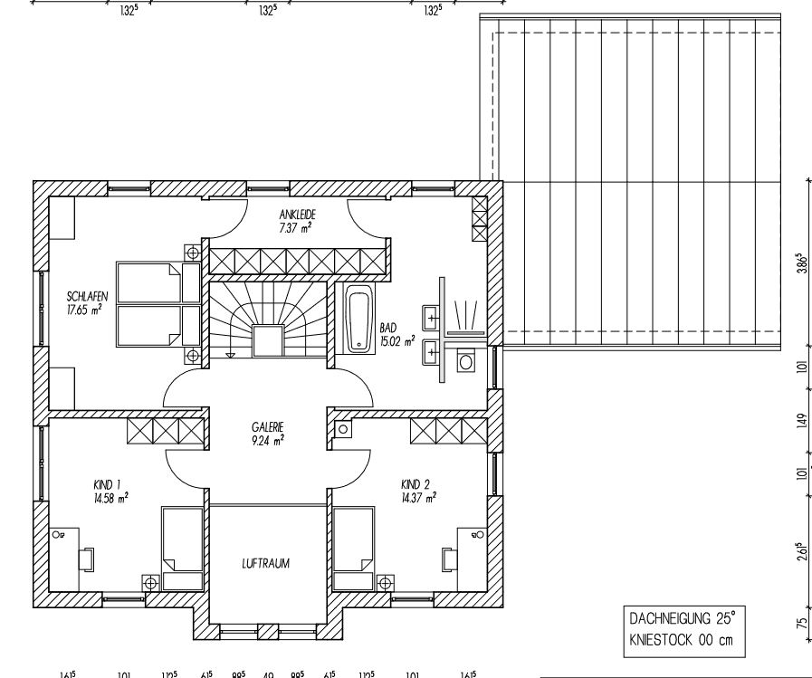
    ich habe mal meinen Grundriss für unser Bauvorhaben hochgeladen. Es wird ein Satteldachhaus mit Giebel und 25 Grad Neigung. Den Grundriss habe ich selbst entworfen. Habt Ihr eventuell noch Ideen was man besser lösen könnte? Das einzige was mich derzeit stört ist das sehr dunkle Treppenhaus sowie Eingangsbereich. Dafür werden wir im Treppenhaus einen Velux Tageslichtspot einbauen lassen.

    Danke und viele Grüße
     

    Anhänge:

    • EG.JPG
      EG.JPG
      Dateigröße:
      115,2 KB
      Aufrufe:
      3.328
    • KG.JPG
      KG.JPG
      Dateigröße:
      81,7 KB
      Aufrufe:
      1.949
    • OG.JPG
      OG.JPG
      Dateigröße:
      96,7 KB
      Aufrufe:
      1.856
    • Haus 3D.jpg
      Haus 3D.jpg
      Dateigröße:
      1,1 MB
      Aufrufe:
      1.019
  2. #2 jodler2014, 03.09.2018
    jodler2014

    jodler2014

    Dabei seit:
    20.12.2014
    Beiträge:
    3.907
    Zustimmungen:
    542
    Beruf:
    Angestellter
    Ort:
    RP
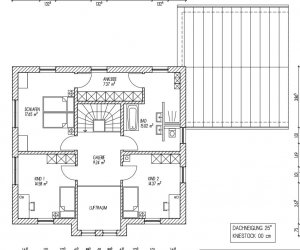
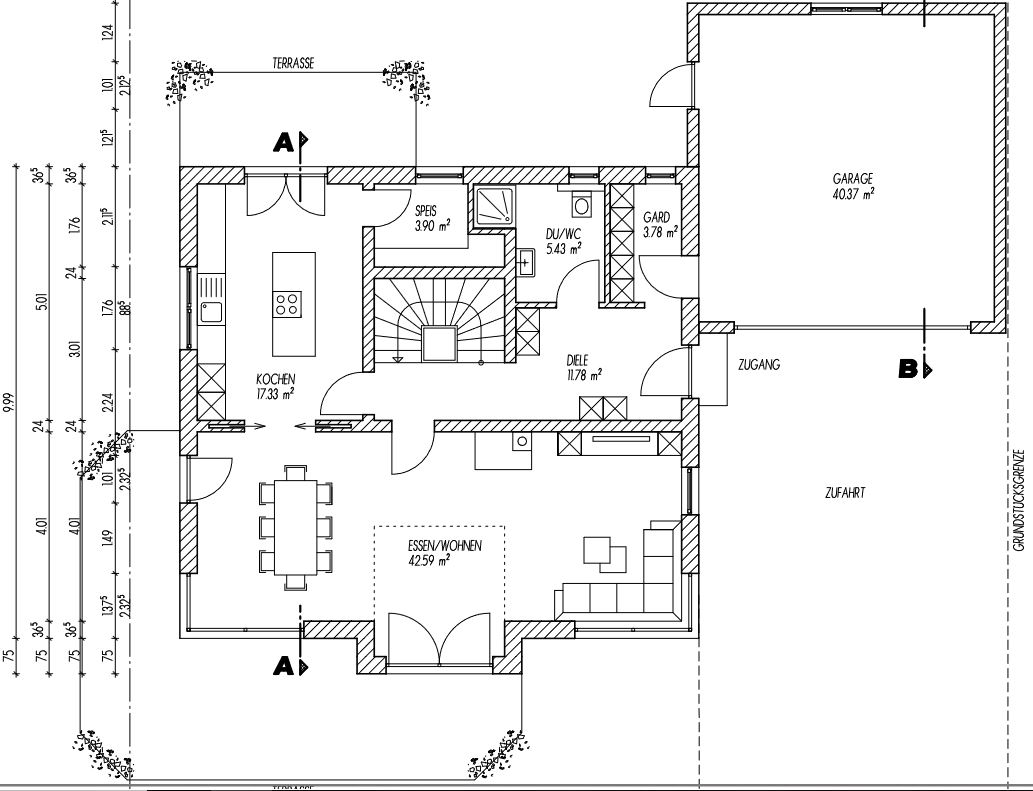
    Den Luftraum mit Erker finde ich unpraktisch , unnötig.
    Die zwei Fenster im Luftraum werden wie gereinigt ?
    Couch vor dem Fenster ..schon tausendmal hier im BEF thematisiert .
    Ist die Zufahrt im Norden und die Terrasse im Süden ?
    15m² im Bad OG ? Wahnsinn..
    So auf den ersten Blick..
     
    S216 gefällt das.
  3. #3 jodler2014, 03.09.2018
    Zuletzt bearbeitet: 03.09.2018
    jodler2014

    jodler2014

    Dabei seit:
    20.12.2014
    Beiträge:
    3.907
    Zustimmungen:
    542
    Beruf:
    Angestellter
    Ort:
    RP
    ..Ankleide viel zu schmal.
    Warum 2 Türen in der Ankleide ?
    Riesige Räume im Keller .
    Beim 3 D Bild ist die Zufahrt auch als Wiese gemalt.:not_w1:
     
  4. #4 Lexmaul, 03.09.2018
    Lexmaul

    Lexmaul

    Dabei seit:
    15.09.2014
    Beiträge:
    8.921
    Zustimmungen:
    2.163
    Benutzertitelzusatz:
    Mimosenlecker
    Grad im KG und OG ist viel Raum einfach verschenkt - als ob es nix kostet. Waschküche zum Beispiel völlig übertrieben.

    Wenn Geld keine Rolle spielt, müsste man nur marginal was anpassen. Aber so ist schon arg viel neu zu planen, denn dann bleibt es nicht bei Details.
     
  5. #5 jodler2014, 03.09.2018
    Zuletzt bearbeitet: 03.09.2018
    jodler2014

    jodler2014

    Dabei seit:
    20.12.2014
    Beiträge:
    3.907
    Zustimmungen:
    542
    Beruf:
    Angestellter
    Ort:
    RP
    Ist ja eh schon fast fertig der Grundriss.;)
    Den Luftraum samt Erker streichen.
    Im OG wird dann die Diele / Galerie größer ..oder den Platz den Kindern zuschlagen...
    Im EG die Türen zur Diele entweder aus Klarglas oder einfach weglassen.. verbreitern..

    Die zwei Fenster mit Brüstung über dem Garagendach zerstören die Ansicht ..Zweiter Fluchtweg ...
    Der einfachste Weg ist aber wohl die Beton - Treppe( ? ) und der Sicherste ..:p
    und keine Rauchmelder für 5,99 € ..
    ... und ein Tageslichtspot ist einfach nur teuer .
    Und in dem Fall einfach nur eine Folge daraus , daß die Wendeltreppe zentral im Plan gezeichnet ist .
     
  6. #6 Fabian Weber, 03.09.2018
    Fabian Weber

    Fabian Weber

    Dabei seit:
    03.04.2018
    Beiträge:
    16.296
    Zustimmungen:
    6.460
    Also ich finde Lufträume grundsätzlich super. Dieser schafft nur leider kaum eine entsprechende Atmosphäre, das geht noch besser, z.B nutzbare Galerie oder Spielflur oben.

    Die Eingangssituation vor der Garage finde wahnsinnig gruselig. Warum ist die Garage nicht viel mehr Teil des Hauses? Du baust ja neu, warum dann gleich ein Anbau, anstatt die Garage in das Gesamtkonzept zu integrieren?

    Findest Du den Blick aus dem Wohnzimmerfenster auf die Einfahrt wirklich gut?

    Den Ansatz mit der Ankleide oben und dem zweiten Weg ins Bad finde ich gut. Überlege Dir aber ob die räumliche Situation mit je einer Tür genau neben dem Bett wirklich so toll ist und bedenke, dass ein Türblatt auf der einen und das andere auf der anderen Wandseite sitzt, wenn die Türen in unterschiedliche Richtungen aufschlagen. Das sieht dann nämlich überhaupt nicht symmetrisch aus.

    Sollen die Fenster im Eg nun über Eck gehen oder nicht? Deine Ansicht sagt hier was anderes.

    Du hast ein paar gut Ideen und man kann erkennen worauf Du Wert legst. Jetzt nimm diese Zeichnungen und gehe zu jemandem der dafür ein Studium über durchschnittlich 7 Jahre mit einem der höchsten NCs in Deutschland erfolgreich hinter sich gebracht hat. Der Architekt findet mit Dir Dein Traumhaus.
     
  7. 11ant

    11ant

    Dabei seit:
    28.02.2017
    Beiträge:
    2.462
    Zustimmungen:
    1.539
    Beruf:
    Bauherrenberater
    Ort:
    RLP Nord
    Benutzertitelzusatz:
    bringt Sie gut beraten ins Eigenheim
    Galerie und Luftraum machen die Diele im OG praktisch (akustisch und klimatisch) zu einem Teil des Wohnzimmers. Um in die Ankleide zu kommen, muß man im Schlafzimmer oder im Bad jemanden stören.

    Immerhin richtmaßtreu, soweit erkennbar. Was machst Du beruflich ?

    Warum nicht ein Dachflächenfenster ? - angesichts des Kellers braucht es wohl keinen Abstellraum im Dachboden.
     
  8. #8 Gast82596, 04.09.2018
    Gast82596

    Gast82596 Gast

    Die Tür von Garage zum Haus kann man sich sparen, dann hat man in der Garderobe mehr Platz.
     
  9. #9 thomix11, 04.09.2018
    thomix11

    thomix11

    Dabei seit:
    03.09.2018
    Beiträge:
    6
    Zustimmungen:
    1
    Hallo,

    erstmal danke für das Feedback. Ich werde mal versuchen auf alles zu antworten:

    Zu mir, ich bin Maschinenbauingenieur.

    Zum Haus:

    Die Ausrichtung ist nach Süden. D.h. die große Terasse und Zufahrt sind im Süden. Leider kann man die Garage nicht ins Haus integrieren, da das gegen den Bebauungsplan spricht. D.h. im Bebauungsplan ist exakt festgelegt wo die Garage und deren Zufahrt sein muss. Ich kann die Garage wenn dann näher zur Strasse setzen, was mir den Blick aus dem Wohnzimmer ruiniert. Die Türe von Garage zum Haus ist bereits gestrichen.

    Offener Dachstuhl: Hätte ich gerne, da ich den Speicher tatsächlich nicht benötige. Allerdings sind dies 10.000€ zusätzlich die nicht mehr im Budget liegen.

    Zur Treppe: Ja, die Treppe ist in der Hausmitte, was natürlich die Helligkeit nimmt. Allerdings habe ich nur mit dieser Treppenposition all unsere Wünsche umsetzen können.

    Galerie: War ein Wunsch meiner Frau. Da es jetzt von allen Seiten schlecht gemacht wird (nicht nur hier im Forum) kommt ein Umdenken zustande. Dann wäre ich im OG was die Raumaufteilung angeht flexibler.

    Keller: Ja die Räume sind sehr großzügig. Der grosse Raum wird eine Art Büro Gästezimmer und ist mit einer Heizung ausgestattet. Die Waschküche separat zu machen ist noch nicht fix. Bisher geht die Tendenz aber dazu hin, da es uns nicht stören würde und die Wege kürzer wären als die Waschmaschine im Heizungsraum zu integrieren. Der Zeitraum ist so gesetzt (Kostengründe, Nähe zur Strasse etc)

    Eckfenster: die Eckfenster werden getauscht sodass die Ecke gemauert wird.

    Platzierung Sofa: Ich kenne die Diskussion, dass das Sofa an einer festen Wand stehen sollte. Allerdings leben wir seit 5 Jahren ähnlich wie dargestellt und bisher hat es uns nicht gestört. Zudem kann ich meine Möbel gar nicht anders stellen als so (Ich weiß: austauschbar)

    Ankleide: Der Durchgang zum Bad ist ein Wunsch der Frau. Dass es ein schmaler Schlauch ist, ist klar. Eventuell werde ich hier aber jetzt Hand anlegen, wenn die offene Galerie entfällt. (Das ändert eigentlich so gut wie alles. Der Bauträgern reist mir den Kopf ab)

    Der Entwurf vom Architekten hat uns gar nicht gefallen. Wir hatten 25qm Diele im EG und nur 11qm Küche. Dadurch habe ich erst selbst Hand angelegt.

    Nochmals besten Dank für die Tipps.
     
    11ant gefällt das.
  10. #10 Hotliner, 04.09.2018
    Hotliner

    Hotliner

    Dabei seit:
    03.09.2018
    Beiträge:
    124
    Zustimmungen:
    15
    Beruf:
    E-Techniker
    Hallo!

    Tipp`s von mir:
    1. Die Treppe gehört nach Möglichkeit dort ins Eck, wo die Garderobe geplant war.

    2. Sowie ein eigener Abgang in den Keller von Aussen, meine Frau geht von dort aus, mit der Wäsche bei Bedarf in den Garten zur Wäschespinne.
    Ansonsten latscht man ständig so wie jetzt geplant, immer mitten durchs Wohnzimmer, egal was man da immer rauf- o. runter befördern muss!

    3. Elektrische Rollläden nicht vergessen. Gut gegen zuviel Sonneneinstrahlung, sowie im Winter als zusätzlicher Wärmeverlust-Verhinderer.
    Wirkt besser, wie eine zusätzliche 3. Thermoscheibe.
     
  11. #11 Lexmaul, 04.09.2018
    Lexmaul

    Lexmaul

    Dabei seit:
    15.09.2014
    Beiträge:
    8.921
    Zustimmungen:
    2.163
    Benutzertitelzusatz:
    Mimosenlecker
    Rolläden haben einen dermaßen geringen Anteil (wenn überhaupt) an Wärmeschutz...das ist ne Denke von vor 30 Jahren ;). Gleiches beim Kellerabgang - den sollte man ebenso nicht draußen anlegen, denn frei bewittert ist das immer wieder nen Problem - sowohl für das Mauerwerk/Treppe als auch bzgl. Überschwemmung. Ein Dach drüber hilft nur teilweise - dann besser Zugang von der Garage aus planen.
     
  12. #12 simon84, 04.09.2018
    simon84

    simon84
    Moderator

    Dabei seit:
    11.11.2012
    Beiträge:
    23.241
    Zustimmungen:
    6.889
    Beruf:
    Schrauber
    Ort:
    Muenchen
    Schutz im Sommer vor Sonneneinstrahlung sehr gut !
    Wärmeschutz im Winter im Neubau zu vernachlässigen
     
  13. #13 Hotliner, 04.09.2018
    Hotliner

    Hotliner

    Dabei seit:
    03.09.2018
    Beiträge:
    124
    Zustimmungen:
    15
    Beruf:
    E-Techniker
    Wer selber keine Rollläden hat, sollte sowas nicht schreiben, weil er wirklich keine Ahnung davon hat, welchen Vorteil diese das ganze Jahr über bringen.
    Nicht nur was die Thermie anbelangt. Habe selber insgesamt 16 Rollo`s , davon 12 mit Rohr-Motor.

    Ich selber wohne fast direkt an einem "Bacherl", in ca. 15m Entfernung, letztes Hochwasser war im Juni 2016, die Hälfte der Häuser, 6 Stück in der Strasse, waren davon betroffen, undichte Keller o. Kellerschachtfenster, bei mir war zwar der halbe Garten mit ca. 60 cm hoch Überflutet, aber kein Tropfen Wasser im Haus.
    Kommt natürlich ganz drauf an wie man plant u. baut, bzw. 50% des Lebens, besteht u.a. aus guter "Vorplanung"!
     
  14. #14 Lexmaul, 04.09.2018
    Lexmaul

    Lexmaul

    Dabei seit:
    15.09.2014
    Beiträge:
    8.921
    Zustimmungen:
    2.163
    Benutzertitelzusatz:
    Mimosenlecker
    Du interpretierst gerne, @Hotliner , oder? Wo liest Du, dass ich keine Rolläden hätte? Ich habe 13 Rolladen/Raffstores, natürlich alle elektrisch...aber sicherlich nicht an allen Fenstern, weil Unsinn (ist auch so eine 30 Jahre alte Denke).

    Hast dann eine wasserdichte Tür in Deinem Abgang oder wie soll ich Deine Ausführung nun verstehen?

    @simon84 : Na klar - ich meinte auch nur den Wärmeschutz auf den Winter bezogen. Im Sommer sind Verschattungen ein Muss an den neuralgischen Punkten.
     
  15. #15 Gast82596, 04.09.2018
    Gast82596

    Gast82596 Gast

    Das was ich bei einem Rollo an Wärme spare, werfe ich mit Strom für Licht wieder raus. Ich finde Rollos max. im Schlafzimmer und Dachfenster für sinnvoll, der Rest mit Raffstore.
     
    Lexmaul gefällt das.
  16. #16 Andybaut, 04.09.2018
    Andybaut

    Andybaut

    Dabei seit:
    02.04.2015
    Beiträge:
    5.127
    Zustimmungen:
    329
    Beruf:
    Architekt
    Ort:
    Baden-Württemberg
    https://www.energiesparaktion.de/downloads/Downloadbereich/energiesparinfo/espi1.pdf
    Seite 9
    Ein Rollladen hat durchaus einen Effekt, aber "besser, wie eine zusätzliche 3.Thermoscheibe" möchte ich so auch nicht stehenlassen.
    Die dritte Scheibe ist bei Tag auch noch da, da hilft der Rollladen dann eher weniger :-)
     
  17. #17 wurmwichtel, 04.09.2018
    Zuletzt bearbeitet: 04.09.2018
    wurmwichtel

    wurmwichtel

    Dabei seit:
    31.01.2018
    Beiträge:
    272
    Zustimmungen:
    70
    hmm...
    die Küche fällt großzügig aus. Man kann aber nicht drin sitzen wenn die Kochinsel allseitig aus Schubfächern besteht.
    Was die Idee mit dem offenen Dachstuhl angeht: Die 10k€ hast Du übrig wenn Du willst!
    Verzichte wie schon geschrieben auf Erker wie Luftraum und schlag die Fläche den Kinderzimmern zu. Außerdem hat das Haus hat mit der Garage um die 290m² Wohn/Nutzfläche. Etwas weniger Statusdenken und schon ist die offene Untersicht mit Dachflächenfenstern im Budged drin!

    Bezüglich der Verschattung:
    Im Sommer ist eine äußere Verschattung von Fensterflächen immer wirksam! Wir haben an unserer Mietwohnung Außenjalousien. Unsere Nachbarn mit gleichem Grundriss und gleicher Ausrichtung nicht - bei denen ist die Bude in den Sommermonaten im Mittel um 4 bis 5°C wärmer.
     
  18. #18 Lexmaul, 04.09.2018
    Lexmaul

    Lexmaul

    Dabei seit:
    15.09.2014
    Beiträge:
    8.921
    Zustimmungen:
    2.163
    Benutzertitelzusatz:
    Mimosenlecker
    Naja, da steht aber auch viel Schrott drin - das Ding ist von 2004 und wurde 2011 nochmal überarbeitet - alleine die Dichtungsebene der Fenster sind da ja katastrophal beschrieben :D. Das ein einfacher Rolladen (wie dort dargestellt) 0,2 weniger Uw/m² azusmacht, kann ich mir beim besten Willen nicht vorstellen. Und Klappläden (dann auch gedämmt) ist wohl eher nen bayrischer (oder hier hessischer) Traum als Realität...
     
  19. #19 Morgaine, 04.09.2018
    Morgaine

    Morgaine

    Dabei seit:
    26.01.2009
    Beiträge:
    99
    Zustimmungen:
    28
    Beruf:
    Selbstständige Hausfrau
    Ort:
    Süddeutschland
    Könnt ihr aus dem großen Bad im OG nicht ein Elternbad mit Zugang aus der Ankleide und ein Kinderbad machen? Wäre meine Alternative. Lieber ein kleines Bad für mich allein als immer zwei Türen schließen zu müssen. Dafür könnte dann die Dusche im EG wegfallen.
     
    Jo Bauherr gefällt das.
  20. #20 msfox30, 04.09.2018
    msfox30

    msfox30

    Dabei seit:
    12.05.2015
    Beiträge:
    2.397
    Zustimmungen:
    818
    Beruf:
    IT Berater
    Ort:
    Halle
    Hat zwar nicht direkt was mit dem Grundriss zu tun, aber die Spüle in der Küche würde ich nicht ans Fenster setzen.
    1. Wer wäscht heute schon noch auf / ab und hat keinen Geschirrspüler.
    2. Beim Öffnen des Fensters ist die Mischbatterie im Weg oder man macht ein "Unterlicht" (wie auch immer das richtig heißt ).
    Wir haben das Fenster hinter der Arbeitsfläche und die Arbeitsplatte bis zum Fenster gezogen. Beim Schnippeln und Backen kann man aus dem Fenster schauen.
    Ich wollt's nur erwähnt haben. Wenn du mit Bauträger baust, kann es sein, dass er den Plan genau so auf die Baustelle gibt und am Ende die Anschlüsse falsch liegen.
     
    11ant gefällt das.
Thema: Mein Grundriss
Besucher kamen mit folgenden Suchen
  1. baiexpertenforum grundriss

    ,
  2. grundriss luftraum

Die Seite wird geladen...

Mein Grundriss - Ähnliche Themen

  1. Hilfe Grundriss Untergeschoss

    Hilfe Grundriss Untergeschoss: Ich benötige etwas Hilfe beim Grundriss für das Untergeschoss. Ich würde gerne die Eingangstür nach Süden legen, da dort die Straße ist. Außerdem...
  2. Neubau – Grundriss, Firstrichtung und Vorgehen

    Neubau – Grundriss, Firstrichtung und Vorgehen: Hallo zusammen, wir sind noch ganz am Anfang unseres Bauprojekts: das Grundstück steht fest (muss noch geteilt und umgeschrieben werden,...
  3. Grundriss EFH 150m2 (Hang, Souterrain, ELW) – Feedback zu Effizienz & Raumaufteilung

    Grundriss EFH 150m2 (Hang, Souterrain, ELW) – Feedback zu Effizienz & Raumaufteilung: Hallo liebe Bauexperten, wir planen ein Eigenheim mit ELW in Hanglage und haben uns schon zahlreiche Gedanken gemacht. Ich möchte die Chancen, die...
  4. Symbol Grundriss ca. 1875 Preußen Bitte um Erklärung

    Symbol Grundriss ca. 1875 Preußen Bitte um Erklärung: Hallo, ich habe vor einiger Zeit eine alte Försterei gekauft und suchte ewig nach Bauzeichnungen oder Grundrissen dazu. Lange Story kurz, ich...
  5. Grundriss. EFH 1 Vollgeschoss ohne Schrägen ca. 180qm

    Grundriss. EFH 1 Vollgeschoss ohne Schrägen ca. 180qm: Hi zusammen, wir sind gerade fleißig am Planen. Der Plan ist ein DIY. Habt ihr anregungen, wie man das ganze verbessern kann oder wo Probleme...