Meinungen zu unserem Grundriss - Bitte um Feedback

Diskutiere Meinungen zu unserem Grundriss - Bitte um Feedback im Architektur Allgemein Forum im Bereich Architektur; Hallo, ich möchte gerne euer Feedback bezüglich der zwei Grundrisse einholen. Das Haus soll modern, offen und großzügig wirken. Daten zum...

  1. MBS

    MBS

    Dabei seit:
    27.03.2018
    Beiträge:
    6
    Zustimmungen:
    0
    Hallo,

    ich möchte gerne euer Feedback bezüglich der zwei Grundrisse einholen.

    Das Haus soll modern, offen und großzügig wirken.

    Daten zum Grundstück/Haus
    Das Haus muß als ein E+1 mit einem Satteldach 22° Dachneigung bebaut werden.
    Bodenplatte: 12,49x12,49m2 und 30 cm stark.

    • Technikraum
    • Zugang von der Garage + Gäste die vor der Garage parken
    • Zentrale Treppe zwecks kurzer Wege
    • Treppenart: Eck, 1/4 gewendelt, 2x 1/4 gewendelt, gerade Treppe. Nicht gewünscht ist eine Wendeltreppe
    • Modernes Haus mit offener Küche und Wohnraum
    • Arbeitszimmer
    • Gäste-WC mit Dusche
    • Speisekammer für Gefriertruhe und Lebensmittel und Getränke
    • Große Kinderzimmer --> wenn möglich Südseite
    • Raum für begehbare Ankleide
    • Separater Eingang Eltern-SZ und nicht über Ankleide
    • 1x Elternbad + 1x Kinderbad
    • Kleiner HWR-Raum (ca.6-8m2) im OG für Waschmaschine und Trockner
    • Kachelofen, wobei der Kaminschacht nicht durch die Kinderzimmer gehen soll. Bevorzugt durchs Bad oder HWR Raum

    ------------------------------------------------------------------------

    • Bebauungsplan/Einschränkungen
    Grösse des Grundstücks: Parzelle 35, 775m2
    KFW 55
    Hang: Ja
    GRZ: 0,35
    GFZ: 0,80
    Baufenster, Baulinie und –Grenze: siehe Lageplan
    Randbebauung: Nein
    Anzahl Stellplatz: 2
    Geschossigkeit: 2
    Dachform: Satteldach 22°
    Stilrichtung / Ausrichtung: Süd - Südost
    Maximale Höhen/Begrenzungen: Gebäudegröße max = 14m x 10m + eingeschossiger Anbau von Länge, max 10m Tiefe max.3m --> Genehmigung für die übergroße vorhanden.
     

    Anhänge:

  2. #2 Andybaut, 28.03.2018
    Andybaut

    Andybaut

    Dabei seit:
    02.04.2015
    Beiträge:
    5.127
    Zustimmungen:
    329
    Beruf:
    Architekt
    Ort:
    Baden-Württemberg
    Hallo,

    Version 1 ist angenehmer aus meiner Sicht.

    Kachelofen im KfW 55 Haus = Sauna
     
  3. #3 driver55, 28.03.2018
    driver55

    driver55

    Dabei seit:
    22.02.2008
    Beiträge:
    6.878
    Zustimmungen:
    1.798
    Beruf:
    Dipl.-Ing.
    Ort:
    Pforzheim
    ...und ich finde die Art der Darstellung schon unangenehm, um das bewerten zu können.
    Was ich gut erkennen kann ist bei einem OG Grundriss die fehlende Planung. Links außen KiBad, dann reihen sich die drei Elternäume ein, dann kommen die KiZis. Das macht überhaupt keinen Sinn.

    Zeig das alles mal „positiv“ und nicht „negativ“.
     
  4. #4 Onkel Dagobert, 28.03.2018
    Onkel Dagobert

    Onkel Dagobert

    Dabei seit:
    23.10.2014
    Beiträge:
    724
    Zustimmungen:
    33
    Beruf:
    Bauingenieur
    Ort:
    Emlichheim (Nds.)
    Wenn hiermit wirklich ein klassischer Kachelofen gemeint ist stimme ich Dir zu. Wenn man allerdings einen kleinen Holzofen (ohne Kachel :-) ) einbaut mit möglich geringer Heizleistung funktioniert das. Die kleinsten haben meines Wissens 4 KW.
    Wir haben dieselbe Konstellation KfW 55 mit einem kleinen Ofen (4KW), und das finde ich angenehm. Bei uns steht der Kamin im Wohnzimmer und das hat nur 22 m2. Trotzdem kann man den Ofen abends einige Stunden betreiben ohne dass es eine Sauna wird.
     
  5. #5 Lexmaul, 28.03.2018
    Lexmaul

    Lexmaul

    Dabei seit:
    15.09.2014
    Beiträge:
    8.921
    Zustimmungen:
    2.163
    Benutzertitelzusatz:
    Mimosenlecker
    Wir haben ein 9kW Monster und machen auch keine Sauna aus der Bude ;)

    Kachelofen würde es aber dazu machen...
     
  6. #6 Andybaut, 28.03.2018
    Andybaut

    Andybaut

    Dabei seit:
    02.04.2015
    Beiträge:
    5.127
    Zustimmungen:
    329
    Beruf:
    Architekt
    Ort:
    Baden-Württemberg
    Dann drücke ich mich ein wenig vorsichtiger aus:

    Kachelofen im KfW 55 Haus = Übertemperaturgefahr

    Aber das empfinden auch viele Menschen als romantisch und angenehm.
    Wenn der Heizungsplaner aber nur einen überdimensionierten Heizkörper in den Raum einplant, der für eine Übertemperatur sorgt,
    dann finden das schon weniger Menschen als angenehm und beklagen die schlechte Planung.
    Ist also auch ein wenig subjektiv.
     
  7. #7 wurmwichtel, 28.03.2018
    wurmwichtel

    wurmwichtel

    Dabei seit:
    31.01.2018
    Beiträge:
    272
    Zustimmungen:
    70
    Da es nur um Meinungen geht:
    Für mich enthält der Grundriss etwas zu viel toten Raum, sprich nicht nutzbare Fläche. Bezüglich der Anordnung von Kinderzimmern und zweitem Bad, ist anzumerken, dass die arg weit auseinander liegen. Ansonsten muss DIR der Plan gefallen - niemandem sonst!
    BTW:
    Kinder werden krank oder dröhnen sich irgendwann das Hirn mit Alkohol zu, den der Körper bei Überdosierung auch wieder oral verlassen will.
    Bei den Wegstrecken hätte ich Bedenken, dass man die Bettflucht des Nachwuchses in Richtung Bad anhand der Gewöllespur im Flur nachverfolgen kann.

    Wie lange bist Du denn schon mit der Ideenfindung beschäftigt? Bei uns hat es ca 6 Monate gedauert bis sich in den ganzen Grundrissen einer herauskristallisierte. Dafür sieht man die Treppe zum OG aber nicht wenn man das Haus betritt.
     
  8. #8 Bricoleuse, 29.03.2018
    Zuletzt bearbeitet: 29.03.2018
    Bricoleuse

    Bricoleuse

    Dabei seit:
    31.01.2012
    Beiträge:
    110
    Zustimmungen:
    0
    Beruf:
    Finanztussi
    Ort:
    NRW
    Die Kinderzimmer sind zu weit weg vom Kinderbad. Recht viel Verkehrsfläche im OB Flur, aber da können die Kinder auch eine Rieseneisenbahn aufbauen. Muss man halt zahlen.

    Version 1: Planunten rechts im Wohnzimmer ist eine tote Ecke, aber das scheint aktuell in zu sein. Meins wär's nicht.
    Version 2: Mit Kindern geht ja meist der erste Gang morgens, abends, nach dem nach Hause Kommen in die Küche. das wäre mir zu viel Rennerei in der Planung.

    Küche wäre mir zu klein. Habt Ihr in der Küche genügend Wandfläche für Schränke? Mal 'ne Stauraumplanung gemacht?
     
  9. #9 DerMitDemBauTanzt, 30.03.2018
    DerMitDemBauTanzt

    DerMitDemBauTanzt

    Dabei seit:
    30.03.2018
    Beiträge:
    5
    Zustimmungen:
    0
    Version 2 gefällt mir oben viel besser als Version 1. Kann man auch leicht optimieren.

    Idee:
    1. Elternbad zu Kinderbad (so haben beide Kinder kurze Wege). Wasserführende Installationen (Toilette, Dusche, Waschbecken) nicht an die Wand zum Kinderzimmer setzen. Wird laut!
    2. In die Ecke, wo das Kinderbad ist, das Elternschlafzimmer hin. Flur kürzen, dann wird das Zimmer wieder über 4m breit und tief.
    3. Elternschlafzimmer zu Elternbad. So liegen beide Bäder aneinander und man kann die Leitungsführung optimieren.

    So solltest du bessere Wege, einfachere Installation und leisere Zimmer haben.
     
  10. MBS

    MBS

    Dabei seit:
    27.03.2018
    Beiträge:
    6
    Zustimmungen:
    0
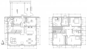
    Hallo, nochmals den Plan überarbeitet und die Verkehrswege und die Bäder optimiert.
    3 Punkte habe ich noch, wo ich mir nicht ganz sicher bin.

    1. Ist der Abstand zwischen Haustür und Treppe mit 1.1m nicht zu gering?
    2. Durchgang vom Flur zum WZ mit einer Breite von 1.4m --> zu klein dimensioniert?
    3. Was haltet ihr von der Galerie? Ist das so baubar? Würde dies optisch gut ausschauen?

    Danke
     

    Anhänge:

  11. #11 simon84, 02.04.2018
    simon84

    simon84
    Moderator

    Dabei seit:
    11.11.2012
    Beiträge:
    23.258
    Zustimmungen:
    6.904
    Beruf:
    Schrauber
    Ort:
    Muenchen
    Warum ist der Plan immer negativ ?
     
  12. S216

    S216

    Dabei seit:
    06.12.2017
    Beiträge:
    283
    Zustimmungen:
    82
    Beruf:
    Vertrieb Metallindustrie
    Ort:
    RLP
    Vermutlich Screenshots aus dem CAD-Programm, worauf auch das zu sehende Raster hindeutet. Viele Leute, auch ich, arbeiten da mit schwarzem Hintergrund (oder wie in diesem Fall mit irgendeiner Graustufe).
     
  13. MBS

    MBS

    Dabei seit:
    27.03.2018
    Beiträge:
    6
    Zustimmungen:
    0
    Hallo, die Zeichnungen sind mit Autocad erstellt, daher in negativ dargestellt. Ich suche mal bei Gelegenheit, wie dies in der Software geändert werden kann.
     
  14. S216

    S216

    Dabei seit:
    06.12.2017
    Beiträge:
    283
    Zustimmungen:
    82
    Beruf:
    Vertrieb Metallindustrie
    Ort:
    RLP
    Das geht in den Einstellungen in einem der Reiter (bin gerade nicht im Büro, sonst könnte ich es dir direkt sagen). Nachteil: du änderst dann nur den Hingergrund und deine weißen Linien sind nicht mehr zu sehen. Du müsstest dann auch die Layerdarstellung ändern.
    Du kannst aber auch ein pdf drucken oder in irgendein Grafikformat exportieren. Das müsste im Datei-Menü unter "Export" oder so gehen.
     
  15. #15 Onkel Dagobert, 03.04.2018
    Onkel Dagobert

    Onkel Dagobert

    Dabei seit:
    23.10.2014
    Beiträge:
    724
    Zustimmungen:
    33
    Beruf:
    Bauingenieur
    Ort:
    Emlichheim (Nds.)
    Zu deinen Fragen:
    1. 1,10m zwischen Tür und Treppe wäre mir zu wenig
    2. 1,40m Durchgang zum WZ ist vollkommen OK
    3. Galerie finde ich optisch OK. Statisch nicht ideal aber lösbar, denke ich.

    Noch ein paar Anmerkungen:
    1. Ich würde die Treppe um eine Stufenbreite nach planrechts verschieben. Der Durchgang zum Wohnzimmer wäre dann etwas unter der letzten Stufe. Stört eigentlich nicht, und an der Tür passt es.
    2. Die Ankleide oben würde ich mit einer 2. Tür zum Flur versehen; evtl. dann die Tür Flur/SZ weglassen. Wenn dann der Hausherr mal früh raus muss kann die Dame des Hauses weiterhin schlafen (oder natürlich umgekehrt)
    3. Wenn das beim Elternbad eine Badewanne sein soll, dann ist da noch ein wenig Feintuning angesagt. Könnte eng werden im Durchgang zwischen Badewanne und Waschtisch
    4. Die Kochinsel mit (Bar)hockern davor ist jetzt nicht meins, und sehe ich persönlich als überflüssig an, aber jedem das seine. Ich würde immer eine U-Küche bevorzugen. Und dann ohne Hocker o.ä. Der Esstisch ist ja nur 2 Meter weiter.

    Ansonsten brauchbarer Grundriss.
     
  16. #16 Chrissi84, 03.04.2018
    Chrissi84

    Chrissi84

    Dabei seit:
    11.01.2018
    Beiträge:
    21
    Zustimmungen:
    3
    Wie wird das Fenster oberhalb der Treppe geputzt werden?

    Schon einmal darüber nachgedacht das Elternschlafzimmer mit dem Ankleidezimmer zu tauschen? Mir persönlich wäre es nicht recht immer durch das Ankleidezimmer gehen zu müssen um ins Bad zu kommen.
     
  17. #17 Leser112, 03.04.2018
    Leser112

    Leser112

    Dabei seit:
    23.12.2016
    Beiträge:
    1.843
    Zustimmungen:
    254
    Beruf:
    Dipl.-Ing., TGA Planer
    Ort:
    Berlin-Brandenburg
    Benutzertitelzusatz:
    Energieeffizienzexperte
    Solche Grundrissdiskussionen sind meist eine unendliche Geschichte, da die jeweiligen, sicherlich gut gemeinte Ratschläge rein subjektiven Empfindungen und Wahrnehmungen unterliegen. Daher beteilige ich mich an solchen eher nicht!
    Dennoch ein paar Hinweise.
    Bei Bädern, WC, je nach Art des Wärmeerzeugers, ggf. zusätzliche Wand-Heizflächen berücksichtigen, wofür bei Schrägdächern Abseitenwände bzw. Dachschrägen gut geeignet sind.
    Bei offenem Raumverbund von WoZi, Kü, Essen => große Grundflächen, auf hinreichend genügende lichte Raumhöhe achten!
    Architekten vergessen gern, insbesondere bei kellerlosen EFH mit FB-Heizflächen im EG, die notwendige Aufbauhöhe bzw. notwendige Dämmung unterhalb der Heizebene.

    [​IMG]
     
  18. MBS

    MBS

    Dabei seit:
    27.03.2018
    Beiträge:
    6
    Zustimmungen:
    0
    Hallo, anbei meine aktuellste Kreation. Danke euch für die Tips.
    Diesmal nicht ihn negativer Ausführung :-)

    EG --> Ist die Flurbreite von 1.50m zu eng bemessen?
    --> Schaut der Gang ohne Galerie eher drückend/langweilig aus?
    --> Wie könnte man das Eck, Eingang zum Technikraum/Büro entschärfen? Zu viele Ecken?
    --> Seht ihr eine Möglichkeit, noch eine Speisekammer zu platzieren (z.B Technikraum/Bürofläche)?

    Wenn ihr den Grundriss soweit für ok findet, würde ich nun den Bauzeichner beauftragen.

    Danke
     

    Anhänge:

  19. #19 Lexmaul, 05.04.2018
    Lexmaul

    Lexmaul

    Dabei seit:
    15.09.2014
    Beiträge:
    8.921
    Zustimmungen:
    2.163
    Benutzertitelzusatz:
    Mimosenlecker
    Ich bin sehr gespannt, wie Du das Kinderbad entwässern willst ;)
     
  20. #20 driver55, 05.04.2018
    driver55

    driver55

    Dabei seit:
    22.02.2008
    Beiträge:
    6.878
    Zustimmungen:
    1.798
    Beruf:
    Dipl.-Ing.
    Ort:
    Pforzheim
    • Der Galerie (zuviel Musterhäuser gesehen?) würde ich einen direkten zum Bad vorziehen. Vor allem, wenn man gleich 2 nervige Schiebetüren zu überwinden hat.
    • Bad: Die "Eck"-Wanne hängt irgendwie in der Landschaft. Normale Wanne an die Wand und gut ist. Dann hat man auch ordentlich Platz
    • ohne m²-Angaben ist eine Bewertung ohnehin schwieirig (Man sagt zwar, "groß kann jeder", trifft aber doch eher selten zu...)
    • für ca. 220 m² (12,5² x 0,7 (Annahme)) ist der Hauszugang suboptimal > Treppe
    • die Ecke Technik/Büro finde ich jetzt nicht wirklich störend, ist ja "Privatbereich"
    • Küche ist auch suboptimal. Soll das eine Kochinsel werden/sein? Wohl eher nicht. Herdplatte erkenne ich auf dem "4 m -Stück". Küche mindestens als L-Form ausbilden und diesen Tresen ggfs. kleiner und um 90° drehen
    • Bei optimaler Ausnutzung der Küche (15 m²) braucht's keine zusätzliche Speisekammer. Ansonsten halt umplanen.
    • ...
     
Thema:

Meinungen zu unserem Grundriss - Bitte um Feedback

Die Seite wird geladen...

Meinungen zu unserem Grundriss - Bitte um Feedback - Ähnliche Themen

  1. Eure Meinung für unseren Grundriss

    Eure Meinung für unseren Grundriss: Hallo zusammen, wir haben eine Vorentwuf und ein Angebot von unsere Bauträger bekommen. Ich wollte gerne eure Meinung dazu wissen. Es soll ein...
  2. Meinungen zu unserem Grundriss

    Meinungen zu unserem Grundriss: Hallo zusammen, meine Frau und ich sind zurzeit am Plan zeichnen. Wir würden uns freuen wenn ihr mal einen Blick drauf werft und uns eure...
  3. Meinungen und Ideen zu unserem Grundriss

    Meinungen und Ideen zu unserem Grundriss: Hallo, nachdem unser erster Grundriss hier deutlich zu schlecht weggekommen ist (-> zurecht), haben wir nochmals optimiert, und wollten Fragen,...
  4. Eure Meinung zu unserem Grundriss (Stadthaus )

    Eure Meinung zu unserem Grundriss (Stadthaus ): Hallo, Ich bitte euch um eure ehrliche Meinung zu unserem aktuellen Hausgrundriss. Typ: Stadthaus Länge 10m Breite 10m mit Keller...
  5. Bitte um Meinungen zu unserem Grundriss EFH

    Bitte um Meinungen zu unserem Grundriss EFH: Hallo zusammen, so, nun wagen wir es auch mal, unseren Grundriss euch Experten zu zeigen. :wow Wir haben den Grundriss zusammen mit unserem...