Meinungen zum Entwurf - Massivholzhaus

Diskutiere Meinungen zum Entwurf - Massivholzhaus im Architektur Allgemein Forum im Bereich Architektur; Hallo zusammen, Die Pläne wurden auf Grundlage eines Entwurfes von mir erstellt, komprimiert und optimiert. Das Ergebnis ist natürlich mit...

  1. #41 Gast85808, 22.04.2020
    Gast85808

    Gast85808 Gast

    Da liegt genau der Fehler. Von Beginn an. Und das verstärkt den Eindruck vom Stempelaugust.

    Lobhudeleien sind hier fehl am Platz. Dafür sind zu viele Kinken drin. Und wie Du den Keller, der aufgrund der Räumlichkeiten zur gedämmten Gebäudehülle zählt, der als Betonkeller gezeichnet ist, auf Eff 55 - Niveau pimpen willst, wird im Moment ein Geheimnis bleiben.

    Das ist die brutale Realität. Wenn man das nicht sagen darf, muß man sich ans Streichelforum wenden.
     
    11ant gefällt das.
  2. mabue

    mabue

    Dabei seit:
    16.12.2019
    Beiträge:
    30
    Zustimmungen:
    3
    Okay, kurz und prägnat:
    -für Dorf ist es hier teuer, wo ist das falsch? Zu BORIS Preisen geht hier nichts über den Tisch, geschätzt Faktor 2-3. Ich finde >150.000€ für ein Grundstück viel Geld
    -das Schlafzimmer ist Vorschlag der Architektin, mein Plan waren 16 m², Dachschrägen nicht abgezogen, Wanne war auch da mit drin
    -ja wir fühlen uns auf 2,5 m² zum Schlafen wohl, 12 m² sollten ebenfalls zum Schlafen vollkommen ausreichen
    -Wohnsituation ist hinreichend geklärt, ich habe den Grund für die Planung erläutert, es geht um die Erkrankung meiner Frau. Wenn du keine Lust hast zu lesen spar dir die Kommentare
    -Wo ist das Problem von einem Zimmer ins nächste zu ziehen und eine Wand nach 10 Jahren zu entfernen, wenn das sogar schon mitgeplant ist? Flexibilität war noch nie unser Problem
    -Ja der OG Flur bekommt kein Licht, hab aber keine Idee wie ich es lösen soll
    -Richtig, wir haben und wollen wenig Möbel - Eine Wohnwand ist was für unsere Großeltern aber sicher nicht unser Stil. Die Küche hat genügend Stauraum, im Wohnzimmer ein Vitrinen-schrank, ein Sideboard und der Fernseher an der Wand mit kleinem Schränkchen drunter. Dazu noch ein bisschen Regalfläche ums Sitzfenster. Kann ja jeder sein Haus überladen wie er will, wir wollen das nicht
     
  3. mabue

    mabue

    Dabei seit:
    16.12.2019
    Beiträge:
    30
    Zustimmungen:
    3
    Ich, freue mich, dass es langsam konkreter Wird. Warum kann ein Betonkeller mit 12 cm Schaumglasdämmung im Erdreich plus durchgezogener Dämmung im nicht Erdreich (Also 16 cm Holzweichfaser) nicht für KfW 55 ausreichen?

    Dass wir keine besondere Architektenleistung erhalten haben ist mir inzwischen auch bewusst. Das ärgert mich aber wie soll ich es ändern? Wir hatten ein Angebot nach HOAI über aller Phasen haben aber wegen Eskalation nach Einreichen des Antrags den Notstop eingelegt.
     
  4. mabue

    mabue

    Dabei seit:
    16.12.2019
    Beiträge:
    30
    Zustimmungen:
    3
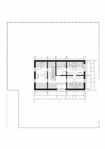
    Falls noch jemand Lust hat sich das anzuschauen: Soll das primäre Problem tatsächlich sein, dass die KiZi zu klein sind, könnte ich mir so etwas hier vorstellen. Nachteile: Keine Toilette für die Kinder im OG, Gaube weit außerhalb der Hausmitte.

    OG ohne Toilette.png
     
  5. 11ant

    11ant

    Dabei seit:
    28.02.2017
    Beiträge:
    2.579
    Zustimmungen:
    1.624
    Beruf:
    Bauherrenberater
    Ort:
    RLP Nord
    Benutzertitelzusatz:
    bringt Sie gut beraten ins Eigenheim
    Da sehe ich das wesentlichste Umdenk-Problem mit steinhäusig geprägten Architekten: im Steinhaus kann man schneller mal den Hilti rausholen, schlitzen, stemmen, trockenbauen und "schon" ist ein Rohr "aus den Augen, aus dem Sinn" - in Holzmassiv muß das alles perfekt durchdacht sitzen. Ein ähnliches Problem haben übrigens auch Bauherren, die mal eben lustig auf Schalungssteinsysteme umschwenken.
     
    simon84 und Gast85808 gefällt das.
  6. #46 Gast85808, 22.04.2020
    Gast85808

    Gast85808 Gast

    Eben, Holz hat seine eigenen Gesetze. Und Architekten/Ingenieure, die Holz können(!) sind rar gesät. Der Statiker wird hier auch noch seine helle Freude haben.
     
    simon84 gefällt das.
  7. #47 driver55, 22.04.2020
    driver55

    driver55

    Dabei seit:
    22.02.2008
    Beiträge:
    6.933
    Zustimmungen:
    1.843
    Beruf:
    Dipl.-Ing.
    Ort:
    Pforzheim
    Das ist schon mal positiv.

    57413 Finnentrop, Olpe (Kreis) 477 m², 22.500 EUR.
    (Da oben ist es ofters und länger nass, aber alles andere als teuer.)

    Das wurde hier bereits erwähnt und zurecht bemängelt. Mit dem eigenen "Grundriss" zur Architektin hin, "Mach bitte das Beste daraus, aber Treppe und so....müssen bleiben..."

    Jedes "normale" Bett für 2 hat schon 3,6 m²

    Nochmal: Hauseingang+HWR sind und bleiben unten.
    In der Tat. Zum Romane lesen habe ich hier keinen Bedarf.

    Meinetwegen, kannst die Wand in X-Jahren "rauskloppen". 3 x 8,14 m ist aber ein "furchtbarer" Schlauch.

    Siehe Punkt oben. --> Architektin

    Wer redet hier von einer 5 m Wohnwand? Es gibt genügend schicke Einzelelemente, die man frei zusammenstellen kann. Nur halt nicht vor dem Fenster.

    Ich frage mich schon seit 46 Beiträgen, was denn das Sitzfenster sein soll.


    Und "das Beste" ist, gestern schreibst ist eingereicht und auch schon genehmigt (Info hast wohl erhalten) und jetzt malst wieder selber irgendwelche Grundrisse und hoffst, dass sie besser sind / werden. Auch wenn's nur Wändeschieben ist So funktioniert eine Planung nicht!

    Muss die Dachneigung 45° haben? Der viele Regen läuft bei 20° genauso gut ab.

    Schade um das viele Holz².
     
    Gast85808, simon84 und 11ant gefällt das.
  8. mabue

    mabue

    Dabei seit:
    16.12.2019
    Beiträge:
    30
    Zustimmungen:
    3
    Okay:

    Finnentrop ist zwar hier in der Gegend aber weder Ortsgebiet noch umliegende Dörfer von Olpe. Ja, in der Ecke sind Grundstücke billig, will aber auch keiner hin.

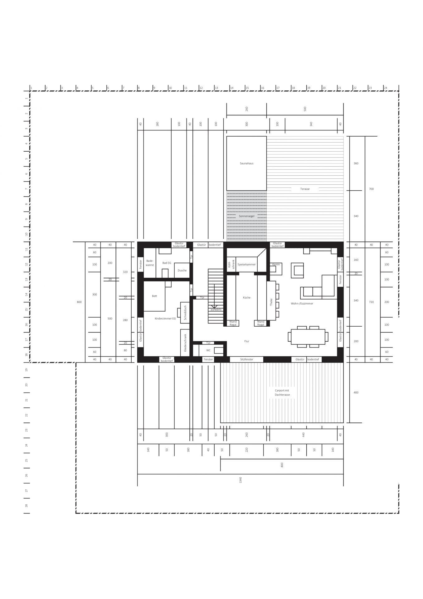
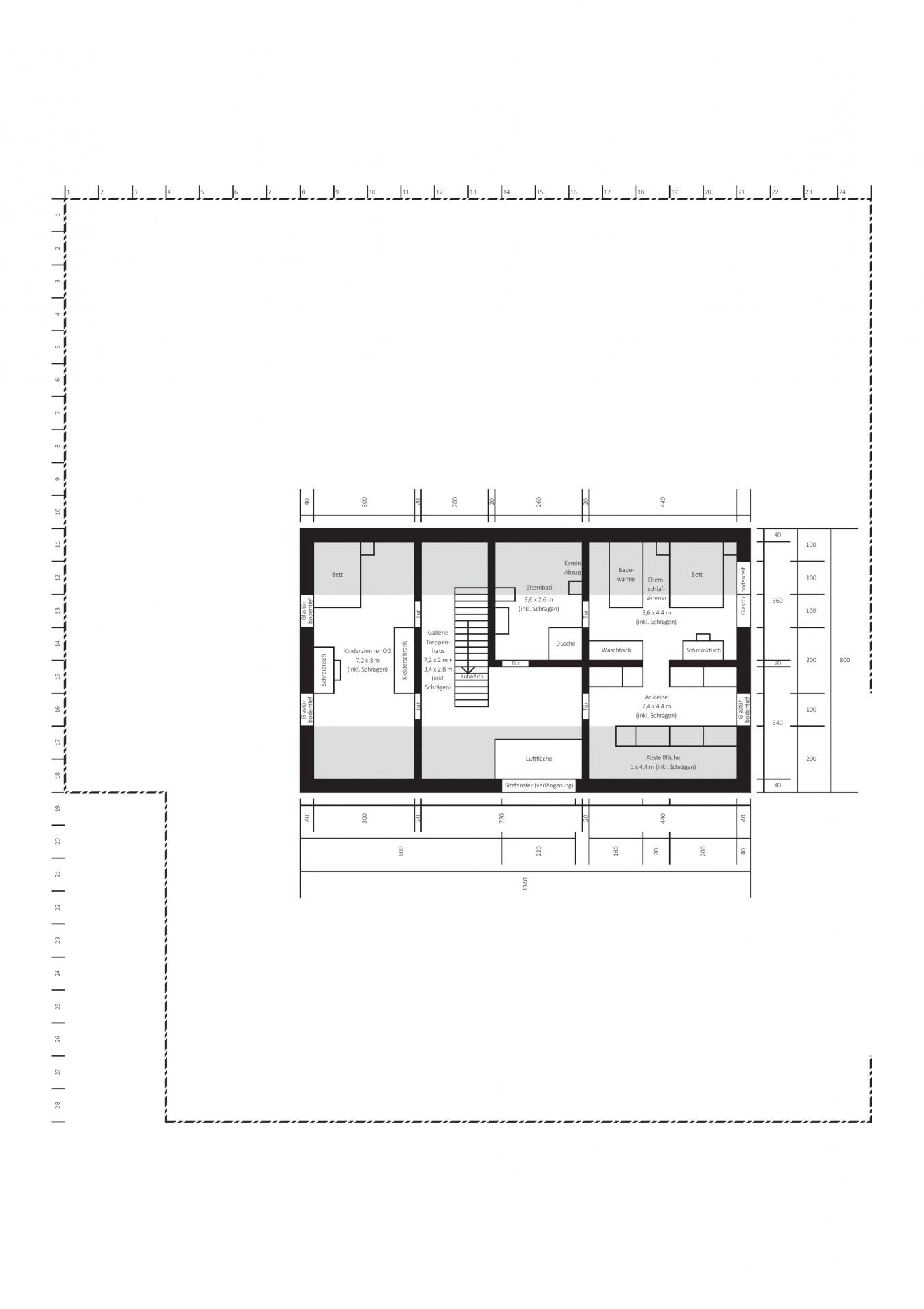
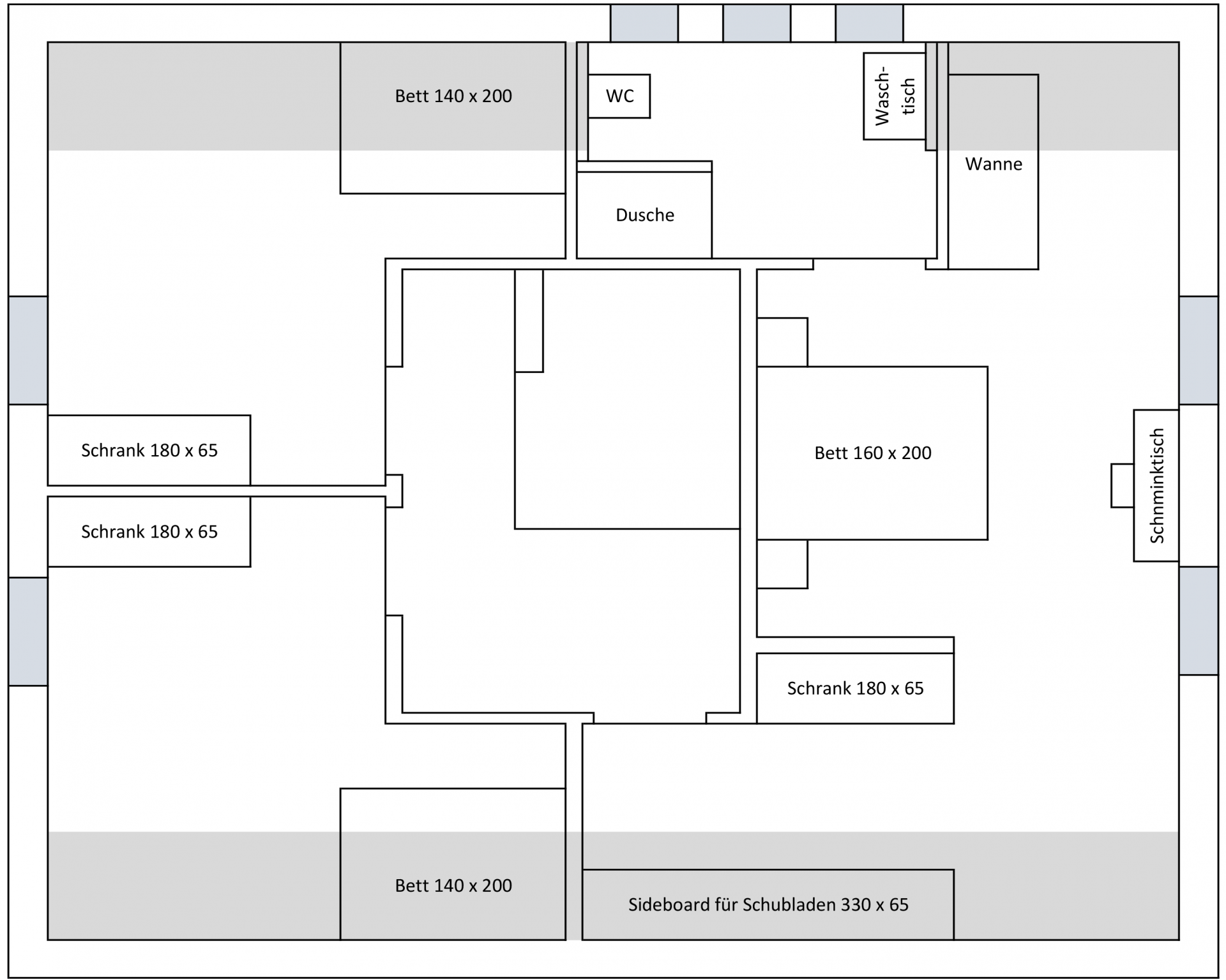
    Ich habe schon mehrfach drauf geantwortet, ja ich bin mit meinem Grundriss hin aber das was wir jetzt haben hat nichts mit meinem Grundriss zu tun. Ich füge mal MEINEN Grundriss an, der sicherlich auch nicht spruchreif war aber deswegen bin ich ja zur Architektin.

    Unser unnormales Bett hat 1,6m x 2,0m und wir haben zu zwei mehr als genug Platz. Aber du hast recht 2,5qm war Blödsinn, keine Ahnung was ich da getippt habe, es sind 5,5qm mit Schräge, sorry dafür. Der Raum in dem wir schlafen war ursprünglich als Ankleide gedacht, unsere Tochter bewohnt mit unseren Kleiderschränken unser Schlafzimmer.

    Meine Frau läuft Gefahr zukünftig nicht mehr voll mobil zu sein, daher ein Schlafzimmer im EG. Der Eintritt ist worst case, im best case bleiben wir oben.

    Richtig, gibt chice Möbel. Wir haben ein 1,8m breites Lowboard das hervorragen an die Ostwand passt. Bisher gab es keinen Grund sich etwas ausladenderes zu wünschen.

    Das Sitzfenster ist das "Panoramafenster" an der Ostwand.

    Natürlich funktioniert so eine Planung nicht aber bevor ich bei 0 Anfange, versuche ich den vorhanden Plan zu optimieren. Ich habe keine Lust 10.000€ in die Tonne zu werfen.

    Nein 45° Dachneigung müssen nicht sein. Wir haben die Höhe zum Kniestock aber schon leicht überschritten. Weniger Dachneigung bedeutet also weniger Kopffreiheit. 20° reicht sicher, damit Wasser abläuft, die Satzung sagt aber zumindest mal minimum 35°
    Layout Haus 9-001.png Layout Haus 9-002.png Layout Haus 9-003.png
     
  9. 11ant

    11ant

    Dabei seit:
    28.02.2017
    Beiträge:
    2.579
    Zustimmungen:
    1.624
    Beruf:
    Bauherrenberater
    Ort:
    RLP Nord
    Benutzertitelzusatz:
    bringt Sie gut beraten ins Eigenheim
    Mit "wie" formuliertem Planungsauftrag ? - hat sie vom weißen Blatt geplant oder sollte sie den Spirit Deines Eigenplanes "bewahren" ?
    Hast Du die Faktensammlung schon´mal erwähnt gehabt ? - was ist das für eine "Satzung" - eine örtliche Gestaltungssatzung in einem §34-Gebiet oder ein regelrechter Bebauungsplan ? - was meint "leichte Überschreitung des Kniestockes" - ist klar, daß mit einer Abweichung ein Freisteller fällt und ein voller Bauantrag benötigt wird ?
     
  10. mabue

    mabue

    Dabei seit:
    16.12.2019
    Beiträge:
    30
    Zustimmungen:
    3
    Wir haben der Architektin die Eckpunkte an die Hand gegeben, die ich hier auch genannt habe. Der Rest ist ihre Interpretation.
    Den Plan den sie von mir bekommen hat siehst du ja. Außer links-rechts Verteilung ist davon nicht viel übrig geblieben.

    Es handelt sich um eine Gestaltungssatzung für den Ortsteil. Erwähnt hatte ich sie schon ein mal. Die Abweichung wurde durch einen "Antrag zur Abweichung von baurechtlichen Vorschriften (§ 73 BauO NRW)" beantragt. "... Überschreitung ... der traufseitigen Wandhöhe um 29 cm ... unbedeutend da der Dachüberstand von 1m, eine optische Traufhöhe von 5,77 m ergibt."
     
Thema:

Meinungen zum Entwurf - Massivholzhaus

Die Seite wird geladen...

Meinungen zum Entwurf - Massivholzhaus - Ähnliche Themen

  1. Meinungen zum Grundriss (Entwurf)

    Meinungen zum Grundriss (Entwurf): Moin moin, anbei der Entwurf vom Grundriss EG / OG. Über euer Feedback würde Ich mich sehr freuen. :28:
  2. Meinung von unserem Entwurf

    Meinung von unserem Entwurf: Hallo zusammen, uns würde eure Meinung von unserem EFH interessieren. In der Zeichnung fehlen noch paar Details wie Garage zum HWR. Das Haus soll...
  3. Entwurf DHH. Eure Meinung ist gefragt!

    Entwurf DHH. Eure Meinung ist gefragt!: Hallo, wir bauen eine DHH mit einem Architekt. Anbei die Pläne. Kritik sowie Verbesserungsvorschläge sind erwünscht. Der Keller ist ziemlich...
  4. Grundriss Neubau EFH - Eure Meinungen

    Grundriss Neubau EFH - Eure Meinungen: Hallo zusammen, wir planen einen Neubau der in Richtung KfW 40 bzw. Passivhaus geht. Dabei haben wir zunächst einmal darauf geachtet einen...