Meinungen zum Vorentwurf

Diskutiere Meinungen zum Vorentwurf im Architektur Allgemein Forum im Bereich Architektur; Hi, also mir gefällt der Entwurf egtl auch recht gut. Das einzige, was mich persönlich stören würde oder besser gesagt meine Frau:motz, wären...

  1. #21 kasimodo, 03.07.2012
    kasimodo

    kasimodo

    Dabei seit:
    22.06.2012
    Beiträge:
    8
    Zustimmungen:
    0
    Beruf:
    Arbeitslos
    Ort:
    Berlin
    Hi,

    also mir gefällt der Entwurf egtl auch recht gut. Das einzige, was mich persönlich stören würde oder besser gesagt meine Frau:motz, wären die vielen Fenster, denn die müssen ja auch geputzt werden... Ansonsten echt schön.

    Gruß
     
  2. #22 Thomas B, 03.07.2012
    Thomas B

    Thomas B

    Dabei seit:
    17.08.2005
    Beiträge:
    11.181
    Zustimmungen:
    4
    Beruf:
    Dipl.Ing.
    Loggia leuchtet mir nicht ein!

    Wäre kein Garten vorhanden...dann O.K., aber mit garten ist es nur eine Art "Notlösung"...irgendwas muß da ja hin, oder?

    Vorangegangene Entwürfe waren ja auch schon sehr gut (wie ich finde).

    Problempunkte (Abdichtung) ist sicher lösbar aber eben ein "Problem"punkt. Durchdringungen (Säule), Randdetails usw. sind schwierige Deatils, die hier ohne Not eingebaut werden. Dem Baukörper täte eine klare Form sicher besser als ein "Loch" zwischen EG und Dach.

    Thomas
     
  3. #23 blubbaster, 03.07.2012
    blubbaster

    blubbaster

    Dabei seit:
    02.07.2012
    Beiträge:
    5
    Zustimmungen:
    0
    Beruf:
    Student
    Ort:
    Kobl
    Der Beitrag war sehr wohl gut überlegt.

    Es waren nur Denkanstöße. Es muss natürlich jeder selber wissen, was für ihn persönlich wichtiger an einem Haus ist. Ich will auch deinen Architekten nicht schlecht Reden.


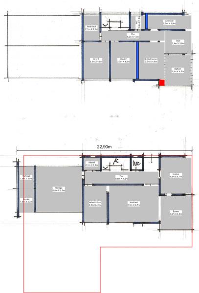
    Das bzgl. dem Ankleide Zimmer habe ich wohl nicht deutlich ausgedrückt. Damit war nicht gemeint, dass das Ankleidezimmer in die Südseite gelegt werden soll. Wenn das Schlafzimmer, große Bad und die Ankleide nur von dir und deiner Frau benutzt werden, wieso legt ihr es nicht zu einem großen "Raum" zusammen? So wie hier (ganz rechts im Bild) Klick Durch diese Raumfolge Schlafen-Ankleide-Bad, gewinnt ihr zusätzliche Raumfläche im OG. Des weiteren kannst du auch mal nackt vom Bad in die Ankleide gehen ;D ohne dass deine Kinder dich sehen.

    Aus deinem anderen Beitrag lese ich, dass ihr ein "lang gezogenes" Haus haben wollt. Wieso setzt der Architekt das Konzept nicht konsequent um? Immer wieder entstehen Rücksprünge im Haus, dadurch wirkt das Haus wild zusammengewürfelt.
    Nur ein Vorschlag, wenn ihr die ganze Garage etwas weiter nach oben versetzt (bündig mit der Hauskante). Den Stellplatz für Fahrräder und der andere Raum kommt unter die Garage und schließt ebenfalls bündig mit der Hauskante ab. ensteht links neben der Garage viel Platz. Die ganze Garage kann nun weiter nach links verschoben werden und eure Haus wird noch ein Stück länger. Durch diese einheitliche Kante an der oberen und unteren Seite ist das Konzept vom "langgezogenem Haus" deutlich besser zu erkennen.


    Viel Spaß noch bei der weiteren Planung ;)
    ...und haltet euch nicht zu sehr an einer Idee auf...
     
  4. #24 DerBauherr, 03.07.2012
    DerBauherr

    DerBauherr

    Dabei seit:
    10.01.2011
    Beiträge:
    212
    Zustimmungen:
    0
    Beruf:
    Dipl.-Ing. Elektrotechnik
    Ort:
    München
    Das haben wir gerade nicht gemacht da dann 5 Meter Abstand zwischen Hoftor und Garagentor entstehen -> da bekomme ich kein Auto mehr vor der Garage geparkt ...
     
  5. Baumal

    Baumal

    Dabei seit:
    02.08.2007
    Beiträge:
    16.077
    Zustimmungen:
    8
    Beruf:
    Architekt
    Ort:
    Ravensburg
    der kinder - eltern bereich ist doch durch eine tür getrennt?
    und davon ab, was ist schlimm daran, wenn kinder ihre eltern nackt sehen?
     
  6. #26 DerBauherr, 03.07.2012
    DerBauherr

    DerBauherr

    Dabei seit:
    10.01.2011
    Beiträge:
    212
    Zustimmungen:
    0
    Beruf:
    Dipl.-Ing. Elektrotechnik
    Ort:
    München
    Hallo Thomas,

    danke für deinen Beitrag.

    Die vorangegangenen Entwürfe waren alles etwas zu würfelig oder in kritischen Bereichen haben sie uns nicht gefallen (oder hast du noch einen speziellen Entwurf im Kopf).
    Der aktuelle Entwurf erfüllt in Sachen Raumprogramm, Gebäudeform, Lage der Räume etc. eigentlich all unsere Erwartungen.

    Und die Idee, mit der Loggia die Fenster von Schlafzimmer und Bad aus der Sicht zu nehmen sowie durch die Wegnahme von der Fassade hier mehr Spielraum zu erhalten leuchtet mir auch ein.

    Was würdest du an dieser Stelle machen (sicher eine nicht so einfach zu beantwortende Frage)? Ich will das restliche Konzept eigentlich nicht über den Haufen werfen.

    Meine Idee wäre noch, die Küchenfront vorzuziehen um de Fassadensprung wegzunehmen und die Loggia kleiner zu machen (dadurch ensteht allerdings ein kleiner Eck neben der Loggia wenn im EG der Essplatz die gleiche größe haben soll):

    Variante B3 gerade Küchenfront.jpg

    Meinungen? (Sind erst mal nur meine laienhaften Ideen, daß ich damit noch zu meinem Architekten gehe ist klar)

    Viele Grüße,

    Martin.
     
  7. #27 siemenlufthaken, 03.07.2012
    siemenlufthaken

    siemenlufthaken

    Dabei seit:
    01.06.2011
    Beiträge:
    163
    Zustimmungen:
    0
    Beruf:
    architekt
    Ort:
    Harburg
    Ob die Terrasse in der Realität viel Vergnügen bringt, muss abgewartet werden. Hängt auch mit von Fassdenfarbe ab - tagsüber knallt da voll die Sommersonne drauf.
    Generell nicht verstanden sind die in die Raumecken gepressten Türen - dazu fehlt aber dieangedachte Möblierung. In derAnkleide hängen so zwangsläufig die Klamotten an der Aussenmauer - kann gut gehen, muss aber nicht sein. Die Garage wird offensichtlich beheizt? Ansonsten wirds ggf. ungemütlich mind. hinten im Flur Bereich der Türe. Die Flurwand im Arbeiszimmer wird wegen der 2 Türanordnungen nur zum Aufhängen von Bildern genutzt werden? Der Postbote/Staubsaugervertreter darf an der Haustüre bis ins Wohnzimmer durch(gucken)? Woim WoZi soll die Garnitur stehen, wo Schrank/Fernseher? Küche: keine Oberschränke gewünscht? Brüstung Fenster? Da ist die einzige vernünftige Wandlänge für eine Arbeitsplatte mit der man was anfangen kann? Die Klamotten vom Besuch liegen über Sofalehne? Für eine Garderobe seh ich im gesamten Flur nirgends was - aber: der ist Klasse für Babys Gehfrei und später für Juniors BobbyCar. Oben 2 Bäder, aber nirgends Abstellfläche, wo man den Putzkram dafür unterbringt, von einem Staubsauger ganz zu schweigen. Zentralstaubsauganlage? Und oben auch wieder die Türen in die Raumecken gepresst, damit man mit der Aufstellung von Schränken puzzlen muss. Wie soll denn das Bett im Eltern-Schlazi aufgestellt werden? Und warum Eltern-Bad,wenn nur über Flur zugänglich?
    Könnt noch so weiter. Fazit: muss jeder bauen, wies gefällt. Und wenn man nicht dran denken muss, dass man die Laube irgendwann mal (spätestens im Alter) an den Mann bringen muss. Im Fall der Fälle kann man eine Krankentrage ja auch über die Terrasse runter ... Ach ja: das Fenster an der Treppe ist ein Lichtband? Oder vollflächig verglast? Wird dann wie und wann geputzt? Und wie und wo gesichert? Schon mal Referenzobjekte vom Planer bewohnt besichtigt?
     
  8. #28 DerBauherr, 03.07.2012
    DerBauherr

    DerBauherr

    Dabei seit:
    10.01.2011
    Beiträge:
    212
    Zustimmungen:
    0
    Beruf:
    Dipl.-Ing. Elektrotechnik
    Ort:
    München
    Hallo!

    Danke für die lange Liste - ich werde sie gründlich abheften!

    Aber ich darf sagen, daß das hier das Resultat von LP2 ist, also vieles nur skizzenhaft dargestellt ist und noch beiliebe keine endgültige Version darstellt.

    Das werde ich jetzt dann in LP3 & 4 angehen.

    Ich halte euch auf dem Laufenden!

    Viele Grüße,

    Martin.
     
Thema:

Meinungen zum Vorentwurf

Die Seite wird geladen...

Meinungen zum Vorentwurf - Ähnliche Themen

  1. Mangelhafte Dachdämmung erneuern, 3 Handwerker 3 Meinungen

    Mangelhafte Dachdämmung erneuern, 3 Handwerker 3 Meinungen: Hallo zusammen, ich bin leicht verzweifelt und wende mich deshalb an das Experten Kollektiv. Unser EFH BJ 2000 hat eine mangelhaft ausgeführte...
  2. Neuer Vorentwurf - Bitte um Meinungen

    Neuer Vorentwurf - Bitte um Meinungen: Hallo, Mich würden eure Meinungen zur Gebäudeform und zur Hülle interessieren. Die Innenräume, vor allem die Schlafräume im OG, werden sich noch...
  3. Vorentwurf EFH 170m2 - Bitte um eure Meinungen

    Vorentwurf EFH 170m2 - Bitte um eure Meinungen: Hallo, hier der Vorentwurf des Architekten, ich wäre sehr froh um eure Meinungen und Inputs. Grundstück ist 510 m2 groß, leichte Hanglage....
  4. Eure Meinung zur Vorentwurf für unseren Bungalow

    Eure Meinung zur Vorentwurf für unseren Bungalow: Hallo zusammen, wir haben heute von unsere Bauträger einen Vorentwurf für unserem Bungalow bekommen. Bemerkung: 1. Der ist einen Barrierefreies...
  5. Meinungen zu Vorentwurf EFH ca. 185m2 ohne Keller

    Meinungen zu Vorentwurf EFH ca. 185m2 ohne Keller: Hallo, nach monatelangen mitlesen im Forum würde ich mich über konstruktive Kritik zu unserem Vorentwurf freuen. Ein paar Rahmendaten: Wir...