Nachtrag zum geschlossenen Tread

Diskutiere Nachtrag zum geschlossenen Tread im Architektur Allgemein Forum im Bereich Architektur; Hallo, das mit den geschützten Zeichnungen war mir nicht bekannt, sorry. Kann ich die Zeichnungen noch mal ohne die Bezeichnung einstellen?...

  1. #1 Alex2479, 30.01.2012
    Alex2479

    Alex2479

    Dabei seit:
    26.01.2012
    Beiträge:
    34
    Zustimmungen:
    0
    Beruf:
    Arbeitsvorbereitung
    Ort:
    Dillenburg
    Hallo,

    das mit den geschützten Zeichnungen war mir nicht bekannt, sorry.
    Kann ich die Zeichnungen noch mal ohne die Bezeichnung einstellen?

    Zu den Grundrissen.
    Die Möblierung und die Anordnung der Badmöbel sind nur Beispielhaft, das wird nicht so umgesetzt. Die Außenwand ist aus einem 30er Stein.

    Der Abstand von der Couch zum TV wird ca. 5,50 betragen, ich denke das ist ok.

    Ich kann die tragenden Wände nicht mehr ändern, weil die Statik schon fest ist. Oben kann ich noch ändern was ich will, da Leichtbauwände.

    Die Treppe zum OG soll ein Betonfertigteil werden, bin da aber noch am überlegen ob ich die nicht ersetze. Mir gefällt ein Podest auch besser.

    Kann mir jemand noch Tipps geben wie ich das unten mit dem Zimmer und
    dem Gäste WC besser lösen könnte?

    Danke.

    Mit freundlichen Grüßen
    Alex
     
  2. #2 Gast036816, 30.01.2012
    Gast036816

    Gast036816 Gast

    wenn der plankopf nicht lesbar ist und sonst keine namen von personen enthalten sind, dann kannst du die plaene einstellen.
     
  3. #3 Alex2479, 30.01.2012
    Alex2479

    Alex2479

    Dabei seit:
    26.01.2012
    Beiträge:
    34
    Zustimmungen:
    0
    Beruf:
    Arbeitsvorbereitung
    Ort:
    Dillenburg
    So hier noch mal die Grundrisse.
    Würde mich für Vorschläge über die Änderung der Zimmergrößen oben im OG und des Gäste WC´s sehr freuen.

    MfG
    Alex
     
  4. #4 orangebug, 30.01.2012
    orangebug

    orangebug Gast

    Wo soll die Garderobe hin?

    Aber da dir die WC/Arbeitszimmer-Lösung ja eh nicht gefällt:

    Arbeitszimmer in den HWR, HWR ins Arbeitszimmer, allerding den Bereich neben dem WC nutzen als Garderobe. Sprich Türe weiter nach hinten verschieben.

    Müsste man mal nachmessen ob das machbar wäre.
     
  5. LaZi

    LaZi

    Dabei seit:
    27.01.2011
    Beiträge:
    559
    Zustimmungen:
    0
    Beruf:
    Tanztrainerin
    Ort:
    Niedersachsen
    Ki.2. mit Eltern tauschen, dann haben beide KiZi die Sonnenseite. Im Schlafzimmer ist man sowieso meistens Nachts.
     
  6. #6 Alex2479, 30.01.2012
    Alex2479

    Alex2479

    Dabei seit:
    26.01.2012
    Beiträge:
    34
    Zustimmungen:
    0
    Beruf:
    Arbeitsvorbereitung
    Ort:
    Dillenburg
    Erstmal vielen Dank für die Antworten.

    Die Idee mit dem AZ und HWR finde ich sehr gut und werde sie auch so umsetzen, genauso wie der Zimmertausch im OG.

    Wie ich aber die Zimmer im OG auf gleiche Größe bringen kann, das weiß ich noch nicht.

    MfG
    Alex
     
  7. #7 TraurigerBauher, 30.01.2012
    TraurigerBauher

    TraurigerBauher

    Dabei seit:
    14.03.2010
    Beiträge:
    273
    Zustimmungen:
    0
    Beruf:
    Beamter
    Ort:
    Norddeutschland
    Hallo,

    wenn Du AZ und HWR tauschst, wird aber die Erschließung deutlich teurer (Leitungen kommen, nehme ich an, von der Straße).

    Für eine Podesttreppe reicht der Platz erst recht nicht.

    Man könnte die Größe der Zimmer angleichen, indem man da eine "Ecke" reinmacht. Ich würde es aber eher so lassen, denn mit Ecke verlieren beide Zimmer.
     
  8. #8 Alex2479, 30.01.2012
    Alex2479

    Alex2479

    Dabei seit:
    26.01.2012
    Beiträge:
    34
    Zustimmungen:
    0
    Beruf:
    Arbeitsvorbereitung
    Ort:
    Dillenburg
    Hallo,

    Ja die Versorgungsleitungen kommen von der Straße, ich brauche Wasser und Strom. Ich muss mich dann mal erkundigen um wieviel teuerer das dann ist.
    Finde die Lösung trotzdem nicht schlecht.

    Bezüglich der Treppe, mein Hausanbieter würde mir für die Betontreppe ca.2000€ rück erstatten.
    Die Frage ist, lohn sich das dann auf eine Holztreppe umzusteigen ? Ich denke die würde auch etwas besser da rein passen, oder was
    ist eure Meinung ?

    MfG
    Alex
     
  9. #9 ThomasMD, 30.01.2012
    ThomasMD

    ThomasMD

    Dabei seit:
    19.11.2009
    Beiträge:
    5.097
    Zustimmungen:
    4
    Beruf:
    Ing.
    Ort:
    Magdeburg
    Ist dann auch das Kopieren von Geldscheinen erlaubt, wenn ich die Unterschrift vom EZB-Direktor unkenntlich mache?
    Es ist mir neu, dass das Urheberrecht ausgehebelt wird, wenn man den Namen des Rechteinhabers verschleiert.
     
  10. #10 Alex2479, 14.06.2012
    Alex2479

    Alex2479

    Dabei seit:
    26.01.2012
    Beiträge:
    34
    Zustimmungen:
    0
    Beruf:
    Arbeitsvorbereitung
    Ort:
    Dillenburg
    Hallo Zusammen,

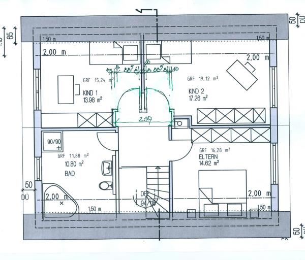
    ich stehe bei meinem BV gerade vor den Ihnnenwänden im OG, mein Problem sind die schrägen Türen. Die Ausführung gefällt mir nicht so richtig. Es war zwar so geplant, aber ich kann die Wände noch so ändern wie es möchte. Ich will die Türen aber auch nicht ganz nach vorne ziehen, da sonst der Flur ziemlich klein ist und man steht nach Treppenaufgang sofort vor den Türen.

    Könnt Ihr mir bitte mal helfen, wie es besser ist Eingänge zu den Räumen auszuführen?

    Vielen Dank schon mal.

    Mfg
    Alex
     

    Anhänge:

    • DG.pdf
      Dateigröße:
      46,9 KB
      Aufrufe:
      466
  11. #11 coroner, 14.06.2012
    coroner

    coroner

    Dabei seit:
    17.12.2009
    Beiträge:
    1.908
    Zustimmungen:
    1
    Beruf:
    IT Consultant
    Ort:
    Ulm/Deutschland
    Benutzertitelzusatz:
    Baulaie
    Also das OG in deinem originären Posting war besser..
    Aber dass der Schornstein nun in ner Nische verschwindet ist schonmal angenehm...

    Warum nicht wieder runterziehen die Türen? Das ist doch nicht zu eng!
    Ist der Flur schmaler geworden, oder woher kam die Intention hier diese
    Winkel einzubauen?
     
  12. #12 Gast036816, 14.06.2012
    Gast036816

    Gast036816 Gast

    breiter machen -mind 2,35 m - und alles rechtwinklig. 45 grad ecken haben noch nie ueberzeugen koennen.
     
  13. #13 Baufuchs, 14.06.2012
    Baufuchs

    Baufuchs Gast

    Wenn nicht zuviel geändert werden soll, machs wie im 1. Vorschlag und zieh die Querwand so ein, das in Kind 1 die Schranknische bleibt.
     
  14. #14 Alex2479, 14.06.2012
    Alex2479

    Alex2479

    Dabei seit:
    26.01.2012
    Beiträge:
    34
    Zustimmungen:
    0
    Beruf:
    Arbeitsvorbereitung
    Ort:
    Dillenburg
    Also breiter machen kann ich den Flur nicht, der Schornstein behält seine Position. Und das Treppenloch ist auch nur 2.0 Meter breit.
    Das heißt ich würde die Türen wie in ersten Version ausführen, nur etwas weiter hoch schieben?
    Ich denke auch das, das die beste Lösung ist.

    Mfg
    Alex
     
  15. #15 Gast036816, 16.06.2012
    Gast036816

    Gast036816 Gast

    ich hatte mir das so vorgestellt:

    DG überarbeitet.jpg

    es ist nicht die optimale lösung, jedoch gibt es mehr wohnfläche. bei rechtwinkliger anordnung, flurbreite mit 2,01 m und 88,5 cm türen gibt es minimale anschläge oder eckzargen. 76 cm türen würden auch möglich sein, das ist aber nicht das funktionale maß für den zugang von wohnräumen.
     
  16. #16 Alex2479, 17.06.2012
    Alex2479

    Alex2479

    Dabei seit:
    26.01.2012
    Beiträge:
    34
    Zustimmungen:
    0
    Beruf:
    Arbeitsvorbereitung
    Ort:
    Dillenburg
    Hallo, vielen Dank für die Hilfe. Ich werden versuchen es so umzusetzen.

    MfG
    Alex
     
Thema:

Nachtrag zum geschlossenen Tread

Die Seite wird geladen...

Nachtrag zum geschlossenen Tread - Ähnliche Themen

  1. Nachträglich Unterputz-Sprechanlage in fertiges WDVS (16cm) – Fachgerecht möglich?

    Nachträglich Unterputz-Sprechanlage in fertiges WDVS (16cm) – Fachgerecht möglich?: Hallo zusammen, ich möchte an unserer fertiggestellten Fassade (16cm EPS) eine Video-Sprechanlage nachrüsten. Bevorzugt wäre eine...
  2. Tiefborde (Terrasseneinfassung) nachträglich erhöhen

    Tiefborde (Terrasseneinfassung) nachträglich erhöhen: Hallo zusammen, wir möchten unsere Terasse um ca. 13 cm erhöhen und das aktuell vorhandene Gefälle 2 % ausgleichen. Die Tiefborde sind...
  3. Randsteine nur einseitig in Beton gesetzt - wie kann ich diese nachträglich ertüchtigen?

    Randsteine nur einseitig in Beton gesetzt - wie kann ich diese nachträglich ertüchtigen?: Hallo Zusammen, ich brüte hier über folgender Situation: Vor fünf Jahren haben wir neben dem Hochbeet die kleine Pflasterfläche für eine...
  4. Schiedel Schornstein nachträglicher Anschluss

    Schiedel Schornstein nachträglicher Anschluss: Hallo Ich suche für einen las keramik schornstein einen Anschlussstein 18 zum nachträglichen Anschluss einer Gastherme. Wäre sehr dankbar wenn...
  5. Gipskarton Wand nachträglich Schalldämmen

    Gipskarton Wand nachträglich Schalldämmen: Hallo ich zerbreche mir seit Tagen den Kopf: Folgendes Problem: Bei einer 10 Jahre alten Wohnung, wurde bei den GK Wänden gepfuscht, keine...