Neubau – Grundriss, Firstrichtung und Vorgehen

Diskutiere Neubau – Grundriss, Firstrichtung und Vorgehen im Architektur Allgemein Forum im Bereich Architektur; Hallo zusammen, wir sind noch ganz am Anfang unseres Bauprojekts: das Grundstück steht fest (muss noch geteilt und umgeschrieben werden,...

  1. #1 BauDino, 21.03.2026
    BauDino

    BauDino

    Dabei seit:
    20.03.2026
    Beiträge:
    1
    Zustimmungen:
    0
    Hallo zusammen, wir sind noch ganz am Anfang unseres Bauprojekts: das Grundstück steht fest (muss noch geteilt und umgeschrieben werden, Bodengutachten ist beauftragt). Wir konkretisieren gerade unsere Vorstellungen, haben eine Idee für ein Raumkonzept skizziert, und planen gerade unser Vorgehen (tendenziell Entwurf mit Architekt, Ausführung mit GU). Wir würden uns über ehrliches Feedback zu unseren Ideen freuen und haben ein paar konkrete Fragen.

    1. Wir sind:
    • Ehepaar (Anfang 30) mit einem Kleinkind (bleibt erstmal so)
    • Keine Bauerfahrung (Akademiker ohne handwerkliche Skills)
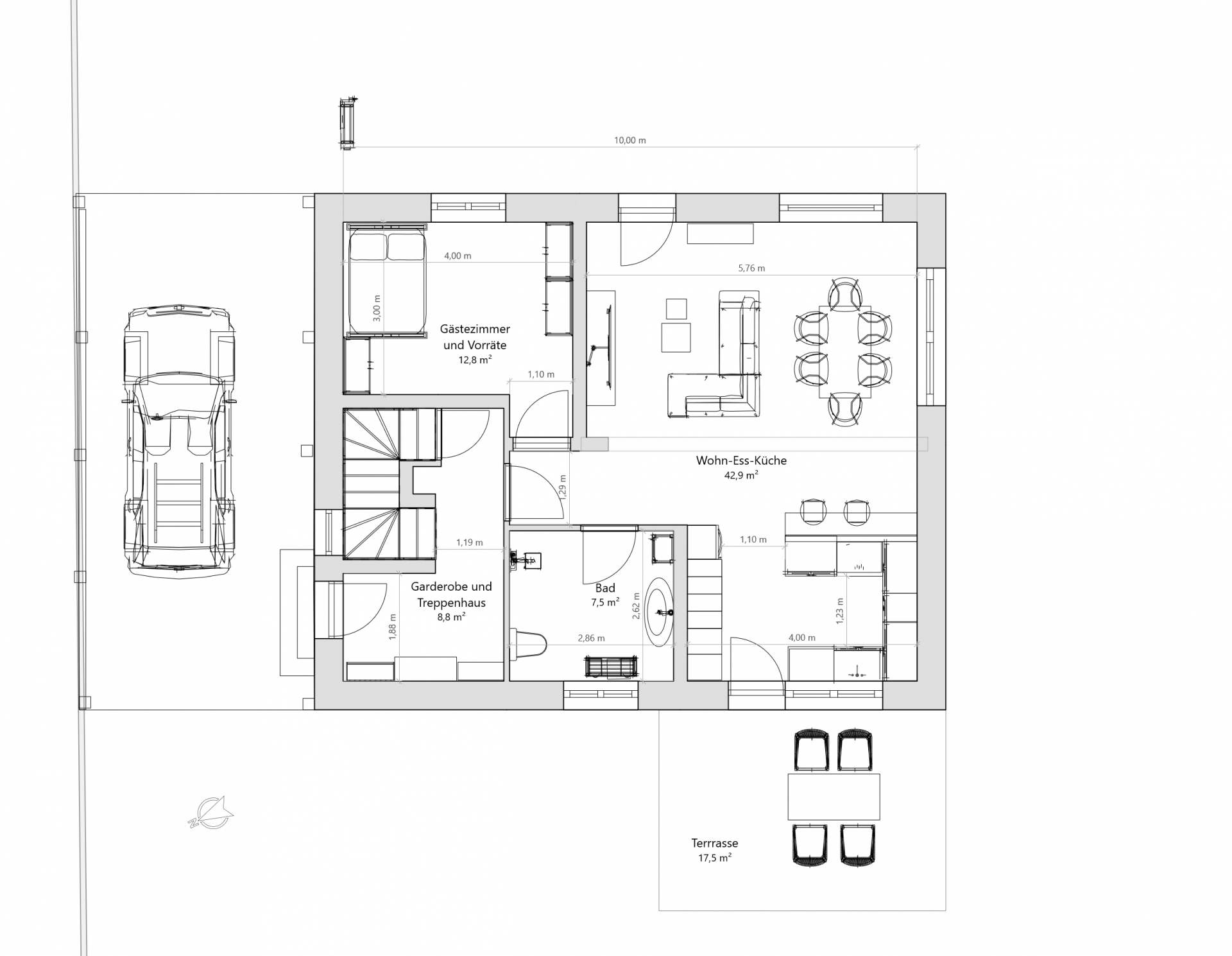
    2. Unser Raumprogramm:
    • wir träumen von einem Haus mit flexibler Etagen-Nutzung je nach Lebensphase, bspw.
      • Mit Kind: EG + OG bewohnen, DG vermieten
      • Ohne Kind: OG + DG bewohnen, EG vermieten
      • Im hohen Alter / einer alleine: EG bewohnen, OG + DG vermieten
      • daher: separates Treppenhaus, ein Bad je Etage
    • EG: 1 Gästezimmer, 1 Koch-Ess-Wohnzimmer
    • OG: 1 Kinderzimmer, 1 Schlafzimmer, 1 Arbeitszimmer, 1 Wohnzimmer
    • DG: Studio-Mietwohnung
    • Keller mit 2 Nutzräumen, Wäscheraum und HTR
    3. Welchen Hausstil bevorzugen wir?
    und warum? (Stilrichtung, Dachform, Gebäudetyp)
    • Satteldach (BPlan-Vorgabe, 30-35°)
    • 2 Vollgeschosse
    • bevorzugt mit Keller
    • roter Klinker (haben alle Häuser in der Straße)
    4. Welche Zusatzwünsche/Features hätten wir gern und warum?
    • 1 Carport, 1 Stellplatz, 1 Terrasse, 1 Balkon
    5. Bebauungsplan/Einschränkungen
    • Grundstück: ca. 25m x 44m (nicht rechtwinklig!)
    • die Nachbars-Grenzen im Norden und Süden bilden einen 96° (bzw. 84°) Winkel zur Straßen-Grenze im Westen (die Grenze im Osten muss noch gezogen werden).
    • relativ ebenes Gelände (Höhenspiel <0,5m)
    • aber ca. 1m höher als die Straße gelegen (steile Böschung auf der Grenze, daher Einfahrt mit Steigung)
    • Satteldach, 30-35°
    • max. 2 Vollgeschosse
    • Kniestock max. 0,5m
    • Sockel max. 0,5m
    • offene Bauweise
    • First parallel zur Straßen-Grenze
    • keine Trauf-/Firsthöhe vorgegeben
    • Baufenster siehe Bild
    Auf dem südlichen Nachbargrundstück steht ein riesiges MFH (21 Parteien, 2 Vollgeschosse plus 2 Dachgeschosse, Erdreich 1m höher gelegen), daher präferieren wir Terrassen und Balkone nach Westen (oder Osten).
    Auf dem nördlichen Nachbargrundstück ist ein freies Baufenster (8m Abstand zu unserer Grenze, Firstrichtung parallel zur gemeinsamen Grenze)

    6. Weitere Wünsche

    Als Highlight im Wohnzimmer träumen wir von einem kleinen Erker (60° Wände) oder einem Sitzfenster.

    7. angedachte Haustechnik
    • KFW 40
    • FBH mit LW-WP
    • PV mit Speicher
    • KWL mit Rückgewinnung
    • KNX noch unklar
    8. Hausentwurf

    Eigene Amateurplanung

    9. Preisschätzung

    Eigene Einschätzung: 720T€ (zzgl. Küche, Carport, Einfahrt)
    → was meint ihr?

    10. Konkrete Fragen

    Firstrichtung
    Wir überlegen bei der Firstrichtung eine Abweichung vom BPlan zu beantragen, damit die nördliche Hauswand parallel zur Nachbargrenze verläuft, dort überlegen wir das Carport auf die Grenze zu bauen. Bei dem nördlichen Nachbargrundstück gab es bereits eine BPlan Änderung, das neu eingetragene (noch unbebaute) Baufenster weist dort eine Firstrichtung parallel zur gemeinsamen Grenze aus. Also entweder
    a) First parallel zur Straße (wie im BPlan)
    b) First senkrecht zur nördl. Grenze beantragen (dann hätte die West-Seite auch etwas früher Sonne)
    c) First parallel zur nördl. Grenze beantragen (Ist das für PV sinnvoller? Wir möchten lieber nach Osten und Westen schauen, als auf das riesige Haus im Süden)

    An welchen Kriterien sollten wir uns hier orientieren? Nimmt man eine 6° Drehung optisch überhaupt wahr?

    Vorgehen (Architekten und GU Auswahl)
    Bei der Recherche zum Vorgehen habe ich den Fahrplan von 11ant gefunden, mit der Untergliederung der LP in drei Module. Anderswo (in einem Buch und Podcast) wird empfohlen LP 1-3 von einem Architekten zum Festpreis zu beauftragen, und anschließend GU Angebote einzuholen. Da wir keine Bauerfahrung haben, tendieren wir eh zur Ausführung mit GU, aber sind uns gerade unsicher ob wir im Internet einen Architekten suchen sollten, der deutschlandweit zum Festpreis „in Anlehnung an LP 1-3“ arbeitet, oder lieber einen Architekten vor Ort nach HOAI suchen, ihn mit LP 1-2 beauftragen und anschließend GU Angebote anfragen.

    Mein Bauchgefühl sagt lieber zweiteres, aber das Internet sagt ich soll als Bauanfänger nicht auf mein Bauchgefühl hören :lock
    Was würdet ihr empfehlen?

    Die Frage ob „vor Ort“ oder „übers Internet“ wird sich uns auch noch beim Bauchsachverständigen (angedacht für Angebotsvergleich, Vertragsprüfung, (Roh-)Bauabnahmen) stellen.

    Und sollte man so einen selbst entworfenen Grundriss einem Architekten zeigen? Hilft das, um die eigenen Vorstellungen zu kommunizieren/visualisieren oder sollte man lieber nur die schriftliche Wunschliste, den Budgetrahmen und den BPlan zum Erstgespräch mitnehmen?

    Vielen Dank schonmal!

    BPlan.jpg BPlan-Festsetzungen.png Lageplan.png Lageplan-alternative-Firstrichtung.png KG.png EG.png OG.png DG.png
     
  2. #2 msfox30, 21.03.2026
    msfox30

    msfox30

    Dabei seit:
    12.05.2015
    Beiträge:
    2.415
    Zustimmungen:
    830
    Beruf:
    IT Berater
    Ort:
    Halle
    Also keine Scheidung geplant :D.
    Auf alle Fälle einen Bausachverständige VOR! Vertragsabschluss hinzuziehen. Nicht das ihm später die Hände gebunden sind, weil bestimmte Dinge vertraglich nicht geregelt.
    Unserer GU hatte sich z.B. affig, als es um Nachweise ging. Laut BauSachV stand uns das zu. Wenn es aber gleich im Vertrag steht, ist so etwas geregelt UND, Standard gibt es nicht. Im Vertrag soll DAS stehen, was verbaut werden soll.
     
    BauDino gefällt das.
  3. #3 driver55, 21.03.2026
    driver55

    driver55

    Dabei seit:
    22.02.2008
    Beiträge:
    6.899
    Zustimmungen:
    1.810
    Beruf:
    Dipl.-Ing.
    Ort:
    Pforzheim
    Eine Eierlegende Wollmilchsau gibt’s beim Bau nicht.
    Baue und lebe im HIER und JETZT!
     
    11ant gefällt das.
  4. #4 Kriminelle, 21.03.2026
    Kriminelle

    Kriminelle

    Dabei seit:
    16.05.2013
    Beiträge:
    3.757
    Zustimmungen:
    2.081
    Beruf:
    .
    Ort:
    Niedersachsen
    Um Gottes Willen, nein.
    Er funktioniert auch nicht. Der DG-ELW-Bewohner hat Kontakt zu Euren Flur und somit nicht vermiettauglich. Der könnte in Euer Arbeitszimmer, und die Räume sind mehr als schön oder funktionell.
    By the Way fehlt der ausgefüllte Fragebogen, der angepinnt ist in diesem Unterforum.
     
    driver55 gefällt das.
  5. #5 VollNormal, 22.03.2026
    VollNormal

    VollNormal

    Dabei seit:
    20.11.2021
    Beiträge:
    4.203
    Zustimmungen:
    2.830
    Beruf:
    Bauingenieur
    Ort:
    Bochum
    Auf welcher Grundlage willst du denn da irgendwelche Angebote anfragen, wenn noch nicht mal der Entwurf steht?

    Angebote und Vertrag sind Schriftstücke, die kann jeder des Lesens Kundige egal wo auf der Welt prüfen und beurteilen. Aber wie willst du eine Abnahme aus der Ferne durchführen? Und vor die Abnahme haben die Götter die Ausführung gesetzt - als bekennender Baulaie sei dir dringend angeraten, auch die örtliche Bauüberwachung einzukaufen.
     
    driver55 gefällt das.
  6. 415B

    415B

    Dabei seit:
    03.12.2024
    Beiträge:
    1.455
    Zustimmungen:
    251
    Kauft euch Lego und baut das mal nach. Dann fallen euch die Fehler selbst auf.
     
  7. ToTi

    ToTi

    Dabei seit:
    27.01.2025
    Beiträge:
    1.238
    Zustimmungen:
    720
    Beruf:
    Dachdecker
    Ort:
    Im Süden von Deutschland
    Ich kann nur zum Dach was sagen. Idealerweise ist hat das Dach eine Ost-Westausrichtung. Bei der Planung von Dachfenster, Kamin und Dunst- und Entlüftungsrohren solltet ihr die PV-Anlage im Auge behalten und die Pläne übereinander legen. Im dümmsten Fall verschenkt ihr sonst PV-Fläche! Ein Erker sieht "hübsch" aus, macht aber eigentlich nur Stress beim bauen (für den Handwerker ;) ) und ist teuer. Dann lieber ein schönes Sitzfenster, dass man mit den richtigen Möbel schön zu Geltung bringen kann und noch bequem sind. Ortgangüberstände am besten mit Blech oder Schiefer verkleiden, dann spart man sich das streichen in ein paar Jahren. Ja, das Holz gehört in der Regel alle 5 Jahre gestrichen. Macht kein Mensch, da Gerüstkosten zu teuer und man eh nicht daran denkt.
    Ortgangausbildung am besten mit Ortgangziegel und kein Kehlblech. Diese gehören sonst jedes Jahr gewartet und gereinigt. Macht auch kein Mensch, sondern erst dann, wenn der Schaden schon da ist. Ach so, ein vorgehängte Dachrinne ist besser als eine Kastenrinne auf dem Mauerwerk, weil weniger schadensanfällig, keine Probleme mit Wärmebrücken und viel günstiger!

    Statt Fußbodenheizung wäre eine Deckenheizung zu überlegen. Weniger Staubentwicklung, schnellere Reaktionszeit. Außer im Bad, da sind warme Füße schon schön.
     
    415B gefällt das.
  8. #8 hanghaus2000, 23.03.2026
    hanghaus2000

    hanghaus2000

    Dabei seit:
    24.11.2021
    Beiträge:
    1.527
    Zustimmungen:
    634
    Beruf:
    Bauleiter, Kalkulator, Controller, Salzdesign
    Ort:
    Bayern
    Wegen der minimalen Abweichung der Firstrichtung den Freisteller zu riskieren?
     
  9. 11ant

    11ant

    Dabei seit:
    28.02.2017
    Beiträge:
    2.503
    Zustimmungen:
    1.580
    Beruf:
    Bauherrenberater
    Ort:
    RLP Nord
    Benutzertitelzusatz:
    bringt Sie gut beraten ins Eigenheim
    Traufhöhe keine Vorgabe halte ich für einen Lesefehler, die Tabelle sagt praktisch 6,50 m (6,0 m + Kniestock 0,5 m). Bei einem halben Meter Höhenspiel sehe ich den Keller klar gestorben. Auch eine steile Auffahrt stelle ich in Frage, der Bebauungsplan weist klar straßenparallele Stellplätze aus, und so würde ich die auch anlegen.

    Den Einlieger sehe ich nicht; und wenn mein Fahrplan schon gefunden wurde: da stehen auch Beiträge zum Altersbauen; das Haus bis zum Erblassen ist Unfug.

    Die Module A/B/C sind hauptsächlich als Gliederungen zu verstehen, falls man dem Fahrplan in der Standardform folgen will und den Architekten beibehält. In den "Reloaded" Folgen sind Abweichungen beschrieben. Die wichtigste Zäsur ist die Teigruhe zwischen dem Modul A und der LP3. Ich empfehle in jedem Fall die Mandatierung in der ersten Tranche auf das Modul A zu beschränken. Ob später die LP3 oder das volle Modul B folgen wird, zeigt sich ja erst während der Weichenstellung, die man am geschicktesten während der Teigruhe durchführt (bzw. durchführen läßt, das ist - erstaunlicherweise noch vor dem Grundriß- und dem Baureifecheck - mein Bestseller). Die Empfehlung der Herren Beuler und Schoen des Mandatsumfanges LP 1 bis 3 hat zwei wesentliche Gründe: erstens die Vermeidung einer Doppelterledigung und -bezahlung der LP4 (wenn jemand einen der "@ Gerddieter warnt" Erste Halbzeit Architekten nähme und danach zum GU ginge), und zweitens den Standard-Leistungsumfang der befreundeten Architekten "a better Place". Die Anfrage an GU´ während der Teigruhe ist nur eine erste von zweien und sollte mitnichtenst einteilig durchgeführt und mit der Erwartung überfrachtet werden, hier bereits den späteren Bauvertragspartner auszuwählen !

    Einen baubegleitenden SV sollte man immer beauftragen, und zwar grundsätzlich aus der Nähe des Bauortes - am besten den Architekten (übrigens auch wenn man mit einem GU bauen wird, denn Architekt und GU verknüpfen nur diejenigen mit "oder", die auch aus Summen kürzen !

    "Der Weg zu meinem persönlichen Rat" ist übrigens immer eine gut investierte halbe bis dreiviertel Stunde, gehört bewußt zu den Angeboten "vor der Paywall" und ist einfach für alle Beteiligten sinnvoller als wenn ich versuchen würde, das Internet mit passenden Antworten für jeden Einzelfall vollzuschreiben. Dialog ist Trumpf.

    Eine "Befreiung" wegen sechs Grad Abweichung von der Firstrichtung im zeichnerischen Teil des Bebauungsplanes ist Quatsch, weil die so exakt garnicht gemeint ist. Es geht hierbei um Trauf- oder Firstständigkeit, mehr nicht. Und "Erker", Sitzfenster oder dergleichen aus Angst vor einem ansonsten zu unpfiffigen Hausentwurf ist ebenfalls unbegründet, da gibt es unzählige billligere Wege des Entrinnens aus der Gefahr der Uniformität. Frisiert und geschminkt wird immer zum Schluß. Und auch für Privatheit gibt es klügere Strategien als die Flucht auf die nachbarabgewandte Seite.
     
Thema:

Neubau – Grundriss, Firstrichtung und Vorgehen

Die Seite wird geladen...

Neubau – Grundriss, Firstrichtung und Vorgehen - Ähnliche Themen

  1. Neubau - Grundriss Diskussion

    Neubau - Grundriss Diskussion: Hallo zusammen, wir hatten die ersten Gespräche mit unserem Architekten und ich wollte mal eure Meinungen zum Grundstück und zur Bebauung des...
  2. Neubau Grundriss Lageplan

    Neubau Grundriss Lageplan: Hallo, wir wollen hinten auf unserem Grundstück neu bauen. Was haltet ihr von den Entwürfen und gibt es Verbesserungspotential? Neubau ist in...
  3. Einschätzung Neubau speziell Grundrisse

    Einschätzung Neubau speziell Grundrisse: Hallo zusammen, wir möchten 2019 Bauen mit einer Architektin die uns jedoch nur bis zu Genehmigung begleitet! Danach übernimmt ein erfahrener...
  4. Neubau...passt der Grundriss ?

    Neubau...passt der Grundriss ?: Hallo ihr, wir haben endlich ein preiswertes Grundstück gefunden. Der Bauträger hat hier mal ein Grundriss mitgeschickt. Wir sind nicht 100%...
  5. Neubau EFH. Grundrisse im Endstadium: Gibts hier noch Potential? ~160m²

    Neubau EFH. Grundrisse im Endstadium: Gibts hier noch Potential? ~160m²: Hallo zusammen, wir stehen kurz vor dem Notartermin und unser Grundriss steht soweit schon. Er ist komplett in Eigenleistung entstanden. Wir sind...