Neubau Mehrgenerationenhaus mit ca. 300 m² WF und 3 WE

Diskutiere Neubau Mehrgenerationenhaus mit ca. 300 m² WF und 3 WE im Architektur Allgemein Forum im Bereich Architektur; 1. Wir sind: 3 Eigentümer, Realteilung der 3 WE geplant, Zuordnung Garten zu klären Anzahl der Personen und Alter, jetzt und geplant...

  1. #1 MichaelWWW, 20.07.2024
    MichaelWWW

    MichaelWWW

    Dabei seit:
    18.07.2024
    Beiträge:
    6
    Zustimmungen:
    0
    1. Wir sind: 3 Eigentümer, Realteilung der 3 WE geplant, Zuordnung Garten zu klären

    Anzahl der Personen und Alter, jetzt und geplant Vermietungszwecke
    Beeinträchtigungen, Behinderungen? keine
    eventuell Elternteile, Zimmervermietung, Einlieger komplett zur Vermietung geplant, EG später Eigennutzung

    2. Unser Raumprogramm:
    was wir für Räume brauchen oder wünschen 2-3 Zimmer-WHG zu Vermietungszwecken

    offener All-Raum (Küche, Essen, Wohnen zusammen)
    offene Küche/Kochinsel
    Anzahl Schlafzimmer 1-2
    Anzahl Bäder 1-2
    Büro/Gast/Kind kombiniert
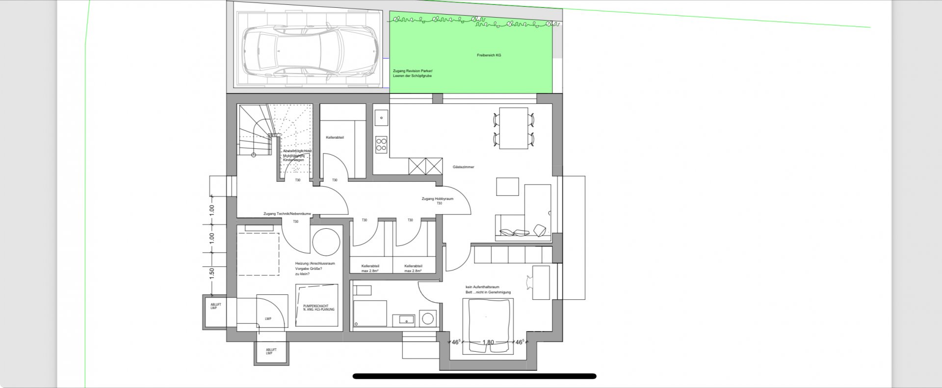
    Technikraum UG
    3 Stellplätze (1 STP je WE gefordert)
    3 Keller (einer je WE)
    Einliegerwohnung/Montagewohnung/Hobbyraum im UG

    3. Welchen Hausstil bevorzugen wir? und warum? (Stilrichtung, Dachform, Gebäudetyp)

    Satteldach-Haus, optimale Wohnflächeneffizienz im DG
    Ergänzt um Gauben, untergeordnete Gauben, Dachfenster


    moderne Bauweise/puristisch
    Große Fensterflächen, wo sinnvoll

    4. Welche Zusatzwünsche/Features
    hätten wir gern und warum?

    Balkone (1. OG/DG), Terrasse (EG)

    5. Bebauungsplan/Einschränkungen
    §34 BauGB

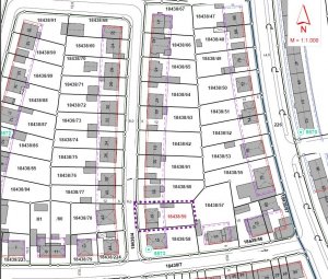
    Größe des Grundstücks: 513 m², derzeit mit einem EFH (Bj. 1935) bebaut

    GRZ: keine Vorgabe da kein BPlan, derzeit ca. 0,2
    GFZ: keine Vorgabe da kein BPlan, derzeit ca. 0,58
    Baufenster, Baulinie und -grenze; 5m Vorgarten, dann Baulinie, nach weiteren 12m rückwärtige Baugrenze, seitlich Abstandsflächen (3m)
    Geschossigkeit (2 Vollgeschosse, ein DG, ein UG)
    Dachform und -neigung; Satteldach, Neigung ca.
    Ausrichtung/Firstrichtung: Ost-/West
    Maximale Höhen durch Abstandsflächen vorgegeben, Traufhöhe: 6,00 m Firsthöhe: 10,42m

    Randbebauung: Duplex-Stp sowue Außenstellplatz ggf. mit Carport

    6. weitere Wünsche/Besonderheiten/Tagesablauf
    keine

    7. angedachte Haustechnik

    Heizungstyp: LW-WP oder Grundwasser-WP
    Lüftung: Fensterlüftung, im UG kontrollierte Lüftung
    KFW-Standard: GEG oder KfW40
    KNX: ja
    ggf. PV

    8. Hausentwurf

    Von wem stammt die Planung: Architekt

    Was gefällt Euch besonders? Warum? Optimale/Maximale Grundstücksausnutzung, viel Wohnfläche (ca. 300 m²) erzielt, Tageslichtbäder, Wohnräume zum Garten/nach Osten ausgerichtet
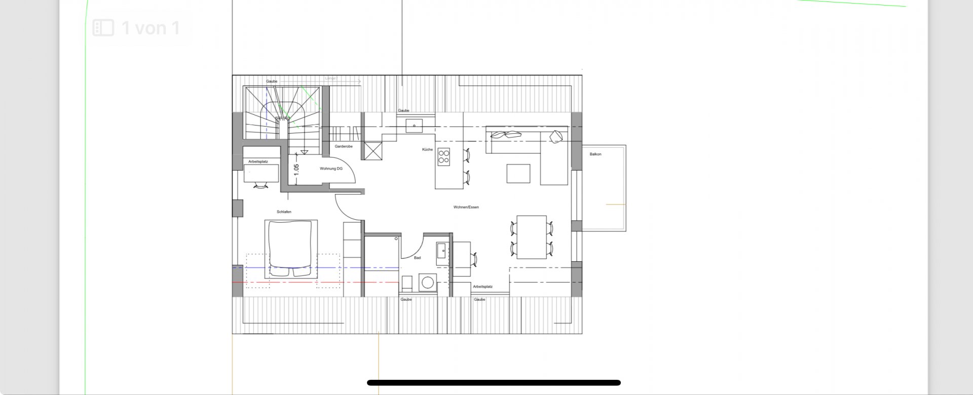
    Was gefällt nicht? Warum? Wohnflächenverlust im DG (Podest vor Zugangstüre), Planung Haustechnikraum (genug Fläche für Anschlüsse an Hausanschlusswand?)

    9. Preisschätzung lt. Architekt/Planer

    Persönliches Preislimit fürs Haus, inkl. Ausstattung (ohne Küche!): 900 TEUR
    Preislimit inkl. Baunebenkosten und Außenanlage (Pflasterarbeiten, Galabauer, Bepflanzung, Garage): 1,1 Mio. €
    Persönliches Preislimit für die Küche: 5-10 TEUR pro Küche

    Was macht ihn in Euren Augen besonders gut oder schlecht? Frühzeitig alle Gegebenheiten einbezogen
    Was ist die wichtigste Frage zum Grundriss in 130 Zeichen zusammengefasst? Ist das Grundstück mit der vorliegenden Planung optimal ausgenutzt, ist die Nutzung der geplanten Räume gegeben, wird ein Produkt entstehen, welches gut zur Vermietung geeignet sein wird? Ist der Baumbestand der Nachbarn ggf. ein Problem (im Kronenbereich u.a. Abgrabung, Duplex geplant)?
     

    Anhänge:

  2. 11ant

    11ant

    Dabei seit:
    28.02.2017
    Beiträge:
    2.462
    Zustimmungen:
    1.539
    Beruf:
    Bauherrenberater
    Ort:
    RLP Nord
    Benutzertitelzusatz:
    bringt Sie gut beraten ins Eigenheim
    Ist das ein Suchbildrätsel, wo sich die Stockwerkspläne in den Beiträgen 2 und 1 voneinander unterscheiden ?

    Was macht ein knapp 90 Jahre junges Haus schon abrißreif ? - das war doch eigentlich noch ein guter Jahrgang.
     
  3. #3 MichaelWWW, 20.07.2024
    MichaelWWW

    MichaelWWW

    Dabei seit:
    18.07.2024
    Beiträge:
    6
    Zustimmungen:
    0
    Die nicht gerade optimale Grundstücksausnutzung mit nur ca. 120m² WF, dazu der (energetische) Zustand des Gebäudes.
    Zudem die neue Eigentümer/Erbstruktur, ein EFH lässt sich schlecht durch 3 Personen teilen...
     
  4. 11ant

    11ant

    Dabei seit:
    28.02.2017
    Beiträge:
    2.462
    Zustimmungen:
    1.539
    Beruf:
    Bauherrenberater
    Ort:
    RLP Nord
    Benutzertitelzusatz:
    bringt Sie gut beraten ins Eigenheim
    Beide schädigen seinen Marktwert nicht.
    Abriß- und Neubaukosten für eine bequemere Teilbarkeit für die Erbengemeinschaft ... das klingt nach einem Schildbürgerstreich.
     
    K a t j a und Fred Astair gefällt das.
  5. #5 MichaelWWW, 20.07.2024
    MichaelWWW

    MichaelWWW

    Dabei seit:
    18.07.2024
    Beiträge:
    6
    Zustimmungen:
    0
    Wie beschrieben, es geht um ein Vermietungs-/Renditeobjekt, die Mieteinnahmen für 300m² Neubau in dieser Lage sprechen für den Neubau.
    Können wir jetzt zum eigentlichen Thema, der Planung kommen? :)
     
  6. #6 Kriminelle, 20.07.2024
    Zuletzt bearbeitet: 20.07.2024
    Kriminelle

    Kriminelle

    Dabei seit:
    16.05.2013
    Beiträge:
    3.678
    Zustimmungen:
    2.026
    Beruf:
    .
    Ort:
    Niedersachsen
    Ich sehe durchaus den Sinn, ein knapp 90 Jahre altes Haus abzureißen und einen Neubau hinzusetzen.

    Mir war anfangs nicht klar, dass es sich um ein MFH handeln soll, wo die Wohnungen, 4 an der Zahl, vermietet werden sollen.
    Es sind also Wohnungen, kein EFH mit irgendeiner ELW.

    Somit war mit „viel Wohnfläche“ nicht gemeint, dass man es schön großzügig haben wird, sondern viele Wohnungen als Invest herauskommen.
    Denn dann hätte ich es hier bemängelt. Ich hätte auch die mangelnde Privatsphäre der einzelnen Parteien bemängelt.
    Das fehlt mir übrigens auch in der Wohnung selbst. Aber gut: viele stellen sich ja darauf ein und empfangen schon gar keinen Besuch mehr, der die Gästerunde mit seinem Toilettenbesuch erfreut.
    Was mir allerdings sehr unklar ist: es ist scheinbar ein Wohngebiet mit Einfamilienhäusern. Da glaube ich im Par. 34er nicht, dass man da so einfach ein MFH hinstellen kann. Dann sehe ich nur 3 Stellplätze (inkl. Garagenlift), aber es sind vier Wohnungen.
    Dann sehe ich 4 Mülltonnen - die reichen ja mal gerade für einen Haushalt. Da müssten doch entweder 16 Boxen sein oder diese Müllcontainer.?!

    Dann handelt es sich um eine Gebäudeklasse 4. Da müssen aber, laut Musterbauordnung, alle Wohnungen barrierefrei zu erreichen sein. Einen Lift gibt es nicht.

    Die Maße und Quadrate in der EG-Wohnung beziehen sich auf die Barrierefreiheit?
    Was ist denn sonst so mal mit Maßen? Gibt es die?

    Zu Deinen Fragen die Gegenfrage:
    Welche LBO zählt denn hier?
    Was wäre denn Eure Zielgruppe? Kinder sehe ich nicht. Ich gehe mal bei den genannten technischen Highlights davon aus, dass ihr eher die besserverdienenden Paare ansprechen wollt? Da fehlt es dann wieder an Parkraum, oder?

    Das, was ich immer mache, ist die Vorstellung, ob ich mir vorstellen kann , darin jetzt mit meinem Partner oder allein zu leben oder später als Seniorin, ggf allein oder mit Partner.
    Und ich muss sagen: nein. Mir fehlt direkt an der Ebene ein Abstellraum. So blöd, wie es sich anhört, aber irgendwo muss der Besen, Wischmop und die Ersatzbatterien gelagert werden. Ich hätte mit Mitte 30 sowie auch mit 60 keine Lust, so etwas im Keller zu lagern und ständig den Hausflur zu frequentieren. Das würde mich zb auch davon abhalten, die ELW im UG zu mieten, weil ständig jmd vor meiner Wohnungstür wäre und ich keine Ruhe hätte.
    Das OG hat kaum Stellmöglichkeiten oder Stauraum, noch nicht einmal für einen 2 Meter Schrank von 2,20 Höhe.
    Die mangelnde Privatsphäre muss man meist im Wohnungsbau hinnehmen, aber wenn ich mir eine Komfortwohnung leiste, dann sollte da schon einiges stimmen. Zu nennen wäre zb ein recht kleiner Balkon Richtung Osten. Morgens allerdings wird bei den meisten gearbeitet. Blick in den Garten ist ggf zu überbewertet. Meist möchte man den Balkon zum Westen oder überdacht im Süden, Schlafräume im Norden oder Osten, Bad darf in der Prioliste unten stehen. Wenn es 8 qm statt der 6 hätte, dann darf es auch ohne Fenster sein, bevor das Fenster in die Dusche geplant wird. (obwohl ja hier genug Außenwände für Fenster sorgen werden). Man bedenke, in der Wohnung wird auch die Wäsche getrocknet werden müssen…
    Ich kenne kleine MFH, da sind die versetzt an allen Himmelsrichtungen angeordnet und jeder quasi glücklich.

    Was ich allerdings gut finde, ist der Allraum. Mir wäre zwar die Küche nicht genügend, aber vom Grundsatz her wirkt der Raum recht ansprechend und groß.
    Ich würde erstmal grob den Vorschlag machen, die Südfenster dem Wohnraum bzw Küche zu spendieren. Büro, SZ und Bad kommen ganz gut mit planoben liegende Fenster zurecht.
    Aber erst einmal gehört die Müll- Par34, Geb.-klasse 4 und Stellplatzsorge auf die Prioliste.

    Ich habe es mal so gelernt, dass Häuser ab 3 Einheiten neben dem AB innerhalb der Wohnungauch noch Fahrradkeller, Kinderkarrenplatz, usw vorhalten muss.
     
    K a t j a gefällt das.
  7. #7 MichaelWWW, 20.07.2024
    MichaelWWW

    MichaelWWW

    Dabei seit:
    18.07.2024
    Beiträge:
    6
    Zustimmungen:
    0
    ->Das ist richtig, wir versuchen diese Flächen im TRH (UG) sowie im überdachten Außenbereich nachzuweisen (konkrete Flächenangaben/Anforderungen) gibt es dazu meines Wissens nicht.

    Ich hoffe meine Erläuterungen/Gedankengänge sind soweit nachvollziehbar, freue mich auf weiteres Feedback.

    Das Zitieren hat leider nicht so geklappt wie gewünscht, meine Anmerkungen oben im Fließtext...
     
  8. #8 Kriminelle, 20.07.2024
    Kriminelle

    Kriminelle

    Dabei seit:
    16.05.2013
    Beiträge:
    3.678
    Zustimmungen:
    2.026
    Beruf:
    .
    Ort:
    Niedersachsen
    Nachdem man ganz klar sagen muss, dass ein 3-WE-MFH mit zus. ELW nicht kombinierbar ist (ELW sind untergeordnete WE innerhalb eines EFH), sodass man hier von 4 WE reden müsste, bleibt entweder, auf die ELW zu verzichten und entspannter mit den Stellplätzen und Müllanlage umzugehen oder die ELW als vollwertige WE mitzurechnen und Kellerraum sowie Stellplatz auch dieser WE zur Verfügung zu stellen.
    Für weitere konstruktive Kritik bedarf es - nochmals - die entsprechende LBO (Bundesland) - sowie ein Screenshot des Wohngebietes aus Maps mit Angaben, welche Häuser (Doppel, Einzel oder MFH) dort zur Zeit stehen.
    Außerdem sind die Maße der Tiefe bzw das ganze Baufenster nicht ersichtlich.

    Es mag so sein, dass man bei der Planung Stunden für eine bessere Lichtausrichtung gesessen hat, und das ohne Erfolg, sodass man auf die Ostbalkone zurückgegriffen hat. Meines Wissens lösen Balkone keine Abstandsflächen aus, sodass man sie dort entsprechender planen kann.

    so ein Garagen/Pkw-Lift: will man so etwas? Ich hätte lieber einen normalen Stellplatz, den ich in Eile verlassen kann.

    Die Bäume können ein wirkliches Problem darstellen. Allerdings kann man sich zur Zeit nicht vorstellen, welche Wirkung mit welcher Höhe sie erzielen.
     
  9. #9 K a t j a, 20.07.2024
    K a t j a

    K a t j a

    Dabei seit:
    31.05.2019
    Beiträge:
    1.009
    Zustimmungen:
    582
    Ort:
    Leipziger Land
    Die Planung finde ich ganz ok. Die Außenanlagen sind imho überall zu knapp und bei den Balkonen würde ich versuchen mehr als nur einen für jede Partei zu planen.
    Was mich aber am meisten stört, ist der Fakt, dass 3 Eigentümer zusammen ein Bauprojekt planen und bezahlen sollen. Das gibt doch nur Streit und Rendite ist sowieso 0.
     
    11ant gefällt das.
  10. #10 Kriminelle, 20.07.2024
    Kriminelle

    Kriminelle

    Dabei seit:
    16.05.2013
    Beiträge:
    3.678
    Zustimmungen:
    2.026
    Beruf:
    .
    Ort:
    Niedersachsen
    Mühselig, da steht ja etwas zwischen den Zeilen :)
    (Es gibt hier glaube ich ein Übungsthread, da kann man zitieren üben :winken


    „Alternativ könnte man dieses auch noch streichen und stattdessen daraus einen Abstellraum, analog dem EG machen“.
    Sicherlich kann man die Räume in ihrem Nutzen verändern. Aber ich dachte tatsächlich, dass es im EG eine Garderobe ist, keine Abstellkammer für Staubsauger und co. …
    „Wenn die Wohnung von einem Paar genutzt wird, steht in dem Gäste/Arbeitszimmer mehr als genug Stauraum zur Verfügung“.

    Ich denke, da machst Du es Dir zu einfach, und das wäre auch nicht in Deinem Interesse: Du erwartest, dass Mieter aus ihrem teuer gemieteten Wohnraum Abstellfläche generieren. Als Vermieter bzw Planer und Privatinvestor, der sein investiertes Geld gut an den Mieter bringen will, sollte die Wohnung einen separaten Abstelkraum haben, und nicht „ wir haben die Wahl, WC oder AB“. Es mag in den sozialem Wohnungsbau Usus sein, dass die Gefriertruhe im Schlafzimmer stehen muss oder die Getränkekisten auf dem Balkon. Auch den ausgebauten Kühlschrank neben dem Sofa gibt es, damit man genug Lebensmittel in der Küche unterbringen kann… Ich sag es mal so: die Küche ist einer knapp 100qm großen Wohnung nicht würdig. Da wird es schwierig, solvente Mieter zu bekommen. Aber da wäre meine Kritik von mir nur unterschwellig, weil zum Brote schmieren reicht es.
    Allerdings ist es eben nicht im Interesse der Vermieter, dass man die ganze Wohnung als Abstellfläche sieht und entsprechend die Wohnung durchaus eher verwohnt werden kann, weil man die Möglichkeiten der vollflächigen Reinigung nicht hat.

    „Wichtiger Punkt, derzeit steht zumindest im Schlafzimmer 2 x 1,5m Schrankfläche mit 2,20m Höhe zur Verfügung. Das Eck mit dem Arbeitsplatz muss nicht als solcher genutzt werden. Weiterer Stauraum ist in dem Garderobenbereich gegeben“.
    Ich habe tatsächlich ein Problem damit, wenn mir ein Makler sagt, ich könnte es ja anders machen als geplant. Natürlich kann ich vieles anders machen, aber dieses Rumgeschiebe an Funktionen.. wie funktioniert denn die Wohnung da noch, wenn ich einen Arbeitsplatz brauche und einen Kleiderschrank für 2. Denn den bekomme ich in die Nische auch nicht. TV ist auch solche Sache.

    „müsste allerdings mit dem Badspiegel abgeglichen werden.
    Alternativ könnte man auch die Position von Dusche und WC noch tauschen.“
    Naja, das Feintunig hat ja noch nicht begonnen. Wie Du selbst sagst: für Masze ist es noch zu früh,

    „Ich habe eine Berechnung der örtlichen Abfallwirtschaftsbetriebe angestellt, demnach sollten die 240l bei wöchentlicher Leerung ausreichen.“
    Mutig. Was wird denn in Bayern wöchentlich abgeholt?

    Also, die Bäder finde ich wirklich sehr klein, wenn man bedenkt, dass dort auch noch Wäsche getrocknet werden muss.
    Ich habe aber mal probiert, mit den Ostbalkonen einen anderen Grundriss zu bekommen, und das ist tatsächlich sehr schwer. Allerdings wird der Essbereich sehr dunkel ausfallen, weil ja auch nichts am Abend dort an Licht ankommt.

    Wahrscheinlich wäre ein Trockenraum mit Aussenzugang zu dem Lichthof eine Alternative?

    Mir fällt noch ein: 4000€/Qm WF im Wohnungsbau ist nichts.
     
  11. #11 MichaelWWW, 20.07.2024
    Zuletzt bearbeitet: 20.07.2024
    MichaelWWW

    MichaelWWW

    Dabei seit:
    18.07.2024
    Beiträge:
    6
    Zustimmungen:
    0
    Das Argument mit dem Abstellraum ist schon richtig, ich denke man kann in dem Eck sowohl Garderobe als auch Abstellfläche realisieren.
    Die Gäste müssten dann eben das ,Master-Bad' nutzen, das könnte man jedoch mit einem Raumtrenner/Regal o.ä. vom Esstisch/Wohnraum etwas abgrenzen.
    Letztendlich bezahlen die Mieter ja auch einen Abstellraum in voller Höhe, da macht es m.E. keine Unterschied zu wenn man z.B. im Gästezimmer einen schlanken Putzschrank aufstellt.

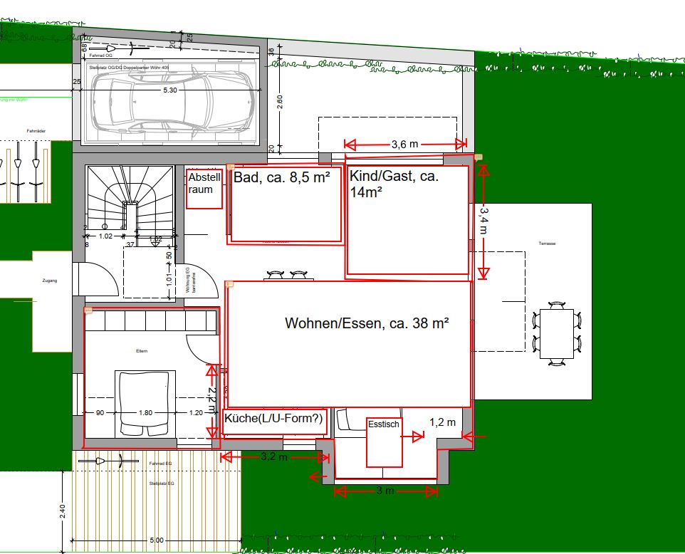
    Die WE im EG und 1. OG haben ca. 85 m² Wohnfläche, inkl. Balkon/Terrasse, eine Küche mit 4,5m Länge sollte ausreichen, der Trend geht in Großstädten eh ein wenig Richtung Essen bestellen/Essen gehen...

    Bzgl. Müll: Die Restmülltonne(n) werden hier wöchentlich geleert.

    Ggf. kann man das Bad (aktuell knapp 7m²) noch etwas zu Lasten eines der beiden Schlafräume vergrößern, Wäschetrocknen kann zumindest im Sommer auf dem Balkon/Terrasse gelöst werden, im Winter bietet sich ein Wäschetrockner an, könnte man auf die WM stapeln.

    Bzgl. Licht im Wohnraum: Derzeit ist ein Oberlicht im Bad eingeplant (in der Planung andeutungsweise dargestellt), um dort zumindest etwas Licht aus dem Süden zu bekommen. Das Schlafzimmer hat ein Fenster im Westen, bei geöffneter Türe gelangt von dort auch etwas Licht in den Wohnraum :D

    Nochmals Danke für den vielen und guten Input!
     
  12. #12 MichaelWWW, 21.07.2024
    Zuletzt bearbeitet: 21.07.2024
    MichaelWWW

    MichaelWWW

    Dabei seit:
    18.07.2024
    Beiträge:
    6
    Zustimmungen:
    0
    Guten Morgen, habe noch einmal eine Nacht darüber geschlafen und bin zu folgendem Ergebnis gekommen, was meinst du dazu?
    Der Allraum ist offen zum Flur hin, Küche L-oder U-förmig zum Raum hin offen gedacht, ggf. mit Kücheninsel
    Couch unterhalb des Kind/Gast-Raums, Aufstellort TV wäre so noch zu klären.
    Evtl. müsste man den Erker auch noch etwas nach Planlinks verschieben, um so eine ca. 1,20m Ecke gegenüber der Couch zu erhalten.
    Der Erker erhält auch seitliche Fenster (West+Ost).

    Den Anhang 132555 betrachten
     

    Anhänge:

  13. #13 Kriminelle, 21.07.2024
    Kriminelle

    Kriminelle

    Dabei seit:
    16.05.2013
    Beiträge:
    3.678
    Zustimmungen:
    2.026
    Beruf:
    .
    Ort:
    Niedersachsen
    Das ist ähnlich meiner Gedanken - ich bin allerdings noch nicht fertig und habe bei der Küchenplanung aufgehört
     

    Anhänge:

Thema:

Neubau Mehrgenerationenhaus mit ca. 300 m² WF und 3 WE

Die Seite wird geladen...

Neubau Mehrgenerationenhaus mit ca. 300 m² WF und 3 WE - Ähnliche Themen

  1. Altbau DHH Abriss und Neubau - Was ist möglich? Was sind eure Erfahrungen?

    Altbau DHH Abriss und Neubau - Was ist möglich? Was sind eure Erfahrungen?: Hallo liebes Forum, Fabian mein Name - ich bin auf der Suche nach Erfahrungen und Einschätzungen zum Thema Abriss einer Doppelhaushälfte und...
  2. Neubau – Grundriss, Firstrichtung und Vorgehen

    Neubau – Grundriss, Firstrichtung und Vorgehen: Hallo zusammen, wir sind noch ganz am Anfang unseres Bauprojekts: das Grundstück steht fest (muss noch geteilt und umgeschrieben werden,...
  3. Fensterrahmen im Neubau nicht richtig gedämmt?

    Fensterrahmen im Neubau nicht richtig gedämmt?: Moin zusammen, ich habe eine Frage im Bereich Rollladenkasten/Fenster. Unser Haus ist ein Einfamilienhaus-Neubau von 2023. Jetzt war der erste...
  4. Planung Neubau

    Planung Neubau: Moin zusammen! Wir beabsichtigen im Kreis Plön ein Haus zu bauen. Ein Grundstück ist in Aussicht, dieses soll mit einem weiteren Bauherren...
  5. Feuchtigkeitsschutz Außenwand bei Neubau Außentreppe mit Podest

    Feuchtigkeitsschutz Außenwand bei Neubau Außentreppe mit Podest: Hallo zusammen, ich habe eine Frage zu einer baulichen Änderung bei uns am Haus (Baujahr 1995). Vor einiger Zeit wurde die alte Holztreppe mit...