Neubau Meinungen

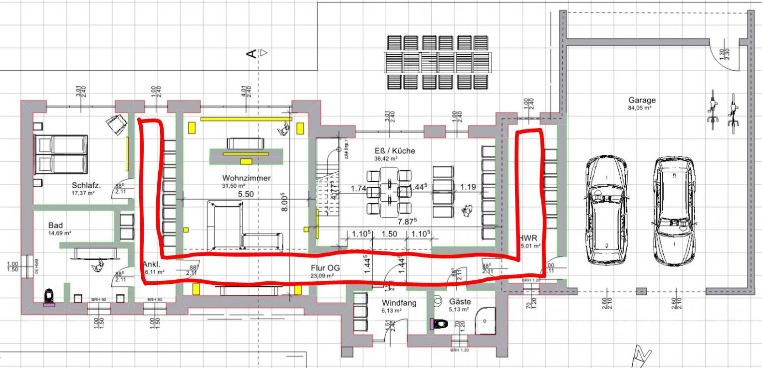
Diskutiere Neubau Meinungen im Architektur Allgemein Forum im Bereich Architektur; 1. Wir sind: Anzahl der Personen und Alter, jetzt und geplant 2 Personen, es werden nicht mehr. Beeinträchtigungen, Nein Behinderungen?...

  1. #1 bau2122, 28.03.2021
    Zuletzt bearbeitet: 28.03.2021
    bau2122

    bau2122

    Dabei seit:
    28.03.2021
    Beiträge:
    55
    Zustimmungen:
    3
    1. Wir sind:

    Anzahl der Personen und Alter, jetzt und geplant

    2 Personen, es werden nicht mehr.

    Beeinträchtigungen,

    Nein

    Behinderungen?

    Nein

    eventuell Elternteile, Zimmervermietung, Einlieger

    Nein

    2. Unser Raumprogramm:
    was wir für Räume brauchen oder wünschen

    Bodentiefe Fenster (siehe Zeichnung) nach Süden
    Alle anderen Fenster BRH 90cm


    z.B.
    offener All-Raum (Küche, Essen, Wohnen zusammen)

    Nein, Wohnzimmer und Eß/Küche getrennt. (siehe Zeichnung)


    geschlossene Küche/offene Küche/Kochinsel

    Geschlossene Küche mit Insel. (siehe Zeichnung)

    Anzahl Essplätze

    6 (siehe Zeichnung)

    Anzahl Schlafzimmer

    1 (siehe Zeichnung)

    Anzahl Bäder

    2 (siehe Zeichnung)

    Ankleide

    1, als Flur (siehe Zeichnung)

    Büro: Homeoffice/Familiennutzung

    1, im OG

    Büro/Gast kombiniert

    Nein.

    Gästezimmer (wieviel Schlafgäste pro Jahr)

    Nein.

    Technikraum

    1, im OG

    HWR

    1, (siehe Zeichnung)

    Speisekammer

    Nein.

    Abstellraum

    Nein.

    Garage

    Ja. (siehe Zeichnung)

    Keller

    Nein.

    Hobbyraum

    Nein.

    Einliegerwohnung/Montagewohnung/Elternteil

    Nein.

    3. Welchen Hausstil bevorzugen wir?
    und warum? (Stilrichtung, Dachform, Gebäudetyp)

    Schlicht, Walmdach (ähnlich Bungalow)
    große Fenster nach Süden (siehe Zeichnung)
    Garage


    z.B.
    Bauhaus-Edition (Flachdach/Staffelgeschoss)
    Bungalow(Walmdach/Satteldach/L-Form)
    Kapitänshaus/Friesengiebel/Landhaus
    Satteldach-Haus
    Schwedenhaus
    Stadtvilla

    konservative /moderne Bauweise/puristisch/verspielt
    Große Fensterflächen/Sprossenfenster
    Holzverschalung/Verklinkerung/Putz


    4. Welche Zusatzwünsche/Features
    hätten wir gern und warum?

    zB.
    Balkon, Dachterrasse
    Barrierearm/barrierefrei
    Galerie
    Garage/Doppelgarage/Werkstatt/Carport/Terrassenüberdachung
    Holz-Kamin/Gaskamin
    Lift
    Luftraum
    Musik/Stereowand
    Nutzgarten/Gewächshaus/Spielgeräte/Outdoorküche/Werkstatt
    Pelletsspeicher
    Pool
    Sauna/Fitnessraum

    Garage, Garten wird später geplant.

    5. Bebauungsplan/Einschränkungen
    Link zum Bebauungsplan/Lageplan

    Grösse des Grundstücks
    Hang?
    §34
    GRZ
    GFZ
    Baufenster, Baulinie und -grenze
    Geschossigkeit
    Dachform und -neigung
    Stilrichtung
    Ausrichtung/Firstrichtung
    Maximale Höhen/Begrenzungen/Traufhöhe/Firsthöhe

    Ersatzhaus auf Wiese 8000m².
    Im Vorgespräch, würden wir alle Punkte erfüllen laut LK um ein Ersatzhaus zu bauen.
    Die Rahmenbedienungen stimmen auch mit dem jetzigen Plan erst einmal überein.


    Randbebauung wo erlaubt?
    Anzahl Stellplätze
    weitere Vorgaben

    siehe oben

    6. weitere Wünsche/Besonderheiten/Tagesablauf
    gern auch Begründungen, warum dieses oder das nicht sein soll

    7. angedachte Haustechnik

    Wärmepumpe / PV ca. 20kWp / KWL
    KFW 50


    zB.
    Heizungstyp
    Lüftung
    KFW-Standard
    KNX

    8. Hausentwurf

    Von wem stammt die Planung:
    Planer eines Bauunternehmens
    Architekt
    Do-It-Yourself
    Eigene Kreation, wurde vom Planer abgezeichnet

    erster (naja zweiter, dritter, ...) Entwurf Do-It-Yourselft

    Was gefällt Euch besonders? Warum?
    Was gefällt nicht? Warum?

    Schalf., Wohn., Eß / Küche zum Garten (Süden)

    Das Leben soll sich im UG abspielen.

    9. Preisschätzung lt. Architekt/Planer

    Persönliches Preislimit fürs Haus, inkl. Ausstattung (ohne Küche!)

    400.000€ mit viel Eigenleistung
    Mauern (nicht Klinker), Dämmung, Elektrik, Heizung, Trockenbau, Putzen, Fenster


    Preislimit inkl. Baunebenkosten und Außenanlage (Pflasterarbeiten, Galabauer, Bepflanzung, Garage)

    150.000€ mit viel Eigenleistung
    Mein Nachbar ist Galabauer.


    Persönliches Preislimit für die Küche

    40.000€

    Wurde noch kein Preis geschätzt, dann schätzt Ihr doch mal bitte, was es kostet!

    Was macht ihn in Euren Augen besonders gut oder schlecht?
    Auf welche Details/Ausbauten könntet Ihr verzichten?
    Was ist die wichtigste Frage zum Grundriss in 130 Zeichen zusammengefasst?

    Die Planung gefällt uns bis jetzt sehr gut (aber gerne Kritik), was uns etwas Sorgen macht, ob die Decke zu einen normalen Preis auszuführen ist. Die Räume sind relativ groß.

    Die Schränke sind Platzhalter 600x600mm.
     

    Anhänge:

  2. #2 Lexmaul, 28.03.2021
    Lexmaul

    Lexmaul

    Dabei seit:
    15.09.2014
    Beiträge:
    8.921
    Zustimmungen:
    2.163
    Benutzertitelzusatz:
    Mimosenlecker
    Wie kann man sich nur so wenig Mühe mit dem ausfüllen des Fragebogens geben - aber hauptsache TVs und Surround-Anlage sind im Plan eingezeichnet.

    Magst den Text nicht einfach mal in lesbar überarbeiten? Und auch die anderen Geschosse einzeichnen?

    Die Küche soll 10 Prozent des Hauses kosten? Die Kosten wirken sehr unrealistisch...was könnt Ihr denn so und aus was bestehen die Eigenleistungen?
     
    11ant, Alex88 und driver55 gefällt das.
  3. #3 driver55, 28.03.2021
    driver55

    driver55

    Dabei seit:
    22.02.2008
    Beiträge:
    6.898
    Zustimmungen:
    1.809
    Beruf:
    Dipl.-Ing.
    Ort:
    Pforzheim
    Der Plan ist das selbe Kauderwelsch wie das Geschriebene.:eek:
    Gebäude ist mit Garage 32 m lang.:D (wenn ich mich mit den Kästchen nicht verzählt habe.)
    Das wird wieder "lustig" hier...:trink_1:
     
  4. #4 bau2122, 28.03.2021
    bau2122

    bau2122

    Dabei seit:
    28.03.2021
    Beiträge:
    55
    Zustimmungen:
    3
    Sorry, dachte das es aus dem Plan zu ersehen ist.

    Hoffe es ist jetzt besser.

    Der Betrag ist bis 40.000€ da.
    Hier ist nichts geplant.

    Dann bitte warum?

    Ja das ist richtig.
    Grundstück ist 8000m²
     
  5. #5 driver55, 28.03.2021
    Zuletzt bearbeitet: 28.03.2021
    driver55

    driver55

    Dabei seit:
    22.02.2008
    Beiträge:
    6.898
    Zustimmungen:
    1.809
    Beruf:
    Dipl.-Ing.
    Ort:
    Pforzheim
    Ich sehe hier einen ca. 1,2 m breiten und ca. 30 m langen Schlauch.

    Auf die einzelnen Räumlichkeiten / Details muss man nicht eingehen. Lohnt (m.M.n.) nicht.

    ca. 285 m² --> 400.000 EUR:not_w1:
     

    Anhänge:

    Kriminelle gefällt das.
  6. #6 Kriminelle, 29.03.2021
    Kriminelle

    Kriminelle

    Dabei seit:
    16.05.2013
    Beiträge:
    3.747
    Zustimmungen:
    2.072
    Beruf:
    .
    Ort:
    Niedersachsen
    Der langgezogene Bau auf großem Grundstück mit den Platzhalterelementen kommt mir sehr bekannt vor.
    Da wurde dann aber noch ein Kämmerchen für Mutter zw SZ und Bad mit eingeplant.
    Hat jemand den Thread parat?
    @bau2122 warum knüpfst Du da nicht an? Ein Entwurf ist ein Prozess, für den man sich nicht schämen braucht. Oder willst Du jetzt für jeden Neuentwurf einen neuen Account anlegen? Hihi, der Architekt nimmt auch nen neuen Kunden, wenn er mit seinem Entwurf daneben liegt ?!
     
  7. #7 11ant, 29.03.2021
    Zuletzt bearbeitet: 29.03.2021
    11ant

    11ant

    Dabei seit:
    28.02.2017
    Beiträge:
    2.501
    Zustimmungen:
    1.578
    Beruf:
    Bauherrenberater
    Ort:
    RLP Nord
    Benutzertitelzusatz:
    bringt Sie gut beraten ins Eigenheim
    Ja - aber nicht hier, sondern von "bau2022" ;-) im orangen Forum: Neubau Aussenbereich EFH Massiv
     
    hanghaus2000, Kriminelle und Blackpiazza gefällt das.
  8. #8 driver55, 29.03.2021
    driver55

    driver55

    Dabei seit:
    22.02.2008
    Beiträge:
    6.898
    Zustimmungen:
    1.809
    Beruf:
    Dipl.-Ing.
    Ort:
    Pforzheim
    Ich hab da mal rübergeschielt. Ja, das ist der selbe "Maler". Die Diskussion ging aber nach 3 Tagen aus wie das Hornberger Schiessen.
    Vermutlich wird das Gemalte so lange in Foren eingestellt, bis "Super, gefällt mir kommt". Aber so viele Bauforen gibt es doch gar nicht.:biggthumpup:

    @bau2122: Jetzt mal ernsthaft, was ist die Intention Deiner geistigen Ergüsse zum Thema Haus bzw. Grundriss? Das kann irgendwie nicht ernst gemeint sein.
    Was machst du denn, wenn du keine 30 m-Gebäude-für-2-Personen-planst?

    Hast dich schon mal getraut, das einem Archi vorzulegen?:deal
    9 von 10 Architekten verdrehen vermutlich die Augen und oder fallen direkt vor Lachen vom Chefsessel.
    Könnten aber auch in sich schmunzeln und die große Kohle im Visier haben. Viele (unnütze) m², viele €.;)
     
    11ant gefällt das.
  9. #9 Osnabruecker, 29.03.2021
    Osnabruecker

    Osnabruecker

    Dabei seit:
    24.11.2020
    Beiträge:
    462
    Zustimmungen:
    228
    Aber ich würde auf jedenfall nur Phase 1-4 machen.
    Wer will schon dafür Angebote einholen und das Wunderwerk betreuen??
     
    11ant und Jo Bauherr gefällt das.
  10. #10 DoItYOURSELF85, 07.12.2022
    DoItYOURSELF85

    DoItYOURSELF85

    Dabei seit:
    30.11.2022
    Beiträge:
    98
    Zustimmungen:
    16
    @bau2122
    Und was ist jetzt mit eurem Haus geworden?
    Wohnt ihr schon drin??
     
  11. #11 bau2122, 07.12.2022
    bau2122

    bau2122

    Dabei seit:
    28.03.2021
    Beiträge:
    55
    Zustimmungen:
    3
    Warum fragst Du?
    Nein wohnen nicht drin.

    Wie schon geschrieben, mache ich das meiste in Eigenleistung und das dauert entsprechend.
    Haben vor drei Wochen den Dachstuhl bekommen und die Dachdecker wollen nächste Woche starten.
     
    hanghaus2000 gefällt das.
  12. #12 DoItYOURSELF85, 07.12.2022
    DoItYOURSELF85

    DoItYOURSELF85

    Dabei seit:
    30.11.2022
    Beiträge:
    98
    Zustimmungen:
    16
    Nur so aus Interesse.
    Viele Leute hier setzen ihre Gedanken / Pläne rein und dann weiß man nicht wie es "ausgegangen" ist

    Wann habt ihr denn angefangen zu bauen?
    Habt doch schon vor fast 2 Jahren!!! Den thread hier angefangen!
    Da ging ich davon aus, daß ihr schon längst drin wohnt, auch wenn du/ihr das meiste in Eigenleistung macht. War bei uns genauso!! (von Baubeginn bis Einzug ca. 10 Monate mit Pause. Ca. 70% Eigenleistung)
    Was machst du denn alles selbst?
    Was lässt du machen?

    Habt ihr euren Grundriss mit der riesigen Länge so gelassen?
     
  13. #13 nordanney, 07.12.2022
    nordanney

    nordanney

    Dabei seit:
    15.09.2021
    Beiträge:
    6.329
    Zustimmungen:
    3.648
    Beruf:
    Finanzierer/Investor/Bau- und Sanierungslaie
    Ort:
    Niederrhein
    Wir wissen in allen Foren inzwischen, dass Du toll bist. Aber überall hörst Du auch, dass Dein Hausbau nicht der Norm entspricht. Nerv nicht...

    Der Zeitrahmen bei TE ist eher üblich für Selberbauer.
     
    Viethps und Maape838 gefällt das.
  14. #14 DoItYOURSELF85, 07.12.2022
    Zuletzt von einem Moderator bearbeitet: 07.12.2022
    DoItYOURSELF85

    DoItYOURSELF85

    Dabei seit:
    30.11.2022
    Beiträge:
    98
    Zustimmungen:
    16
    Nicht der norm zu entsprechen kann sehr positiv sein! LASS DEN QUATSCH!!!. Daher kann ich sehr gut damit leben nicht zu einem bestimmten "mainstream" zu gehören :)

    Zum Zeitrahmen : alle bekannte und Freunde die selber Bauer waren, sind unter 1 Jahr Bauzeit eingezogen ;)
     
  15. #15 nordanney, 07.12.2022
    nordanney

    nordanney

    Dabei seit:
    15.09.2021
    Beiträge:
    6.329
    Zustimmungen:
    3.648
    Beruf:
    Finanzierer/Investor/Bau- und Sanierungslaie
    Ort:
    Niederrhein
    Das mag auf dem toten platten Land so sein. Wer aber normal 40-60 Stunden arbeitet, eine Familie (mit Kindern) und ein Leben hat (in der Prärie gibt es vielleicht nur den Heimatverein oder die Dorffeuerwehr), der baut nicht selbst in einem Jahr. Also vergleich Dich nicht mit allen normalen Häuslebauern.
    Andere wirst Du hier und im anderen Forum nicht finden - das weißt Du aber. Geh in einer DIY Forum, da bist Du besser aufgehoben. Gerade hier kommst Du mit umfassenden Eigenleistungen nicht weit. Hier gibt es Bauexperten = Fachleute und keine Laien. Höchstens Laienfragen.
     
  16. #16 DoItYOURSELF85, 07.12.2022
    DoItYOURSELF85

    DoItYOURSELF85

    Dabei seit:
    30.11.2022
    Beiträge:
    98
    Zustimmungen:
    16
    Ok. Danke für deine offene Meinung...
     
  17. #17 hanghaus2000, 07.12.2022
    hanghaus2000

    hanghaus2000

    Dabei seit:
    24.11.2021
    Beiträge:
    1.520
    Zustimmungen:
    630
    Beruf:
    Bauleiter, Kalkulator, Controller, Salzdesign
    Ort:
    Bayern
    Bei DIY Planung im Aussenbereich sowieso. Allerdings wuerde mich auch interessieren wie der Plan des Bauantrags ausgesehen hat.
     
  18. #18 bau2122, 07.12.2022
    bau2122

    bau2122

    Dabei seit:
    28.03.2021
    Beiträge:
    55
    Zustimmungen:
    3
    Sind im Feb. anfangen, 1 Monat nach der Baugenehmigung.

    Ich denke nicht, das Du das alleine geschafft hast.
    Selber machen heißt nicht, dass alle Freunde kommen und Dir dann helfen.
    Ich mauere alleine und auch den Beton mische ich allein und verarbeitet diesen dann.
    Nebenbei arbeitete ich noch 40Stunden.

    Beim Dach bin ich leider raus, das ich nicht 100% Höhen fest bin.

    Für große Sachen (Bodenplatte, ...) kommt dann das Bauunternehmen.

    Ja die Größe ist geblieben, auch das OG bauen wir direkt mit aus.
     
    hanghaus2000 gefällt das.
  19. 11ant

    11ant

    Dabei seit:
    28.02.2017
    Beiträge:
    2.501
    Zustimmungen:
    1.578
    Beruf:
    Bauherrenberater
    Ort:
    RLP Nord
    Benutzertitelzusatz:
    bringt Sie gut beraten ins Eigenheim
    Es gib zumindest einen, der macht es umgekehrt: diskutiert ein (wenn ich recht verstanden habe) schon in die Wirklichkeit hinübergeholtes Wunschhaus, und zieht dessen zeichnerische Darstellung dann wieder weg :-(
    Erzähl´ mal mehr ... in welchen Foren ?
     
  20. #20 hanghaus2000, 07.12.2022
    hanghaus2000

    hanghaus2000

    Dabei seit:
    24.11.2021
    Beiträge:
    1.520
    Zustimmungen:
    630
    Beruf:
    Bauleiter, Kalkulator, Controller, Salzdesign
    Ort:
    Bayern
    Den Beitrag hat wer zugemacht.
     
Thema:

Neubau Meinungen

Die Seite wird geladen...

Neubau Meinungen - Ähnliche Themen

  1. Neubau Meinung zum Grundriss (Staffelgeschoss, Aufteilung, Ausrichtung am Grundstück)

    Neubau Meinung zum Grundriss (Staffelgeschoss, Aufteilung, Ausrichtung am Grundstück): Hallo zusammen, seit einiger Zeit lese ich hier viel mit und da wir selber in den Planungen stecken, habe ich mich hier angemeldet um auch...
  2. Eure Meinung zu Wohn-und Essbereich

    Eure Meinung zu Wohn-und Essbereich: Hallo, ich möchte nächstes Jahr bauen und bin momentan in der Planungsphase. Ich habe einen ersten Entwurf vom Planzeichner, der mir auch ganz...
  3. Neubau: Meinung zum Grundriss + Keller / Teilkeller oder andere Lösungen

    Neubau: Meinung zum Grundriss + Keller / Teilkeller oder andere Lösungen: Tag zusammen. Wir sind z.Z. ganz am Anfang beim Hausbau. Geplant ist ein Doppelhaus zu bauen mit etwa einer 2/3 zu 1/3 Grundflächenaufteilung....
  4. Neubau - Kelleboden feucht, seit Einbau der Fenste -Experten-Meinung

    Neubau - Kelleboden feucht, seit Einbau der Fenste -Experten-Meinung: Hallo liebe Forumgemeinde, Bauexperten im Februar hat endlich unser Neubau ( EFH mit Keller) gebaut von einem GU aus Hessen begonnen. Da das...
  5. Neubau Bungalow - Grundriss Meinungen

    Neubau Bungalow - Grundriss Meinungen: Hallo erstmal, wir haben in Mittelfranken ein 855qm großes Grundstück gekauft. Es ist das letzte in der Reihe und stand jetzt ca 40 Jahre leer...