Neuer Entwurf Zweifamilienhaus

Diskutiere Neuer Entwurf Zweifamilienhaus im Architektur Allgemein Forum im Bereich Architektur; was willst du denn machen, wenn du mal wirklich ein kompliment bekommst? Ich geb dir bescheid wenn es das erste mal passiert ;) Oliver, Du hast...

  1. #41 Oliver82, 20.07.2012
    Oliver82

    Oliver82

    Dabei seit:
    03.02.2012
    Beiträge:
    606
    Zustimmungen:
    0
    Beruf:
    Ingenieur
    Ort:
    BW
    Ich geb dir bescheid wenn es das erste mal passiert ;)

    Ich habe wirklich kein Problem dem Planer zu sagen er muss nochmal ran! aber soll ich Ihm einfach sagen er soll nochmal alles neu machen? Er wird doch sicher wissen wollen was gefällt und was nicht bzw in welche richtung es gehen soll... oder kommen eure kunden wirklich zu euch u sagen "nö gefällt nicht, nochmal neu!"

    bezieht sich das auf das OG vor oder nach den Änderungen?

    Weil ich hätte dem Planer jetzt mein geändertes OG hingelegt und gesagt: "schau mal so in diese Richtung stellen wir es uns vor... gut wäre es wenn es eine Lösung für die Fenstersituation Kizi2 gäbe"

    Ich werde dann wohl den nächsten Termin mit dem Architekten machen und mich dann hier mit Entwurf Nr 3 zurückmelden :)
     
  2. #42 Ralf Dühlmeyer, 20.07.2012
    Ralf Dühlmeyer

    Ralf Dühlmeyer

    Dabei seit:
    14.06.2005
    Beiträge:
    34.296
    Zustimmungen:
    24
    Beruf:
    Architekt
    Ort:
    Hannover
    Nein - deswegen schrieb ich:
    Nicht selber zeichnen, sondern ihm verbal (oder schriftlich) geben, was Ihr an seinem Entwurf gut findet und was nicht so gut.
    Das hilft ihm mehr als Deine Zeichnung, denn die suggeriert, alles wäre gut bis auf Deine Änderungen. Ist es ja aber nicht, Deine Änderungen sind nur ein (mißlungener) Versuch der Verbesserung.

    Auf beide :D

    Ich geb ja gern zu, dass diese Aufgabe nicht 08/15 ist, sondern ordentlich Hirnschmalz erfordert und vielleicht auch Kompromisse erfordern wird - auf allen Seiten.
    Aber so muss man da auch nicht rausgehen.
     
  3. #43 Oliver82, 03.08.2012
    Oliver82

    Oliver82

    Dabei seit:
    03.02.2012
    Beiträge:
    606
    Zustimmungen:
    0
    Beruf:
    Ingenieur
    Ort:
    BW
    Hallo zusammen,

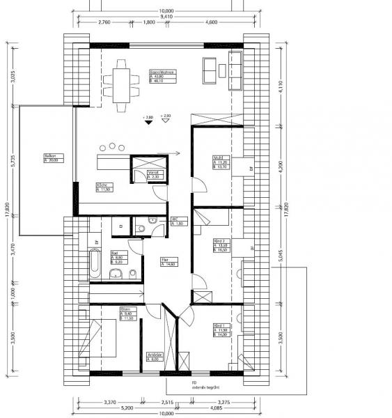
    die nächsten Entwürfe sind da, und ich wollte keinen neuen Thread extra dafür aufmachen.

    Hauptsächlich am EG wurde dieses mal geschraubt. Ich behalte meine Meinung erstmal für mich und warte ab wie die Resonanz der vereinten Profis hier ausfällt ^^...

    Wobei die 45° Ecke im OG kann ich doch nicht unkommentiert lassen.. hat diese irgendeinen zweck außer die Räume zu beschneiden und optisch blöd auszusehen? denkt Sie euch am besten "geradegebügelt"... ich vermute das war ein Überbleibsel aus dem letzten Entwurf....



    EG.jpg Keller.jpg OG.jpg
     
  4. #44 Gast036816, 03.08.2012
    Gast036816

    Gast036816 Gast

    es sind noch zu viele überbleibsel aus dem alten entwurf.

    im eg sehe ich immer noch den unruhigen wandverlauf im bereich küche, ab, wohnen. hier fehlt eine klare linie und damit eine vernünftige struktur.
    das og ist bis auf küche nach wie vor verkrampft. kinderzimmer nach wie vor nur mit dff. die käseecke hast du selbst kommentiert.

    der kellergrundriss wirkt einigermaßen aufgeräumt und klar strukturiert.

    ihr solltet euch von den alten entwürfen komplett lösen.
     
  5. #45 Oliver82, 15.08.2012
    Oliver82

    Oliver82

    Dabei seit:
    03.02.2012
    Beiträge:
    606
    Zustimmungen:
    0
    Beruf:
    Ingenieur
    Ort:
    BW
    Hallo Zusammen,

    Ich warte derzeit noch auf einen neuen Entwurf meines Architekten der derzeit im Urlaub ist.

    Da ich allerdings nicht so lange die Finger still halten konnte, habe ich mich einmal selbst an die Grundrisse gesetzt und mir überlegt wie ich es mir vorstellen könnte bzw um meine Überlegungen einfach mal visuell vor mir zu haben.. Ich habe einfach die letzten Entwurfspläne als Grundlage genommen und etwas angepasst...
    Deshalb fehlen auch teilweise die m² Angaben bzw die Bemaßung am Rande stimmt nicht mehr mit den Räumen überein

    Kommentare/Vorschläge?

    überarbeitungEG2.jpg überarbeitungOG2.jpg überarbeitungOst2.jpg überarbeitungSüd2.jpg
     
  6. #46 Ralf Dühlmeyer, 15.08.2012
    Ralf Dühlmeyer

    Ralf Dühlmeyer

    Dabei seit:
    14.06.2005
    Beiträge:
    34.296
    Zustimmungen:
    24
    Beruf:
    Architekt
    Ort:
    Hannover
    und was daran soll auch nur einen hauch besser sein ?
     
  7. #47 Oliver82, 15.08.2012
    Oliver82

    Oliver82

    Dabei seit:
    03.02.2012
    Beiträge:
    606
    Zustimmungen:
    0
    Beruf:
    Ingenieur
    Ort:
    BW
    Im OG z.B. 2 gleich große Kinderzimmer mit "richtigen" Fenstern.. im EG klar strukturierter, großzügiger Ess/Wohn/Kochbereich der sich mittels Schiebetür schliesen lässt, offenerer/hellerer Eingangsbereich im Eg etc...

    anders gesagt: was gefällt nicht bzw wo sind die Probleme? (Ich glaube dir gerne das welche da sind ^^)
     
  8. #48 Ralf Dühlmeyer, 15.08.2012
    Ralf Dühlmeyer

    Ralf Dühlmeyer

    Dabei seit:
    14.06.2005
    Beiträge:
    34.296
    Zustimmungen:
    24
    Beruf:
    Architekt
    Ort:
    Hannover
    Wenn ein Besucher nach zwei Fehlversuchen (Garagentor und Wohnungstür zum OG) endlich die richtige Tür gefunden hat, betritt er die EG Wohnung durch den Eingangsschlauch, bei dem nicht nur der Lover im Kleiderschrank verschwindet, wenn Besuch kommt - weil die Haustür sonst nicht weit genug geöffnet werden kann!

    Nachdem der Besuch dann wie dereinst bei Willibald dem Schröcklichen nach langem Flur kein Licht am Ende des Tunnels sieht, sieht er zeitgleich die Dame des Hauses auf dem Weg vom Bad zum Bekleiden im Schlafgemach - allerdings nur schemenhaft mangels ausreichender (Tageslicht)Belichtung in dem gesamten Bereich!
    Ob das und wenn für wen vorteilhaft ist, lassen wir dahingestellt, zumal der Besucher ersteinmal den Eindruck des Arbeitszimmers verarbeiten muss, dessen Tür er der Logik folgend und mangels der Kenntnis des genius loci geöffnet hatte, um in den Wohnraum zu gelangen.
    Sollte der Hausherr ihn entsprechend instruiert haben, findet er dieselbe Tür nach einem scharfen 90° Schwenk und scheitert an der ungewohnten Schiebetür.
    Da macht es dann durchaus Sinn, dass sich der Raum nach durchqueren des Türlochs nur zu einer Seite unmittelbar öffnet. So kann der Besuch seine verwirrten Sinne und seine von Helligkeit geblendeten Augen einen Augenblick der Aklimatisation gönnen, in dem er sich am eingeschobenen Arbeitszimmer entlang zum Sofa tastet.

    Den Zugang zur OG Wohnung findet ein Besucher mit deutlich weniger Aufwand, was allerdings mit einer Eingangssituation gleich der zu einem anonymen Bürohochhaus nicht wirklich belohnt wird.
    Nach Ersteigen einer klammgleichen Geschoßtreppe steht der Besucher auch hier wortwörtlich und auch im übertragenen Sinne im Dunkeln.
    Mangels Licht testet er die ihm dargebotenen Türen und trifft auf diverse Schlaf- und Kinderräume.
    Das dabei ebenfalls erfolgende Erkunden der Lage der Naßzellen erspart die vielen oft peinliche Frage nach der Lage derselben mitten in der späteren Konversation.
    Die sinnvolle Wand zum entlangtasten wurde konsequent und sinnvoll auch im OG umgesetzt, um auch hier dem verwirrten Besucher Gelegenheit zur geblendeten Orientierung zu geben.

    Die Dame des Hauses ist dank der langen und anstregenden Wege mit den Einkäufen gertenschlank und steuert die ersparten Fitnesscenterbeiträge zur Finanzierung des Hauses bei.

    Reicht Dir das?
     
  9. #49 Thomas B, 15.08.2012
    Thomas B

    Thomas B

    Dabei seit:
    17.08.2005
    Beiträge:
    11.181
    Zustimmungen:
    4
    Beruf:
    Dipl.Ing.
    Ach wißt Ihr.....was soll man dazu sagen?????

    Ich sehe hier einige (kleinere) Änderungen, aber keinen Substantiellen Fortschritt. Ihr wollt an diesem grundsätzlichen Konzept festhalten...so sieht's wohl aus....na dann: Nur zu.

    Nochmals alle widerkäuen.....habe ich keine Lust, ehrlich. Gedulde Dich doch einfach, bis Dein Planer aus seinem Urlaub zurück ist.....
     
  10. #50 Oliver82, 15.08.2012
    Oliver82

    Oliver82

    Dabei seit:
    03.02.2012
    Beiträge:
    606
    Zustimmungen:
    0
    Beruf:
    Ingenieur
    Ort:
    BW
    :bef1003:



    Ich gebe zu, manche dieser Dinge sehe ich jetzt nicht ganz so schlimm wie du, aber es gibt trotzdem Material zum nachdenken ;)

    Da die meisten diese Kritikpunkt allerdings auch schon im letzten Architektenentwurf enthalten waren, gehe ich davon aus dass dieser auch nicht gerade auf gegenliebe deinerseits gestoßen ist ^^


    Ich muss unbedingt mit dem Architekten abklären wie er noch ein paar m extra einbauen könnte... evtl noch die ein oder andere Hürde... da tun sich ganze neue möglichkeiten auf ! :)
     
  11. Baumal

    Baumal

    Dabei seit:
    02.08.2007
    Beiträge:
    16.077
    Zustimmungen:
    8
    Beruf:
    Architekt
    Ort:
    Ravensburg
    @ ralf, dein literarischer tag heute? :D
     
  12. #52 Oliver82, 15.08.2012
    Oliver82

    Oliver82

    Dabei seit:
    03.02.2012
    Beiträge:
    606
    Zustimmungen:
    0
    Beruf:
    Ingenieur
    Ort:
    BW
    Nein wirklich nicht! aber bis jetzt hatte ich einfach noch nicht die enscheidende erleuchtung...

    Die letzten Entwürfe waren ja vom Planer und wurde ja auch nicht gerade gelobt ^^... d.h. da kann ich dann auch nur hoffen dass dieser eine Eingabe hat und sich auf einmal alles fügt...

    Einige Dinge sind da einfach etwas komplizierter zu lösen... der Eingang zum OG ist z.b. zwangsläufig eher am östlichen Ende des Hauses und die Küche eher am westlichen... Die Küche ist auch zwangsläufig im OG und das haus wird auch nicht viel kürzer als die jetzigen 18m werden... ein kurzer weg in die Küche wird sich also alleine durch diese rahmenparameter kaum realisieren lassen...

    Das ist jetzt nur 1 Beispiel und ich will nicht sagen dass sich die anderen Dinge nicht viel besser lösen lassen... aber manche Dinge scheinen hier eben nicht so einfach lösbar zu sein... Und Ich will mich nicht nur einfach auf meinen planer verlassen sondern parallel versuchen zumindest im groben ein alternatives Raumaufteilungskonzept zu erarbeiten
     
  13. #53 Ralf Dühlmeyer, 15.08.2012
    Ralf Dühlmeyer

    Ralf Dühlmeyer

    Dabei seit:
    14.06.2005
    Beiträge:
    34.296
    Zustimmungen:
    24
    Beruf:
    Architekt
    Ort:
    Hannover
    Doch - das Thema Wege ist lösbar. Man muss sich nur vom bisherigen Konzept lösen.

    Das ist sicher nichts, was man mit 2 Skizzen auflösen kann. Ich denke eher 10 bis zu einem ersten vorzeigbaren Strichkonzept wirds schon brauchen.
    Aber ich halte es für lösbar!
     
  14. #54 Gast036816, 15.08.2012
    Gast036816

    Gast036816 Gast

    wenigstens hat er es schon mal geschafft ein kinderzimmer mit dem elternschlafraum zu tauschen. das kind hat jetzt ausblich aus einem normalen fenster und er liegt mit dem kopf unter einem dachflächenfenster mit reichlich kniestock?

    die 45°-ecke im og ist weg.

    reichlich eingänge und laufwege im eg - sonst sehe ich erst einmal nichts. besser ist es noch nicht.
     
  15. #55 Oliver82, 15.08.2012
    Oliver82

    Oliver82

    Dabei seit:
    03.02.2012
    Beiträge:
    606
    Zustimmungen:
    0
    Beruf:
    Ingenieur
    Ort:
    BW
    Kniestock beträgt derzeit 110cm... würde das ausreichen? Da gibt es doch bestimmt irgendwelche Regeln bzw Mindesthöhen am Kopfende eines Bettes die man einhalten sollte oder?

    Ich habe jetzt einfach mal versucht die Kritikpunkte von Ralf im EG anzugehen.

    da wären unter anderem gewesen:
    - langer/unklarer Weg Eingang ->Wohnzimmer
    - zu enger Eingangsbereich
    - übergang Bad/Schlafzimmer im direkten Sichtbereich der Wohnzimmertür
    - zu dunkel im Flur

    Im Übergang zum Schlafzimmer ist der Flur natürlich mangels Fenster weiterhin nicht der hellste, der vordere Bereich der auch von Besuchern genutzt wird sollte nun aber besser nutzbar sein und auch die Verwechlungsgefahr der Zimmer sollte behoben sein ^^

    besser? oder nur anders? :)

    überarbeitungEG3.jpg
     
  16. #56 Ralf Dühlmeyer, 15.08.2012
    Ralf Dühlmeyer

    Ralf Dühlmeyer

    Dabei seit:
    14.06.2005
    Beiträge:
    34.296
    Zustimmungen:
    24
    Beruf:
    Architekt
    Ort:
    Hannover
    Oliver - ich bin ja hier auch für die harten bösen Ansagen zuständig, daher zitiere ich mal einen Indianerspruch:

    Wenn Du merkst, dass Du ein totes Pferd reitest, solltest Du absteigen.

    Du steigst nicht, Du versucht im Augenblick, den Gaul durch Wechsel von Sattel, Zaumzeug oder Reitstiefel wieder ans Laufen zu bringen. Vergiss es. Tot, ist tot - ende aus. Egal, wie sehr Du ihm die Sporen gibst.
     
  17. #57 Gast036816, 15.08.2012
    Gast036816

    Gast036816 Gast

    das hängt ganz von deinen gewohnheiten ab, wie du morgens aufstehst oder die gewohnheiten, die du dir dann noch angewöhnst. ich würde kein bett so planen!
     
  18. #58 Oliver82, 15.08.2012
    Oliver82

    Oliver82

    Dabei seit:
    03.02.2012
    Beiträge:
    606
    Zustimmungen:
    0
    Beruf:
    Ingenieur
    Ort:
    BW
    Hast du hier einen Richtwert den du empfehlen würdest? 120? 130? Ich bin mit meinen 175cm jetzt auch nicht gerade ein Riese...

    Es sollte halt so dimensioniert sein, dass ich im Bett sitzen kann, ohne mit dem Kopf an der Decke zu schleifen.
     
  19. #59 ManfredH, 15.08.2012
    ManfredH

    ManfredH Gast

    Meine Regel dazu heisst "je höher der Kniestock, desto scheusslicher die Proportionen in der Ansicht" .... und die trifft in den meisten Fällen zu.
    ergo: wenn man schon über Kniestockhöhen spekuliert, sollte man das nicht nur allein an der Bett-Kopfhöhe oder irgendwelchen theoretischen Richtwerten festmachen, sondern vielleicht auch mal die Ansichten dazu zeichnen und berücksichtigen.
     
  20. #60 Gast036816, 15.08.2012
    Gast036816

    Gast036816 Gast

    ein bett mit dem kopfende unter einem kniestock anzuordnen würde mir nicht im traum einfallen. dreh das bett und stell es an eine wand, die raumhoch ist.
     
Thema:

Neuer Entwurf Zweifamilienhaus

Die Seite wird geladen...

Neuer Entwurf Zweifamilienhaus - Ähnliche Themen

  1. Schockiert über neu eingebaute Dachflächenfenster

    Schockiert über neu eingebaute Dachflächenfenster: Hallo zusammen, ich bin gerade super traurig und ratlos und geschockt wegen meiner Dachsanierung. Da ich damit allein bin, wollte ich hier mal...
  2. Neues Haus in altem Gewand

    Neues Haus in altem Gewand: Moin! Nachdem im Bekanntenkreis wieder einmal ein altes Haus gekauft wurde, weil sie sich "irgendwie in das Haus verliebt haben" und nun die...
  3. Neue Entwürfe/Was sagt ihr!?

    Neue Entwürfe/Was sagt ihr!?: Liebe Forenmitglieder, in meinem Beitrag: Grundriss Neubau/Frage zur Überdachung daneus26 (20.05.2011 11:08) habe ich von unserem Hausbau...
  4. Neuer Entwurf...

    Neuer Entwurf...: Schönen Nikolaus allen :) Da gabs wohl in der Entwurfsphase unterschiedliche Prioritäten :winken [IMG]
  5. Unser neues Haus (Entwurf)

    Unser neues Haus (Entwurf): Hallo Expertengemeinde, hallo Mit-(bald)-Bauherren, hier mal einer unserer (zur Zeit favorisierte) Entwürfe für unser neues Haus. [IMG]...