Neuer Entwurf Zweifamilienhaus

Diskutiere Neuer Entwurf Zweifamilienhaus im Architektur Allgemein Forum im Bereich Architektur; ein bett mit dem kopfende unter einem kniestock anzuordnen würde mir nicht im traum einfallen. dreh das bett und stell es an eine wand, die...

  1. #61 Oliver82, 16.08.2012
    Oliver82

    Oliver82

    Dabei seit:
    03.02.2012
    Beiträge:
    606
    Zustimmungen:
    0
    Beruf:
    Ingenieur
    Ort:
    BW
    Das Problem ist dann aber, dass ich am Durchgang dann die Dachschräge habe.. mit einem ~3,3m breiten Raum wie im Plan könnte ich es dann vergessen, da müsste ich sonst mit eingezogenem Kopf auf meine Seite des Bettes schleichen.

    Der Durchgang vor dem Bett sollte ja schon ~90-100cm haben, bei einer höhe von min 180cm... Kniestock von 110cm und Dachschräge von 38° -> ~90cm Abstand von der Wand bis ich auf den 180cm bin.

    90+100+210 = 4m Raumbreite... Im Kniestock könnte man dann evtl Einbauschränke realisieren..

    Die andere Möglichkeit wäre es das Bett doch unter die Dachschräge zu stellen aber eben mit entsprechendem Abstand zu Wand, so dass die Deckenhöhe am Kopfende ~150cm beträgt, da sollte dann auch ein schmerzfreies hinlegen und aufstehen möglich sein... muss ich beide Varianten mal durchdenken...

    Dadurch, dass das Haus ja relativ groß ist würde ein Kniestock von 110cm oder auch etwas mehr imho nicht unpassend aussehen. Die Ansichten mit 110cm Kniestock habe ich ja gepostet.
     
  2. #62 Oliver82, 18.08.2012
    Oliver82

    Oliver82

    Dabei seit:
    03.02.2012
    Beiträge:
    606
    Zustimmungen:
    0
    Beruf:
    Ingenieur
    Ort:
    BW
    Ich habe mir nach der letzten Kritik von euch Gedanken gemacht, wie man die Eingangs/Treppensituation im OG anders lösen könnte, mit dem ziel näher am Wohnbereich die Treppe hoch zu kommen.

    Die Grundrisse sind nicht auf den cm genau ausgefeilt, auch die Fenster und die einrichtung sind erstmal relativ willkürlich platziert... mir geht es mehr um das Potential der jetzigen Eingangs/Treppensituation im vergleich zu den vorherigen Grundrissen.


    für Kritik/Kommentare wäre ich dankbar.

    Den Anhang 31475 betrachten Den Anhang 31476 betrachten Den Anhang 31477 betrachten Den Anhang 31478 betrachten
     
  3. #63 Gast036816, 18.08.2012
    Gast036816

    Gast036816 Gast

    kritik: die anhänge werden alle als ungültig bezeichnet, ich bekomme keinen geöffnet.
     
  4. #64 Oliver82, 18.08.2012
    Oliver82

    Oliver82

    Dabei seit:
    03.02.2012
    Beiträge:
    606
    Zustimmungen:
    0
    Beruf:
    Ingenieur
    Ort:
    BW
    jetzt besser?

    überarbeitungSüd6.jpg überarbeitungOG6.jpg überarbeitungEG6.jpg
     
  5. #65 Oliver82, 22.08.2012
    Oliver82

    Oliver82

    Dabei seit:
    03.02.2012
    Beiträge:
    606
    Zustimmungen:
    0
    Beruf:
    Ingenieur
    Ort:
    BW
    Ich habe nochmals etwas am EG gedreht...

    Kommentare zu den neuen Grundrissen?
    Ende der Woche kommt der Architekt wieder und da würde ich gerne mit ihm reden ob es nicht sinnvoll wäre die Eingänge wie in meinen Änderungen auf die Nordseite zu legen, um so eher mittig ins Haus zu kommen.

    überarbeitungOG6.jpg überarbeitungEG7.jpg
     
  6. #66 Gast036816, 22.08.2012
    Gast036816

    Gast036816 Gast

    glaubst du ernsthaft, dass du mit einem 3 m breitem wohnzimmer im eg begeisterungsstürme entfachen wirst?

    nicht wirklich. lass es bleiben und warte, bis dein architekt aus dem urlaub zurück ist. je mehr du in den grundrissen wände und möbel hin und her schiebst, umso schlimmer wird es.

    den entwurf solltest du ganz schnell in in die reststoffverwertung geben.
     
  7. #67 Oliver82, 22.08.2012
    Oliver82

    Oliver82

    Dabei seit:
    03.02.2012
    Beiträge:
    606
    Zustimmungen:
    0
    Beruf:
    Ingenieur
    Ort:
    BW
    diese Trennwand war der Wunsch meiner Eltern... weil ursprünglich hatte ich die Weggelassen... ich glaube das Wohn/Esszimmer sollte im allgemeinen groß genug geraten sein.

    was wäre denn noch schlecht gelöst? ich will ja dazulernen, damit ich die Entwürfe meines Planers dann selbst auf Probleme etc abklopfen kann. Ich gebe mir durchaus Mühe darauf zu achten dass die Räume eine vernünftige Größe/Abstandsflächen etc haben aber es gibt natürlich immer wieder details an die Ich nicht gedacht habe.
    Es ist nicht mein Ziel genau so einen Entwurf von mir dem Planer zu geben und zu sagen "mach mal"

    Gerade im EG sind viele Wünsche meiner Eltern eingeflossen (wie die Trennwand)... Da müssen meine Eltern wissen was sie wollen... Für mich wären auch Kommentare zum OG gut, da das ja dann meine Wohnung werden wird. Was geht da z.b. gar nicht?
     
  8. #68 Gast036816, 22.08.2012
    Gast036816

    Gast036816 Gast

    wir sind jetzt bei #67 und bisher ist der entwurf schlechter geworden und nicht besser. es ist sicher angebracht, dass ihr über einen neustart beim enntwurf nachdenkt. mit den vielen verschlimmänderungen bist du doch bisher nicht weiter gekommen, eher sind rückschritte zu verzeichnen.
     
  9. #69 Oliver82, 22.08.2012
    Oliver82

    Oliver82

    Dabei seit:
    03.02.2012
    Beiträge:
    606
    Zustimmungen:
    0
    Beruf:
    Ingenieur
    Ort:
    BW
    Ich will da ja garnicht lange dagegen diskutieren.. Wenn du sagst die grundrisse sind schlecht, dann wird das vermutlich schon so sein.. Ich versuche allerdings zu begreifen was schlecht ist, damit ich solche fehler zukünftig erkennen/vermeiden kann.

    Ich habe z.B. versucht im OG die vorher kritisierten Dinge abzustellen. Bett unter zu niedrigem Kniestock, Treppe bei Kinder/Schlafzimmer z.B.

    Auch bei einem Neustart ist ja nicht gesagt dass die gleichen Fehler nicht erneut gemacht werden wenn ich die Fehler nicht kenne
     
  10. #70 Thomas B, 22.08.2012
    Thomas B

    Thomas B

    Dabei seit:
    17.08.2005
    Beiträge:
    11.181
    Zustimmungen:
    4
    Beruf:
    Dipl.Ing.
    Ich habe nach 68 Beiträgen nicht das Gefühl, daß dies eine angedachte Option ist.

    Eher soll hier (...weiterhin mit fachkundiger Unterstützung?!) etwas Großes bei rauskommen.....
     
  11. #71 Oliver82, 22.08.2012
    Oliver82

    Oliver82

    Dabei seit:
    03.02.2012
    Beiträge:
    606
    Zustimmungen:
    0
    Beruf:
    Ingenieur
    Ort:
    BW
    warum so zynisch Thomas?

    Ich habe in den letzten Entwürfen das äußere des Hauses sowie die Raumaufteilung geändert. Sogar die Eingangstüren sind auf eine andere Seite gewandert. Beim OG hat sich von der Raumaufteilung nicht wirklich viel getan, das gebe ich gerne zu. Hier hat allerdings auch noch niemand gesagt was an der aktuellen Aufteilung so schlecht ist. das einzige was mich da momentan noch etwas stört, ist dass der Flur je nachdem im Bereich der Schlafzimmer ohne viel natürliches Licht auskommen muss.

    Wie gesagt, neu machen ist nicht das Problem, die Frage ist: welche Fehler des jetzigen Entwurfes sollte ich dann vermeiden? Oder geht ihr einfach munter los und zeichnet einen Entwurf und schaut ihn euch danach an, erkennt die Fehler und werft ihn weg? Das ganze wiederholt ihr dann beliebig oft bis irgendwann durch Zufall ein Entwurf herauskommt der keine Probleme hat?

    Etwas muss euch ja anscheinend an den derzeitigen Entwürfen sehr stören! Aber ich kann aus euren letzten Antworten leider nicht erkennen was...
     
  12. #72 Thomas B, 22.08.2012
    Thomas B

    Thomas B

    Dabei seit:
    17.08.2005
    Beiträge:
    11.181
    Zustimmungen:
    4
    Beruf:
    Dipl.Ing.
    Das ist ja "das Problem" für die hier anwesenden (mitlesenden, mitschreibenden,..) Architekten. Meine ich.

    Nach meinem(!) Verständnis des BEF kann dieses Hilfenstellung geben. es kann Probleme aufzeigen, jemanden mit der Nase auf etwas stupsen. Oder bei akuten Problemen auch Lösungsvorschläge geben.

    Ein Entwurfsprozess ist nunmal das womit wir (die As) unser Geld verdienen. Jedenfalls auch damit.

    Und wenn dann Jemand mit einem DIY-Grundriss kommt (egal ob nun gut oder schlecht), dann setzen sich einige von uns hin und weisen auf Problemzonen hin.

    Was aber m.E. nicht der Sinn ist, ist wenn hier nun über zig DIY-Veränderungen der Weg zu einem guten Entwurf gewiesen werden soll. Zig Varianten, neue Ideen, neue Entwürfe....das spart Dir Geld (weil Du hier für lau quasi an die Hand genommen werden möchtest) und uns uns kostet es Zeit.

    Klar...man muß ja nichts dazu schreiben...stimmt schon.

    Ist ja auch egal......nix für ungut....

    Thomas
     
  13. #73 Oliver82, 22.08.2012
    Oliver82

    Oliver82

    Dabei seit:
    03.02.2012
    Beiträge:
    606
    Zustimmungen:
    0
    Beruf:
    Ingenieur
    Ort:
    BW
    Thomas ich kann deinen Standpunkt leider nicht so ganz nachvollziehen...

    einer deiner letzten Beiträge war noch unter anderem:

    der Tenor war "neustart"

    Jetzt ist es aber anscheinend ein Problem wenn ich NICHT am ursprünglichen Konzept festhalte?

    Das ist ja genau das auf was ich hoffe.. auf Problemzonen hingewiesen zu werden.. ich will nicht dass mir einer von euch eine Lösung dafür zeichnet...

    Daher die schlechte Laune? Du denkst Ich will einen Berufskollegen um sein Geld bringen? Nach dem Motto ich lasse gegen Geld einen ersten Entwurf anfertigen und baue den dann selbst so um bis ich zufrieden bin und lasse den Architekten außen vor?
    Das ist nicht der Fall...
    Ich mache mir allerdings eben selbst meine Gedanken zu den Entwürfen und versuche "Lösungen" für die Probleme in seinen Entwürfen zu finden.. Oder eben komplett neue Ansätze die Ich dann mit Ihm zusammen weiterentwickeln kann..

    im Endeffekt willst du mir damit sagen: Wenn ich einen neuen Entwurf von meinem Planer habe kann ich diesen hier gerne präsentieren, Unterstützung/hinweise bei der Weiterentwicklung der Entwürfe auf eigene Faust werde ich allerdings keine bekommen, egal ob Sie jetzt gut oder schlecht sind... ?
     
  14. #74 Ralf Dühlmeyer, 22.08.2012
    Ralf Dühlmeyer

    Ralf Dühlmeyer

    Dabei seit:
    14.06.2005
    Beiträge:
    34.296
    Zustimmungen:
    24
    Beruf:
    Architekt
    Ort:
    Hannover
    Oliver, Thomas hat es schon sehr schön auf den Punkt gebracht.

    Entweder arbeitest Du mit Architekt/Planer, dann es ist es DESSEN Job, sich diese Detailgedanken zu machen.
    Oder Du arbeitest ohne, dann ist es nicht unser "Job", diese Gedanken zu haben!

    So oder so hast Du alles bekommen, was aus dem Forum kommen kann. Dabei geht es nicht um "Wirtschaftshilfe" für eine Kollegen hier oder in Deiner Nähe, sondern um Sinn und Anspruch des Forums!

    Ich weiß ja nicht, was DU so ingeneuerst, aber stell Dir einfach vor Dein Kunde (z.B. Kaufmann) käme mit Laienvorschlägen zu z.B. Änderungen der Lager, der Materialgüte oder oder - mit 99,9 % Wahrscheinlichkeit si´nd die Mist!
    Das gilt auch für Deine Basteleien.
     
  15. #75 Gast036816, 22.08.2012
    Gast036816

    Gast036816 Gast

    Oliver - bevor hier jemand schlechte laune wegen eines entwurfs bekommt, muss schon vom TE ein mächtiger motzton aufgelegt werden. drum bewundere ich deine geduld, mit der du an deinem entwurf festhältst, was aber nicht heisst, dass du es richtig machst.

    du hast deinen ersten entwurf am 2012-07-19 hier eingestellt, dass sind jetzt 5 wochen. eine entwurfsphase kann manchmal lange dauern, aber ein wohnhaus deiner größenordnung darf nicht so lange dauern, das macht eine entwurfsphase auch unwirtschaftlich. vorrangig entscheidend soll das aber nicht sein, sondern das entwurfsergebnis.

    unter diesen aspekten solltest du einfach mal den entwurf beiseite legen für ein paar tage. du gehst am besten einmal in eine gute buchhandlung oder eine gute bestückte bibliothek und schaust dich mal nach wohnhäusern als gebaute beispiele um. du wirst sicher einige anregungen finden. wenn du dann hier und da ein paar anregungen gefunden hast, dann machst du mit deinem architekten einen neustart als entwurf. aus meiner sicht bist du mit dem entwurf im jetzigen stand in der sackgasse gelandet.
     
  16. #76 Oliver82, 11.09.2012
    Oliver82

    Oliver82

    Dabei seit:
    03.02.2012
    Beiträge:
    606
    Zustimmungen:
    0
    Beruf:
    Ingenieur
    Ort:
    BW
    Hallo zusammen,

    Nachdem Ich gestern aus meinem Urlaub zurückgekommen bin und etwas Abstand vom Thema genommen habe, lag auch ein neuer Entwurf meines Architekten im Postfach.

    Was haltet ihr davon? Fortschritt? Rückschritt?

    Da der neue Entwurf handgezeichnet ist, habe ich mich gefragt ob sich jetzt erst der Architekt mit den Entwürfen beschäftigt und vorher der technische Zeichner am Werk war, oder ob er gemerkt hat, dass es noch den ein oder anderen Entwurf benötigt bis zum Finale... :)

    DGneu.jpg EGneu.jpg KGneu.jpg

    Ansichten/Schnitte waren leider keine dabei.
     
  17. #77 Gast036816, 11.09.2012
    Gast036816

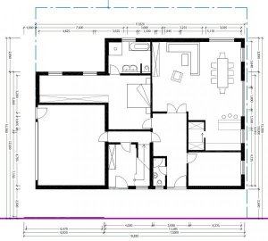
    Gast036816 Gast

    wird das eine einliegerwohnung im kg? zugang zu bad und wc zwischen kueche und essplatz = no go!
    hauseingang ist hinter der garage versteckt, das ist keine gute loesung. der essbereich im eg ist viel zu gross, der wohnbereich ist zu klein. garderobe und zugang wc ist zu beengt. mir behagt die ungleich lange zweihueftigkeit in der raumfolge nicht. ihr haltet euch zu sehr an dieser apendixloesung fest.
    im og gilt das analog. die 45 grad ecken hatten wir zur genuege. eine verbesserung ist es nicht.
     
  18. #78 Oliver82, 11.09.2012
    Oliver82

    Oliver82

    Dabei seit:
    03.02.2012
    Beiträge:
    606
    Zustimmungen:
    0
    Beruf:
    Ingenieur
    Ort:
    BW
    Im KG soll evtl ein Wohnbereich für meine schwester entstehen, eine KG wohnung wie im Entwurf wird es aber sicher nicht werden.
    Der große Essbereich das ist ein punkt auf dem meine Eltern bestehen... da wird kein so kleiner tisch wie im Entwurf in der Leere stehen sondern eine lange Tafel... und im Falle einer größeren Feier (3-4 mal im Jahr) muss da platz sein für 25-30 personen... das haben meine Eltern jetzt und das wollen sie so auf jeden Fall auch weiterhin haben! deswegen Stand im Raumkonzept dass das Esszimmer Groß genug sein muss, um 2 Tische a 3,5m nebeneinander zu stellen...

    Was genau meinst du mit apendixlösung?

    Der schmale zugang zum Gäste WC ist mir auch aufgefallen, ebenso die 45° ecken... allerdings muss ich sagen dass es diesmal nicht grundlose 45° ecken sind... 2 Zimmertüren nebeneinander passen nicht in einem 1,30m breiten Flur -> man müsste den Flur an dieser Stelle länger oder breiter machen was die Zimmer Fläche kostet... oder würdet Ihr sagen 45° ecken sind immer ein nogo, auch wenn sie nicht aus stilistischen sondern aus praktischen Gründen gebaut werden?

    Mit dem Hauseingang hinter der Garage da bin ich auch etwas skeptisch... andererseits lockert es den großen Bau etwas auf wenn die Garage nicht komplett integriert ist.. 10x18m rechteckig ohne irgendetwas wirkt imho einfach etwas langweilig.. aber evtl gibt es da ja andere Möglichkeiten, um das ganze etwas "interessanter" zu gestalten
     
  19. #79 Gast036816, 11.09.2012
    Gast036816

    Gast036816 Gast

    apendixlösung sind eure räume rechts im grundriss, die in den wohnbereich reingeschoben sind. die sind irgendwie von den anderen funktionsbereichen abgelöst und ausgelagert, hängen aber nur wie ein apendix noch dran.
     
  20. #80 Oliver82, 27.09.2012
    Oliver82

    Oliver82

    Dabei seit:
    03.02.2012
    Beiträge:
    606
    Zustimmungen:
    0
    Beruf:
    Ingenieur
    Ort:
    BW
    Hallo Zusammen!

    Nach der letzten Kritik eurerseits haben wir zusammen mit dem architekten einen "reset" gemacht und sind mit einem neuen "Baukörper" ins rennen gegangen mit dem wir (hoffentlich) einige Dinge besser Lösen können wie mit der alten variante.

    Dies ist eine erste skizze von unserem Architekten. Es geht mir vor allem Darum wo ihr hier (neue) Probleme seht. Viele Dinge fallen mir einfach nicht auf, wo ein gelernter Blick sofort ein Problem erkennt. Der Entwurf ist leider ohne Bemaßung... an der breitesten Stelle ist das Haus (ohne Garage) 12m Breit und 17,5m lang.

    Den Anhang S22C-112092605350.pdf betrachten


    Was erhoffen wir uns unter Anderem mit diesem Ansatz:
    -Zugang direkt von vorne, keine "über eck" lösung.
    -"geschützter" eingefasster Bereich für Balkon/Terrasse, Balkon direkt überdacht
    -keine "apendixlösung" mehr @ rolf a i b ;)
    - mehr/attraktiverer platz für Büro/Gäste unterm Dach (Wohn/Essbereich ist ohne Dachboden also evtl eine offene Galerie vom Arbeitszimmer unterm Dach zum Wohn/essbereich)
    - Kinderzimmer nicht neben Schlafzimmer/Bad im DG
     
Thema:

Neuer Entwurf Zweifamilienhaus

Die Seite wird geladen...

Neuer Entwurf Zweifamilienhaus - Ähnliche Themen

  1. Neue Balkenköpfe im Altbau Mauerwerk - Luftumpült oder gedämmt, Anschlüsse?

    Neue Balkenköpfe im Altbau Mauerwerk - Luftumpült oder gedämmt, Anschlüsse?: Hallo zusammen, ich habe eine Frage zu einem Detail bei einer Altbausanierung. Situation: Altbau von ca. 1890 Ziegelmauerwerk, außen mit 5 cm...
  2. Neues Haus in altem Gewand

    Neues Haus in altem Gewand: Moin! Nachdem im Bekanntenkreis wieder einmal ein altes Haus gekauft wurde, weil sie sich "irgendwie in das Haus verliebt haben" und nun die...
  3. Neue Entwürfe/Was sagt ihr!?

    Neue Entwürfe/Was sagt ihr!?: Liebe Forenmitglieder, in meinem Beitrag: Grundriss Neubau/Frage zur Überdachung daneus26 (20.05.2011 11:08) habe ich von unserem Hausbau...
  4. Neuer Entwurf...

    Neuer Entwurf...: Schönen Nikolaus allen :) Da gabs wohl in der Entwurfsphase unterschiedliche Prioritäten :winken [IMG]
  5. Unser neues Haus (Entwurf)

    Unser neues Haus (Entwurf): Hallo Expertengemeinde, hallo Mit-(bald)-Bauherren, hier mal einer unserer (zur Zeit favorisierte) Entwürfe für unser neues Haus. [IMG]...