Neues Dach

Diskutiere Neues Dach im Architektur Allgemein Forum im Bereich Architektur; Hallo zusammen, in den nächsten Wochen soll das Dach an unserem EFH erneuert werden. Für die Planung haben wir uns natürlich an den Bebauungsplan...

  1. HETH

    HETH

    Dabei seit:
    07.09.2022
    Beiträge:
    12
    Zustimmungen:
    1
    Hallo zusammen,
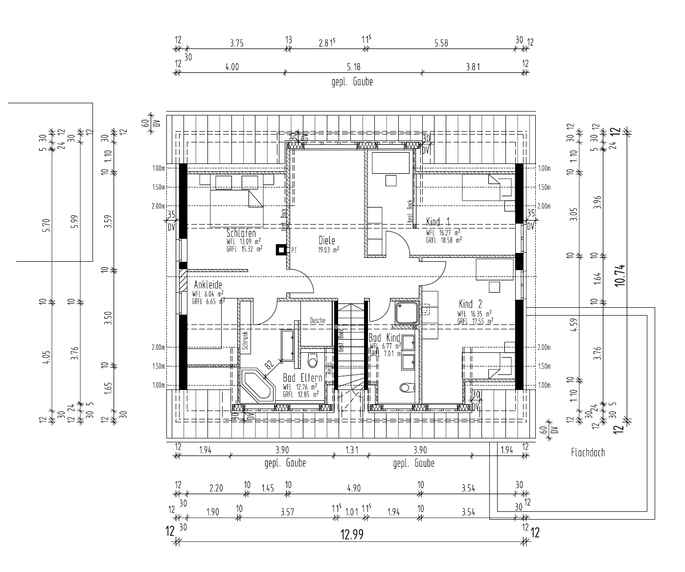
    in den nächsten Wochen soll das Dach an unserem EFH erneuert werden. Für die Planung haben wir uns natürlich an den Bebauungsplan gehalten, der sich später aber als nicht gültig herausgestellt hat und jetzt komme ich etwas ins Grübeln, ob ich denn alles "rausgeholt" habe. Daher war jetzt auch der erste Gedanke die Traufhöhe um 30cm zu erhöhen (siehe DG_A2)

    Folgende Punkte gehen mir aber insgesamt durch den Kopf:
    - Warum die Gauben nicht grundsätzlich größer machen? Schlecht für die Raumaufteilung?
    - Warum zur Nordseite nicht eine komplette Gaube, statt zwei einzelne?
    - Würden sich eurer meinen nach die 30cm mehr an Traufhöhe lohnen?

    Die nächsten Ansprechpartner sind selbstverständlich Architekt und Zimmermann. Ich würde mich aber über ein paar Ideen und Anreize freuen, bevor ich ins Gespräch gehe.

    Vielen Dank schon mal!
    DG_A2.png DG_A1.png DG_GR.png
     
  2. #2 K a t j a, 20.09.2022
    K a t j a

    K a t j a

    Dabei seit:
    31.05.2019
    Beiträge:
    1.009
    Zustimmungen:
    582
    Ort:
    Leipziger Land
    Wenn der B-Plan nicht gilt, was gilt denn dann? Ein neuer B-Plan? Wenn Du gern alles viel höher hättest, wieso nicht gleich zweigeschossig bauen und ein Walmdach drauf setzen?
    ...Etwas mehr Infos braucht es dann schon, denke ich.
     
    11ant gefällt das.
  3. HETH

    HETH

    Dabei seit:
    07.09.2022
    Beiträge:
    12
    Zustimmungen:
    1
    Dann gilt die umliegende Nachbarschaft, ich muss mich also an den Nachbarhäuser orientieren. Was ich noch vergessen hatte, allzu große Änderungen dürfen es auch nicht sein, da diese einen neuen Bauantrag voraussetzen und somit das ganze Projekt zwangsläufig ins Frühjahr 2023 verschoben werden müsste.
     
  4. #4 K a t j a, 20.09.2022
    K a t j a

    K a t j a

    Dabei seit:
    31.05.2019
    Beiträge:
    1.009
    Zustimmungen:
    582
    Ort:
    Leipziger Land
    Die Traufhöhe um 30cm zu erhöhen würde imho auch einen neuen Bauantrag erfordern. Oder guckt man da bei Euch nicht so genau hin? Wie soll das umgesetzt werden?

    Die Traufe zu erhöhen wäre bei den niedrigen Dachschrägen schon wünschenswert. Die 2 Gauben zu vereinen fände ich allerdings sinnlos. Was soll man mit mehr Kopfhöhe über der Treppe?
     
    11ant gefällt das.
  5. #5 Kriminelle, 20.09.2022
    Kriminelle

    Kriminelle

    Dabei seit:
    16.05.2013
    Beiträge:
    3.707
    Zustimmungen:
    2.048
    Beruf:
    .
    Ort:
    Niedersachsen
    Und wie sieht die aus?

    Ich wüsste jetzt nicht, ob 30cm es so bringen, schließlich regeln die Gauben die Kopffreiheit. Die Dachschrägenberreiche sind wenig und hier gut genutzt. Einzig die Ankleide leidet, aber ob dort 30cm mehr etwas bringen?
     
    11ant gefällt das.
  6. HETH

    HETH

    Dabei seit:
    07.09.2022
    Beiträge:
    12
    Zustimmungen:
    1
    @K a t j a : Bei wenig Änderungen geht das ganze wohl noch als Nachtrag durch, ist aber alles eher wage als klar definiert. Der Gedanke die Gauben zu vereinen kam auf, weil so noch etwas mehr Platz im Bad wäre und mehr Licht bei der Treppe.

    @Kriminelle: Von den umliegenden Häuser die noch zum gleichen ungültigen Bebauungsplan gehören, liegen zwei davon knapp 1m höher, der Rest ist recht ähnlich.
    Klar, die Traufhöhe bringt nur wirklich etwas in der Ankleide und im Schlafzimmer und ob da so viel Platz nötig ist, müssten wir uns wirklich überlegen.

    Wäre es denn möglich die Nord-Gauben nach außen hin zu verbreitern ohne den Grundriss vom Ankleidezimmer zu verkleinern? Oder steht dann die eine Wand der Gaube in der Luft?
     
  7. #7 K a t j a, 20.09.2022
    K a t j a

    K a t j a

    Dabei seit:
    31.05.2019
    Beiträge:
    1.009
    Zustimmungen:
    582
    Ort:
    Leipziger Land
    Ja, aber wie ist die Ausführung? Ich bin bei sowas immer skeptisch, wenn kein Statiker drauf guckt. Das Dach drückt von oben auf den Ringanker, der die Sache auch bei Sturm zusammenhält. Wenn Du jetzt 30cm höher gehst, drückt das Dach worauf genau, ohne das da was nach außen weg kippt?
    Mmh, mich würde die Höhe über der Treppe stören. Das sieht dann von unten aus wie ein Turm. Wenn es da tatsächlich zu dunkel ist, würde ich eher ein DFF einplanen. Das jetzt so viel mehr Platz im Bad gewonnen würde, sehe ich auch nicht.
     
    11ant gefällt das.
  8. #8 Kriminelle, 20.09.2022
    Kriminelle

    Kriminelle

    Dabei seit:
    16.05.2013
    Beiträge:
    3.707
    Zustimmungen:
    2.048
    Beruf:
    .
    Ort:
    Niedersachsen
    Ich kenne die Regelung, dass Gauben z.b 1/3, 1,25 Meter oder ähnlich vom Giebel Abstand haben müssen. Ob das nur bei einem Reihenhaus gilt oder ob das ansonsten die Giebeleigenschaft auflöst, weiß ich nicht. Zudem gilt wohl die Eingeschossigkeit bei Euch?
     
    11ant gefällt das.
  9. HETH

    HETH

    Dabei seit:
    07.09.2022
    Beiträge:
    12
    Zustimmungen:
    1
    Im Grunde lese ich bei euch beiden also raus, dass die Planung aktuell schon gut gepasst und ohne viel Aufwand eigentlich wenig zu optimieren ist.
     
  10. 11ant

    11ant

    Dabei seit:
    28.02.2017
    Beiträge:
    2.486
    Zustimmungen:
    1.564
    Beruf:
    Bauherrenberater
    Ort:
    RLP Nord
    Benutzertitelzusatz:
    bringt Sie gut beraten ins Eigenheim
    Die Bezeichnung dieser m.E. Zwerchhäusern deutlich näheren Zwitter als "Gauben" ist hart an der Dreistigkeitsgrenze ;-)
    Und wer hat das geplant, was Du hier zeigst ?
    Das solltest Du uns näher erläutern (und auch selber genau verstehen wollen). Das zählt zu den Grundlagen (LP 1).
     
    simon84 gefällt das.
  11. HETH

    HETH

    Dabei seit:
    07.09.2022
    Beiträge:
    12
    Zustimmungen:
    1
    Das heißt was? Gauben zu groß/zu klein? Versteh ich nicht.

    Der Architekt natürlich, aber bevor ich mit dem Architekt und dem Zimmermann die Runde drehe, möchte ich zumindest eine grobe Richtung haben. Die Zeit ist in allen Gewerken knapp, daher freuen sich natürlich alle, wenn noch doch noch etwas ändern möchte.

    Für Gauben und die Garage mussten wir selbstverständlich einen Bauantrag stellen und haben hierfür den Bebauungsplan von der Gemeinde erhalten. Mit der Baugenehmigung habe ich auch die Unterlagen zurückerhalten und dort war handschriftlich vermerkt, dass der Bebauungsplan nie rechtskräftig wurde. Auf meine Rückfrage, was dies nun konkret für mich bedeutet, wurde mir mitgeteilt, dass in diesem Fall das Gesetz so und so in Kraft tritt und ich mich nach dem Bestand in der Nachbarschaft halten muss.
     
  12. 11ant

    11ant

    Dabei seit:
    28.02.2017
    Beiträge:
    2.486
    Zustimmungen:
    1.564
    Beruf:
    Bauherrenberater
    Ort:
    RLP Nord
    Benutzertitelzusatz:
    bringt Sie gut beraten ins Eigenheim
    Es sind Zwitter, de facto eher Zwerchhäuser, aber de iure aus Gauben bezeichenbar. Mehr Gratwanderung ginge nicht. So könnte das ein Baujurist geplant haben, wo ausdrücklich nur Gauben zugelassen wären. Es ist gut so, nur eben wenn ein Profi den Plan liest auch mit Schmunzelgarantie verbunden, weil es eben ein Schelmenstück ist.
    Das "Gesetz Soundso" heißt Bundesbaugesetz, dessen §34 ein Einfügungsgebot vorsieht, wenn im "nicht überplanten Innenbereich" gebaut werden soll, was bei einem nicht rechtskräftigen Bebauungsplan rechtlich formell der Fall ist. Dennoch läßt sich der Bebauungsplan als wertvoller Hinweisgeber lesen, was der Wille der Gemeinde wäre und in welcher Art man Befreiungen vom Ergebnis der Umfeldschau mit Erfolgsaussichten beantragen könnte.

    Hier wäre also klug, uns über die Rahmenbedingungen des Bebauungsplanes aufzuklären und die Abweichungen zu erläutern, die Ihr als Gewinn für Euer Bauvorhaben werten würdet.

    Daß eine Firsthöhenausreizung mit dem Effekt eines dann 30 cm betragenden Kniestockes von den MitdiskutantInnen mindestens nicht als wesentlicher / lohnender Gewinn angesehen wäre, wurde ja bereits erwähnt.

    Im übrigen lassen sich Umbauvorhaben mit Kenntnis nur eines Geschosses entsprechend schlechter einschätzen.
     
  13. 11ant

    11ant

    Dabei seit:
    28.02.2017
    Beiträge:
    2.486
    Zustimmungen:
    1.564
    Beruf:
    Bauherrenberater
    Ort:
    RLP Nord
    Benutzertitelzusatz:
    bringt Sie gut beraten ins Eigenheim
    P.S.:
    Was auch immer das für eine Runde sein mag - wenn bereits ein Architekt involviert ist, hätte die Nichtgültigkeit des Bebauungsplanes bereits vor den Planungen bekannt sein und Berücksichtigung finden sollen. Die Beiträgereihe "Der Hausbau-Fahrplan" beginnt hier: Ein Hausbau-Fahrplan, auch für Sie: das Phasenmodell der HOAI!
     
  14. HETH

    HETH

    Dabei seit:
    07.09.2022
    Beiträge:
    12
    Zustimmungen:
    1
    Die 30cm sind wohl das einzige was aufgrund der Statik noch machbar ist ohne beim DG komplett bei 0 anzufangen. Die Gemeinde wusste wohl nichts von der Nichtgültigkeit und das Landratsamt hat es auch erst während der Bearbeitung unseres Antrags festgestellt. Kommt so etwas öfter vor? Hätte der Architekt da pauschal nachhaken müssen?
     
  15. #15 K a t j a, 20.09.2022
    K a t j a

    K a t j a

    Dabei seit:
    31.05.2019
    Beiträge:
    1.009
    Zustimmungen:
    582
    Ort:
    Leipziger Land
    Soll man glauben, dass in dieser Gemeinde noch nie jemand ein Haus gebaut hat und ein ansässiger Architekt zum ersten mal vor der Tatsache steht, dass der B-Plan nicht gilt? Das klingt sehr unwahrscheinlich.
     
    11ant gefällt das.
  16. HETH

    HETH

    Dabei seit:
    07.09.2022
    Beiträge:
    12
    Zustimmungen:
    1
    Das gilt ja nur für diesen Teil des Wohngebietes. Aber was bringt’s mir? Ich könnte die Aussagen ja nicht mal überprüfen und selbst wenn…
     
  17. 11ant

    11ant

    Dabei seit:
    28.02.2017
    Beiträge:
    2.486
    Zustimmungen:
    1.564
    Beruf:
    Bauherrenberater
    Ort:
    RLP Nord
    Benutzertitelzusatz:
    bringt Sie gut beraten ins Eigenheim
    Einen Kniestock sehe ich hier die Statik nicht berühren, das hat nichts mit seiner Höhe zu tun.
    Selbstverständlich kann die Gemeinde darüber kein solches Nichtwissen haben, und ein Architekt checkt solche Essentials sofort.
    Selbstverständlich, Informationsfreiheitsgesetz und so, selbst wenn die Gemeinde den Plan noch nicht digitalisiert und ins Internet gestellt hat. Das Unterschriften- und Stempelgedöns auf dem Plan ist leicht auf Vollständigkeit zu prüfen. Der Prozeß ist genormt.
     
  18. HETH

    HETH

    Dabei seit:
    07.09.2022
    Beiträge:
    12
    Zustimmungen:
    1
    Dann mal anderes gefragt: würdest du noch etwas an dem Plan ändern und wenn ja was?
     
  19. 11ant

    11ant

    Dabei seit:
    28.02.2017
    Beiträge:
    2.486
    Zustimmungen:
    1.564
    Beruf:
    Bauherrenberater
    Ort:
    RLP Nord
    Benutzertitelzusatz:
    bringt Sie gut beraten ins Eigenheim
    Das sagte ich bereits mehrfach: ich würde stets VORHER die Grundlagen checken, und erst dann planen. Am jetzigen Plan gibt es nichts zu ändern, wenn er für Dich "paßt", denn wenn ich recht verstand, hat die Genehmigungsbehörde keine Beanstandungen, sondern lediglich angemerkt, daß eine Vorschrift trotz mangelnder Rechtskraft beachtet wurde (?)
    Was ICH ändern würde, wäre die Diskrepanz der "Gauben"breite am Schreibtisch von Kind 1 zu beseitigen. Solch ein "Schulterpolster" zu reinen Symmetriezwecken ist in meinen Augen ein Blinddarm (nützt nichts, aber kann sich entzünden).
     
  20. HETH

    HETH

    Dabei seit:
    07.09.2022
    Beiträge:
    12
    Zustimmungen:
    1
    So, jetzt haben wir mal was. Danke für den Punkt mit dem „Schulterpolster“ und auch danke an den Rest fürs Feedback.
     
    11ant gefällt das.
Thema:

Neues Dach

Die Seite wird geladen...

Neues Dach - Ähnliche Themen

  1. Neue Unterspannbahn oder komplett neues Dach?

    Neue Unterspannbahn oder komplett neues Dach?: Hallo, bei uns wurde ein Wintergarten gebaut. Dafür wurde der Dachvorsprung eingekürzt wobei die total poröse Unterspannbahn sichtbar wurde. Der...
  2. Dach neu decken

    Dach neu decken: Wir haben vor einigen Jahren ein Haus (DHH) gekauft, Baujahr 1972. Das Dach sowie der Fußboden auf dem kleinen Dachboden zum darunterliegenden...
  3. Altbau 1977 - Dach von innen neu dämmen

    Altbau 1977 - Dach von innen neu dämmen: Dieser Thread kann geschlossen werden. Danke
  4. Dach neu dämmen

    Dach neu dämmen: Hallo zusammen, wir haben über unserem 1. OG einen kleinen Spitzboden. Der ein wenig als Abstellraum genutzt wird. Am höchsten Punkt hat der...
  5. Duplex-Netzwerkkabel CAT7 im Dachstuhl verlegen im Zuge eine neuen Daches

    Duplex-Netzwerkkabel CAT7 im Dachstuhl verlegen im Zuge eine neuen Daches: Hallo Zusammen, ich wollte mich im Vorfeld mal hier im Forum informieren wie Ihr das ev. gemacht habt im Zuge eines neuen Daches ->...